Размещено на портале Архи.ру (www.archi.ru)

01.09.2016

Меандр с блеском металла

Нина Фролова
Объект:
Многофункциональный центр «Данилов Плаза»
Адрес:
Россия, Москва. Новоданиловская набережная, вл. 6
Архитектор:
Сергей Чобан
Сергей Кузнецов
Мастерская:
СПИЧ
Авторский коллектив:
Авторы проекта: Сергей Чобан, Сергей Кузнецов
Главный архитектор проекта: Игорь Членов
Архитектор: Евгений Ляшков
Главный инженер проекта: Игорь Осокин

Многофункциональный комплекс «Данилов Плаза» бюро SPEECH на Новоданиловской набережной в Москве.

Многофункциональный центр «Данилов Плаза
Многофункциональный центр «Данилов Плаза
© Алексей Народицкий

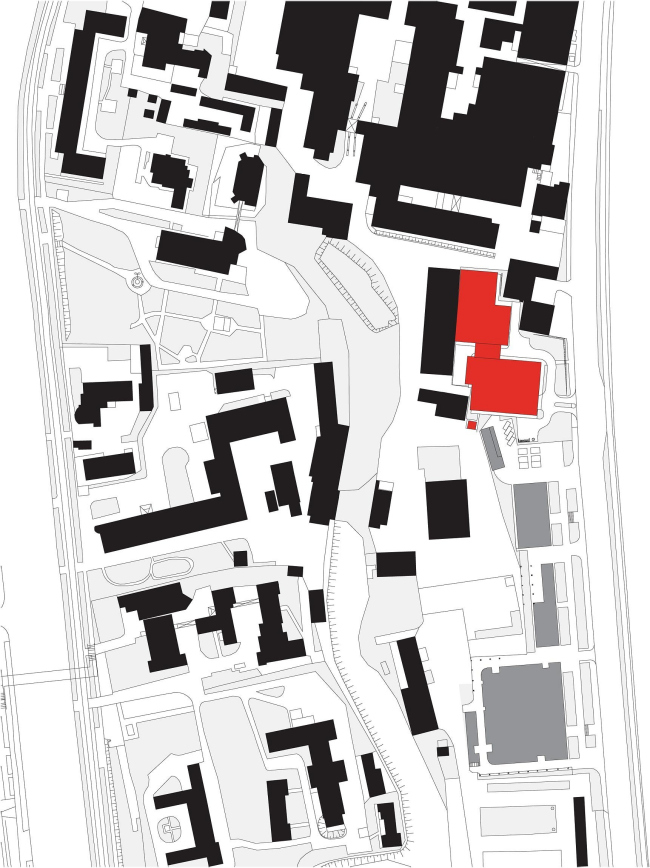
Многофункциональный комплекс «Данилов Плаза», о проекте которого мы писали в 2009 году, расположен на берегу Москвы-реки, что сравнительно недалеко от центра города: почти рядом – Свято-Данилов монастырь и Серпуховская застава. Однако этот район исторически был промышленным и потому не слишком приветливым, и лишь в начале XXI века его коснулась реконструкция. Среди новых и реконструированных офисных зданий, занимающих выгодное положение у воды, нашел свое место и «Данилов Плаза»: два его 13-этажных корпуса обращены через реку к «полуострову ЗиЛ», где множество башенных кранов работают сейчас на стройплощадке «Зиларта» (в этом масштабном проекте также участвует бюро SPEECH).
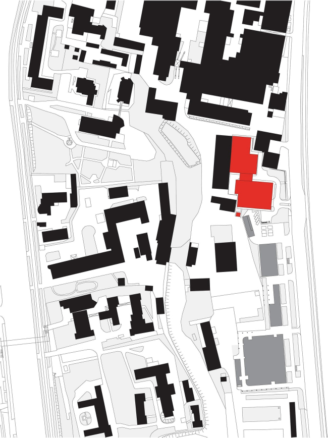
Многофункциональный центр «Данилов Плаза». Ситуационный план
Многофункциональный центр «Данилов Плаза». Ситуационный план
© SPEECH

«Данилов Плаза» выделяется среди соседних построек, привнося заметное разнообразие в преимущественно кирпичное окружение: объект мастерской SPEECH фланкируют «Даниловский форт» Сергея Скуратова и реконструированная Валерием Лукомским в офисный комплекс историческая Даниловская мануфактура. Среди их темно-красных многочастных форм «Данилов Плаза» сразу заметен благодаря лаконичности своих почти правильных прямоугольных объемов и светлым фасадам с металлическим блеском. Ближайший к набережной корпус обшит серебристыми алюминиевыми композитными панелями, отступающий от реки вглубь – панелями золотистого оттенка. Их поверхность – а с ней и весь комплекс – меняет облик в зависимости от освещения, но эта визуальная «отзывчивость» не в меньшей степени зависит от рельефного узора, покрывающего все фасады «Данилов Плаза».
Многофункциональный центр «Данилов Плаза
Многофункциональный центр «Данилов Плаза
© Алексей Народицкий
Многофункциональный центр «Данилов Плаза
Многофункциональный центр «Данилов Плаза
© Алексей Народицкий
Многофункциональный центр «Данилов Плаза
Многофункциональный центр «Данилов Плаза
© Алексей Народицкий

Тема орнамента всегда интересовала архитекторов SPEECH, и данном случае они как будто пустили по фасадам вертикальных меандровых змеек, серебряных и золотых. Они охватывают квадратные оконные проемы как небольшие «перспективные порталы», с которыми их сравнивают авторы проекта: каждая змейка кажется состоящей из трех слоев, который ступеньками отступает от стекла. Этот рельеф придает поверхностям стен фактурное, тактильное богатство, что эффектно оттеняется простотой силуэтов комплекса – хотя небольшой выступ из прямоугольного плана у каждого из корпусов создает дополнительные перспективные виды с «наложением» фасадов и их меандров друг на друга.
Многофункциональный центр «Данилов Плаза
Многофункциональный центр «Данилов Плаза
© Алексей Народицкий
Многофункциональный центр «Данилов Плаза
Многофункциональный центр «Данилов Плаза
© Алексей Народицкий
Многофункциональный центр «Данилов Плаза
Многофункциональный центр «Данилов Плаза
© Алексей Народицкий

Зрительно завершает орнаментальную поверхность стен «аттик», как называют его архитекторы: ряд узких оконных проемов высотой в два этажа. Граница между этажами в каждом из них отмечена горизонтальной полоской стекла. Нижние два яруса полностью остеклены, по площади они чуть меньше остальной части корпуса; здесь этажи тоже отделяет друг от друга скрывающая перекрытия стеклянная полоса, таким образом сохраняется ясность облика постройки, где рациональное внутреннее устройство отражено на фасадах. Для удобства пользователей «Данилов Плаза» его корпуса соединены переходами на уровне восьмого и одиннадцатого этажей.
Многофункциональный центр «Данилов Плаза
Многофункциональный центр «Данилов Плаза
© Алексей Народицкий
Многофункциональный центр «Данилов Плаза
Многофункциональный центр «Данилов Плаза
© Алексей Народицкий
Многофункциональный центр «Данилов Плаза
Многофункциональный центр «Данилов Плаза
© Алексей Народицкий

Пространство вокруг корпусов открыто, плавно перетекая в территории соседних офисных комплексов (парковка помещена под землю). Таким образом, не только в перспективе, но и вблизи «Данилов Плаза» воспринимается как самостоятельный, эффектно поданный объект, вполне способный постоять за себя в таком разнообразном окружении, как обновленная Новоданиловская набережная.
Многофункциональный центр «Данилов Плаза
Многофункциональный центр «Данилов Плаза
© Алексей Народицкий
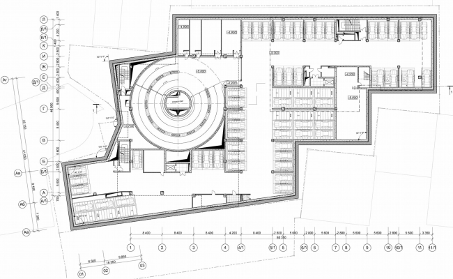
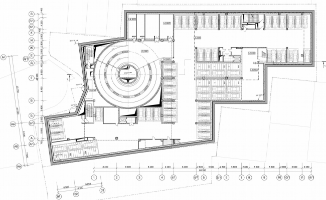
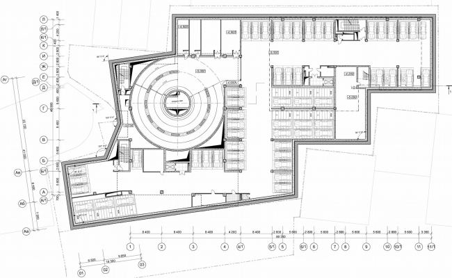
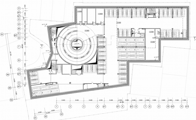
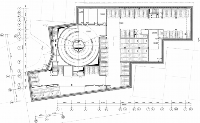
Многофункциональный центр «Данилов Плаза». План подземного этажа
Многофункциональный центр «Данилов Плаза». План подземного этажа
© SPEECH
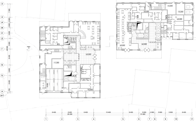
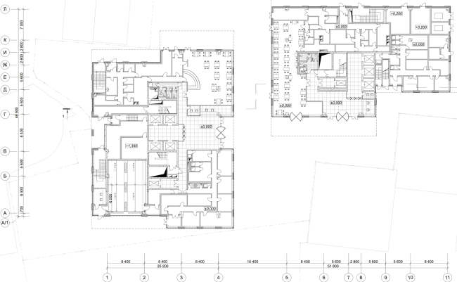
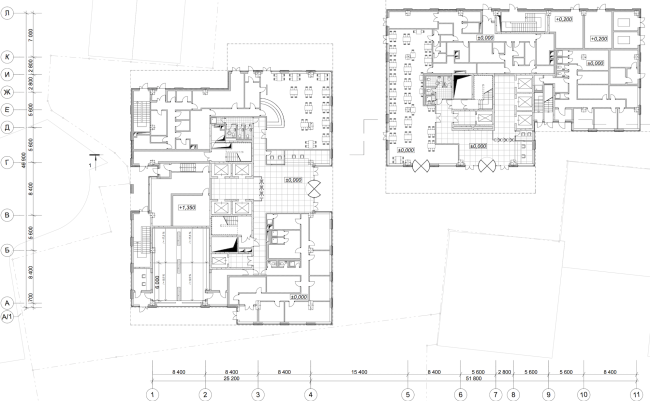
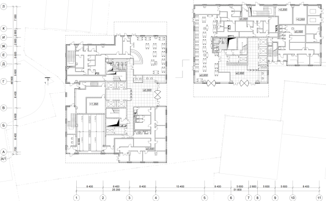
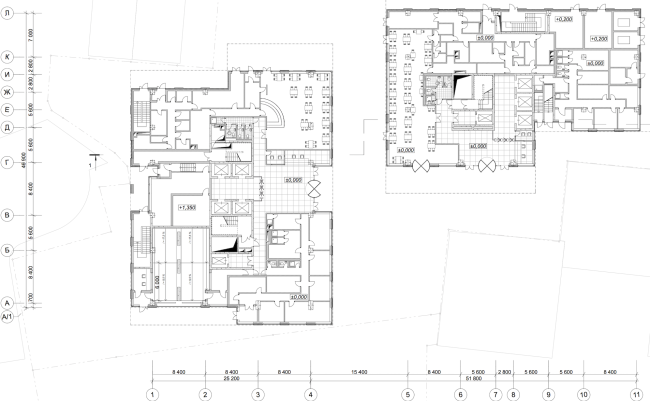
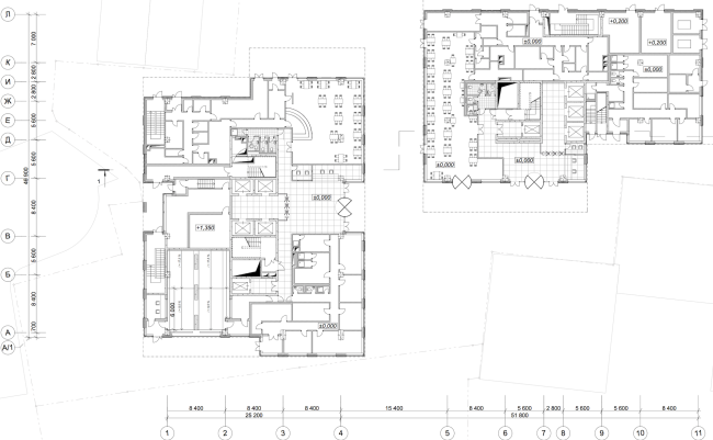
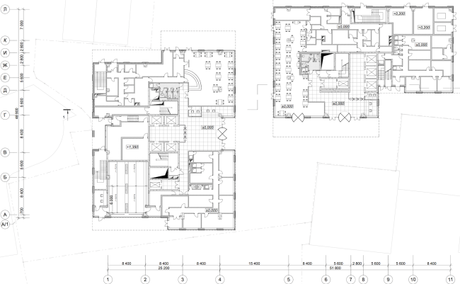
Многофункциональный центр «Данилов Плаза». План первого этажа
Многофункциональный центр «Данилов Плаза». План первого этажа
© SPEECH
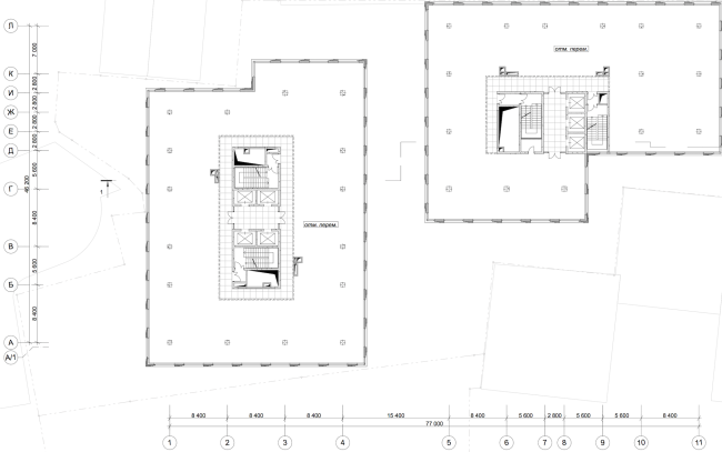
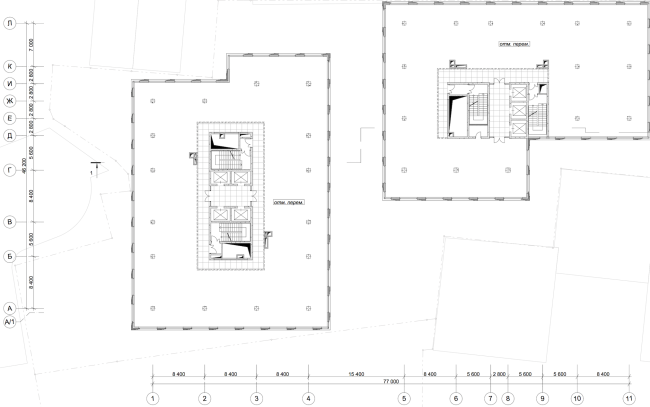
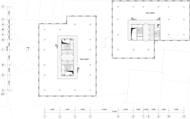
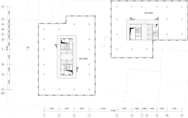
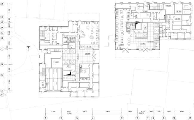
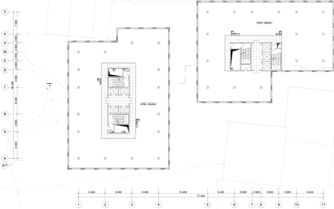
Многофункциональный центр «Данилов Плаза». План типового этажа
Многофункциональный центр «Данилов Плаза». План типового этажа
© SPEECH
Многофункциональный центр «Данилов Плаза». Разрез
Многофункциональный центр «Данилов Плаза». Разрез
© SPEECH