Размещено на портале Архи.ру (www.archi.ru)

02.08.2016

На йоркширских холмах

Нина Фролова
Объект:
Аббатство Стэнбрук
Адрес:
Великобритания, None,
Мастерская:
Feilden Clegg Bradley Studios

Бюро Feilden Clegg Bradley Studios построило аббатство Стэнбрук для монахинь-бенедиктинок.

Аббатство Стэнбрук © Mark Wray
Аббатство Стэнбрук © Mark Wray

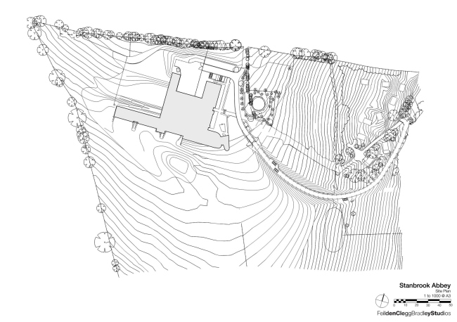
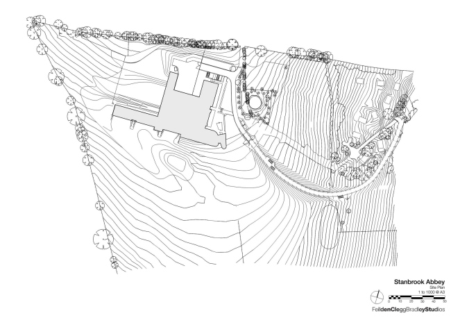
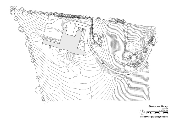
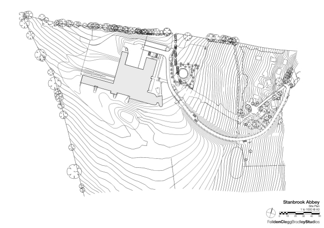
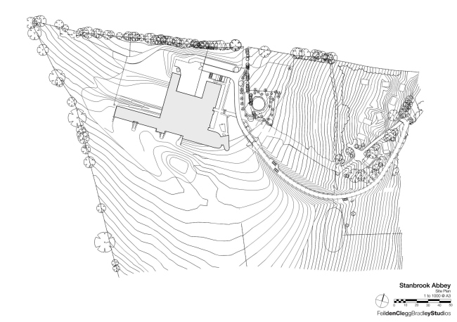
Аббатство Стэнбрук, официально – женский монастырь Богоматери – Утешительницы скорбящих, расположено на территории национального парка «Вересковые пустоши Северного Йоркшира» (North York Moors). Уединенное место в живописном окружении из холмов и долин было выбрано монахинями как оптимальная среда для их созерцательной, посвященной молитве жизни.
 
Аббатство Стэнбрук © Tim Crocker
Аббатство Стэнбрук © Tim Crocker

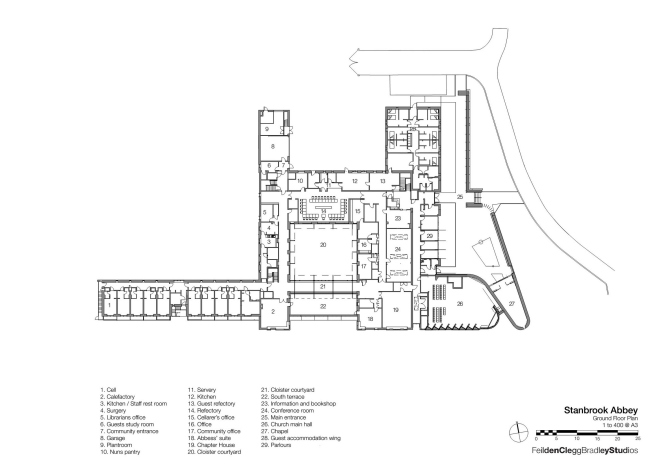
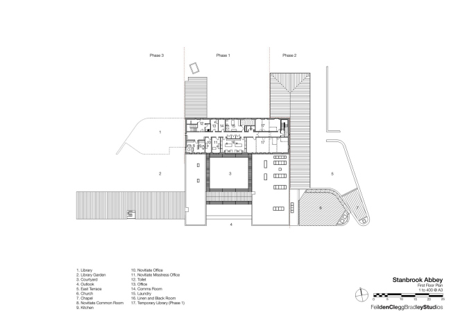
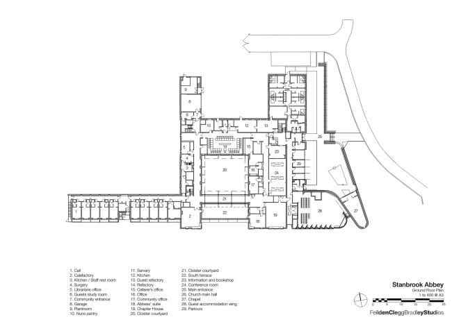
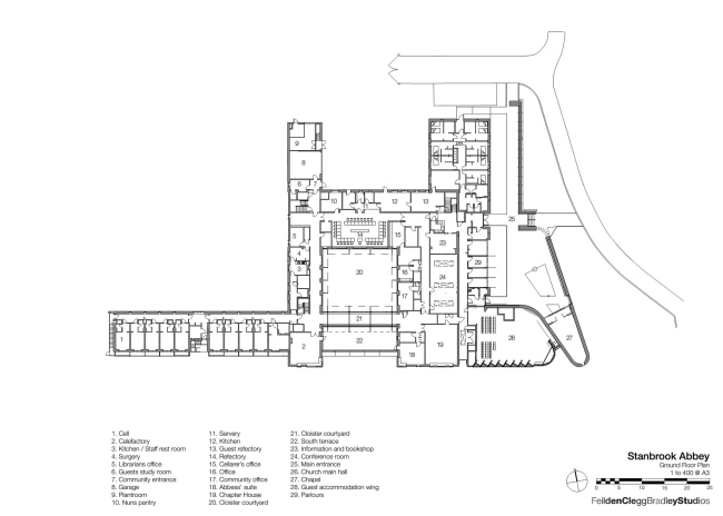
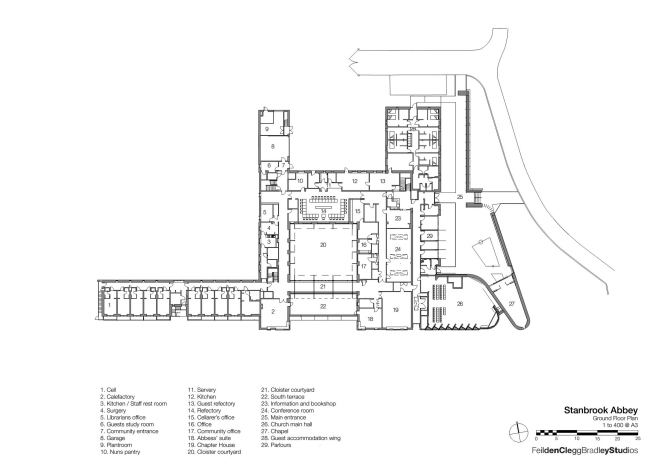
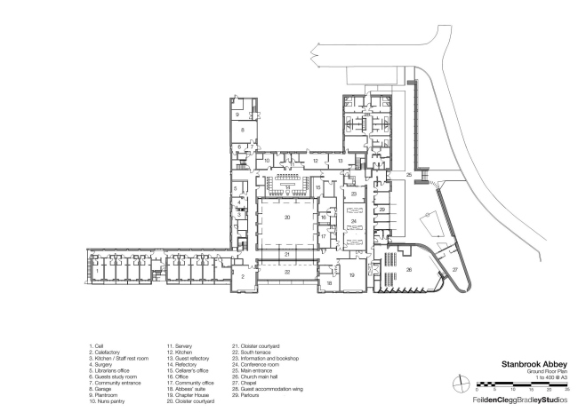
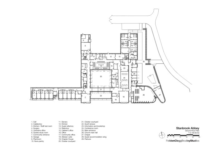
В основе проекта – приниципы простоты и покоя. Лаконичные формы комплекса оттеняют эффектные пейзажи, открывающиеся с юга. Туда – откуда также приходит максимум солнечного света – обращена закрытая часть монастыря с 26 кельями, кухней, трапезной и помещениями для работы (она была завершена в 2009). Сейчас же в обители появились церковь, часовню, зал капитула и разнообразные помещения для гостей, включая конференц-зал и книжный магазин. Все эти общественные пространства обращены на восток, к подъездной дороге.
 
Аббатство Стэнбрук © Tim Crocker
Аббатство Стэнбрук © Tim Crocker

Монахини хотели получить экологичный и ресурсоэффективный монастырь, который было бы недорого содержать. Именно ради экономии средств они покинули свою обитель в Вустершире, постройку середины XIX века (теперь там отель): постоянно ремонтировать ее и оплачивать немалые счета за отопление оказалось слишком дорого, тем более что в начале XXI века число монахинь сократилось с 80 до около 25.
 
Аббатство Стэнбрук © Tim Crocker
Аббатство Стэнбрук © Tim Crocker

В результате, архитекторы постарались использовать при строительстве экологически чистые, перерабатываемые или требующие малых затрат энергии при производстве материалы: песчаник (значительная его часть – это отходы производства плитки на местном предприятии) и древесину дуба, а также медь. Из местного дерева вместо привычной стали была выполнена часть несущей конструкции. В комплексе использованы естественная вентиляция, потребляющие минимум энергии электрооборудование и светильники, оболочка с высоким уровнем изоляции, система очистки сточных вод с помощью «болотца» с тростником.
Аббатство Стэнбрук © Tim Crocker
Аббатство Стэнбрук © Tim Crocker
Аббатство Стэнбрук © Tim Crocker
Аббатство Стэнбрук © Tim Crocker
Аббатство Стэнбрук © Tim Crocker
Аббатство Стэнбрук © Tim Crocker
Аббатство Стэнбрук © Peter Cook
Аббатство Стэнбрук © Peter Cook
Аббатство Стэнбрук © Tim Crocker
Аббатство Стэнбрук © Tim Crocker
Аббатство Стэнбрук © Tim Crocker
Аббатство Стэнбрук © Tim Crocker
Аббатство Стэнбрук © Tim Crocker
Аббатство Стэнбрук © Tim Crocker
Аббатство Стэнбрук © Tim Crocker
Аббатство Стэнбрук © Tim Crocker
Аббатство Стэнбрук © Tim Crocker
Аббатство Стэнбрук © Tim Crocker
Аббатство Стэнбрук © Tim Crocker
Аббатство Стэнбрук © Tim Crocker
Аббатство Стэнбрук © Tim Crocker
Аббатство Стэнбрук © Tim Crocker
Аббатство Стэнбрук © Tim Crocker
Аббатство Стэнбрук © Tim Crocker
Аббатство Стэнбрук © Tim Crocker
Аббатство Стэнбрук © Tim Crocker
Аббатство Стэнбрук © Tim Crocker
Аббатство Стэнбрук © Tim Crocker
Аббатство Стэнбрук © Tim Crocker
Аббатство Стэнбрук © Tim Crocker
Аббатство Стэнбрук © Tim Crocker
Аббатство Стэнбрук © Tim Crocker
Аббатство Стэнбрук © Tim Crocker
Аббатство Стэнбрук © Tim Crocker
Аббатство Стэнбрук © Mark Wray
Аббатство Стэнбрук © Mark Wray
Аббатство Стэнбрук © Tim Crocker
Аббатство Стэнбрук © Tim Crocker
Аббатство Стэнбрук © Tim Crocker
Аббатство Стэнбрук © Tim Crocker
Аббатство Стэнбрук © Mark Wray
Аббатство Стэнбрук © Mark Wray
Аббатство Стэнбрук © Peter Cook
Аббатство Стэнбрук © Peter Cook
Аббатство Стэнбрук © Peter Cook
Аббатство Стэнбрук © Peter Cook
Аббатство Стэнбрук © Peter Cook
Аббатство Стэнбрук © Peter Cook
Аббатство Стэнбрук © Peter Cook
Аббатство Стэнбрук © Peter Cook
Аббатство Стэнбрук © Peter Cook
Аббатство Стэнбрук © Peter Cook
Аббатство Стэнбрук © Peter Cook
Аббатство Стэнбрук © Peter Cook
Аббатство Стэнбрук © Peter Cook
Аббатство Стэнбрук © Peter Cook
Аббатство Стэнбрук © Peter Cook
Аббатство Стэнбрук © Peter Cook
Аббатство Стэнбрук © Peter Cook
Аббатство Стэнбрук © Peter Cook
Аббатство Стэнбрук © Feilden Clegg Bradley Studios
Аббатство Стэнбрук © Feilden Clegg Bradley Studios
Аббатство Стэнбрук © Feilden Clegg Bradley Studios
Аббатство Стэнбрук © Feilden Clegg Bradley Studios
Аббатство Стэнбрук © Feilden Clegg Bradley Studios
Аббатство Стэнбрук © Feilden Clegg Bradley Studios
Аббатство Стэнбрук © Feilden Clegg Bradley Studios
Аббатство Стэнбрук © Feilden Clegg Bradley Studios
Аббатство Стэнбрук © Feilden Clegg Bradley Studios
Аббатство Стэнбрук © Feilden Clegg Bradley Studios
Аббатство Стэнбрук © Feilden Clegg Bradley Studios
Аббатство Стэнбрук © Feilden Clegg Bradley Studios
Аббатство Стэнбрук © Feilden Clegg Bradley Studios
Аббатство Стэнбрук © Feilden Clegg Bradley Studios