Размещено на портале Архи.ру (www.archi.ru)

29.07.2016

Лестница на фасаде

Нина Фролова
Объект:
Национальный музей изящных искусств Квебека – павильон Пьера Лассонда
Адрес:
Канада, None, Квебек.
Мастерская:
OMA

В Квебеке открылся новый корпус Национального музея изящных искусств по проекту OMA.

Национальный музей изящных искусств Квебека – павильон Пьера Лассонда © Bruce Damonte
Национальный музей изящных искусств Квебека – павильон Пьера Лассонда © Bruce Damonte

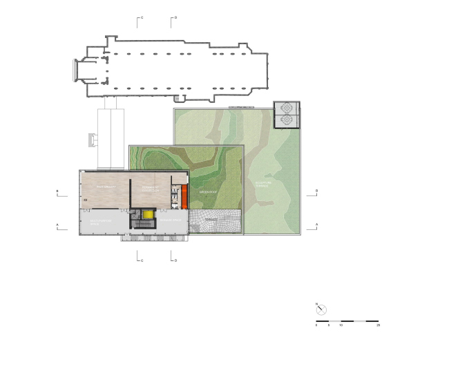
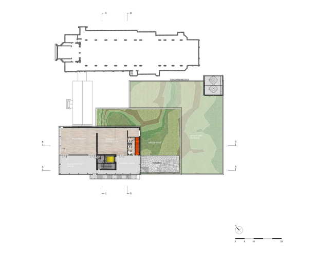
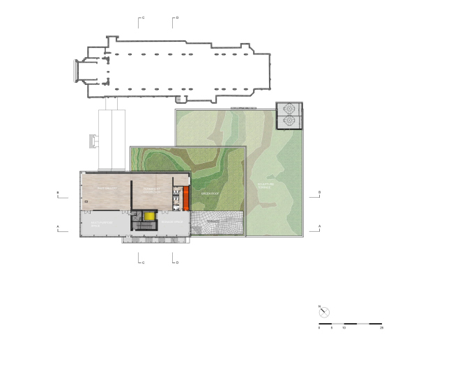
Павильон Пьера Лассонда (новое здание носит имя благотворителя) – уже четвертый корпус художественного музея Квебека. Все постройки расположены в парке Бэттлфилдс (Шан-де-Батай), однако именно сооружению ОМА «поручено» встречать входящих в парк посетителей, все остальные строения расположены дальше от городских кварталов. Эту функцию «встречи» архитектуры и природы выражает каскад из трех блоков, спускающихся от Квебека к парку, от меньшего объема к большему. Наверху расположены залы дизайна и эскимосского искусства (42,5 м x 25 м), ниже – постоянная экспозиция современного и новейшего искусства (45 м x 35 м), а в самом низу – пространство для временных выставок (50 м x 50 м).
 
Национальный музей изящных искусств Квебека – павильон Пьера Лассонда © Bruce Damonte
Национальный музей изящных искусств Квебека – павильон Пьера Лассонда © Bruce Damonte

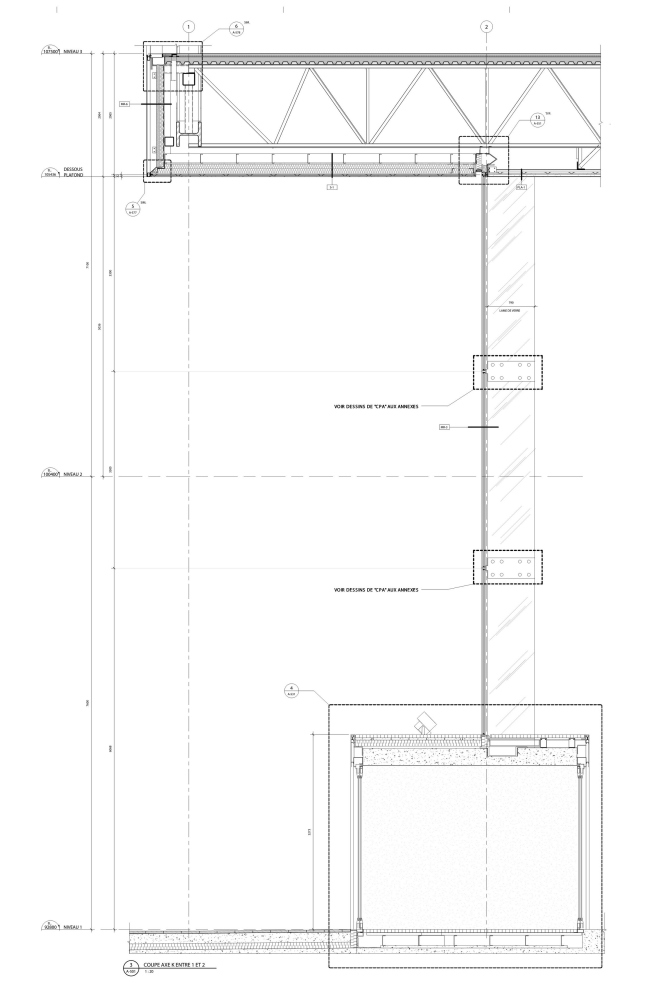
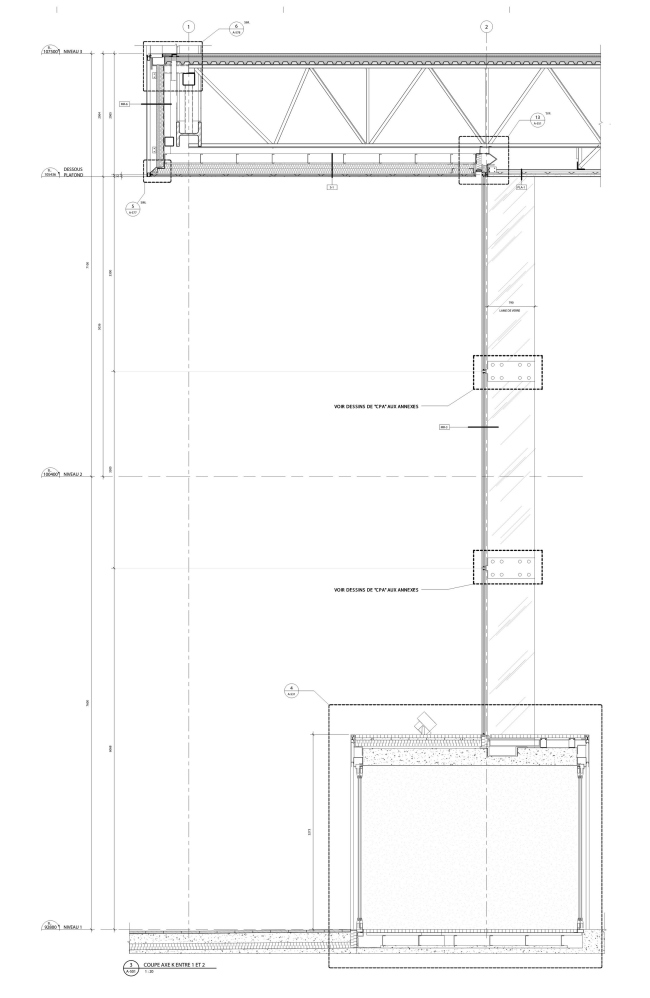
Верхний блок образует 20-метровую консоль, под которой помещен Большой зал – обращенное к городу многофункциональное пространство с прозрачными фасадами (они защищены от солнца стеклянными же ламелями). Стены выставочных пространств, напротив, почти непроницаемы: они состоят из трех слоев стекла: фриттованного, гофрированного и рассеивающего. На них нанесен узор, вторящий вынесенным на периметр постройки фермам: они, составив несущую конструкцию здания, позволили сделать мощную консоль и обойтись без опор в залах. На фасад помещена лестница, еще одна, спиральная, занимает пространство атриума. Кровля павильона решена как серия зеленых террас, подходящих для самых разных мероприятий.
 
Национальный музей изящных искусств Квебека – павильон Пьера Лассонда © Bruce Damonte
Национальный музей изящных искусств Квебека – павильон Пьера Лассонда © Bruce Damonte

Рядом с новой постройкой расположена неоготическая церковь Сен-Доминик. С главным зданием музея Павильон Пьера Лассонда связывает 130-метровый переход, по сути – серия галерей. Такое протяженное пространство позволило выставить там 40-метровое полотно из собрания музея «Посвящение Розе Люксембург» авторства Жана-Поля Рьопеля.
Национальный музей изящных искусств Квебека – павильон Пьера Лассонда © Bruce Damonte
Национальный музей изящных искусств Квебека – павильон Пьера Лассонда © Bruce Damonte
Национальный музей изящных искусств Квебека – павильон Пьера Лассонда © Nic Lehoux
Национальный музей изящных искусств Квебека – павильон Пьера Лассонда © Nic Lehoux
Национальный музей изящных искусств Квебека – павильон Пьера Лассонда © Nic Lehoux
Национальный музей изящных искусств Квебека – павильон Пьера Лассонда © Nic Lehoux
Национальный музей изящных искусств Квебека – павильон Пьера Лассонда © Philippe Ruault
Национальный музей изящных искусств Квебека – павильон Пьера Лассонда © Philippe Ruault
Национальный музей изящных искусств Квебека – павильон Пьера Лассонда © Philippe Ruault
Национальный музей изящных искусств Квебека – павильон Пьера Лассонда © Philippe Ruault
Национальный музей изящных искусств Квебека – павильон Пьера Лассонда © Philippe Ruault
Национальный музей изящных искусств Квебека – павильон Пьера Лассонда © Philippe Ruault
Национальный музей изящных искусств Квебека – павильон Пьера Лассонда © Bruce Damonte
Национальный музей изящных искусств Квебека – павильон Пьера Лассонда © Bruce Damonte
Национальный музей изящных искусств Квебека – павильон Пьера Лассонда © Bruce Damonte
Национальный музей изящных искусств Квебека – павильон Пьера Лассонда © Bruce Damonte
Национальный музей изящных искусств Квебека – павильон Пьера Лассонда © Nic Lehoux
Национальный музей изящных искусств Квебека – павильон Пьера Лассонда © Nic Lehoux
Национальный музей изящных искусств Квебека – павильон Пьера Лассонда © Nic Lehoux
Национальный музей изящных искусств Квебека – павильон Пьера Лассонда © Nic Lehoux
Национальный музей изящных искусств Квебека – павильон Пьера Лассонда © Nic Lehoux
Национальный музей изящных искусств Квебека – павильон Пьера Лассонда © Nic Lehoux
Национальный музей изящных искусств Квебека – павильон Пьера Лассонда © Nic Lehoux
Национальный музей изящных искусств Квебека – павильон Пьера Лассонда © Nic Lehoux
Национальный музей изящных искусств Квебека – павильон Пьера Лассонда © Nic Lehoux
Национальный музей изящных искусств Квебека – павильон Пьера Лассонда © Nic Lehoux
Национальный музей изящных искусств Квебека – павильон Пьера Лассонда © Nic Lehoux
Национальный музей изящных искусств Квебека – павильон Пьера Лассонда © Nic Lehoux
Национальный музей изящных искусств Квебека – павильон Пьера Лассонда © Philippe Ruault
Национальный музей изящных искусств Квебека – павильон Пьера Лассонда © Philippe Ruault
Национальный музей изящных искусств Квебека – павильон Пьера Лассонда © Bruce Damonte
Национальный музей изящных искусств Квебека – павильон Пьера Лассонда © Bruce Damonte
Национальный музей изящных искусств Квебека – павильон Пьера Лассонда © Bruce Damonte
Национальный музей изящных искусств Квебека – павильон Пьера Лассонда © Bruce Damonte
Национальный музей изящных искусств Квебека – павильон Пьера Лассонда © Nic Lehoux
Национальный музей изящных искусств Квебека – павильон Пьера Лассонда © Nic Lehoux
Национальный музей изящных искусств Квебека – павильон Пьера Лассонда © Nic Lehoux
Национальный музей изящных искусств Квебека – павильон Пьера Лассонда © Nic Lehoux
Национальный музей изящных искусств Квебека – павильон Пьера Лассонда © Nic Lehoux
Национальный музей изящных искусств Квебека – павильон Пьера Лассонда © Nic Lehoux
Национальный музей изящных искусств Квебека – павильон Пьера Лассонда © Philippe Ruault
Национальный музей изящных искусств Квебека – павильон Пьера Лассонда © Philippe Ruault
Национальный музей изящных искусств Квебека – павильон Пьера Лассонда © Bruce Damonte
Национальный музей изящных искусств Квебека – павильон Пьера Лассонда © Bruce Damonte
Национальный музей изящных искусств Квебека – павильон Пьера Лассонда © Bruce Damonte
Национальный музей изящных искусств Квебека – павильон Пьера Лассонда © Bruce Damonte
Национальный музей изящных искусств Квебека – павильон Пьера Лассонда © Bruce Damonte
Национальный музей изящных искусств Квебека – павильон Пьера Лассонда © Bruce Damonte
Национальный музей изящных искусств Квебека – павильон Пьера Лассонда © Nic Lehoux
Национальный музей изящных искусств Квебека – павильон Пьера Лассонда © Nic Lehoux
Национальный музей изящных искусств Квебека – павильон Пьера Лассонда © Nic Lehoux
Национальный музей изящных искусств Квебека – павильон Пьера Лассонда © Nic Lehoux
Национальный музей изящных искусств Квебека – павильон Пьера Лассонда © Nic Lehoux
Национальный музей изящных искусств Квебека – павильон Пьера Лассонда © Nic Lehoux
Национальный музей изящных искусств Квебека – павильон Пьера Лассонда © Philippe Ruault
Национальный музей изящных искусств Квебека – павильон Пьера Лассонда © Philippe Ruault
Национальный музей изящных искусств Квебека – павильон Пьера Лассонда © Bruce Damonte
Национальный музей изящных искусств Квебека – павильон Пьера Лассонда © Bruce Damonte
Национальный музей изящных искусств Квебека – павильон Пьера Лассонда © Bruce Damonte
Национальный музей изящных искусств Квебека – павильон Пьера Лассонда © Bruce Damonte
Национальный музей изящных искусств Квебека – павильон Пьера Лассонда © Bruce Damonte
Национальный музей изящных искусств Квебека – павильон Пьера Лассонда © Bruce Damonte
Национальный музей изящных искусств Квебека – павильон Пьера Лассонда © Bruce Damonte
Национальный музей изящных искусств Квебека – павильон Пьера Лассонда © Bruce Damonte
Национальный музей изящных искусств Квебека – павильон Пьера Лассонда © Nic Lehoux
Национальный музей изящных искусств Квебека – павильон Пьера Лассонда © Nic Lehoux
Национальный музей изящных искусств Квебека – павильон Пьера Лассонда © Nic Lehoux
Национальный музей изящных искусств Квебека – павильон Пьера Лассонда © Nic Lehoux
Национальный музей изящных искусств Квебека – павильон Пьера Лассонда © Nic Lehoux
Национальный музей изящных искусств Квебека – павильон Пьера Лассонда © Nic Lehoux
Национальный музей изящных искусств Квебека – павильон Пьера Лассонда © Nic Lehoux
Национальный музей изящных искусств Квебека – павильон Пьера Лассонда © Nic Lehoux
Национальный музей изящных искусств Квебека – павильон Пьера Лассонда © Nic Lehoux
Национальный музей изящных искусств Квебека – павильон Пьера Лассонда © Nic Lehoux
Национальный музей изящных искусств Квебека – павильон Пьера Лассонда © Nic Lehoux
Национальный музей изящных искусств Квебека – павильон Пьера Лассонда © Nic Lehoux
Национальный музей изящных искусств Квебека – павильон Пьера Лассонда © Philippe Ruault
Национальный музей изящных искусств Квебека – павильон Пьера Лассонда © Philippe Ruault
Национальный музей изящных искусств Квебека – павильон Пьера Лассонда © Philippe Ruault
Национальный музей изящных искусств Квебека – павильон Пьера Лассонда © Philippe Ruault
Национальный музей изящных искусств Квебека – павильон Пьера Лассонда © Philippe Ruault
Национальный музей изящных искусств Квебека – павильон Пьера Лассонда © Philippe Ruault
Национальный музей изящных искусств Квебека – павильон Пьера Лассонда © Philippe Ruault
Национальный музей изящных искусств Квебека – павильон Пьера Лассонда © Philippe Ruault
Национальный музей изящных искусств Квебека – павильон Пьера Лассонда © Philippe Ruault
Национальный музей изящных искусств Квебека – павильон Пьера Лассонда © Philippe Ruault
Национальный музей изящных искусств Квебека – павильон Пьера Лассонда © Philippe Ruault
Национальный музей изящных искусств Квебека – павильон Пьера Лассонда © Philippe Ruault
Национальный музей изящных искусств Квебека – павильон Пьера Лассонда © Philippe Ruault
Национальный музей изящных искусств Квебека – павильон Пьера Лассонда © Philippe Ruault
Национальный музей изящных искусств Квебека – павильон Пьера Лассонда © Bruce Damonte
Национальный музей изящных искусств Квебека – павильон Пьера Лассонда © Bruce Damonte
Национальный музей изящных искусств Квебека – павильон Пьера Лассонда © Bruce Damonte
Национальный музей изящных искусств Квебека – павильон Пьера Лассонда © Bruce Damonte
Национальный музей изящных искусств Квебека – павильон Пьера Лассонда © Bruce Damonte
Национальный музей изящных искусств Квебека – павильон Пьера Лассонда © Bruce Damonte
Национальный музей изящных искусств Квебека – павильон Пьера Лассонда © Bruce Damonte
Национальный музей изящных искусств Квебека – павильон Пьера Лассонда © Bruce Damonte
Национальный музей изящных искусств Квебека – павильон Пьера Лассонда © Bruce Damonte
Национальный музей изящных искусств Квебека – павильон Пьера Лассонда © Bruce Damonte
Национальный музей изящных искусств Квебека – павильон Пьера Лассонда © Nic Lehoux
Национальный музей изящных искусств Квебека – павильон Пьера Лассонда © Nic Lehoux
Национальный музей изящных искусств Квебека – павильон Пьера Лассонда © Nic Lehoux
Национальный музей изящных искусств Квебека – павильон Пьера Лассонда © Nic Lehoux
Национальный музей изящных искусств Квебека – павильон Пьера Лассонда © Nic Lehoux
Национальный музей изящных искусств Квебека – павильон Пьера Лассонда © Nic Lehoux
Национальный музей изящных искусств Квебека – павильон Пьера Лассонда © Nic Lehoux
Национальный музей изящных искусств Квебека – павильон Пьера Лассонда © Nic Lehoux
Национальный музей изящных искусств Квебека – павильон Пьера Лассонда © Philippe Ruault
Национальный музей изящных искусств Квебека – павильон Пьера Лассонда © Philippe Ruault
Национальный музей изящных искусств Квебека – павильон Пьера Лассонда © Philippe Ruault
Национальный музей изящных искусств Квебека – павильон Пьера Лассонда © Philippe Ruault
Национальный музей изящных искусств Квебека – павильон Пьера Лассонда © Philippe Ruault
Национальный музей изящных искусств Квебека – павильон Пьера Лассонда © Philippe Ruault
Национальный музей изящных искусств Квебека – павильон Пьера Лассонда © Philippe Ruault
Национальный музей изящных искусств Квебека – павильон Пьера Лассонда © Philippe Ruault
Национальный музей изящных искусств Квебека – павильон Пьера Лассонда © Bruce Damonte
Национальный музей изящных искусств Квебека – павильон Пьера Лассонда © Bruce Damonte
Национальный музей изящных искусств Квебека – павильон Пьера Лассонда © Nic Lehoux
Национальный музей изящных искусств Квебека – павильон Пьера Лассонда © Nic Lehoux
Национальный музей изящных искусств Квебека – павильон Пьера Лассонда © Nic Lehoux
Национальный музей изящных искусств Квебека – павильон Пьера Лассонда © Nic Lehoux
Национальный музей изящных искусств Квебека – павильон Пьера Лассонда © Philippe Ruault
Национальный музей изящных искусств Квебека – павильон Пьера Лассонда © Philippe Ruault
Национальный музей изящных искусств Квебека – павильон Пьера Лассонда © Bruce Damonte
Национальный музей изящных искусств Квебека – павильон Пьера Лассонда © Bruce Damonte
Национальный музей изящных искусств Квебека – павильон Пьера Лассонда © Bruce Damonte
Национальный музей изящных искусств Квебека – павильон Пьера Лассонда © Bruce Damonte
Национальный музей изящных искусств Квебека – павильон Пьера Лассонда © Bruce Damonte
Национальный музей изящных искусств Квебека – павильон Пьера Лассонда © Bruce Damonte
Национальный музей изящных искусств Квебека – павильон Пьера Лассонда © Bruce Damonte
Национальный музей изящных искусств Квебека – павильон Пьера Лассонда © Bruce Damonte
Национальный музей изящных искусств Квебека – павильон Пьера Лассонда © Bruce Damonte
Национальный музей изящных искусств Квебека – павильон Пьера Лассонда © Bruce Damonte
Национальный музей изящных искусств Квебека – павильон Пьера Лассонда © Nic Lehoux
Национальный музей изящных искусств Квебека – павильон Пьера Лассонда © Nic Lehoux
Национальный музей изящных искусств Квебека – павильон Пьера Лассонда © Nic Lehoux
Национальный музей изящных искусств Квебека – павильон Пьера Лассонда © Nic Lehoux
Национальный музей изящных искусств Квебека – павильон Пьера Лассонда © Nic Lehoux
Национальный музей изящных искусств Квебека – павильон Пьера Лассонда © Nic Lehoux
Национальный музей изящных искусств Квебека – павильон Пьера Лассонда © Nic Lehoux
Национальный музей изящных искусств Квебека – павильон Пьера Лассонда © Nic Lehoux
Национальный музей изящных искусств Квебека – павильон Пьера Лассонда © Nic Lehoux
Национальный музей изящных искусств Квебека – павильон Пьера Лассонда © Nic Lehoux
Национальный музей изящных искусств Квебека – павильон Пьера Лассонда © Nic Lehoux
Национальный музей изящных искусств Квебека – павильон Пьера Лассонда © Nic Lehoux
Национальный музей изящных искусств Квебека – павильон Пьера Лассонда © Bruce Damonte
Национальный музей изящных искусств Квебека – павильон Пьера Лассонда © Bruce Damonte
Национальный музей изящных искусств Квебека – павильон Пьера Лассонда © OMA
Национальный музей изящных искусств Квебека – павильон Пьера Лассонда © OMA
Национальный музей изящных искусств Квебека – павильон Пьера Лассонда © OMA
Национальный музей изящных искусств Квебека – павильон Пьера Лассонда © OMA
Национальный музей изящных искусств Квебека – павильон Пьера Лассонда © OMA
Национальный музей изящных искусств Квебека – павильон Пьера Лассонда © OMA
Национальный музей изящных искусств Квебека – павильон Пьера Лассонда © OMA
Национальный музей изящных искусств Квебека – павильон Пьера Лассонда © OMA
Национальный музей изящных искусств Квебека – павильон Пьера Лассонда © OMA
Национальный музей изящных искусств Квебека – павильон Пьера Лассонда © OMA
Национальный музей изящных искусств Квебека – павильон Пьера Лассонда © OMA
Национальный музей изящных искусств Квебека – павильон Пьера Лассонда © OMA
Национальный музей изящных искусств Квебека – павильон Пьера Лассонда © OMA
Национальный музей изящных искусств Квебека – павильон Пьера Лассонда © OMA
Национальный музей изящных искусств Квебека – павильон Пьера Лассонда © OMA
Национальный музей изящных искусств Квебека – павильон Пьера Лассонда © OMA
Национальный музей изящных искусств Квебека – павильон Пьера Лассонда © OMA
Национальный музей изящных искусств Квебека – павильон Пьера Лассонда © OMA
Национальный музей изящных искусств Квебека – павильон Пьера Лассонда © OMA
Национальный музей изящных искусств Квебека – павильон Пьера Лассонда © OMA
Национальный музей изящных искусств Квебека – павильон Пьера Лассонда © OMA
Национальный музей изящных искусств Квебека – павильон Пьера Лассонда © OMA
Национальный музей изящных искусств Квебека – павильон Пьера Лассонда © OMA
Национальный музей изящных искусств Квебека – павильон Пьера Лассонда © OMA
Национальный музей изящных искусств Квебека – павильон Пьера Лассонда © OMA
Национальный музей изящных искусств Квебека – павильон Пьера Лассонда © OMA
Национальный музей изящных искусств Квебека – павильон Пьера Лассонда © OMA
Национальный музей изящных искусств Квебека – павильон Пьера Лассонда © OMA
Национальный музей изящных искусств Квебека – павильон Пьера Лассонда © OMA
Национальный музей изящных искусств Квебека – павильон Пьера Лассонда © OMA
Национальный музей изящных искусств Квебека – павильон Пьера Лассонда © OMA
Национальный музей изящных искусств Квебека – павильон Пьера Лассонда © OMA
Национальный музей изящных искусств Квебека – павильон Пьера Лассонда © OMA
Национальный музей изящных искусств Квебека – павильон Пьера Лассонда © OMA
Национальный музей изящных искусств Квебека – павильон Пьера Лассонда © OMA
Национальный музей изящных искусств Квебека – павильон Пьера Лассонда © OMA
Национальный музей изящных искусств Квебека – павильон Пьера Лассонда © OMA
Национальный музей изящных искусств Квебека – павильон Пьера Лассонда © OMA
Национальный музей изящных искусств Квебека – павильон Пьера Лассонда © OMA
Национальный музей изящных искусств Квебека – павильон Пьера Лассонда © OMA
Национальный музей изящных искусств Квебека – павильон Пьера Лассонда © OMA
Национальный музей изящных искусств Квебека – павильон Пьера Лассонда © OMA
Национальный музей изящных искусств Квебека – павильон Пьера Лассонда © OMA
Национальный музей изящных искусств Квебека – павильон Пьера Лассонда © OMA