Размещено на портале Архи.ру (www.archi.ru)

27.07.2016

Кокетливая юбчонка

Анна Старостина
Объект:
Офисная башня Hongkou Soho
Адрес:
Китай, None, Шанхай.

В центре Шанхая завершено строительство офисного здания по проекту Кенго Кумы.

Офисная башня Hongkou Soho © Jerry Yin
Офисная башня Hongkou Soho © Jerry Yin

Башня Hongkou Soho расположена в районе Хункоу на противоположном от делового центра берегу реки Хуанпу. Заказчиком проекта, общая площадь которого составляет 95 000 кв.м, выступил крупный офисный девелопер Китая компания SOHO China Co. Ltd – именно она занимается пекинскими проектами Galaxy Soho и Wangdjing Soho бюро Zaha Hadid Architects, и комплексом Soho Fuxing Lu бюро gmp (последний расположен совсем неподалеку).
Офисная башня Hongkou Soho © Jerry Yin
Офисная башня Hongkou Soho © Jerry Yin

Окружающая постройку застройка довольно пестрая: низкоэтажные, не в лучшем состоянии здания с самыми разными мелкими магазинчиками здесь успешно соседствуют с современными высотками из стекла и металла. Вписать 29-этажную, 133-метровую башню в это противоречивое разнообразие помогает длинный низкий подиум, отведенный под магазины. Саму же, вроде бы жесткую и скучную, почти квадратную в плане башню архитекторы Kengo Kuma & Associates одели в своеобразную плиссированную юбку: длинные, «ломающиеся» в некоторых местах полосы алюминиевой сетки (толщина прутьев составляет 18 мм) по их замыслу должны напоминать её заглаженные складки. Благодаря им, в зависимости от угла падения и интенсивности солнечных лучей вся поверхность то горит, то загадочно мерцает, то вибрирует и восприятие всего здания постоянно меняется.
Офисная башня Hongkou Soho © Jerry Yin
Офисная башня Hongkou Soho © Jerry Yin

Более того, в районе первых этажей, подол юбки кокетливо приподнимается, демонстрируя светлый, остекленный атриум и обеспечивая дополнительную связь внутреннего пространства с городом. В отделке этой общественной зоны также использованы алюминиевые ламели, но в сочетании с панелями натурального камня.
Офисная башня Hongkou Soho © Jerry Yin
Офисная башня Hongkou Soho © Jerry Yin
Офисная башня Hongkou Soho © Jerry Yin
Офисная башня Hongkou Soho © Jerry Yin
Офисная башня Hongkou Soho © Jerry Yin
Офисная башня Hongkou Soho © Jerry Yin
Офисная башня Hongkou Soho © Jerry Yin
Офисная башня Hongkou Soho © Jerry Yin
Офисная башня Hongkou Soho © Jerry Yin
Офисная башня Hongkou Soho © Jerry Yin
Офисная башня Hongkou Soho © Jerry Yin
Офисная башня Hongkou Soho © Jerry Yin
Офисная башня Hongkou Soho © Jerry Yin
Офисная башня Hongkou Soho © Jerry Yin
Офисная башня Hongkou Soho © Jerry Yin
Офисная башня Hongkou Soho © Jerry Yin
Офисная башня Hongkou Soho © Jerry Yin
Офисная башня Hongkou Soho © Jerry Yin
Офисная башня Hongkou Soho © Jerry Yin
Офисная башня Hongkou Soho © Jerry Yin
Офисная башня Hongkou Soho © Jerry Yin
Офисная башня Hongkou Soho © Jerry Yin
Офисная башня Hongkou Soho © Jerry Yin
Офисная башня Hongkou Soho © Jerry Yin
Офисная башня Hongkou Soho © Jerry Yin
Офисная башня Hongkou Soho © Jerry Yin
Офисная башня Hongkou Soho © Jerry Yin
Офисная башня Hongkou Soho © Jerry Yin
Офисная башня Hongkou Soho © Jerry Yin
Офисная башня Hongkou Soho © Jerry Yin
Офисная башня Hongkou Soho © Jerry Yin
Офисная башня Hongkou Soho © Jerry Yin
Офисная башня Hongkou Soho © Jerry Yin
Офисная башня Hongkou Soho © Jerry Yin
Офисная башня Hongkou Soho © Jerry Yin
Офисная башня Hongkou Soho © Jerry Yin
Офисная башня Hongkou Soho © Jerry Yin
Офисная башня Hongkou Soho © Jerry Yin
Офисная башня Hongkou Soho © Jerry Yin
Офисная башня Hongkou Soho © Jerry Yin
Офисная башня Hongkou Soho © Jerry Yin
Офисная башня Hongkou Soho © Jerry Yin
Офисная башня Hongkou Soho © Jerry Yin
Офисная башня Hongkou Soho © Jerry Yin
Офисная башня Hongkou Soho © Jerry Yin
Офисная башня Hongkou Soho © Jerry Yin
Офисная башня Hongkou Soho © Jerry Yin
Офисная башня Hongkou Soho © Jerry Yin
Офисная башня Hongkou Soho © Jerry Yin
Офисная башня Hongkou Soho © Jerry Yin
Офисная башня Hongkou Soho © Jerry Yin
Офисная башня Hongkou Soho © Jerry Yin
Офисная башня Hongkou Soho © Jerry Yin
Офисная башня Hongkou Soho © Jerry Yin
Офисная башня Hongkou Soho © Jerry Yin
Офисная башня Hongkou Soho © Jerry Yin
Офисная башня Hongkou Soho © Jerry Yin
Офисная башня Hongkou Soho © Jerry Yin
Офисная башня Hongkou Soho © Jerry Yin
Офисная башня Hongkou Soho © Jerry Yin
Офисная башня Hongkou Soho © Jerry Yin
Офисная башня Hongkou Soho © Jerry Yin
Офисная башня Hongkou Soho © Jerry Yin
Офисная башня Hongkou Soho © Jerry Yin
Офисная башня Hongkou Soho © Jerry Yin
Офисная башня Hongkou Soho © Jerry Yin
Офисная башня Hongkou Soho © Jerry Yin
Офисная башня Hongkou Soho © Jerry Yin
Офисная башня Hongkou Soho © Jerry Yin
Офисная башня Hongkou Soho © Jerry Yin
Офисная башня Hongkou Soho © Jerry Yin
Офисная башня Hongkou Soho © Jerry Yin
Офисная башня Hongkou Soho © Jerry Yin
Офисная башня Hongkou Soho © Jerry Yin
Офисная башня Hongkou Soho © Jerry Yin
Офисная башня Hongkou Soho © Jerry Yin
Офисная башня Hongkou Soho © Jerry Yin
Офисная башня Hongkou Soho © Jerry Yin
Офисная башня Hongkou Soho © Jerry Yin
Офисная башня Hongkou Soho © Jerry Yin
Офисная башня Hongkou Soho © Jerry Yin
Офисная башня Hongkou Soho © Jerry Yin
Офисная башня Hongkou Soho © Jerry Yin
Офисная башня Hongkou Soho © Jerry Yin
Офисная башня Hongkou Soho © Jerry Yin
Офисная башня Hongkou Soho © Jerry Yin
Офисная башня Hongkou Soho © Jerry Yin
Офисная башня Hongkou Soho © Jerry Yin
Офисная башня Hongkou Soho © Jerry Yin
Офисная башня Hongkou Soho © Jerry Yin
Офисная башня Hongkou Soho © Jerry Yin
Офисная башня Hongkou Soho © Jerry Yin
Офисная башня Hongkou Soho © Jerry Yin
Офисная башня Hongkou Soho © Jerry Yin
Офисная башня Hongkou Soho © Jerry Yin
Офисная башня Hongkou Soho © Jerry Yin
Офисная башня Hongkou Soho © Jerry Yin
Офисная башня Hongkou Soho © Jerry Yin
Офисная башня Hongkou Soho © Jerry Yin
Офисная башня Hongkou Soho © Jerry Yin
Офисная башня Hongkou Soho © Jerry Yin
Офисная башня Hongkou Soho © Jerry Yin
Офисная башня Hongkou Soho © Jerry Yin
Офисная башня Hongkou Soho © Jerry Yin
Офисная башня Hongkou Soho © Jerry Yin
Офисная башня Hongkou Soho © Jerry Yin
Офисная башня Hongkou Soho © Jerry Yin
Офисная башня Hongkou Soho © Jerry Yin
Офисная башня Hongkou Soho © Jerry Yin
Офисная башня Hongkou Soho © Jerry Yin
Офисная башня Hongkou Soho © Jerry Yin
Офисная башня Hongkou Soho © Jerry Yin
Офисная башня Hongkou Soho © Jerry Yin
Офисная башня Hongkou Soho © Jerry Yin
Офисная башня Hongkou Soho © Jerry Yin
Офисная башня Hongkou Soho © Jerry Yin
Офисная башня Hongkou Soho © Jerry Yin
Офисная башня Hongkou Soho © Jerry Yin
Офисная башня Hongkou Soho © Jerry Yin
Офисная башня Hongkou Soho © Jerry Yin
Офисная башня Hongkou Soho © Jerry Yin
Офисная башня Hongkou Soho © Jerry Yin
Офисная башня Hongkou Soho © Jerry Yin
Офисная башня Hongkou Soho © Jerry Yin
Офисная башня Hongkou Soho © Kenta Hasegawа
Офисная башня Hongkou Soho © Kenta Hasegawа
Офисная башня Hongkou Soho © Kenta Hasegawа
Офисная башня Hongkou Soho © Kenta Hasegawа
Офисная башня Hongkou Soho © Kenta Hasegawа
Офисная башня Hongkou Soho © Kenta Hasegawа
Офисная башня Hongkou Soho © Kenta Hasegawа
Офисная башня Hongkou Soho © Kenta Hasegawа
Офисная башня Hongkou Soho © Kenta Hasegawа
Офисная башня Hongkou Soho © Kenta Hasegawа
Офисная башня Hongkou Soho © Kenta Hasegawа
Офисная башня Hongkou Soho © Kenta Hasegawа
Офисная башня Hongkou Soho © Kenta Hasegawа
Офисная башня Hongkou Soho © Kenta Hasegawа
Офисная башня Hongkou Soho © Kenta Hasegawа
Офисная башня Hongkou Soho © Kenta Hasegawа
Офисная башня Hongkou Soho © Kenta Hasegawа
Офисная башня Hongkou Soho © Kenta Hasegawа
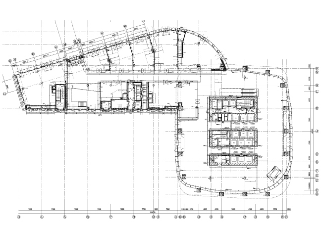
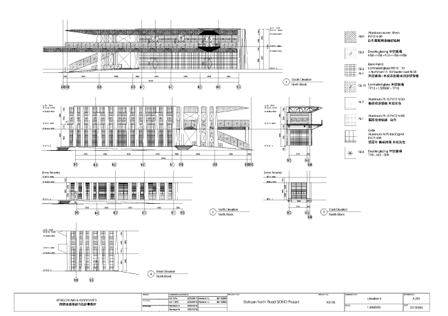
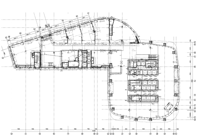
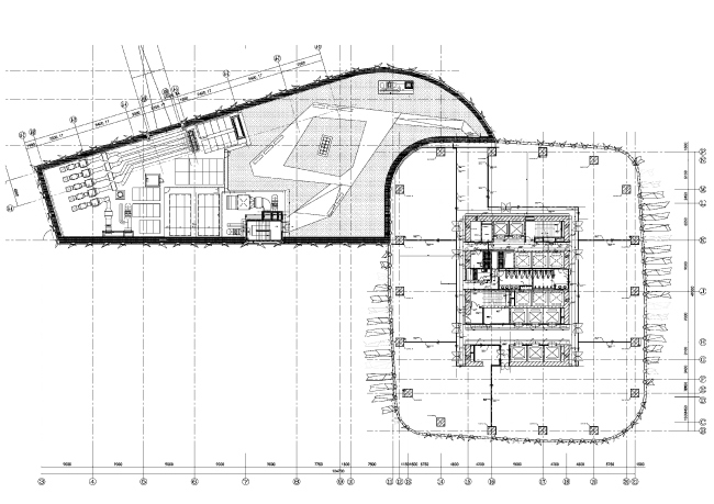
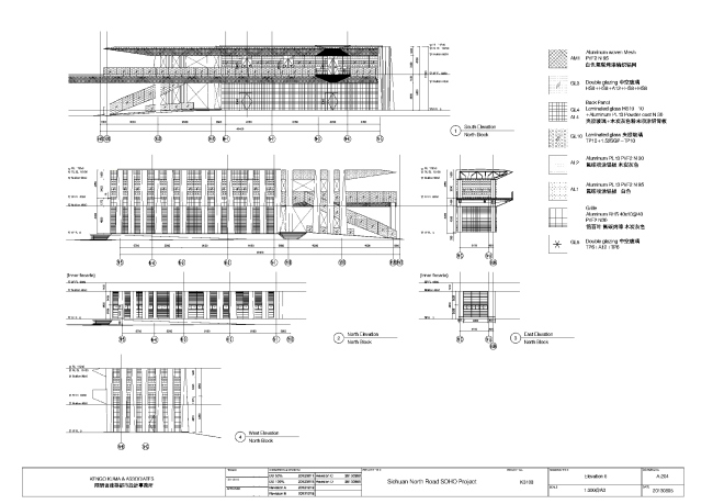
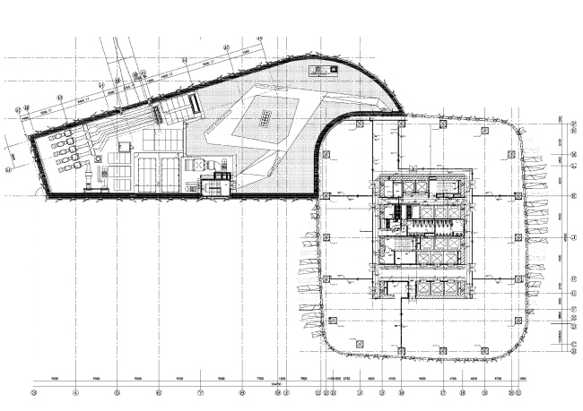
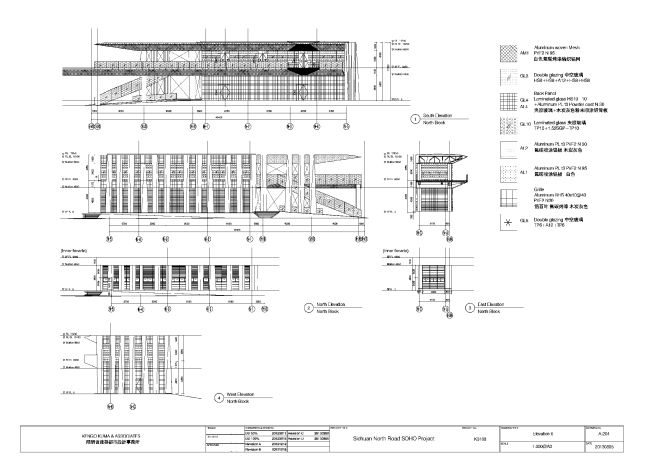
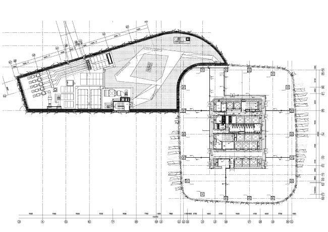
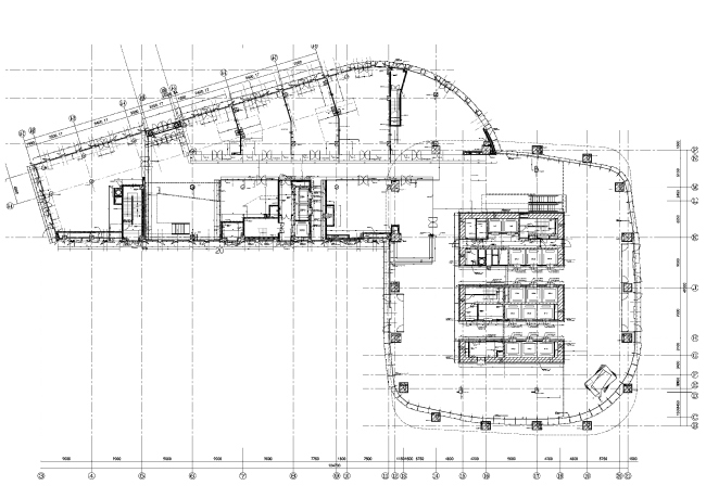
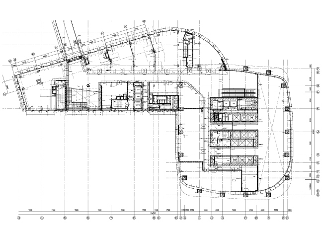
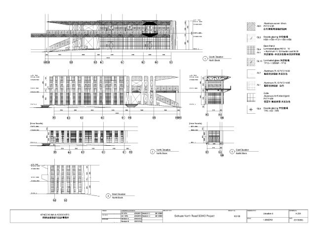
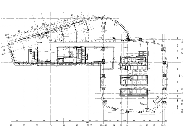
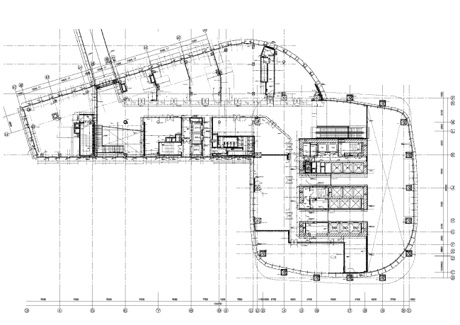
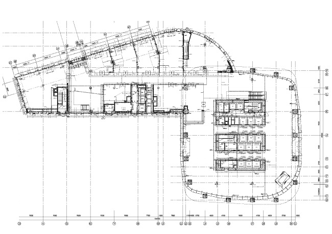
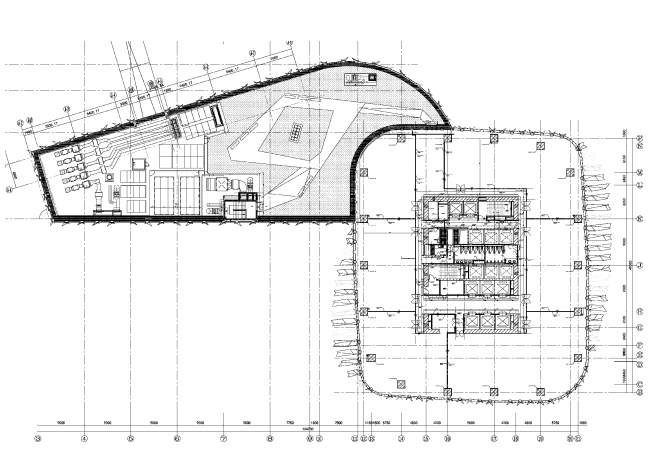
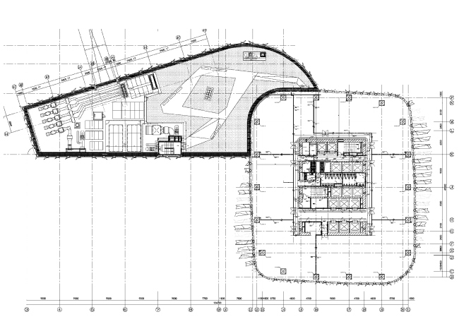
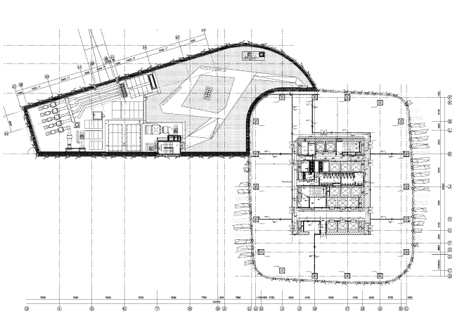
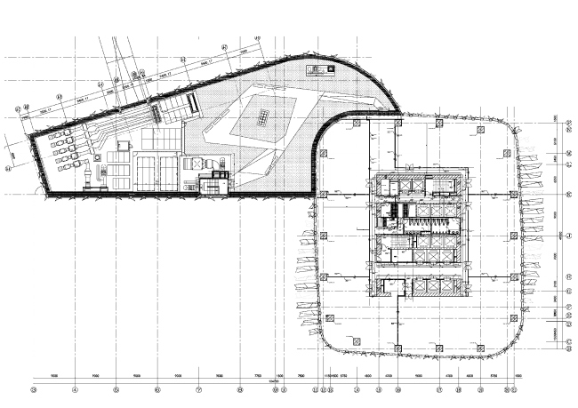
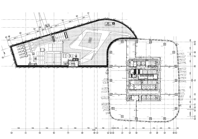
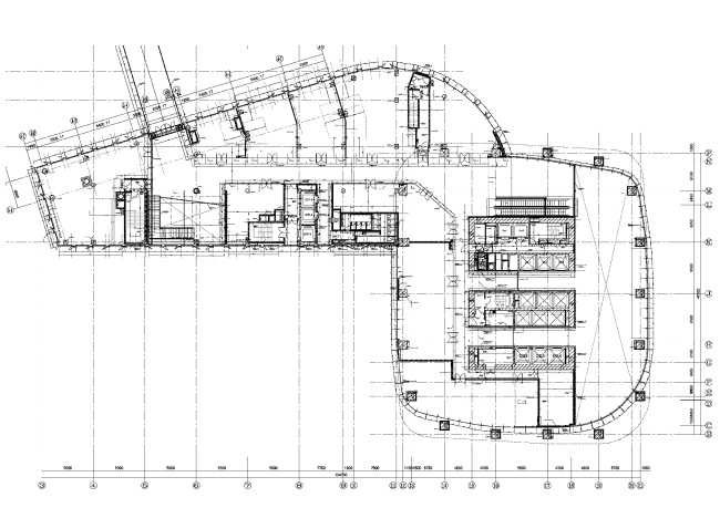
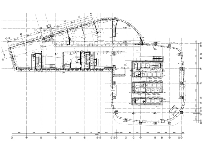
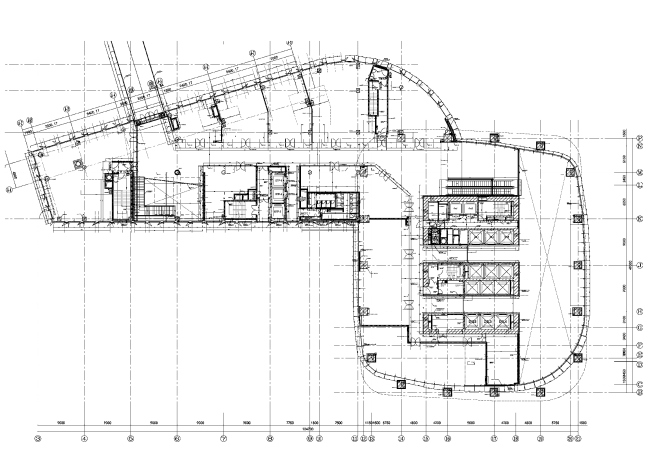
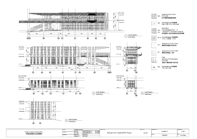
Офисная башня Hongkou Soho © Kengo Kuma & Associates
Офисная башня Hongkou Soho © Kengo Kuma & Associates
Офисная башня Hongkou Soho © Kengo Kuma & Associates
Офисная башня Hongkou Soho © Kengo Kuma & Associates
Офисная башня Hongkou Soho © Kengo Kuma & Associates
Офисная башня Hongkou Soho © Kengo Kuma & Associates
Офисная башня Hongkou Soho © Kengo Kuma & Associates
Офисная башня Hongkou Soho © Kengo Kuma & Associates
Офисная башня Hongkou Soho © Kengo Kuma & Associates
Офисная башня Hongkou Soho © Kengo Kuma & Associates
Офисная башня Hongkou Soho © Kengo Kuma & Associates
Офисная башня Hongkou Soho © Kengo Kuma & Associates
Офисная башня Hongkou Soho © Kengo Kuma & Associates
Офисная башня Hongkou Soho © Kengo Kuma & Associates
Офисная башня Hongkou Soho © Kengo Kuma & Associates
Офисная башня Hongkou Soho © Kengo Kuma & Associates
Офисная башня Hongkou Soho © Kengo Kuma & Associates
Офисная башня Hongkou Soho © Kengo Kuma & Associates
Офисная башня Hongkou Soho © Kengo Kuma & Associates
Офисная башня Hongkou Soho © Kengo Kuma & Associates
Офисная башня Hongkou Soho © Kengo Kuma & Associates
Офисная башня Hongkou Soho © Kengo Kuma & Associates
Офисная башня Hongkou Soho © Kengo Kuma & Associates
Офисная башня Hongkou Soho © Kengo Kuma & Associates
Офисная башня Hongkou Soho © Kengo Kuma & Associates
Офисная башня Hongkou Soho © Kengo Kuma & Associates