Размещено на портале Архи.ру (www.archi.ru)

25.07.2016

Склеен из осколков

Объект:
Социальный жилой комплекс в Эммене
Адрес:
Нидерланды, None, Эммен.
Мастерская:
DROM

Социальный жилой комплекс в нидерландском городе Эммен, построенный по проекту победителей конкурса Europan 10 – Тимура Шабаева и Марко Галассо.

Социальный жилой комплекс в Эммене © Timur Shabaev, Marco Galasso
Социальный жилой комплекс в Эммене © Timur Shabaev, Marco Galasso



В 2009–2010 российский архитектор Тимур Шабаев и итальянец Марко Галассо выиграли общеевропейский конкурс Europan, точнее – его 10-е издание. Europan рассчитан на начинающих архитекторов – моложе 40 лет – и отличается от большинства других тем, что победившие в нем проекты рассчитаны на реализацию на конкретном участке (эти участки, каждый – со своей командой из девелопера и городских властей, отбираются организаторами Europan на специальном предварительном туре), что в идеале и происходит. Соответственно, конкурс состоит из многих под-конкурсов, проводящихся для каждого конкретного участка. Проект Шабаева и Галассо был признан лучшим для участка в Эммене, городе на севере Нидерландов.

Работа над проектом (он перерабатывался согласно изменившимся планам заказчика, жилищной корпорации Lefier) и реализация заняли немало времени: Тимур Шабаев успел получить степень магистра в Институте Берлаге, поработать в OMA/AMO, в том числе – над новым зданием московского музея Garage, рядом проектов для Государственного Эрмитажа в Петербурге, над учебной программой института «Стрелка», а в этом году – открыть c коллегами в Роттердаме архитектурное бюро DROM, которое занимается проектами и в России – Москве, Новосибирске, Сургуте.

В начале июля 2016 года социальный жилой комплекс в Эммене, наконец, открылся, и сейчас туда уже заселяются жильцы. Тимур пока остается единственным россиянином, ставшим победителем Europan’а – однако можно надеется, что пример его успеха побудит отечественных архитекторов активней участвовать в этом интересном и полезном конкурсе.

Мы попросили Тимура Шабаева рассказать о проекте для Эммена и его воплощении в жизнь.

«Ключевой идеей, давшей имя нашему предложению – Sutures – и позволившей выиграть конкурс, стали “швы”: так мы назвали открытые коллективные пространства, которые мы предложили сформировать в центре квартала благодаря обмену землей между муниципалитетом и девелопером – жилищной корпорацией Lefier. Нашей метафорой стало японское искусство кинцуги: разбитые керамические сосуды склеиваются золотым клеем, и в результате восстановленная посуда получает гораздо большую ценность, нежели ту, что имела изначально.
Социальный жилой комплекс в Эммене. Конкурсный проект © Timur Shabaev, Marco Galasso
Социальный жилой комплекс в Эммене. Конкурсный проект © Timur Shabaev, Marco Galasso

Дело в том, что кадастровая карта на участке представляла собой те самые “осколки” – участки имели неправильную остроугольную форму, и построить на них что-либо вразумительное было бы невозможно, не покупая дополнительную землю. Наше же предложение позволяло быстро и без добавочных финансовых затрат со стороны жилищной корпорации сформировать прямоугольные куски земли, а также позволить городу инвестировать в благоустройство общественного двора в центре квартала.
Социальный жилой комплекс в Эммене © Timur Shabaev, Marco Galasso
Социальный жилой комплекс в Эммене © Timur Shabaev, Marco Galasso



Подобный общественный двор – вещь для Нидерландов совсем нехарактерная. Обычный квартал в этой стране изнутри поделен на небольшие частные садики, а общественная жизнь происходит на улице. Предложенное нами решение скорее походит на бегинаж – средневековый комплекс полумонашеской общины бегинок, где вокруг двора группировались келейные корпуса, часовня и пр. Разница лишь в том, что входов в этот двор с улицы у нас несколько, и они полностью открыты.

Конкурсное задание не включало в себя указание на тип и объемы жилья, и после получения технического задания заказчика, уже при разработке первых вариантов домов мы стали тестировать разные типологии и внешний облик, сохраняя неизменной ключевую идею “швов”.

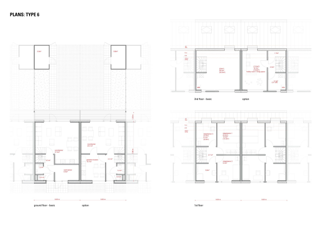
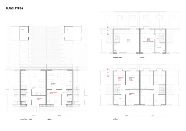
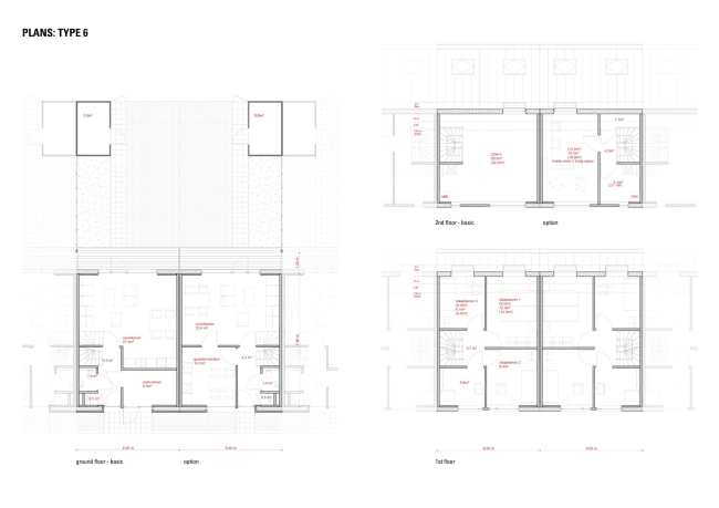
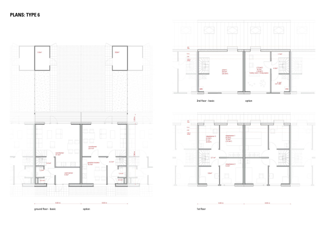
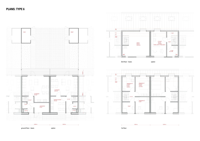
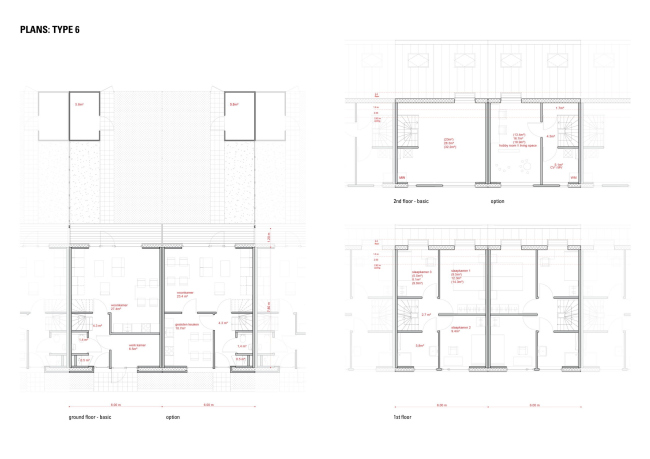
После экономических расчетов заказчиком было принято решение использовать традиционную для Нидерландов типологию блокированного односемейного дома. Нам были заданы жесткие параметры по набору и площади помещений, а также бюджету строительства, что определило конечное объемное решение домов со скатной кровлей
Социальный жилой комплекс в Эммене © Timur Shabaev, Marco Galasso
Социальный жилой комплекс в Эммене © Timur Shabaev, Marco Galasso

Наша последующая работа была направлена на то, чтобы в рамках традиционной типологии и маленького бюджета создать «добавочное» качество жизни в нашем социальном комплексе. Мы применили 2 типоразмера домов: шириной 5,4 м и 6 м, что позволило более эффективно скомпоновать их на участке. Для снижения стоимости были унифицированы размеры окон, а для того, чтобы скомпенсировать монотонность длинного корпуса дома и придать “характер” улице, мы применили заступы фасада, которые зрительно разбивают корпуса на сегменты разной ширины
Социальный жилой комплекс в Эммене © Timur Shabaev, Marco Galasso
Социальный жилой комплекс в Эммене © Timur Shabaev, Marco Galasso

Первый этаж отделан керамическим кирпичом черного цвета, верх и кровля выполнены в едином материале – это оцинкованный листовой металл. Во дворе вынос кровли формирует своего рода лоджию – защищенную от дождя и солнца полосу придомового сада. Ее стены отделаны сибирской лиственницей. В сторону улицы фасад имеет три этажа, что задает более “городской” масштаб. Со двора масштаб снижается.
Социальный жилой комплекс в Эммене © Timur Shabaev, Marco Galasso
Социальный жилой комплекс в Эммене © Timur Shabaev, Marco Galasso

Придомовой сад работает как буфер, создавая переход уровня приватности от гостиной, “смотрящей” на него через большое окно, к общественному пространству внутреннего двора. Ландшафт двора создается с активным участим самих жителей. Воплощаемый проект был выбран с помощью голосования, и впоследствии поддержание сада станет совместной заботой новых соседей. Благоустройство будет закончено к концу года.

Консультации с жильцами и построение их сообщества проводил девелопер – жилищная корпорация. Отбор жильцов проходил на основе мотивационного письма: было важно, что будущие жители были готовы вкладывать свое время и средства в поддержание двора. Также было важным, чтобы они были из разных возрастных и социальных групп. Жильцам предоставлялся выбор между несколькими вариантами планировок и двумя типами окна гостиной, выходящего во двор. Затем они выбирали между тремя вариантами ландшафта для внутреннего двора.

Жильцами была организована рабочая группа во главе с одним активным пенсионером, которая занимается коммуникацией с жилищной корпорацией и решением оперативных вопросов. В частности, они ездили в Амстердам и Роттердам перенимать опыт коллективного поддержания внутриквартальных садов. Мы принимали участие в одной из неформальных встреч с жильцами – отвечали на их вопросы об архитектурных решениях.»
Социальный жилой комплекс в Эммене © Timur Shabaev, Marco Galasso
Социальный жилой комплекс в Эммене © Timur Shabaev, Marco Galasso
Социальный жилой комплекс в Эммене © Timur Shabaev, Marco Galasso
Социальный жилой комплекс в Эммене © Timur Shabaev, Marco Galasso
Социальный жилой комплекс в Эммене © Timur Shabaev, Marco Galasso
Социальный жилой комплекс в Эммене © Timur Shabaev, Marco Galasso
Социальный жилой комплекс в Эммене © Timur Shabaev, Marco Galasso
Социальный жилой комплекс в Эммене © Timur Shabaev, Marco Galasso
Социальный жилой комплекс в Эммене © Timur Shabaev, Marco Galasso
Социальный жилой комплекс в Эммене © Timur Shabaev, Marco Galasso
Социальный жилой комплекс в Эммене © Timur Shabaev, Marco Galasso
Социальный жилой комплекс в Эммене © Timur Shabaev, Marco Galasso
Социальный жилой комплекс в Эммене © Timur Shabaev, Marco Galasso
Социальный жилой комплекс в Эммене © Timur Shabaev, Marco Galasso
Социальный жилой комплекс в Эммене © Timur Shabaev, Marco Galasso
Социальный жилой комплекс в Эммене © Timur Shabaev, Marco Galasso
Социальный жилой комплекс в Эммене © Timur Shabaev, Marco Galasso
Социальный жилой комплекс в Эммене © Timur Shabaev, Marco Galasso
Социальный жилой комплекс в Эммене © Timur Shabaev, Marco Galasso
Социальный жилой комплекс в Эммене © Timur Shabaev, Marco Galasso
Социальный жилой комплекс в Эммене © Timur Shabaev, Marco Galasso
Социальный жилой комплекс в Эммене © Timur Shabaev, Marco Galasso
Социальный жилой комплекс в Эммене © Timur Shabaev, Marco Galasso
Социальный жилой комплекс в Эммене © Timur Shabaev, Marco Galasso
Социальный жилой комплекс в Эммене © Timur Shabaev, Marco Galasso
Социальный жилой комплекс в Эммене © Timur Shabaev, Marco Galasso
Социальный жилой комплекс в Эммене. Конкурсный проект © Timur Shabaev, Marco Galasso
Социальный жилой комплекс в Эммене. Конкурсный проект © Timur Shabaev, Marco Galasso
Социальный жилой комплекс в Эммене. Конкурсный проект © Timur Shabaev, Marco Galasso
Социальный жилой комплекс в Эммене. Конкурсный проект © Timur Shabaev, Marco Galasso