Размещено на портале Архи.ру (www.archi.ru)

14.07.2016

Вилла над озером

Нина Фролова
Объект:
Дом Дугласов
Адрес:
США, None, Харбор-Спрингс.

Дом Дугласов на озере Мичиган, знаменитая постройка Ричарда Майера, признан национальным памятником архитектуры США.

Дом Дугласов © James Haefner. Предоставлено Michigan State Historic Preservation Office
Дом Дугласов © James Haefner. Предоставлено Michigan State Historic Preservation Office

Дом Дугласов, построенный по проекту Ричарда Майера в 1973, внесен в Национальный реестр исторических мест США, где собраны не только собственно «исторические места», но и памятники архитектуры и градостроительства. Однако в реестр включены – по разным причинам – далеко не все сооружения первой половины XX века, не говоря уже о постройках послевоенного времени (поэтому под угрозой сноса оказываются – и порой погибают – даже здания Ф.Л. Райта и Эро Сааринена). Поэтому присуждение самого высокого из возможных охранного статуса частному дому начала 1970-х отражает значение виллы Дугласов для истории архитектуры – американской и мировой.
 
Дом Дугласов © James Haefner. Предоставлено Michigan State Historic Preservation Office
Дом Дугласов © James Haefner. Предоставлено Michigan State Historic Preservation Office

Первоначально чета Дугласов обратилась к Ричарду Майеру с просьбой продать им чертежи дома Смита, чтобы они могли построить себе нечто подобное, на что архитектор предложил спроектировать виллу специально для них. Девелопер, у которого Дугласы купили землю под строительство, не утвердил кандидатуру архитектора: в портфолио у Майера были исключительно модернистские дома с плоскими крышами, а будущий поселок должен был состоять из традиционных построек с двускатными кровлями. Поэтому заказчики быстро продали участок и купили другой, на крутом, поросшем лесом берегу озера Мичиган, близ городка Харбор-Спрингс. Там и был построен дом по проекту Майера.
 
Дом Дугласов © Scott Frances/OTTO
Дом Дугласов © Scott Frances/OTTO

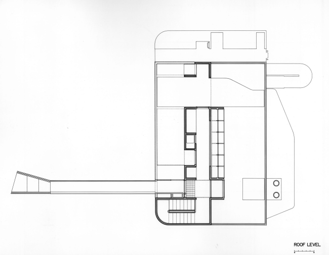
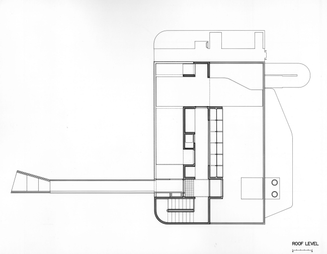
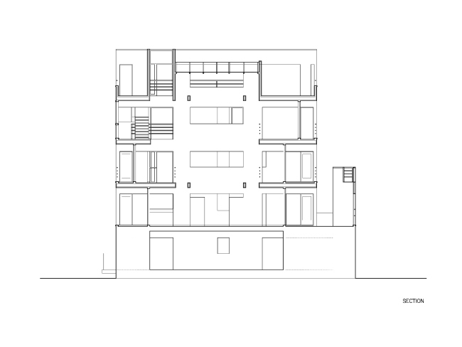
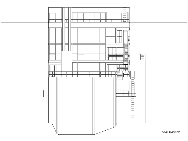
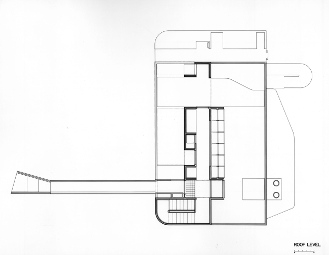
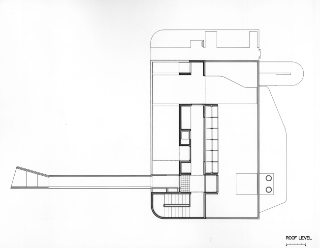
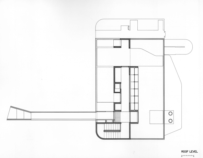
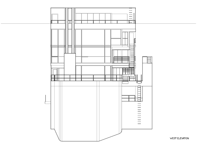
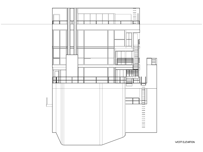
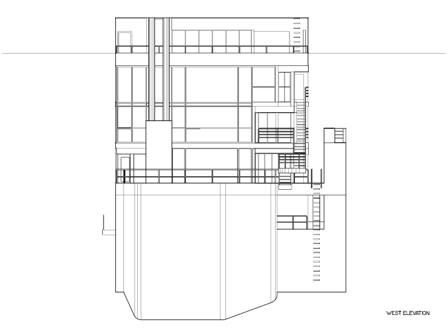
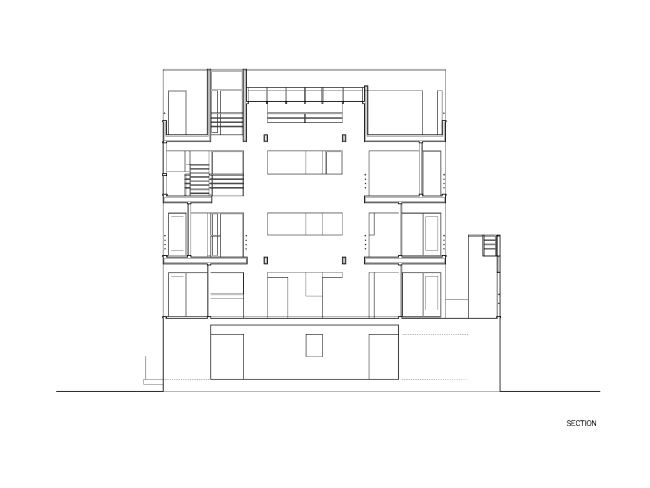
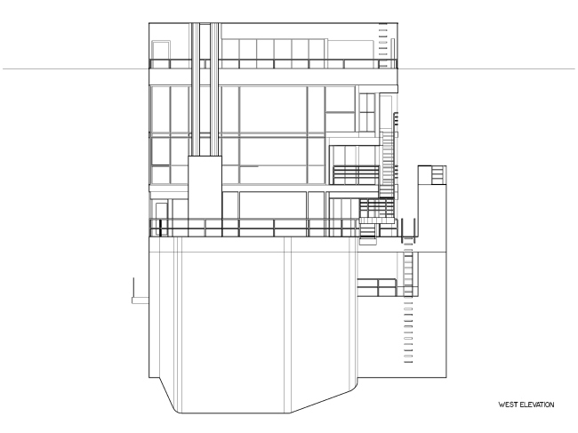
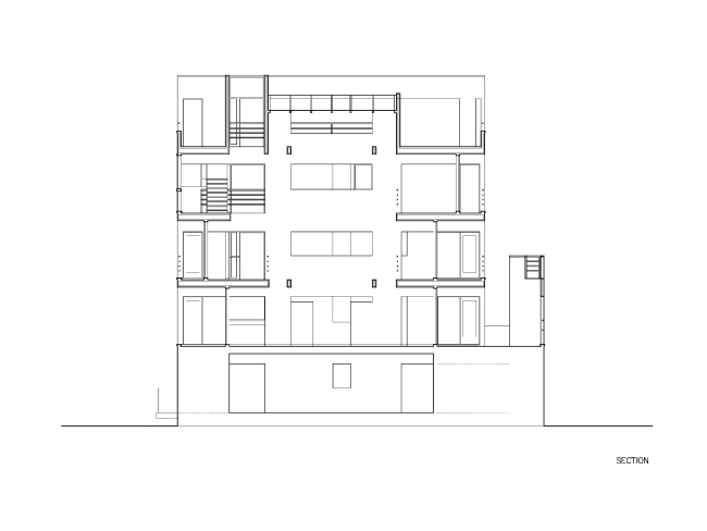
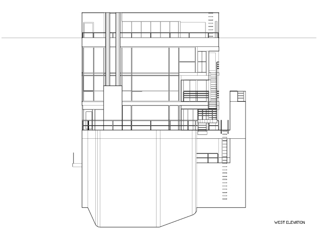
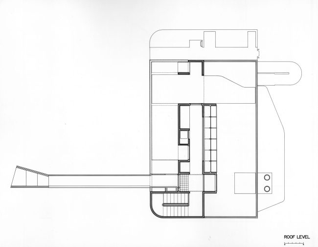
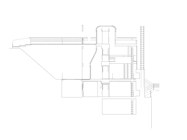
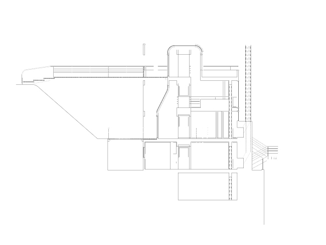
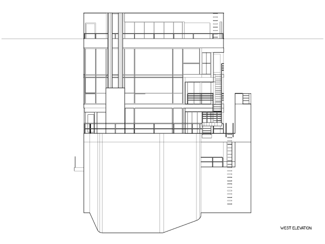
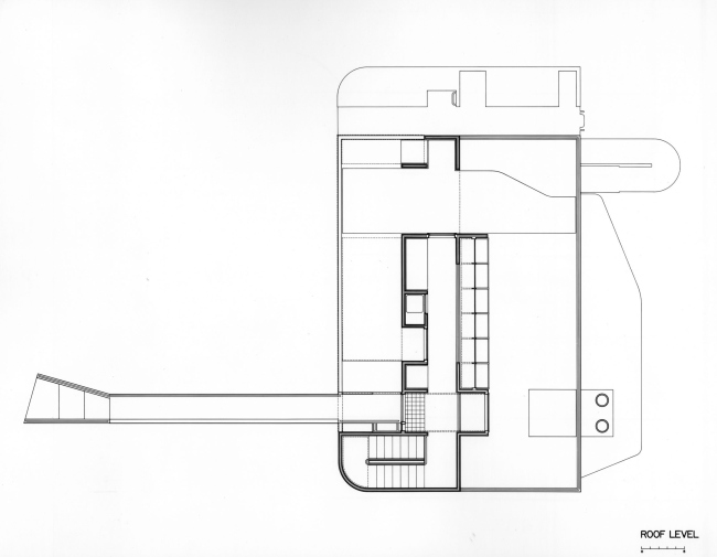
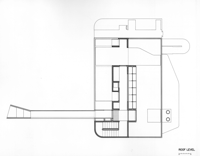
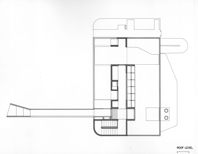
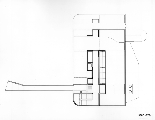
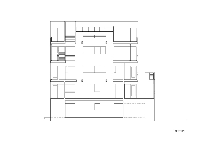
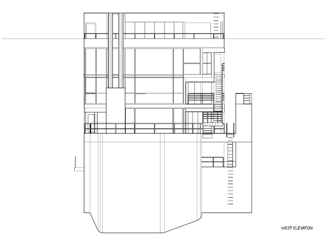
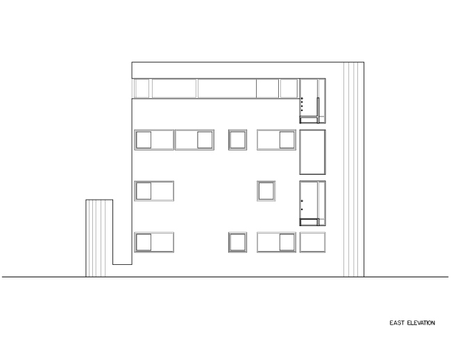
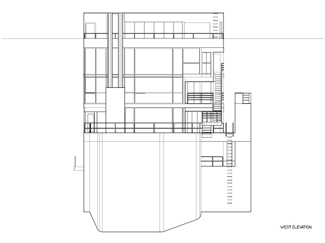
Из-за необычного расположения в дом попадают сверху, через террасу на крыше: туда ведет мостик с шоссе. Это не единственная оригинальная черта: если обычно дом лишь впускает в себя окружающее пространство, то здесь посетитель выходит с помощью дома наружу – к лесу и озеру, открывающимся с крыши и через остекленный западный фасад. Особую роль играют открытая и закрытая лестницы, а также стальные дымоходы камина. Каркас постройки выполнен из стали и дерева, стены сделаны из деревянного сайдинга, некрашеная древесина широко использована в оформлении интерьера – наряду с фирменным белым цветом Майера.
 
Дом Дугласов © James Haefner. Предоставлено Michigan State Historic Preservation Office
Дом Дугласов © James Haefner. Предоставлено Michigan State Historic Preservation Office

Для Ричарда Майера включение его постройки в национальный реестр стало поводом для размышления о роли архитектора. По его мнению, он помогает создать нечто, что может позже стать более значительным, чем просто здание, и обрести жизнь более долгую, чем жизнь любого из участников процесса. Майер подчеркнул, что при работе надо проектом недостаточно думать о всех видах контекста, надо также помнить о том, чем здание может стать, как оно может сохранить значение и для будущих поколений. Он напомнил, что – несмотря на все перемены в мире – очень важно, что бы архитектура продолжала воздействовать на нас эстетически, то есть говорит о значении красоты, что действительно нечасто упоминается в современном архитектурном дискурсе.
 
Дом Дугласов © James Haefner. Предоставлено Michigan State Historic Preservation Office
Дом Дугласов © James Haefner. Предоставлено Michigan State Historic Preservation Office

Майер также поблагодарил нынешних владельцев дома, которые тщательно его отреставрировали. Можно лишь добавить, что быть хозяевами этого памятника архитектуры – это почти подвиг: ведь дом Дугласов осаждают любители творчества Майера, которые, если возникает такая возможность, даже заходят внутрь без приглашения.
Дом Дугласов © Scott Frances/OTTO
Дом Дугласов © Scott Frances/OTTO
Дом Дугласов © Scott Frances/OTTO
Дом Дугласов © Scott Frances/OTTO
Дом Дугласов © Scott Frances/OTTO
Дом Дугласов © Scott Frances/OTTO
Дом Дугласов © Richard Meier & Partners Architects
Дом Дугласов © Richard Meier & Partners Architects
Дом Дугласов © Richard Meier & Partners Architects
Дом Дугласов © Richard Meier & Partners Architects
Дом Дугласов © Richard Meier & Partners Architects
Дом Дугласов © Richard Meier & Partners Architects
Дом Дугласов © Richard Meier & Partners Architects
Дом Дугласов © Richard Meier & Partners Architects
Дом Дугласов © Richard Meier & Partners Architects
Дом Дугласов © Richard Meier & Partners Architects
Дом Дугласов © Richard Meier & Partners Architects
Дом Дугласов © Richard Meier & Partners Architects
Дом Дугласов © Richard Meier & Partners Architects
Дом Дугласов © Richard Meier & Partners Architects
Дом Дугласов © Richard Meier & Partners Architects
Дом Дугласов © Richard Meier & Partners Architects
Дом Дугласов © Richard Meier & Partners Architects
Дом Дугласов © Richard Meier & Partners Architects
Дом Дугласов © Richard Meier & Partners Architects
Дом Дугласов © Richard Meier & Partners Architects
Дом Дугласов © Richard Meier & Partners Architects
Дом Дугласов © Richard Meier & Partners Architects