Размещено на портале Архи.ру (www.archi.ru)

11.08.2016

Эмблема микрорайона

Ирина Бембель
Объект:
Центральный офис ЗАО «Балтийская жемчужина»
Адрес:
Россия, Санкт-Петербург. Красносельский район, Петергофское шоссе, д. 47, литера А
Мастерская:
Архитектурная мастерская Цыцина
Авторский коллектив:
Генеральный директор: Цыцин С.В.
Главный инженер проекта: Наумович В.Н.
Главный архитектор проекта: Барбашов В.П.

Здание с криволинейной, бионической пластикой построено Сергеем Цыциным в центре будущего микрорайона всего за год. Оно стало локомотивом развития всей застройки.

Центральный офис ЗАО «Балтийская жемчужина». Реализация, 2007 © Архитектурная мастерская Цыцина
Центральный офис ЗАО «Балтийская жемчужина». Реализация, 2007 © Архитектурная мастерская Цыцина

Огромный микрорайон «Балтийская жемчужина», состоящий из нескольких жилых кварталов разной плотности и уровня комфорта, возник на юго-востоке Санкт-Петербурга усилиями петербургских архитекторов и китайских инвесторов. Его местоположение на редкость удачно: совсем рядом Финский залив, к которому дома спускаются еле заметным уклоном. Через комплекс проходят Дудергофский и Матисов каналы, с востока к нему примыкает Южно-Приморский парк.

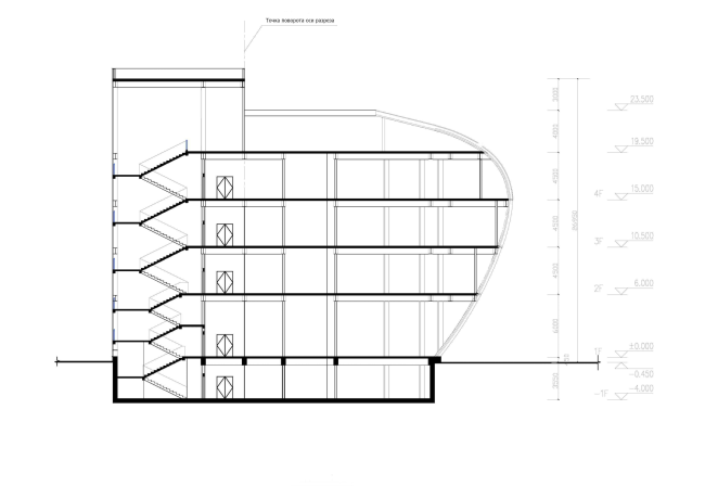
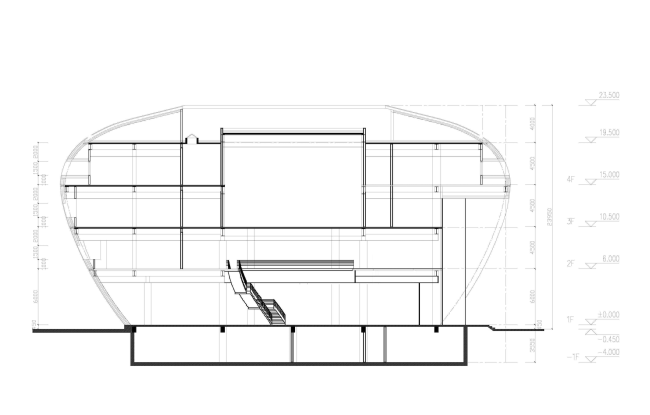
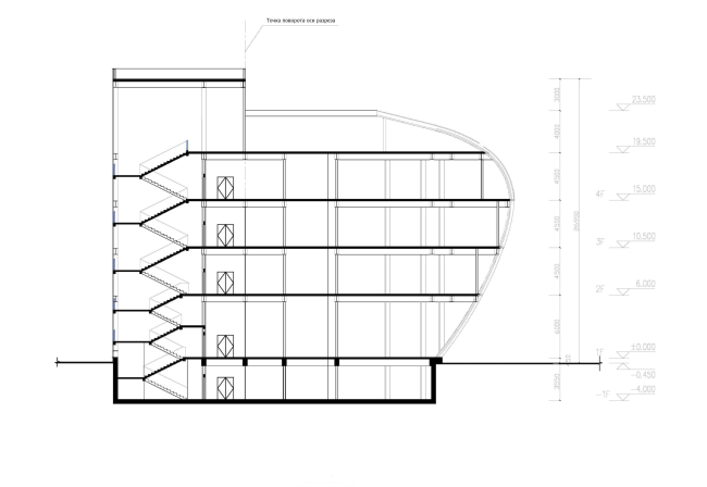
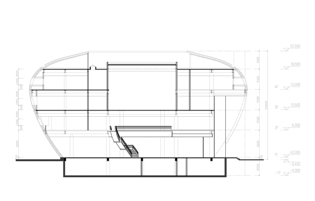
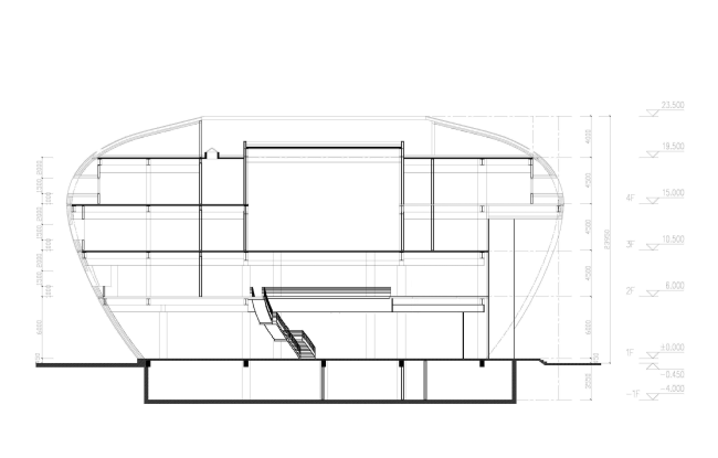
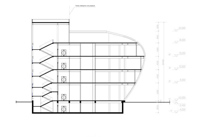
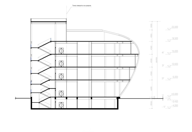
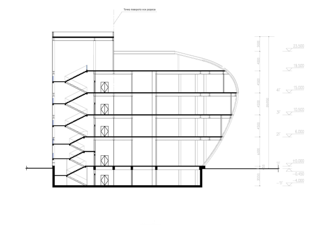
Посередине застройки расположена главная пластическая доминанта: административно-девелоперский центр по развитию территории и продажам – здание криволинейной формы с шарообразным остеклённым объёмом зимнего сада, похожее на раскрывшуюся раковину с жемчужиной и буквально созвучную названию микрорайона. Приём основан на противопоставлении строгой геометрии и произвольной кривизны: вертикальные стены и гранёный шар контрастно врезаны в обтекаемое бионическое тело. Гнутые стены облицованы декоративными алюминиевыми панелями; в сочетании с остеклёнными поверхностями они создают яркий и динамичный образ, соответствующий своей роли главного акцента. Компактный объём вмещает за необычными фасадами четыре этажа; дополнительный подземный этаж используется под паркинг.
Центральный офис ЗАО «Балтийская жемчужина». Модель © Архитектурная мастерская Цыцина
Центральный офис ЗАО «Балтийская жемчужина». Модель © Архитектурная мастерская Цыцина
Центральный офис ЗАО «Балтийская жемчужина». Реализация, 2007 © Архитектурная мастерская Цыцина
Центральный офис ЗАО «Балтийская жемчужина». Реализация, 2007 © Архитектурная мастерская Цыцина

Центром объёмной композиции стал просторный двусветный вестибюль с сервисными и информационными службами, зонами отдыха, зимним садом и выставочными помещениями. На первом этаже находится зона приёма VIP-клиентов, выставочные залы, переговорные и зона отдыха. Главный выразительный акцент – сферообразный зимний сад с богатой растительностью, водопадами и ручейками.
Центральный офис ЗАО «Балтийская жемчужина». Интерьер. Реализация, 2007 © Архитектурная мастерская Цыцина
Центральный офис ЗАО «Балтийская жемчужина». Интерьер. Реализация, 2007 © Архитектурная мастерская Цыцина

На втором этаже к тем же функциям добавлены офисные и служебные помещения. Третий и четвертый этажи первоначально предназначались для размещения офисов, отделов продаж и дирекций комплекса «Балтийская жемчужина», но в дальнейшем планируется использовать их как клубные помещения с поэтажным делением на обычные и VIP-зоны. Вертикальные связи обеспечивают две лифтовые группы и три лестницы. Каркас из металлоконструкций поддерживает монолитные железобетонные перекрытия. Постройку окружает общественная зона с бассейном, отражающим «жемчужину» зимнего сада и, что совсем уж удивительно для наших прагматичных времён, – со скульптурой, демонстрирующей попытку возродить забытый синтез искусств.
Центральный офис ЗАО «Балтийская жемчужина». Скульптура перед зимним садом. Фотография © Ирина Бембель
Центральный офис ЗАО «Балтийская жемчужина». Скульптура перед зимним садом. Фотография © Ирина Бембель

«Я счастлив был поработать на этом объекте, потому что он изменил мои представления о девелопменте, – говорит руководитель авторского коллектива Сергей Цыцин. – Тогда, в начале двухтысячных, никто не занимался проектами комплексного освоения территорий – настолько они финансово ёмкие и долгосрочные. А здесь я впервые увидел именно такой подход к освоению территории в триста гектаров. Здание изначально создавалось как центр и отправная точка для всего микрорайона, тогда как обычно мы сталкиваемся с обратной практикой, когда на пустой территории ставится некая времянка отдела продаж, которая постепенно обрастает утилитарными жилыми корпусами. В данном случае выразительный, интересный объект задал высокую планку для всей последующей застройки».

Процесс проектирования и строительства «Жемчужины» был крайне напряжённым. По словам Сергея Цыцина, с момента заключения контракта до торжественного перерезания ленточки прошёл всего один год. Чтобы воплотить необычную форму «раковины» мастерской пришлось выполнить тысячу четыреста чертежей только по основному каркасу! Конструктивная, несущая роль криволинейных поверхностей оболочки потребовала, в том числе, дополнительных финансовых затрат. Тем не менее инвестор пошёл на это ради получения нужного художественного результата.

«Оказывается проектирование и строительство выразительного объекта не настолько дороже, чем это иногда себе представляют, – продолжает Сергей Цыцин, – примерно в полтора раза. При этом я уверен, эти затраты полностью окупаются тем имиджевым эффектом, который получает в итоге инвестор. Это первый шаг по созданию той среды высокого качества, которую ищет определённая категория потребителей».

Микрорайон «Балтийская жемчужина» с одноимённым бизнес-центром – редкий пример взаимодействия города, инвесторов, градостроителей и архитекторов-объёмщиков. Заданное мастер-планом положение главной доминанты обеспечило авторам необходимый творческий простор, когда смелый эксперимент уместен, а свобода самовыражения идёт во благо общей задаче. Было бы, правда, ещё приятнее, если бы в роли китайских инвесторов столь же профессионально действовали наши соотечественники, а подобный подход к застройке стал общим правилом.
Центральный офис ЗАО «Балтийская жемчужина». Ситуационный план © Архитектурная мастерская Цыцина
Центральный офис ЗАО «Балтийская жемчужина». Ситуационный план © Архитектурная мастерская Цыцина
Центральный офис ЗАО «Балтийская жемчужина». Аксонометрия © Архитектурная мастерская Цыцина
Центральный офис ЗАО «Балтийская жемчужина». Аксонометрия © Архитектурная мастерская Цыцина
Центральный офис ЗАО «Балтийская жемчужина». Генеральный план © Архитектурная мастерская Цыцина
Центральный офис ЗАО «Балтийская жемчужина». Генеральный план © Архитектурная мастерская Цыцина
Центральный офис ЗАО «Балтийская жемчужина». Фрагменты плана © Архитектурная мастерская Цыцина
Центральный офис ЗАО «Балтийская жемчужина». Фрагменты плана © Архитектурная мастерская Цыцина
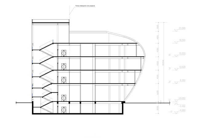
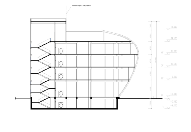
Центральный офис ЗАО «Балтийская жемчужина». Разрез © Архитектурная мастерская Цыцина
Центральный офис ЗАО «Балтийская жемчужина». Разрез © Архитектурная мастерская Цыцина
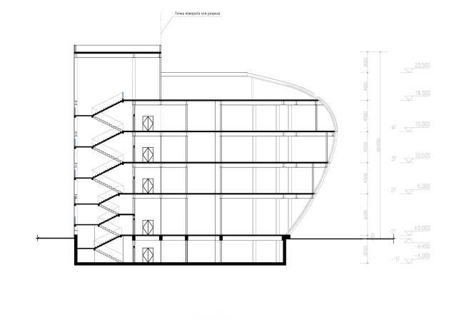
Центральный офис ЗАО «Балтийская жемчужина». Разрез © Архитектурная мастерская Цыцина
Центральный офис ЗАО «Балтийская жемчужина». Разрез © Архитектурная мастерская Цыцина
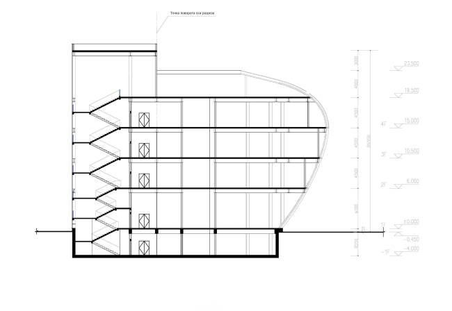
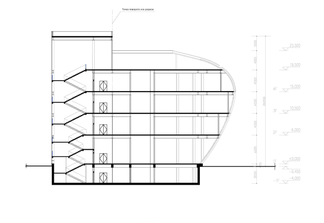
Центральный офис ЗАО «Балтийская жемчужина». Разрез © Архитектурная мастерская Цыцина
Центральный офис ЗАО «Балтийская жемчужина». Разрез © Архитектурная мастерская Цыцина