Размещено на портале Архи.ру (www.archi.ru)

06.07.2016

Три слоя времени

Нина Фролова
Объект:
Конгресс-центр Лимы
Адрес:
Перу, None, Лима.
Мастерская:
IDOM

Конгресс-центр в Лиме по проекту испанского бюро IDOM.

Конгресс-центр Лимы © Antonio Sorrentino / PHOSS
Конгресс-центр Лимы © Antonio Sorrentino / PHOSS

Новый главный конгресс-центр перуанской столицы был построен к значительному событию: ежегодному заседанию советов управляющих Международного валютного фонда и Всемирного банка, которые выбрали местом для встречи именно Лиму. Правительство страны, обновив ради этого «конференц-инфраструктуру», посчитало, что новый конгресс-центр будет своего рода посланием мировому бизнес-сообществу: Перу и его столица – подходящее место для новых проектов.
 
Конгресс-центр Лимы © Antonio Sorrentino / PHOSS
Конгресс-центр Лимы © Antonio Sorrentino / PHOSS

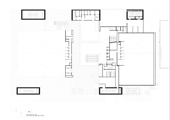
Здание общей площадью 86 000 м2 расположено рядом с другими крупными сооружениями «Культурного центра нации» – Национального музея, Министерств образования и культуры, Национального банка, а также археологической зоны «Уака Сан-Борха». Несмотря на важность этого ансамбля, пока пространство вокруг не слишком приятно для пешеходов, и предполагается, что после открытия нового конгресс-центра оно будет реконструировано, а улица Комерсио, куда обращены все эти объекты, превратится в Бульвар культуры. Качеству общественных зон способствует открытость нового конгресс-центра для горожан на уровне первого этажа. Для фасадов здания были выбраны стекло, панели стеклофибробетона и металл, что связывает его с окружением.
 
Конгресс-центр Лимы © Antonio Sorrentino / PHOSS
Конгресс-центр Лимы © Antonio Sorrentino / PHOSS

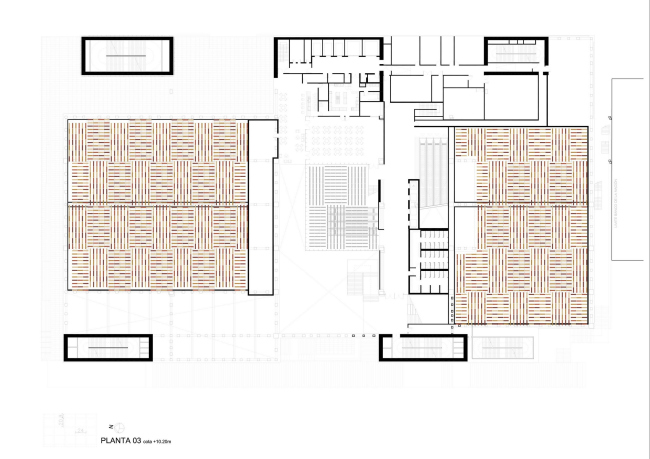
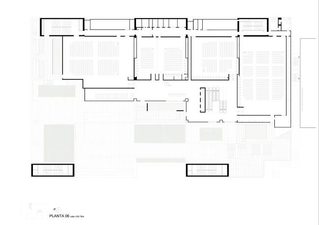
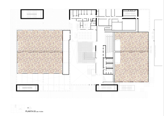
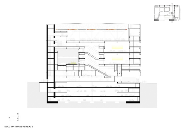
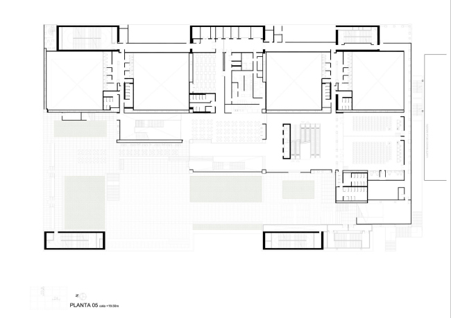
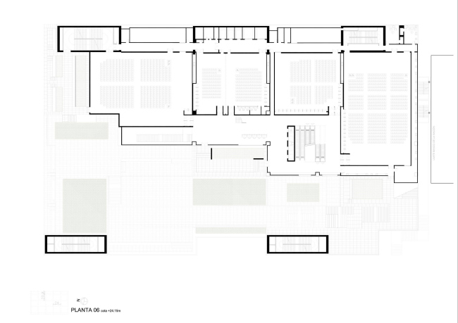
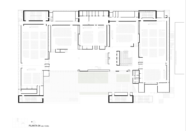
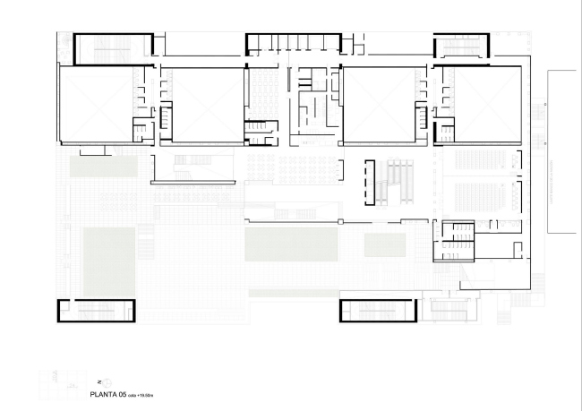
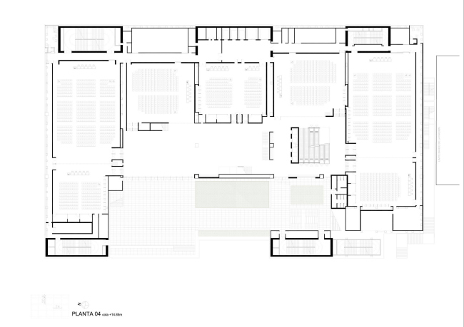
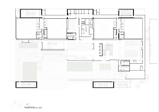
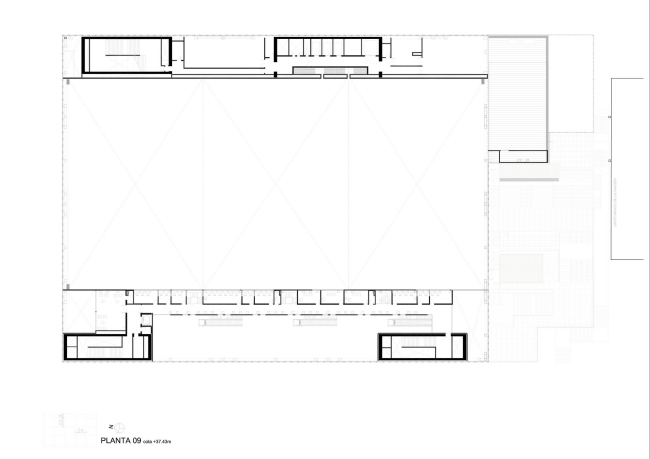
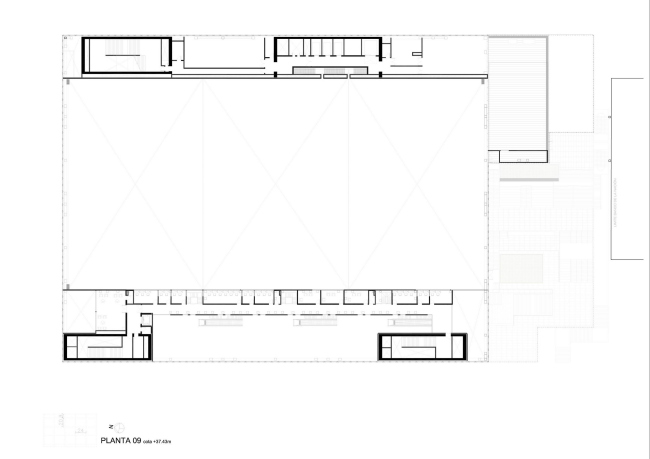
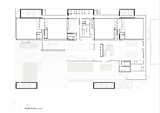
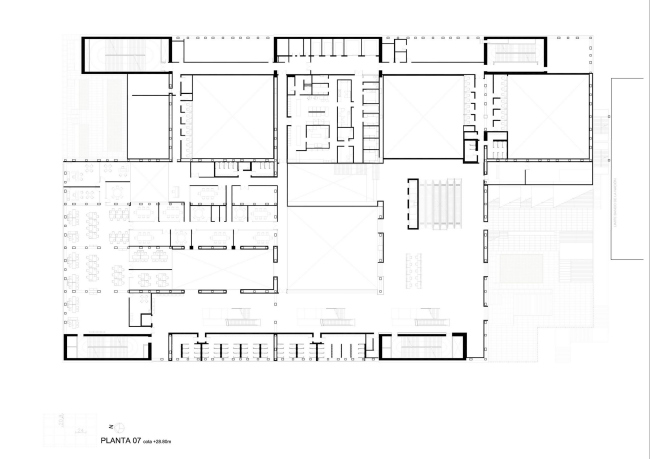
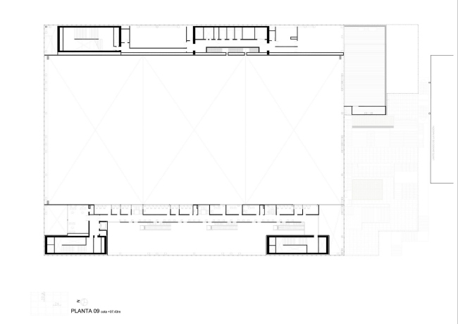
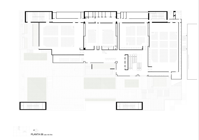
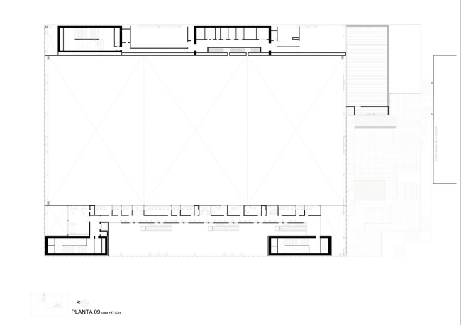
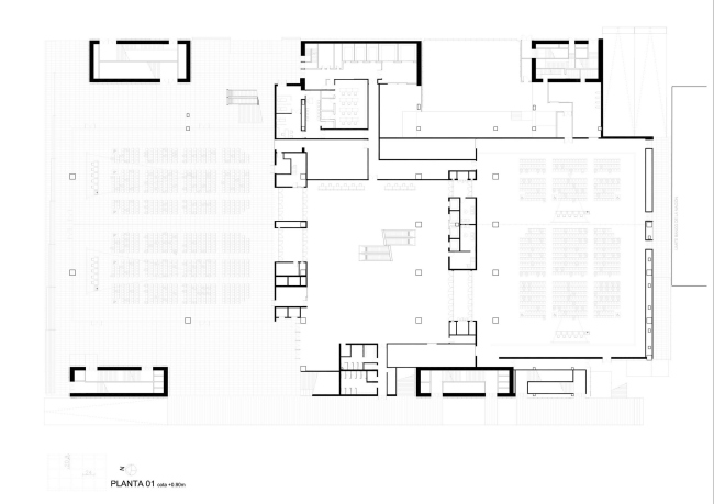
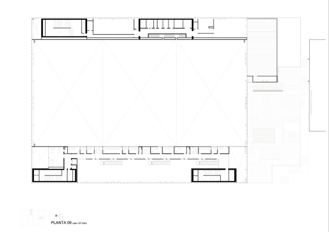
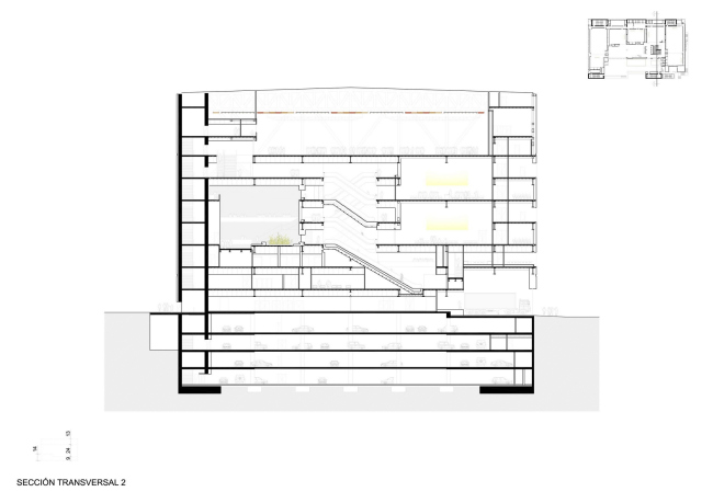
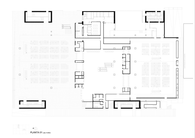
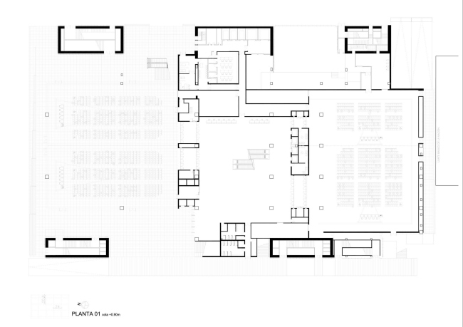
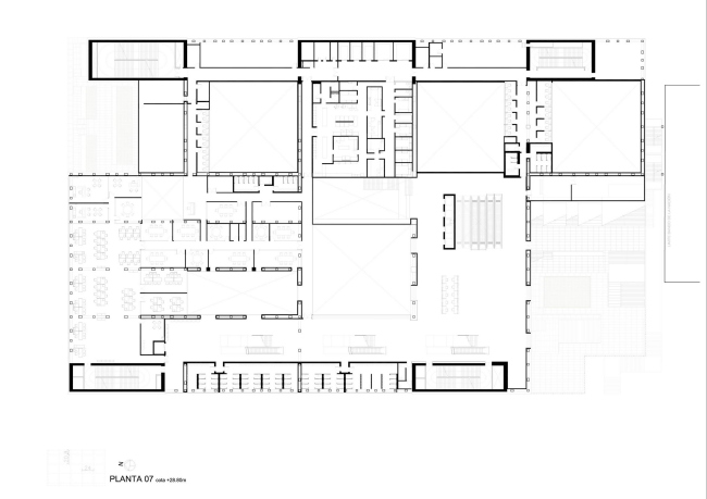
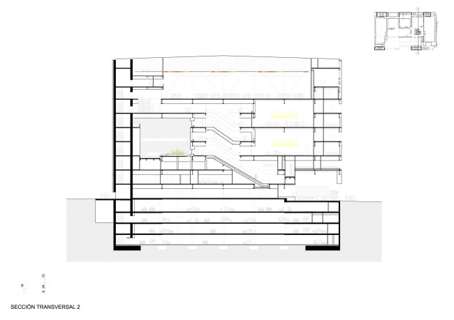
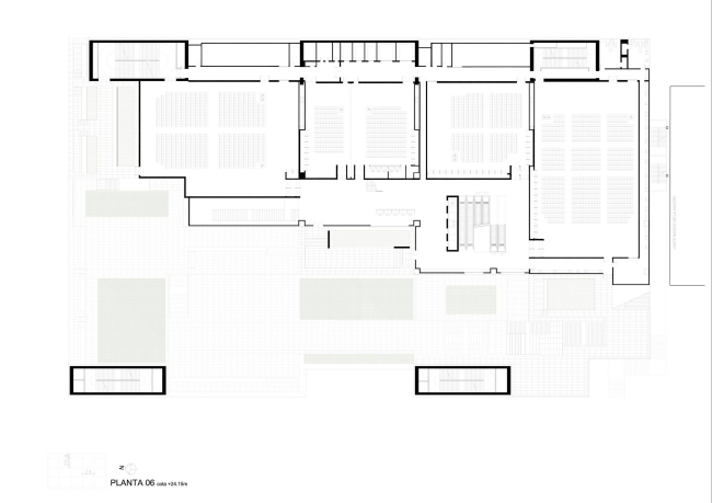
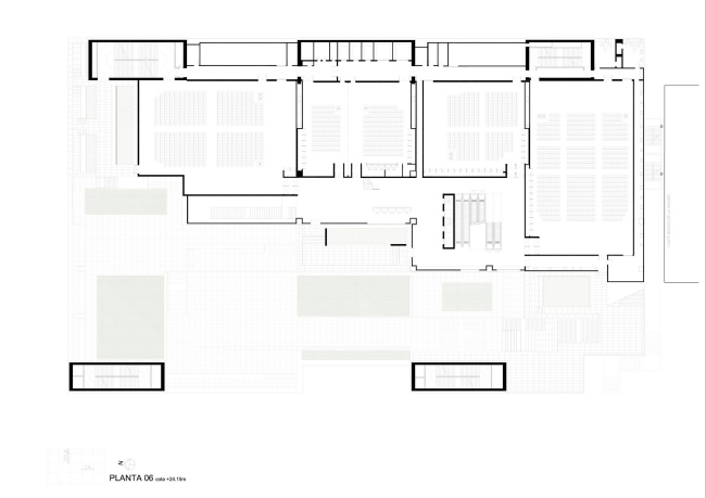
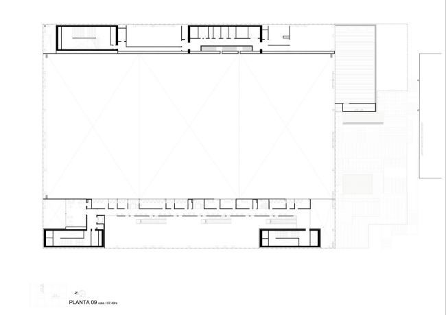
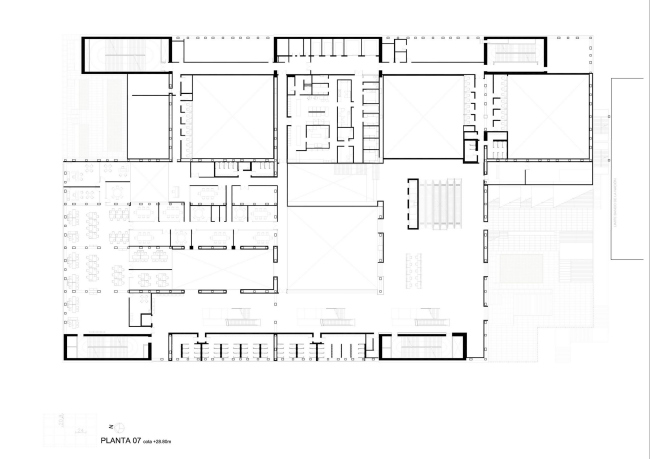
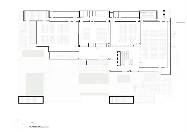
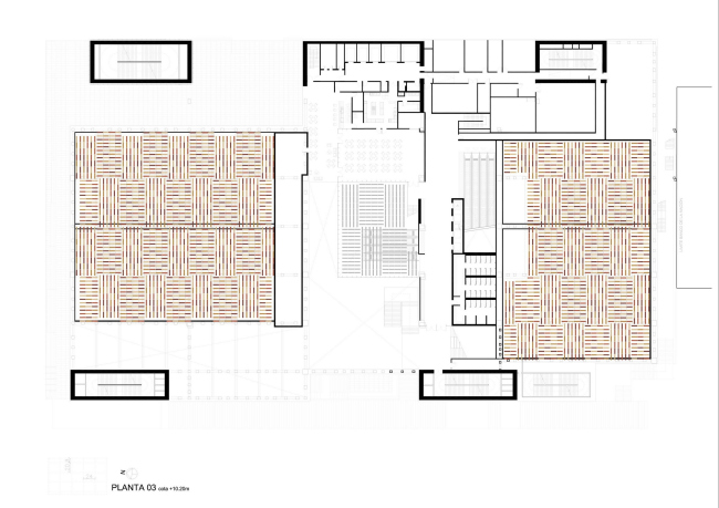
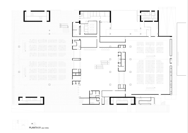
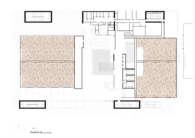
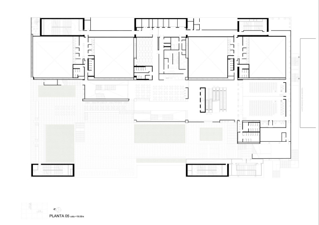
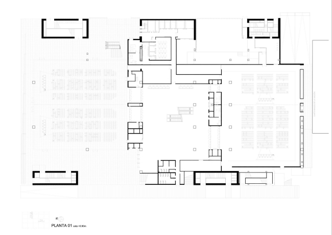
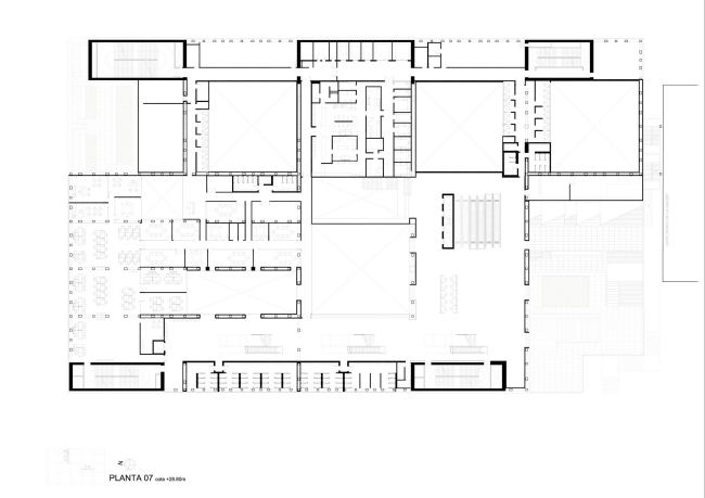
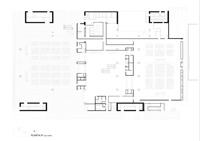
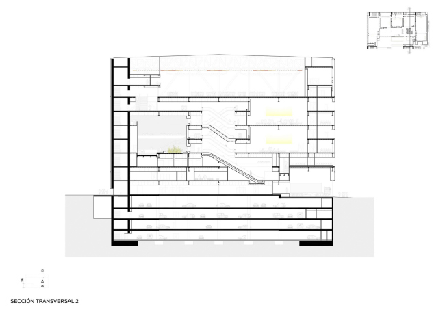
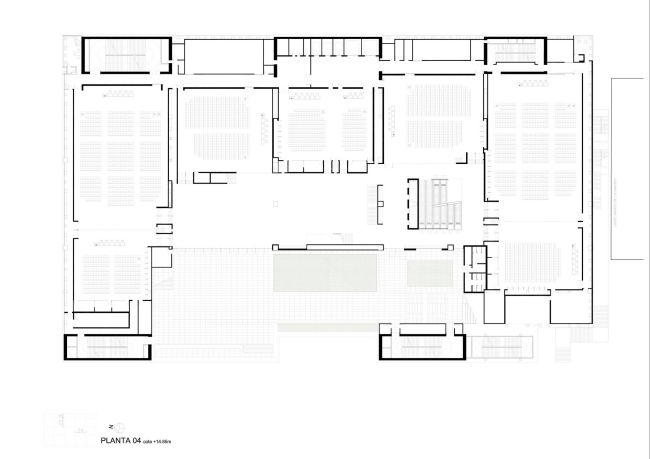
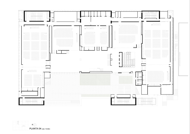
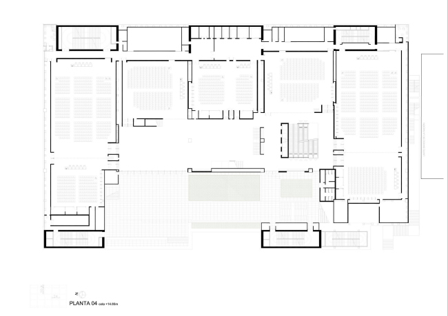
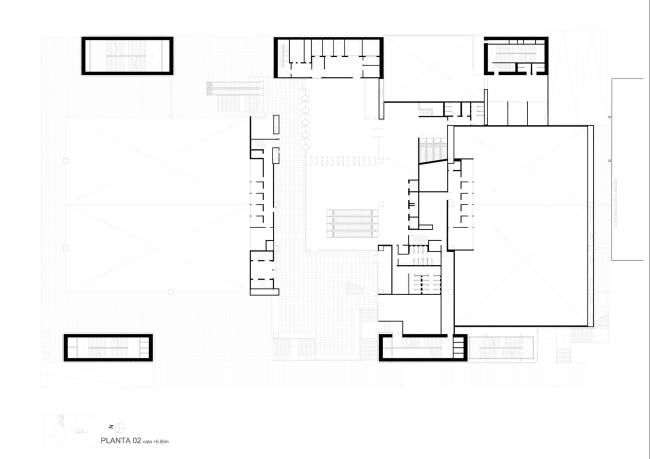
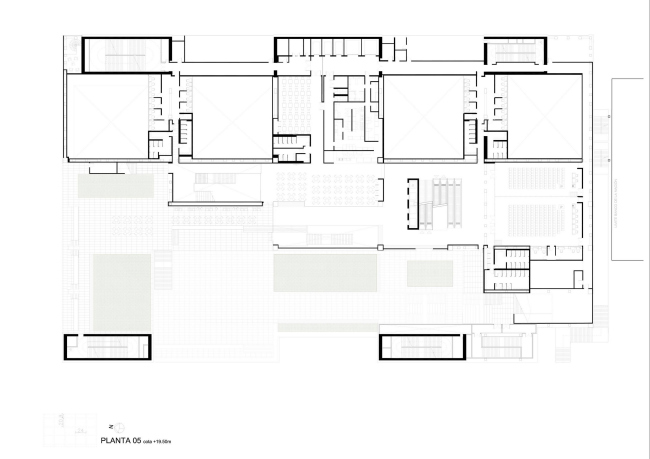
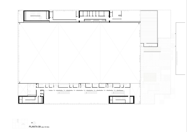
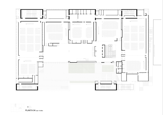
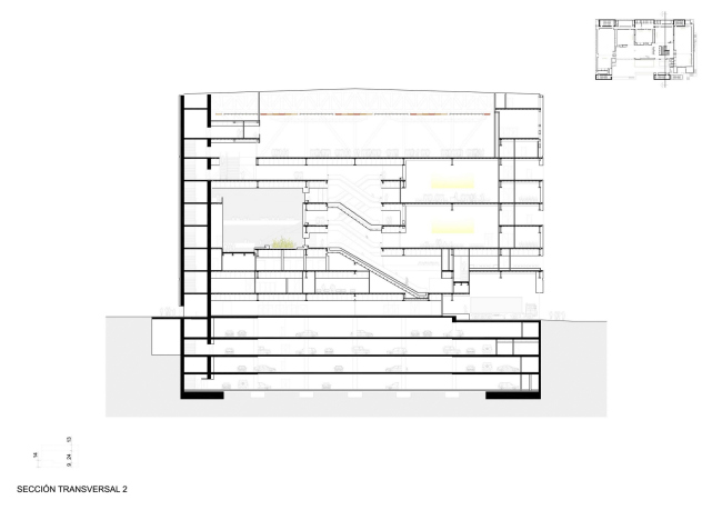
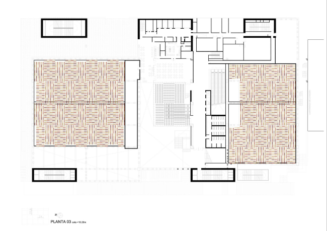
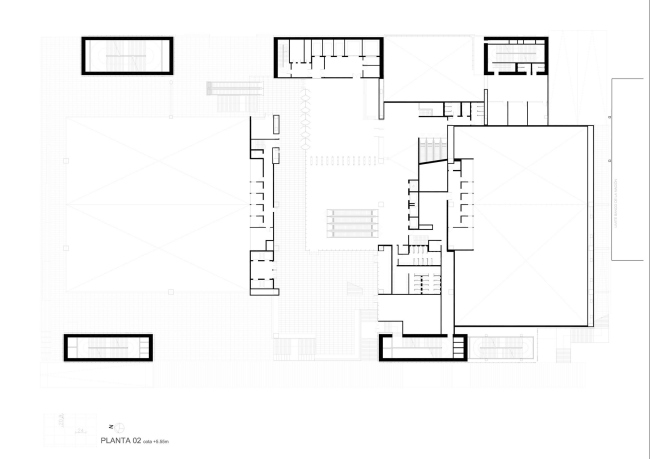
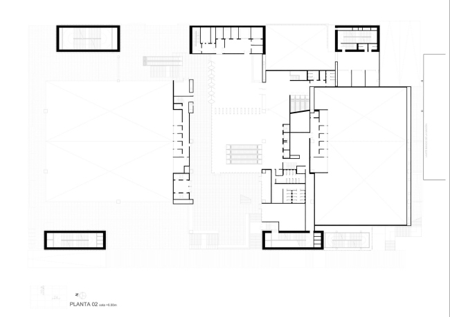
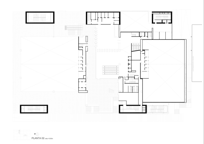
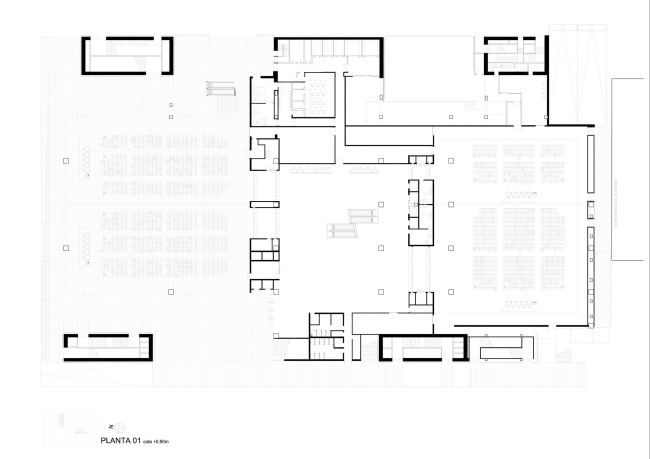
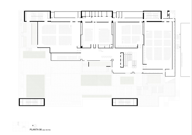
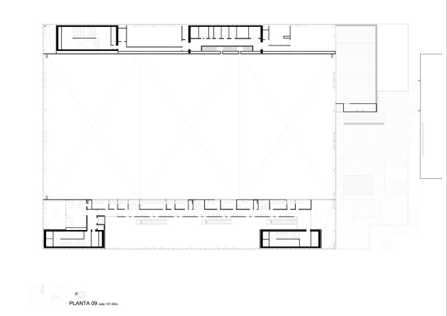
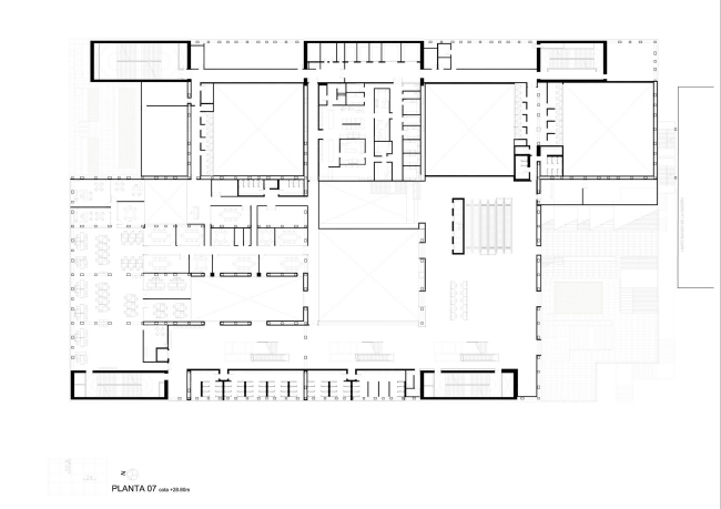
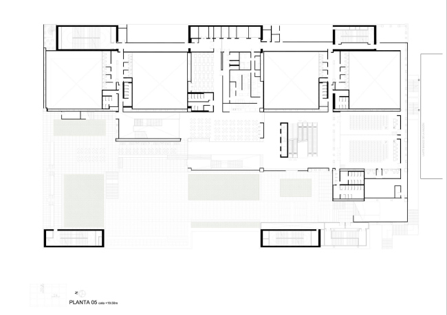
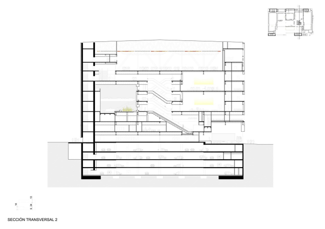
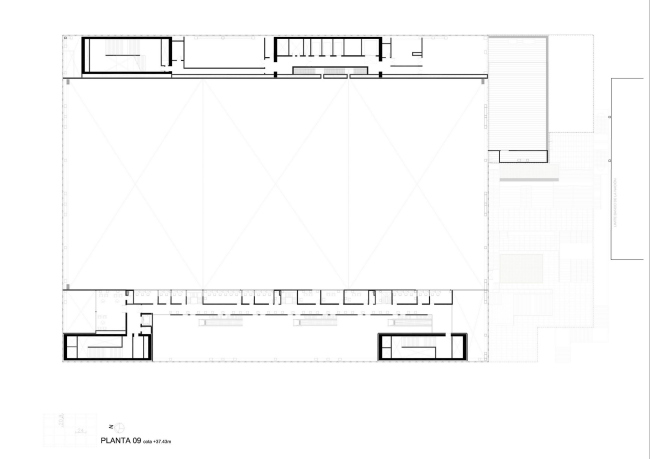
Конгресс-центр составлен из трех «слоев», отсылающих к разным периодам истории Перу. Настоящее символизируют два зала-трансформера площадью около 1800 м2 – «Комнаты нации», которые можно полностью открыть вовне; в результате получится крытая «плаза» площадью более 2500 м2. Прошлое – это открытое пространство «Лима Лаундж», вдохновленное доколумбовыми священными участками-«уака». Его конфигурацию определяют расположение и размеры конференц-залов. Расположенный наверху остекленный объем – зал на 3500 м2, названный «Международная комната наций».
 
Конгресс-центр Лимы © Antonio Sorrentino / PHOSS
Конгресс-центр Лимы © Antonio Sorrentino / PHOSS

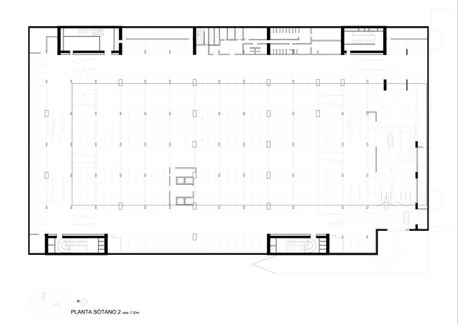
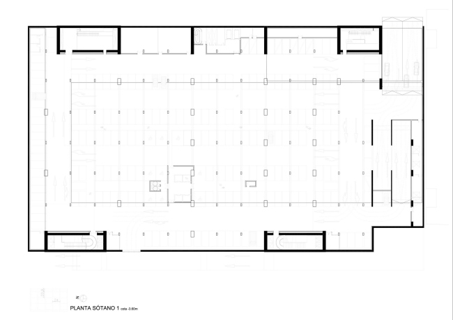
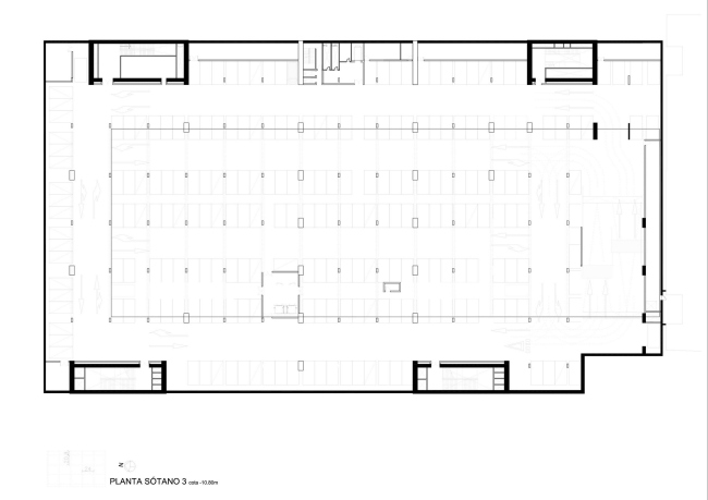
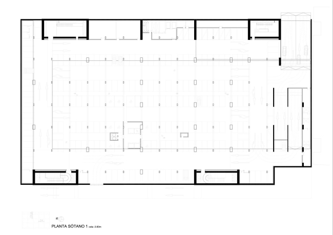
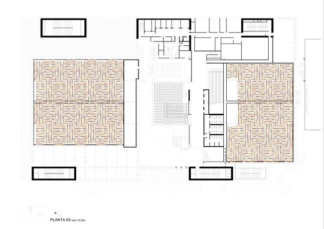
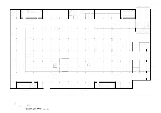
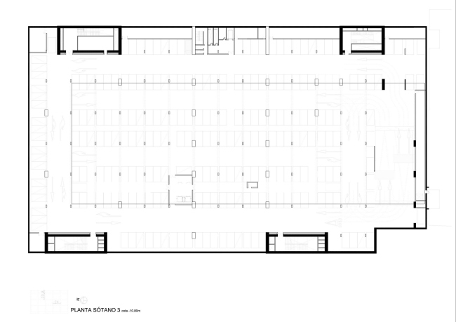
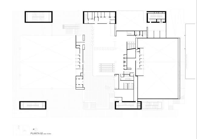
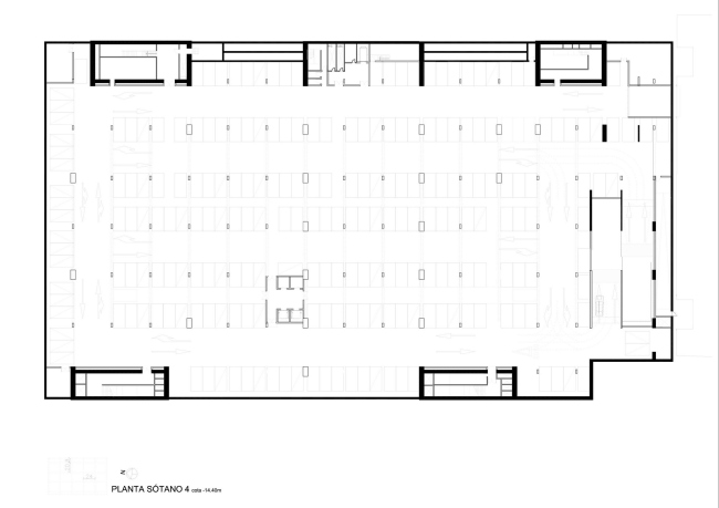
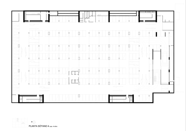
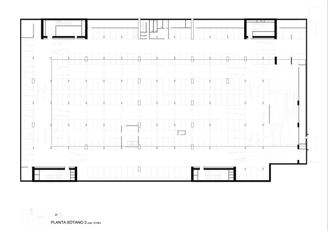
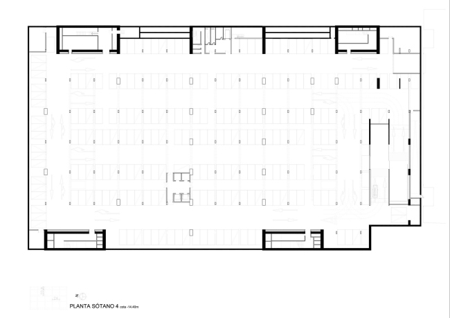
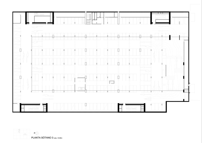
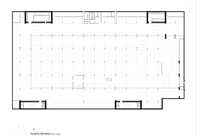
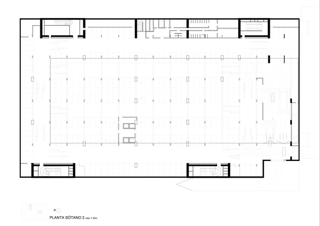
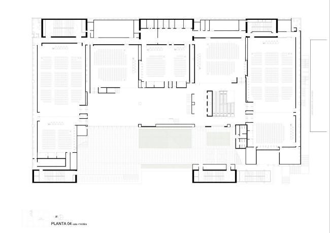
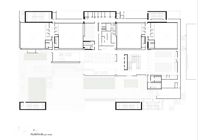
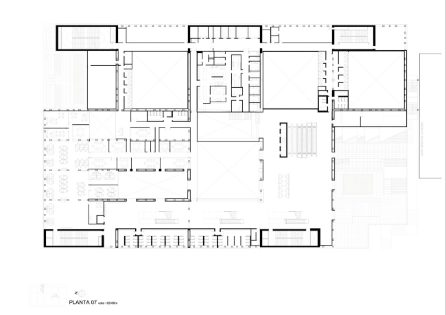
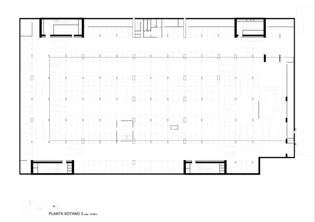
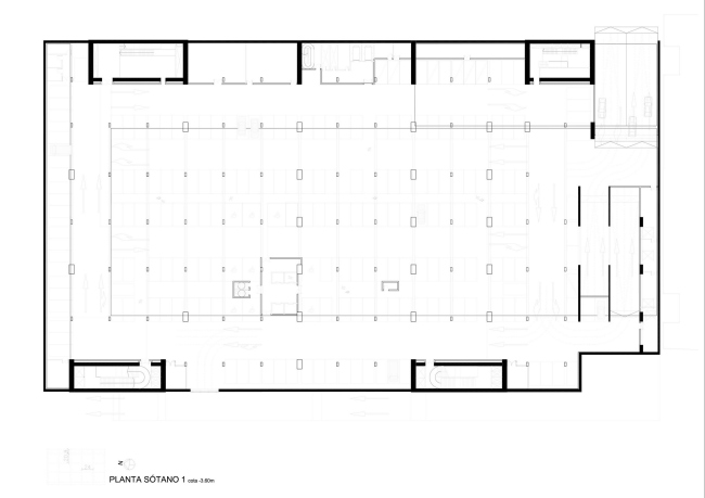
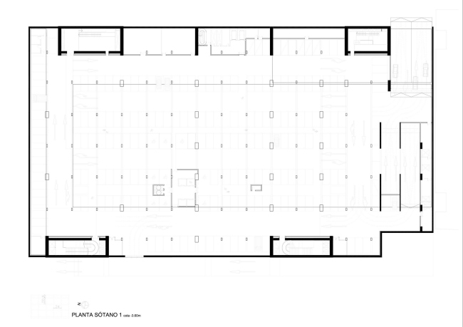
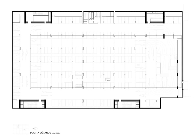
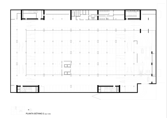
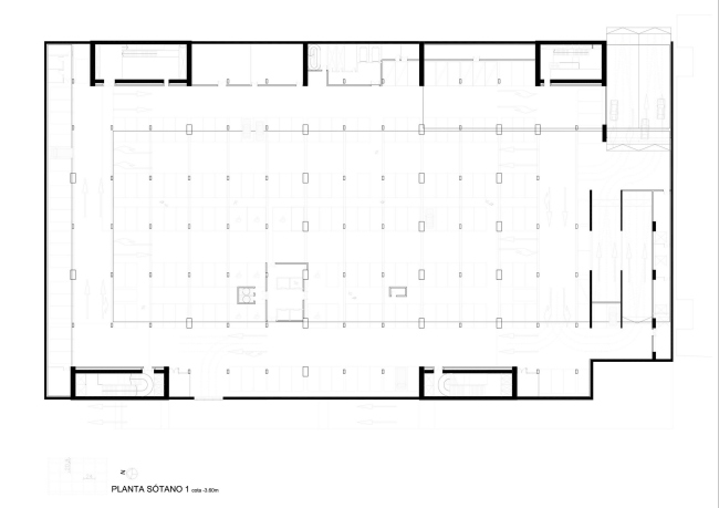
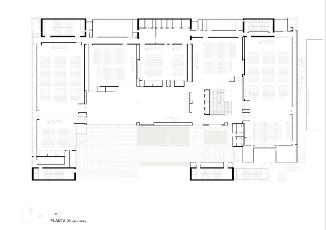
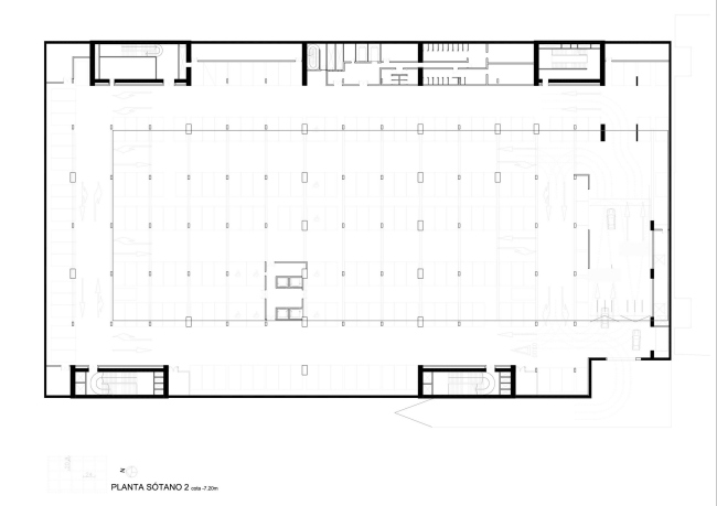
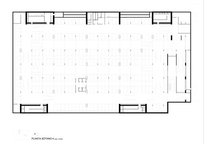
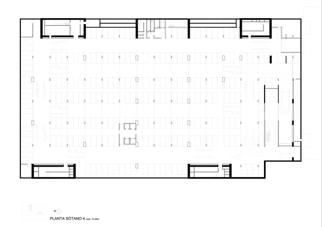
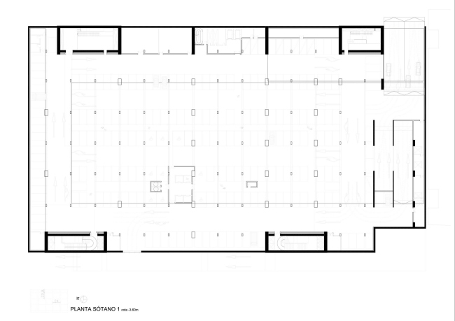
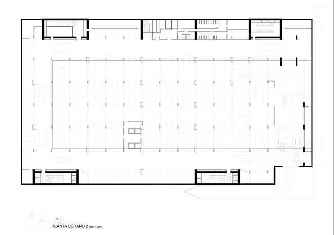
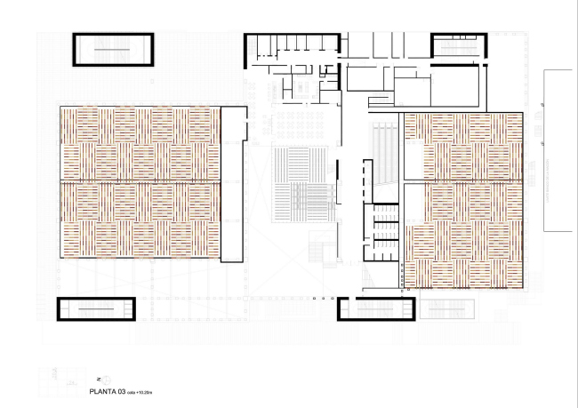
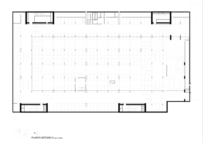
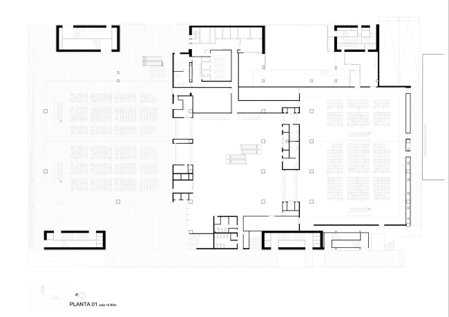
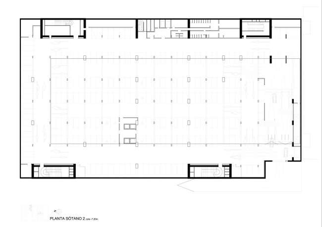
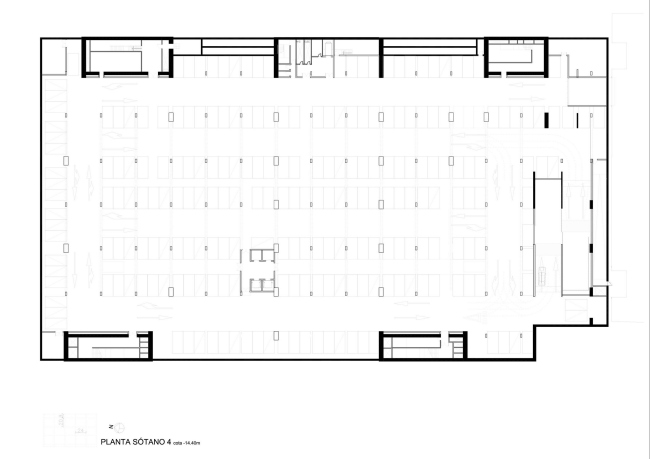
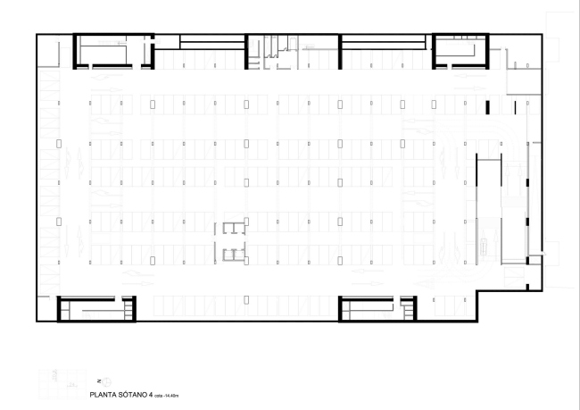
Всего в центре – 18 многофункциональных конференц-залов, причем их размеры варьируются от 100 до 3500 м2. Всего в здании могут присутствовать на мероприятиях до 10 000 человек одновременно. Многие залы, как упомянутые выше «Комнаты нации» можно трансформировать, убирая или выстраивая перегородки из акустических панелей. Также в комплексе имеются 4 этажа подземного паркинга, выставочные залы, кафе и столовые, зоны отдыха и разнообразные административные и технические помещения.
 
Конгресс-центр Лимы © Antonio Sorrentino / PHOSS
Конгресс-центр Лимы © Antonio Sorrentino / PHOSS

Архитекторы придерживались пропорции 1/3 между общественными зонами и площадью залов, которая обеспечивает эффективное функционирование центра. Этой же цели служит щедрое распределение площади в каждом зале – 1,5 м2 на человека – что позволило легко разместить там не только ряды кресел, но и пространства для кофе-брейка и отдыха.
 
Конгресс-центр Лимы © Antonio Sorrentino / PHOSS
Конгресс-центр Лимы © Antonio Sorrentino / PHOSS

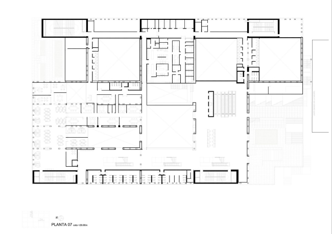
В интересах эффективности и пожаробезопасности лифты и эскалаторы помещены отдельно от лестниц, причем лестницы также служат для неспешного движения по зданию – с них можно полюбоваться видами Лимы, и не с одной стороны, а через любой из четырех фасадов.
 
Конгресс-центр Лимы © Antonio Sorrentino / PHOSS
Конгресс-центр Лимы © Antonio Sorrentino / PHOSS

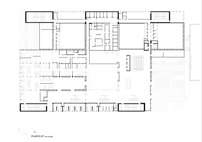
Особую проблему представлял верхний ярус здания, упомянутый зал без опор «Международная комната наций» площадью 5400 м2: устройство такого помещения под крышей в сейсмоопасном регионе было непростой задачей, кроме того, пришлось продумать «доставку» 3500 зрителей в зал и «эвакуацию» их оттуда. Такое решение верхнего этажа породило плоскую крышу площадью 9000 м2, «пятый фасад», хорошо видный из соседней башни Национального банка; по этой причине вентиляционное оборудование помещено не там, а на восточном фасаде.
Конгресс-центр Лимы © Antonio Sorrentino / PHOSS
Конгресс-центр Лимы © Antonio Sorrentino / PHOSS
Конгресс-центр Лимы © Antonio Sorrentino / PHOSS
Конгресс-центр Лимы © Antonio Sorrentino / PHOSS
Конгресс-центр Лимы © Antonio Sorrentino / PHOSS
Конгресс-центр Лимы © Antonio Sorrentino / PHOSS
Конгресс-центр Лимы © Antonio Sorrentino / PHOSS
Конгресс-центр Лимы © Antonio Sorrentino / PHOSS
Конгресс-центр Лимы © Antonio Sorrentino / PHOSS
Конгресс-центр Лимы © Antonio Sorrentino / PHOSS
Конгресс-центр Лимы © Antonio Sorrentino / PHOSS
Конгресс-центр Лимы © Antonio Sorrentino / PHOSS
Конгресс-центр Лимы © Antonio Sorrentino / PHOSS
Конгресс-центр Лимы © Antonio Sorrentino / PHOSS
Конгресс-центр Лимы © Antonio Sorrentino / PHOSS
Конгресс-центр Лимы © Antonio Sorrentino / PHOSS
Конгресс-центр Лимы © Antonio Sorrentino / PHOSS
Конгресс-центр Лимы © Antonio Sorrentino / PHOSS
Конгресс-центр Лимы © Antonio Sorrentino / PHOSS
Конгресс-центр Лимы © Antonio Sorrentino / PHOSS
Конгресс-центр Лимы © Antonio Sorrentino / PHOSS
Конгресс-центр Лимы © Antonio Sorrentino / PHOSS
Конгресс-центр Лимы © Antonio Sorrentino / PHOSS
Конгресс-центр Лимы © Antonio Sorrentino / PHOSS
Конгресс-центр Лимы © Antonio Sorrentino / PHOSS
Конгресс-центр Лимы © Antonio Sorrentino / PHOSS
Конгресс-центр Лимы © Antonio Sorrentino / PHOSS
Конгресс-центр Лимы © Antonio Sorrentino / PHOSS
Конгресс-центр Лимы © Antonio Sorrentino / PHOSS
Конгресс-центр Лимы © Antonio Sorrentino / PHOSS
Конгресс-центр Лимы © Antonio Sorrentino / PHOSS
Конгресс-центр Лимы © Antonio Sorrentino / PHOSS
Конгресс-центр Лимы © Antonio Sorrentino / PHOSS
Конгресс-центр Лимы © Antonio Sorrentino / PHOSS
Конгресс-центр Лимы © Antonio Sorrentino / PHOSS
Конгресс-центр Лимы © Antonio Sorrentino / PHOSS
Конгресс-центр Лимы © Antonio Sorrentino / PHOSS
Конгресс-центр Лимы © Antonio Sorrentino / PHOSS
Конгресс-центр Лимы © Antonio Sorrentino / PHOSS
Конгресс-центр Лимы © Antonio Sorrentino / PHOSS
Конгресс-центр Лимы © Antonio Sorrentino / PHOSS
Конгресс-центр Лимы © Antonio Sorrentino / PHOSS
Конгресс-центр Лимы © Antonio Sorrentino / PHOSS
Конгресс-центр Лимы © Antonio Sorrentino / PHOSS
Конгресс-центр Лимы © Antonio Sorrentino / PHOSS
Конгресс-центр Лимы © Antonio Sorrentino / PHOSS
Конгресс-центр Лимы © Antonio Sorrentino / PHOSS
Конгресс-центр Лимы © Antonio Sorrentino / PHOSS
Конгресс-центр Лимы © Antonio Sorrentino / PHOSS
Конгресс-центр Лимы © Antonio Sorrentino / PHOSS
Конгресс-центр Лимы © Antonio Sorrentino / PHOSS
Конгресс-центр Лимы © Antonio Sorrentino / PHOSS
Конгресс-центр Лимы © Antonio Sorrentino / PHOSS
Конгресс-центр Лимы © Antonio Sorrentino / PHOSS
Конгресс-центр Лимы © Antonio Sorrentino / PHOSS
Конгресс-центр Лимы © Antonio Sorrentino / PHOSS
Конгресс-центр Лимы © Antonio Sorrentino / PHOSS
Конгресс-центр Лимы © Antonio Sorrentino / PHOSS
Конгресс-центр Лимы © Antonio Sorrentino / PHOSS
Конгресс-центр Лимы © Antonio Sorrentino / PHOSS
Конгресс-центр Лимы © Antonio Sorrentino / PHOSS
Конгресс-центр Лимы © Antonio Sorrentino / PHOSS
Конгресс-центр Лимы © Antonio Sorrentino / PHOSS
Конгресс-центр Лимы © Antonio Sorrentino / PHOSS
Конгресс-центр Лимы © Antonio Sorrentino / PHOSS
Конгресс-центр Лимы © Antonio Sorrentino / PHOSS
Конгресс-центр Лимы © IDOM
Конгресс-центр Лимы © IDOM
Конгресс-центр Лимы © IDOM
Конгресс-центр Лимы © IDOM
Конгресс-центр Лимы © IDOM
Конгресс-центр Лимы © IDOM
Конгресс-центр Лимы © IDOM
Конгресс-центр Лимы © IDOM
Конгресс-центр Лимы © IDOM
Конгресс-центр Лимы © IDOM
Конгресс-центр Лимы © IDOM
Конгресс-центр Лимы © IDOM
Конгресс-центр Лимы © IDOM
Конгресс-центр Лимы © IDOM
Конгресс-центр Лимы © IDOM
Конгресс-центр Лимы © IDOM
Конгресс-центр Лимы © IDOM
Конгресс-центр Лимы © IDOM
Конгресс-центр Лимы © IDOM
Конгресс-центр Лимы © IDOM
Конгресс-центр Лимы © IDOM
Конгресс-центр Лимы © IDOM
Конгресс-центр Лимы © IDOM
Конгресс-центр Лимы © IDOM
Конгресс-центр Лимы © IDOM
Конгресс-центр Лимы © IDOM
Конгресс-центр Лимы © IDOM
Конгресс-центр Лимы © IDOM
Конгресс-центр Лимы © IDOM
Конгресс-центр Лимы © IDOM
Конгресс-центр Лимы © IDOM
Конгресс-центр Лимы © IDOM
Конгресс-центр Лимы © IDOM
Конгресс-центр Лимы © IDOM
Конгресс-центр Лимы © IDOM
Конгресс-центр Лимы © IDOM
Конгресс-центр Лимы © IDOM
Конгресс-центр Лимы © IDOM
Конгресс-центр Лимы © IDOM
Конгресс-центр Лимы © IDOM
Конгресс-центр Лимы © IDOM
Конгресс-центр Лимы © IDOM
Конгресс-центр Лимы © IDOM
Конгресс-центр Лимы © IDOM
Конгресс-центр Лимы © IDOM
Конгресс-центр Лимы © IDOM