Размещено на портале Архи.ру (www.archi.ru)

24.10.2016

Свет и тень

Лилия Аронова
Объект:
ЖК «Новокрасково»
Адрес:
Россия, Московская обл., , г.п. Красково, д.п. Красково, Егорьевское шоссе
Архитектор:
Александр Скокан
Мастерская:
АБ «Остоженка»
Авторский коллектив:
А. Скокан (главный архитектор бюро), Д. Гусев (руководитель проекта), И. Ивлев (главный архитектор проекта), Е. Алексеенко, М. Елизарова, А. Старостин, К. Ивахненкова, С. Москалик, А. Кудимов, А. Кочуркин, В. Лысенкова,Т. Лапина, М. Матвеенко, А. Федорова, А. Бутусов. При участии: М. Воронков, Р. Кучуков, Н. Медведева, Ю. Плохов, В. Сальников, Т. Хворостяный. Авторский надзор: А. Волосатов. Фотографии: Д. Анненков

АБ «Остоженка» строит в подмосковном поселке Красково новый микрорайон – маленький город с башнями, «крепостной стеной» и собственной часовой башней.

Жилая застройка в посёлке Красково. Жилой комплекс. Вид на бульвар в сторону Кореневского шоссе. Проект, 2016
Жилая застройка в посёлке Красково. Жилой комплекс. Вид на бульвар в сторону Кореневского шоссе. Проект, 2016
© АБ Остоженка

Красково – поселок в Люберецком районе, между Малаховкой и Томилиным, старое дачное место со своей историей (говорят, именно здесь Антон Чехов встретил героя своего рассказа «Злоумышленник», отвинчивавшего гайки на железной дороге) и памятниками архитектуры. Как и большинство подобных близких к Москве поселений, Красково давно получило статус поселка городского типа и планомерно застраивается многоэтажной недвижимостью. Нынешние градостроительные планы администрации ПГТ дают повод для оптимизма; одним из тех объектов, которые должны сформировать новый образ Краскова, станет жилой комплекс по проекту АБ «Остоженка», на данный момент вышедший уже на стадию котлована.
Жилая застройка в посёлке Красково. Схема расположения объекта © АБ Остоженка
Жилая застройка в посёлке Красково. Схема расположения объекта © АБ Остоженка

Участок под застройку расположен на перекрестке Егорьевского и Кореневского шоссе. Егорьевское – на этом отрезке оно называется улицей Карла Маркса – московская трасса, а значит, стоящие вдоль него здания несут ответственную функцию «лица» поселения. На вверенной «Остоженке» территории находится отработанный песчаный карьер, представляющий собой ныне искусственный пруд с заросшими и замусоренными берегами (купаться в нем нельзя из-за множества подводных металлоконструкций); остальную часть участка раньше занимала военная часть, тоже давно заброшенная. Авторы проекта планируют извлечь максимум пользы из наличия на участке водного пространства. Частично его предлагается использовать для расширения площади застройки, возведя на насыпной территории школу и обустроив парковое пространство с прогулочной набережной; оставшуюся часть пруда санируют, почистят берега, и жители Краскова – и в первую очередь проектируемого жилого комплекса – получат просторную рекреационную зону с детскими, спортивными площадками, велосипедными дорожками и прекрасным видом на воду.
Жилая застройка в посёлке Красково. Жилой комплекс. Вид со стороны Егорьевского шоссе. Проект, 2016
Жилая застройка в посёлке Красково. Жилой комплекс. Вид со стороны Егорьевского шоссе. Проект, 2016
© АБ Остоженка
Жилая застройка в посёлке Красково. Ситуационный план © АБ Остоженка
Жилая застройка в посёлке Красково. Ситуационный план © АБ Остоженка

Сам же микрорайон представляет собой комплекс из четырех мини-кварталов, каждый из которых периметром обнимает озеленённый и свободный от автомобилей внутренний двор. Два из них в плане выглядят как идентичные вытянутые прямоугольники, еще один отличается некоторой криволинейностью корпуса, тянущегося вдоль Кореневского шоссе, четвертый же блок получился более обширным, с дополнительным жилым объемом внутри двора, что, впрочем, не нарушает единства дворового пространства. Кварталы разделены бульварами с пешеходными дорожками и полосами для автотранспорта. Кроме того, на участке появятся детский сад и школа – со стороны набережной – и, в некотором удалении от жилья, две многоуровневые автостоянки. Этажность жилых корпусов переменная – 7-8-13-17 этажей, – и со стороны жилой комплекс, при всем стилевом единстве, будет выглядеть маленьким городом, который словно бы вырос естественным образом. Распределяя объемы по периметру кварталов, авторы проекта обращали особое внимание на неукоснительное соблюдение инсоляционных норм – что при требуемом выходе площадей оказалось непростой задачей. Однако баланс требований и ограничений, как уже не первый раз в проектах «Остоженки», подарил комплексу мотивированно-живописный силуэт, все вырезы и асимметрия которого обоснованы необходимостью дать дорогу лучам света. Но одновременно – превращают комплекс в подобие чередования стен, зубцов и башен крепости, выросшей согласно требованиям жизни и истории, а не регулярному плану. Что оживляет силуэт, делая его похожим на другие подобные проекты бюро, к примеру, на «Акварели» в Балашихе. Но здесь нет игры рефлексами, зато «крепостная» тема – впрочем, данная совсем не прямолинейно, без буквального сходства – поддержана темно-кирпичной облицовкой с «камнями» маленьких балконов, расставленных по её поверхности в шахматном порядке и похожих на хвосты каких-то деревянных балок, то ли державших облицовку крепости, то ли служивших для крепления деревянных галерей при стене. Балкончики предназначены для кондиционеров. А асимметрия вырезов поддержана столь же живописной компоновкой выступающих блоков стеклянных лоджий.
Жилая застройка в посёлке Красково. Жилой комплекс. Проект, 2016
Жилая застройка в посёлке Красково. Жилой комплекс. Проект, 2016
© АБ Остоженка
Жилая застройка в посёлке Красково. Жилой комплекс. Вид через озеро. Проект, 2016
Жилая застройка в посёлке Красково. Жилой комплекс. Вид через озеро. Проект, 2016
© АБ Остоженка
Жилая застройка в посёлке Красково. ДДУ. Проект, 2016 © АБ Остоженка
Жилая застройка в посёлке Красково. ДДУ. Проект, 2016 © АБ Остоженка
Жилая застройка в посёлке Красково. Школа. Проект, 2016 © АБ Остоженка
Жилая застройка в посёлке Красково. Школа. Проект, 2016 © АБ Остоженка
Жилая застройка в посёлке Красково. Надземный многоуровневый паркинг. Проект, 2016 © АБ Остоженка
Жилая застройка в посёлке Красково. Надземный многоуровневый паркинг. Проект, 2016 © АБ Остоженка
Жилая застройка в посёлке Красково. Генеральный план © АБ Остоженка
Жилая застройка в посёлке Красково. Генеральный план © АБ Остоженка

Основным выразительным элементом в руках архитекторов стала цветовая гамма. Кроме кирпича для отделки предлагается использовать белую штукатурку – материал, по словам одного из авторов проекта Ильи Ивлева, «в наших условиях довольно трудно реализуемый, но мы решили рискнуть». Общий принцип такой: внешние периметры кварталов, в том числе вдоль пересекающих микрорайон бульваров, – коричневые, внутридомовые фасады – белые. Конечно же не всё так просто: где-то архитекторы визуально облегчили белой штукатуркой внешние силуэты самых высоких башен, где-то, борясь с монотонностью, ввели кирпичные плоскости в пространство дворов. В результате сочетание контрастных цветов смотрится как естественное чередование света и тени, с любого ракурса и в любое время суток придавая очертаниям мини-города ощущение жизни и движения.
Жилая застройка в посёлке Красково. Жилой комплекс. Вид со стороны зоны отдыха. Проект, 2016
Жилая застройка в посёлке Красково. Жилой комплекс. Вид со стороны зоны отдыха. Проект, 2016
© АБ Остоженка
Жилая застройка в посёлке Красково. Жилой комплекс. Двор второго квартала. Проект, 2016
Жилая застройка в посёлке Красково. Жилой комплекс. Двор второго квартала. Проект, 2016
© АБ Остоженка
Жилая застройка в посёлке Красково. Жилой комплекс. Вид на бульвар в сторону Кореневского шоссе. Проект, 2016
Жилая застройка в посёлке Красково. Жилой комплекс. Вид на бульвар в сторону Кореневского шоссе. Проект, 2016
© АБ Остоженка
Жилая застройка в посёлке Красково. Жилой комплекс. Фасад © АБ Остоженка
Жилая застройка в посёлке Красково. Жилой комплекс. Фасад © АБ Остоженка
Жилая застройка в посёлке Красково. Жилой комплекс. Развертки © АБ Остоженка
Жилая застройка в посёлке Красково. Жилой комплекс. Развертки © АБ Остоженка
Жилая застройка в посёлке Красково. Жилой комплекс. Развертки © АБ Остоженка
Жилая застройка в посёлке Красково. Жилой комплекс. Развертки © АБ Остоженка

Кроме двух основных, каждый двор получил ещё и собственный «опознавательный» цвет. В желтый, зеленый, оранжевый или красный будут выкрашены открытые галереи с колоннами, проходящие по первым этажам корпусов, а также, вероятно, и блоки кондиционеров на фасадах. Цветная внутренность галерей еще сильнее перекликается с «Акварелями» и кажется уже фирменным приёмом «Остоженки». По внешнему периметру кварталов цвета нет: здесь блоки дисциплинированно сливаются с кирпичными или белыми оштукатуренными стенами. Зато цвета дворов с энтузиазмом подхватывают оформление фасадов школы и детского сада. Оба, рассчитанные по нормативам на жителей нового микрорайона, расположены вдали от автомобильных трасс, между жилыми домами и парковой зоной. Основные материалы здесь те же – кирпич и штукатурка, но соотношение существенно изменено в пользу белого, что в сочетании с солидными площадями остекления дает ощущение лёгкости и света. К примеру, в здании детского сада стеклянными витражами полностью оформлены лестничные пролёты, а стены внутреннего двора сплошь занимает разноцветная абстрактная роспись, заметная издалека сквозь входные колонны, – неискушенный зритель может подумать, что фреску коллективно исполняли сами будущие ученики.
Жилая застройка в посёлке Красково. Жилой комплекс. Фасады (дом 2, 3) © АБ Остоженка
Жилая застройка в посёлке Красково. Жилой комплекс. Фасады (дом 2, 3) © АБ Остоженка
Жилая застройка в посёлке Красково. Жилой комплекс. Фасады (дом 5, 6) © АБ Остоженка
Жилая застройка в посёлке Красково. Жилой комплекс. Фасады (дом 5, 6) © АБ Остоженка
Жилая застройка в посёлке Красково. Школа. Проект, 2016 © АБ Остоженка
Жилая застройка в посёлке Красково. Школа. Проект, 2016 © АБ Остоженка
Жилая застройка в посёлке Красково. Школа. Проект, 2016 © АБ Остоженка
Жилая застройка в посёлке Красково. Школа. Проект, 2016 © АБ Остоженка
Жилая застройка в посёлке Красково. ДДУ. Проект, 2016 © АБ Остоженка
Жилая застройка в посёлке Красково. ДДУ. Проект, 2016 © АБ Остоженка

Известные своей чуткостью к окружению архитекторы «Остоженки» в данном случае ухитрились прислушаться даже и к не существующему пока контексту. На противоположной стороне Т-образного перекрестка Егорьевского и Кореневского шоссе запланировано строительство ещё одного жилого комплекса, которое строит бюро «Богачкин и Богачкин». «Мы решили поддержать зелёную линию проекта коллег, – рассказывает Илья Ивлев. – Насколько это было возможно отступили вглубь от шоссе и встали с ними почти в створе». Именно поэтому семиэтажный корпус вдоль Кореневского шоссе получил плавное закругление: на перекрестке должна образоваться небольшая, но полноценная площадь , которая – особенно учитывая невнятность существующего сейчас окружения – имеет все шансы стать центром притяжения для жителей района. Объекты, которые планируется здесь разместить – такие, как супермаркет и поликлиника, – возможно, не слишком романтичны, зато явно необходимы каждому, так что оживленность площади гарантирована, а места под ритейл на первых этажах зданий достаточно, чтобы со временем тут появились и симпатичные кафе, и магазинчики с собственным «лицом». Дальше, по Егорьевскому, уличный фасад до уровня третьего этажа рассечён и обращён к тротуару острыми углами диагонально развернутых пилонов. А в центре площади авторы проекта планируют поставить башню с часами – как на настоящей центральной площади какого-нибудь европейского городка.
 
Жилая застройка в посёлке Красково. Жилой комплекс. Вид со стороны Егорьевского шоссе. Проект, 2016
Жилая застройка в посёлке Красково. Жилой комплекс. Вид со стороны Егорьевского шоссе. Проект, 2016
© АБ Остоженка
Жилая застройка в посёлке Красково. Жилой комплекс. Вид со стороны Егорьевского шоссе. Проект, 2016
Жилая застройка в посёлке Красково. Жилой комплекс. Вид со стороны Егорьевского шоссе. Проект, 2016
© АБ Остоженка
Жилая застройка в посёлке Красково. Жилой комплекс. Вид со стороны школы. Проект, 2016
Жилая застройка в посёлке Красково. Жилой комплекс. Вид со стороны школы. Проект, 2016
© АБ Остоженка
Жилая застройка в посёлке Красково. Надземный многоуровневый паркинг. Проект, 2016 © АБ Остоженка
Жилая застройка в посёлке Красково. Надземный многоуровневый паркинг. Проект, 2016 © АБ Остоженка
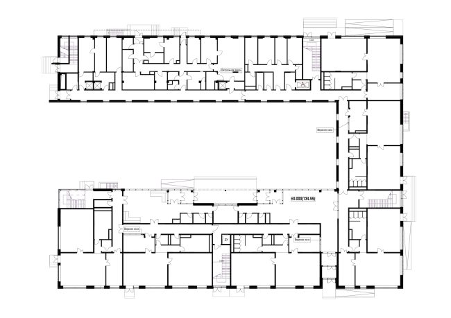
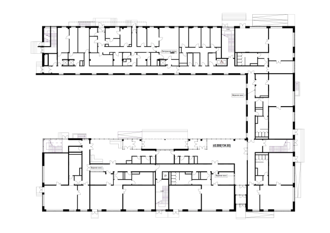
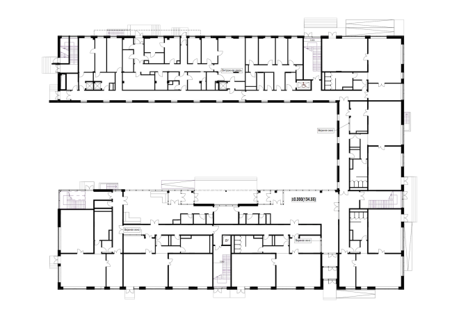
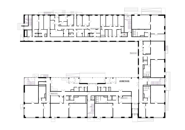
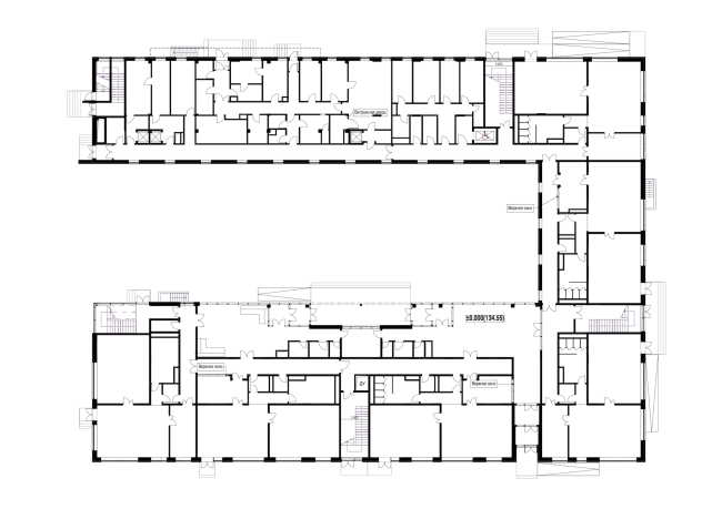
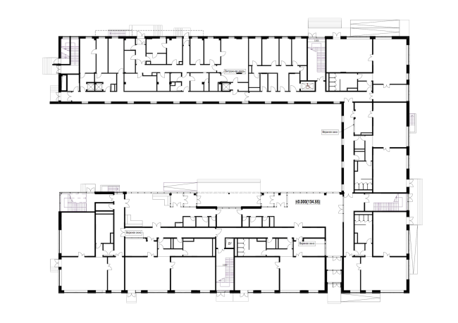
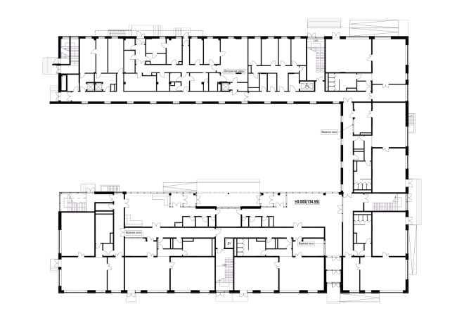
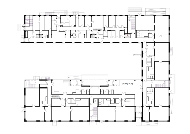
Жилая застройка в посёлке Красково. Жилой комплекс. План 1 этажа © АБ Остоженка
Жилая застройка в посёлке Красково. Жилой комплекс. План 1 этажа © АБ Остоженка
Жилая застройка в посёлке Красково. Жилой комплекс. Разрез © АБ Остоженка
Жилая застройка в посёлке Красково. Жилой комплекс. Разрез © АБ Остоженка
Жилая застройка в посёлке Красково. Жилой комплекс. Разрез © АБ Остоженка
Жилая застройка в посёлке Красково. Жилой комплекс. Разрез © АБ Остоженка
Жилая застройка в посёлке Красково. Школа. План 1 этажа © АБ Остоженка
Жилая застройка в посёлке Красково. Школа. План 1 этажа © АБ Остоженка
Жилая застройка в посёлке Красково. Школа. Разрез © АБ Остоженка
Жилая застройка в посёлке Красково. Школа. Разрез © АБ Остоженка
Жилая застройка в посёлке Красково. ДДУ. План 1 этажа © АБ Остоженка
Жилая застройка в посёлке Красково. ДДУ. План 1 этажа © АБ Остоженка