Размещено на портале Архи.ру (www.archi.ru)

24.06.2016

Гиперболы, параболы, миллиметровка и… матрешки

Анна Старостина
Объект:
Квартал Holland Green
Адрес:
Великобритания, None, Лондон.
Мастерская:
Allies & Morrison
OMA
West 8
Авторский коллектив:

 

 OMA 

Partner in Charge: Reinier de Graaf 

Director: Carol Patterson 

Project Architects: Mario Rodriguez, Isabel Silva, Fenna Wagenaar, Mitesh Dixit, Richard Hollington III, Beth Hughes 

Team: Caroline Andersen, Luis Arencibia, Fred Awty, Ozlem Balicadag, Olga Banchikova, Irina Bardakhanova, Thibaut Barrault, Thorben Bazlen, Rachel Bate, Katrin Betschinger, Philippe Braun, Matthew Brown, Thomas Cartledge, Kees van Casteren, Maria Cogliani, Tudor Costachescu, Johan Dehlin, Ignacio Diaz-Maurino Jimenez, Sebastien Delagrange, Miles Gertler, Hannes Gutberlet, Joyce Hsiang, Iris Hoffman, Owen Jowett, Yerin Kang, Bin Kim, Andrew Kovacs, Ines Kramer, Caroline Martin, Roza Matveeva, Andres Mendoza, Ioana Mititelu, Barbara Modolo, Sophie Nicholau, Ross O’Connell, Adrian Phiffer, Marzia Rastelli, Alex Rodriguez, Duarte Santo, Tom See Hoo, Lawrence Siu, Mike Slade, Ivan Valdez, Boris Vapne, Janina Vetriest, Greg R. Williams, Xu Yang, Delnaz Yekrangian, Nikos Yiatros 

Allies and Morrison 

Partners: Simon Fraser, Robert Maxwell 

Director: Neil Shaughnessy 

Associate Directors: Joel Davenport, Heidi Shah 

Associates: Sean Joyce, Johanna Coste-Buscayret 

Team: Dinka Beglerbegovic, Fabiana Paluszny, Stuart Thomson 

OMA и Allies & Morrison завершили реконструкцию территории Института Содружества в Лондоне.

Квартал Holland Green / Фото: Sebastian van Damme © OMA
Квартал Holland Green / Фото: Sebastian van Damme © OMA

Квартал Holland Green занимает привлекательный участок в Королевском округе Кенсингтон и Челси, между респектабельным Холланд-парком и оживленной Кенсингтон-Хай-стрит. Непростой проект, работа над которым началась еще в 2008 году, состоит из двух частей: реконструкция заброшенного и чуть было не снесенного здания Института Содружества (Robert Matthew, Johnson-Marshall and Partners, 1962 – ныне их фирма известна как RMJM) под нужды Музея дизайна и строительство вокруг него современных жилых корпусов. Общая стоимость проекта составила 120 млн фунтов стерлингов, общее руководство им осуществлял Джон Поусон.
Квартал Holland Green / Фото: Sebastian van Damme © OMA
Квартал Holland Green / Фото: Sebastian van Damme © OMA

Руководимая Рейниром де Графом команда архитекторов предложила прежде всего снести административное крыло института, выявив тем самым основной объем. Собственно, от исторического здания сохранили только эффектную крышу-гипар и несущие конструкции; под них подвели новое основание, скорректировали высоту этажей, старые фасады заменили на новые из энергоэффективных панелей фриттованного стекла, повторив при этом первоначальный рисунок.
Квартал Holland Green / Фото: Nick Gutteridge © Allies and Morisson
Квартал Holland Green / Фото: Nick Gutteridge © Allies and Morisson

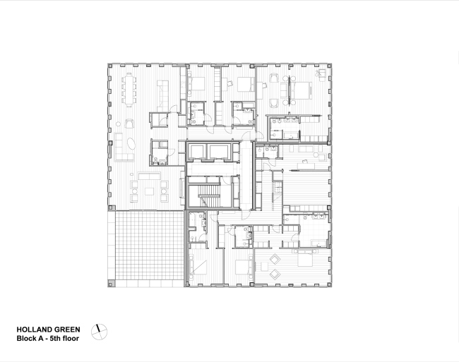
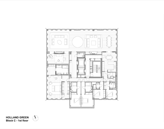
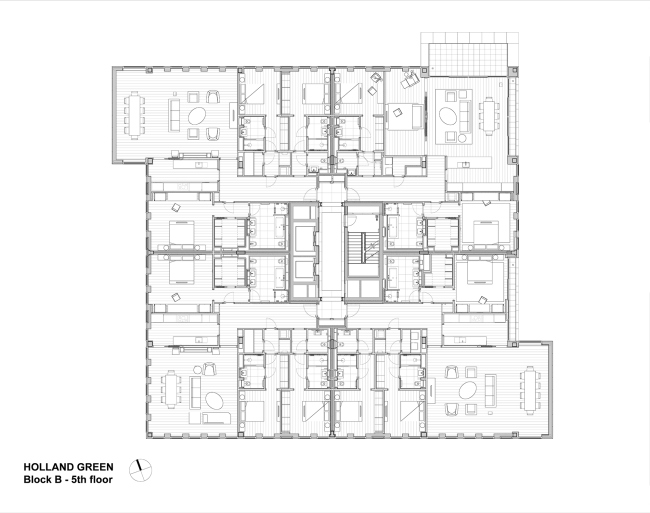
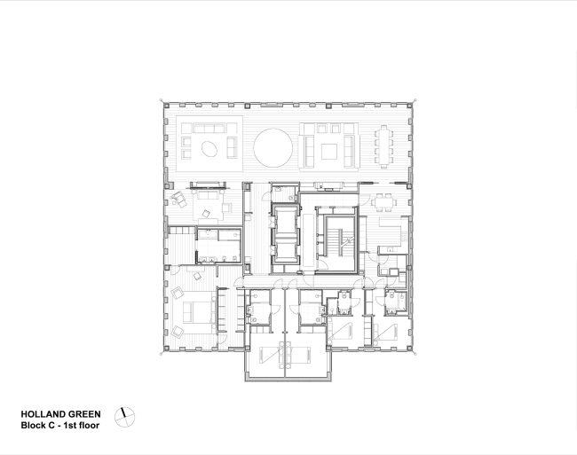
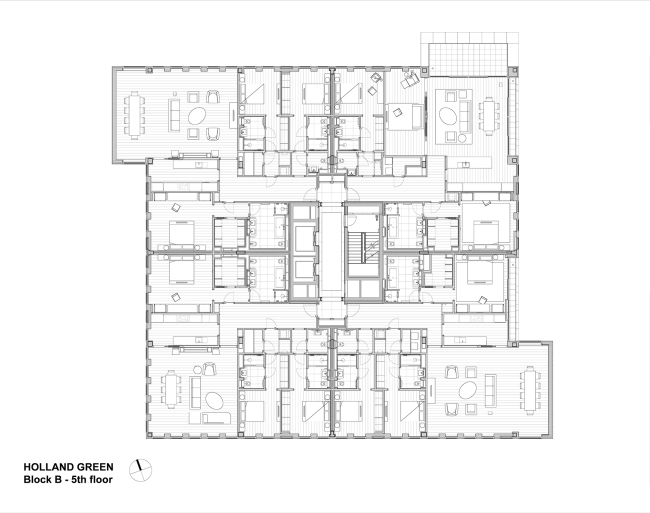
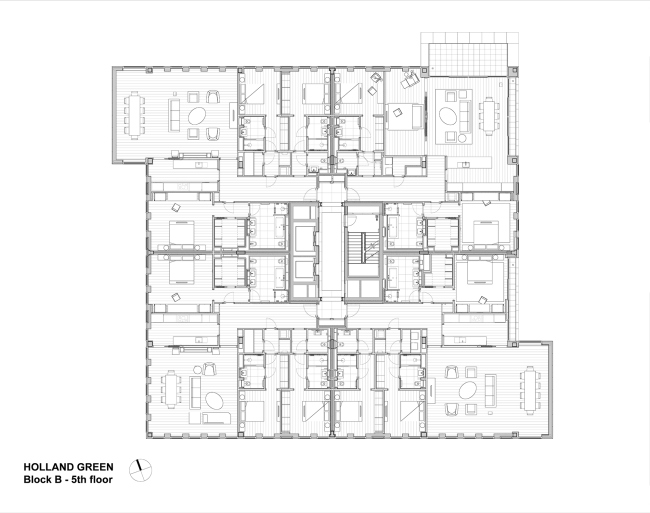
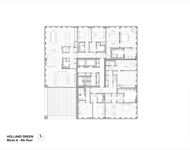
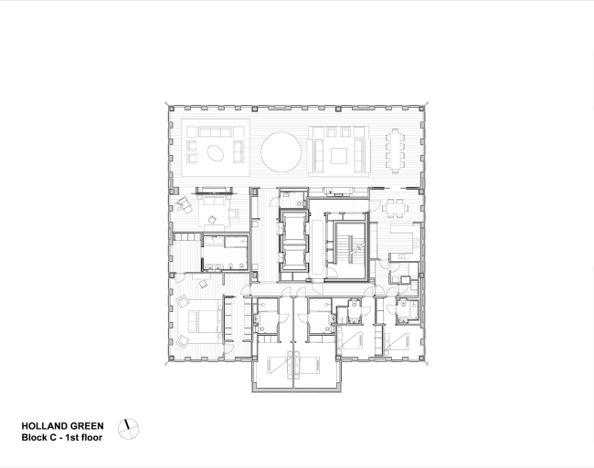
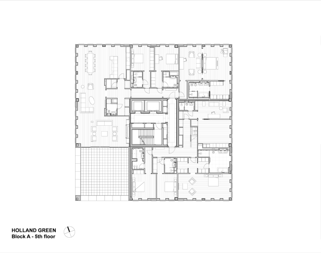
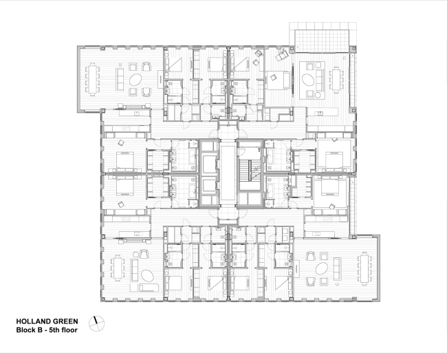
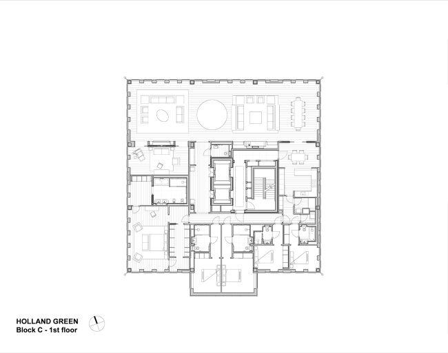
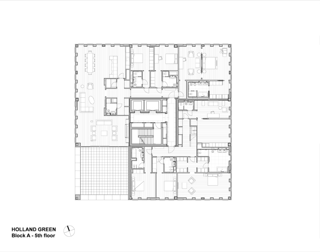
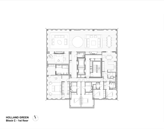
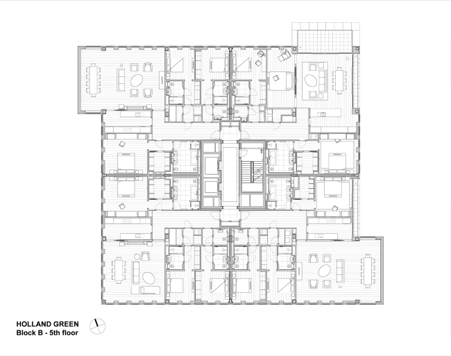
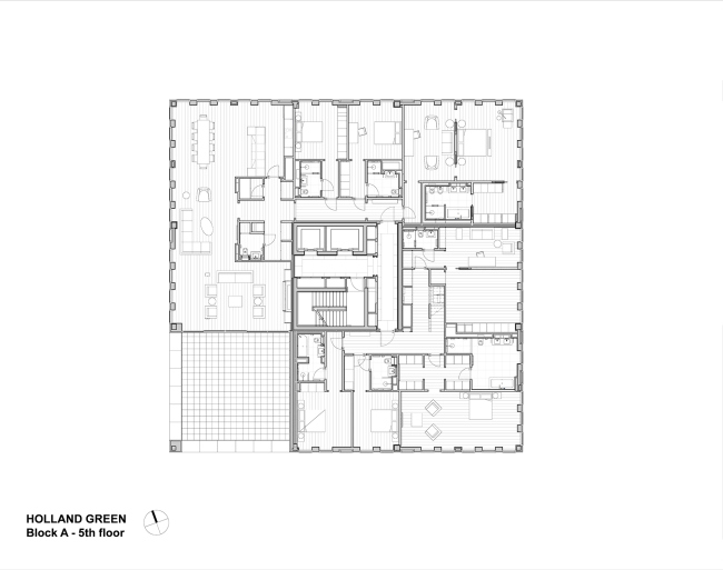
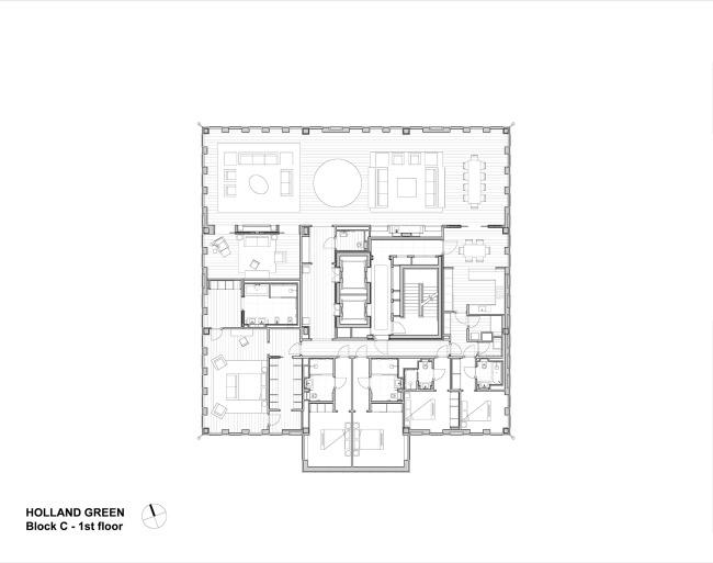
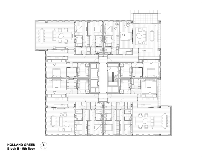
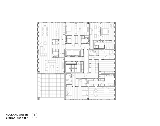
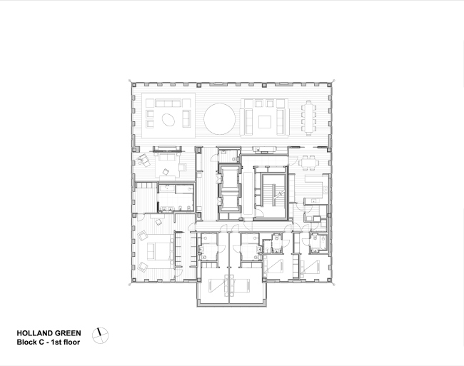
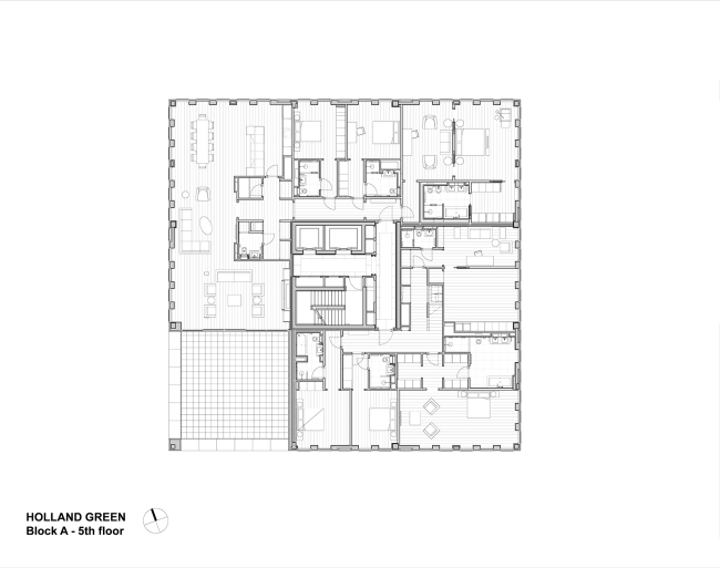
Вокруг существенно обновленного здания расположены три кубообразных корпуса, вмещающие 54 жилых блока площадью от 61 до 1626 м2 каждый. Квадратные в плане, корпуса повторяют положение центрального объема. Более того, архитекторы решились на интересную пространственную игру: все три схожи по форме, но имеют разный размер – тут архитекторы сами напоминают о матрешках – отвечающий габаритам соседних построек. Таким образом, удалось добиться тесного взаимодействия всех объектов и ощущения настоящей целостности квартала.
Квартал Holland Green / Фото: Philip Vile © Chelsfield Developments (Kensington) Ltd.
Квартал Holland Green / Фото: Philip Vile © Chelsfield Developments (Kensington) Ltd.

Облик жилых корпусов во многом определил рисунок фасадов бывшего Института Содружества. Их жесткая «решетка» становится идеальным фоном для сложных линий крыши, по образному выражению архитекторов, «фиксируя изгибы парабол и гипербол как миллиметровая бумага». Но строгая разбивка на вертикальные прямоугольники произвольным образом чередуется с другой сеткой, продиктованной уже конструкцией зданий. Сформированные таким образом выступающие элементы, балконы и открытые террасы еще больше усложняют казалось бы банальные объемы.
Квартал Holland Green / Фото: Nick Gutteridge © Allies and Morisson
Квартал Holland Green / Фото: Nick Gutteridge © Allies and Morisson

Все постройки имеют единое основание, где размещены парковки, места хранения, а также спа-бассейн с верхним светом, тренажерный зал и кинотеатр. Наконец, доступ машин на территорию комплекса максимально ограничен, а вся эта сложная система помещена в природную среду. Ландшафт, которым занималось бюро West 8, с одной стороны, контрастирует со строгой геометрией зданий, а с другой – взаимодействует с соседним парком и помогает теснее вписать комплекс в городскую ткань.
Квартал Holland Green / Фото: Sebastian van Damme © OMA
Квартал Holland Green / Фото: Sebastian van Damme © OMA
Квартал Holland Green / Фото: Sebastian van Damme © OMA
Квартал Holland Green / Фото: Sebastian van Damme © OMA
Квартал Holland Green / Фото: Sebastian van Damme © OMA
Квартал Holland Green / Фото: Sebastian van Damme © OMA
Квартал Holland Green / Фото: Sebastian van Damme © OMA
Квартал Holland Green / Фото: Sebastian van Damme © OMA
Квартал Holland Green / Фото: Nick Gutteridge © Allies and Morisson
Квартал Holland Green / Фото: Nick Gutteridge © Allies and Morisson
Квартал Holland Green / Фото: Hufton+Crow © OMA
Квартал Holland Green / Фото: Hufton+Crow © OMA
Квартал Holland Green / Фото: Nick Gutteridge © Allies and Morisson
Квартал Holland Green / Фото: Nick Gutteridge © Allies and Morisson
Квартал Holland Green / Фото: Nick Gutteridge © Allies and Morisson
Квартал Holland Green / Фото: Nick Gutteridge © Allies and Morisson
Квартал Holland Green / Фото: Nick Gutteridge © Allies and Morisson
Квартал Holland Green / Фото: Nick Gutteridge © Allies and Morisson
Квартал Holland Green / Фото: Hufton+Crow © OMA
Квартал Holland Green / Фото: Hufton+Crow © OMA
Квартал Holland Green / Фото: Philip Vile © Chelsfield Developments (Kensington) Ltd.
Квартал Holland Green / Фото: Philip Vile © Chelsfield Developments (Kensington) Ltd.
Квартал Holland Green / Фото: Philip Vile © Chelsfield Developments (Kensington) Ltd.
Квартал Holland Green / Фото: Philip Vile © Chelsfield Developments (Kensington) Ltd.
Квартал Holland Green / Фото: Sebastian van Damme © OMA
Квартал Holland Green / Фото: Sebastian van Damme © OMA
Квартал Holland Green / Фото: Hufton+Crow © OMA
Квартал Holland Green / Фото: Hufton+Crow © OMA
Квартал Holland Green / Фото: Hufton+Crow © OMA
Квартал Holland Green / Фото: Hufton+Crow © OMA
Квартал Holland Green / Фото: Hufton+Crow © OMA
Квартал Holland Green / Фото: Hufton+Crow © OMA
Квартал Holland Green / Фото: Hufton+Crow © OMA
Квартал Holland Green / Фото: Hufton+Crow © OMA
Квартал Holland Green / Фото: Nick Gutteridge © Allies and Morisson
Квартал Holland Green / Фото: Nick Gutteridge © Allies and Morisson
Квартал Holland Green / Фото: Nick Gutteridge © Allies and Morisson
Квартал Holland Green / Фото: Nick Gutteridge © Allies and Morisson
Квартал Holland Green / Фото: Nick Gutteridge © Allies and Morisson
Квартал Holland Green / Фото: Nick Gutteridge © Allies and Morisson
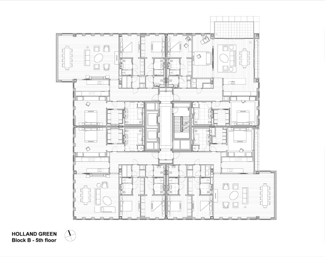
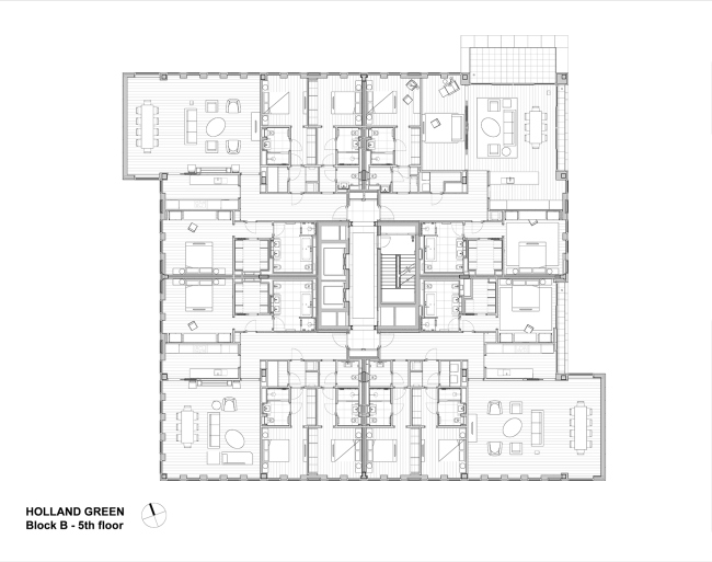
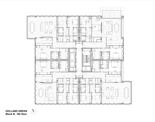
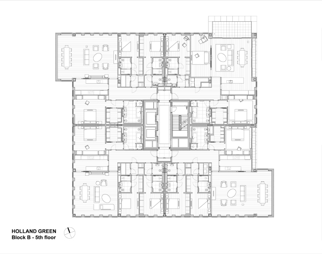
Квартал Holland Green © OMA
Квартал Holland Green © OMA
Квартал Holland Green © OMA
Квартал Holland Green © OMA
Квартал Holland Green © OMA
Квартал Holland Green © OMA
Квартал Holland Green © OMA
Квартал Holland Green © OMA
Квартал Holland Green © OMA
Квартал Holland Green © OMA
Квартал Holland Green © OMA
Квартал Holland Green © OMA
Квартал Holland Green © OMA
Квартал Holland Green © OMA
Квартал Holland Green © OMA
Квартал Holland Green © OMA
Квартал Holland Green © OMA
Квартал Holland Green © OMA