Размещено на портале Архи.ру (www.archi.ru)

13.07.2016

Базовые формы

Анна Сансиева

Лучшие проекты выпускников магистерской студии Евгения и Кирилла Ассов в школе МАРШ.

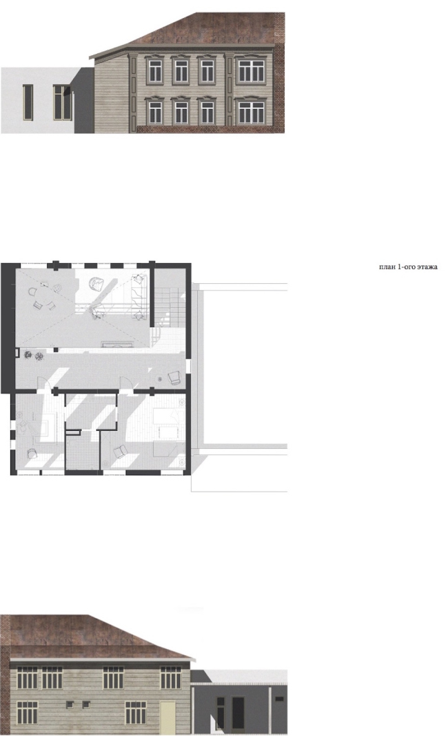
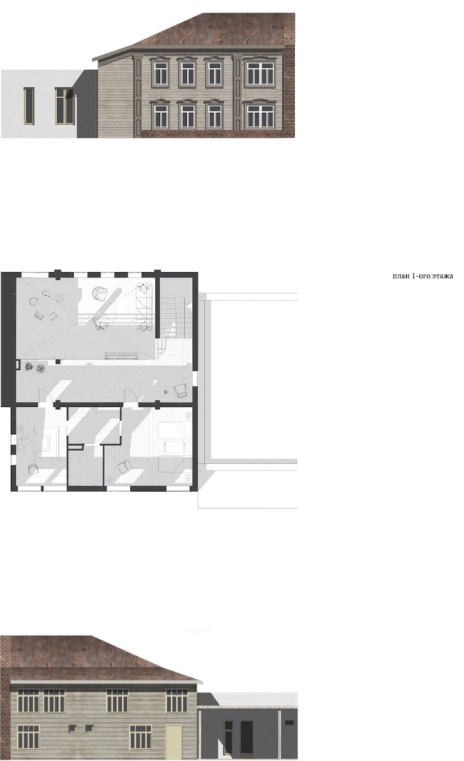
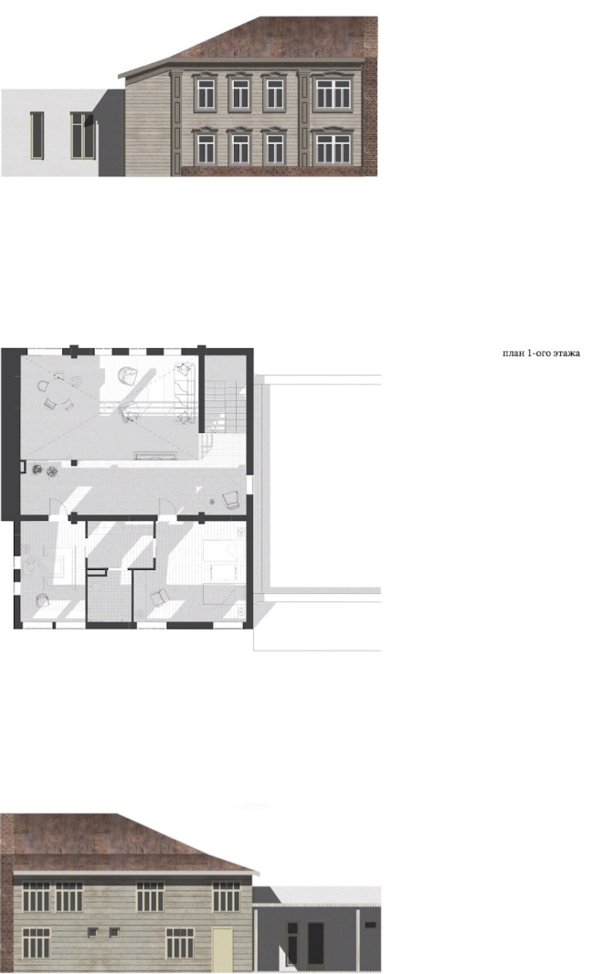
Дипломная работа Дарьи Зайцевой «Городская тюрьма». Руководители: Евгений Асс, Кирилл Асс. Дневной и ночной виды на башню © МАРШ, 2016
Дипломная работа Дарьи Зайцевой «Городская тюрьма». Руководители: Евгений Асс, Кирилл Асс. Дневной и ночной виды на башню © МАРШ, 2016

Смелые проекты магистров МАРШ студии Евгения и Кирилла Ассов вызвали много вопросов и дискуссий у комиссии. Руководители взяли для своей группы действительно неоднозначную тему – «Переосмысление базовых форм». Теоретический анализ стал основой студенческих проектов, преобладая над практикой. Впрочем, такая концепция близка подходу Евгения Асса к архитектуре.

Евгений Асс, 
основатель бюро «Архитекторы Асс»,
ректор МАРШ, 
руководитель дипломных проектов:

«Студия, которой мы руководили с Кириллом Ассом, называлась «Переосмысление базовых форм». Речь шла о выявлении основополагающих форм архитектуры, которые существовали на протяжении всей истории и которые определили как таковую основу всей архитектуры. Мы пытались выявить основной геном архитектуры.

В первую очередь, конечно, мы делали исследования, изучали памятники архитектуры – это как раз и был поиск генома. После длительного исследования разных прототипов и изучения памятников архитектуры мы предложили студентам сделать некий манифест базовой формы, на основании которого они должны были определить типологию будущего здания, его положение и программу.
Дипломная работа Антона Тимофеева «Recreatio. Баскунчак». Руководители: Евгений Асс, Кирилл Асс. Типология и аналоги © МАРШ, 2016
Дипломная работа Антона Тимофеева «Recreatio. Баскунчак». Руководители: Евгений Асс, Кирилл Асс. Типология и аналоги © МАРШ, 2016

Единственное строгое условие, которое мы поставили – объект должен располагаться в родном городе. Так как все студенты у нас из разных городов, получилась довольно интересная география. Каждый искал и определял для себя сам, что есть базовая форма и как она синтезируется в современной культуре. Часто поступали очень противоречивые предложения, но мы были открыты к любому поиску.
Дипломная работа Антона Тимофеева «Recreatio. Баскунчак». Руководители: Евгений Асс, Кирилл Асс. Озеро Баскунчак, ситуация © МАРШ, 2016
Дипломная работа Антона Тимофеева «Recreatio. Баскунчак». Руководители: Евгений Асс, Кирилл Асс. Озеро Баскунчак, ситуация © МАРШ, 2016
Дипломная работа Антона Тимофеева «Recreatio. Баскунчак». Руководители: Евгений Асс, Кирилл Асс. Озеро Баскунчак, ситуация © МАРШ, 2016
Дипломная работа Антона Тимофеева «Recreatio. Баскунчак». Руководители: Евгений Асс, Кирилл Асс. Озеро Баскунчак, ситуация © МАРШ, 2016

Может быть мы дали излишнюю свободу, из-за чего иногда смысловое ядро немного размывалось. Поэтому на защите было много вопросов. В любом случае, это был очень интересный опыт интеллектуальной работы, полезный с точки зрения основополагающих принципов формообразования, приспособленных для конкретных условий и типологий».

Продолжение рассказа руководителя –ниже, после проектов.

Recreatio. Баскунчак
Антон Тимофеев
Дипломная работа Антона Тимофеева «Recreatio. Баскунчак». Руководители: Евгений Асс, Кирилл Асс © МАРШ, 2016
Дипломная работа Антона Тимофеева «Recreatio. Баскунчак». Руководители: Евгений Асс, Кирилл Асс © МАРШ, 2016

Родной город студента – Астрахань. Солёное озеро Баскунчак было выбрано как экстремум природно-климатических условий, характерных для Прикаспийской низменности. Они очерчивают ряд архитектурных задач, связанных с преодолением негативных факторов среды. Здание поставлено на берегу озера, типологически оно балансирует на грани инсталляции. Но функционально это санаторий с жилыми номерами. Поместить внутрь эллиптической конструкции пресноводный бассейн предложил Евгений Асс.
Дипломная работа Антона Тимофеева «Recreatio. Баскунчак». Руководители: Евгений Асс, Кирилл Асс. Перелив © МАРШ, 2016
Дипломная работа Антона Тимофеева «Recreatio. Баскунчак». Руководители: Евгений Асс, Кирилл Асс. Перелив © МАРШ, 2016

Но практическое назначение не столь важно, важнее архитектурные особенности, остро реагирующие на окружающую среду. В описании работы автор постоянно касается темы собственных чувств, аналогий, ассоциаций, вызванных местом. Основу эллиптического в плане здания составляет сложная деревянная конструкция, опоясывающая бассейн и формирующая крытую прогулочную зону. Остальную часть «кольца» постройки, ограниченную большим радиусом, занимают административные помещения, жилые номера, процедурные, кабинеты врачей, обеденный зал. Все размещено на трёх этажах. С технической точки зрения в проекте соблюдены все правила, связанные с использованием водных резервуаров в архитектуре.
Дипломная работа Антона Тимофеева «Recreatio. Баскунчак». Руководители: Евгений Асс, Кирилл Асс. Форма и конструкция © МАРШ, 2016
Дипломная работа Антона Тимофеева «Recreatio. Баскунчак». Руководители: Евгений Асс, Кирилл Асс. Форма и конструкция © МАРШ, 2016
Дипломная работа Антона Тимофеева «Recreatio. Баскунчак». Руководители: Евгений Асс, Кирилл Асс. Форма и конструкция © МАРШ, 2016
Дипломная работа Антона Тимофеева «Recreatio. Баскунчак». Руководители: Евгений Асс, Кирилл Асс. Форма и конструкция © МАРШ, 2016
Дипломная работа Антона Тимофеева «Recreatio. Баскунчак». Руководители: Евгений Асс, Кирилл Асс. Конструкция © МАРШ, 2016
Дипломная работа Антона Тимофеева «Recreatio. Баскунчак». Руководители: Евгений Асс, Кирилл Асс. Конструкция © МАРШ, 2016
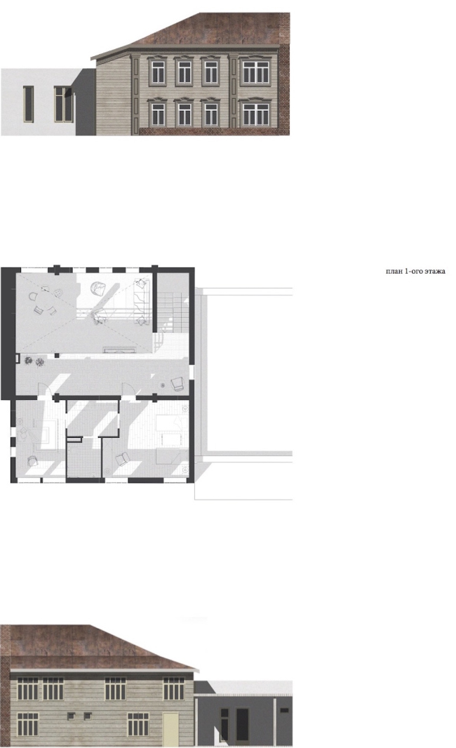
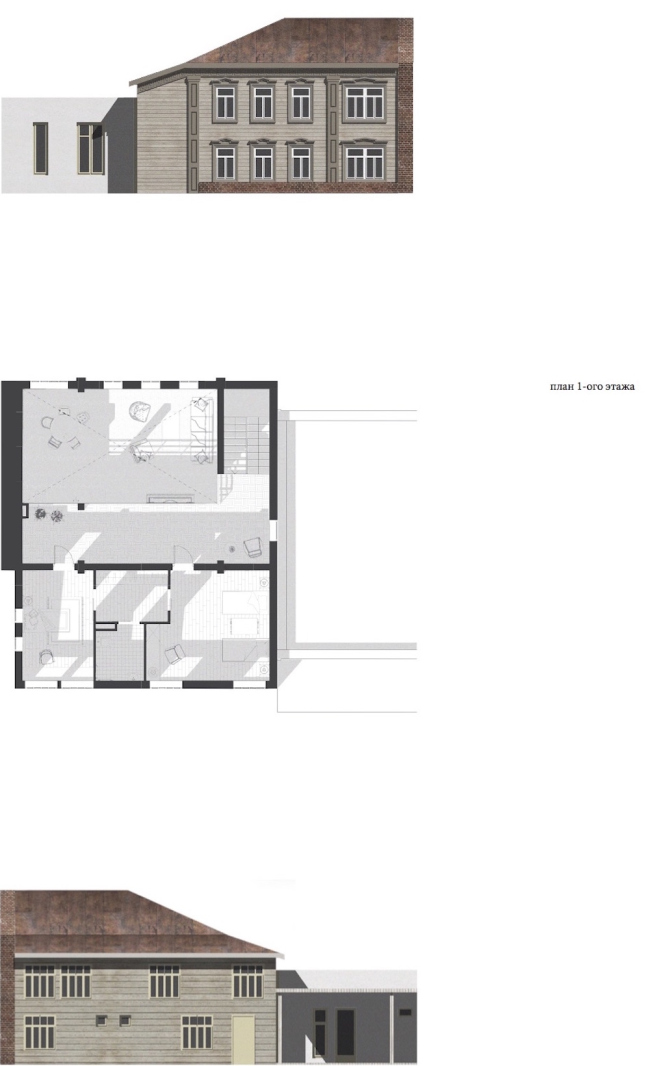
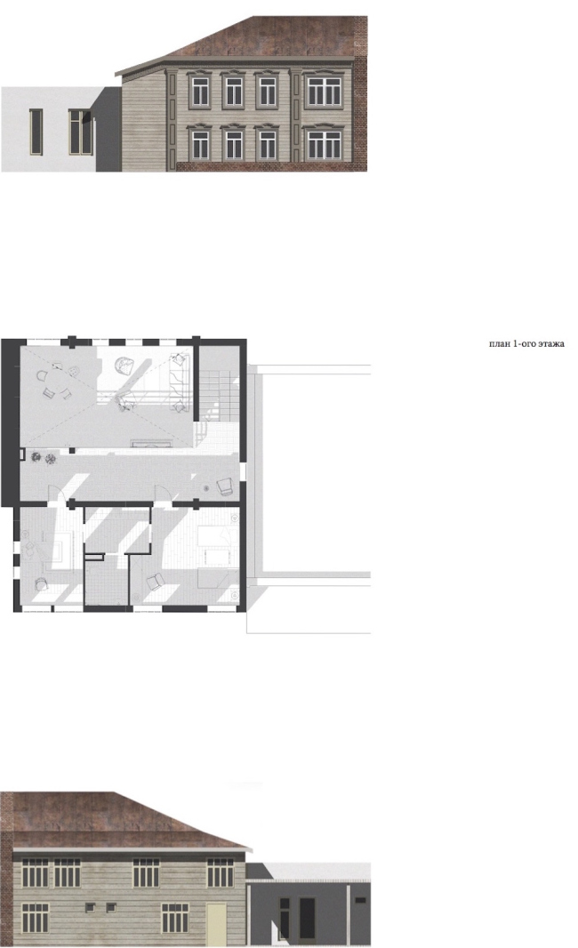
Дипломная работа Антона Тимофеева «Recreatio. Баскунчак». Руководители: Евгений Асс, Кирилл Асс. План и функциональные схемы по этажам © МАРШ, 2016
Дипломная работа Антона Тимофеева «Recreatio. Баскунчак». Руководители: Евгений Асс, Кирилл Асс. План и функциональные схемы по этажам © МАРШ, 2016

Антон Тимофеев:
«Начальная интенция моего проекта – разнообразие и уникальность. И если в начале проекта я констатировал уникальность и самодостаточную наполненность каждой точки Земли, пытаясь проиллюстрировать этот тезис своим проектом, то в финале я стал обнаруживать всё более сложные взаимоотношения разнообразия (уникальности) и единства (общности). Осмысление этих отношений мне кажется важным для современной архитектуры, поскольку глобализированная архитектурная сцена подчас теряет фокус внимания к локальным особенностям, тогда как становятся всё более очевидными и возможность, и необходимость более тщательной работы с ними».
Дипломная работа Антона Тимофеева «Recreatio. Баскунчак». Руководители: Евгений Асс, Кирилл Асс © МАРШ, 2016
Дипломная работа Антона Тимофеева «Recreatio. Баскунчак». Руководители: Евгений Асс, Кирилл Асс © МАРШ, 2016
Дипломная работа Антона Тимофеева «Recreatio. Баскунчак». Руководители: Евгений Асс, Кирилл Асс. Озеро Баскунчак, ситуация © МАРШ, 2016
Дипломная работа Антона Тимофеева «Recreatio. Баскунчак». Руководители: Евгений Асс, Кирилл Асс. Озеро Баскунчак, ситуация © МАРШ, 2016
Дипломная работа Антона Тимофеева «Recreatio. Баскунчак». Руководители: Евгений Асс, Кирилл Асс. Озеро Баскунчак, ситуация © МАРШ, 2016
Дипломная работа Антона Тимофеева «Recreatio. Баскунчак». Руководители: Евгений Асс, Кирилл Асс. Озеро Баскунчак, ситуация © МАРШ, 2016
Дипломная работа Антона Тимофеева «Recreatio. Баскунчак». Руководители: Евгений Асс, Кирилл Асс. Озеро Баскунчак, ситуация © МАРШ, 2016
Дипломная работа Антона Тимофеева «Recreatio. Баскунчак». Руководители: Евгений Асс, Кирилл Асс. Озеро Баскунчак, ситуация © МАРШ, 2016
Дипломная работа Антона Тимофеева «Recreatio. Баскунчак». Руководители: Евгений Асс, Кирилл Асс. Анализ территории и климата © МАРШ, 2016
Дипломная работа Антона Тимофеева «Recreatio. Баскунчак». Руководители: Евгений Асс, Кирилл Асс. Анализ территории и климата © МАРШ, 2016
Дипломная работа Антона Тимофеева «Recreatio. Баскунчак». Руководители: Евгений Асс, Кирилл Асс. Программирование территории © МАРШ, 2016
Дипломная работа Антона Тимофеева «Recreatio. Баскунчак». Руководители: Евгений Асс, Кирилл Асс. Программирование территории © МАРШ, 2016
Дипломная работа Антона Тимофеева «Recreatio. Баскунчак». Руководители: Евгений Асс, Кирилл Асс. Поиск места © МАРШ, 2016
Дипломная работа Антона Тимофеева «Recreatio. Баскунчак». Руководители: Евгений Асс, Кирилл Асс. Поиск места © МАРШ, 2016
Дипломная работа Антона Тимофеева «Recreatio. Баскунчак». Руководители: Евгений Асс, Кирилл Асс. Генезис формы © МАРШ, 2016
Дипломная работа Антона Тимофеева «Recreatio. Баскунчак». Руководители: Евгений Асс, Кирилл Асс. Генезис формы © МАРШ, 2016
Дипломная работа Антона Тимофеева «Recreatio. Баскунчак». Руководители: Евгений Асс, Кирилл Асс. Форма © МАРШ, 2016
Дипломная работа Антона Тимофеева «Recreatio. Баскунчак». Руководители: Евгений Асс, Кирилл Асс. Форма © МАРШ, 2016
Дипломная работа Антона Тимофеева «Recreatio. Баскунчак». Руководители: Евгений Асс, Кирилл Асс. Конструкция © МАРШ, 2016
Дипломная работа Антона Тимофеева «Recreatio. Баскунчак». Руководители: Евгений Асс, Кирилл Асс. Конструкция © МАРШ, 2016
Дипломная работа Антона Тимофеева «Recreatio. Баскунчак». Руководители: Евгений Асс, Кирилл Асс. Генеральный план © МАРШ, 2016
Дипломная работа Антона Тимофеева «Recreatio. Баскунчак». Руководители: Евгений Асс, Кирилл Асс. Генеральный план © МАРШ, 2016
Дипломная работа Антона Тимофеева «Recreatio. Баскунчак». Руководители: Евгений Асс, Кирилл Асс. План © МАРШ, 2016
Дипломная работа Антона Тимофеева «Recreatio. Баскунчак». Руководители: Евгений Асс, Кирилл Асс. План © МАРШ, 2016
Дипломная работа Антона Тимофеева «Recreatio. Баскунчак». Руководители: Евгений Асс, Кирилл Асс. Разрез © МАРШ, 2016
Дипломная работа Антона Тимофеева «Recreatio. Баскунчак». Руководители: Евгений Асс, Кирилл Асс. Разрез © МАРШ, 2016
Дипломная работа Антона Тимофеева «Recreatio. Баскунчак». Руководители: Евгений Асс, Кирилл Асс. Фасады © МАРШ, 2016
Дипломная работа Антона Тимофеева «Recreatio. Баскунчак». Руководители: Евгений Асс, Кирилл Асс. Фасады © МАРШ, 2016
Дипломная работа Антона Тимофеева «Recreatio. Баскунчак». Руководители: Евгений Асс, Кирилл Асс. Фасады © МАРШ, 2016
Дипломная работа Антона Тимофеева «Recreatio. Баскунчак». Руководители: Евгений Асс, Кирилл Асс. Фасады © МАРШ, 2016
Дипломная работа Антона Тимофеева «Recreatio. Баскунчак». Руководители: Евгений Асс, Кирилл Асс. Интерьер, план и фрагмет конструкции © МАРШ, 2016
Дипломная работа Антона Тимофеева «Recreatio. Баскунчак». Руководители: Евгений Асс, Кирилл Асс. Интерьер, план и фрагмет конструкции © МАРШ, 2016
Дипломная работа Антона Тимофеева «Recreatio. Баскунчак». Руководители: Евгений Асс, Кирилл Асс © МАРШ, 2016
Дипломная работа Антона Тимофеева «Recreatio. Баскунчак». Руководители: Евгений Асс, Кирилл Асс © МАРШ, 2016
Дипломная работа Антона Тимофеева «Recreatio. Баскунчак». Руководители: Евгений Асс, Кирилл Асс © МАРШ, 2016
Дипломная работа Антона Тимофеева «Recreatio. Баскунчак». Руководители: Евгений Асс, Кирилл Асс © МАРШ, 2016

Проект Антона Тимофеев получил премию The CASS и в следующем году будет отправлен на выставку в Лондон. 
***
 
Московский некрополь
Андрей Фомичев
Дипломная работа Андрея Фомичева «Московский некрополь». Руководители: Евгений Асс, Кирилл Асс. Разрез © МАРШ, 2016
Дипломная работа Андрея Фомичева «Московский некрополь». Руководители: Евгений Асс, Кирилл Асс. Разрез © МАРШ, 2016

Некоторые темы, выбранные студентами, Евгений Асс назвал провокационными. К числу таких относится разработка нового кладбища в Москве. Проанализировав городскую ситуацию, автор проекта высказал предположение, что Москве необходимо иное место захоронения, которое можно было разместить на минимальной площади. При этом площадь земли, сэкономленной за счет новой типологии одного колумбария, соответствует 1-2 кмтрадиционного кладбища.

Автор проекта предлагает возводить на территории Москвы, а не за пределами МКАД, как это принято сейчас, локальные кладбища с крематорием. Корни идеи – в социологии: человек, живший в городе, должен быть похоронен в нём, а не за его пределами.
Дипломная работа Андрей Фомичев «Московский некрополь». Руководители: Евгений Асс, Кирилл Асс © МАРШ, 2016
Дипломная работа Андрей Фомичев «Московский некрополь». Руководители: Евгений Асс, Кирилл Асс © МАРШ, 2016

Андрей Фомичев: 
«Я считаю необходимым возрождение локальных кладбищ в Москве. Это могло бы стать частью политики децентрализации города, ведь большие загородные кладбища также являются глобальными центрами, расположенными за пределами города. В итоге люди, живущие между центром и границей города лишены любых своих «центров», будь то работа, развлечения, учёба или же кладбище. И кладбище в данном случае является не менее важным звеном для личной самоидентификации, чем рабочее место или объекты культурного и общественного назначения. Кладбище в городе генерирует взаимоотношение человека и места, вне зависимости от частоты его посещения. Потому я считаю неверным вынос кладбищ за черту города особенно в таком мегаполисе, как Москва. Кроме того проблемы санитарного характера не касаются захоронений праха».
Дипломная работа Андрея Фомичев «Московский некрополь». Руководители: Евгений Асс, Кирилл Асс. Идеология © МАРШ, 2016
Дипломная работа Андрея Фомичев «Московский некрополь». Руководители: Евгений Асс, Кирилл Асс. Идеология © МАРШ, 2016
Дипломная работа Андрея Фомичева «Московский некрополь». Руководители: Евгений Асс, Кирилл Асс. Идеология © МАРШ, 2016
Дипломная работа Андрея Фомичева «Московский некрополь». Руководители: Евгений Асс, Кирилл Асс. Идеология © МАРШ, 2016
Дипломная работа Андрея Фомичева «Московский некрополь». Руководители: Евгений Асс, Кирилл Асс. Разрез © МАРШ, 2016
Дипломная работа Андрея Фомичева «Московский некрополь». Руководители: Евгений Асс, Кирилл Асс. Разрез © МАРШ, 2016
Дипломная работа Андрея Фомичева «Московский некрополь». Руководители: Евгений Асс, Кирилл Асс. Разрез © МАРШ, 2016
Дипломная работа Андрея Фомичева «Московский некрополь». Руководители: Евгений Асс, Кирилл Асс. Разрез © МАРШ, 2016
Дипломная работа Андрея Фомичева «Московский некрополь». Руководители: Евгений Асс, Кирилл Асс. Разрез © МАРШ, 2016
Дипломная работа Андрея Фомичева «Московский некрополь». Руководители: Евгений Асс, Кирилл Асс. Разрез © МАРШ, 2016
Дипломная работа Андрея Фомичева «Московский некрополь». Руководители: Евгений Асс, Кирилл Асс. Фрагмент кровли © МАРШ, 2016
Дипломная работа Андрея Фомичева «Московский некрополь». Руководители: Евгений Асс, Кирилл Асс. Фрагмент кровли © МАРШ, 2016
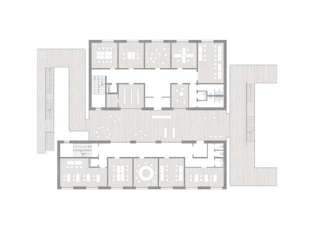
Дипломная работа Андрея Фомичева «Московский некрополь». Руководители: Евгений Асс, Кирилл Асс. Планы этажей © МАРШ, 2016
Дипломная работа Андрея Фомичева «Московский некрополь». Руководители: Евгений Асс, Кирилл Асс. Планы этажей © МАРШ, 2016
Дипломная работа Андрея Фомичева «Московский некрополь». Руководители: Евгений Асс, Кирилл Асс. Разрез © МАРШ, 2016
Дипломная работа Андрея Фомичева «Московский некрополь». Руководители: Евгений Асс, Кирилл Асс. Разрез © МАРШ, 2016
Дипломная работа Андрея Фомичева «Московский некрополь». Руководители: Евгений Асс, Кирилл Асс. Разрез © МАРШ, 2016
Дипломная работа Андрея Фомичева «Московский некрополь». Руководители: Евгений Асс, Кирилл Асс. Разрез © МАРШ, 2016
***
 
Городская тюрьма
​Дарья Зайцева
Дипломная работа Дарьи Зайцевой «Городская тюрьма». Руководители: Евгений Асс, Кирилл Асс. Макет © МАРШ, 2016
Дипломная работа Дарьи Зайцевой «Городская тюрьма». Руководители: Евгений Асс, Кирилл Асс. Макет © МАРШ, 2016

Другой провокационный проект студии – тюрьма в центре города. Автор работы видит в таком решении воспитательную функцию.

Дарья Зайцева:
«Система наказания через заключение не только физически ограничивает свободу, но и уничтожает достоинство личности, по сути, полностью вычёркивает человека из общества и не даёт ему возможности вернуться. На мой взгляд, тюрьма должна ограничивать свободу, но не вычеркивать человека из социума. Поэтому я создаю тюрьму, не изолированную от общества и города. Архитектура должна отражать свою функцию, поэтому я проектирую «дом заключения» в виде башни-небоскрёба. ​Заключенные попадают в здание через нижний уровень, где осуществляется проверка. Далее, они поднимаются на уровень, соответствующий их заключению. При выходе из тюрьмы человек снова спускается на нижний уровень. Это олицетворяет путь внутри здания, который проходят заключенные от начала пребывания до свободы. Очень важным является контраст – «несвобода» поднята над землей; возвращение в общество –возвращение в город. Однако все входы и выходы находятся не на уровне земли, это и есть высшая степень наказания. Свободные люди в городе имеют возможность подойти к зданию, потрогать, почувствовать его, обойти вокруг, убедится, что ни входа, ни выхода нет. Вертикальная тюрьма символически возвышается в городе. Это часть культуры мегаполиса, столь же важная, как банк, офис, больница или любая другая институция, работающая на город».
Дипломная работа Дарьи Зайцевой «Городская тюрьма». Руководители: Евгений Асс, Кирилл Асс. Путь для привоза заключенных и вид на прогулочную территорию © МАРШ, 2016
Дипломная работа Дарьи Зайцевой «Городская тюрьма». Руководители: Евгений Асс, Кирилл Асс. Путь для привоза заключенных и вид на прогулочную территорию © МАРШ, 2016
Дипломная работа Дарьи Зайцевой «Городская тюрьма». Руководители: Евгений Асс, Кирилл Асс. Вид на прогулочную территорию © МАРШ, 2016
Дипломная работа Дарьи Зайцевой «Городская тюрьма». Руководители: Евгений Асс, Кирилл Асс. Вид на прогулочную территорию © МАРШ, 2016
Дипломная работа Дарьи Зайцевой «Городская тюрьма». Руководители: Евгений Асс, Кирилл Асс. Фотомонтаж © МАРШ, 2016
Дипломная работа Дарьи Зайцевой «Городская тюрьма». Руководители: Евгений Асс, Кирилл Асс. Фотомонтаж © МАРШ, 2016

Основой здания служит стволовая консольная конструкция с тремя несущими осями, расположенными по периметру. Материал – железобетон, прочный благодаря большому весу и огнестойкий. Дополнительную устойчивость сооружению придадут арматурные стяжки вокруг несущих стволов.
Дипломная работа Дарьи Зайцевой «Городская тюрьма». Руководители: Евгений Асс, Кирилл Асс. Макет, варианты завершения башни © МАРШ, 2016
Дипломная работа Дарьи Зайцевой «Городская тюрьма». Руководители: Евгений Асс, Кирилл Асс. Макет, варианты завершения башни © МАРШ, 2016
Дипломная работа Дарьи Зайцевой «Городская тюрьма». Руководители: Евгений Асс, Кирилл Асс. Развертка фасада © МАРШ, 2016
Дипломная работа Дарьи Зайцевой «Городская тюрьма». Руководители: Евгений Асс, Кирилл Асс. Развертка фасада © МАРШ, 2016
Дипломная работа Дарьи Зайцевой «Городская тюрьма». Руководители: Евгений Асс, Кирилл Асс. Ночной вид на башню © МАРШ, 2016
Дипломная работа Дарьи Зайцевой «Городская тюрьма». Руководители: Евгений Асс, Кирилл Асс. Ночной вид на башню © МАРШ, 2016
Дипломная работа Дарьи Зайцевой «Городская тюрьма». Руководители: Евгений Асс, Кирилл Асс. Проемы на фасаде © МАРШ, 2016
Дипломная работа Дарьи Зайцевой «Городская тюрьма». Руководители: Евгений Асс, Кирилл Асс. Проемы на фасаде © МАРШ, 2016
Дипломная работа Дарьи Зайцевой «Городская тюрьма». Руководители: Евгений Асс, Кирилл Асс. Фасад, разрез, модули и пандусы © МАРШ, 2016
Дипломная работа Дарьи Зайцевой «Городская тюрьма». Руководители: Евгений Асс, Кирилл Асс. Фасад, разрез, модули и пандусы © МАРШ, 2016
Дипломная работа Дарьи Зайцевой «Городская тюрьма». Руководители: Евгений Асс, Кирилл Асс. Фундамент © МАРШ, 2016
Дипломная работа Дарьи Зайцевой «Городская тюрьма». Руководители: Евгений Асс, Кирилл Асс. Фундамент © МАРШ, 2016
Дипломная работа Дарьи Зайцевой «Городская тюрьма». Руководители: Евгений Асс, Кирилл Асс. Схема © МАРШ, 2016
Дипломная работа Дарьи Зайцевой «Городская тюрьма». Руководители: Евгений Асс, Кирилл Асс. Схема © МАРШ, 2016
Дипломная работа Дарьи Зайцевой «Городская тюрьма». Руководители: Евгений Асс, Кирилл Асс. Камеры © МАРШ, 2016
Дипломная работа Дарьи Зайцевой «Городская тюрьма». Руководители: Евгений Асс, Кирилл Асс. Камеры © МАРШ, 2016
Дипломная работа Дарьи Зайцевой «Городская тюрьма». Руководители: Евгений Асс, Кирилл Асс. Ночной вид на башню © МАРШ, 2016
Дипломная работа Дарьи Зайцевой «Городская тюрьма». Руководители: Евгений Асс, Кирилл Асс. Ночной вид на башню © МАРШ, 2016
Дипломная работа Дарьи Зайцевой «Городская тюрьма». Руководители: Евгений Асс, Кирилл Асс. Модули © МАРШ, 2016
Дипломная работа Дарьи Зайцевой «Городская тюрьма». Руководители: Евгений Асс, Кирилл Асс. Модули © МАРШ, 2016
Дипломная работа Дарьи Зайцевой «Городская тюрьма». Руководители: Евгений Асс, Кирилл Асс. Схема модулей © МАРШ, 2016
Дипломная работа Дарьи Зайцевой «Городская тюрьма». Руководители: Евгений Асс, Кирилл Асс. Схема модулей © МАРШ, 2016
Дипломная работа Дарьи Зайцевой «Городская тюрьма». Руководители: Евгений Асс, Кирилл Асс. Фрагменты фасада © МАРШ, 2016
Дипломная работа Дарьи Зайцевой «Городская тюрьма». Руководители: Евгений Асс, Кирилл Асс. Фрагменты фасада © МАРШ, 2016
Дипломная работа Дарьи Зайцевой «Городская тюрьма». Руководители: Евгений Асс, Кирилл Асс © МАРШ, 2016
Дипломная работа Дарьи Зайцевой «Городская тюрьма». Руководители: Евгений Асс, Кирилл Асс © МАРШ, 2016
***
 
Университет в Череповце
Григорий Цебренко
Дипломная работа Григория Цебренко «Университет в Череповце». Руководители: Евгений Асс, Кирилл Асс. Макет © МАРШ, 2016
Дипломная работа Григория Цебренко «Университет в Череповце». Руководители: Евгений Асс, Кирилл Асс. Макет © МАРШ, 2016

Григорий Цебренко:
«Задача состояла в переосмыслении протяжённости как одной из базовых форм. Расположение в ней университета накладывает на структуру формы свои принципы внутренней организации, связанной с проблемами образования и коммуникации. В итоге университетское здание есть последовательность из двенадцати автономных учебных блоков, связанных между собой открытыми деревянными переходами. Вдоль набережной – главного городского променада – возникает кампус, претендующий на то, чтобы стать одним из ключевых сооружений в Череповце, открытым и проницаемым».
Дипломная работа Григория Цебренко «Университет в Череповце». Руководители: Евгений Асс, Кирилл Асс. Схема: деревянные каркасы – общесивенные места, бетонные части – учебные © МАРШ, 2016
Дипломная работа Григория Цебренко «Университет в Череповце». Руководители: Евгений Асс, Кирилл Асс. Схема: деревянные каркасы – общесивенные места, бетонные части – учебные © МАРШ, 2016
Дипломная работа Григория Цебренко «Университет в Череповце». Руководители: Евгений Асс, Кирилл Асс © МАРШ, 2016
Дипломная работа Григория Цебренко «Университет в Череповце». Руководители: Евгений Асс, Кирилл Асс © МАРШ, 2016
Дипломная работа Григория Цебренко «Университет в Череповце». Руководители: Евгений Асс, Кирилл Асс © МАРШ, 2016
Дипломная работа Григория Цебренко «Университет в Череповце». Руководители: Евгений Асс, Кирилл Асс © МАРШ, 2016
Дипломная работа Григория Цебренко «Университет в Череповце». Руководители: Евгений Асс, Кирилл Асс © МАРШ, 2016
Дипломная работа Григория Цебренко «Университет в Череповце». Руководители: Евгений Асс, Кирилл Асс © МАРШ, 2016
Дипломная работа Григория Цебренко «Университет в Череповце». Руководители: Евгений Асс, Кирилл Асс. Внутренний двор © МАРШ, 2016
Дипломная работа Григория Цебренко «Университет в Череповце». Руководители: Евгений Асс, Кирилл Асс. Внутренний двор © МАРШ, 2016
Дипломная работа Григория Цебренко «Университет в Череповце». Руководители: Евгений Асс, Кирилл Асс. Комната для занятий © МАРШ, 2016
Дипломная работа Григория Цебренко «Университет в Череповце». Руководители: Евгений Асс, Кирилл Асс. Комната для занятий © МАРШ, 2016
Дипломная работа Григория Цебренко «Университет в Череповце». Руководители: Евгений Асс, Кирилл Асс. Разрез учебной части © МАРШ, 2016
Дипломная работа Григория Цебренко «Университет в Череповце». Руководители: Евгений Асс, Кирилл Асс. Разрез учебной части © МАРШ, 2016
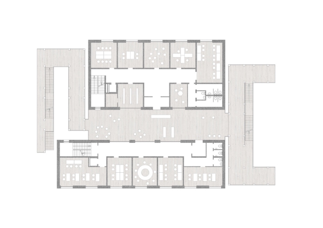
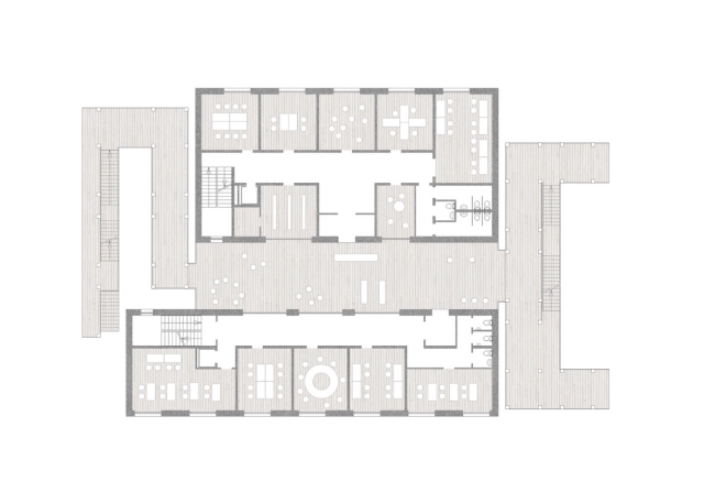
Дипломная работа Григория Цебренко «Университет в Череповце». Руководители: Евгений Асс, Кирилл Асс. План учебной части © МАРШ, 2016
Дипломная работа Григория Цебренко «Университет в Череповце». Руководители: Евгений Асс, Кирилл Асс. План учебной части © МАРШ, 2016
Дипломная работа Григория Цебренко «Университет в Череповце». Руководители: Евгений Асс, Кирилл Асс. Фасад и планы © МАРШ, 2016
Дипломная работа Григория Цебренко «Университет в Череповце». Руководители: Евгений Асс, Кирилл Асс. Фасад и планы © МАРШ, 2016
Дипломная работа Григория Цебренко «Университет в Череповце». Руководители: Евгений Асс, Кирилл Асс. Фрагмент фасада: тип первый © МАРШ, 2016
Дипломная работа Григория Цебренко «Университет в Череповце». Руководители: Евгений Асс, Кирилл Асс. Фрагмент фасада: тип первый © МАРШ, 2016
Дипломная работа Григория Цебренко «Университет в Череповце». Руководители: Евгений Асс, Кирилл Асс. Фрагмент фасада: тип второй © МАРШ, 2016
Дипломная работа Григория Цебренко «Университет в Череповце». Руководители: Евгений Асс, Кирилл Асс. Фрагмент фасада: тип второй © МАРШ, 2016
Дипломная работа Григория Цебренко «Университет в Череповце». Руководители: Евгений Асс, Кирилл Асс. Фрагмент фасада: тип третий © МАРШ, 2016
Дипломная работа Григория Цебренко «Университет в Череповце». Руководители: Евгений Асс, Кирилл Асс. Фрагмент фасада: тип третий © МАРШ, 2016
Дипломная работа Григория Цебренко «Университет в Череповце». Руководители: Евгений Асс, Кирилл Асс. Генеральный план © МАРШ, 2016
Дипломная работа Григория Цебренко «Университет в Череповце». Руководители: Евгений Асс, Кирилл Асс. Генеральный план © МАРШ, 2016
***
 
Дом престарелых в Казани
Дарья Герасимова
Дипломная работа Дарьи Герасимовой «Дом престарелых в Казани». Руководители: Евгений Асс, Кирилл Асс. Макет © МАРШ, 2016
Дипломная работа Дарьи Герасимовой «Дом престарелых в Казани». Руководители: Евгений Асс, Кирилл Асс. Макет © МАРШ, 2016

Дарья Герасимова:
«Я рассматриваю в качестве «базового» понятия старость – как форму существования. Определение локации для объекта в центре города Казани повлекло за собой решение двух других проблем: градостроительной с особенностями квартальной структуры и культурной – пересмотр отношения в городе к исторической деревянной застройке. То есть поиск альтернатив, исключающих снос этих построек. Результатом стал проект городского дома для престарелых, часть резидентов которого способны вести активную жизнь. Проектом предполагается возведение одно- и двухэтажных домов на основе сохраненных деревянных сооружений. Все здания различны по типологии, но связанны между собой. Резиденты, таким образом, получают возможность взаимодействовать с местными жителями благодаря включению в комплекс дома престарелых многофункционального общественного центра и дополнительных сервисов, актуальных для горожан. Те резиденты, которым необходим стационарный уход, размещаются в отдельном здании с полноценным медицинским оснащением. Во внутренней части квартала возникает городской парк с небольшим прудом, связывающий дом престарелых с имеющимся на участке детским садом. Эта своеобразная связь поколений дает особую социальную и психологическую помощь и поддержку пожилым людям».
Дипломная работа Дарьи Герасимовой «Дом престарелых в Казани». Руководители: Евгений Асс, Кирилл Асс. Фасады © МАРШ, 2016
Дипломная работа Дарьи Герасимовой «Дом престарелых в Казани». Руководители: Евгений Асс, Кирилл Асс. Фасады © МАРШ, 2016
Дипломная работа Дарьи Герасимовой «Дом престарелых в Казани». Руководители: Евгений Асс, Кирилл Асс. Фасады + план 1 этажа © МАРШ, 2016
Дипломная работа Дарьи Герасимовой «Дом престарелых в Казани». Руководители: Евгений Асс, Кирилл Асс. Фасады + план 1 этажа © МАРШ, 2016
Дипломная работа Дарьи Герасимовой «Дом престарелых в Казани». Руководители: Евгений Асс, Кирилл Асс. Фасады + план 2 этажа © МАРШ, 2016
Дипломная работа Дарьи Герасимовой «Дом престарелых в Казани». Руководители: Евгений Асс, Кирилл Асс. Фасады + план 2 этажа © МАРШ, 2016
Дипломная работа Дарьи Герасимовой «Дом престарелых в Казани». Руководители: Евгений Асс, Кирилл Асс. Фасады + план 2 этажа © МАРШ, 2016
Дипломная работа Дарьи Герасимовой «Дом престарелых в Казани». Руководители: Евгений Асс, Кирилл Асс. Фасады + план 2 этажа © МАРШ, 2016
Дипломная работа Дарьи Герасимовой «ТДом престарелых в Казани». Руководители: Евгений Асс, Кирилл Асс. Одноэтажный галерейный жилой блок: фасады + план © МАРШ, 2016
Дипломная работа Дарьи Герасимовой «ТДом престарелых в Казани». Руководители: Евгений Асс, Кирилл Асс. Одноэтажный галерейный жилой блок: фасады + план © МАРШ, 2016
Дипломная работа Дарьи Герасимовой «Дом престарелых в Казани». Руководители: Евгений Асс, Кирилл Асс © МАРШ, 2016
Дипломная работа Дарьи Герасимовой «Дом престарелых в Казани». Руководители: Евгений Асс, Кирилл Асс © МАРШ, 2016
Дипломная работа Дарьи Герасимовой «Дом престарелых в Казани». Руководители: Евгений Асс, Кирилл Асс © МАРШ, 2016
Дипломная работа Дарьи Герасимовой «Дом престарелых в Казани». Руководители: Евгений Асс, Кирилл Асс © МАРШ, 2016
Дипломная работа Дарьи Герасимовой «Дом престарелых в Казани». Руководители: Евгений Асс, Кирилл Асс © МАРШ, 2016
Дипломная работа Дарьи Герасимовой «Дом престарелых в Казани». Руководители: Евгений Асс, Кирилл Асс © МАРШ, 2016
Дипломная работа Дарьи Герасимовой «Дом престарелых в Казани». Руководители: Евгений Асс, Кирилл Асс. Анализ © МАРШ, 2016
Дипломная работа Дарьи Герасимовой «Дом престарелых в Казани». Руководители: Евгений Асс, Кирилл Асс. Анализ © МАРШ, 2016
Дипломная работа Дарьи Герасимовой «Дом престарелых в Казани». Руководители: Евгений Асс, Кирилл Асс. Фасады © МАРШ, 2016
Дипломная работа Дарьи Герасимовой «Дом престарелых в Казани». Руководители: Евгений Асс, Кирилл Асс. Фасады © МАРШ, 2016
Дипломная работа Дарьи Герасимовой «Дом престарелых в Казани». Руководители: Евгений Асс, Кирилл Асс. План 1 этажа © МАРШ, 2016
Дипломная работа Дарьи Герасимовой «Дом престарелых в Казани». Руководители: Евгений Асс, Кирилл Асс. План 1 этажа © МАРШ, 2016
Дипломная работа Дарьи Герасимовой «Дом престарелых в Казани». Руководители: Евгений Асс, Кирилл Асс. План 2 этажа © МАРШ, 2016
Дипломная работа Дарьи Герасимовой «Дом престарелых в Казани». Руководители: Евгений Асс, Кирилл Асс. План 2 этажа © МАРШ, 2016
***
 
Евгений Асс,
основатель бюро «Архитекторы Асс»,
ректор МАРШ, руководитель дипломных проектов: 
[вернуться вверх]
«Могу сказать, что я в целом доволен студией. Проекты получили высокую оценку как приглашённых отечественных критиков, так и английских коллег, которые приехали специально для знакомства с работами студентов.

Я бы отметил четыре проекта. Это санаторий на Соляном озере Антона Тимофеева – очень яркий и необычный проект. Ещё было два провокационных проекта – тюрьма Даши Зайцевой и погребальный комплекс Андрея Фомичева – совершенно новая типология. Это очень сильная и монументальная работа, точно совпадающая с философией базовой формы, так как мы говорили не только о геометрии, но и о социальных и культурных основах – смерть рассматривалась в проекте, как одна из ключевых составляющих общественной жизни. И тюрьма очень точно попадает в контекст базовой формы. Ещё один интересный проект Григорий Цебренко – университет в Череповце. Он вызвал много вопросов комиссии о связи с темой, но, на мой взгляд, проект очень необычный и интересный.

Некоторые работали и с традиционными формами разных характерных точек России – Алтая, Якутска.

Мне кажется, что получился интересный курс. Это уже второй год, когда мы занимаемся темой формообразования в архитектуре. Мы решили, что будем продолжать эту интересную, но на данный момент слабо разработанную в архитектурном мире тему».

Антон Тимофеев,
автор проекта «Recreatio. Баскунчак»,
призер премии The CASS:

«Абитуриентам я могу посоветовать окунуться в это море с головой и полностью посвятить себя обучению, без остатка. Это весьма трудный процесс, который не даётся легко, и чем больше в него вкладывается собственных сил – тем выше результаты. Важно предельно ясно для самого себя понять и решить, что столь огромное, сложное и многогранное дело как архитектура – дело всей вашей жизни».