Размещено на портале Архи.ру (www.archi.ru)

06.06.2016

Олимпийский Рио

Екатерина Ровнова
Мастерская:
Vigliecca & Associados

Соревнования по 11 видам спорта Олимпиады–2016 пройдут в кластере Деодоро, реконструированном по проекту архитекторов Vigliecca & Associados.

Схема расположения спортивных объектов Олимпиады-2016 в Рио-де-Жанейро
Схема расположения спортивных объектов Олимпиады-2016 в Рио-де-Жанейро

Спортивные объекты Олимпийских игр 2016 года в Рио-де-Жанейро (они пройдут 5-21 августа) расположены в четырех кластерах – Барра, Копакабана, Маракана и Деодоро. Район Барра ди Тижука разместит олимпийскую деревню, пресс-центр (MPC), главный вещательный центр (IBC) и 15 спортивных объектов; в Копакабане пройдут соревнования по гребле, парусному спорту, триатлону, пляжному волейболу, плаванию на открытой воде и церемонии открытия и закрытия Игр; Маракана примет соревнования по стрельбе из лука, футбольный турнир и легкую атлетику. В парке Деодоро, реконструированном по проекту бразильской архитектурной студии Vigliecca & Associados, пройдут соревнования по 11 олимпийским (гребной слалом, маунтинбайк, веломотокросс, стрельба, современное пятиборье, женский баскетбол, регби, конный спорт, хоккей на траве) и четырем параолимпийским (фехтование, стрельба, футбол 7х7, выездка) видам спорта. По окончании Игр 2,6 млн м2 площади парка останутся в городской ткани, поэтому от архитекторов требовалось разработать не только сами олимпийские сооружения, но и принцип их приспособления для последующего использования.
Парк Деодоро © 2015 Andre Motta / HeusiAction
Парк Деодоро © 2015 Andre Motta / HeusiAction
Парк Деодоро © 2015 Gabriel Heusi / HeusiAction
Парк Деодоро © 2015 Gabriel Heusi / HeusiAction
Парк Деодоро © 2015 Gabriel Heusi / HeusiAction
Парк Деодоро © 2015 Gabriel Heusi / HeusiAction
Парк Деодоро © Vigliecca & Associados
Парк Деодоро © Vigliecca & Associados
 * * *



Сегодня эта живописная долина, окруженная горными вершинами – район с самым молодым населением и, одновременно, с самым низким индексом человеческого развития в городе. Предполагается, что новое общественное пространство со спортивным насыщением сыграет в сторону увеличения этого индекса и снизит социальную напряженность: 490 000 м2 Олимпийского парка превратятся во второй по величине городской парк в Рио-де-Жанейро – Икс-парк (X-Park) со скейтпарком, прогулочными и беговыми дорожками и зоной пикников.
Икс-парк в составе парка Деододоро  © Vigliecca & Associados
Икс-парк в составе парка Деододоро © Vigliecca & Associados

Парк Деодоро был построен в 2007 для проведения Панамериканских игр: для Олимпиады необходимо было адаптировать существующие спортивные объекты к изменившимся за девять лет регламентам и справиться со сложной топографией при строительстве новых. Так, для возведения самого технически сложного объекта Игр – искусственной трассы для гребного слалома – была использована площадка с самым небольшим уклоном, чтобы минимизировать объем земляных работ и расположить зрительские места вдоль «течения» непосредственно на рельефе. В свою очередь, наиболее крутые холмистые участки подошли под оборудование трасс для маунтинбайка и веломотокросса. После завершения Игр пятикилометровую трассу для горных велосипедов демонтируют, оставив небольшой отрезок для Икс-парка, а холмы для BMX полностью отдадут профессионалам.
Трасса для гребного слалома © Andre Motta / HeusiAction / Brasil2016.gov.br
Трасса для гребного слалома © Andre Motta / HeusiAction / Brasil2016.gov.br
Трасса для гребного слалома © Andre Motta / HeusiAction / Brasil2016.gov.br
Трасса для гребного слалома © Andre Motta / HeusiAction / Brasil2016.gov.br
Трасса для гребного слалома  © Vigliecca & Associados
Трасса для гребного слалома © Vigliecca & Associados
Трасса для гребного слалома. Рекреационное «постолимпиадное» использование © Renato Sette / Camara Prefeitura do Rio
Трасса для гребного слалома. Рекреационное «постолимпиадное» использование © Renato Sette / Camara Prefeitura do Rio
Трасса для гребного слалома. Рекреационное «постолимпиадное» использование © Renato Sette / Camara Prefeitura do Rio
Трасса для гребного слалома. Рекреационное «постолимпиадное» использование © Renato Sette / Camara Prefeitura do Rio
Трасса BMX Фото © J. P. Engelbrecht / Prefeitura do Rio
Трасса BMX Фото © J. P. Engelbrecht / Prefeitura do Rio
Трасса BMX Фото © J. P. Engelbrecht / Prefeitura do Rio
Трасса BMX Фото © J. P. Engelbrecht / Prefeitura do Rio
BMX-трасса  © Vigliecca & Associados
BMX-трасса © Vigliecca & Associados
BMX-трасса  © Vigliecca & Associados
BMX-трасса © Vigliecca & Associados
BMX-трасса  © Vigliecca & Associados
BMX-трасса © Vigliecca & Associados
Трасса для маунтинбайка. Фото © Renato Sette / Brasil2016.gov.br
Трасса для маунтинбайка. Фото © Renato Sette / Brasil2016.gov.br
Трасса для маунтинбайка. Фото © Andre Motta / HeusiAction / Brasil2016.gov.br
Трасса для маунтинбайка. Фото © Andre Motta / HeusiAction / Brasil2016.gov.br
Трасса для маунтинбайка. Фото © Andre Motta / HeusiAction / Brasil2016.gov.br
Трасса для маунтинбайка. Фото © Andre Motta / HeusiAction / Brasil2016.gov.br
Трасса для маунтинбайка. Фото © Andre Motta / HeusiAction / Brasil2016.gov.br
Трасса для маунтинбайка. Фото © Andre Motta / HeusiAction / Brasil2016.gov.br
 * * *



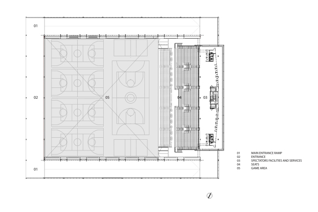
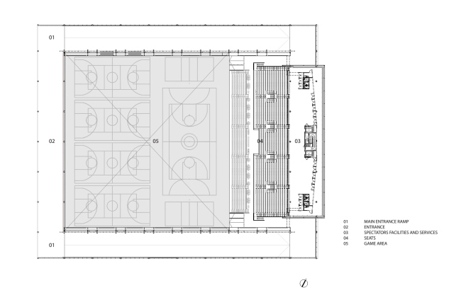
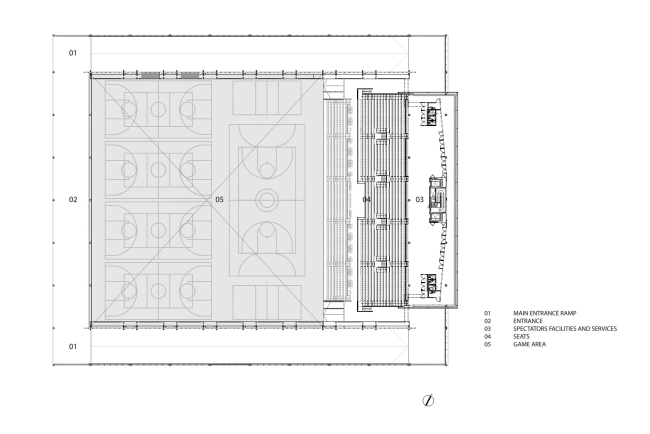
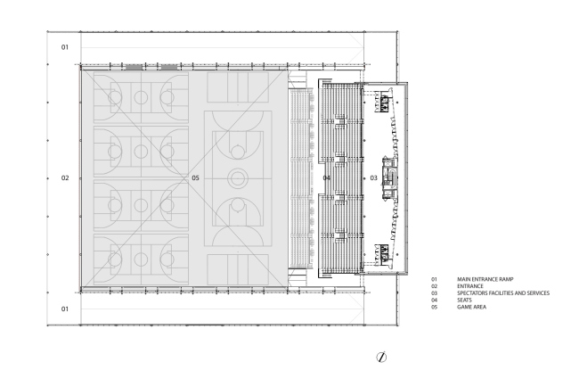
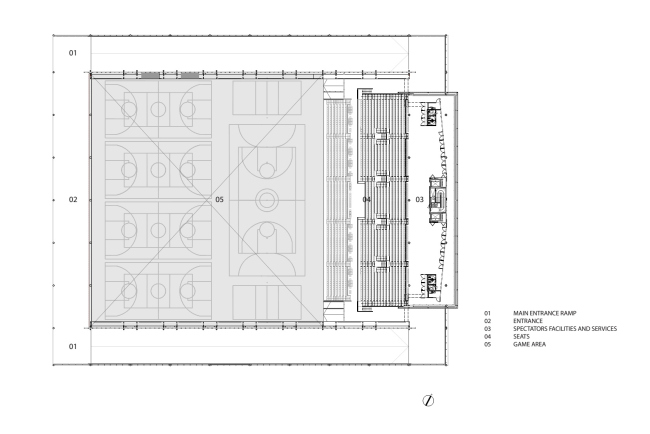
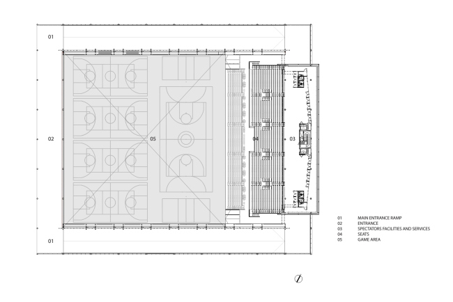
66,5-метровое безопорное пространство Арены Молодежи (Youth Arena), перекрытое семью стальными фермами высотой 4,3 м, вместит в себя соревнования по женскому баскетболу, современному пятиборью и параолимпийскому фехтованию, а после – станет тренировочной базой для бразильских атлетов. Кондиционирование и искусственное освещение здания будут осуществляться лишь в период проведения Игр: после них 14 300 м2 общей площади будут функционировать с естественными вентиляцией и освещением: поворотные экраны, жалюзи и огромный свес крыши защитят внутренние помещения от перегрева на жарком бразильском солнце.
Арена Молодежи © Andre Motta / HeusiAction / Brasil2016.gov.br
Арена Молодежи © Andre Motta / HeusiAction / Brasil2016.gov.br
Арена Молодежи © Andre Motta / HeusiAction / Brasil2016.gov.br
Арена Молодежи © Andre Motta / HeusiAction / Brasil2016.gov.br
Арена Молодежи © Leonardo Finotti
Арена Молодежи © Leonardo Finotti
Арена Молодежи © Leonardo Finotti
Арена Молодежи © Leonardo Finotti
Арена Молодежи © Leonardo Finotti
Арена Молодежи © Leonardo Finotti
Арена Молодежи  © Vigliecca & Associados
Арена Молодежи © Vigliecca & Associados
Арена Молодежи  © Vigliecca & Associados
Арена Молодежи © Vigliecca & Associados
Арена Молодежи  © Vigliecca & Associados
Арена Молодежи © Vigliecca & Associados
 * * *

 


Вместимость комплекса Национального стрелкового центра, построенного в 2007 по проекту BCMF Arquitetos, надо было увеличить в три раза, но при этом сохранить внешний облик и архитектуру сооружения. Первое решение – строительство временного павильона – было очень дорогим, и архитекторы разработали схему увеличения количества мест за счет уменьшения угла наклона трибун: в итоге, вместо 600 постоянных кресел стало умещаться 2000 временных. Соответственно, была отодвинута и зона стрельбища. Таким образом, на общей площади комплекса 53 500 м2 расположились 7250 зрительских мест, примерно половина из которых будет демонтирована после завершения Игр.
Национальный стрелковый центр © Andre Motta / HeusiAction / Brasil2016.gov.br
Национальный стрелковый центр © Andre Motta / HeusiAction / Brasil2016.gov.br
Национальный стрелковый центр © Brasil2016.gov.br
Национальный стрелковый центр © Brasil2016.gov.br
Национальный стрелковый центр  © Vigliecca & Associados
Национальный стрелковый центр © Vigliecca & Associados
Национальный стрелковый центр  © Vigliecca & Associados
Национальный стрелковый центр © Vigliecca & Associados
Национальный стрелковый центр  © Vigliecca & Associados
Национальный стрелковый центр © Vigliecca & Associados
Национальный стрелковый центр  © Vigliecca & Associados
Национальный стрелковый центр © Vigliecca & Associados
Национальный стрелковый центр. Вид до реконструкции. Фото: BCMF Arquitetos
Национальный стрелковый центр. Вид до реконструкции. Фото: BCMF Arquitetos
Национальный стрелковый центр. Вид до реконструкции. Фото: BCMF Arquitetos
Национальный стрелковый центр. Вид до реконструкции. Фото: BCMF Arquitetos
Национальный стрелковый центр. Вид до реконструкции. Фото: BCMF Arquitetos
Национальный стрелковый центр. Вид до реконструкции. Фото: BCMF Arquitetos
Национальный стрелковый центр. Вид до реконструкции. Фото: BCMF Arquitetos
Национальный стрелковый центр. Вид до реконструкции. Фото: BCMF Arquitetos
Национальный стрелковый центр. Вид до реконструкции. Фото: BCMF Arquitetos
Национальный стрелковый центр. Вид до реконструкции. Фото: BCMF Arquitetos
 * * *

 


Для строительства временного стадиона Деодоро, предназначенного для проведения соревнования по регби, современному пятиборью, выездке и футболу 7х7, была выбрано самое экономичное решение: по словам разработчиков, двойной слой асфальта, который тоньше «пирога» традиционных схем, при общей площади покрытия в 34 000 м2 значительно сокращает инвестиции.
Стадион Деодоро © Andre Motta / HeusiAction / Brasil2016.gov.br
Стадион Деодоро © Andre Motta / HeusiAction / Brasil2016.gov.br
Стадион Деодоро © Andre Motta / HeusiAction / Brasil2016.gov.br
Стадион Деодоро © Andre Motta / HeusiAction / Brasil2016.gov.br



Центр верховой езды © Andre Motta / HeusiAction / Brasil2016.gov.br
Центр верховой езды © Andre Motta / HeusiAction / Brasil2016.gov.br
Центр верховой езды © Andre Motta / HeusiAction / Brasil2016.gov.br
Центр верховой езды © Andre Motta / HeusiAction / Brasil2016.gov.br
Центр верховой езды © Andre Motta / HeusiAction / Brasil2016.gov.br
Центр верховой езды © Andre Motta / HeusiAction / Brasil2016.gov.br
Центр верховой езды © Andre Motta / HeusiAction / Brasil2016.gov.br
Центр верховой езды © Andre Motta / HeusiAction / Brasil2016.gov.br



Несмотря на то, что основной целью при проектировании каждого объекта было снижение затрат и разработка сценариев пост-олимпиадного использования, общая стоимость строительства составила около $10,76 млрд, что выводит Рио на пятое место в рейтинге самых дорогих Олимпиад (впереди – Афины, Лондон, Пекин и Сочи). При этом, два года назад вице-президент МОК назвал организацию строительства бразильских олимпийских объектов «самой плохой за всю историю», сегодня Бразилия находится в состоянии глубочайшей экономической рецессии, а сам штат Рио-де-Жанейро – на грани дефолта. До открытия Игр осталось два месяца, но грядущее главное спортивное событие затмевают огромный политический скандал и масштабные судебные разбирательства: в частности, именно парк Деодоро фигурирует в федеральном антикоррупционном расследовании о нецелевом расходовании бюджетных средств на реновацию объектов, с Играми напрямую не связанных.

Олимпиада несомненно повысит качество жизни бразильцев за счет значительных инвестиций в инфраструктуру, но из нынешнего кризиса не вытянет. Тем не менее, архитекторы надеются, что после Игр Икс-парк станет местом притяжения активной молодежи из близлежащих жилых районов и импульсом развития для местного сообщества.