Размещено на портале Архи.ру (www.archi.ru)

24.05.2016

Архитектура и вино

Елизавета Эбнер

Три интересные по архитектуре винодельни Южного Тироля: Tramin, Manincor и Nals Margreid.

Посвящается моему папе,
архитектору Андрею Львовичу Клепанову



Винодельня Tramin. Лоза гевюрцтраминера

Гевюрцтраминер – белое вино, которое легко распознается даже начинающими дегустаторами. Изначально оно называлось просто «трамин», но затем к слову был добавлен префикс «Gewürz», что в переводе с немецкого означает «специя». В условиях жаркого климата, или если виноград собирают слишком рано, гевюрцтраминеру может не хватать аромата и фруктовых оттенков, за которые его очень любят. А вот в холодных местностях, где сезон созревания винограда затягивается, он может раскрыться тонким сочетанием цветочных и экзотических нот, «специй», делающих его вкус невероятно элегантным и прекрасно дополняющим блюда тайской и в целом азиатской кухни, мягкие сливочные ароматы индийской кухни, а также морепродукты, особенно омары и лангусты.
Винодельня Tramin. Архитектор Вернер Чолль © Becker
Винодельня Tramin. Архитектор Вернер Чолль © Becker
Винодельня Tramin. Архитектор Вернер Чолль © Rickard Kust
Винодельня Tramin. Архитектор Вернер Чолль © Rickard Kust
Винодельня Tramin. Архитектор Вернер Чолль © Alexa Rainer
Винодельня Tramin. Архитектор Вернер Чолль © Alexa Rainer
Винодельня Tramin. Архитектор Вернер Чолль. Предоставлено винодельней Tramin
Винодельня Tramin. Архитектор Вернер Чолль. Предоставлено винодельней Tramin
Винодельня Tramin. Архитектор Вернер Чолль © Alexa Rainer
Винодельня Tramin. Архитектор Вернер Чолль © Alexa Rainer
Винодельня Tramin. Архитектор Вернер Чолль © Becker
Винодельня Tramin. Архитектор Вернер Чолль © Becker
Винодельня Tramin. Архитектор Вернер Чолль © Becker
Винодельня Tramin. Архитектор Вернер Чолль © Becker
Винодельня Tramin. Архитектор Вернер Чолль © Florian Andergassen
Винодельня Tramin. Архитектор Вернер Чолль © Florian Andergassen

Гевюрцтраминер винодельни Tramin в Южном Тироле получил наибольшее количество наград во всей Италии, а само предприятие ежегодно занимает лидирующие позиции в своей сфере во всем мире. Оставаясь местом с насыщенной историей, начавшейся в 1898 года, в 2010 году винодельня Tramin получила совершенно новый образ, созданный местным архитектором Вернером Чоллем.
Винодельня Tramin. Архитектор Вернер Чолль © Rickard Kust
Винодельня Tramin. Архитектор Вернер Чолль © Rickard Kust
Винодельня Tramin. Архитектор Вернер Чолль © Becker
Винодельня Tramin. Архитектор Вернер Чолль © Becker
Винодельня Tramin. Архитектор Вернер Чолль © Becker
Винодельня Tramin. Архитектор Вернер Чолль © Becker
Винодельня Tramin. Архитектор Вернер Чолль © Becker
Винодельня Tramin. Архитектор Вернер Чолль © Becker
Винодельня Tramin. Архитектор Вернер Чолль © Becker
Винодельня Tramin. Архитектор Вернер Чолль © Becker
Винодельня Tramin. Архитектор Вернер Чолль © Alexa Rainer
Винодельня Tramin. Архитектор Вернер Чолль © Alexa Rainer
Винодельня Tramin. Архитектор Вернер Чолль © Florian Andergassen
Винодельня Tramin. Архитектор Вернер Чолль © Florian Andergassen
Винодельня Tramin. Архитектор Вернер Чолль © Rickard Kust
Винодельня Tramin. Архитектор Вернер Чолль © Rickard Kust

Пройти или проехать мимо этого проекта невозможно: его яркую зеленую оболочку, напоминающую растущую из земли лозу видно издалека. Автор говорит, что такая явная символичность была выбрана осознанно, чтобы назначение здание ни у кого не вызывало сомнений. Зеленая структура из алюминия изготовлена промышленным способом. Профили разного размера были сделаны на заводе и затем смонтированы на строительной площадке.
Винодельня Tramin. Архитектор Вернер Чолль © Becker
Винодельня Tramin. Архитектор Вернер Чолль © Becker
Винодельня Tramin. Архитектор Вернер Чолль © Rickard Kust
Винодельня Tramin. Архитектор Вернер Чолль © Rickard Kust
Винодельня Tramin. Архитектор Вернер Чолль © Becker
Винодельня Tramin. Архитектор Вернер Чолль © Becker
Винодельня Tramin. Архитектор Вернер Чолль © Florian Andergassen
Винодельня Tramin. Архитектор Вернер Чолль © Florian Andergassen
Винодельня Tramin. Архитектор Вернер Чолль © Florian Andergassen
Винодельня Tramin. Архитектор Вернер Чолль © Florian Andergassen
Винодельня Tramin. Архитектор Вернер Чолль. Предоставлено винодельней Tramin
Винодельня Tramin. Архитектор Вернер Чолль. Предоставлено винодельней Tramin
Винодельня Tramin. Архитектор Вернер Чолль. Предоставлено винодельней Tramin
Винодельня Tramin. Архитектор Вернер Чолль. Предоставлено винодельней Tramin
Винодельня Tramin. Архитектор Вернер Чолль. Предоставлено винодельней Tramin
Винодельня Tramin. Архитектор Вернер Чолль. Предоставлено винодельней Tramin

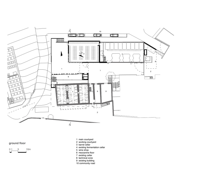
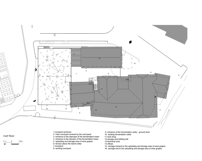
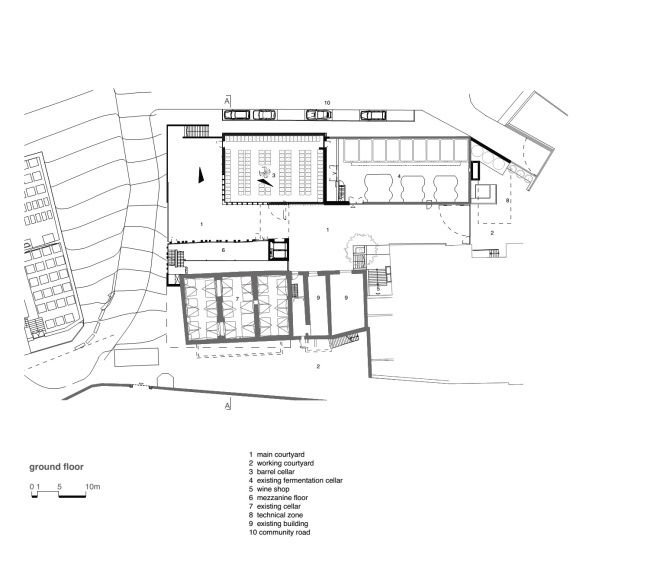
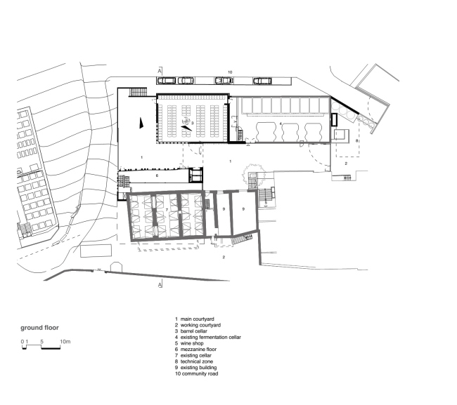
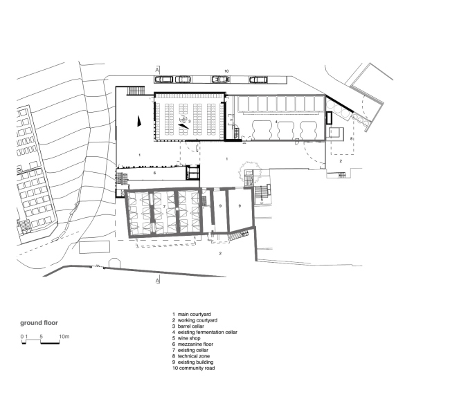
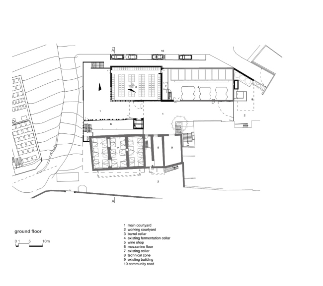
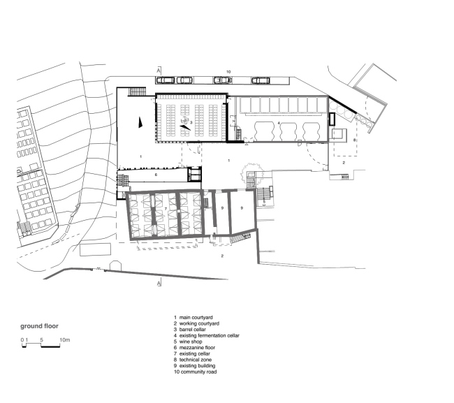
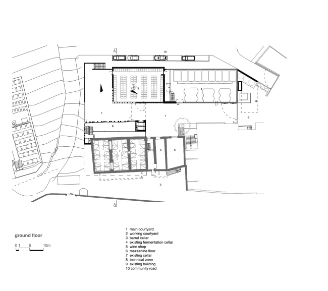
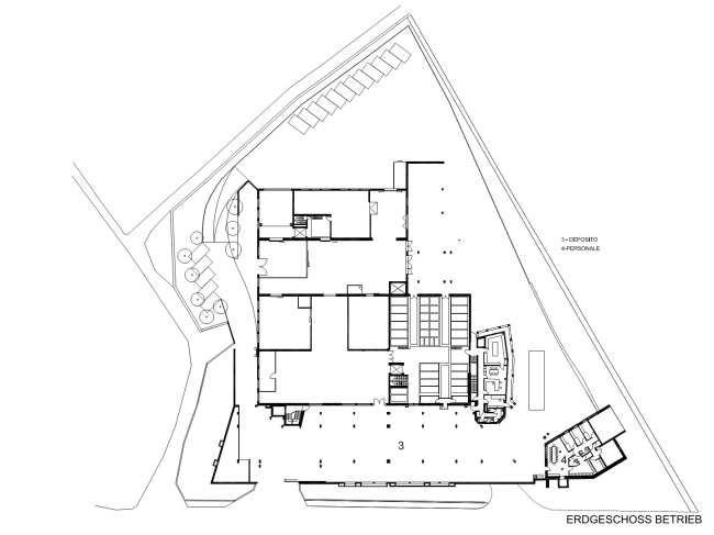
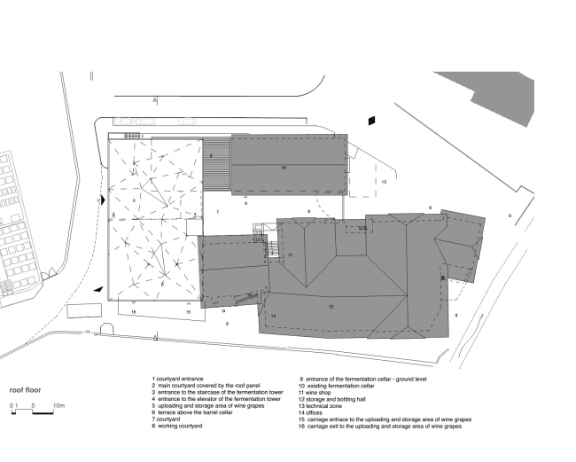
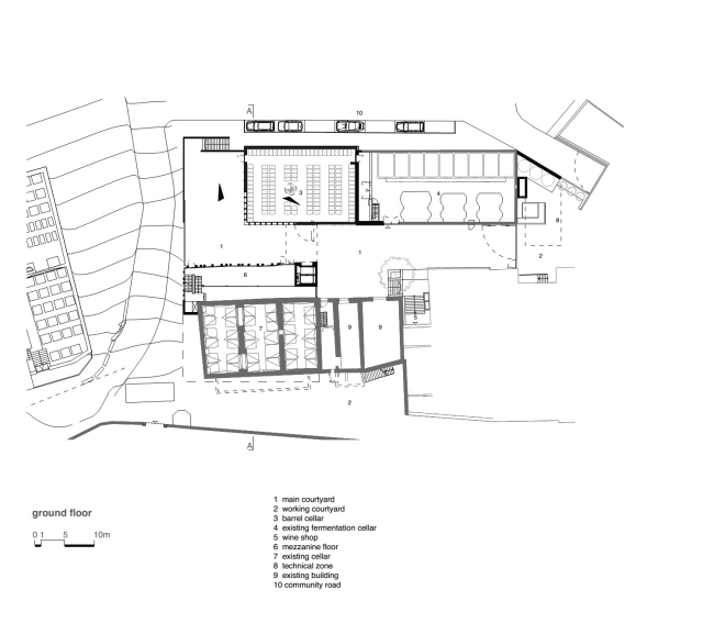
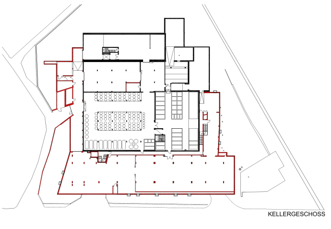
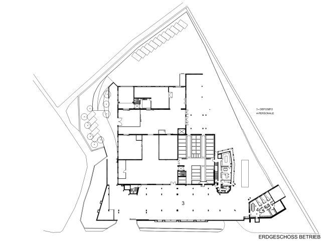
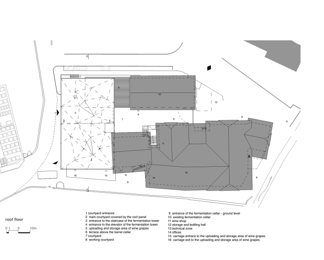
В Tramin четко разделены жизнь винодельни и поток посетителей. На первом уровне есть вход для фермеров и грузового транспорта, а также парковка для сотрудников, помещения для производства и хранения вина. Зона для посетителей начинается на уровне платформы – с гостевого паркинга. Отсюда в здание попадают через один из двух входов. Воспользовавшись тем, что справа, можно пройти в фойе и уже оттуда пройти либо в офисы, либо в общественную часть с конференц-залом, магазином и дегустационным залом с винным баром. Через левый вход сразу попадаешь в дегустационный зал, откуда открываются живописные виды окрестностей. Вход в фойе находится в исторической части винодельни, от которой в противоположные стороны ответвляются два крыла новой постройки.
Винодельня Tramin. Архитектор Вернер Чолль. Предоставлено винодельней Tramin
Винодельня Tramin. Архитектор Вернер Чолль. Предоставлено винодельней Tramin
Винодельня Tramin. Архитектор Вернер Чолль. Предоставлено винодельней Tramin
Винодельня Tramin. Архитектор Вернер Чолль. Предоставлено винодельней Tramin
Винодельня Tramin. Архитектор Вернер Чолль. Предоставлено винодельней Tramin
Винодельня Tramin. Архитектор Вернер Чолль. Предоставлено винодельней Tramin
Винодельня Tramin. Архитектор Вернер Чолль. Предоставлено винодельней Tramin
Винодельня Tramin. Архитектор Вернер Чолль. Предоставлено винодельней Tramin
Винодельня Tramin. Архитектор Вернер Чолль. Предоставлено винодельней Tramin
Винодельня Tramin. Архитектор Вернер Чолль. Предоставлено винодельней Tramin
Винодельня Tramin. Архитектор Вернер Чолль. Предоставлено винодельней Tramin
Винодельня Tramin. Архитектор Вернер Чолль. Предоставлено винодельней Tramin
Винодельня Tramin. Архитектор Вернер Чолль. Предоставлено винодельней Tramin
Винодельня Tramin. Архитектор Вернер Чолль. Предоставлено винодельней Tramin
Винодельня Tramin. Архитектор Вернер Чолль. Предоставлено винодельней Tramin
Винодельня Tramin. Архитектор Вернер Чолль. Предоставлено винодельней Tramin



Винодельня Tramin играет сегодня роль символа города Термено (по-немецки так и называющегося – Трамин), занимая участок на въезде туда. Конечно, винодельня была давно известна среди профессионалов винного дела, но теперь, благодаря прекрасной современной архитектуре, о ней заговорили по всему миру, а ежегодные продажи здесь возросли примерно до одиннадцати миллионов евро.


Винодельня Manincor. «Рука», «Сердце» и «Корона».

В этой винодельне, расположенной в коммуне Кальдаро (Кальтерн) рядом с озером Кальдаро (Кальтерер-зее) ассортимент вина разделен на три уровня в порядке возрастания его качества. Первый уровень называется «Рука» (в честь руки, культивирующей почву и заботящейся об урожае), и вся продукция под этой маркой отличается классическим стилем и звучанием. Второй уровень – «Сердце»: вина этой категории элегантны и отражают мужество, решимость и дух виноделов Manincor. Третий уровень – «Корона» – это раритеты, которые производятся только в годы с идеальными условиями и являются результатом строгого выбора винограда от старых лоз. Качество этого уровня характеризуется винодельней как «бескомпромиссное».
Винодельня Manincor. Архитектор Вальтер Ангонезе. Изображение предоставлено студией Вальтера Ангонезе
Винодельня Manincor. Архитектор Вальтер Ангонезе. Изображение предоставлено студией Вальтера Ангонезе
Винодельня Manincor. Архитектор Вальтер Ангонезе. Изображение предоставлено студией Вальтера Ангонезе
Винодельня Manincor. Архитектор Вальтер Ангонезе. Изображение предоставлено студией Вальтера Ангонезе
Винодельня Manincor. Архитектор Вальтер Ангонезе. Изображение предоставлено студией Вальтера Ангонезе
Винодельня Manincor. Архитектор Вальтер Ангонезе. Изображение предоставлено студией Вальтера Ангонезе
Винодельня Manincor. Архитектор Вальтер Ангонезе. Изображение предоставлено студией Вальтера Ангонезе
Винодельня Manincor. Архитектор Вальтер Ангонезе. Изображение предоставлено студией Вальтера Ангонезе

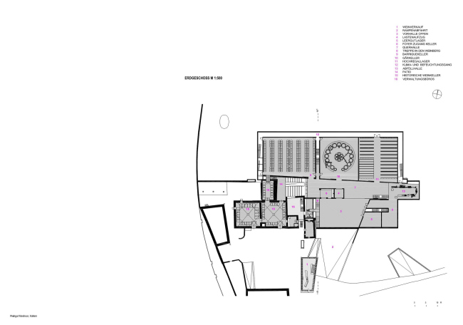
Как и большинство виноделен Южного Тироля, Manincor – семейное предприятие с более чем 400-летней историей. Ее нынешний владелец, граф Михаэль Гоесс-Айзенберг в 1996 принял решение возобновить закрытое в 1977 производство, до того находившееся в замке Кампан, и делать вино исключительно из собственного винограда, растущего на 45 гектарах земли. Граф Айзенберг вместе с архитектором Вальтером Ангонезе стали изучать возможности строительства новой винодельни во владениях графа и, после тщательного анализа решили, что именно Манинкор, основанный в 1608 господский дом, должен стать сердцем нового винного производства.
Винодельня Manincor. Архитектор Вальтер Ангонезе. Изображение предоставлено студией Вальтера Ангонезе
Винодельня Manincor. Архитектор Вальтер Ангонезе. Изображение предоставлено студией Вальтера Ангонезе
Винодельня Manincor. Архитектор Вальтер Ангонезе. Изображение предоставлено студией Вальтера Ангонезе
Винодельня Manincor. Архитектор Вальтер Ангонезе. Изображение предоставлено студией Вальтера Ангонезе
Винодельня Manincor. Архитектор Вальтер Ангонезе. Изображение предоставлено студией Вальтера Ангонезе
Винодельня Manincor. Архитектор Вальтер Ангонезе. Изображение предоставлено студией Вальтера Ангонезе
Винодельня Manincor. Архитектор Вальтер Ангонезе. Изображение предоставлено студией Вальтера Ангонезе
Винодельня Manincor. Архитектор Вальтер Ангонезе. Изображение предоставлено студией Вальтера Ангонезе

По закону Южного Тироля на многих землях, как, например, побережье озеро Кальдаро, запрещено возводить новые здания, чтобы не нарушать гармонию пейзажа. Однако Манинкор – историческая постройка и потому мог быть достроен или реконструирован.
Винодельня Manincor. Архитектор Вальтер Ангонезе. Изображение предоставлено студией Вальтера Ангонезе
Винодельня Manincor. Архитектор Вальтер Ангонезе. Изображение предоставлено студией Вальтера Ангонезе
Винодельня Manincor. Архитектор Вальтер Ангонезе. Изображение предоставлено студией Вальтера Ангонезе
Винодельня Manincor. Архитектор Вальтер Ангонезе. Изображение предоставлено студией Вальтера Ангонезе
Винодельня Manincor. Архитектор Вальтер Ангонезе. Изображение предоставлено студией Вальтера Ангонезе
Винодельня Manincor. Архитектор Вальтер Ангонезе. Изображение предоставлено студией Вальтера Ангонезе
Винодельня Manincor. Архитектор Вальтер Ангонезе. Изображение предоставлено студией Вальтера Ангонезе
Винодельня Manincor. Архитектор Вальтер Ангонезе. Изображение предоставлено студией Вальтера Ангонезе

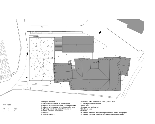
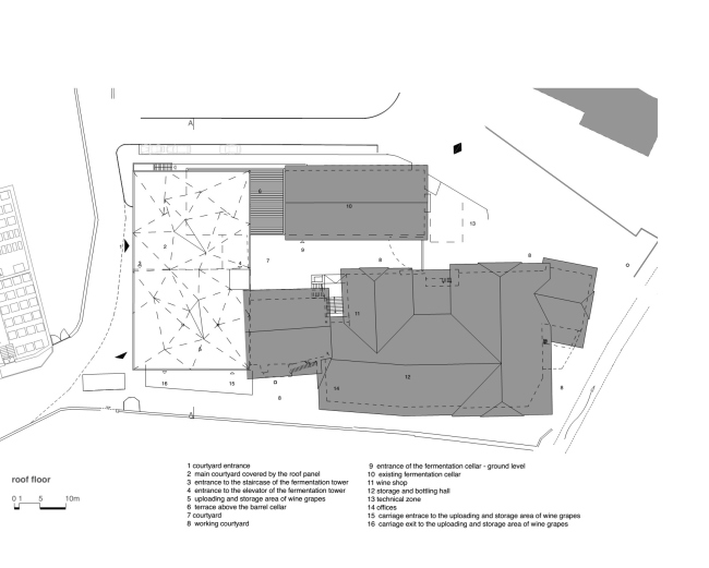
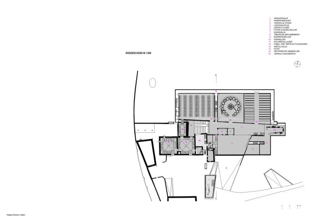
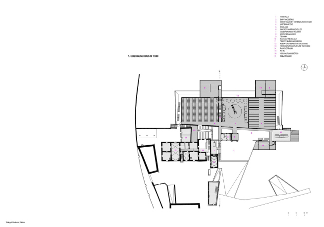
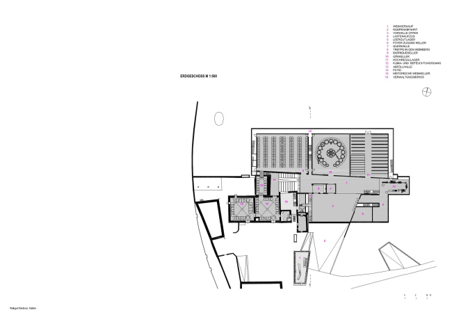
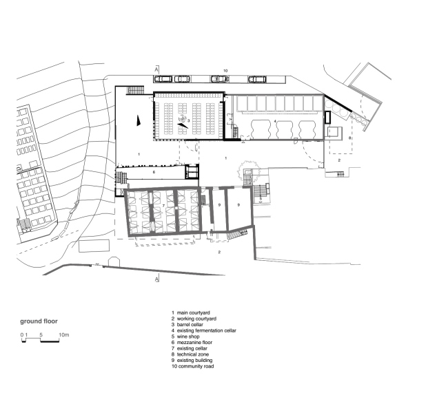
Через три года строительства и постоянной работы Ангонезе и присоединившихся к нему позже архитекторов Райнера Кёберля и Сильвии Бодай, к Манинкору добавились 3 000 м2 полезной площади, почти полностью находящиеся под землей. Подземная часть соединена с внешним пространством в точках подъездов, входов, дегустационного зала (он в буквальном смысле вырывается наружу из винного подвала), зала продаж на границе новой и исторической частей комплекса. Снаружи силуэт сооружения выявляется топографией места и подчеркивается окружающими его дорожками.
Винодельня Manincor. Архитектор Вальтер Ангонезе. Изображение предоставлено студией Вальтера Ангонезе
Винодельня Manincor. Архитектор Вальтер Ангонезе. Изображение предоставлено студией Вальтера Ангонезе
Винодельня Manincor. Архитектор Вальтер Ангонезе. Изображение предоставлено студией Вальтера Ангонезе
Винодельня Manincor. Архитектор Вальтер Ангонезе. Изображение предоставлено студией Вальтера Ангонезе
Винодельня Manincor. Архитектор Вальтер Ангонезе. Изображение предоставлено студией Вальтера Ангонезе
Винодельня Manincor. Архитектор Вальтер Ангонезе. Изображение предоставлено студией Вальтера Ангонезе
Винодельня Manincor. Архитектор Вальтер Ангонезе. Изображение предоставлено студией Вальтера Ангонезе
Винодельня Manincor. Архитектор Вальтер Ангонезе. Изображение предоставлено студией Вальтера Ангонезе

Новый Манинкор напоминает идеально работающий механизм и одновременно стирает грань между природой и технологией. Его складские помещения находятся на максимальной глубине под землей, где температура остается стабильной в любое время года. Вокруг комплекса проходит коридор, который служит «мембраной»: гарантирует оптимальную температуру в помещениях. Материалы всей современной части (в основном – сталь и бетон) обрабатываются специальным раствором, который позволяет им естественным образом покрываться патиной. И делается это не с эстетическими целями – ради имитации интерьеров традиционных винных погребов, а для благополучия живущих в этих подземных помещениях полезных микроорганизмов.


Винодельня Nals Margreid. От Нальса до Марграйда

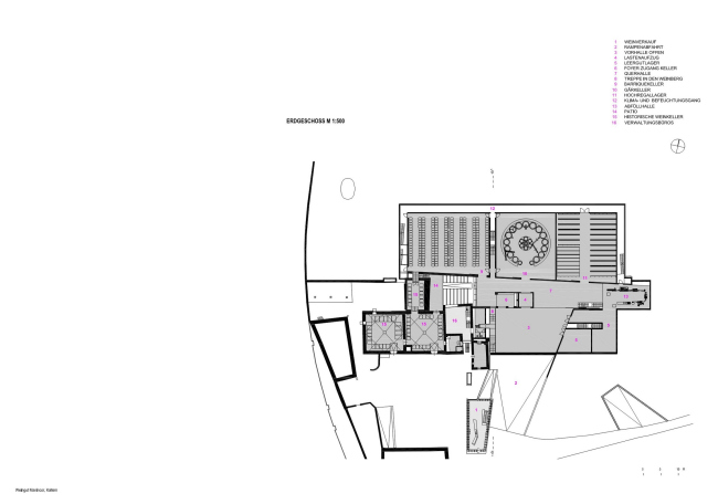
В распоряжении винодельни Nals Margreid, основанной в 1932, виноградники, разбросанные в 14 винодельческих районах Южного Тироля, простирающиеся от деревни Нальс на севере до коммуны Марграйд (Магре-сулла-Страда-дель-Вино) на юге. Благодаря такой ситуации, здесь представлен широкий ассортимент не только белых, характерных для региона вин, но и розе и даже красных вин. Архитектура винодельни в Нальсе была модернизирована в 2011 студией Маркуса Шерера и теперь сочетает в себе традиции с высокими стандартами современного производства.
Винодельня Nals Margreid. Архитектор Маркус Шерер © Bruno Klomfar
Винодельня Nals Margreid. Архитектор Маркус Шерер © Bruno Klomfar
Винодельня Nals Margreid. Архитектор Маркус Шерер © Bruno Klomfar
Винодельня Nals Margreid. Архитектор Маркус Шерер © Bruno Klomfar
Винодельня Nals Margreid. Архитектор Маркус Шерер © Bruno Klomfar
Винодельня Nals Margreid. Архитектор Маркус Шерер © Bruno Klomfar
Винодельня Nals Margreid. Архитектор Маркус Шерер © Bruno Klomfar
Винодельня Nals Margreid. Архитектор Маркус Шерер © Bruno Klomfar
Винодельня Nals Margreid. Архитектор Маркус Шерер © Bruno Klomfar
Винодельня Nals Margreid. Архитектор Маркус Шерер © Bruno Klomfar
Винодельня Nals Margreid. Архитектор Маркус Шерер © Bruno Klomfar
Винодельня Nals Margreid. Архитектор Маркус Шерер © Bruno Klomfar
Винодельня Nals Margreid. Архитектор Маркус Шерер © Bruno Klomfar
Винодельня Nals Margreid. Архитектор Маркус Шерер © Bruno Klomfar

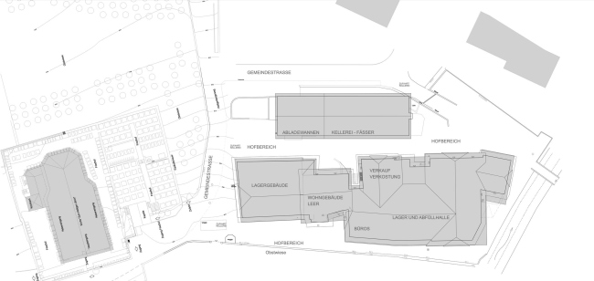
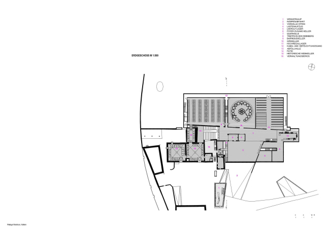
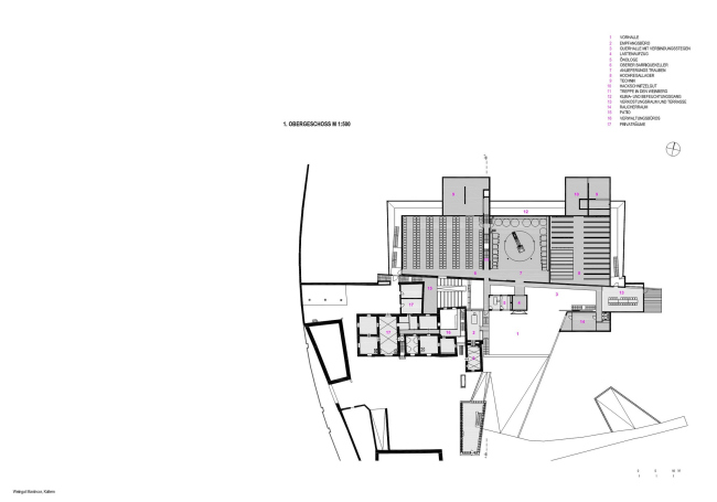
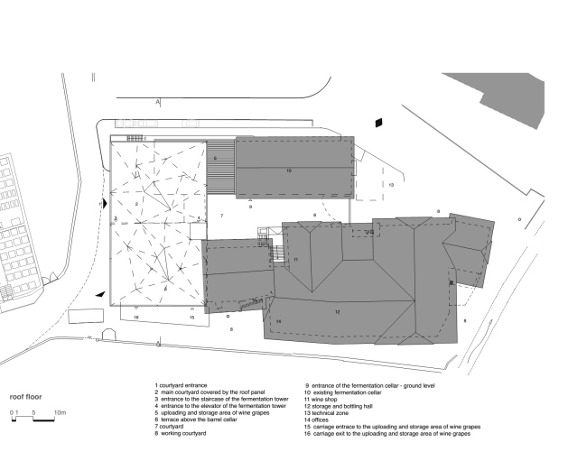
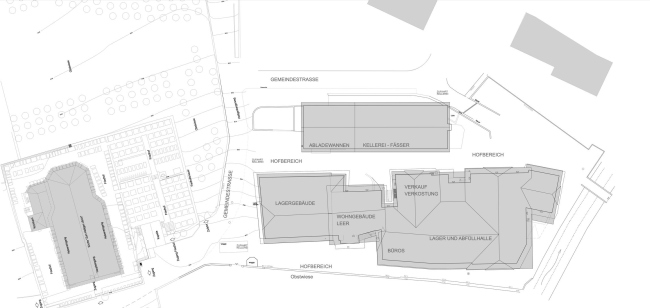
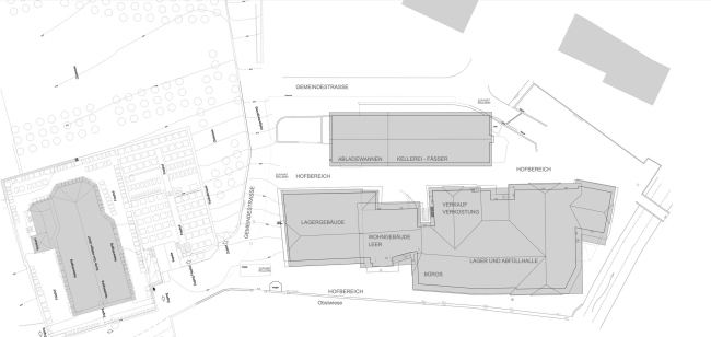
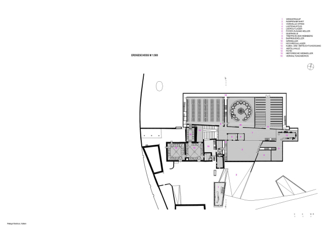
За годы существования винный завод Nals Margreid расширялся стихийно, и в новом проекте прежде всего нужно было создать ясную и логичную структуру. В результате, были перекомпонованы функции и улучшены доставка грузов, хранение и обработка винограда, был создан большой винный погреб. Новое главное здание винодельни построено из выкрашенного в коричнево-красный цвет теплоизоляционного бетона, чтобы не выбиваться из колорита окружающих участок порфировых скал.
Винодельня Nals Margreid. Архитектор Маркус Шерер © Bruno Klomfar
Винодельня Nals Margreid. Архитектор Маркус Шерер © Bruno Klomfar
Винодельня Nals Margreid. Архитектор Маркус Шерер © Bruno Klomfar
Винодельня Nals Margreid. Архитектор Маркус Шерер © Bruno Klomfar
Винодельня Nals Margreid. Архитектор Маркус Шерер © Bruno Klomfar
Винодельня Nals Margreid. Архитектор Маркус Шерер © Bruno Klomfar
Винодельня Nals Margreid. Архитектор Маркус Шерер © Bruno Klomfar
Винодельня Nals Margreid. Архитектор Маркус Шерер © Bruno Klomfar
Винодельня Nals Margreid. Архитектор Маркус Шерер © Bruno Klomfar
Винодельня Nals Margreid. Архитектор Маркус Шерер © Bruno Klomfar
Винодельня Nals Margreid. Архитектор Маркус Шерер © Bruno Klomfar
Винодельня Nals Margreid. Архитектор Маркус Шерер © Bruno Klomfar
Винодельня Nals Margreid. Архитектор Маркус Шерер © Bruno Klomfar
Винодельня Nals Margreid. Архитектор Маркус Шерер © Bruno Klomfar

В интерьере процесс виноделия не спрятан, а, наоборот, открыт публике: стальные резервуары, виноградные прессы, бочки становятся служат для организации внутреннего пространства. Вместо того, чтобы создавать рафинированную атмосферу бутик-завода, в Nals Margreid честно демонстрируют производство. Нужно отметить, что такой подход был отмечен на 12-й Венецианской архитектурной биеннале в рамках выставки параллельной программы «Кафедральные соборы вина», где Маркус Шерер получил премию за лучший дизайн интерьера среди всех представленных виноделен.
Винодельня Nals Margreid. Архитектор Маркус Шерер © Bruno Klomfar
Винодельня Nals Margreid. Архитектор Маркус Шерер © Bruno Klomfar
Винодельня Nals Margreid. Архитектор Маркус Шерер © Bruno Klomfar
Винодельня Nals Margreid. Архитектор Маркус Шерер © Bruno Klomfar
Винодельня Nals Margreid. Архитектор Маркус Шерер © Bruno Klomfar
Винодельня Nals Margreid. Архитектор Маркус Шерер © Bruno Klomfar
Винодельня Nals Margreid. Архитектор Маркус Шерер © Bruno Klomfar
Винодельня Nals Margreid. Архитектор Маркус Шерер © Bruno Klomfar
Винодельня Nals Margreid. Архитектор Маркус Шерер © Bruno Klomfar
Винодельня Nals Margreid. Архитектор Маркус Шерер © Bruno Klomfar
Винодельня Nals Margreid. Архитектор Маркус Шерер © Bruno Klomfar
Винодельня Nals Margreid. Архитектор Маркус Шерер © Bruno Klomfar
Винодельня Nals Margreid. Архитектор Маркус Шерер © Markus Scherer Architekt
Винодельня Nals Margreid. Архитектор Маркус Шерер © Markus Scherer Architekt
Винодельня Nals Margreid. Архитектор Маркус Шерер © Markus Scherer Architekt
Винодельня Nals Margreid. Архитектор Маркус Шерер © Markus Scherer Architekt
Винодельня Nals Margreid. Архитектор Маркус Шерер © Markus Scherer Architekt
Винодельня Nals Margreid. Архитектор Маркус Шерер © Markus Scherer Architekt
Винодельня Nals Margreid. Архитектор Маркус Шерер © Markus Scherer Architekt
Винодельня Nals Margreid. Архитектор Маркус Шерер © Markus Scherer Architekt
Винодельня Nals Margreid. Архитектор Маркус Шерер © Markus Scherer Architekt
Винодельня Nals Margreid. Архитектор Маркус Шерер © Markus Scherer Architekt
Винодельня Nals Margreid. Архитектор Маркус Шерер © Markus Scherer Architekt
Винодельня Nals Margreid. Архитектор Маркус Шерер © Markus Scherer Architekt
Винодельня Nals Margreid. Архитектор Маркус Шерер © Markus Scherer Architekt
Винодельня Nals Margreid. Архитектор Маркус Шерер © Markus Scherer Architekt
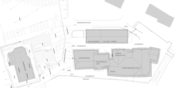
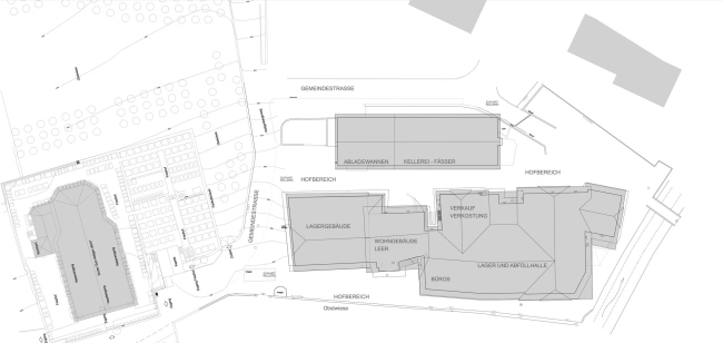
Винодельня Nals Margreid. Архитектор Маркус Шерер. План до реконструкции © Markus Scherer Architekt
Винодельня Nals Margreid. Архитектор Маркус Шерер. План до реконструкции © Markus Scherer Architekt



* * *

За каждой из виноделен Южного Тироля стоит многолетняя история и труд нескольких поколений. У каждой из них есть неповторимый стиль как в архитектуре, так и в создании вина. Конечно, это только малая толика прекрасных мест «винной дороги» Альто-Адидже. Обязательно приезжайте сюда посмотреть на качество зданий, удивительные детали и невероятное умение местных архитекторов работать с пейзажем. Ну и, конечно, это просто безумно приятно – стоять на террасе одной из виноделен и держать в руке бокал лета, например, 1948 года.