Размещено на портале Архи.ру (www.archi.ru)

19.05.2016

Золотое жилье для студентов и стрижей

Нина Фролова
Объект:
Студенческое общежитие Golden Cube
Адрес:
Франция, None, Париж.
Мастерская:
Hamonic+Masson & Associés

В общежитии Golden Cube в Париже по проекту бюро Hamonic + Masson & Associés предусмотрены не только комнаты для студентов, но и домики для птиц.

Студенческое общежитие Golden Cube © Christophe Demonfaucon
Студенческое общежитие Golden Cube © Christophe Demonfaucon

Новое здание расположено почти вплотную к популярной у наших читателей школе биоразнообразия бюро Chartier Dalix. Обе постройки появились в рамках реконструкции промзоны острова Сеген и прилегающих территорий в районе Булонь-Бийанкур: там сейчас строятся жилые и офисные здания по проектам известных архитекторов, к примеру, Доминика Перро: о его реконструкции делового центра 1970-х мы писали на прошлой неделе.
 
Студенческое общежитие Golden Cube © Christophe Demonfaucon
Студенческое общежитие Golden Cube © Christophe Demonfaucon

Golden Cube, как и соседняя школа, изначально должен был развивать тему биоразнообразия: так заложено в генплане участка «А4 Восток», где они находятся. Поэтому в общежитии, несмотря на ограниченную площадь участка, устроили сад, также цели привнесения элементов живой природы в центр города служит и фасад.
 
Студенческое общежитие Golden Cube © Sergio Grazia
Студенческое общежитие Golden Cube © Sergio Grazia

Фасад, закрытый перфорированными алюминиевыми панелями золотого цвета (отсюда название здания – «Золотой куб»), скрывает за этими проницаемыми поверхностями домики для птиц. На высоте 2–5 м устроены неглубокие жилища для воробьев, синиц, горихвосток, выше 5 метров – более крупные домики для стрижей. Все они выполнены из устойчивой к влажности древесины лиственницы и гигантской туи. Домики недоступны для двуногих жильцов Golden Cube и не требуют никакого обслуживания.
 
Студенческое общежитие Golden Cube © Sergio Grazia
Студенческое общежитие Golden Cube © Sergio Grazia

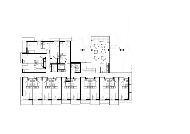
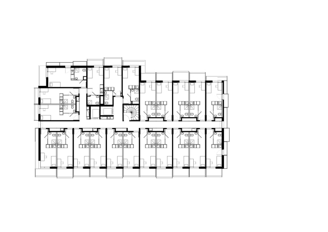
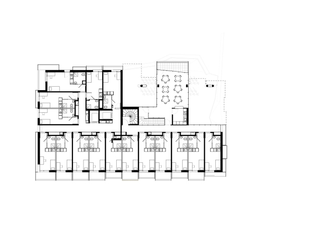
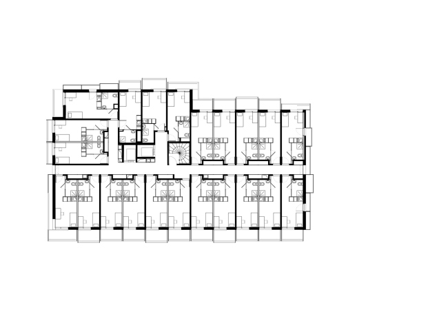
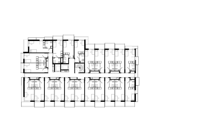
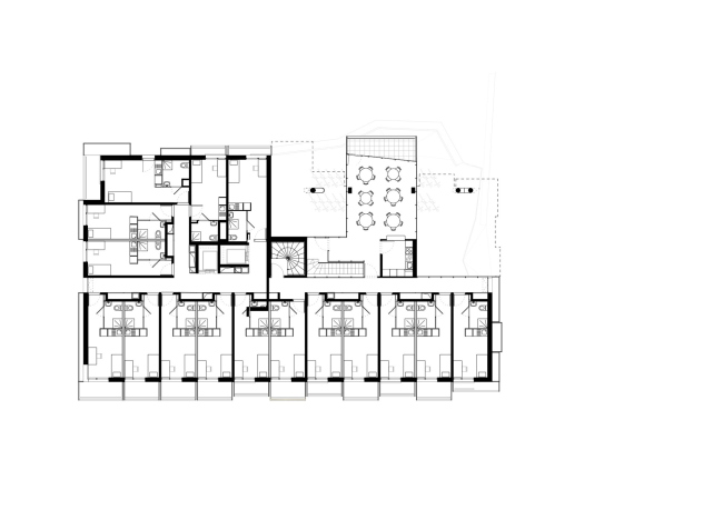
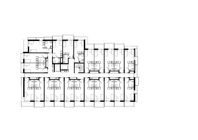
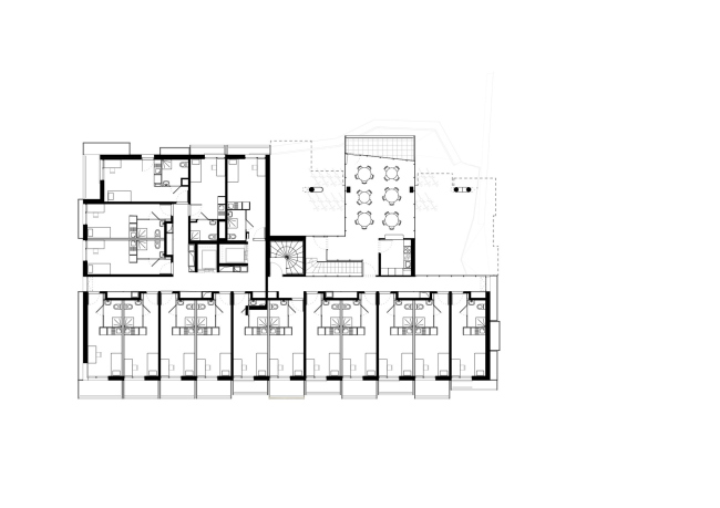
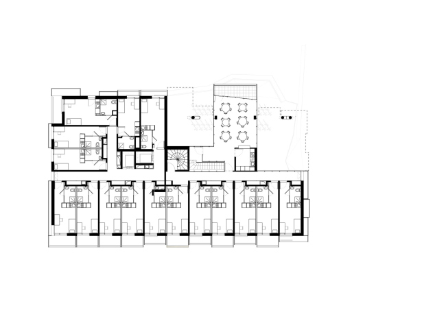
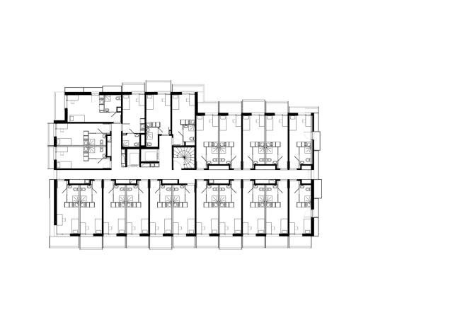
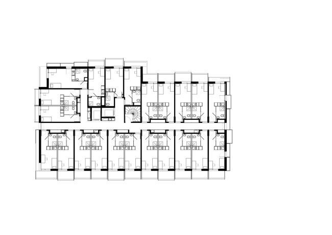
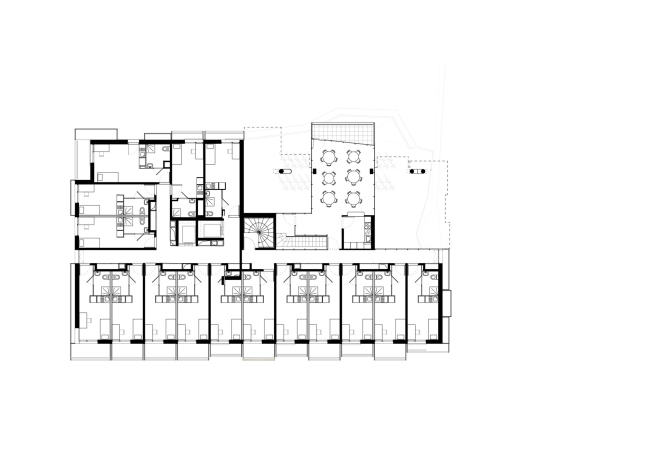
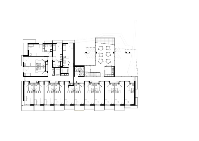
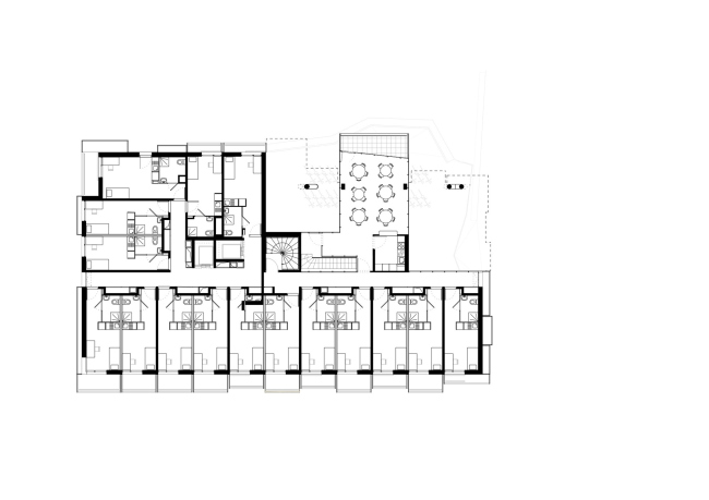
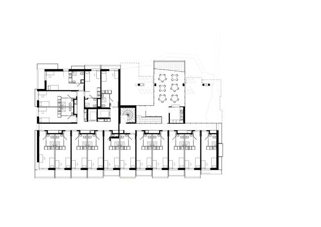
В восьмиэтажном здании имеется 156 комнат, причем почти каждая снабжена лоджией. Эти лоджии, как и использование перфорированного металла, размывают границы здания, придавая динамику компактному объему.
 
Студенческое общежитие Golden Cube © Sergio Grazia
Студенческое общежитие Golden Cube © Sergio Grazia

Общая площадь постройки – 3200 м2, бюджет – 4,5 млн евро.
Студенческое общежитие Golden Cube © Sergio Grazia
Студенческое общежитие Golden Cube © Sergio Grazia
Студенческое общежитие Golden Cube © Christophe Demonfaucon
Студенческое общежитие Golden Cube © Christophe Demonfaucon
Студенческое общежитие Golden Cube © Sergio Grazia
Студенческое общежитие Golden Cube © Sergio Grazia
Студенческое общежитие Golden Cube © Sergio Grazia
Студенческое общежитие Golden Cube © Sergio Grazia
Студенческое общежитие Golden Cube © Sergio Grazia
Студенческое общежитие Golden Cube © Sergio Grazia
Студенческое общежитие Golden Cube © Hamonic + Masson & Associés
Студенческое общежитие Golden Cube © Hamonic + Masson & Associés
Студенческое общежитие Golden Cube © Hamonic + Masson & Associés
Студенческое общежитие Golden Cube © Hamonic + Masson & Associés
Студенческое общежитие Golden Cube © Hamonic + Masson & Associés
Студенческое общежитие Golden Cube © Hamonic + Masson & Associés
Студенческое общежитие Golden Cube © Hamonic + Masson & Associés
Студенческое общежитие Golden Cube © Hamonic + Masson & Associés
Студенческое общежитие Golden Cube © Hamonic + Masson & Associés
Студенческое общежитие Golden Cube © Hamonic + Masson & Associés
Студенческое общежитие Golden Cube © Hamonic + Masson & Associés
Студенческое общежитие Golden Cube © Hamonic + Masson & Associés
Студенческое общежитие Golden Cube © Hamonic + Masson & Associés
Студенческое общежитие Golden Cube © Hamonic + Masson & Associés