Размещено на портале Архи.ру (www.archi.ru)

18.05.2016

Растворение в саду

Нина Фролова
Объект:
Онкологический центр Мэгги в больнице Кристи
Адрес:
Великобритания, None, Манчестер.
Мастерская:
Foster + Partners

В Манчестере открылся онкологический Центр Мэгги по проекту Нормана Фостера.

Центр Мэгги в больнице Кристи
Центр Мэгги в больнице Кристи
Фото © Nigel Young / Foster + Partners

Центр Мэгги приписан к больнице Кристи, где имеется крупное и передовое отделение онкологии. Новая постройка, как и все другие центры этой благотворительной сети, должен дополнить «штатное» медицинское учреждение: там, в комфортной, практически домашней атмосфере пациенты смогут получить консультацию, заняться гимнастикой, найти нужную литературу в библиотеке или просто отдохнуть – одному или в компании.
 
Центр Мэгги в больнице Кристи © Nigel Young / Foster + Partners
Центр Мэгги в больнице Кристи © Nigel Young / Foster + Partners

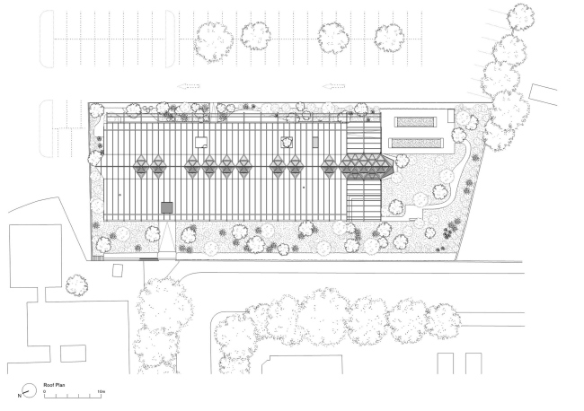
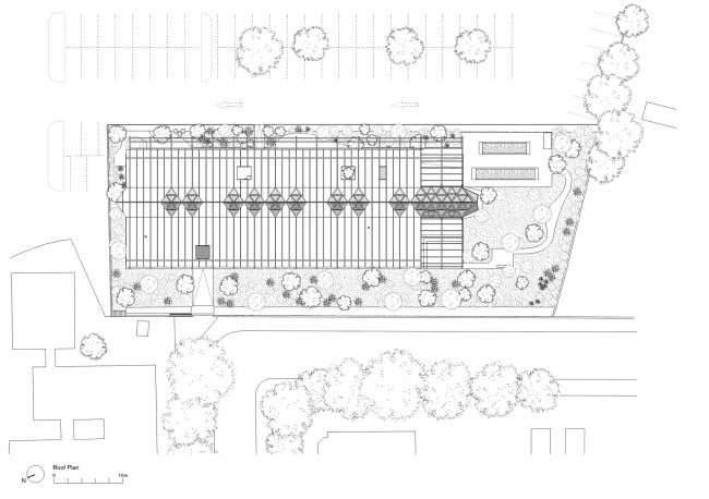
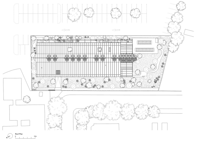
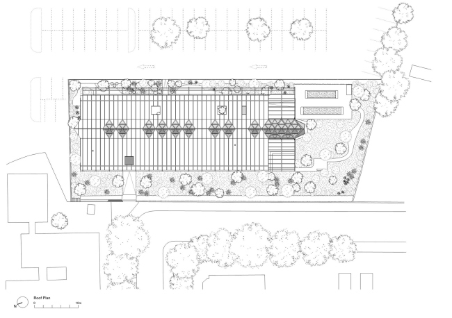
В сердце здания, как и во всех других Центрах Мэгги, расположена кухня и большой стол. Остальные помещения организованы вокруг, лишь офисы сотрудников подняты на антресольный этаж. Целью Нормана Фостера было «растворить» здание в саду: он выделил именно этот, природный аспект британского дома, на который ориентированы все постройки сети.
 
Центр Мэгги в больнице Кристи
Центр Мэгги в больнице Кристи
Фото © Nigel Young / Foster + Partners

Поэтому деревянный каркас сочетается с обильным остеклением, в том числе на кровле; с запада сделана просторная веранда, где можно проводить время на открытом воздухе даже в непогоду, с юга – теплица, где пациенты смогут не только выращивать цветы (это будет своего рода психотерапией), но и встречаться за общим столом. Все консультационные и процедурные кабинеты получили по собственному садику с восточного фасада.
 
Центр Мэгги в больнице Кристи © Nigel Young / Foster + Partners
Центр Мэгги в больнице Кристи © Nigel Young / Foster + Partners

Невысокое, вытянутое по горизонтали здание сочетается с двухэтажной жилой застройкой соседних улиц. Предполагается, что его деревянный каркас станет опорой для вьющихся растений, которые частично оплетут его, завершив растворение постройки в природной среде. Мебель для Центра Мэгги была специально спроектирована самим Фостером и главой подразделения промышленного дизайна Foster + Partners Майком Холландом.
 
Камилла, герцогиня Корнуольская и президент благотворительного фонда Maggie’s, и Норман Фостер осматривают Центр Мэгги в больнице Кристи в день открытия © Nigel Young / Foster + Partners
Камилла, герцогиня Корнуольская и президент благотворительного фонда Maggie’s, и Норман Фостер осматривают Центр Мэгги в больнице Кристи в день открытия © Nigel Young / Foster + Partners

Выбор архитектора для манчестерского Центра Мэгги был неслучайным: Норман Фостер родился в этом городе и провел там свою юность. Кроме того, как подчеркивает сам архитектор, тема борьбы с раком ему близка, т.к. он сам перенес онкологическое заболевание.
Центр Мэгги в больнице Кристи
Центр Мэгги в больнице Кристи
Фото © Nigel Young / Foster + Partners
Центр Мэгги в больнице Кристи © Nigel Young / Foster + Partners
Центр Мэгги в больнице Кристи © Nigel Young / Foster + Partners
Центр Мэгги в больнице Кристи
Центр Мэгги в больнице Кристи
Фото © Nigel Young / Foster + Partners
Центр Мэгги в больнице Кристи
Центр Мэгги в больнице Кристи
Фото © Nigel Young / Foster + Partners
Центр Мэгги в больнице Кристи © Foster + Partners
Центр Мэгги в больнице Кристи © Foster + Partners
Центр Мэгги в больнице Кристи © Foster + Partners
Центр Мэгги в больнице Кристи © Foster + Partners
Центр Мэгги в больнице Кристи © Foster + Partners
Центр Мэгги в больнице Кристи © Foster + Partners
Центр Мэгги в больнице Кристи © Foster + Partners
Центр Мэгги в больнице Кристи © Foster + Partners
Центр Мэгги в больнице Кристи © Foster + Partners
Центр Мэгги в больнице Кристи © Foster + Partners
Центр Мэгги в больнице Кристи © Foster + Partners
Центр Мэгги в больнице Кристи © Foster + Partners
Центр Мэгги в больнице Кристи © Foster + Partners
Центр Мэгги в больнице Кристи © Foster + Partners
Центр Мэгги в больнице Кристи © Foster + Partners
Центр Мэгги в больнице Кристи © Foster + Partners
Центр Мэгги в больнице Кристи © Foster + Partners
Центр Мэгги в больнице Кристи © Foster + Partners
Центр Мэгги в больнице Кристи © Foster + Partners
Центр Мэгги в больнице Кристи © Foster + Partners
Центр Мэгги в больнице Кристи © Foster + Partners
Центр Мэгги в больнице Кристи © Foster + Partners
Центр Мэгги в больнице Кристи © Foster + Partners
Центр Мэгги в больнице Кристи © Foster + Partners
Центр Мэгги в больнице Кристи © Foster + Partners
Центр Мэгги в больнице Кристи © Foster + Partners
Центр Мэгги в больнице Кристи © Foster + Partners
Центр Мэгги в больнице Кристи © Foster + Partners
Центр Мэгги в больнице Кристи © Foster + Partners
Центр Мэгги в больнице Кристи © Foster + Partners
Центр Мэгги в больнице Кристи © Norman Foster
Центр Мэгги в больнице Кристи © Norman Foster
Центр Мэгги в больнице Кристи © Norman Foster
Центр Мэгги в больнице Кристи © Norman Foster
Центр Мэгги в больнице Кристи © Norman Foster
Центр Мэгги в больнице Кристи © Norman Foster
Центр Мэгги в больнице Кристи © Norman Foster
Центр Мэгги в больнице Кристи © Norman Foster
Центр Мэгги в больнице Кристи © Norman Foster
Центр Мэгги в больнице Кристи © Norman Foster