Размещено на портале Архи.ру (www.archi.ru)

16.06.2016

Анатолий Столярчук: «Для сегодняшних гипермаркетов архитектор не нужен»

Ирина Бембель
Объект:
Торговый комплекс «Лента» на Бухарестской улице
Адрес:
Россия, Санкт-Петербург. Бухарестская улица, д.69
Торговый комплекс «Лента» на Выборгском шоссе
Адрес:
Россия, Санкт-Петербург. Выборгское шоссе, д. 11
Торговый комплекс «Лента» на набережной Обводного канала
Адрес:
Россия, Санкт-Петербург. Набережная Обводного канала, д. 118, к. 7
Торговый комплекс «Лента» на Пулковском шоссе
Адрес:
Россия, Санкт-Петербург. Пулковское шоссе, д. 33
Торговый комплекс «Лента» на Таллинском шоссе
Адрес:
Россия, Санкт-Петербург. Таллинское шоссе, д. 159
Архитектор:
Анатолий Столярчук
Мастерская:
АМ А.А. Столярчука
Авторский коллектив:
Архитекторы: Столярчук А.А., Рубина Е.Е., Васильева О.А., Ландышева Н.А.
Конструкторы: Иоффе В.М., Курбатов О.А., Миронков Б.А.

Гипермаркеты – один из наиболее востребованных видов современных сооружений. Есть ли в нём место для архитектуры, или всё исчерпывается требованиям технологий и экономичности? Об этом мы беседуем с Анатолием Столярчуком, автором серии «Лент» в Петербурге.

Торговый комплекс «Лента» на Бухарестской улице. Постройка, 2003 © Архитектурная мастерская А.А. Столярчука
Торговый комплекс «Лента» на Бухарестской улице. Постройка, 2003 © Архитектурная мастерская А.А. Столярчука
Archi.ru:
– Анатолий Аркадьевич, «Ленты» занимают в вашей творческой биографии большое место. Когда Вы начали работать с ними, о таких магазинах у нас почти никто не слышал. Между тем, жанр этот очень специфический: по сути гипермаркет – это машина, только не для жилья, а для торговли.
 

Анатолий Столярчук:
– Да, для нас это было внове. Кто-то видел гипермаркеты за границей, но для большинства наших сограждан понятие «продуктовый магазин» исчерпывалось гастрономом или булочной. В 2001 году, когда к нам обратился заказчик с предложением проектировать «Ленты», в Питере существовал лишь один торговый комплекс такого рода – на проспекте Энергетиков, в бывшем производственном корпусе, приспособленном для этой цели в конце 1990-х.

«Лента» – это магазин-склад, где логистика определяет всё, где все параметры просчитаны до сантиметра, где совместные усилия заказчика, маркетологов, психологов и дизайнеров направлены на то, чтобы покупатель утратил чувство реальности и оставил здесь все свои деньги.
Торговый комплекс «Лента» на Бухарестской улице. Постройка, 2003 © Архитектурная мастерская А.А. Столярчука
Торговый комплекс «Лента» на Бухарестской улице. Постройка, 2003 © Архитектурная мастерская А.А. Столярчука
Торговый комплекс «Лента» на Пулковском шоссе. Постройка, 2002 © Архитектурная мастерская А.А. Столярчука
Торговый комплекс «Лента» на Пулковском шоссе. Постройка, 2002 © Архитектурная мастерская А.А. Столярчука

– В отличие от ГУМов, ЦУМов и других фешенебельных торговых центров, гипермаркеты стремятся к предельной утилитарности. В то же время, их облик должен быть броским, зазывающим, «ярмарочным». Есть ли в этих «ножницах» место для полноценной архитектуры? Как вы решали эти проблемы?

 Как я уже говорил, вся технологическая начинка гипермаркета просчитана до сантиметра. Это складирование товаров, их разгрузка, размещение на прилавках, приготовление собственных полуфабрикатов и т.д. Расстояния между стеллажами завязаны на габариты электропогрузчика, который ездит между ними в течение двадцати четырёх часов. Мы работали с петербургскими, московскими и немецкими технологами. Всему учились на ходу.

Эти технологии надо было одеть в какую-то строительную рубашку. При этом никто не собирался выбрасывать деньги на архитектуру. Но к счастью, то время было ещё не чуждо какой-то романтики. На этом ощущении нам удалось убедить заказчика в необходимости дополнительных трат. Мы попытались сыграть на выразительности входных групп, которые должны привлекать покупателей. Также мы старались сделать более интересными пути следования людей. Они тоже технологически просчитаны, но используя освещение, элементы отделки, рекламу, мы добивались каких-то дополнительных эффектов. Все наши «Ленты» имеют разные входные группы. Сегодня, думаю, такое уже невозможно.
Торговый комплекс «Лента» на Дальневосточном проспекте. Фасад. Постройка,2009 © Архитектурная мастерская А.А. Столярчука
Торговый комплекс «Лента» на Дальневосточном проспекте. Фасад. Постройка,2009 © Архитектурная мастерская А.А. Столярчука

– Могут ли сооружения такого рода учитывать контекст?

– Гипермаркеты – это гигантские объёмы по 12 000 – 14 000 м2, которые требуют больших участков по 3 – 4 гектара земли. Здесь нужна парковка на 400 – 500 автомобилей и больше, место для подъезда грузового транспорта. В городе таких участков мало, проще их найти за городом. Поэтому о контексте речь, как правило, не идёт.

Первый адрес нашей «Ленты» – на улице Савушкина. Шестнадцать лет назад это была совершенно пустая территория. Далее было Пулковское шоссе, которое на тот момент окружало глинистое поле с квакающими с лягушками. Сейчас, как вы знаете, там нет живого места. На проспекте Кима на Васильевском острове это территория речного грузового порта. На Обводном канале – территория завода подъёмно-транспортного оборудования.
Торговый комплекс «Лента» на ул. Савушкина. Фасад. Постройка, 2001 © Архитектурная мастерская А.А. Столярчука
Торговый комплекс «Лента» на ул. Савушкина. Фасад. Постройка, 2001 © Архитектурная мастерская А.А. Столярчука
Торговый комплекс «Лента» на пр. Кима. Фасад. Постройка,2007 © Архитектурная мастерская А.А. Столярчука
Торговый комплекс «Лента» на пр. Кима. Фасад. Постройка,2007 © Архитектурная мастерская А.А. Столярчука
Торговый комплекс «Лента» на пр. Кима. Фасад. Постройка,2007 © Архитектурная мастерская А.А. Столярчука
Торговый комплекс «Лента» на пр. Кима. Фасад. Постройка,2007 © Архитектурная мастерская А.А. Столярчука

– Однако на Обводном ваша «Лента» имеет портики.

– На Обводном решение портиков не связано со стремлением подражать историческому Петербургу. Зданию с такой функцией «украшательство» противопоказано. И это не наш стиль работы, даже в центре города.

Но мы смотрим на то, что делается в мире. В своё время на меня произвёл большое впечатление Майкл Грэйвз: мне понравились его известные постмодернистские работы, в которых он стремился соединить несоединимое. Я попытался тоже пойти этим путём.
Торговый комплекс «Лента» на набережной Обводного канала. Постройка, 2005 © Архитектурная мастерская А.А. Столярчука
Торговый комплекс «Лента» на набережной Обводного канала. Постройка, 2005 © Архитектурная мастерская А.А. Столярчука
Торговый комплекс «Лента» на набережной Обводного канала. Постройка, 2005 © Архитектурная мастерская А.А. Столярчука
Торговый комплекс «Лента» на набережной Обводного канала. Постройка, 2005 © Архитектурная мастерская А.А. Столярчука
Торговый комплекс «Лента» на набережной Обводного канала. Постройка, 2005 © Архитектурная мастерская А.А. Столярчука
Торговый комплекс «Лента» на набережной Обводного канала. Постройка, 2005 © Архитектурная мастерская А.А. Столярчука

Надо сказать, что это решение заказчику не понравилось, он посчитал его излишне тяжеловесным. Однако проект всё же был воплощён, и после открытия тот же заказчик звонил и благодарил меня, потому что видел, как эти портки активно работают и как прекрасно зазывают людей (он специально наблюдал с противоположной стороны Обводного канала). Для меня же самое главное было «сделать архитектуру». Мы навязываем свои идеи заказчику, и это нормально. Если нам это удаётся – тогда получается что-то стоящее.

– Гипермаркеты – с одной стороны удобно, но это оборачивается полной унификацией, в том числе и архитектуры. Почему нас так привлекают (особенно за границей) маленькие магазинчики, где можно поговорить с продавцом, посоветоваться, что-то попробовать, – одним словом, где присутствует человеческий фактор, уют и индивидуальность. Булочные, фруктовые и мясные лавки, гастрономы – сегодня им всё труднее выжить в конкурентной борьбе с гипермаркетами.
 
– Одно другого не исключает и не заменяет. Как вы знаете, «Лента» – это не просто продуктовый и промтоварный магазин: здесь есть и кафе, и аптека, и различные терминалы и так далее. Когда можно относительно недорого наполнить товарами полную корзину на колёсах, отвезти её к машине и там оставить – это удобно. Почему такого рода магазины и процветают. И даже такие объекты можно делать интересными. Всё зависит от желания и доброй воли. Однако этой доброй воли становится всё меньше.

Мы спроектировали одиннадцать «Лент», а кроме того две «Метрики» и две «Касторамы». В год сдавалось по две «Ленты»: от пустого участка до открытия магазина, и каждый раз у нас получался индивидуальный объект. Однако последний проект был предельно упрощён, а потом заказчики просто перестали нуждаться в наших услугах. Для сегодняшних гипермаркетов архитектор не нужен.
И это не от плохой жизни. В этом году «Лента» собирается открыть по стране сорок новых магазинов.

– Казалось бы, можно выделить деньги на архитектора?

– А зачем?
 
беседовала: Ирина Бембель
Торговый комплекс «Лента» на ул. Савушкина. Фасад. Постройка, 2001 © Архитектурная мастерская А.А. Столярчука
Торговый комплекс «Лента» на ул. Савушкина. Фасад. Постройка, 2001 © Архитектурная мастерская А.А. Столярчука
Торговый комплекс «Лента» на Пулковском шоссе. Постройка, 2002 © Архитектурная мастерская А.А. Столярчука
Торговый комплекс «Лента» на Пулковском шоссе. Постройка, 2002 © Архитектурная мастерская А.А. Столярчука
Торговый комплекс «Лента» на Дальневосточном проспекте. Фасад. Постройка, 2009 © Архитектурная мастерская А.А. Столярчука
Торговый комплекс «Лента» на Дальневосточном проспекте. Фасад. Постройка, 2009 © Архитектурная мастерская А.А. Столярчука
Торговый комплекс «Лента» на Дальневосточном проспекте. Фасад. Постройка,2008 © Архитектурная мастерская А.А. Столярчука
Торговый комплекс «Лента» на Дальневосточном проспекте. Фасад. Постройка,2008 © Архитектурная мастерская А.А. Столярчука
Торговый комплекс «Лента» на Дальневосточном проспекте. Фасад. Постройка,2009 © Архитектурная мастерская А.А. Столярчука
Торговый комплекс «Лента» на Дальневосточном проспекте. Фасад. Постройка,2009 © Архитектурная мастерская А.А. Столярчука
Торговый комплекс «Лента» на Таллинском шоссе. Постройка, 2006 © Архитектурная мастерская А.А. Столярчука
Торговый комплекс «Лента» на Таллинском шоссе. Постройка, 2006 © Архитектурная мастерская А.А. Столярчука
Торговый комплекс «Лента» на Таллинском шоссе. Постройка, 2006 © Архитектурная мастерская А.А. Столярчука
Торговый комплекс «Лента» на Таллинском шоссе. Постройка, 2006 © Архитектурная мастерская А.А. Столярчука
Торговый комплекс «Лента» на Таллинском шоссе. Постройка, 2006 © Архитектурная мастерская А.А. Столярчука
Торговый комплекс «Лента» на Таллинском шоссе. Постройка, 2006 © Архитектурная мастерская А.А. Столярчука
Торговый комплекс «Лента» на Таллинском шоссе. Постройка, 2006 © Архитектурная мастерская А.А. Столярчука
Торговый комплекс «Лента» на Таллинском шоссе. Постройка, 2006 © Архитектурная мастерская А.А. Столярчука
Торговый комплекс «Лента» на Таллинском шоссе. Постройка, 2006 © Архитектурная мастерская А.А. Столярчука
Торговый комплекс «Лента» на Таллинском шоссе. Постройка, 2006 © Архитектурная мастерская А.А. Столярчука
Торговый комплекс «Лента» на Выборгском шоссе. Постройка, 2004 © Архитектурная мастерская А.А. Столярчука
Торговый комплекс «Лента» на Выборгском шоссе. Постройка, 2004 © Архитектурная мастерская А.А. Столярчука
Торговый комплекс «Лента» на Выборгском шоссе. Постройка, 2004 © Архитектурная мастерская А.А. Столярчука
Торговый комплекс «Лента» на Выборгском шоссе. Постройка, 2004 © Архитектурная мастерская А.А. Столярчука
Торговый комплекс «Лента» на Московском шоссе. Постройка, 2008 © Архитектурная мастерская А.А. Столярчука
Торговый комплекс «Лента» на Московском шоссе. Постройка, 2008 © Архитектурная мастерская А.А. Столярчука
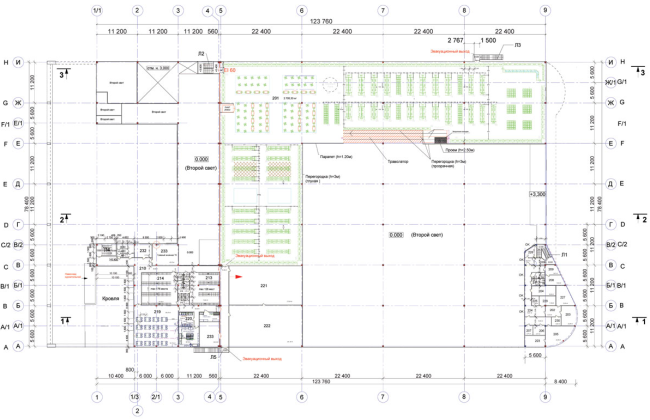
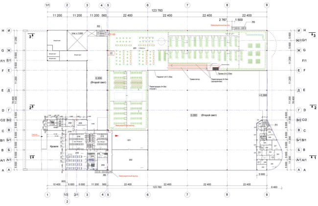
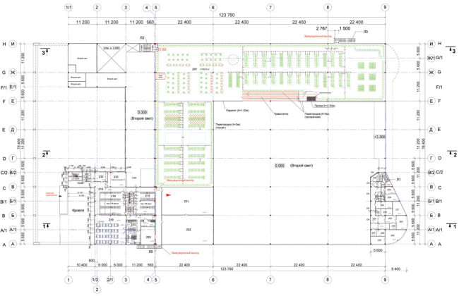
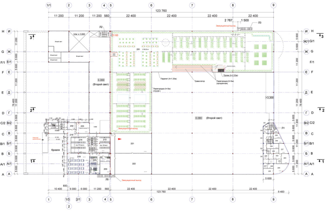
Торговый комплекс «Лента» на Выборгском шоссе. План 1 этажа. Постройка, 2004 © Архитектурная мастерская А.А. Столярчука
Торговый комплекс «Лента» на Выборгском шоссе. План 1 этажа. Постройка, 2004 © Архитектурная мастерская А.А. Столярчука
Торговый комплекс «Лента» на Выборгском шоссе. План 2 этажа. Постройка, 2004 © Архитектурная мастерская А.А. Столярчука
Торговый комплекс «Лента» на Выборгском шоссе. План 2 этажа. Постройка, 2004 © Архитектурная мастерская А.А. Столярчука
Торговый комплекс «Лента» на Выборгском шоссе. Разрез. Постройка, 2004 © Архитектурная мастерская А.А. Столярчука
Торговый комплекс «Лента» на Выборгском шоссе. Разрез. Постройка, 2004 © Архитектурная мастерская А.А. Столярчука
Торговый комплекс «Лента» на Выборгском шоссе. Фасад. Постройка, 2004 © Архитектурная мастерская А.А. Столярчука
Торговый комплекс «Лента» на Выборгском шоссе. Фасад. Постройка, 2004 © Архитектурная мастерская А.А. Столярчука
Торговый комплекс «Лента» на Выборгском шоссе. Генеральный план. Постройка, 2004 © Архитектурная мастерская А.А. Столярчука
Торговый комплекс «Лента» на Выборгском шоссе. Генеральный план. Постройка, 2004 © Архитектурная мастерская А.А. Столярчука