Размещено на портале Архи.ру (www.archi.ru)

04.08.2016

Больше атмосферы

Лилия Аронова
Объект:
Жилой дом Реномэ
Адрес:
Россия, Москва. ул. Новослободская, д. 24, стр. 2, 3, 4, 5, 6, 7, 8, 11
Архитектор:
Андрей Романов
Екатерина Кузнецова
Мастерская:
ADM
Авторский коллектив:
Руководители проекта: А.С. Романов, Е.И. Кузнецова; ГАП: А.А. Шишков; архитекторы Б.Н. Заец, А.В. Черепанова

Жилой комплекс на Новослободской улице: фрагмент исторического кирпичного фасада, современные камень, стекло и – большой зелёный полу-холм спускается с кровли магазинов первого этажа во двор.

Жилой дом на ул. Новослободская. Проект, 2016
Жилой дом на ул. Новослободская. Проект, 2016
© ADM

Несколько лет назад архитекторы бюро ADM закончили довольно-таки долгую и кропотливую работу по превращению промышленно-административных зданий между выходом из станции метро «Менделеевская» и Сущёвской улицей в бизнес-квартал «Атмосфера». Мы рассказывали об этом дважды: в начале реализации проекта и после его воплощения – закрытая территория в оживлённом районе Новослободской превратилась в череду умиротворённых двориков, чем-то неуловимо, но настойчиво напоминающих знаменитые берлинские Хакские дворы. Архитекторы даже поселили офис бюро ADM в новом бизнес-комплексе.

Теперь, продолжая осваивать район, ADM architicts спроектировали поблизости – между «Атмосферой» и Новослободской улицей, – новый жилой комплекс. Он расположится на месте другого промышленного предприятия: ткацкой фабрики XIX века. Большая часть фабричных корпусов предназначена под снос. Одно из зданий решено было воссоздать – четырехэтажный краснокирпичный образец промышленной архитектуры конца XIX века, видимый с Новослободской улицы в створе между бизнес-центром «Европа» и пятиэтажным доходным домом. Сквозь нагромождение облепивших его пристроек архитекторы разглядели красоту старых стен и решили спасти то, что можно, а остальное – воспроизвести как можно ближе «к тексту». Особенно авторам проекта нравится тот самый выходящий на Новослободскую западный фасад, где рядом с широкими фабричными окнами диагонально сбегают вниз три ряда узких арочных проемов. «Историческую архитектуру бессмысленно рассматривать с точки зрения логики, тогда люди строили более чувственно, – комментирует Андрей Романов. – В этой парадоксальности вся прелесть и состоит».
Жилой дом на ул. Новослободская. Генеральный план
Жилой дом на ул. Новослободская. Генеральный план
© ADM
Жилой дом на ул. Новослободская. Существующее положение
Жилой дом на ул. Новослободская. Существующее положение
© ADM
Жилой дом на ул. Новослободская. Существующее положение
Жилой дом на ул. Новослободская. Существующее положение
© ADM

Кроме этой стены, сохранить планируется и один из боковых фасадов, с более регулярным ритмом окон, – его «завернут» за угол, используя как основной модуль, и достроят две недостающие стены, повторяя все исторические детали. Увенчает исторический корпус надстройка-пентхаус со светлой крышей и широким шагом оконных проемов, не маскирующаяся под старину, но деликатно взаимодействующая с ней.
Жилой дом на ул. Новослободская. Благоустройство двора. Проект, 2016
Жилой дом на ул. Новослободская. Благоустройство двора. Проект, 2016
© ADM

То же можно сказать о фасадах десятиэтажного здания, в котором и сконцентрируются основные площади жилого комплекса. Г-образный в плане, с широкими торцами, этот объем будет хорошо виден с противоположной стороны Новослободской улицы. Лобби здания, его главный вход будет расположен в глубине квартала, со стороны бизнес-центра «Атмосфера», здесь авторы проекта несколько сдвигают границу пятна застройки.
Жилой дом на ул. Новослободская. Дворовый фасад. Проект, 2016
Жилой дом на ул. Новослободская. Дворовый фасад. Проект, 2016
© ADM
Жилой дом на ул. Новослободская. Благоустройство двора. Проект, 2016
Жилой дом на ул. Новослободская. Благоустройство двора. Проект, 2016
© ADM

В облицованных крупноразмерными плитами светлого натурального камня фасадах узнаётся хорошо известный по предыдущим проектам почерк ADM. «Шотландскую клетку» сгруппированных по два этажа окон оживляет, но не сбивает с ритма вольное чередование разной ширины пилонов, тонкие каменные пояса ненавязчиво обозначают границу между уровнями, тонкая полосатая разгранка едва шершавого «руста» пускает по поверхности стены легкую, почти на границе видимости рябь. Дополнительный цвет привносят вертикальные импосты из керамогранита ARCH-SKIN тона натурального дерева. Но на этот раз в лаконичную чистоту своего стиля авторы проекта решили добавить – совсем небольшую на самом деле – ноту гламура. «Поскольку это у нас своего рода дом-реноме, – объясняет Андрей Романов, – нам захотелось попробовать такой вариант. Этот язык мне кажется сейчас достаточно актуальным».

Материальным воплощением задуманной архитекторами игры стали украсившие фасады кованые балкончики и цветочницы с каменным рисунком. Размещаются они следующим образом: окна гостиных на чётных этажах несколько заглубляются относительно плоскости стены, образовавшееся пространство частично занимает каменный ящик цветочницы, а рядом появляется полукруглый, легкий, совершенно французский балкончик на одного человека, чье металлическое ограждение повторяет стилизованный растительный орнамент емкости для цветов. Через этаж эти элементы меняются местами: скажем, на четвёртом этаже балкончик слева, цветочница справа, на шестом – наоборот. На других этажах окна тоже во всю стену, но они, разумеется, целиком не открываются – ограждением служат стеклянные экраны с шелкографией по авторским эскизам.
Жилой дом на ул. Новослободская. Фрагмент фасада. Проект, 2016
Жилой дом на ул. Новослободская. Фрагмент фасада. Проект, 2016
© ADM
Жилой дом на ул. Новослободская. Фрагмент фасада. Проект, 2016
Жилой дом на ул. Новослободская. Фрагмент фасада. Проект, 2016
© ADM
Жилой дом на ул. Новослободская. Благоустройство двора. Проект, 2016. В процессе строительства
Жилой дом на ул. Новослободская. Благоустройство двора. Проект, 2016. В процессе строительства
© ADM
Жилой дом на ул. Новослободская. Дворовый фасад. Проект, 2016
Жилой дом на ул. Новослободская. Дворовый фасад. Проект, 2016
© ADM
Жилой дом на ул. Новослободская. Благоустройство двора. Проект, 2016
Жилой дом на ул. Новослободская. Благоустройство двора. Проект, 2016
© ADM
Жилой дом на ул. Новослободская. Проект, 2016
Жилой дом на ул. Новослободская. Проект, 2016
© ADM

Кроме двух жилых зданий, на участке присутствует ещё один объем – одноэтажный стилобат, предназначенный под ритейл. Авторы проекта расположили его вдоль южной границы участка, замкнув таким образом двор, – и это решение дало импульс для ещё одного пластического сюжета. Кровля стилобата стала верхним уровнем двора, откуда он плавно понижается до естественного уровня площадки. Поверхность этого насыпного холма архитекторы пересекают диагональными дорожками, образующими вытянутые ромбы: это и красиво, и функционально, ведь каждый, кто хоть раз взбирался в горку на лыжах, знает – по диагонали подниматься дольше, но легче. Поскольку перепад рельефа получается достаточно солидным, в целый этаж, насыпного грунта будет достаточно, чтобы посадить любые растения – вплоть до крупномерных деревьев. Более того, каждый из ромбов и сам по себе имеет определенный объем, а значит, образующиеся в результате площадки будут достаточно закрытыми, чтобы отдыхающие на них люди смогли почувствовать себя в уединении. Природный декор внутреннего двора усилят решетки из того же «деревянного» керамогранита ARCH-SKIN, которым будет отделан первый этаж основного корпуса. Так что двор имеет все шансы превратиться в цветущий холм. Тему мини-сада пунктирно подхватывают цветочные канапе – архитекторы надеются, что жители квартир поддержат идею, распространят и разовьют, донесут её до самых крыш.

Компания Sminex уже начала строительство. 
Жилой дом на ул. Новослободская. Фрагмент фасада. Проект, 2016
Жилой дом на ул. Новослободская. Фрагмент фасада. Проект, 2016
© ADM
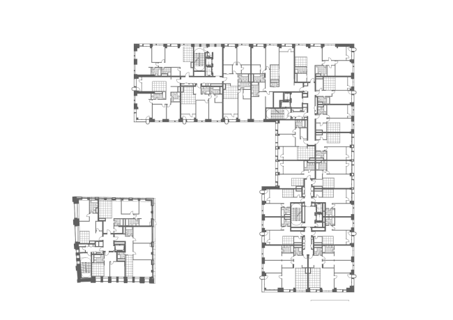
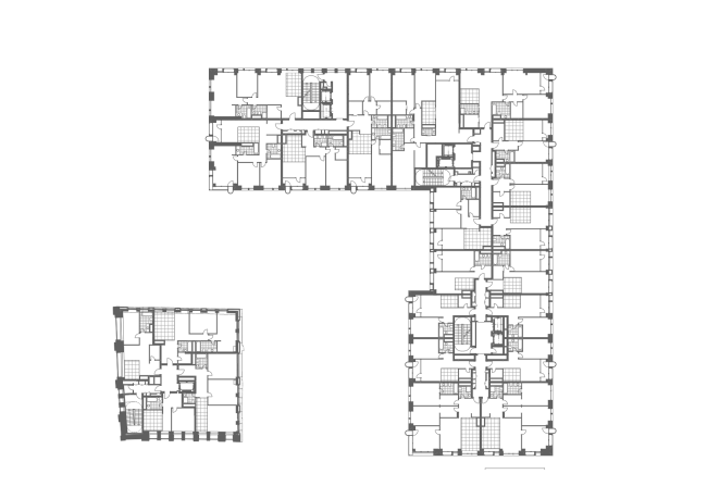
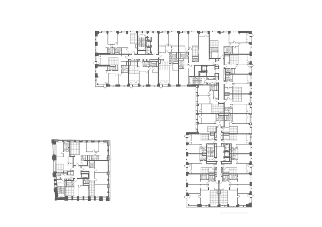
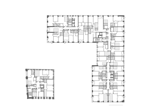
Жилой дом на ул. Новослободская. План 2 этажа
Жилой дом на ул. Новослободская. План 2 этажа
© ADM
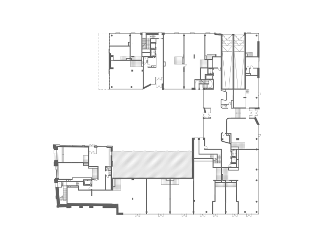
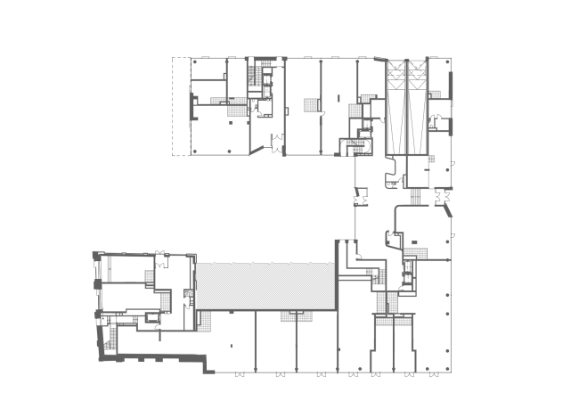
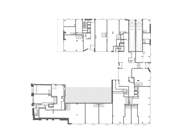
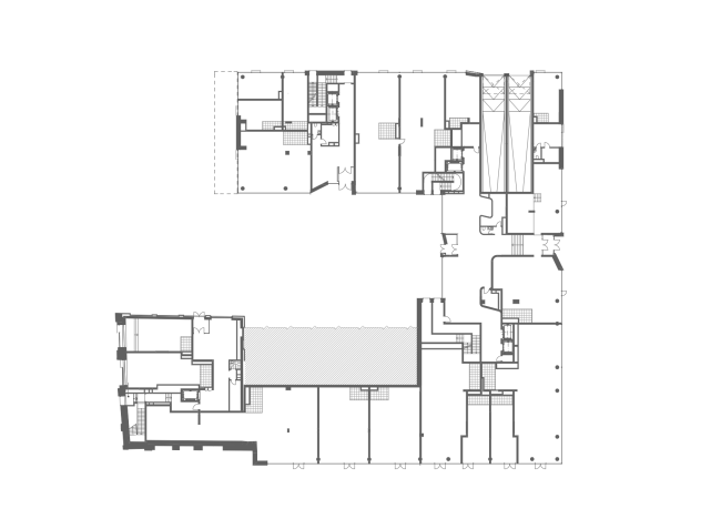
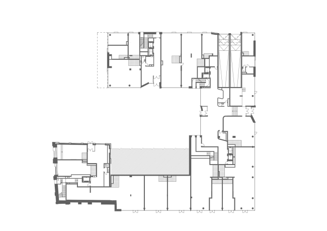
Жилой дом на ул. Новослободская. План 1 этажа
Жилой дом на ул. Новослободская. План 1 этажа
© ADM
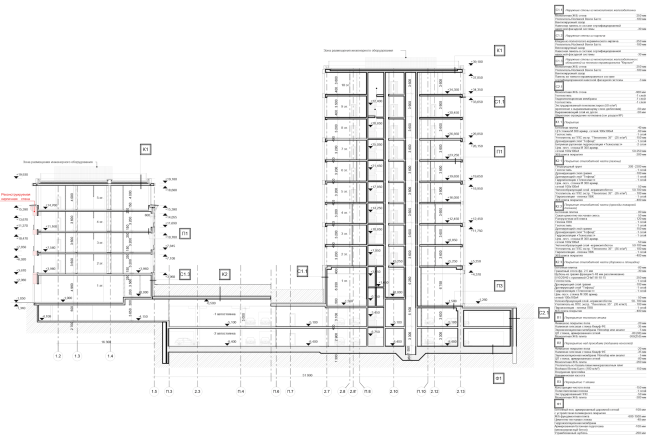
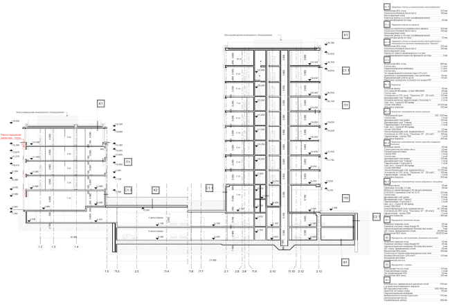
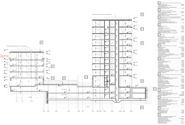
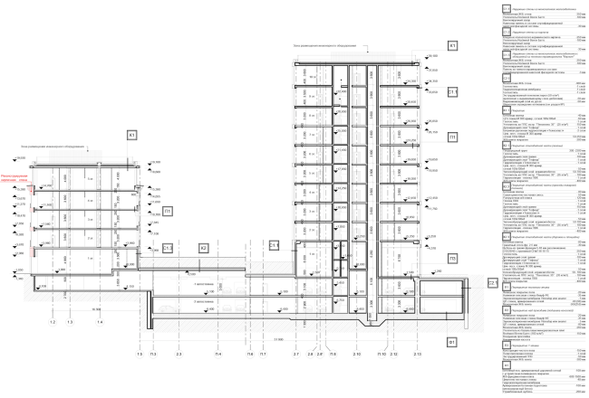
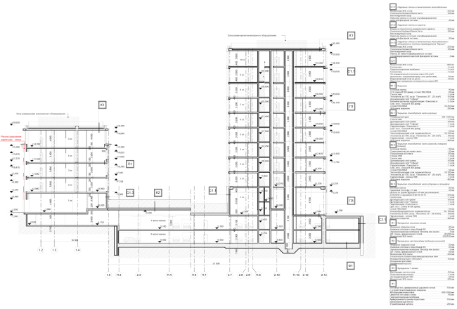
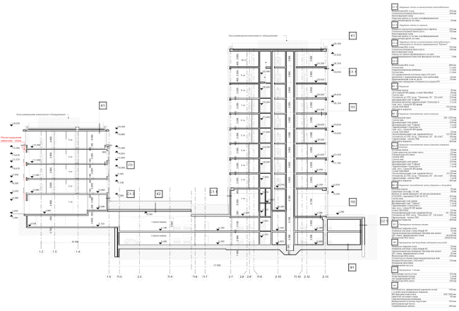
Жилой дом на ул. Новослободская. Разрез © ADM
Жилой дом на ул. Новослободская. Разрез © ADM