Размещено на портале Архи.ру (www.archi.ru)

17.05.2016

Вышивка по фасаду

Лилия Аронова
Объект:
Многофункциональный жилой комплекс на территории приборостроительного завода в Екатеринбурге. Второй проект
Адрес:
Россия, Екатеринбург. ул. Горького, д. 17
Архитектор:
Николай Макаров
Александр Бровкин
Полина Воеводина
Сергей Труханов
Мастерская:
Т+Т Architects
Авторский коллектив:
Руководитель архитектурной мастерской: С. Труханов
Руководитель проектного отдела: А. Бровкин
Главный архитектор проекта: Н. Макаров
Ведущий архитектор: А. Моисеев
Архитектор: А. Фадеев, Е. Степанова, Д. Караджан, В. Куприянов
Главный архитектор проекта (интерьеры): П. Воеводина

Новая версия проекта редевелопмента территории Уральского приборостроительного завода от T+T Architects.

Многофункциональный жилой комплекс в Екатеринбурге. Проект, 2016 © T+T Architects
Многофункциональный жилой комплекс в Екатеринбурге. Проект, 2016 © T+T Architects

Утвержденный заказчиком проект многофункционального жилого комплекса на территории Уральского приборостроительного завода, реализацию которого планируется начать в скором времени, существенно отличается от концепции, полтора года назад позволившей бюро Т+Т Architects выиграть объявленный администрацией Екатеринбурга конкурс. При этом неизменными остались принципиальные идеологические моменты – именно они, по признанию жюри, способствовали победе московских архитекторов: уважение к градостроительной ткани центральной части Екатеринбурга, сохранение исторического облика фасадов, использование в декоре традиционных уральских орнаментов. Что же касается функционального и планировочного аспектов, то тут все поменялось радикальным образом; более того, изначальная идея реконструкции заводских корпусов сменилась на новое строительство. Учесть все новые и старые обстоятельства оказалось непросто – по образному выражению главного архитектора проекта Николая Макарова, «пришлось пройти между множеством «сцилл и харибд».

За объявлением итогов конкурса последовала годичная пауза, вместившая достаточно много событий: каким-то образом появилась альтернативная концепция реконструкции (с фасадом в классическо-мавританском стиле), оба проекта активно обсуждали профессионалы и городская общественность, заказчик тем временем переоформлял документы и формировал новое ТЗ: вместо отеля и апартаментов решено было строить на месте завода жилые корпуса. В соответствии с решением градсовета Т+Т Architects доработали свой проект, который был одобрен заказчиком.
Многофункциональный жилой комплекс в Екатеринбурге. Ограничения участка. Проект, 2016 © T+T Architects
Многофункциональный жилой комплекс в Екатеринбурге. Ограничения участка. Проект, 2016 © T+T Architects
Многофункциональный жилой комплекс в Екатеринбурге. Аналитическая модель. Проект, 2016 © T+T Architects
Многофункциональный жилой комплекс в Екатеринбурге. Аналитическая модель. Проект, 2016 © T+T Architects
Многофункциональный жилой комплекс в Екатеринбурге. Схема вновь возводимых зданий. Проект, 2016 © T+T Architects
Многофункциональный жилой комплекс в Екатеринбурге. Схема вновь возводимых зданий. Проект, 2016 © T+T Architects

Комплекс УПЗ находится в самом центре Екатеринбурга, между набережной Городского пруда и улицей Пушкина. Вывод отсюда заводских цехов – процесс закономерный, отвечающий интересам и города, и самого предприятия. В ближайшем окружении завода – многочисленные историко-культурные объекты: Литературный квартал, дом-музей Мамина-Сибиряка, храмы, театры и музеи; на линии набережной с ним соседствуют классицистическая усадьба Зотова-Тарасова, занятая сейчас администрацией губернатора, и монументальный неоготический Дом Севастьянова с изящной угловой ротондой – едва ли не главная архитектурная достопримечательность Екатеринбурга. Включение нового объекта в такую видовую композицию – задача сама по себе непростая, а тут ещё в ходе подготовки новой концепции выяснилось, что значительную часть главного заводского корпуса, которая проходит вдоль Первомайской улицы и углом поворачивает на набережную, трогать нельзя: банк, занимающий сейчас эти помещения, отказался не только от реконструкции, но и от какого бы то ни было обновления фасадов. Так что главной «сциллой» стала необходимость визуального совмещения нового семиэтажного здания с вплотную примыкающим к нему четырёхэтажным историческим корпусом, причём на самой ответственной, парадной панораме.

«Мы стремились к тому, чтобы наша архитектура соответствовала заявленной типологии и не конкурировала с окружением, – объясняет Николай Макаров. – Поэтому в композиции фасада мы поддерживаем основные линии, существовавшие и в отделке заводских корпусов, и добавляем к горизонтальному членению вертикальное – как рефрен колоннады, остающейся на фасаде банковского корпуса в виде пилястр сдвоенных окон». Колоннада, которая визуально облегчает солидный прямоугольный объем и красиво отражается в речной воде, ещё и отсылает к парадным набережным классицизма». Нивелировать разницу высот нового и старого корпусов, выходящих на набережную, помогает тёмный камень, которым, по контрасту с основной частью фасада, архитекторы предлагают отделать верхние этажи.
Многофункциональный жилой комплекс в Екатеринбурге. Ситуационный план. Проект, 2016 © T+T Architects
Многофункциональный жилой комплекс в Екатеринбурге. Ситуационный план. Проект, 2016 © T+T Architects
Многофункциональный жилой комплекс в Екатеринбурге. Визуально-ландшафтный анализ. Проект, 2016 © T+T Architects
Многофункциональный жилой комплекс в Екатеринбурге. Визуально-ландшафтный анализ. Проект, 2016 © T+T Architects
Многофункциональный жилой комплекс в Екатеринбурге. Проект, 2016 © T+T Architects
Многофункциональный жилой комплекс в Екатеринбурге. Проект, 2016 © T+T Architects
Многофункциональный жилой комплекс в Екатеринбурге. Проект, 2016 © T+T Architects
Многофункциональный жилой комплекс в Екатеринбурге. Проект, 2016 © T+T Architects
Многофункциональный жилой комплекс в Екатеринбурге. Визуально-ландшафтный анализ. Проект, 2016 © T+T Architects
Многофункциональный жилой комплекс в Екатеринбурге. Визуально-ландшафтный анализ. Проект, 2016 © T+T Architects
Многофункциональный жилой комплекс в Екатеринбурге. Взаимодействие с контекстом. Проект, 2016 © T+T Architects
Многофункциональный жилой комплекс в Екатеринбурге. Взаимодействие с контекстом. Проект, 2016 © T+T Architects
Многофункциональный жилой комплекс в Екатеринбурге. Развертка по ул. Горького. Проект, 2016 © T+T Architects
Многофункциональный жилой комплекс в Екатеринбурге. Развертка по ул. Горького. Проект, 2016 © T+T Architects
Многофункциональный жилой комплекс в Екатеринбурге. Развертка по ул. Пушкина. Проект, 2016 © T+T Architects
Многофункциональный жилой комплекс в Екатеринбурге. Развертка по ул. Пушкина. Проект, 2016 © T+T Architects
Многофункциональный жилой комплекс в Екатеринбурге. Разрезы. Проект, 2016 © T+T Architects
Многофункциональный жилой комплекс в Екатеринбурге. Разрезы. Проект, 2016 © T+T Architects
Многофункциональный жилой комплекс в Екатеринбурге. Разрезы. Проект, 2016 © T+T Architects
Многофункциональный жилой комплекс в Екатеринбурге. Разрезы. Проект, 2016 © T+T Architects
Многофункциональный жилой комплекс в Екатеринбурге. Вид с высоты птичьего полета. Проект, 2016 © T+T Architects
Многофункциональный жилой комплекс в Екатеринбурге. Вид с высоты птичьего полета. Проект, 2016 © T+T Architects

Переплетение горизонталей и вертикалей образует многослойную структурную решётку: более крупное вертикальное членение повторяет рисунок заводского фасада, мелкие детали внутри него соответствуют масштабу соседней исторической застройки. Эту канву архитекторы «расшивают» мотивами, почёрпнутыми из традиционных местных ремесел – деревянного зодчества и уральской вышивки крестом. Тонко проработанный монохромный узор в сочетании с объёмной структурой фасада делают восприятие здания почти осязаемым – что особенно важно, учитывая тот факт, что средней перспективы у стоящего на набережной комплекса нет: его можно рассматривать или издали, с противоположного берега пруда, или совсем вблизи.
Многофункциональный жилой комплекс в Екатеринбурге. Поиск решений. Проект, 2016 © T+T Architects
Многофункциональный жилой комплекс в Екатеринбурге. Поиск решений. Проект, 2016 © T+T Architects
Многофункциональный жилой комплекс в Екатеринбурге. Поиск решений. Проект, 2016 © T+T Architects
Многофункциональный жилой комплекс в Екатеринбурге. Поиск решений. Проект, 2016 © T+T Architects
Многофункциональный жилой комплекс в Екатеринбурге. Схема устройства фасада корпуса А. Проект, 2016 © T+T Architects
Многофункциональный жилой комплекс в Екатеринбурге. Схема устройства фасада корпуса А. Проект, 2016 © T+T Architects
Многофункциональный жилой комплекс в Екатеринбурге. Фрагмент фасада корпуса А. Проект, 2016 © T+T Architects
Многофункциональный жилой комплекс в Екатеринбурге. Фрагмент фасада корпуса А. Проект, 2016 © T+T Architects
Многофункциональный жилой комплекс в Екатеринбурге. Входная группа корпуса А. Проект, 2016 © T+T Architects
Многофункциональный жилой комплекс в Екатеринбурге. Входная группа корпуса А. Проект, 2016 © T+T Architects
Многофункциональный жилой комплекс в Екатеринбурге. Схема устройства фасада корпуса Б. Проект, 2016 © T+T Architects
Многофункциональный жилой комплекс в Екатеринбурге. Схема устройства фасада корпуса Б. Проект, 2016 © T+T Architects
Многофункциональный жилой комплекс в Екатеринбурге. Входная группа корпуса Б. Проект, 2016 © T+T Architects
Многофункциональный жилой комплекс в Екатеринбурге. Входная группа корпуса Б. Проект, 2016 © T+T Architects

Т+Т Architects разработали несколько вариантов освещения фасадов, один из которых предполагает использование для декоративных элементов прозрачного бетона и внутреннюю подсветку узоров в контражуре. Если это предложение примут, по вечерам в розетках, украшающих фасад, будет трепетать почти настоящий живой огонь.
Многофункциональный жилой комплекс в Екатеринбурге. Схема освещения. Проект, 2016 © T+T Architects
Многофункциональный жилой комплекс в Екатеринбурге. Схема освещения. Проект, 2016 © T+T Architects

Амбициозности проекту добавило приближающееся трёхсотлетие Екатеринбурга (годом основания города считается 1723): редевелопмент территории УПЗ должен стать одной из ключевых строек в преддверии юбилея. Архитекторы предложили формат «клубного дома», для Екатеринбурга достаточно новый. Жилой комплекс будет состоять из двух корпусов разной этажности – 7 и 13 этажей, – но квартир в общей сложности запланировано не так много, всего 132 (что интересно, это количество делится точно поровну между корпусами, несмотря на абсолютно разную их конфигурацию). Клубный формат заставил отказаться от идеи проницаемости квартала для жителей города, заложенной в конкурсной концепции; напомним, она предполагала демонтаж части здания со стороны набережной и организацию сквозного прохода через двор. Этот разрыв, кстати, стал одним из наиболее дискуссионных моментов в период обсуждения. Теперь же абсолютно все уровни проекта, от мастер-планирования до оформления интерьеров, работают на создание камерной, почти домашней атмосферы «только для своих». Интерьеры общественных зон архитекторы разрабатывали с особым пиететом: «Ради них, – почти не шутит руководитель мастерской Сергей Труханов, – всё и затевалось!» Главное лобби клубного дома, считает он, должно быть похоже на гостиную в частном особняке, где найдется место и диванной группе, и библиотеке, и камину, и барной стойке (планируется, что жильцов и их гостей сможет обслуживать расположенный через стенку ресторан). Камерность и элегантная роскошь – эти принципы в проектах интерьеров соблюдены вплоть до таких деталей, как оформление почтовых ящиков. Что же касается неизбежной стойки ресепшн, то ей в этом пространстве придется выполнять роль «хорошей прислуги»: она есть, но скромно стоит в сторонке, не бросаясь в глаза.
Многофункциональный жилой комплекс в Екатеринбурге. Проект, 2016 © T+T Architects
Многофункциональный жилой комплекс в Екатеринбурге. Проект, 2016 © T+T Architects
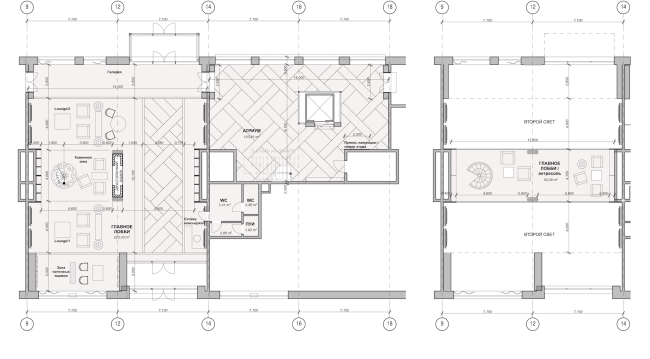
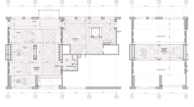
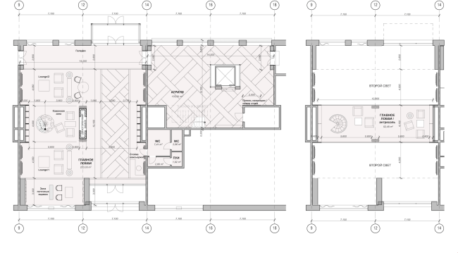
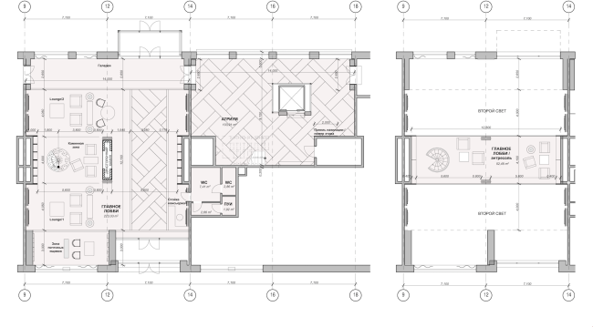
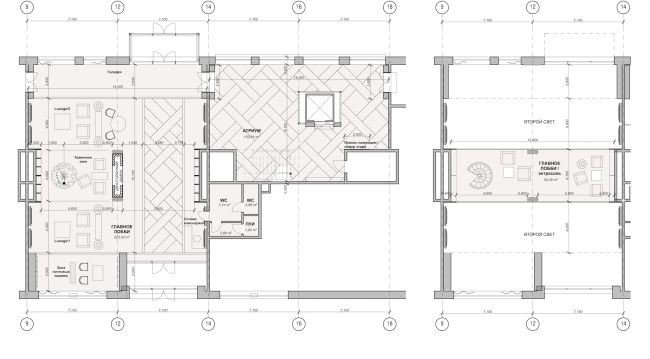
Многофункциональный жилой комплекс в Екатеринбурге. План лобби. Проект, 2016 © T+T Architects
Многофункциональный жилой комплекс в Екатеринбурге. План лобби. Проект, 2016 © T+T Architects
Многофункциональный жилой комплекс в Екатеринбурге. Интерьер лобби. Проект, 2016 © T+T Architects
Многофункциональный жилой комплекс в Екатеринбурге. Интерьер лобби. Проект, 2016 © T+T Architects
Многофункциональный жилой комплекс в Екатеринбурге. Интерьер лобби. Проект, 2016 © T+T Architects
Многофункциональный жилой комплекс в Екатеринбурге. Интерьер лобби. Проект, 2016 © T+T Architects
Многофункциональный жилой комплекс в Екатеринбурге. Интерьер лобби. Проект, 2016 © T+T Architects
Многофункциональный жилой комплекс в Екатеринбурге. Интерьер лобби. Проект, 2016 © T+T Architects
Многофункциональный жилой комплекс в Екатеринбурге. Интерьер лобби. Проект, 2016 © T+T Architects
Многофункциональный жилой комплекс в Екатеринбурге. Интерьер лобби. Проект, 2016 © T+T Architects
Многофункциональный жилой комплекс в Екатеринбурге. Интерьер лобби. Проект, 2016 © T+T Architects
Многофункциональный жилой комплекс в Екатеринбурге. Интерьер лобби. Проект, 2016 © T+T Architects

Входная группа расположена на том же месте, где раньше была заводская проходная. Будучи композиционным центром фасада, она тем не менее не претендует на доминирующую роль, выделяясь лишь изящным металлическим козырьком и узорным «ковром» из плитки перед дверями. Пройдя сквозь лобби – архитекторам особенно важно было сделать его сквозным, без ступенек и перепада высот, – в квартиры обоих корпусов можно попасть как по улице, через двор, так и по внутренней галерее, тянущейся по всему периметру семиэтажного здания и дальше по соединяющему корпуса одноэтажному стилобату, в котором планируется разместить бассейн. Поскольку галерея проходит вдоль внутреннего фасада, к которому примыкают и лестнично-лифтовые узлы, авторам проекта пришлось поломать голову над организацией пространства. В итоге лестницы отступили в глубь здания, лифты стали панорамными, и в каждом из четырех подъездов образовался полноценный атриум.
Многофункциональный жилой комплекс в Екатеринбурге. Проект, 2016 © T+T Architects
Многофункциональный жилой комплекс в Екатеринбурге. Проект, 2016 © T+T Architects
Многофункциональный жилой комплекс в Екатеринбурге. Проект, 2016 © T+T Architects
Многофункциональный жилой комплекс в Екатеринбурге. Проект, 2016 © T+T Architects
Многофункциональный жилой комплекс в Екатеринбурге. Схема устройства атриума. Проект, 2016 © T+T Architects
Многофункциональный жилой комплекс в Екатеринбурге. Схема устройства атриума. Проект, 2016 © T+T Architects
Многофункциональный жилой комплекс в Екатеринбурге. Проект, 2016 © T+T Architects
Многофункциональный жилой комплекс в Екатеринбурге. Проект, 2016 © T+T Architects
Многофункциональный жилой комплекс в Екатеринбурге. Лестничная клетка. Проект, 2016 © T+T Architects
Многофункциональный жилой комплекс в Екатеринбурге. Лестничная клетка. Проект, 2016 © T+T Architects

Здание бассейна, объединяющее корпуса, – ещё один предмет гордости архитекторов. При всей очевидной функциональности оно должно стать воплощением клубной идеологии, положенной в основу проекта. Ведь пешеходную галерею от самого бассейна отделяет только стеклянная стена – а значит, по дороге домой жители корпуса «В» смогут поприветствовать своих плещущихся в воде соседей, а те в свою очередь за счет стеклянных фасадов и разворота пилонов имеют возможность наблюдать за происходящим во внутреннем дворе. Внешний же облик этой постройки намеренно сделан максимально лаконичным – чтобы не отвлекать внимание от взаимодействия жилых корпусов, которое заслуживает отдельного внимания.
Многофункциональный жилой комплекс в Екатеринбурге. Проект, 2016 © T+T Architects
Многофункциональный жилой комплекс в Екатеринбурге. Проект, 2016 © T+T Architects
Многофункциональный жилой комплекс в Екатеринбурге. Схема бассейна с галереей. Проект, 2016 © T+T Architects
Многофункциональный жилой комплекс в Екатеринбурге. Схема бассейна с галереей. Проект, 2016 © T+T Architects
Многофункциональный жилой комплекс в Екатеринбурге. План бассейна. Проект, 2016 © T+T Architects
Многофункциональный жилой комплекс в Екатеринбурге. План бассейна. Проект, 2016 © T+T Architects
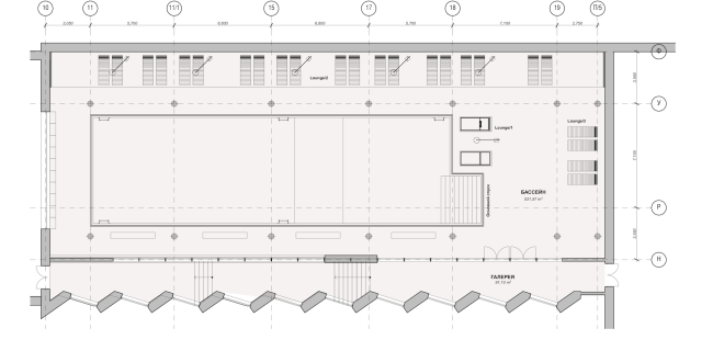
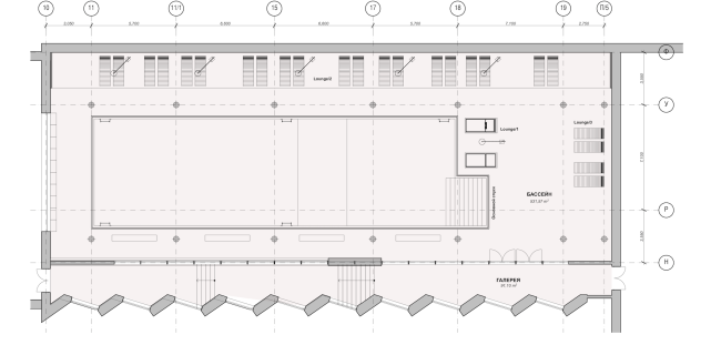
Многофункциональный жилой комплекс в Екатеринбурге. План галереи. Проект, 2016 © T+T Architects
Многофункциональный жилой комплекс в Екатеринбурге. План галереи. Проект, 2016 © T+T Architects
Многофункциональный жилой комплекс в Екатеринбурге. Бассейн. Проект, 2016 © T+T Architects
Многофункциональный жилой комплекс в Екатеринбурге. Бассейн. Проект, 2016 © T+T Architects
Многофункциональный жилой комплекс в Екатеринбурге. Бассейн. Проект, 2016 © T+T Architects
Многофункциональный жилой комплекс в Екатеринбурге. Бассейн. Проект, 2016 © T+T Architects
Многофункциональный жилой комплекс в Екатеринбурге. Бассейн. Проект, 2016 © T+T Architects
Многофункциональный жилой комплекс в Екатеринбурге. Бассейн. Проект, 2016 © T+T Architects

В отличие от корпуса «А», обнимающего квартал по периметру, корпус «Б» представляет собой тринадцатиэтажную башню. Ясно что при такой высоте он неминуемо будет возвышаться над линией набережной, но выбора у архитекторов не было – полезная площадь важна, – да он станет и не первой башней на панораме Городского пруда, здесь есть дома и повыше. А вот в решении фасада та же структурированная решетка, что положена в основу фасадов внешнего корпуса, ведет себя значительно более свободно: здесь её не сдерживает дисциплинирующее влияние исторической застройки набережной. Поэтому сбивается ритм вертикальных членений, вертикальные плоскости разворачиваются тупыми углами, и в целом здание производит впечатление более современного, но всё же тесно связанного со своим – пусть не близнецом, но все-таки братом. Зритель, находящийся во внутреннем дворе и имеющий возможность видеть оба корпуса сразу, непременно оценит этот градиентный стилистический переход от классической выдержанности к архитектурной свободе.
Многофункциональный жилой комплекс в Екатеринбурге. Проект, 2016 © T+T Architects
Многофункциональный жилой комплекс в Екатеринбурге. Проект, 2016 © T+T Architects
Многофункциональный жилой комплекс в Екатеринбурге. Проект, 2016 © T+T Architects
Многофункциональный жилой комплекс в Екатеринбурге. Проект, 2016 © T+T Architects

Поскольку внутри квартала существует значительный перепад рельефа – четыре метра, – двор разделён на две части: верхнюю и нижнюю. Внизу находится подземная парковка, благодаря разнице высот – полуторауровневая. В качестве подпорной стенки для верхнего двора выступает опять-таки здание бассейна. На склоне спроектирован оригинальный фонтан – вода вытекает прямо из-под стены дома и образует ручеек, впадающий в небольшой водоем, в котором отражаются пилоны бассейна. Центр композиции верхнего двора – круговая скамья-клумба, детская площадка аккуратно вписалась в изгиб пешеходных дорожек нижней части. Проектируя двор, архитекторам пришлось учитывать присутствие не только банковского корпуса, но и ещё нескольких строений, примыкающих к участку со стороны улицы Пушкина. В роли маленьких, но зубастых «харибд» выступили Пенсионный фонд и Дом-музей Мамина-Сибиряка, которые наряду с собственными зданиями владели помещениями на территории УПЗ. Авторам проекта пришлось не только обходить обе постройки, но и компенсировать утраченные площади; к счастью, в итоге все остались довольны. К чему и стремились.
Многофункциональный жилой комплекс в Екатеринбурге. Схема благоустройства территории. Проект, 2016 © T+T Architects
Многофункциональный жилой комплекс в Екатеринбурге. Схема благоустройства территории. Проект, 2016 © T+T Architects
Многофункциональный жилой комплекс в Екатеринбурге. Проект, 2016 © T+T Architects
Многофункциональный жилой комплекс в Екатеринбурге. Проект, 2016 © T+T Architects
Многофункциональный жилой комплекс в Екатеринбурге. Проект, 2016 © T+T Architects
Многофункциональный жилой комплекс в Екатеринбурге. Проект, 2016 © T+T Architects
Многофункциональный жилой комплекс в Екатеринбурге. План -2 этажа. Проект, 2016 © T+T Architects
Многофункциональный жилой комплекс в Екатеринбурге. План -2 этажа. Проект, 2016 © T+T Architects
Многофункциональный жилой комплекс в Екатеринбурге. План 1 этажа. Проект, 2016 © T+T Architects
Многофункциональный жилой комплекс в Екатеринбурге. План 1 этажа. Проект, 2016 © T+T Architects
Многофункциональный жилой комплекс в Екатеринбурге. План типового этажа (2-6). Проект, 2016 © T+T Architects
Многофункциональный жилой комплекс в Екатеринбурге. План типового этажа (2-6). Проект, 2016 © T+T Architects
Многофункциональный жилой комплекс в Екатеринбурге. План 7 этажа. Проект, 2016 © T+T Architects
Многофункциональный жилой комплекс в Екатеринбурге. План 7 этажа. Проект, 2016 © T+T Architects