Размещено на портале Архи.ру (www.archi.ru)

11.05.2016

Между городом и небом

Алина Измайлова
Объект:
Буддийский храм Синкодзи
Адрес:
Япония, None, Нагоя.
Мастерская:
Mamiaya Shinichi Design Studio

Помимо религиозной функции, новый буддийский храм Синкодзи в Нагое служит важным общественным пространством.

Буддийский храм Синкодзи построен в 2014 в старой части японского города Нагоя. Его проект принадлежит бюро Mamiya Shinichi Design Studio. По замыслу архитекторов, постройка должна стать для местных жителей проводником между городом и небесами.

Буддийский храм Синкодзи © Toshiyuki Yano
Буддийский храм Синкодзи © Toshiyuki Yano
Буддийский храм Синкодзи © Toshiyuki Yano
Буддийский храм Синкодзи © Toshiyuki Yano
Буддийский храм Синкодзи © Toshiyuki Yano
Буддийский храм Синкодзи © Toshiyuki Yano

Комплекс храма соответствует канонам буддизма, при этом неомодернистские формы его архитектуры очень далеки от традиции.
Буддийский храм Синкодзи © Toshiyuki Yano
Буддийский храм Синкодзи © Toshiyuki Yano

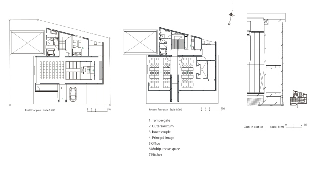
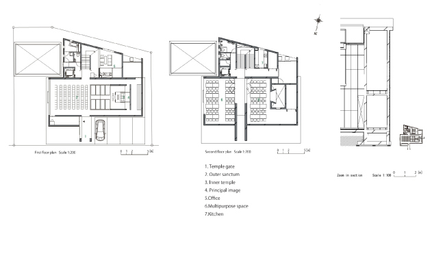
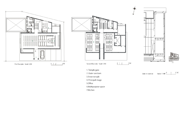
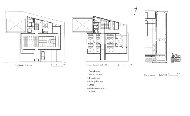
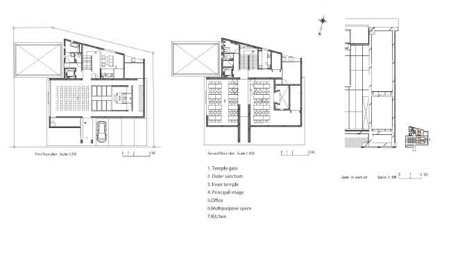
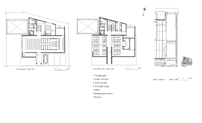
Общая площадь трёхэтажного здания составляет 493 м2. Два пилона при входе символизируют собой ворота – важный элемент для буддийского храма. Поддерживаемые ими балки делят комплекс на восточную и западную части.
Буддийский храм Синкодзи © Toshiyuki Yano
Буддийский храм Синкодзи © Toshiyuki Yano

Один из ключевых атрибутов учения, хондзон (свиток с изображением или статуя Будды – прим. Архи.ру), располагается в западной части здания на первом этаже. Пространство зала делится вертикально при помощи трёх источников освещения, идущих сверху вниз. Они воплощают три «драгоценности» учения, три стержневых идеала буддизма: Буцу (Будда), Хо (Дхарма) и Со (Сангха). Второй этаж было решено отдать под многофункциональный зал для посетителей храма. Здание венчает односкатная крыша.
Буддийский храм Синкодзи © Toshiyuki Yano
Буддийский храм Синкодзи © Toshiyuki Yano
Буддийский храм Синкодзи © Toshiyuki Yano
Буддийский храм Синкодзи © Toshiyuki Yano
Буддийский храм Синкодзи © Toshiyuki Yano
Буддийский храм Синкодзи © Toshiyuki Yano
Буддийский храм Синкодзи © Toshiyuki Yano
Буддийский храм Синкодзи © Toshiyuki Yano
Буддийский храм Синкодзи © Toshiyuki Yano
Буддийский храм Синкодзи © Toshiyuki Yano
Буддийский храм Синкодзи © Toshiyuki Yano
Буддийский храм Синкодзи © Toshiyuki Yano
Буддийский храм Синкодзи  © Mamiaya Shinichi Design Studio
Буддийский храм Синкодзи © Mamiaya Shinichi Design Studio
Буддийский храм Синкодзи  © Mamiaya Shinichi Design Studio
Буддийский храм Синкодзи © Mamiaya Shinichi Design Studio