Размещено на портале Архи.ру (www.archi.ru)

04.05.2016

Медные блоки

Нина Фролова
Объект:
Спортивно-зрелищный комплекс LE FORUM
Адрес:
Франция, None, Сен-Луи.

Мануэль Готран спроектировала спортивно-зрелищный комплекс LE FORUM в Сен-Луи на востоке Франции.

Спортивно-зрелищный комплекс LE FORUM © Guillaume Guerin
Спортивно-зрелищный комплекс LE FORUM © Guillaume Guerin

Сен-Луи – французский город, но является при этом пригородом швейцарского Базеля: он расположен в т.н. районе Трех границ, где сходятся в одной точке Франция, Германия и Швейцария.
 
Спортивно-зрелищный комплекс LE FORUM © Guillaume Guerin
Спортивно-зрелищный комплекс LE FORUM © Guillaume Guerin

В месте строительства «Ле Форум» немало односемейных жилых домов, поэтому Мануэль Готран учла этот скромный масштаб: вместо того, чтобы поместить свой двухзальный комплекс в крупный объем, она решила его в виде 13 частей, каждая – с двускатной крышей (отсылка к соседним сооружениям «частного сектора»). Они обшиты просечно-вытяжной сеткой, окрашенный в теплый медный цвет (краска была разработана специально для здания фирмой Akzo Nobel). Такой фасад отражает смешанный контекст – оранжевую черепицу домов и промышленные корпуса с черными трубами.
 
Спортивно-зрелищный комплекс LE FORUM © Guillaume Guerin
Спортивно-зрелищный комплекс LE FORUM © Guillaume Guerin

Зазор между сеткой и железобетонными стенами постройки стал укрытием для технического оборудования, а также климатическим «буфером», позволяющим экономить на охлаждении и отоплении помещений.
 
Спортивно-зрелищный комплекс LE FORUM © Guillaume Guerin
Спортивно-зрелищный комплекс LE FORUM © Guillaume Guerin

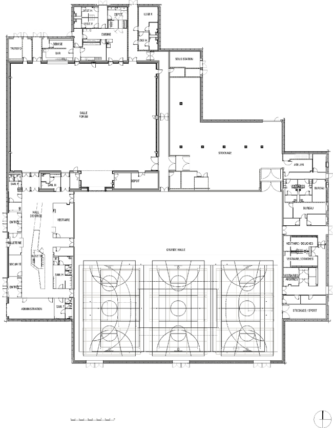
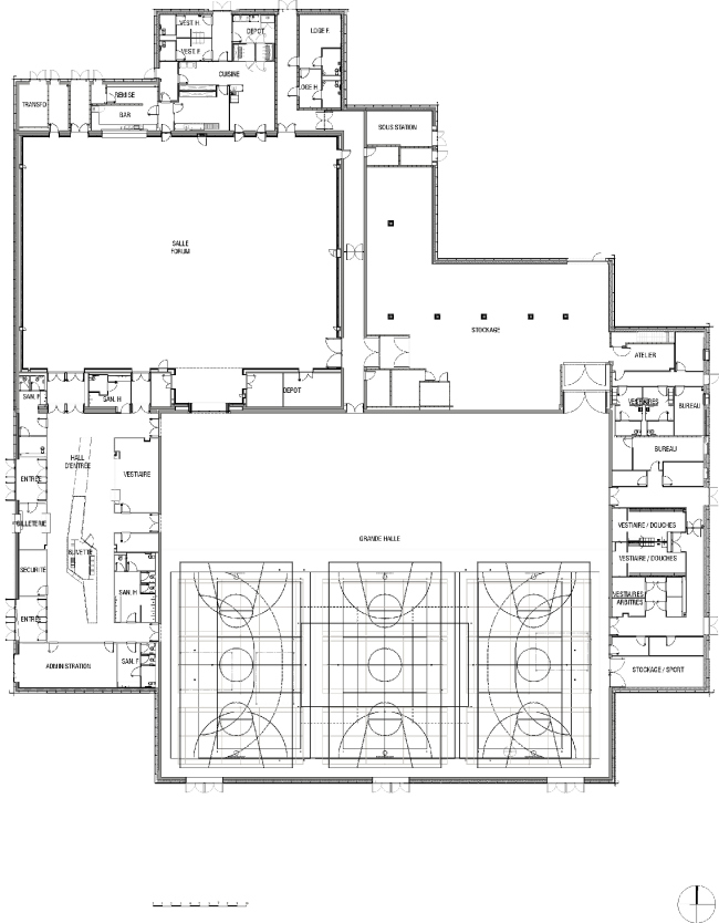
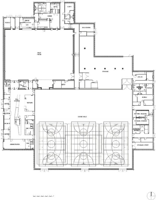
Внутри на общей площади в 5713 м2 расположены спортивный зал (он предназначен, в том числе, для уроков физкультуры и школьных соревнований) размером в 1870 м2 и «зал праздников» (870 м2). Их можно использовать для спортивных соревнований, конференций, банкетов и концертов. В случае проведения выставок и ярмарок возможно их объединять.
Спортивно-зрелищный комплекс LE FORUM © Guillaume Guerin
Спортивно-зрелищный комплекс LE FORUM © Guillaume Guerin
Спортивно-зрелищный комплекс LE FORUM © Guillaume Guerin
Спортивно-зрелищный комплекс LE FORUM © Guillaume Guerin
Спортивно-зрелищный комплекс LE FORUM © Guillaume Guerin
Спортивно-зрелищный комплекс LE FORUM © Guillaume Guerin
Спортивно-зрелищный комплекс LE FORUM © Guillaume Guerin
Спортивно-зрелищный комплекс LE FORUM © Guillaume Guerin
Спортивно-зрелищный комплекс LE FORUM © Guillaume Guerin
Спортивно-зрелищный комплекс LE FORUM © Guillaume Guerin
Спортивно-зрелищный комплекс LE FORUM © Guillaume Guerin
Спортивно-зрелищный комплекс LE FORUM © Guillaume Guerin
Спортивно-зрелищный комплекс LE FORUM © Luc Boegly
Спортивно-зрелищный комплекс LE FORUM © Luc Boegly
Спортивно-зрелищный комплекс LE FORUM © Luc Boegly
Спортивно-зрелищный комплекс LE FORUM © Luc Boegly
Спортивно-зрелищный комплекс LE FORUM © Luc Boegly
Спортивно-зрелищный комплекс LE FORUM © Luc Boegly
Спортивно-зрелищный комплекс LE FORUM © Guillaume Guerin
Спортивно-зрелищный комплекс LE FORUM © Guillaume Guerin
Спортивно-зрелищный комплекс LE FORUM © Guillaume Guerin
Спортивно-зрелищный комплекс LE FORUM © Guillaume Guerin
Спортивно-зрелищный комплекс LE FORUM © Guillaume Guerin
Спортивно-зрелищный комплекс LE FORUM © Guillaume Guerin
Спортивно-зрелищный комплекс LE FORUM © Guillaume Guerin
Спортивно-зрелищный комплекс LE FORUM © Guillaume Guerin
Спортивно-зрелищный комплекс LE FORUM © Guillaume Guerin
Спортивно-зрелищный комплекс LE FORUM © Guillaume Guerin
Спортивно-зрелищный комплекс LE FORUM © Guillaume Guerin
Спортивно-зрелищный комплекс LE FORUM © Guillaume Guerin
Спортивно-зрелищный комплекс LE FORUM © Guillaume Guerin
Спортивно-зрелищный комплекс LE FORUM © Guillaume Guerin
Спортивно-зрелищный комплекс LE FORUM © Guillaume Guerin
Спортивно-зрелищный комплекс LE FORUM © Guillaume Guerin
Спортивно-зрелищный комплекс LE FORUM © Guillaume Guerin
Спортивно-зрелищный комплекс LE FORUM © Guillaume Guerin
Спортивно-зрелищный комплекс LE FORUM © Guillaume Guerin
Спортивно-зрелищный комплекс LE FORUM © Guillaume Guerin
Спортивно-зрелищный комплекс LE FORUM © Luc Boegly
Спортивно-зрелищный комплекс LE FORUM © Luc Boegly
Спортивно-зрелищный комплекс LE FORUM © Luc Boegly
Спортивно-зрелищный комплекс LE FORUM © Luc Boegly
Спортивно-зрелищный комплекс LE FORUM © Manuelle Gautrand Architecture
Спортивно-зрелищный комплекс LE FORUM © Manuelle Gautrand Architecture
Спортивно-зрелищный комплекс LE FORUM © Manuelle Gautrand Architecture
Спортивно-зрелищный комплекс LE FORUM © Manuelle Gautrand Architecture
Спортивно-зрелищный комплекс LE FORUM © Manuelle Gautrand Architecture
Спортивно-зрелищный комплекс LE FORUM © Manuelle Gautrand Architecture
Спортивно-зрелищный комплекс LE FORUM © Manuelle Gautrand Architecture
Спортивно-зрелищный комплекс LE FORUM © Manuelle Gautrand Architecture
Спортивно-зрелищный комплекс LE FORUM © Manuelle Gautrand Architecture
Спортивно-зрелищный комплекс LE FORUM © Manuelle Gautrand Architecture
Спортивно-зрелищный комплекс LE FORUM © Manuelle Gautrand Architecture
Спортивно-зрелищный комплекс LE FORUM © Manuelle Gautrand Architecture
Спортивно-зрелищный комплекс LE FORUM © Manuelle Gautrand Architecture
Спортивно-зрелищный комплекс LE FORUM © Manuelle Gautrand Architecture
Спортивно-зрелищный комплекс LE FORUM © Manuelle Gautrand Architecture
Спортивно-зрелищный комплекс LE FORUM © Manuelle Gautrand Architecture
Спортивно-зрелищный комплекс LE FORUM © Manuelle Gautrand Architecture
Спортивно-зрелищный комплекс LE FORUM © Manuelle Gautrand Architecture
Спортивно-зрелищный комплекс LE FORUM © Manuelle Gautrand Architecture
Спортивно-зрелищный комплекс LE FORUM © Manuelle Gautrand Architecture