Размещено на портале Архи.ру (www.archi.ru)

29.04.2016

Дом с круговым обзором

Екатерина Ровнова
Объект:
Campus Hall – студенческое общежитие Университета Южной Дании
Адрес:
Дания, None, Оденсе.
Мастерская:
C. F. Møller

По проекту C. F. Møller возведено общежитие Campus Hall для Университета Южной Дании в Оденсе.

Campus Hall – студенческое общежитие Университета Южной Дании © Torben Eskerod
Campus Hall – студенческое общежитие Университета Южной Дании © Torben Eskerod

«Ржавый замок» (Rustenborg) – так называют студенты Университета Южной Дании свою альма-матер: большие поверхности необработанного бетона и кортеновской стали главного здания – образца датского функционализма 1960-х – создали идентичность учебного заведения, и даже студенческая газета называется просто и четко – «Ржавь» (Rust). Возможно, задачей архитектурного бюро C. F. Møller, активно занимающегося развитием кампуса, стоит некоторое размытие этого «ржавого» ореола, хотя и без отказа от преемственности через цитирование: в 2015 году было завершено строительство корпуса инженерного факультета, к 2020 планируется завершить обширный комплексный проект по устройству парка, а недавно возвели высотную доминанту – 15-этажное студенческое общежитие Campus Hall.
 
Campus Hall – студенческое общежитие Университета Южной Дании © Torben Eskerod
Campus Hall – студенческое общежитие Университета Южной Дании © Torben Eskerod

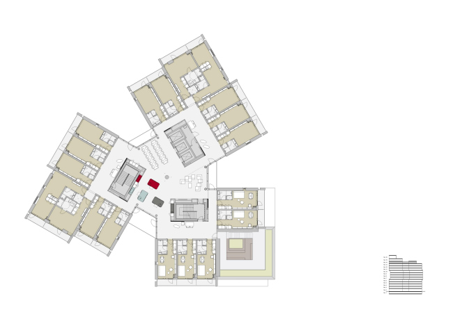
Новый жилой комплекс маркирует территорию с северного угла, совместно с парком, лесом, озером и ниспадающим рельефом создавая переходную зону между городом и университетом. Здание представляет собой три повернутые друг относительно друга корпуса, каждый из которых состоит из западающих и выступающих блоков, формирующих легкие консоли, ступенчатую крышу и пластику фасада. Таким образом, башня оказывается развернутой на 360 градусов – вовне и вовнутрь: задуманный цельный образ считывается из любой точки снаружи, а из внутреннего ядра открывается вид на эту любую точку – город, природу, университет.
 
Campus Hall – студенческое общежитие Университета Южной Дании © Torben Eskerod
Campus Hall – студенческое общежитие Университета Южной Дании © Torben Eskerod

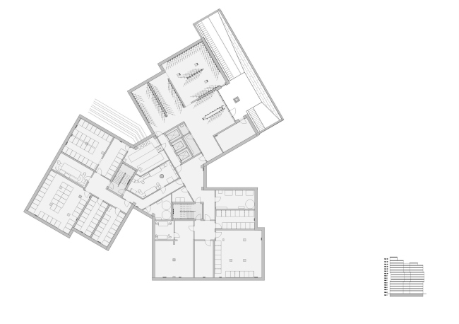
На 13 700 м2 общей площади расположились 250 жилых комнат и множество пространств общего пользования. Подвал здания отведен под велосипедную стоянку (велосипед предоставляется каждому арендатору), на первом этаже находятся кафе и помещения администрации, на верхнем – большие пространства для занятий и проведения праздников, выходящие на террасы на крыше, также оборудованные для отдыха и учебы. Меньшие по площади, более локальные общественные зоны расположены на каждом этаже: вокруг такого остекленного с трех сторон ядра с кухней и гостиной сгруппированы три жилых блока по 7 ячеек в каждом.
 
Campus Hall – студенческое общежитие Университета Южной Дании © Torben Eskerod
Campus Hall – студенческое общежитие Университета Южной Дании © Torben Eskerod

Эти ячейки представлены тремя типами: прямоугольные в плане 20-метровые одноместные комнаты формируют фасадную линию, а сблокированные попарно одноместные безбарьерные и 35-метровые двухместные ячейки создают выступающие углы здания. Стоимость месячной аренды этих комнат – от 3000 до 5000 датских крон (около 29 600 – 49 400 рублей).
 
Campus Hall – студенческое общежитие Университета Южной Дании © Torben Eskerod
Campus Hall – студенческое общежитие Университета Южной Дании © Torben Eskerod

По словам авторов, новое строение соответствует строгому датскому стандарту низкого энергопотребления – классу 2020: в проекте реализованы принципы «пассивного» проектирования – подобрана оптимальная форма и ориентация с учетом местных климатических условий, максимально использован дневной свет, рекуперированное тепло, дождевая и «серая» вода, эксплуатируется система естественной вентиляции.
 
Campus Hall – студенческое общежитие Университета Южной Дании © Torben Eskerod
Campus Hall – студенческое общежитие Университета Южной Дании © Torben Eskerod

Фасады здания облицованы серым кирпичом теплого оттенка со светлыми швами: плоскость стены разбивается узорной кладкой. Обшивка балконов из золотистой древесины твердых пород и бурых томпаковых панелей вбирает в себя колорит окружающего ландшафта и цитирует «ржавчину» основного корпуса, сохраняя преемственность и семантическую связь.
Campus Hall – студенческое общежитие Университета Южной Дании © Torben Eskerod
Campus Hall – студенческое общежитие Университета Южной Дании © Torben Eskerod
Campus Hall – студенческое общежитие Университета Южной Дании © Torben Eskerod
Campus Hall – студенческое общежитие Университета Южной Дании © Torben Eskerod
Campus Hall – студенческое общежитие Университета Южной Дании © Torben Eskerod
Campus Hall – студенческое общежитие Университета Южной Дании © Torben Eskerod
Campus Hall – студенческое общежитие Университета Южной Дании © Torben Eskerod
Campus Hall – студенческое общежитие Университета Южной Дании © Torben Eskerod
Campus Hall – студенческое общежитие Университета Южной Дании © Torben Eskerod
Campus Hall – студенческое общежитие Университета Южной Дании © Torben Eskerod
Campus Hall – студенческое общежитие Университета Южной Дании © Torben Eskerod
Campus Hall – студенческое общежитие Университета Южной Дании © Torben Eskerod
Campus Hall – студенческое общежитие Университета Южной Дании © Torben Eskerod
Campus Hall – студенческое общежитие Университета Южной Дании © Torben Eskerod
Campus Hall – студенческое общежитие Университета Южной Дании © Torben Eskerod
Campus Hall – студенческое общежитие Университета Южной Дании © Torben Eskerod
Campus Hall – студенческое общежитие Университета Южной Дании © Torben Eskerod
Campus Hall – студенческое общежитие Университета Южной Дании © Torben Eskerod
Campus Hall – студенческое общежитие Университета Южной Дании © Torben Eskerod
Campus Hall – студенческое общежитие Университета Южной Дании © Torben Eskerod
Campus Hall – студенческое общежитие Университета Южной Дании © Torben Eskerod
Campus Hall – студенческое общежитие Университета Южной Дании © Torben Eskerod
Campus Hall – студенческое общежитие Университета Южной Дании © Torben Eskerod
Campus Hall – студенческое общежитие Университета Южной Дании © Torben Eskerod
Campus Hall – студенческое общежитие Университета Южной Дании © Torben Eskerod
Campus Hall – студенческое общежитие Университета Южной Дании © Torben Eskerod
Campus Hall – студенческое общежитие Университета Южной Дании © Torben Eskerod
Campus Hall – студенческое общежитие Университета Южной Дании © Torben Eskerod
Campus Hall – студенческое общежитие Университета Южной Дании © Torben Eskerod
Campus Hall – студенческое общежитие Университета Южной Дании © Torben Eskerod
Campus Hall – студенческое общежитие Университета Южной Дании © Torben Eskerod
Campus Hall – студенческое общежитие Университета Южной Дании © Torben Eskerod
Campus Hall – студенческое общежитие Университета Южной Дании © Torben Eskerod
Campus Hall – студенческое общежитие Университета Южной Дании © Torben Eskerod
Campus Hall – студенческое общежитие Университета Южной Дании © Torben Eskerod
Campus Hall – студенческое общежитие Университета Южной Дании © Torben Eskerod
Campus Hall – студенческое общежитие Университета Южной Дании © Torben Eskerod
Campus Hall – студенческое общежитие Университета Южной Дании © Torben Eskerod
Campus Hall – студенческое общежитие Университета Южной Дании © Torben Eskerod
Campus Hall – студенческое общежитие Университета Южной Дании © Torben Eskerod
Campus Hall – студенческое общежитие Университета Южной Дании © Torben Eskerod
Campus Hall – студенческое общежитие Университета Южной Дании © Torben Eskerod
Campus Hall – студенческое общежитие Университета Южной Дании © Torben Eskerod
Campus Hall – студенческое общежитие Университета Южной Дании © Torben Eskerod
Campus Hall – студенческое общежитие Университета Южной Дании © Torben Eskerod
Campus Hall – студенческое общежитие Университета Южной Дании © Torben Eskerod
Campus Hall – студенческое общежитие Университета Южной Дании © Torben Eskerod
Campus Hall – студенческое общежитие Университета Южной Дании © Torben Eskerod
Campus Hall – студенческое общежитие Университета Южной Дании © Torben Eskerod
Campus Hall – студенческое общежитие Университета Южной Дании © Torben Eskerod
Campus Hall – студенческое общежитие Университета Южной Дании © Torben Eskerod
Campus Hall – студенческое общежитие Университета Южной Дании © Torben Eskerod
Campus Hall – студенческое общежитие Университета Южной Дании © Torben Eskerod
Campus Hall – студенческое общежитие Университета Южной Дании © Torben Eskerod
Campus Hall – студенческое общежитие Университета Южной Дании © Torben Eskerod
Campus Hall – студенческое общежитие Университета Южной Дании © Torben Eskerod
Campus Hall – студенческое общежитие Университета Южной Дании © Torben Eskerod
Campus Hall – студенческое общежитие Университета Южной Дании © Torben Eskerod
Campus Hall – студенческое общежитие Университета Южной Дании © Torben Eskerod
Campus Hall – студенческое общежитие Университета Южной Дании © Torben Eskerod
Campus Hall – студенческое общежитие Университета Южной Дании © Torben Eskerod
Campus Hall – студенческое общежитие Университета Южной Дании © Torben Eskerod
Campus Hall – студенческое общежитие Университета Южной Дании © Torben Eskerod
Campus Hall – студенческое общежитие Университета Южной Дании © Torben Eskerod
Campus Hall – студенческое общежитие Университета Южной Дании © Torben Eskerod
Campus Hall – студенческое общежитие Университета Южной Дании © Torben Eskerod
Campus Hall – студенческое общежитие Университета Южной Дании © Torben Eskerod
Campus Hall – студенческое общежитие Университета Южной Дании © Torben Eskerod
Campus Hall – студенческое общежитие Университета Южной Дании © Torben Eskerod
Campus Hall – студенческое общежитие Университета Южной Дании © Torben Eskerod
Campus Hall – студенческое общежитие Университета Южной Дании © C.F. Møller
Campus Hall – студенческое общежитие Университета Южной Дании © C.F. Møller
Campus Hall – студенческое общежитие Университета Южной Дании © C.F. Møller
Campus Hall – студенческое общежитие Университета Южной Дании © C.F. Møller
Campus Hall – студенческое общежитие Университета Южной Дании © C.F. Møller
Campus Hall – студенческое общежитие Университета Южной Дании © C.F. Møller
Campus Hall – студенческое общежитие Университета Южной Дании © C.F. Møller
Campus Hall – студенческое общежитие Университета Южной Дании © C.F. Møller
Campus Hall – студенческое общежитие Университета Южной Дании © C.F. Møller
Campus Hall – студенческое общежитие Университета Южной Дании © C.F. Møller
Campus Hall – студенческое общежитие Университета Южной Дании © C.F. Møller
Campus Hall – студенческое общежитие Университета Южной Дании © C.F. Møller
Campus Hall – студенческое общежитие Университета Южной Дании © C.F. Møller
Campus Hall – студенческое общежитие Университета Южной Дании © C.F. Møller
Campus Hall – студенческое общежитие Университета Южной Дании © C.F. Møller
Campus Hall – студенческое общежитие Университета Южной Дании © C.F. Møller
Campus Hall – студенческое общежитие Университета Южной Дании © C.F. Møller
Campus Hall – студенческое общежитие Университета Южной Дании © C.F. Møller
Campus Hall – студенческое общежитие Университета Южной Дании © C.F. Møller
Campus Hall – студенческое общежитие Университета Южной Дании © C.F. Møller
Campus Hall – студенческое общежитие Университета Южной Дании © C.F. Møller
Campus Hall – студенческое общежитие Университета Южной Дании © C.F. Møller
Campus Hall – студенческое общежитие Университета Южной Дании © C.F. Møller
Campus Hall – студенческое общежитие Университета Южной Дании © C.F. Møller
Campus Hall – студенческое общежитие Университета Южной Дании © C.F. Møller
Campus Hall – студенческое общежитие Университета Южной Дании © C.F. Møller
Campus Hall – студенческое общежитие Университета Южной Дании © C.F. Møller
Campus Hall – студенческое общежитие Университета Южной Дании © C.F. Møller
Campus Hall – студенческое общежитие Университета Южной Дании © C.F. Møller
Campus Hall – студенческое общежитие Университета Южной Дании © C.F. Møller
Campus Hall – студенческое общежитие Университета Южной Дании © C.F. Møller
Campus Hall – студенческое общежитие Университета Южной Дании © C.F. Møller
Campus Hall – студенческое общежитие Университета Южной Дании © C.F. Møller
Campus Hall – студенческое общежитие Университета Южной Дании © C.F. Møller
Campus Hall – студенческое общежитие Университета Южной Дании © C.F. Møller
Campus Hall – студенческое общежитие Университета Южной Дании © C.F. Møller
Campus Hall – студенческое общежитие Университета Южной Дании © C.F. Møller
Campus Hall – студенческое общежитие Университета Южной Дании © C.F. Møller
Campus Hall – студенческое общежитие Университета Южной Дании © C.F. Møller
Campus Hall – студенческое общежитие Университета Южной Дании © C.F. Møller
Campus Hall – студенческое общежитие Университета Южной Дании © C.F. Møller
Campus Hall – студенческое общежитие Университета Южной Дании © C.F. Møller
Campus Hall – студенческое общежитие Университета Южной Дании © C.F. Møller
Campus Hall – студенческое общежитие Университета Южной Дании © C.F. Møller
Campus Hall – студенческое общежитие Университета Южной Дании © C.F. Møller
Campus Hall – студенческое общежитие Университета Южной Дании © C.F. Møller
Campus Hall – студенческое общежитие Университета Южной Дании © C.F. Møller
Campus Hall – студенческое общежитие Университета Южной Дании © C.F. Møller
Campus Hall – студенческое общежитие Университета Южной Дании © C.F. Møller
Campus Hall – студенческое общежитие Университета Южной Дании © C.F. Møller
Campus Hall – студенческое общежитие Университета Южной Дании © C.F. Møller
Campus Hall – студенческое общежитие Университета Южной Дании © C.F. Møller