Размещено на портале Архи.ру (www.archi.ru)

05.05.2016

На пересечении культур

Ирина Бембель
Объект:
Опера и филармония Подляска. Европейский центр искусства в Белостоке
Адрес:
Польша, Белосток. Ул. Одеска, д. 1
Архитектор:
Марек Будзинский
Мастерская:
Budzynski & Badowski
Авторский коллектив:
Архитекторы: Марек Будзинский, Збигнев Бадовский, Кристина Илмужинска.

В 2012 году небольшой польский город на границе с Белоруссией обогатился новым зданием оперного театра, которому может позавидовать любая столица.

Опера и филармония Подляска. Европейский центр искусства в Белостоке. Постройка, 2012. Фотография © Ирина Бембель
Опера и филармония Подляска. Европейский центр искусства в Белостоке. Постройка, 2012. Фотография © Ирина Бембель
В 2006 году проект Марека Будзинского и Збигнева Бадовского победил в открытом международном конкурсе c 14 участниками. Полное название театра – «Опера и филармония Подляска. Европейский центр искусства в Белостоке». Театр задуман как грандиозный центр общеевропейского значения, способный стимулировать культурную жизнь и повысить туристическую привлекательность небольшого города[1] вблизи восточной границы страны. Строительство было профинансировано Евросоюзом и продолжалось восемь лет.

Комплекс расположен недалеко от центра Белостока, в окружении парков. Авторская идея учитывает поликультурную специфику восточной части Польши: здание театра и окружающее пространство призвано установить символическую связь между старым еврейским кладбищем и небольшим православным некрополем с маленькой одноглавой церковью. Идею диалога культур развивает соседство костёла Св. Роха.

Образ театра решён как храм искусства и природы. Характерная для Марека Будзинского колоннада главного фасада, а также открытый амфитеатр – главные акценты темы культуры и традиции. Ей вторит тема природы: зелёное пространство близлежащего парка перетекает в озеленённые фасады театра, его зелёную крышу и далее – в заросли исторических некрополей.
Опера и филармония Подляска. Европейский центр искусства в Белостоке. Постройка, 2012. Фотография © Ирина Бембель
Опера и филармония Подляска. Европейский центр искусства в Белостоке. Постройка, 2012. Фотография © Ирина Бембель
Опера и филармония Подляска. Европейский центр искусства в Белостоке. Амфитеатр. Постройка, 2012. Фотография © Ирина Бембель
Опера и филармония Подляска. Европейский центр искусства в Белостоке. Амфитеатр. Постройка, 2012. Фотография © Ирина Бембель

Комплекс включает продуманную систему культурно-природных связей. Улица Одесская, на которую выходит главный фасад, становится «осью искусства», на которую Будзинский «нанизывает» расположенный поблизости театр кукол, а также кинотеатр. При этом улица осталась по преимуществу пешеходной, с обозначенной полосой одностороннего автомобильного движения на низкой скорости 5-10 км/ч. Авторы продолжили эту короткую улицу, чтобы связать ул. Млынову с улицей Калиновского; к ней примкнула площадь Станислава Манюшки в виде обильно озеленённого партерного сквера. Предусмотрена возможность как «парадного» подъезда к главным входам Оперы, театра кукол и кинотеатра, так и заезда в подземные паркинги. Не только новый оперный театр, но и вся территория получила продуманную систему наземных и подземных автостоянок.
Опера и филармония Подляска. Европейский центр искусства в Белостоке. Генеральный план © Budzynski & Badowski
Опера и филармония Подляска. Европейский центр искусства в Белостоке. Генеральный план © Budzynski & Badowski

Таким образом, разрозненные объекты и зелёные зоны, перемежающиеся с пустырями, были объединены в цельное, осмысленное пространство, пронизанное наглядными символическими связями и удобными коммуникациями.

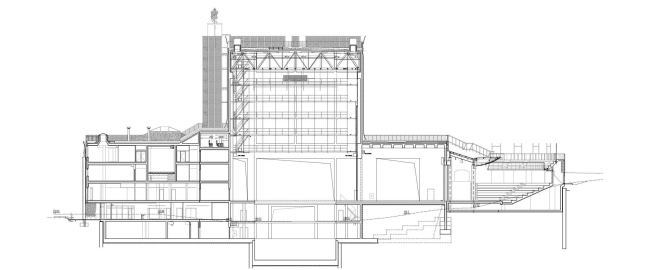
Театр имеет достаточно свободный план, ядро которого – коробка большого зрительного зала и сцены. Её кубический, поросший зеленью объём решительно доминирует в окружающем пространстве, тогда как остальные помещения размещены в двух нижних ярусах и вписаны в пологий зелёный холм. Два подземных этажа занимают сценические трюмы и парковки.
Опера и филармония Подляска. Европейский центр искусства в Белостоке. Постройка, 2012. Фотография © Ирина Бембель
Опера и филармония Подляска. Европейский центр искусства в Белостоке. Постройка, 2012. Фотография © Ирина Бембель

Помимо главной сцены, опера «Подляска» имеет дополнительную малую сцену для камерных концертов и драматических спектаклей. К северо-западному склону «холма» примыкает открытый амфитеатр. Включение последнего в композицию «Подляски» обусловлено памятью места: раньше здесь находился музыкальный Амфитеатр имени знаменитого польского органиста Чеслава Немена, построенный в 1970-е годы.
Опера и филармония Подляска. Европейский центр искусства в Белостоке. Амфитеатр. Постройка, 2012. Фотография © Ирина Бембель
Опера и филармония Подляска. Европейский центр искусства в Белостоке. Амфитеатр. Постройка, 2012. Фотография © Ирина Бембель

Колоннада сильно распластанного главного фасада облицована нержавеющей сталью и увита зеленью, ползущей по специальным сеткам. Парадный вход смещён относительно центра и имеет вид экседры, накрытой сверху плоским стеклянным колпаком с ажурным металлическим каркасом.
Опера и филармония Подляска. Европейский центр искусства в Белостоке. Постройка, 2012. Фотография © Ирина Бембель
Опера и филармония Подляска. Европейский центр искусства в Белостоке. Постройка, 2012. Фотография © Ирина Бембель
Опера и филармония Подляска. Европейский центр искусства в Белостоке. Постройка, 2012. Фотография © Ирина Бембель
Опера и филармония Подляска. Европейский центр искусства в Белостоке. Постройка, 2012. Фотография © Ирина Бембель
Опера и филармония Подляска. Европейский центр искусства в Белостоке. Постройка, 2012. Фотография © Ирина Бембель
Опера и филармония Подляска. Европейский центр искусства в Белостоке. Постройка, 2012. Фотография © Ирина Бембель

За прозрачной стеклянной стеной располагается просторное и чрезвычайно динамичное пространство фойе. Когда попадаешь сюда, глазу открываются две перспективы: первая, с двумя узкими стеклянными лестницами и строем простых цилиндрических колонн, вытянута вдоль главного фасада. Здесь расположен гардероб и вход в партер, а также открытые узкие лестницы, ведущие наверх.
В стилистике доминирует хай-тек.
Опера и филармония Подляска. Европейский центр искусства в Белостоке. Постройка, 2012. Фотография © Ирина Бембель
Опера и филармония Подляска. Европейский центр искусства в Белостоке. Постройка, 2012. Фотография © Ирина Бембель
Опера и филармония Подляска. Европейский центр искусства в Белостоке. Постройка, 2012. Фотография © Ирина Бембель
Опера и филармония Подляска. Европейский центр искусства в Белостоке. Постройка, 2012. Фотография © Ирина Бембель

Вторая перспектива, продолжающая ось главного входа, через торжественные пропилеи и широкую лестницу ведёт к фойе на уровне лож – пространство сакрализированное и мифологизированное. Оригинальный декор из рельефного стекла с нотными текстами украшает пропилеи и колонны.
Опера и филармония Подляска. Европейский центр искусства в Белостоке. Постройка, 2012. Фотография © Ирина Бембель
Опера и филармония Подляска. Европейский центр искусства в Белостоке. Постройка, 2012. Фотография © Ирина Бембель
Опера и филармония Подляска. Европейский центр искусства в Белостоке. Постройка, 2012. Фотография © Ирина Бембель
Опера и филармония Подляска. Европейский центр искусства в Белостоке. Постройка, 2012. Фотография © Ирина Бембель
Опера и филармония Подляска. Европейский центр искусства в Белостоке. Фойе. Постройка, 2012. Фотография © Ирина Бембель
Опера и филармония Подляска. Европейский центр искусства в Белостоке. Фойе. Постройка, 2012. Фотография © Ирина Бембель

В разнонаправленных по стилю и расположению холлах осуществляется зримое взаимодействие традиционного театрального облика с современной функциональностью. Фойе могут использоваться как выставочные площадки, независимо от проведения музыкальных спектаклей.

Главный зрительный зал, чей интерьер спроектирован Жоржем Изенуром (Georg Izenour), рассчитан на 1000 мест: 664 в партере, 241 на балконе и 95 в ложах. Возможна его трансформация в разновеликие пространства под нужды концертного зала, драматического театра и конференц-зала. В насыщенной полихромии современного пространства зала серо-синий цвет стен сочетается с зелёными и красными креслами. Не характерный для исторических оперных залов интенсивный контраст зелёного и красного, наделяет пространство эмоциональной динамикой и пронизывает ощущением животворной энергии.

Театральное оборудование оперы Подляска – одно из самых современных в Европе. Верх зрительного зала образуют подвижные стеклянные экраны, которые обеспечивают освещение и акустику и одновременно выполняют важную декоративную функцию. Огромные сценические трюмы предусматривают возможность трансформации и быстрой смены декораций. Необычны ограждения ярусов, в которых использованы мотивы нотных линеек. Стены украшены реалистичными скульптурами музицирующих и танцующих фигур.
Опера и филармония Подляска. Европейский центр искусства в Белостоке. Постройка, 2012. Фотография © Ирина Бембель
Опера и филармония Подляска. Европейский центр искусства в Белостоке. Постройка, 2012. Фотография © Ирина Бембель

В отличие от верхнего сада библиотеки Варшавского университета тех же авторов, зелёная крыша оперы в Белостоке имеет вид естественного луга с полевой растительностью; с неё открывается панорамный вид Белостока.
Опера и филармония Подляска. Европейский центр искусства в Белостоке. Постройка, 2012. Озеленённая крыша нижнего уровня. Фотография © Ирина Бембель
Опера и филармония Подляска. Европейский центр искусства в Белостоке. Постройка, 2012. Озеленённая крыша нижнего уровня. Фотография © Ирина Бембель

Огромный живописный комплекс воспринимается не сразу, а по мере его обхода, в захватывающем развитии монументальной пространственной драматургии. Ясно читается идея театра как священного храма муз, который возвышается над идеологическими, национальными и конфессиональными противоречиями.
Опера и филармония Подляска. Европейский центр искусства в Белостоке. Постройка, 2012. Фотография © Ирина Бембель
Опера и филармония Подляска. Европейский центр искусства в Белостоке. Постройка, 2012. Фотография © Ирина Бембель

[1] Население Белостока – примерно 350 тыс. человек.
Опера и филармония Подляска. Европейский центр искусства в Белостоке. Постройка, 2012. Фотография © Ирина Бембель
Опера и филармония Подляска. Европейский центр искусства в Белостоке. Постройка, 2012. Фотография © Ирина Бембель
Опера и филармония Подляска. Европейский центр искусства в Белостоке. Постройка, 2012. Фотография © Ирина Бембель
Опера и филармония Подляска. Европейский центр искусства в Белостоке. Постройка, 2012. Фотография © Ирина Бембель
Опера и филармония Подляска. Европейский центр искусства в Белостоке. Постройка, 2012. Фотография © Ирина Бембель
Опера и филармония Подляска. Европейский центр искусства в Белостоке. Постройка, 2012. Фотография © Ирина Бембель
Опера и филармония Подляска. Европейский центр искусства в Белостоке. Православная церковь на старинном некрополе. Фотография © Ирина Бембель
Опера и филармония Подляска. Европейский центр искусства в Белостоке. Православная церковь на старинном некрополе. Фотография © Ирина Бембель
Опера и филармония Подляска. Европейский центр искусства в Белостоке. Постройка, 2012. Фотография © Ирина Бембель
Опера и филармония Подляска. Европейский центр искусства в Белостоке. Постройка, 2012. Фотография © Ирина Бембель
Опера и филармония Подляска. Европейский центр искусства в Белостоке. Постройка, 2012. Фотография © Ирина Бембель
Опера и филармония Подляска. Европейский центр искусства в Белостоке. Постройка, 2012. Фотография © Ирина Бембель
Опера и филармония Подляска. Европейский центр искусства в Белостоке. Постройка, 2012. Фотография © Ирина Бембель
Опера и филармония Подляска. Европейский центр искусства в Белостоке. Постройка, 2012. Фотография © Ирина Бембель
Опера и филармония Подляска. Европейский центр искусства в Белостоке. Постройка, 2012. Фотография © Ирина Бембель
Опера и филармония Подляска. Европейский центр искусства в Белостоке. Постройка, 2012. Фотография © Ирина Бембель
Опера и филармония Подляска. Европейский центр искусства в Белостоке. Постройка, 2012. Фотография © Ирина Бембель
Опера и филармония Подляска. Европейский центр искусства в Белостоке. Постройка, 2012. Фотография © Ирина Бембель
Опера и филармония Подляска. Европейский центр искусства в Белостоке. Разрезы © Budzynski & Badowski
Опера и филармония Подляска. Европейский центр искусства в Белостоке. Разрезы © Budzynski & Badowski
Опера и филармония Подляска. Европейский центр искусства в Белостоке. Поперечный разрез © Budzynski & Badowski
Опера и филармония Подляска. Европейский центр искусства в Белостоке. Поперечный разрез © Budzynski & Badowski
Опера и филармония Подляска. Европейский центр искусства в Белостоке. Продольный разрез © Budzynski & Badowski
Опера и филармония Подляска. Европейский центр искусства в Белостоке. Продольный разрез © Budzynski & Badowski
Опера и филармония Подляска. Европейский центр искусства в Белостоке. План верхнего сада © Budzynski & Badowski
Опера и филармония Подляска. Европейский центр искусства в Белостоке. План верхнего сада © Budzynski & Badowski
Опера и филармония Подляска. Европейский центр искусства в Белостоке. План крыши © Budzynski & Badowski
Опера и филармония Подляска. Европейский центр искусства в Белостоке. План крыши © Budzynski & Badowski
Опера и филармония Подляска. Европейский центр искусства в Белостоке. План третьего уровня © Budzynski & Badowski
Опера и филармония Подляска. Европейский центр искусства в Белостоке. План третьего уровня © Budzynski & Badowski
Опера и филармония Подляска. Европейский центр искусства в Белостоке. План второго уровня © Budzynski & Badowski
Опера и филармония Подляска. Европейский центр искусства в Белостоке. План второго уровня © Budzynski & Badowski
Опера и филармония Подляска. Европейский центр искусства в Белостоке. План первого уровня © Budzynski & Badowski
Опера и филармония Подляска. Европейский центр искусства в Белостоке. План первого уровня © Budzynski & Badowski
Опера и филармония Подляска. Европейский центр искусства в Белостоке. План нулевого уровня © Budzynski & Badowski
Опера и филармония Подляска. Европейский центр искусства в Белостоке. План нулевого уровня © Budzynski & Badowski