Размещено на портале Архи.ру (www.archi.ru)

04.05.2016

Реформа – Революция – Реконструкция

Дмитрий Сухин

Публикуем ещё одну главу книги «Массовое жилище как объект творчества». Дмитрий Сухин – об особенностях немецкого жилого строительства.

Книга «Массовое жилище как объект творчества. Роль социальной инженерии и художественных идей в проектировании жилой среды. Опыт XX и проблемы XXI века» вышла в издательстве «БуксМарт» в 2015 году. Купить ее можно на сайте издательства.
А мы публикуем полную версию одной из статей.

«Массовое жилище как объект творчества». Москва, 2015. Фото предоставлено издательством «БуксМарт»
«Массовое жилище как объект творчества». Москва, 2015. Фото предоставлено издательством «БуксМарт»
***

Дмитрий Сухин
Реформа – Революция – Реконструкция:
циклические зависимости жилого строительства.
Уровни для строительной России

Промышленный локомотив старой Германии, Пруссия, с другими странами наравне знала жилищную нужду: жилищные кризисы – повторяющийся феномен человеческой истории. Но только либеральный XIX век вручил все средства решения этого вопроса частной инициативе, вскоре доведшей проблему до стачек жильцов и прокисших ущелий задних дворов – что недвусмысленно совпало с ростом количества и падением качества немецких же производств в пучины неудобств и безвкусицы. Строили, штудировали, трущобы сносили, вели свет и газ, дороги мостили, водопровод клали с канализацией – податная раскладка за градоустроение и благодеяние, в рамках той же системы, взвивала стоимость участка: «берлинское домовладение, в 1 860 м стоившее 100 000 марок, в 1 898 м торговалось за 50 миллионов.
Аэрофотосъёмка застройки Берлина кайзеровских лет. Изображение предоставлено издательством «БуксМарт»
Аэрофотосъёмка застройки Берлина кайзеровских лет. Изображение предоставлено издательством «БуксМарт»

Заоблачные цены на землю не оставляли [застройщику, желающему свои вложения вернуть], казалось, никакого другого выхода как застраивать их невзирая ни на какие условности, социальные, культурные или какие-либо ещё[1], выжимать последнее с квадратного метра, плодить каменные джунгли[2][3], скученность[4], туберкулёз и рахит[5] – и, небывалым доселе объёмом сдаваемого жилья[6] расшатывать самоё основы государства: не невозможность ли семейного уединения в таких четырёх стенах загоняла после работы в кабак[7]?
Генрих Цилле , «В родную землю»: – «Не перепейтесь и верните всё как было, Мюллерам из меблирашек он
завтра тоже нужен». Изображение предоставлено издательством «БуксМарт»
Генрих Цилле , «В родную землю»: – «Не перепейтесь и верните всё как было, Мюллерам из меблирашек он завтра тоже нужен». Изображение предоставлено издательством «БуксМарт»

Не в Гамбурге ли началась последняя в Германии эпидемия холеры в 1892 году? Не росли ли крупные города лишь за счёт иммиграции, себя не возмещая сами[8], давая лишь вполовину годных рекрутов от села?
Обход берлинских квартир на рубеже веков. Изображение предоставлено издательством «БуксМарт»
Обход берлинских квартир на рубеже веков. Изображение предоставлено издательством «БуксМарт»

Все вредили всем: новые горожане, кровь и сила городских предприятий – отсутствие опыта городской жизни и обращения с техникой – поломки и неуклюжесть, буйство и чёрные списки – малая зарплата, бесправный найм по углам, закостеневшая квартирография – износ, жадность и безразличие куда ни погляди... Градостроительство? Социальное к тому ж? – всего лишь благоустройство, за калитку же ступать и смотреть не смей: священная частная собственность. Застройщик грюндерства на широко отмерянном бульваре и ринге[9], в доме перегородки убрав, сделает цех-этаж – и там же нагородит клетушек с наружным туалетом[10], с городской баней по субботам[11][12].
Проектный план градостроительного развития Берлина, так называемый план Хобрехта. Изображение предоставлено издательством «БуксМарт»
Проектный план градостроительного развития Берлина, так называемый план Хобрехта. Изображение предоставлено издательством «БуксМарт»

Оттого лестницы, дымоходы в дальних и тёмных углах, меандры коридоров: к чему разбираться с планом, поудобнее группировать те или иные клети, если рынок и так всё возьмёт? И брал[13], от «берлинских комнат»[14], глубоких тёмных угловых помещений с окном в отнорке[15], стонал богач и бедняк: шаблон стоял неколебим. «Рынок продавца»: знакомая, почти российская картина?
Планы надземных этажей жилого и фабричного комплекса «Мейерс гоф», Берлин, первая непостроенная версия. Изображение предоставлено издательством «БуксМарт»
Планы надземных этажей жилого и фабричного комплекса «Мейерс гоф», Берлин, первая непостроенная версия. Изображение предоставлено издательством «БуксМарт»

Обычные доходные дома делец возводил без архитектора, лишь считанные проценты домов возводили они, в столицах – и не стремились изменить подобное ни те, ни другие. Одним задание строить «просто квартиры» не казалось достойным их талантов, вечных ценностей зодчества[16] – другие в попытках регуляции – нападки бывших господ на завоёванные свободы, а в ежегодно растущем девятом вале фасадных декораций – и прогресс, и мерило качества жизни и даже обеспечение достойного заработка рабочим[17]. Строили те «столичные» дома «фершалы» от строительства; кто будут авторы нынешних наших квартир?

Город застройщиков стал молох, во имя барыша пожирающий сотни и тысячи, под всё более и более роскошной маской из гипса и штука скрывающим бесчеловечную суть однородных недо- и переквартир. Дом никому не дом; «квартирой убить можно не хуже топора», напишет и нарисует Цилле[18]. «Вольный воздух!» – даже вольности и самоуправление сопровождали в нём такие подати, что при вступлении в силу в 1807-1810 годы законов цум Штейна[19] многие гражданству подданство предпочли.
Типовые планы городских жилых домов Ассманна. Изображение предоставлено издательством «БуксМарт»
Типовые планы городских жилых домов Ассманна. Изображение предоставлено издательством «БуксМарт»

Агитаторы, смуты, полиция, болезни, новые подати, новые причинно-следственные кандальные цепи – так Германия и пребывала бы, не найдись в обществе и в архитекторстве силы повернуться к сути проблемы, к сущностному строильству домов, процессам бытования в жилье, общественной пользе, домо- и градостроительству как науке. Три основных мотива было у новосмысленного жилья: умиротворение, повышение КПД – выход в люди[20], уверенность в крове над головой – и грядущая Аркадия, морально более качественное бытие[21]. В многократно закольцованных этих посылах первых и последних нет, множество сил находило в них себя. И действовали в едином, но разнообразном порыве, военный комиссар и нигилист, нудист и гомеопат, вегетарианец и антропософ, промышленник и филантроп, министр и социал-утопист[22] – но не социалист, те жались.

«Реформа жизни»: в еде, одежде, медицине, мойке улучшить мир. Бунт поднять против фальшивой «приличности» за новую честность[23], рачительность и весёлость, быт праздновать против серости и копоти; квартирами, физически непригодными под «углы», возродить по-крестьянски здоровую ячейку государства и народа.

Тёмные тона сменяет чистый звонкий спектр[24]. За считанные годы удаётся пройти от строительства предохранительного вентиля на перекипающем котле пролетарского бунта до строительства взаимопомощи, самоуправления, просвещения (и освещения). За семь лет до первого города-сада в английском Лечворте возникает в 1902 году одноимённое германское общество[25], в 1904 году выходит первый в Германии – и в мире! – журнал по градостроительству[26], проводятся первые градостроительные семинары берлинского и ахенского политехнических институтов, в 1909 году – первая градостроительная выставка в Берлине. Было что показать. Единственно, звучное имя «города-сада» перехватили уже модные коттеджи и виллы в пригородах[27] – труднопереводимое с немецкого «минимальное жильё» зато в 2007 году получило предикат Всемирного достояния ЮНЕСКО.

«Домик или жилая казарма?[28]», имя жилищного конгресса в Вене 1910 года, подходит и под новый виток либерализма от строительства, который в России наблюдаем уже с 20 лет: не время ли перестать всё сводить к «проблемам формообразования», «авторскому почерку», неповторяемой в наших условиях чуждости имён и ситуаций? Тем более, пример имея под рукой: с 1915 по 1927 год рациональность, цветность и монтаж именно этого, свежеувенчанного «нового зодчества» царили, из всех немецких провинций, в Пруссии восточной и западной, Силезии, восточном Бранденбурге[29]. Чтоб увидеть ту Германию, отправиться нужно сегодня в Россию с Польшей.
 
***

Либерализм, введённый в Пруссии законами Штейна-Гарденберга, стал гимном бюргерства: отмена крепостного права, сепарация полей, свобода ремёсел, выборное самоуправление, ипотека, акционирование; власть впервые не вмешивалась в право распоряжения владельца своим участком, даже помазанник утратил право на окончательный приговор. Одним из первых это испытал на себе Вильгельм, будущий кайзер, пытавшийся спасти старую берлинскую ратушу – горожане, его мнением пренебрегая, построили новую, а прежней обломки ему же и подарили. Сегодня они в парке Бабельсбергского дворца. Дом и земля стали «средством производства» и извлечения прибыли, мефистофелем века стал – паровоз.

Паровоз нёс прогресс, перекрывал расстояния, отрывал рынки сбыта и места приложения рабочих рук, ставил требования и сам же приносил средства их решения. Уголь же не везде лежит. Пожирал живущих по-старинке фермеров, принуждал к интенсификации хозяйства, ликвидации хуторов – а с ними и людей, там живущих? Действовали законы, целевые программы «внутренней колонизации»[30] выпускались в 1886-1891 годах и ещё раз были усилены в 1919 году[31] – а в городах манил личный рост и заработок, лучший чем даже в развившемся на (произведённых в тех же городах) искусственных удобрениях сельском дворе[32]. На Рейне и Руре в это же время росли неформальные «колонии» восточных пруссак, прусских поляков и иных; за 1840-1910 года одна только Восточная Пруссия потеряла 729 364 человека, причём 700 000 из них за 1871-1910 годы покинули родную пашню: «...рабочий хочет быть именно в круговерти города, ему естественна суета улицы, как покупатель он пользуется выгодами крупногородского хозяйства, и находит здесь свои развлечения. Именно поэтому столь многие год от года бросают сельский труд»[33]– и низвергаются в пучины «временных» жилищных неудобств.
Государство самоудалилось – единственной силой, способной в либерализме к обновлению, была промышленность. Не ради самоцели или человеколюбия (хотя нельзя отрицать и его) – из выгоды.

Литейный завод Круппа, крупнейший работодатель в Эссене и округе, уже с 1861 года[34] строил жильё для служащих. Не он один – около 22% литейщиков и шахтёров Рурского бассейна жили в конце XIX века в «рабочих квартирах», исключительно высокий процент – но в 1893 году 21% горняков Рура снимали койку на ночь в чужой квартире[35].

«Казарменный» тип жилья в немецких местностях появляется именно как служебный при фабриках – в Мюльхаузене в 1853 году. Имя схоже с презрительными ярлыками «готического», то есть ломаного и варварского вкуса – в противовес ренессансу, или манерно-вычурного «барокко», в противовес неоклассике – но его дали уже при рождении, и было оно указанием на качественность, равенство, здоровье: не обошла ли последняя в Германии оспа, 1870-1871 года, стороной одних солдат[36]? Сам тип «казармы» есть порождение рубежа XVIII и XIX веков; рабочим даровали самое новое, что давала на тот момент... наука? Планировки как науки ещё не существовало, но «казарма» действительно подразумевала особый тип жилья, на тот период однозначно не худший: комнаты особе, кухни тоже, но подчас через коммунальный коридор, туалеты тогда все ставили во дворе – полуотдельное жильё. Германский Строительный устав[37] квартиры и сегодня определяет через «отдельность», непересечение с кем-либо другим.

Крупповы действительно казарменного вида двухэтажные «строчки»[38] в Вестэнде и Кроненбурге, пенсии и врачи, домик и садик за верность предприятию и мгновенное выселение при расчёте отражали заводчика-реалиста: более жить рабочим было негде, стальной и угольный Рур был городами и частными застройщиками небогат – «Кто знает, когда через месяц-год по стране покатится вал классовой борьбы рабочих против работодателей, не окажемся ли мы единственными незатронутыми этим, если своевременно примем все меры?» И принял: городками пешей доступности (удобно для полицейского надзора), раскиданными вокруг завода (препятствие для сбора и стачки), в половину средних местных цен. Отсюда через эклектичность Альтенгофа[39] путь проложен был к «Маргаретенхёэ», «первому немецкому городу-саду»[40]. Многое тут опробованное впоследствии вошло в строительные нормы и правила[41].

В забастовках 1872 года крупповские посёлки не участвовали. На выборах 1893 года социал-демократы получают в Эссене лишь 3% голосов. Всем прочим последним звонком стал берлинский биржевой крах 1873 года, лишивший множество служащих и рабочих средств к существованию: на этом фоне монопольное положение доходных домов, хозяев угловых и коечных жильцов, их владельцев самоуправство[42] не было внове – но бросилось в глаза и вызвало к жизни, при постоянном назидании Зитте и Шульце-Наумбурга[43], разнообразные филантропические строительные общества[44]. Против академического формализма и бытового фанфаронства, за осмысленное обращение к корням – ведь лишь опёршись на них можно действительно шагнуть вперёд?

Товарищества обращались к жильцу как к личности, которую следовало поднять на новый уровень развития, в том числе и жилищного, через регулярность повторяющихся серийных деталей и правильность облика побудить жилтоварищей к правильному поведению. Уже первые постройки Месселя в Берлин-Моабите, при стилистическом их следовании модному тогда неоренессансу, как и в доходных дворцах зажиточного бюргерства, отчётливо проявили новый примат свежего воздуха, света и солнца над выгаданным квадратным метром.

Застройка велась комплексами, обширными дворами[45] (под половину участка оставались свободными), целыми улицами и кварталами периметральной застройки, согласованно и – благодаря ограниченности большинства фондов – рационально, графично в отделке, тем более что такое творчество удачно совпадало с идеалом прусской благородной простоты, домика Гёте в Веймаре или домика колониста времён Фридриха II – что кому ближе было. Знамениты дома Пауля Мебеса на Фричвег в Берлин-Штеглице (1907-1908 годы) – в них внутренний проезд решён как улица малого городка, даже и с площадью. Наружные стороны выше и более торжественны в обработке, стоят словно крепостной стеной, но и у тех и у других портят проект технически необходимые задники – ничуть не лучше чем у доходных домов. От них откажутся «Сады Цецилии» («Ceciliengärten») в Берлин-Фриденау, воплотившие в 1928 году идеальный квартал Бруно Мёринга и Рудольфа Эберштадта (Bruno Möhring, Rudolf Eberstadt) – те ещё в 1910 году на конкурсе «Большой Берлин» представили идею пятиэтажного периметра с трёхэтажным внутренним кольцом, и далее двухэтажными домиками по линзовидному проезду-выгону центре квартала. Три кольца образуют гибрид современного большого города, блокированного пригорода и города-сада, с огородами, в одном-единственном квартале[46].
Жилые дома на Проскауэр штрассе и Шрайнерштрассе, Берлин. Изображение предоставлено издательством «БуксМарт»
Жилые дома на Проскауэр штрассе и Шрайнерштрассе, Берлин. Изображение предоставлено издательством «БуксМарт»
Идеальные кварталы Мёринга и Эберштадта 1910 года вверху и Херхера 1904 года внизу. Изображение предоставлено издательством «БуксМарт»
Идеальные кварталы Мёринга и Эберштадта 1910 года вверху и Херхера 1904 года внизу. Изображение предоставлено издательством «БуксМарт»

Последовавшее за биржевым крахом двадцатилетнее замедление притока селян в города дало филантропам и товариществам развернуться и даже показать первые результаты; с 1890х годов можно говорить о состоявшемся типаже жилищно-строительного кооператива или товарищества с ограниченной ответственностью[47], целью ставившего не только удовлетворение жилищной нужды на время работы на предприятии, но создание собственного очага, пусть и совместного с другими владения, обеспечение завтрашнего дня и покойной старости через неотторгаемость товарищеского жилья. В неприятии подобного сошлись приверженцы прежней сословной кастовости, марксисты-эсдеки и картели домовладельцев, одни из собственнических интересов[48], другие во имя всеобщей революции[49]. Блокировали выдачу городских земель или иную поддержку[50], не останавливались и перед доведением до банкротства тех, кто б думал иначе, социальнее чем они[51]. Их одёрнул «Совместный указ»[52] прусских министерств торговли, просвещения и внутренних дел, города, напротив, побуждавший создавать домостроительные общества рабочих и служащих, кредитовать, участки предоставлять по сниженным ставкам в обмен на гарантированно низкие квартплаты и общую социальную направленность – «социализм без социалистов»[53]. Первое патерналистско-социально-реформаторское товарищество такого рода возникло в Берлине в 1892 году[54] и сочетало общую собственность участка застройки, сведение воедино рабочих и служащих без различия веры или партии, самоуправление, потребсоюз, сберкассу[55], детский сад... Издавало газету, устраивало библиотеку, летний детский лагерь или (фабрику-)кухню – эти многим послужили поддержкой.

«Строительная газета» 1890 года впервые, наверное, отмечала, что величина и планировка рабочих квартир, по причине малодостаточности, должна быть иной, не как в доходном доме. «Квартира с лестничной площадки должна быть доступна без коридора. Две комнаты, кухня и просто комната, достаточны чтобы удовлетворить основные нужды городского рабочего. Кухня должна быть, по возможности, 15 м2, так как именно в ней происходит каждодневная жизнь. Комната в 20 м2 служит сну»[56]. – прежде площадь не объяснялась функцией вовсе[57]. Неразработанность планов, отсутствие прообразов-опор заставляло товарищества заводить собственные проектные бюро[58]. Вело к логически проработанным проектам. После долгих лет шаблонирования задаться вопросом, что такое есть «жизнь в многоквартирном доме»? Что есть «бытование»?..

Строительство тех лет принято называть романтическим, на одну лишь живописность ориентированным, чего-де требовал Зитте в «Градостроительстве»[59] – неверно! «Задача строителя немецкого города-сада: достичь живости и теплоты, присущей старым, естественно выросшим поселениям нашей страны – но достичь не подражанием их чертам, а художественной проработкой функциональных форм» в немногих лишь вариантах[60] – формулировка Штаакена, посёлка Берлин-Шпандауских казённых оружейных мастерских[61], схожа с соцреализмом. Заставляет задуматься, насколько тот был или не был ходулен – тогда она сомнений не вызывала. Но там же требования современного транспорта стояли на одной высоте с требованиями выразительности художественной и пользовательской верности. И звучат в описаниях посёлков, за разом раз:
  • «...кабели для подземной прокладки [электросетей] было не достать, а развеска железных тросов по столбам существенно нарушила бы вид улиц. Оттого появилась идея проложить кабели... по самим чердакам под коньками крыш – ...получилось значительно дешевле чем даже провешивание проводов по столбам»[62].
  • «Во время строительства кирпич... почти исчез, стало выгодным обратиться к силикатному кирпичу из Нойвида, несмотря на дальний подвоз»[63].
  • «Отказались от форм, не обоснованных делом; эффект даруют лишь живой цвет стен и планировка поселения»[64]
– групповые коммунальные подключения с одним вводом на группу домов и трубами/кабелями от подвала к подвалу, от чердака к чердаку – мера как художественная, экономическая, социальная: длина коммуникации или площадь мощения оставалась прежней, а количество конечных пользователей росло. Считать приходилось:
  • в «Гримнаборе» Бруно Таута территория под застройку стоила 4 марки за квадратный метр, но уже прокладка немногих улиц подняла её стоимость до 7 марок[65] – не более 1/3 строительных расходов забирала собственно домовая конструкция[66];
  • в Штаакене Пауля Шмиттхеннера 2 марки первоначальной цены за метр повлекли за собой 3,25 марок дополнительной раскладки на водопровод и канализацию, школу и кирху – что на годы отяготило бюджет привилегированного (!) жилтоварищества[67]
 – это были годы, когда человекочас не стоил почти ничего, зато предметы и механизмы были ценны, и в дело пускали даже и гнутый гвоздь.

Это, впрочем, не обязательно вело к квартирам, равноценным градостроительству. В Штаакене, при оригинальной планировке сблокированного типа 4 (кухня в садовой пристройке с отдельным выходом и полуприкрытой террасой), принятие ванны становится семейным событием – она в кухне, а та доступна лишь через общую залу. Единственный в доме туалет и вовсе вынесен на верний, спальный этаж: гостей не принять. А «семейные» блокированные дома Фрика в Хеллерау, одним лишь расположением лестниц, не навязывают ли сдачу комнат по отдельности? В «Садах Цецилии» кухня неудобна к столовой, одна спальня упрятана за лоджию, другая – во двор, ванная доступна только через обширный, из одних дверей состоящий тёмный холл: подобный анализ, привычный сегодня и совершенно совпадающий с зиттевским художественно-рациональным анализом городских площадей, в жилищное строительство привнёс Александр Клейн, петербургско-берлинский архитектор. Бескоридорная квартира, снижающая затраты на строительство и, соответственно, квартплату, позволяющая больше и лучше разместить на той же площади, и экономящая «пробег» домохозяйки была его коньком, треки движения, тени от окон, «шварцпланы» меблировки – методом создания пригодных планов[68].
Диаграммы старорежимной (слева) и современной (справа) квартир, по Клейну. Изображение предоставлено издательством «БуксМарт»
Диаграммы старорежимной (слева) и современной (справа) квартир, по Клейну. Изображение предоставлено издательством «БуксМарт»

Большая вольность, свобода от чуждых шаблонов, на меньшей площади и с предотвращением (неосознанного) самоповреждения – вот что вкладывалось в «минимальное жильё». Прикладная орнаментика не архитектурна – вернёмся к собственной архитектурной выразительности! Будем говорить пропорциями, игрой света и тени, богатства декорации перенесём в духовные сферы[69], отразим проработанными деталями и пропорциями[70] даже и самого простого материала: в штаакенском городе-саду формы стульев и столов одинаковы для всех, но в более дорогом исполнении они из ценных пород дерева, а в более дешёвом – просто покрашены. А ведь раскраски – не только компенсация невозможности пышной обстановки, но и средство сделать её невозможной впредь, как сейчас шаблонами-оттисками фасадов восстановленного музея естественной истории в Берлине[71]. И цвет здесь совпадает с волей к выразительности так же, как в Нью-Йорке совпали стремление в небо и сталепрокат.

Законодательно обеспеченные сырые подвалы, этажи в 2,30 м в свету и чердаки-пьомби к рубежу веков уже не строили, но никуда не девались уже построенные[72]; туалеты на этаже сменялись на туалеты в квартире – но сколько было их, и сколько новых, правильных квартир[73]?

«Свет, воздух, солнце!» – клич нового дня, дворец – вилла – коттедж – односемейный дом – блокированный дом, вершина творчества, дворец простого человека. Новая задача нового времени, не «архитектуры» более – та звучала синонимом «прикладок» – заговорили о «зодчестве». Типизация стала вновь пробиваться сквозь ужимки даже и самого заурядного либерального фасада. Исправлялась квартирография большим количеством одно- и двухкомнатных квартир – каждая с собственной кухней и туалетом. Но подлинного прорыва не произошло, очередь ждавших хоть какого-либо жилья и земельные платы заставляли гнаться за массой и даже тут привносить дополнительные поперечные флигеля, пусть бы и очеловеченные.

К 1914 году объединений-товариществ по стране насчитывалось около 1 400[74], с развёрнутой программой:

«Социально-общественные и культурные нужды удовлетворит... Народный дом. В нём будут общежитие для холостяков, школа, гимнастический зал, спортплощадка и игровая площадка, библиотека с читальным залом, игровыми комнатами и залами для занятий, как для молодёжи, так и для взрослых. – Также будет организована школа домоводства для выпускниц общеобразовательных школ – в сочетании с общежитием и хозчастью трактира. В этом последнем предусматриваются несколько гостиничных комнат и разного размера залы для собраний, совещаний, лекций. Здесь же... управление товарищества. […] Главный корпус Народного дома составит большой зал для концертов, разнообразных лекций, небольших театральных постановок и выставок... Сзади к Народному дому примыкают, отделённые от него лишь узким проходом, солнечные и воздушные ванны для обеих полов, окружённые залами и каждая – с просторным бассейном посередине. Подобный культурный центр очень важен товариществу, оттого ему в проекте отведёно значительное место на карте – на самой возвышенной точке»[75].

С таким центром, квартиры доподлинно могли быть минимальными[76] – но комплекс в целом в центральных или хотя бы окраинных районах возвести было редко возможно. Нужно было идти далее вовне. Лишь за пределами городов земли было больше и была она дешевле, дозволяя нужный размах – и тогда же с подобным же столкнулась и промышленность: фабрикантам некуда стало ставить цеха! Началась миграция индустрии, и обновление её, и тот же молох, что в городах рабочих сгрудил, и рассредоточение населения породил: не просто ночевать – горожанином быть. Трамвай (паровой) и пригородное сообщение позволили не единицам – массам работать в одном районе, а жить в другом, и выезды выходного дня стали возможны тоже, много способствовавшие эмансипации... Вновь замкнутый круг: без бед и благ промышленно-транспортной революции «реформа» была просто-напросто невозможна!

Традиция «новгородов» под стенами городов старых знакома Европе ещё со средневековья – в Германии, Франции, Испании. Предвосхищая публикацию Говарда[77] в 1899-1914 годах в Англии возникает «мыльный город» Порт-Санлайт. Затем первый «по Говарду», там же, Лечворт (1905 год). В Рейнской провинции Крупп в 1907 году основывает город-сад «Маргаретенхёэ» – но в нём непосредственно нет производства; есть в Хеллерау, и преизящнейшая слитность мастерских и мастеров – но позднее. С другого конца рейха им откликается Кёнигсберг соседством у нового завода «Штейнфурт», городком «Ратсгоф», с аптекой, почтой и потребсоюзом, полицией и церковью, детским садом и школами – автономным, самодостаточным, редким: Германия не децентрализовывала промышленность, не разукрупняла города, и строила, под именем «городов-садов», вовсе не «города-сады». Но в Восточной Пруссии средневековые традиции сохранялись лучше...

Строительное описание «Ратсгофа»

«Города-сады» появляются сперва как «районы-сады» или «пригороды-сады», живописно оформленные в виде сада-цветника, с коттеджной и островной малоэтажной застройкой в фахверковой традиции, с прорезными фронтонами и обильными верандами. Без дымов, цехов или многоквартирных громад, они праздновали классовую сегрегацию, неизвестную до того в городах. Иного рода «города-сады по Говарду»[78]: тридцатитысячники, равномерно окружающие и разгружающие ограниченный в своём росте мегаполис, и сочетающие жильё, рабочие места, торговлю, отдых и развлечения[79].

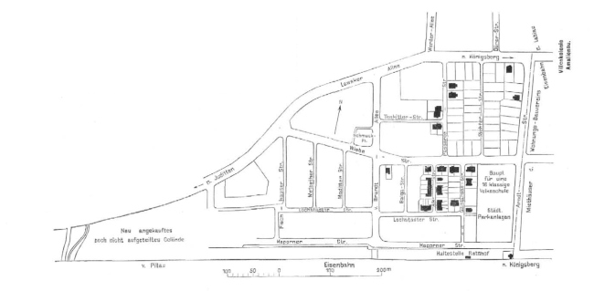
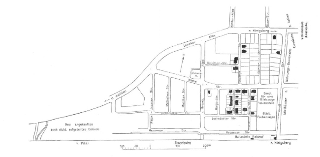
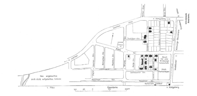
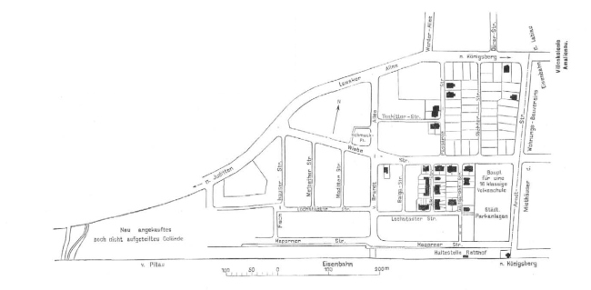
Западные оконечности Кёнигсберга с 1889 года большой дугой описаны путями на Лабиау и Тильзит; за переездом, в имении «Ратсгоф», городское «Всеобщее квартиростроительное объединение» по самой низкой цене выкупило около 200 000 м² земли, положив начало двухдесятилетней истории роста: от первоначального треугольника около 61 250 м² восточнее Арндтштрассе (Вагоностроительная ул.), через поле между Арндтштрассе и фон-Брандт-аллеей (Станочная ул.), до Эмденер штр. (Ручейная ул.) «Ратсгоф» на 1,2 км протянулся на уступе береговой террасы, от грюндерских вилл Амалиенау до деревни Лавскен. Он остался бы лишь ещё одним реформистским жилмассивом, не присутствуй тут, невидимый словно в парковом скрытом «аха», новосоздаваемый промышленный район устья Преголи и Морского канала.
Генеральный план Ратсгофа. Изображение предоставлено издательством «БуксМарт»
Генеральный план Ратсгофа. Изображение предоставлено издательством «БуксМарт»

В «Маргаретенхёэ» до заводов было около 3 километров ходу, в Хеллерау мебельные мастерские были непосредственно в посёлке и проектировались с ним единым целым – но и строили «для своих». Здесь эксперимент сразу многого рода:
  • кёнигсбергское объединение не было призаводским, жильцами брали всех – в Берлине славу первого такого независимого сообщества делят «Гримнабор» (1913-1915 годы) и «Вольная доля» (1895 год) – но свыше 3500 работников элеваторов, мельницы, электростанции, газового-вагоностроительного-целлюлозного заводов и трампарка были осознанной целевой группой, и удовлетворение их жилищной нужды, обеспечение лёгкого доступа на переехавшее место работы[80] звучало как обоснование возникновения городка[81]. Нечастое в те годы сотрудничество;
  • предоставлялись как найм квартир, так и владение домом, причём оплата нового, лучшего жилья не превышала квартплаты за такую же площадь в «казарме»[82];
  • дома переходили товарищам-жильцам сразу – земля лишь после 99 лет наследуемой ренты и контроля со стороны товарищества, во избежание спекуляции. Завод просил уделить 20 домиков для вступления своих.
Традиционным, напротив, было строительство и проектирование помимо строительного уложения, «Маргаретенхёэ» тоже возводили как «диспенс», и позднее жилые городки модернизма тоже строились так. «Круппом» выступал Феликс Гейманн (Felix Heumann), владелец «Штейнфурта»: его супруга даровала детский сад.

Основные улицы, Арндтштрассе (Вагоностроительная ул.) от Лавскер аллеи (пр. Победы) с усадебным парком и трамваем – к платформе пиллауского направления, заводам и реке, общество нашло уже проложенными, и приступило с 1903 года к «реформенным» четырёхэтажным многоквартирным домам вокруг большого курдонера (Косогорный пер.), для наименьших и наимобильных из рабочих. Квартиры одно- и двух- и трёхкомнатные, с кухней, кладовой, туалетом; в подвале складочная ячейка, на чердаке другая, многие с балконами и к каждой квартире огород. Общей была помывочная в подвале их дома и постирочная на чердаке.

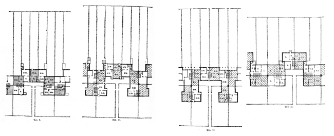
Резонная планировка по вступлении в товарищество архитектора Фрица Блейера (Fritz Bleyer) была сочтена ошибочной[83] и в новых, с 1907 года строившихся домах по западную сторону Арндтштрассе «Ратсгоф» стал именно садом: за исключением Вибештрассе и фон-Брандт-аллеи все улицы классифицировались как «жилые», с гравийным лишь покрытием; дома одно-, двух- и четырёхсемейными, в полтора и два этажа:
  1. участок 130-200 м², 80 м² огорода, дома сблокированы по четыре. Две комнаты по 18 м², кухня, кладовая для продуктов, туалет, ванная, мойка, кладовая, веранда, подвал и погреб. Схожие дома сдавались также в наём.
  2. участок 250-300 м², 100-200 м² огорода, дома сблокированы попарно. Четыре комнаты 15-20 м², кухня, кладовая для продуктов, туалет, ванная, мойка, веранда, подвал и погреб.
  3. участок 400-700 м², 285-585 м² огорода, дома отдельные и полуотдельные на 5-6 комнат, кухню, кладовую для продуктов, туалет, ванную, мойку, веранду, балкон, подвал и погреб.
Их планировалось построить до 600 штук.

В домах первой группы удобны массивные входные веранды, «газебо» с видом на улицу – обращённые во двор они становятся деревянными, лёгкими прорезными. Также и щипцы недвусмысленно разные: на улицу каменные, углы с рустом – в сад забраны досками. Спаренные дома второй группы уместнее было бы перевернуть, у них на садовых углах появляются лоджии, на садовых фасадах – дуги-эркеры, над ними – по фахверковому асимметричному щипцу; оба мотива были бы уместнее на уличной стороне. Лоджии здесь исключительно декоративные, неглубокие, входы в дом с торцов, и отчего-то даже без зонтиков над ними. Также и в третьей группе садовый фасад сблокированных домов уличного выразительней: крупные скошенные щипцы из кровли делают лотарингский крест; под ними глубокие арочные лоджии, на стене первого этажа трельяж – а с уличной стороны шаблонный вид, всего этого даже не отражающий. И входы в один полудом с улицы, в другой – вновь с торца. Особняки третьей группы отчего-то в духе модерна, с мансардной кровлей, двойным портиком (!) входного тамбура и осевой планировкой.
4 типа домов. Слева направо: тип 1 сблокированный – тип 2 сблокированный – тип 3 сблокированный – тип 4 особняк. Фасады и планы. Изображение предоставлено издательством «БуксМарт»
4 типа домов. Слева направо: тип 1 сблокированный – тип 2 сблокированный – тип 3 сблокированный – тип 4 особняк. Фасады и планы. Изображение предоставлено издательством «БуксМарт»

Детальная планировка везде разнилась, уже при строительстве подлаживалась под приобретателей, но проработанней всего она в блоках первой и третьей групп. Во всех есть входные тамбуры, но только в этих веранды создают дополнительные полуприкрые транзитные зоны на границе дома и общественной среды. В третьем сблокированном типе удачно обыгран вход в зал из-под лестничной площадки, из тени – к свету счетверённого бокового окна, но без ослепления. Такой же вход из-под лестничного марша в особняке третьего типа начинается и оканчивается у стенки лестничной клетки, от пространства комнат отделён.

Входные тамбуры – но вешалку не поставить даже под лестницей. Столкнувшись с вопиющей антисанитарией «прусской Сибири» – экономя дрова, немецкий восток организовывался вокруг печи, превращая единственную горяче-влажную комнатку в мастерскую и спальню едва ли двухметровой высоты и совершенно недостаточной вентиляции[84] – «Ратсгоф» впервые строит тут кухню малую, по образцу английских «scullery», моек-ванных-прачечных как отдельного помещения при кухне-столовой[85]. Потому в новых домах кухни намеренно невелики, для обитания непригодны, зато общие комнаты рядом с ними подчёркнуто увеличены. Впрочем, в ванных «Ратсгоф» англичанам не следует, располагает над кухнями – экономит труб длину. Туалеты тоже уже встроенные[86].

Глубина рассуждений – и рядом банальная непрактичность: как объяснить тягу к созданию зависимых комнат? Меньшая спальня на втором этаже дома второго типа, к примеру, вполне могла бы иметь собственную дверь в коридор – но доступна только из другой, большей спальни. Схожие странности найдутся и в других планировках тех лет: в «Гримнаборе» одни дома получают вполне годную прихожую, и кухня доступна в них автономно, через отделяемую столовую нишу – другие кухню имеют заложницей общей комнаты, прихожую совмещённую с лестничной площадкой, лестницу второго этажа, по которой из ванной, все ступени сосчитав, выкатиться можно прямо во двор.
Дома Таута в посёлке “Гримнабор” (Соколиная гора), Грюнау. Изображение предоставлено издательством «БуксМарт»
Дома Таута в посёлке “Гримнабор” (Соколиная гора), Грюнау. Изображение предоставлено издательством «БуксМарт»

С 1919 года «Ратсгоф» продолжился западнее фон-Брандт-аллеи большими корпусами и расширенной классностью жилья. На южной стороне Лохштедтер штр. (Ремонтная ул.) встают дома сблокированные, на северной – ранее не строившиеся пятисемейные дома. По Лавскер аллее на углу Арндтштрассе стояли местная аптека и потребсоюз, на углу Фишхаузенер штр. (Ремонтный пер.) – околоток, ближе к городу – кинотеатр «Аполло» на Диффенбахштрассе (ул. Энгельса) и католическая часовня св. Адальберта на Кастаниеналлее (Каштановая аллея). Были и свой мясник, и пекарь, и детский сад и медпункт. Школа на углу Вибештрассе и Арндтштрассе, 1909-1910 годы, переполнилась уже через пару лет, так много детей подтверждали плодотворность города-сада – вторую поместили к храмовой площади, где почта, лавки, проектный отдел жилтоварищества, и в 1929 году строится евангелический приход (кирху начинают в 1936 году).

От дома к дому, от одного этапа расширения к следующему «Ратсгоф» шёл к блокированной, затем строчной и в будущем ковровой застройке. Здания уступами отступают от тротуаров и сходятся вновь, сады слитны и перетекают с одной стороны улицы на другую – иногда линия застройки лишь намечена угловыми домами. В квартирных домах часты низко нахлобученные черепичные крыши, венчающие стены наподобие больших беседок, зрительно уменьшающие зданий высоту, или полновысокие этажи как псевдо-чердаки, со слуховыми окнами, дощатыми или черепичными щипцами.
Улицы в Ратсгофе. Изображение предоставлено издательством «БуксМарт»
Улицы в Ратсгофе. Изображение предоставлено издательством «БуксМарт»
Улицы в Ратсгофе. Изображение предоставлено издательством «БуксМарт»
Улицы в Ратсгофе. Изображение предоставлено издательством «БуксМарт»

Свес таких увеличенных крыш рационально использовался для размещения балконов[87]. Кирпич и черепица природного цвета, светлая цветная штукатурка, белые лопатки и тёмные цоколи, синие и зелёные ставни, фахверк перекликается с частыми здесь трельяжами – отдельные дома копируют и старый Кёнигсберг, колоколообразные щипцы и трёхстворчатые окна... Единого архитектурного словаря «Ратсгоф» не имеет, и этим тоже сродни первоначальным «пригородам-садам»; ансамблю предпочитает общую «живописность», оттеняет и оттеняем «господскими» виллами необарокко в Амалиенау за снятыми уже лабиаускими железнодорожными путями. Вал насыпи, как и в прообразе, крепостной городовой стене, немедленно превратился в променад.
 
***

Существенным, и редко где преодолённым недостатком довоенных новостроек стала их однородность: в «жилой казарме», с чистыми квартирами на улицу и каморками во двор встречались или могли встречаться все классы и положения, и неимущему соседу тайной советницы кухарка могла помочь тарелкой супа, а то и годными ещё штанами – ведь казённой социальной поддержки не изобрели тогда ещё. Также и работа с жильём могла соседствовать тут, избегая ежеутренних и ежевечерних потоков. Теперь же появлялись, как в коттеджных пригородах, так и рабочих городках, классово сегрегированные, в определённые часы словно вымерающие массивы[88]: Ратсгоф здесь, разнообразием застройки, выгодно отличается от Маргаретенхёэ, хотя и его оставляет за собой Хеллерау, обогащённый художествами, открытый гостям. Поэтапное строительство помогло стать законченным целым.

Развитие данного, равно и всякого иного типа жилья продолжалось, покуда Мировая война не воспретила всякое гражданское строительство – и не развернула его в Восточной Пруссии, оккупированной и освобождённой в 1914-1915 годах: российские войска здесь сравняли с землёй 41 414 построек и 60000 повредили, в иных городках устоял лишь дом-другой[89].
Городок Ширвиндт, заштрихованы порушенные постройки, залиты чёрным – разрушенные полностью. Изображение предоставлено издательством «БуксМарт»
Городок Ширвиндт, заштрихованы порушенные постройки, залиты чёрным – разрушенные полностью. Изображение предоставлено издательством «БуксМарт»

Постройки, большой мере, вторичные: некогда славную суровую красоту не пощадил век своевольного дельца. Или, по прочтении, закостенелую средневековость обитания, непригодную для нового века[90][91]. Теперь дальняя окраина рейха становилась его лебединой песней[92]: функциональной и поэтичной, здоровой и доступной, историчной без фальши и, главное, для согласного совместного проживания людей. В этом сошлись «Веркбунд», «Союз Дюрера»[93], «Защитники отчизны»[94], и многие другие – и кайзер, выделивший 400 миллионов в восстановительный фонд, 16 февраля 1915 года телеграфировавший рейхсканцлеру: «новая… жизнь да расцветёт из руин Восточной Пруссии»[95]. Это был уже прямой указ.

Разрушения дали воссоздать не прежнюю реальность, а идеал: «суть не в повторении неких форм, а в тактичном встроении в среду», писал Мутезиус[96] (Hermann Muthesius), один из основателей Веркбунда – не в возрождении орденской древности или дней королевы Луизы, не в «архитекторстве»[97] или переносе сюда мотивов чужих краёв, а в новой общности, созвучии, солидарности, взаимопомощи, как людей, так и домов. Возгонке принципов, найденных на месте, не формы зданий, а их характера: разнообразия и схожести островерхих крыш рыночной площади, фахверковых стен над протяжёнными аркадами торговых галерей... Но «не втискивать[ся] в вымученно-стародавние градостроительные планы, а давать [старине про]расти в них естественным образом, стать неотъемлемой чертой современности», «современность имеет природное право на собственное слово» в городском ансамбле, лишь созданная в духе собственного своего времени форма имеет шанс ожить, назидал Рихард Детлеффсен[98] – «стать родиной»[99].

Спешно, без права на неудачу, пришлось писать учебники и вводить новые уложения: построенное было не переделать, неуспех означал невозвращение беженцев, неполучение урожая, незаселение новыми колонистами. Спрямлять межи[100] и перекраивать участки, бывшие подчас под 30-40 метров глубины и застроенными разве что не сплошь, под новые улицы и более пригодные для застройки площади – а новых водопроводов и канализации не требовалось, ведь дороги вокруг с 1900х годов были ими оборудованы. Понизился, предвосхищая уложение 1919 года, до одного-двух этажей с мезонином фасад; дворовые флигели стали исключением, дворы и сады соседей теперь перетекали друг в друга, цеха среди жилья или жильё среди контор не возобновлялись.

Строительной полиции в помощь и художественное руководство отправились до 500 архитекторов из метрополии, «строительных заступников»[101]. Арбитры города и ландшафта перед администрациями, организациями и частными застройщиками, с 1919 года они образуют тройки «архитектурных заседателей»[102] – а право редактуры подаваемых на выплату восстановительных пособий чертежей и контроль строительных работ придавали им убедительность. Чему наставляли они? – привычному тут ещё с орденских и фридриховских лет. Типизации[103]. Нормированию. Вполне в орденском и фридриховском духе: не хватает современных строительных материалов – вспомнить о глинобитии и фахверке, вернуться к высоким черепичным крышам[104]. «Нормальные», то есть нормированные окна и «нормальный кирпич» были достижением, путеводной звездой, к которой следовало стремиться – и не одну девочку окрестили в те годы Нормой, как Норму Бейкер. Допускался даже поселенческий самострой, прежде осуждаемый[105] – но только с использованием готовых, товарищескими мастерскими[106] исполненных дверей, оконных рам и прочего[107]. Был и дополнительный аспект – цвет.

Уже до войны немецкое общество медикализировалось, обязательные прививки введены в 1874 году: если ранее, заболев, продолжали работать до самого конца, или же, калеками, зависели от благодетельской помощи, то теперь больницы и курорты возвращали к жизни. Человека стало можно ремонтировать![108] Не на селе – там не было столько врачей –, но и не в городах, там не было места, не было воздуха – больницы строят в пригородах, павильонными комплексами, удивительно похожими на города-сады[109]: добро пожаловать в архетип работающего реконвалесцирующего градостроительства! И вот в разорённой, низведённой до первичности провинции звучит: «...кто в серых залах трудятся над серым, вскоре становятся раздражителен и теряет интерес к работе; кто работал на нежно-кобальтовом синем, нередко засыпает за мольбертом; но те, кто в дивно жёлтых залах берёт в руки жёлтое, трудились с огоньком, посвистывали и пели – радостно было взглянуть.» Или: «...рекомендованы были тёплые тона в рабочие помещения, жёлтые и светло-красные стёкла на окна, чем выше – тем светлее. Вскоре самочувствие их весьма улучшилось, ведь краски делились своим солнечным светом, оттого стали они живей и бодрей.» Или: «...переезд в комнату с видом на восток, покрашенную свежо и живо в тёплые цвета, совершенно снял раздражение. Жёлтые шёлковые занавеси оказались особенно чудодейственны: луч, на них попадавший, отбрасывался глубоко в глубь покоев. Невероятно, сколько здорового можно достичь правильным расположением цветов, какие замечательные настроения возникают словно по волшебству.» Того больше: «...в лазаретах Лондона и других городов … цветовые палаты оказались особенно полезными для переживших близкий разрыв гранат»[110]. – отсылка ко врагу должна была быть особенно действенна, ведь это же свои, родные мотивы: «Как привлекательны альпийские раскрашенные домики, сохранившиеся в Баварии, Штирии, Тироле и других немецких землях!»
Память места? Воля к форме?

«...в строительстве на селе и в городе нужно постоянно стремиться к красочному облику. Непонятно, отчего горожане должны были бы отказаться от чрезвычайно эффектного действия красок. Их одних уже хватило бы, при правильном расположении по площадям, безо всяких архитектурных форм, чтобы доставить добротную картину. Дома, если только не являются частью некоего ансамбля, можно обосабливать. Остаётся применить чистые краски в правильном сочетании, так как нечистые краски могут изуродовать весь дом»[111]. – но «...нельзя не отметить, что большую часть общественности сперва нужно к пониманию цвета привести... Не требуйся подобная подготовка, давно бы уже появились цветные посёлки, где климат это нам позволяет. Или хотя бы цветные курорты, санатории для нервных и других больных, с цветными галереями, палатами, столовыми и другими залами». «Яркие краски многими, особенно образованными из нас, воспринимаются как неприятные и бесвкусные, подчас осмеиваются как приличные лишь эстетически малоодарённым или примитивным жителям дальних стран.» «...[благородный] дикарь радуется цвету, в отличие от нервного жителя мегаполиса – но это лишь доказывает, что глаз его лучше, правильнее нашего... наше зрение стало так нервно и болезненно восприимчиво, что не в состоянии воспринимать цвета!.. Это взывает к опытному гигиенисту...»[112].
А тот и готов. И «дикарь», «прусский сибиряк» при нём.

Кто был сильнее – не разберёшь, но строили здесь в цвете, отстроили к 1918 году 42 368 домов, и из Гердауэна – Алленбурга – Домнау – Тапиау – Гумбиннена – Ширвинта – Гольдапа – Шталлупёнена – Даркемена – Пиллькаллена – Маргграбовы – Ортельсбурга – Нейденбурга – Зольдау – Гогенштейна – Лёцена – Лика – Биаллы[113] – в столицы унесли. Оттуда уже на всю страну и мир зазвучало: «...десятилетия, ориентировавшиеся лишь на технику и экономику, погубили в строительстве усладу для глаз. Каменные короба, серые в сером, заступили на место цветных или раскрашенных домов... Публика сегодня страшится цветного дома, забывая, что совсем недавно архитекторы и помыслить не могли строить грязноцветные дома, а построенным домам не давали загрязниться... Мы [напротив] полностью и решительно отвергаем бесцветие... Вместо грязно-серого да восстанет в сиянии дом синий, красный, желтый, черный, белый…» – так в 1919 году прокламировал[114] в Берлине Бруно Таут, урождённый кёнигсбержец. Подписались берлинцы, дрезденцы и гамбуржцы – и три восточных пруссака: из Ортельсбурга, архзащитник Йон Мартенс, из Инстербурга, студент Шарун и Розенкрантц, обербургомистр.

Таут в манифесте и «Гримнаборе» противопоставил формальной живописности плана бывших прежде городов-садов геометризм и живописность по стенам домов красками – в Инстербурге, Черняховске Калининградской области «Пёстрый ряд» подхватил и развил эти черты. Первое воплощение «Призыва к цветному строительству»[115].
Типовые проекты цветно раскрашенных сельских и городских домов, архитекторы Бюлер и Ергер. Изображение предоставлено издательством «БуксМарт»
Типовые проекты цветно раскрашенных сельских и городских домов, архитекторы Бюлер и Ергер. Изображение предоставлено издательством «БуксМарт»

Строительное описание «Пёстрого ряда»

Ганс Шарун прибыл в Инстербург в апреле 1917 года из Гумбиннена, где его бывший доцент Пауль Крухен был районным архитектором, руководителем строительной консультации восстановительных работ. Ещё студент, живо участвовал в создании тут жилищных товариществ и кооперативов – и передвижных художественных выставок, и проектных объединений. А по расформировании стройбюро Шарун в апреле 1919 года превратил его в личное архитектурное бюро. Год спустя[116] ему заказан посёлок для Домостроительного товарищества служащих (1 и 2 очереди), железной дороги (3 очередь) и Общества малогабаритных поселений (4 очередь), ещё безымянный. В 1921 году на «выселке Камсвикус» первое новоселье, в 1924 году строительство завершено и территория входит в городскую черту.

Инстербург с востока с 1865 года ограничивала траншея железной дороги на Тильзит. Из города к ней подступали казармы, по улице Казарменной (ул. Гагарина) – её продолжала дорога в деревню Камсвикен, по легендарному витязю, жившему выше по реке. XIX век любил персонализацию: Арминиус, Боруссия, вот – Камсвикус.

Веймарская республика, плацы распущенных полков и национализированные поместья отводя под «минимальное строительство»[117] микрорайонами и посёлками[118], продолжала военные установления кайзеровских лет.

Эксперимента не чуждаясь, комнаты открывая воздуху и свету[119][120], ради их ориентации строго по странам света старый добрый единый уличный фронт безжалостно рвала на куски[121][122] – чтобы отослать к средним, немецким векам, «соборам социализма». Тейлоризировала, стандартизировала и (само)ограничивала чтоб избыть жилую нужду – но в «рабочие» квартиры продолжали вселяться более благополучные слои населения[123], и даже им дома эти бывали чужды.
Собственный огород перед собственным окном заставлял Беренса всё далее и далее отходить от проезда улицы. Изображение предоставлено издательством «БуксМарт»
Собственный огород перед собственным окном заставлял Беренса всё далее и далее отходить от проезда улицы. Изображение предоставлено издательством «БуксМарт»
Проект Кёльн-Калькерфельд – жилой комплекс в Кёнигсберге. Изображение предоставлено издательством «БуксМарт»
Проект Кёльн-Калькерфельд – жилой комплекс в Кёнигсберге. Изображение предоставлено издательством «БуксМарт»

Не так в дальней провинции, суровой и неожиданно богатой эрзац-валютой масла и мяса, где спускаемые свыше предписания, от красок до модуля, звучали как возвращение к своему же исконному, незаслуженно забытому! Там подчас сходилось всё задуманное и неудавшееся в столицах, и ехал рабочий в свой новый дом не на трамвае и не на паровичке-кукушке, а на инстербургском новейшем троллейбусе.

В 1916 году за железнодорожным мостом разбивалось новое городское кладбище с зелёным хозяйством. Напротив, на южной стороне, Шаруну и были отведены 6¼ гектаров полей. Вдоль аллеи он протягивает оба «городских» дома, образует символическую входную площадь у моста – и прикрывает огороды. Меж этими домами, поперёк, отводит «улицу-выгон», как в старой Германии: к концам заужена, на въезде две лавки (ул. Элеваторная). Малоэтажность и улица-курдонер, и даже один дом из силикатного кирпича. Пластика скупа, двухэтажные дома по фасаду украшены неглубокими парными треугольными эркерами, на некоторых домах их двое, на других четыре, на третьих нет вообще – под низким восточнопрусским солнцем этот неглубокий рельеф играет не хуже круглой скульптуры. Тем более выразителен он был при бывшей тут цветности: стены в красном, синем, жёлтом; наличники в зелёном, оранжевом, и вновь жёлтом – и тени, и отражения на них:

«Свет и цвет! Они связаны неразрывно, в цветном пространстве краска потолка, стен и пола должны быть едины со светом. Из этого следует, что не конструкция постройки определяет, что красить и как, а свет, то, как он отражается или воспринимается стенами, или бросает тень. Стена против света может быть глубоко синей, другая в боковом освещении – оранжевой, третья, отражающая свет – кронжёлтой, а та, что непосредственно у источника света – белой; потолок может быть ярко красным и так далее, всё в зависимости от условий освещения. [...] Свет и цвет безусловно связаны с построением пространства, но цвет не должен рабски подчиняться ему или отделяться от своего собрата, света. [...] Свет и цвет! Вместе их нам дарует стекло. Переход к архитектуре стекла дело, вероятно, далёкого будущего, особенно при нынешней дороговизне – но он непременно осуществится»[124].
Аэроснимок вскоре после завершения “Пёстрого ряда”, вверху снимка; на переднем плане бывшие полковые дворы, ныне застроенные. Изображение предоставлено издательством «БуксМарт»
Аэроснимок вскоре после завершения “Пёстрого ряда”, вверху снимка; на переднем плане бывшие полковые дворы, ныне застроенные. Изображение предоставлено издательством «БуксМарт»

Покуда же можно было строить с цветными стёклами веранды, оформлять контрастным цветом готизирующие штукатурные ниши. Им в пару на «Пёстром ряду» три типа лестничных окон, два типа входных порталов, и ещё пара – полотнищ входных дверей. Всё это объединял черепичный красный цвет высоких крыш, декоративные брандмауэры рассекают их, несут звёздочки лестницы и лавки – такие же как на рисунках «Стеклянной цепи» зачинателей нового зодчества. Так однотипный план, бескоридорные трёхкомнатные квартиры с кухней, кладовой и туалетом, частью – с коммунальным заселением, становился адресом. «Пёстрым рядом» – прозвище вскоре вытеснило официальное имя.

Послевоенная Восточная Пруссия требовала сугубой экономии в строительстве. «Односемейный домик, до войны по всей Германии стоивший 4 000-6 000 марок, теперь стоит по 30 000-70 000, уже с учётом удешевления»[125][126]. Специальным указом к рождеству 1920 года[127] оберпрезидент провинции запретил кафели и изразцы, декоративную штукатурку и сетки-рабицы, толстые стены и балки, паркет и терраццо, даже обои и стен шаблонирование (линирование дозволялось, и против расцвечивания интерьеров тоже не было запрета – его мы встречаем в Ганновере[128] и Магдебурге[129], могло быть и тут). Проектирование и возведение первой очереди полностью подпало под этог указ: ниши на фасадах лишь сантиметровой глубины, наружные стены в полтора кирпича, со штукатуркой – 41 см; перегородки по полкирпича, со штукатуркой – 15 см[130]. Вторая очередь «побогаче»: в сентябре 1921 года МВД допустило на лестницах линолеумные «дорожки», и они немедленно возникли тут, но расстекловку оставило прежней, мелкой, по указу – и она именно такова. Расцвечиванию плоскостей фасадов просто не было альтернатив!
Раскрашенные интерьеры в Ганновер-Лаатцене. Изображение предоставлено издательством «БуксМарт»
Раскрашенные интерьеры в Ганновер-Лаатцене. Изображение предоставлено издательством «БуксМарт»

Дома «Пёстрого ряда», отражаясь от улицы-оси, вариабельны в назначении помещений: глубина четырёх комнат, составляющих каждую квартиру[131], почти одинакова – 4,07 / 4,03 / 4,33 м. Одна, во двор, детерминирована как (жилая) кухня, другая как спальня (кроме кровати ничего не вместит), две другие на усмотрение жильца – планировка помещений «от мебели» вообще распространяется лишь после Первой Мировой, прежде одни рисовали стены, другие расставляли инвентарь[132]. Здесь же спальни можно и во двор, и на улицу оборотить, в без палисада палисадник.

В каждой квартире на дворовой стороне туалет с ванной, при кухне – кладовая половинной высоты (над ней идёт отводка ванной комнаты), в прихожей стенной шкаф. В подвале каждой квартире угольный отсек, чердак – общий. Через подвал выход в огороды, в них каждому дому полусарай: держали пчёл, коз.

Размер и смысл придомового участка в жилтовариществах разнился: почвы разные, разнятся время, смысл и обеспечиваемые. Глубокий палисадник более пригоден для посадок и грядок – позволяет заводить высокорастущую зелень, с развитыми корнями, в обычном декоративном цветничке не помещающуюся – разросшаяся зелень даёт защиту от прогляда – на окнах домов более не требуются занавеси – повод очистить помещения от этих и иных ненужных мебелей – опустевшая комната кажется больше и светлей, чистится лучше – воспринимаемая и рассчитываемая инсоляция становится научной дисциплиной – уменьшив квартиру и снизив квартплату, раздвигается застройка, и палисадник превращается в «голый двор», пространство вне обсервации, где житель мог бы хоть голышом ходить[133].

Рабочий, по определению имеющий иной основной заработок, требовал иного чем поселянин, живший с плодов своего поля[134]. Довоенные проекты стремились к садику для отдохновения, послевоенные говорили о витаминах – шок военных лет был тем сильней, что за десятилетия мира Германия голода не знала уже, и даже пропагандистские открытки Мировой войны были с солдатом-толстяком, врага одним весом задавихом. Оттого подчёркивалась роль огородов для инвалидов – выгода к столу, общественно значимое занятие, помощь в невеликой пенсии. Очистка улиц от обрубков тел:
  • Порт Санлайт[135] обеспечивал каждого жителя палисадником, но огороды выделял только по запросу.
  • «Вольная доля»[136] в Тегеле под Берлином, в 1895 г., 420 м2, в 1912 г. – 250 м2, недостаточные для снабженческой независимости. Тогда же в пригороде Хермсдорф – 150 м2.
  • Танненвальде под Кёнигсбергом, 300 м2 сада при доме и 2 200 м2 поля отдельно от него[137]
  • Штаакен[138] в Берлин-Шпандау – от 150 до 200 м2.
  • Луизенгоф[139] в Берлин-Панкове – 126-198 м2, «по берлинской мерке весьма приемлемая величина».
  • Берлин-Фалькенбергский «Гримнабор»[140] предполагал огороды и сады по 120 м2, но увеличил до 500 м2, возможно и оттого, что домов построили менее.
  • Восточнопрусское военное восстановление, минимальный придомовой огород 750 м2 (в среднем – по 1 250 м2, на селе – 2 500 м2)[141].
  • Строительное уложение 1919 года ввело на всех незастроенных но застраиваемых городских территориях «класс I»: двухэтажные дома, участки от 500 м2 на квартиру, из них 450 м2 под сад и огород[142][143]. «Пёстрый ряд», окраинный, с около 400 м2 квартирного огорода и общим палисадником, этому соответствует вполне.
Сблокированные дома «Пёстрого ряда». Типы лестничных порталов. Изображение предоставлено издательством «БуксМарт»
Сблокированные дома «Пёстрого ряда». Типы лестничных порталов. Изображение предоставлено издательством «БуксМарт»
Сблокированные дома «Пёстрого ряда», правая сторона улицы, первая очередь строительства. План домов 1–3 типов (первый и второй этажи совпадают). Изображение предоставлено издательством «БуксМарт»
Сблокированные дома «Пёстрого ряда», правая сторона улицы, первая очередь строительства. План домов 1–3 типов (первый и второй этажи совпадают). Изображение предоставлено издательством «БуксМарт»
Сблокированные четырёхквартирные дома (ул. Элеваторная, №№6–18) различаются лестничными окнами и формой уличного фасада:
  1. стрельчатое окошко в широкой листовидной штукатурной нише, 2 эркера, жёлтые с синим, входная дверь с окном-короной (№№8, 9, 16, некогда 17-1.)
  2. двурогое окошко и штукатурные ниши по сторонам, без эркеров, синие и красные, входная дверь такая же (№№6, 7, 10, 11, 14, 15, 17-2, 18.)
  3. стрельчатое окошко и три стрельчатые штукатурные ниши, 4 эркера, коричневые с жёлтым, входная дверь с оконцем-звездой (№№12, 13)
Отличной от этой планировки дома №№4, 5 были обустроены с лавками и для лавочников. Они выдвинуты к проезжей части улицы, выделены клинкерными полотнищами: торговый зал занимает лицевую половину первого этажа, подсобные помещения – дворовую, оборудован удобный спуск в подвал. Дома №№8 и 9 отделены от №№6 и 7 декоративным брандмауэром; №№10–15 отступают от «красной линии», их брандмауэр украшен щипцом со звездой. Дом №17, перестроенный в 1930е годы под клуб, выбиваясь из строя более высокими окнами и карнизом (на задней стороне – и эвакуационным балконом), удачно дополняет комплекс домов, создавая жителям центр. По времени, увы, уже не гражданских собраний.
Дома-корабли «Пёстрого ряда». Изображение предоставлено издательством «БуксМарт»
Дома-корабли «Пёстрого ряда». Изображение предоставлено издательством «БуксМарт»
Дома-корабли «Пёстрого ряда». Вход в жилмассив, торцевая лоджия «корабля» и лестничная ниша (ныне и по проекту). Изображение предоставлено издательством «БуксМарт»
Дома-корабли «Пёстрого ряда». Вход в жилмассив, торцевая лоджия «корабля» и лестничная ниша (ныне и по проекту). Изображение предоставлено издательством «БуксМарт»

Дома по Камсвикской аллее к городу, вовне, обращены северным фронтом. Входящему эта сторона показывается в сильном сокращении, окна сливаются со стеной – зато лестничные клетки тут обрамлены нишами трапецоидального плана, и стенки их ярко расцвечены[144]. Собственно лицевой стороной домам служат торцовые стены, несколько заострённые к городу, а на острие дополнительно обработанные ромбовидными полулоджиями-полубалконами. Их раскрывают трапециевидные проёмы, книзу шире чем вверху, динамизируют, играют под солнцем.

На дворовой стороне фасад играет весь, постоянной чередой прямоугольных лоджий и треугольных балконцев – здесь юг и сад, до первого чужого соседа 250 метров незастраиваемой полосы (дома Пёстрого ряда окон Камсвикской аллеи не застилают, отступают). Воля к форме сразу по отмене «Указа об экономии» – и чрезвычайная функциональность: планировка сохранившегося «дома-корабля» схожа с «Пёстрым рядом»[145], но кухни все нетривиально направляет на юг. Там глубокие тенистые лоджии[146] образуют холодные карманы, к ним прилегают кухонные кладовые. Прочие две большие комнаты вновь оставлены на усмотрение жильцам, одна проходная. Ванные обращены ко входной стороне, на север. Некоторые жители составили себе по комнатам круговой обход, как он изначально есть по улице «Пёстрый ряд».
Дома «Пёстрого ряда». Дворовый фасад. Изображение предоставлено издательством «БуксМарт»
Дома «Пёстрого ряда». Дворовый фасад. Изображение предоставлено издательством «БуксМарт»
Дом-корабль «Пёстрого ряда». План типового этажа. Изображение предоставлено издательством «БуксМарт»
Дом-корабль «Пёстрого ряда». План типового этажа. Изображение предоставлено издательством «БуксМарт»

Подвалы из здесь отведены под хранение и выходы к огородам; чердаки – под сушку белья, даже с собственным рядом окон (чердаки «Пёстрого ряда» освещаются через продухи). Этажи однотипны, на первом после войны встроено почтовое отделение; лоджии застеклены за исключением двух; чердак приспособлен под жильё.

Кайзеровский закон о красных линиях был отменён – твёрдым покрытием улицы «Пёстрого ряда» обзавёлись лишь через два года после завершения последней стройки. В зародыше, «Пёстрый ряд» сочетает уже черты строчного генплана, как их строили в 1920е, с отступами и приступами «жилых дворов» Северного Шарлоттенбурга, построенных Гансом Шаруном в 1960х годах.

Вывод

«Реформа» и города-сады в учебниках долгое время рассматривались лишь вскользь, как предшественники «модернизма» – или же как буржуазная девиация. Лишь 1990е годы вновь обратили внимание на них, возвращение из небытия российских образцов, «Восточнопрусского восстановления» насчитывает менее десятка лет.

Стилевой классификации неподвластны – отсылки на «анонимную архитектуру» предшествовавших лет, очищенные и возогнанные примеры из прошлого сочетают они с новейшими открытиями –, это постройки диалога. Архитектурная теория стала в эти годы архитектурной дискуссией, в форме памфлетов или фотографических альбомов от Мутезиуса, Шульце-Наумбурга или Лооса до Лукомского с Бенуа, обоснований – и тем открылась для широких масс, гражданских объединений, обсуждений, и была ими подчас побуждаема. Частично объясняют долгое забвение политические констелляции, сопровождавшие подобное строительство: консервативные силы в нём не раз и не два выказывали большую прогрессивность, конструктивную и строительную верность нежели либеральные и левые круги. Взаимозависимость планировки городов и планировки жилищ, и их обоих связь с политикой на пробу оказывается далеко не прямой.

Наибольшим наследием XIX века стали «жилые казармы» – уже с 1890х годов они цивилизуются. К 1910м годам можно говорить о состоявшейся немецкой «реформе», из Германии по Европе распространились реформенное градостроительство и города-сады: кварталы без задних дворов и боковых флигелей, общеквартальные сады, приватные улицы, бравшие игрой масс, планов и проёмов, а не лепниной или позой. Гладкостенные посёлки оказались ничуть не менее выразительными; промышленное шаблонирование частей и элементов, типизация планов – не противоречившей «охране отчизны», социалистическому сентиментализму и подлинному товариществу. Одновременно с подобным строительством те же Шарун и Мендельсон рисуют взволнованные экспрессивные фантазии – словно для баланса. Когда строят, уже не рисуют ни тот ни другой: когда разруха уже позади, белые стены сменяют пестроту, разве что с единичным цветным пятном – пациент выздоровел.

Здесь бы и остановиться! – но, теряя масштаб, всё далее возгоняются модели, за «франкфуртской кухней» спешат параллельные строчки Мая, ведут к крупнопанельному домостроению и дискуссиям о происхождении кухонек советской планировки, будто бы задуманных для пресечения диссидентских на них собраний.

Синтез форм и позиций, политических, социальных, стилевых и иных, привёл к возникновению построек редкой качественности, но ожесточившийся XX век развёл по разные линии фронта их создателей, «идеологизировавшаяся архитектура и историография заставила забыть о плодотворном слиянии традиционалистской и модернистской сфер»[147]. Низведены до примечаний и забыты оказались целые города и провинции – но те, кто не забыл и не низвёл, не выбрал исключительно «функционализм», «традиционализм», «новое зодчество» или «почвенничество», а их объединил – с высокой долей вероятности выучился в Восточной Пруссии на гения. Таковы Шарун, Хэринг и иные. Их здешние первые дома и сегодня вполне работоспособны, жителей и общественный строй не раз сменив: какой из наших современников рискнёт своим постройкам предсказать такое же? Такое, поняв, миру вернуть – ведь вопросы сообразного экономного и притом богатого жилья стоят и сегодня. А «берлинские комнаты» архитекторы уже научились обходить.
***

Об авторе

Дмитрий Борисович Сухин, дипломированный инженер-архитектор. Председатель обществ: «Kamswyker Kreis» (Берлин), «Округа Камсвикус» (Черняховск, проект), «Общество друзей BW Insterburg» (Черняховск). Уполномоченный проекта «инстерГОД» (Черняховск). Советник общества «Scharoun-Gesellschaft» (Берлин). Состоит также в обществах: «Architectenregister» (Гаага), «do.co.mo.mo Deutschland» (Дессау), ICOMOS СПб, «Kreisgemeinschaft Insterburg Stadt und Land» (Крефельд).
 
 

[1] «Bruno Taut», Nerdinger / Harmann / Schirren / Speidel, стр. 137
[2] Берлинское Строительное уложение 1853 г. («Baupolizeiordnung») не ограничивало процент застройки участка, требуя лишь квадратный «пожарный» двор 5,34 м стороною, для разворота телеги пожарного обоза – редакция 1887 г. дозволяла застраивать не более 2/3 участка (дозволялось превышение до ¾, если на участке уже была бы предшествующая застройка), со дворами не менее 60 м2. С 1897 г. доля застройки установлена менее 2/3 общей площади. Высота помещений в 2,51 м была установлена уложением 1853 г., §88, но только для новых домов. Прежние (§28) дозволялось использовать и отстраивать как были, если только там высота была не ниже 2,36 м. Высота чердачных комнат впервые нормировалась как 2,50 м в 1887 г. (§37a). Подвальные квартиры 1853 г. дозволял (§89), если лежали 33 см над уровнем грунтовых вод, потолком 0,94 м над мостовой – 1887 г. заставил поднять их полы (§37a) до 0,50 м ниже мостовой, дозволяя и 1 м, если перед окном устраивался соответствующий приямок. Размер окон в 1/8 площади комнаты считался достаточным.
[3] «К 1905 г. 90% берлинцев жили в четырёх-пятиэтажных многоквартирных домах... Почти половина, 45% всех квартир, были в дворовых флигелях, без света и свежего воздуха; 42% были однокомнатными, в которых в среднем проживали три человека.» – см. «Architektur in Berlin 1900-1933», Hüter, стр. 173. Однокомнатными здесь обозначены квартиры казарменного типа, см. ниже.
[4] В 1905 году около 60% квартир старого Берлина были заселены более чем одной семьёй; в Кёнигсберге и Шёнеберге показатель превышал 90% – «Deutsche Geschichte 1866-1918», Nipperdey, стр. 143. Плотность старого Берлина (районы Центр, Тиргартен, Галльские ворота, Фридрихсхайн, Пренцлауские ворота, Веддинг, Темпельгофское поле, Нойкёлльн) в 1908 г. составляла около 10 516 душ / км2 (по данным Градостроительной выставки 1910 г. – более обоснованными представляются 72 300 душ / км2, см. «Het Nieuwe Bouwen Internationaal», стр 111). Схоже в Кёнигсберге и иных городах рейха. В Лондоне, ославленном Доре и Диккенсом как радикально жизненепригодный город, было лишь 4096.
[5] «Kunst- und Modeströmungen», Muthesius, стр. 497.
[6] Берлин 1841 г. насчитывал 61000 квартир, в том же году возведены были 2388 новых, в 1859 г. – 4642, в 1864 г. – 9163. См. «Das Berlin Carstenns», Scarpa, стр. 3.
[7] «Die Wohnungsnot in den Großstädten und die Mittel zu ihrer Abhilfe», Albrecht, стр. 7-8, также «Die Gartenstadt Rathshof bei Königsberg i. Pr.», Leyser, стр. 18: «Тонкие стены переносят любой соседский вздох, всё у всех всегда на виду, по лестничной клетке всюду проникает прокисший воздух, опасный как прокисшая еда, и температуры всё ухудшают: подобное жильё побуждает к кабаку, делает односемейный домик лучшим средством против пьянства.» Сдавая комнату, номинальные хозяева ютились на кухне, где вся семья попеременно спала в одной кровати: дети ночевали на полу, утром же менялись с родителями местами, когда те до рассвета вставали на работу – что вполне совпадало с сельскими обиталищами тех же лет, см. «Die Landarbeiter in der Provinz Ostpreußen», Gerhardt, стр. 33 и «Großstädtisches Wohnungselend», Südekum, стр. 14-19.
[8] В 1867-1900 гг. малый сельский город Германии (до 2 000 жителей) прирастал естественным путём на, в среднем, 1,7%, средний город (5 000-20 000 жителей) на 19,9%, тогда как крупный (свыше 100 000 душ) – на 39,3%. См «Die Gartenstadt Ratshof bei Königsberg i. Pr.», Leyser, стр. 17
[9] Сломка стен старой Вены (с 1857 г.), парижские бульвары (с 1853 г.) были образцом аррондирования всей посленаполеоновской Европе – линейные размеры кварталов новых прирезок, ширина улиц, ведших к ним, обычно многократно превосходили такие же в бывшем периметре стен. Характерным примером красивого замысла, даже городом-садом могшего стать – но в историю вошедшего синонимом бесчеловечности и наживы, был берлинский план новых районов Джеймса Хобрехта («Hobrechtplan»), 1862 г.
[10] См. «Architektur in Berlin 1900-1933», Hüter, стр. 173: «К 1905 г... девять квартир из десяти не имели ванной, в доброй половине туалеты располагались на лестнице или во дворе.»
[11] «Das Berliner Mietshaus», Geist / Kürvers, стр. 126-127, 134-136, 312-313, комплекс «Мейерс гоф», 1873 г. Варианты членения – там же, стр. 268.
[12] «Ein Mahnruf in der Wohnungsfrage», von Schmoller, стр. 425, описывает постройку с 36 отдельно сдаваемыми комнатами в коммунальной квартире, занимавшей целый этаж.
[13] Статистика берлинских квартир в 1871 г., см. «Das Berliner Mietshaus», Geist / Kürvers, стр. 124. За переизбытком больших, и недостатком малых и средних квартир наниматель вынужденно брал квартиру не по доходу и, в возмещение затрат, сдавал её комнаты, либо углы в комнате, либо место в койке уже от себя. Аналогично в Гамбурге, см. «Die Wohnungsnot in den Großstädten und die Mittel zu ihrer Abhilfe», Albrecht, стр. 11. Часты были банкротства спекулянтов, переоценивших спрос на свои многокомнатные квартиры, тогда как прочие классы ютились по углам – см. «Straßenkreuzer der Kaiserzeit», Schmidt, стр. 41.
[14] Фридрих Энгельс писал Л. ЛаФарж 18.9.1893 г. о квартире Н. и В. Либкнехтов в Шарлоттенбурге: «жутко выстроенная», «Здесь в Берлине придумали ›Berliner Zimmer‹, почти без окон, и именно в них проводят берлинцы свои дни», «С улицы ко двору следуют столовая (гостевая, используется лишь по праздникам), салон (ещё торжественней, ещё реже в использовании), затем ›берлинская‹ комната-конура, за ней мрачный коридор, пара спален donnant sur la cour [лицом во двор] и кухня. Неудобно и длинно, подлинно по-берлински (мещански берлински): парадная сторона и даже блеск вовне, мрак, неуютность и неудобство внутри; дворец остаётся фасадом, а для жизни – лишь неуют.» См. «Ein Fenster zum Hof», стр. 1-2; «Das Berliner Mietshaus», Geist / Kürvers, стр. 274, 12-комнатная квартира в роскошном районе с тремя «берлинскими комнатами», 7-комнатная квартира с двумя («столовая» и «гардеробная») и коленчатым коридором.
[15] Изредка встречались «берлинские комнаты» простого прямоугольного плана, обычно же их единственное окно было в двойном «кармане», изнутри и снаружи – см. «Grundrisse für städtische Wohngebäude», Assmann. Автор не мог не знать физики – но планы подчас выглядят так, будто бы составитель и строитель верили в способность солнечных лучей заглядывать за угол. Объяснение «Das Berliner Mietshaus», Geist / Kürvers, стр. 229. представляется спорным: геометрически неизбежные при застройке с боковыми и поперечными флигелями, подчёркнуто большие «берлинские комнаты» должны были именно своей величиной не дать жильцам использовать их под спальни, где нужен воздухообмен. Предлагали и жилые дома для рабочих, где квартиры состояли бы исключительно из «берлинских комнат».
[16] Натянутой выглядит попытка произвести генеалогию «берлинских комнат» от Карла Фридриха Шинкеля, будто бы изобретшего их в доме Фейльнера (Feilner-Haus), в скошенным дворовым углу разместив диагональную комнату – с широким, почти витражным окном, ничего общего не имеющим с отводками, распространившимися от 1862 г., 20 лет после кончины Шинкеля.
[17] «Straßenkreuzer der Kaiserzeit», Schmidt, стр. 41
[18] Heinrich Zille, берлинский быторисователь
[19] Edikt betrefflich den erleichterten Besitz der Grundeigentümer sowie die persönlichen Verhältnisse der Landbewohner
[20] Товарищи, квартир и земли совладельцы, проходили ценз в горсовет и рейхстаг. См. «Berlin-Wedding in der Zeit der Hochindustrialisierung», Reitzig, стр. 131
[21] «Закон о жилище, рабочим гарантирующий приемлемый кров, их отблеск семейного света, действеннее дюжины параграфов о наказаниях преступности», Франц фон Лист (Franz von Liszt), профессор-правовед, в «Arbeitermietshäuser in Berlin», стр. 325
[22] «Wohnarchitektur des mitteleuropäischen Traditionalismus um 1910 in ausgewählten Beispielen», Arne Ehmann, стр. 259
[23] «новую вещественность», «Neue Sachlichkeit», возникшую вскоре, было было бы вернее называть «новой существенностью»
[24] «Die farbige Stadt», Rieger, стр. 37-38
[25] «Deutsche Gartenstadt-Gesellschaft», основатели братья Кампффмейеры (Hans Kampffmeyer, Paul Kampffmeyer) и архитектор Рихард Римершмид (Richard Riemerschmid), вскоре построивший «Немецкие [мебельные] мастерские» в комплексе города-сада Хеллерау.
[26] «Der Städtebau», издавался Камилло Зитте и Теодором Гёке.
[27] Стержневым элементом настоящего города-сада (реформ-жилмассива) является самообеспечение, наличие собственного экономического кругооборота, и самоуправление, от домсовета до муниципалитета. В большинстве «городов-садов» от заводчика или застройщика, подобного не было и не предполагалось – хотя бывали и исключения, у Карстенна-Лихтерфельде (см.)
[28] «Kleinhaus oder Mietskaserne?», парафраза «вилла или жилая казарма» («Villa oder Mietskaserne?», Schasler, стр. 129-134) 1868 г.
[29] «Zentralblatt der Bauverwaltung», Scholtz, стр. 682.
[30] «Innere Kolonisation», возвращение мигрировавших в города бывших крестьян к земле, через предоставление им участков на выкупаемых частных или государственных полях.
[31] «Ostpreußenhilfe», «Reichssiedlungsgesetz»; «Verordnung zur Behebung des Landarbeitermangels»
[32] аграрный кризис 1878–1879 гг. привёл к различию заработков сельского и фабричного рабочего на порядок – «Geschichtliche Entwicklung der Landarbeiterverhältnisse in Ostpreußen», Klatt.
[33] «Das Berliner Arbeiter-Miethshaus», Göcke, стр. 501-502, 508-510, 522-523 – также «Neues zur Arbeiterwohnungsfrage», Dehn, стр. 1426-1427
[34] Фабрика открылась в 1811 г., активно работает с 1830 г. – строит через 31 год. От основания мыловарни братьев Леверов до «Порт-Санлайт» не прошло и 10 лет – см. «Das Fabrikdorf Port Sunlight bei Liverpool», Muthesius, стр. 134; от переезда вагоностроительного завода Штейнфурта до начала «Ратсгофа», 4 года. «Немецкие мастерские» и город-сад Хеллерау открылись одновременно, в 1909 г.
[35] «Deutsche Geschichte», Nipperdey, стр. 142
[36] «Deutsche Geschichte», Nipperdey, стр. 161. Показательно, что тогда введённый в обиход «душ» первое время назывался «военной баней», «Militärbad».
[37] Brandenburgische Bauordnung §49(1) и аналогичные.
[38] Боковые флигеля, и произошедшие из них проблемы планировки, не были характерны для «жилых казарм», и возникли позднее. Они же послужили дурной славе данного вида застройки – порождения алчности, её и погубившие.
[39] «наклеенная романтика» «превращает колонию в подлинный иллюстрированный каталог строительных псевдоэлементов», писал о нём в «Kulturarbeiten», Schultze-Naumburg, стр. 187.
[40] О правомочности титула см. ниже.
[41] «Wohnarchitektur des mitteleuropäischen Traditionalismus um 1910 in ausgewählten Beispielen», Ehmann, стр. 282. Города-сады, рабочие городки, а также жилмассивы послевоенного модернизма часто были натурными экспериментами или обитаемыми экспонатами.
[42] XIX век нанимателя не защищал, письменных договоров найма не знал. Оплачивались квартиры господские – за полугодие, средние – поквартально, и к любому сроку плату можно было по желанию поднять или жильцов сселить. В Берлине 1883-1906 гг. в год 35-45% жильцов меняли квартиру, причём далеко не добровольно – см. «Berlin-Wedding in der Zeit der Hochindustrialisierung», Reitzig, стр. 338.
[43] Paul Schultze-Naumburg, основатель «Веркбунда», председатель «Защитников отчизны»
[44] «Берлинское общественно-полезное строительное общество» («Berliner gemeinnützige Baugesellschaft»), 1848 г. первое подобного рода, основано Виктором Айме Хубером (Victor Aimé Huber) и Карлом Вильгельмом Хоффманном (Carl Wilhelm Hoffmann) под патронатом кронпринца Вильгельма и английского принца Альберта, распущено за неуспешностью в 1870х гг.; «Общество социальной политики» («Verein für Socialpolitik», 1873 г.), «Союз за реформу землевладения» («Bund für Bodenbesitzreform», 1888 г., под руководством Адольфа Дамашке (Adolf Wilhelm Ferdinand Damaschke)), «Общество за общегосударственный закон о жилище» («Verein Reichswohnungsgesetz», 1898 г.), обычно из бюргерских кругов, считавших борьбу с жилищной нуждой моральным или патриотическим долгом. Из тех же лет «Германского союза за рейформу жилья» («DeutscherVerein für Wohnungsreform») произошла «Германская жилищная академия» («Deutsche Akademie für Wohnungswesen»), давшая расчётные основы социального жилого строительства – патронировал её государственный жилищный комиссар Роберт Лей (Robert Ley), уже в Третьем рейхе.
[45] «санитарному озеленению место не в уличном шуму и пыли, а в сердце обстроенных по периметру кварталов» – из доклада Теодора Гёке (Theodor Göcke) на собрании Германского общества садового искусства в Маннгейме, «Gartenkunst im Städtebau», стр. 206.
[46] См. также у Людвига Херхера, «Ein Beitrag zum heutigen Städtebau», 1904 г. и у Хендрика Берлаге, «Трансваальбюрт», Амстердам, 1916-1931 г.
[47] Gesetz, betreffend die Erwerbs- und Wirthschaftsgenossenschaften, (§2(3)).
[48] «Die Organisation der städtischen Haus- und Grundbesitzer in Deutschland», Baschwitz, стр. 173.
[49] Любекский съезд 1901 г. боролся против обуржуаживания пролетариата, сильные ячейки СДПГ препятствовали «третьему пути» Говарда сотоварищи – в результате в консервативно-сельской Восточной Пруссии жилтоварищества играют существенную роль уже в 1900–1902 гг., тогда как в промышленно-эсдековском Берлине – лишь в 1913 г, к 1910 г. строя не более 1% общего годового выпуска домов. См. «Berlin`s Housing Revolution», Wiedenhoeft, стр. 28. После Первой Мировой войны социал-демократия, потеряв радикальное левое крыло и проведя через веймарский рейхстаг Строительное уложение, конституцию и закон о жилище, стала, напротив, настойчивым пропагандистом товариществ.
[50] Для облегчения берлинской жилищной нужды к застройке отдавались бывшие поле для манёвров в Темпельгофе и казённое поместье в Далеме: казна затребовала 40 марок за метр застраиваемой земли в одном и 35 в другом случае, принуждая к высокоплотному или «господскому» строительству. См. «Berlin und seine Bauten», стр. 125-126.
[51] «Berlin, Wandlungen einer Stadt», Scheffler, стр. 89-90
[52] Gemeinsamer Erlaß der preußischen Minister für Handel und Gewerbe, für Geistliche-, Unterrichts- und Medizinalangelegenheiten sowie des Inneren
[53] Запретив СДПГ (1878–1890 гг.), ввели социальное страхование и пенсии. Страховым кассам дозволялось из накопленных взносов предоставлять строительным товариществам кредит под низкий процент.
[54] «Spar- und Bauverein Berlin», архитектор и руководитель Альфред Мессель (Alfred Messel)
[55] Народные банки и микрокредит («Vorschußverein») изобретает тогда же Герман Шульце-Делич (Hermann Schulze-Delitzsch).
[56] «Mietshaus im Wandel», Borgelt / Ganssauge / Keckstein, стр. 14
[57] Сегодня комнаты проектируют от 16,4 м2, «открытые кухни», аналог «жилых» – от 17 м2.
[58] «Beamten-Wohnungs-Verein», «Жилищное товарищество служащих», архитектор Пауль Мебес (Paul Mebes)
[59] «Der Städte-Bau nach seinen künstlerischen Grundsätzen», Sitte
[60] «Die Gartenstadt Staaken», стр. 139, имел лишь 5 типов домов – в других жилмассивах бывало и менее.
[61] 35 гектаров, 1913-1917 гг., архитектор Пауль Шмиттхеннер (Paul Schmitthenner)
[62] «Die Siedlung Plaue bei Brandenburg a. H.», Schmitthenner, стр. 173
[63] «Villenkolonie Dünenberg bei Hamburg», Siebold, стр. 175 – провоз из Нойвида на Рейне окупила многократно возросшая стоимость топлива для обжига.
[64] «Drei Siedlungen», Taut, стр. 185
[65] Прокладка мощёных улиц, согласно закону о красных линиях («Fluchtliniengesetz», 1875-1919 гг.), была предпосылкой к дозволению застройки того или иного участка. До того и позднее было наоборот: мощение лишь после застройки достаточным числом домов, за счёт города, с последующей раскладкой на домовладельцев – см. «Berlin-Wedding in der Zeit der Hochindustrialisierung”, Reitzig, стр 85.
[66] «Die Gruppenbauweise», Behrens, стр 123
[67] «Berlin und seine Bauten», стр. 137 – товарищество основано было имперским МВД.
[68] Клейн искал сочетать минимальный строительный расход с максимальной выгодой: здоровым климатом в помещении, оптимальной применимостью планировок в быту, гармоничной формой комнат: «Расположение комнат по странам света, форме и размеру окон должны быть таковы, чтобы даровать комнатам как можно лучший свет, что чрезвычайно важно для комфорта и благотворно для души... Спальни желательно по возможности ориентировать на восток, общие комнаты – на запад, чтоб в спальнях было утреннее солнце, а в общих комнатах – вечернее, и жильцы максимально пользовались им. Расположение спален на запад невыгодно из-за поздно заходящего солнца летом: нагревшиеся стены будут постепенно отдавать тепло комнатному воздуху, нагревая его к ночи, когда жильцы засыпают.» (Спать гигиеничнее было бы в прохладе.) Начав с инсоляции и освещения, он разовьёт свои требования до вентиляции и отопления: «проёмы должны быть такого размера и расположения, чтоб обеспечить непосредственное и достаточное проветривание всех помещений» – «форма и расположение здание, как и форма и расположение проёмов должны обеспечить рачительное отопление, без сквозняков или промерзания (без противолежащих окон, окон на неосвещаемой стороне и т.п.).» «Gebäudeklimatische Studien von Alexander Klein», Oswalt / Warhaftig. Это превосходит иных ортодоксальных модернистов, ограничивавшихся «больше света», и целые стены превращавшие в холодные витражи, куда и мебель нельзя было приставить – но разработает он подобное лишь к 1930м гг. Учёт местного климата стоял в Восточнопрусском восстановлении уже в 1915 г. во главе угла.
[69] «Zur Einführung», стр. 121
[70] В Штаакене Шмиттхеннер подсчитал, что уже при 200-кратном повторении заказ авторской дверной ручки сравнивался в цене со стандартной, из каталога – см. «Die Gartenstadt Staaken», стр. 142
[71] «Museum für Naturkunde», архитектор Рожер Динер (Roger Diener), 2010 г.
[72] «Hinterhof, Keller und Mansarde», Asmus.
[73] В Шарлоттенбурге в 1970х гг. туалет на лестничной площадке в старом фонде нормой считался – а ведь тот до 1920 г. и объединения с Берлином был самым зажиточным городом в стране!
[74] «Berlin`s Housing Revolution», Wiedenhoeft, стр. 28
[75] «Garten-Siedlung der „Gemeinnützigen Baugenossenschaft Gartenvorstadt Bonn“», Goettel, стр. 128
[76] Это также служило своеобразным гарантом продолжения товариществования, наряду с недопущением формализации отдельными членами их фактического квартиро- и землевладения. Оставаясь съёмщиками, они не могли устраниться от участия в жизни объединения. См. «Berlin-Wedding in der Zeit der Hochindustrialisierung», Reitzig, стр. 131
[77] «Garden Cities of To-morrow: A Peaceful Path to Real Reform», Howard. Оптимальным размером города-сада тот считал 32000 жителей (стр. 128).
[78] «Garden Cities of To-morrow», Howard
[79] Современные города-спутники имеют по 60–80 тысяч населения.
[80] «Gartenstadt Rathshof bei Königsberg i. Pr.», Prellwitz, стр. 246: на дорогу к работе им приходилось бы тратить более получаса, что «для часто многодетных семей совершенно неприемлемо». Завод «Штейнфурт» просил предоставить его сотрудникам 20 домиков.
[81] В действительности, земля была приобретена обществом ранее, и если и в ожидании, то независимо от переезда заводов.
[82] «Die Gartenstadt Rathshof bei Königsberg i. Pr.», Leyser, стр. 19.
[83] «Die Gartenstadt Rathshof bei Königsberg i. Pr.», Leyser, стр. 17
[84] «Die Landarbeiter in der Provinz Ostpreußen», Gerhardt, стр. 33
[85] «Das englische Haus», Muthesius, также «Das Fabrikdorf Port Sunlight bei Liverpool», Muthesius, стр.134: «англичанам непредставимо даже в самом наименьшем [доме] одно и то же помещение использовать для приёма пищи и для мойки. В кухне можно, в крайнем случае, есть – но не чистить [посуду], оттого к улице обращёна комната готовочная, жилая и столовая, а ко двору – мойка, рядом с которой удачно разместилась ванная.»
[86] «Die Gartenstadt Rathshof bei Königsberg i. Pr.», Leyser, стр. 19, также «Gartenstadt Ratshof bei Königsberg i. Pr.», Bleyer, стр. 251-252
[87] (Gartenstadt Ratshof bei Königsberg), стр. 274-281.
[88] Берлинский пригород Фронау обошёлся даже без магазинов – товары сюда, по расписанию, доставляли даже и в 1980е годы, из лучших магазинов центра.
[89] «Der Wiederaufbau Ostpreussens», Göttgen, стр. 70
[90] «Die Wohnung des Landarbeiters in Ostpreußen», Frick, стр. 128-129 – четырёхквартирный прежний дом сельских рабочих, с общей чёрной кухней, она же печь. Средняя высота довоенных помещений в свету – 1,80-1,90 м, в комнате 3,50*3,43 м проживают 6-7 человек.
[91] «Die Landarbeiter in der Provinz Ostpreußen», Gerhardt, стр. 33 – «семье [сельского рабочего] предоставлены комната в старых домах, комната с комнаткой в новых, также чердак... Кухни чрезвычайно редки, и где есть – удручающего облика: тёмное помещение, делимое с соседями, под печным дымоходом. Размеры комнаты в Фишгаузене 12 м2, в Кёнигсберге 16...36 м2, в Растенбурге [20 м2]... Повсюду жалуются на слишком малую высоту комнат.» «Жилая комната – одновременно спальня родителей и всех детей... причиной не только бедность, но и недостаток места.» Наконец, «так как эта жилая комната обычно служит ещё и кухней, воздух в ней весьма дурен, тем более что окно и летом, тем менее зимой растворяемо. Для сохранения тепла рабочие семьи предпочитают вообще не проветривать, и оттого – не чистить. Свежий воздух проникает лишь через открытую дверь и дымоход. Часто и света совсем недостаёт, особенно в старых постройках, где окно всего одно, стёкла мелкие, подслеповатые и грязные, или заклеенные бумагой.» Благочестивости (стр. 35) подобное житьё также не способствует – положение известное, осознанное, «добротному жилью придаётся значение... – но имеющиеся квартиры нужно же использовать», бесхитростно писали Герхардту из Прейсиш-Эйлау.
[92] «Berlin und seine Bauten», стр. 137
[93] «Dürerbund», просветительское общество, 1902–1935 гг., издатель журнала «Хранитель искусств» («Der Kunstwart»)
[94] «Deutscher Bund Heimatschutz», особое внимание уделял памятникам природы и (народного) искусства, (строительным) традициям, разрушаемых промышленностью и ростом городов.
[95] «Der Wiederaufbau Ostpreussens», Göttgen, стр. XII
[96] «Deutsches Bauschaffen nach dem Kriege», Muthesius, стр. 190
[97] В Нейденбурге Бодо Эбхарт (Bodo Ebhardt, основатель «Германского замкового объединения» («Deutsche Burgenvereinigung»)) предлагал копировать Любек и Грейфсвальд – см. «Künstlerische Lehren aus dem Wiederaufbau in Ostpreußen», Jürgens, стр. 51. Ганс Кампфмейер предлагал отстраивать целые города и деревни «в стиле Беренса или Теодора Фишера» (1915 г.) – см. «Frankfurter Zeitung», 12.10.1915 г.
[98] Richard Dethleffsen, провинциальный консерватор, основатель восточнопрусских отделений Союза архитекторов и Веркбунда – см. «Zum Wiederaufbau Ostpreußens», стр. 342-343.
[99] Густав Ланген (Gustav Langen), генеральный секретарь градостроительной выставки в Дюссельдорфе (1910 г.), основатель «Передвижного музея градостроительства» – см. «Heimatschutz», стр. 95
[100] «Lex Adickes», «Закон Адикеса», местный закон Франкфурта-на-Майне 1902 г., позволял принудительное слияние и отчуждение участков при осуществлении генеральных планов и под высшие, социальные нужды. Распространён на Восточную Пруссию 15.1.1915 г. («Wohnungsnot und Wohnungsbau in Ostpreußen», Pohle, стр. 99) – на государственном уровне, после неудачных попыток, подобное введёт §153 веймарской конституции и закон о жилище 28.3.1918 г. («Wohnungsgesetz»).
[101] «Bauanwalt»; как беспристрастным защитникам им не дозволялось быть подрядчиками или производителями работ. Заявления поступили от около 800 архитекторов со всей страны.
[102] Bauschöffen
[103] «Die Wohnung des Landarbeiters in Ostpreußen», Frick, стр. 130-131 – типизация как средство обеспечения качества в условиях недостаточной рабсилы и надзора: сперва возведение образца, с прорабами и подрядчиками, и лишь затем тиражирование. Курт Фрик (Kurt Frick), архитектор Хеллерау, был районным архитектором Шталлупёнена. Здесь же располагался военно-строительный батальон Пауля Крухена (Paul Kruchen), районного архитектора Гумбиннена и Инстербурга, в котором служил Ганс Шарун (Hans Scharoun). О восстановлении Восточной Пруссии см. «Административная организация восстановительных работ в провинции Восточная Пруссия» и «Путь Восточной Пруссии к современной архитектуре», Сухин.
[104] Также вернулись и к «жилой кухне» – при новой высоте потолков, метраже квартир, окнах она потеряла былую вредоносность.
[105] «Die Kleinhaussiedlung auf dem Lande», Lübbert, стр. 65, «Поселенец обычно в силах оплатить лишь минимальный первый взнос, основная часть строительных расходов ложится на общественные кассы (страховки, субсидии и т.п.), а потому нежелательно, чтобы неопытный в строительстве поселенец принимал за архитектора какие-либо решения по облику здания... Также следует предотвратить возведение поселенцем дома собственными силами, так как познания его обыкновенно ничтожны и не дают достойного результата. В настоящее время особенно важно не дать дурно или неправильно потратить стройматериалы. Самострой – пустая трата сил и средств, когда производится без профессионального научения и надзора.»
[106] «Секрет мастерства», Сухин, стр. 84
[107] Пример самостроя под надзором – «Einige Beobachtungen und Erfahrungen beim ostpreußischen Siedlungsbau», Lübbert, стр. 114
[108] «Deutsche Geschichte», Nipperdey, стр. 152
[109] Показательный пример – больничный комплек Берлин-Бух, 1899-1916 гг., архитектор Людвиг Хоффманн (Ludwig Hoffmann), прораб Пауль Крухен (Paul Kruchen), см. «Ein Gang durch das Altleuteheim in Buch», Hoffmann, стр. 261.
[110] «Die Aufgabe der Farbe im Bauwesen», Paul. Эвальд Пауль руководил мюнхенским обществом по исследованию цвета и света.
[111] «Grundlagen für das Bauen in Stadt und Land», Steinmetz – на основе исследования по заказу «Хранителей отчизны»
[112] «Die Aufgabe der Farbe im Bauwesen», Paul.
[113] Наиболее разрушенные города, см. «Wohnungsnot und Wohnungsbau in Ostpreußen», Pohle, стр. 21
[114] «Aufruf zum farbigen Bauen», Taut
[115] «Пёстрый ряд» не составляет программно целостного города-сада и не ставил перед собой подобной задачи, но его планировки округляют развитие типологии квартир.
[116] «Ostdeutsche Bauzeitung», «строительное товарищество служащих предполагает построить известное количество одно- и двухэтажных поселенческих домов, всего около 400 квартир с 400-500 м² огорода на каждую.»
[117] «Kleinhaus»: «а) не более чем два этажа и полуэтаж-чердак; б) на каждом этаже не более 3 малогабаритных квартир, т.е. квартир с не более чем четырьмя жилыми помещениями, в прочем же соответствующими величиной, расположением, высотой и оборудованием местным потребностям малодостаточного населения; в) без жилых пристроек (флигелей, боковых, осевых или поперечных) – при этом подсобные строения (стойла, сараи, небольшие мастерские, туалеты и пр.) допускаются; г) каждой квартире предоставляется не менее 200 м2 прилегающих площадей под сад или сельскохозяйственное использование.» («Sonderbaupolizeiverordnung für Kleinhäuser», 24.9.1918 г., см. «Wohnungsnot und Wohnungsbau in Ostpreußen», Pohle, стр. 101-106.)
[118] Веймарская конституция, 1919 г., §155: «Распределение и использование земель государством контролируются с тем, чтоб предотвратить худшее и каждому немцу обеспечить здоровую квартиру, а каждой немецкой семье, особенно многодетной, отвечающее их потребностям жильё и место для работы».
[119] «Die Kleinhaussiedlung auf dem Lande», Lübbert, стр. 29: «при длине поперечных стен [в 4,04 м] можно вдоль каждой поставить две кровати. Также в лицевой и задней части здания образуются одинаковой длины балки и стропила»
[120] До того проектирование многоквартирных жилых домов следовало типам, например: «Grundrisse für städtische Wohngebäude», Assmann: глубина «лицевой комнаты» для дешёвых квартир не менее 5,02 м, для господских – не менее 5,65 м. Глубина дома с дешёвыми квартирами не менее 11,93 м, с господскими – 12,55-13,81 м и выше. Флигеля вдоль брандмауэров – 5,02-7,53 м.
[121] «Минимальная городская квартира, по сути своей, в первую очередь – место для сна», «Bauwelt», 1930 г., №48, стр. 2-19 – ведь живут в них люди небольшие, работающие, и лишь на ночь возвращаются домой. Оттого планировка от спальни. По той же причине Беренс утверждал избыточность площадей для рабочих районов – их некому будет заполнить! (см. «Formen der Moderne», Noell). Город или пригород-сад, напротив, таких пространств требовали.
[122] Застройку «лесенкой» для улиц, не протянутых по странам света, как этого требовала бы ортодоксальная инсоляция, предлагали Вильгельм Рипхан и Каспар Мария Крод (Wilhelm Riphahn, Caspar Maria Crod) в Кёльне – см. «Neue Arbeiten von Wilhelm Riphahn-Köln», Riphahn, стр. 268, посёлок Калькерфельд. Александр Клейн для глубоких участков разработал ковровую застройку трехлучевыми домами, в каждом луче – по квартире, каждая – как минимум с южным светом; см. «Gebäudeklimatische Studien von Alexander Klein», Oswalt / Warhaftig. Редукцию лучей до «строчки» с эркерами предложили Густав Вольфф и Вильгельм Ульрих в Галле (Gustav Wolff, Wilhelm Ulrich) – прослеживается определённое формальное сходство с городской стороной «Пёстрого ряда»; см.(Entwurf zu einem Miethausblock mit Kleinwohnungen), стр. 503. Петер Беренс (Peter Behrens) двустороннее (но не сквозное) освещение двухэтажной змейки полуотдельных домиков сочетал с отдельным входом и прилегающим к собственному окну огородом – см «Kleinhaustypen», Behrens, стр. 7-10, в развитие его одновременной застройки в Хеннингсдорфе («Die Gruppenbauweise», Behrens, стр 124-125 и «Waldsiedlung Berlin-Lichtenberg», Behrens, стр. 320-330): дома для этого на треть участка вдвигались вглубь, разрушая уличный фронт. В Хеннингсдорфе ванные тоже объединены с мойками, доступны через кухни – но сами кухни обособленны (не во всех квартирах). В Кёнигсберге и Гамбурге тоже были схожие решения – подчас возрождавшие «берлинские комнаты» – см. «Der Wohnungsbau in Deutschland», Gut, стр. 131.
[123] «Perspektiven europäischer Wohnungspolitik 1918 bis 1960», Schulz, стр. 43: «Жилмассивы Германии 20х годов были эстетическим достижением, но как строительный проект они не смогли достичь основной своей цели, ликвидации жилищной нужды: квартир было построено недостаточно, а те что построили были недостаточны размером и чрезмерны ценой для массового спроса.» Даже субсидированная рабочая квартира 1920х гг. в Берлине стоила около 3500 марок – при годовом заработке квалифицированного рабочего в 2784 марок, см. «Berlin`s Housing Revolution», Wiedenhoeft, стр. 49. Жилпомощь веймарских лет действовала, фактически, через высвобождение квартир среднего класса и деклассирование их под рабочее жильё.
[124] «Beobachtungen über Farbenwirkung aus meiner Praxis», Taut, стр.12
[125] «Die Kleinhaussiedlung auf dem Lande», Lübbert, стр. 153. Пример простого 4-семейного дома за 58 000 марок, 14 500 на одну – «Einige Beobachtungen und Erfahrungen beim ostpreußischen Siedlungsbau», Lübbert, стр. 114. Минимальная рабочая квартира Восточной Пруссии считалась в 1919 г. в 50 м2 общей площади и 36 м2 жилой, и рассчитывалась на троих человек – см. «Die Wohnung des Landarbeiters in Ostpreußen», Frick, стр. 129
[126] Рост цен на строительный лес 1914-1918 гг., по правительственному округу Кёнигсберг, 325% – см. «Wohnungsnot und Wohnungsbau in Ostpreußen», Pohle, стр. 130. Средний по Восточной Пруссии, 1914-1920 гг., 1061% – см. «Holzpreise im Wiederaufbaugebiet Ostpreußens», стр. 115-116. Провинция лес прежде вывозила; другие материалы вздорожали схожим образом.
[127] «Sparerlaß», 24.12.1920
[128] «Die Siedlung Laatzen bei Hannover», Wolf, стр. 300, 307, 308
[129] «Carl Krayl», Maasberg, стр. 129
[130] «Die Kleinhaussiedlung auf dem Lande», Lübbert, стр. 29. Осевая стена в 30 см соответствует «Sonderbaupolizeiverordnung für Kleinhäuser», см. «Wohnungsnot und Wohnungsbau in Ostpreußen», Pohle, стр. 102.
[131] «Wohnungsnot und Wohnungsbau in Ostpreußen», Pohle, стр. 101.
[132] Одно из ранних появлений противоположного – см. «Das Kabinensystem und seine Anwendungsmöglichkeit im Wohnungsbau», Hiller, стр. 1017. «Wohnung und Moderne», Kähler, относит Эрнста Мая к сторонникам, Бруно Таута к противникам подобного подхода.
[133] «Nackthof». Джонсон, «Стеклянным домом» в Нью-Канаане, доводёт эту линию до конца: за его цельностеклянными стенами настолько невозможно скрыться, что должно ликвидировать улицу и уличное сообщество, чтоб начать жить.
[134] Средневековый «полукрестьянин», себя действительно самообеспечивавший, в Восточной Пруссии имел около 30 000 м2 поля, будочник – около 10 000-15 000 м2. Горожанин во Фридланде, типовом восточнопрусском колониальном городе, получал поле в 6 000 м2 – см. «Friedland», Witt. Единственным жилтовариществом нового времени, доказуемо достигшим самообеспечения, был ораниенбургский «Эдем» под Берлином.
[135] «Das Fabrikdorf Port Sunlight bei Liverpool», Muthesius, стр. 147 – 400 домов, 56 гектаров
[136] «Freie Scholle», «Beispiel einer Bodenaufteilung kleineren Umfangs», Eberstadt, стр. 201-202 и «Freie Scholle», Amann / von Neumann-Cosel, стр. 44
[137] «Bebauungsplan für die Kleinsiedlung Tannenwalde bei Königsberg», Muthesius, стр. 153
[138] «Die Gartenstadt Staaken», стр. 139.
[139] «Die Siedlung Luisenhof», стр. 8-9
[140] «Drei Siedlungen», Taut, стр. 183
[141] «Einige Beobachtungen und Erfahrungen beim ostpreußischen Wiederaufbau», стр. 114
[142] Вводилось разновременно, в Берлине лишь в 1925 г. (Bauordnung für die Stadt Berlin) – провинции обогнали столицу. Им же воспрещались к новой постройке квартиры в боковых дворовых корпусах (§7, §12), а с ними и «берлинские комнаты». При размещении квартир в отдельностоящих дворовых корпусах §26.5 требовал инсоляции как минимум жилой комнаты, обращённые на север квартиры запретив.
[143] Земли были, зачастую, высокой плодородности – подошла пора расширения городских полей (канализационного) орошения, и прежние, обильно удобренные польдеры, отводились под застройку.
[144] Аналогично в посёлке «Подкова» Бруно Таута (Берлин-Бриц) десятилетием спустя. Дом-корабль, за исключением наличников почти полностью утратил покраску: там белые, охристые и сине-зелёные тона
[145] Планировка утраченного дома железнодорожников неизвестна: при той же длине как и сохранившийся «дом-корабль» он имел три, а не четыре входа, как минимум один дворовый ризалит, и дугообразный корпус на въезде в жилмассив.
[146] «Der Wohnungsbau in Deutschland», Gut, стр. 278
[147] «Wohnarchitektur des mitteleuropäischen Traditionalismus um 1910 in ausgewählten Beispielen», Ehmann, стр. 429.

Литература
(в скобках даны публикации без заглавий)
  1. (Entwurf zu einem Miethausblock mit Kleinwohnungen), «Wasmuths Monatshefte für die Baukunst», №12 1927 г.
  2. (Gartenstadt Ratshof bei Königsberg), «Deutsche Bauhütte» №35-36 1916 г.
  3. «Arbeitermietshäuser in Berlin», «Berliner Architekturwelt» №9 1900 г.
  4. «Architektur in Berlin 1900-1933», Karl-Heinz Hüter, 1988 г.
  5. «Aufruf zum farbigen Bauen», Bruno Taut, «Bauwelt» №38 1919 г.
  6. «Bauwelt», №48 1930 г.
  1. «Bebauungsplan für die Kleinsiedlung Tannenwalde bei Königsberg», Hermann Muthesius, «Wasmuths Monatshefte für die Baukunst», №5-6 1919-1920 гг.
  2. «Beispiel einer Bodenaufteilung kleineren Umfangs», Rudolf Eberstadt, «Zentralblatt der Bauverwaltung», №32 1912 г.
  3. «Beobachtungen über Farbenwirkung aus meiner Praxis», Bruno Taut, «Bauwelt» №38 1919 г.
  4. «Berlin und seine Bauten», том IVa, 1970 г.
  5. «Berlin, Wandlungen einer Stadt», Karl Scheffler, 1931 г.
  6. «Berlin`s Housing Revolution / German Reform in the 1920s», Ronald Wiedenhoeft, 1985 г.
  7. «Berlin-Wedding in der Zeit der Hochindustrialisierung (1885-1914) – eine gegenwartsbezogene Stadtteilanalyse», Markus Reitzig, 2005 г.
  8. «Bruno Taut: 1880-1938; Architekt zwischen Tradition und Avantgarde», Winfried Nerdinger, Kristiana Harmann, Matthias Schirren, Manfred Speidel, 2001 г.
  9. «Carl Krayl – Künstler und Architekt», Ute Maasberg, «Bruno Taut 1880-1939, Natur und Fantasie», 1995 г.
  10. «Das Berlin Carstenns», Ludovica Scarpa, «Die Figur Carstenn / Stadtgründer aus Leidenschaft / Johann Anton Wilhelm von Carstenn-Lichterfelde (1822-1896)», 1996 г.
  11. «Das Berliner Arbeiter-Miethshaus. Eine bautechnisch-soziale Studie», Theodor Göcke, «Deutsche Bauzeitung», 1890 г.
  12. «Das Berliner Mietshaus», том 2: «1862-1945», Johann Friedrich Geist, Klaus Kürvers, 1980 г.
  13. «Das englische Haus», Hermann Muthesius, 1904-1905 гг.
  14. «Das Fabrikdorf Port Sunlight bei Liverpool», Hermann Muthesius, «Zentralblatt der Bauverwaltung», №№23, 25 1915 г.
  15. «Das Kabinensystem und seine Anwendungsmölichkeit im Wohnungsbau», Ernst Hiller, «Bauwelt» №42 1911 г.,
  16. «Der Städte-Bau nach seinen künstlerischen Grundsätzen», Camillo Sitte, 1889 г.
  17. «Der Wiederaufbau Ostpreussens, eine kulturelle, verwaltungstechnische und baukünstlerische Leistung», Erich Göttgen, 1928 г.
  18. «Der Wohnungsbau in Deutschland, seine Entwicklung unter der unmittelbaren und mittelbaren Förderung durch die deutschen Gemeindeverwaltungen», Albert Gut, 1928 г.
  19. «Deutsche Geschichte 1866-1918», том 1 «Arbeitswelt und Bürgergeist», Thomas Nipperdey, 1994 г.
  20. «Deutsches Bauschaffen nach dem Kriege», Hermann Muthesius, «Wasmuths Monatshefte für die Baukunst», №5-6, 1915-1916 гг.
  21. «Die Architektur der Gartenstadt Ratshof», Rudolf Vogel, «Deutsche Bauhütte» №35-36 1916 г.
  22. «Die Aufgabe der Farbe im Bauwesen», Ewald Paul, «Bauwelt» №38 1919 г.
  23. «Die farbige Stadt, Beiträge zur Geschichte der farbigen Architektur in Deutschland und in der Schweiz 1910-1939», Hans J. Rieger, 1976 г.
  24. «Die Gartenstadt Rathshof bei Königsberg i.Pr.», Erich Leyser, «Bauwelt» №30 1911 г.
  25. «Die Gartenstadt Staaken», «Wasmuths Monatshefte für die Baukunst», №4-5 1918-1919 гг.
  26. «Die Gruppenbauweise», Peter Behrens, «Wasmuths Monatshefte für die Baukunst», №5-6 1919-1920 гг.
  27. «Die Kleinhaussiedlung auf dem Lande», том 1 «Kleinhaus», Wilhelm Lübbert, 1919 г.
  28. «Die Landarbeiter in der Provinz Ostpreußen», Felix Gerhardt, 1902 г.
  29. «Die Organisation der stätischen Haus- und Grundbesitzer in Deutschland: ihre Entwicklung, ihr Wesen und ihr Wirken; eine kritische Untersuchung», Kurt Baschwitz, 1909 г.
  30. «Die Siedlung Laatzen bei Hannover», Paul Wolf, «Wasmuths Monatshefte für die Baukunst», №11-12 1920-1921 гг.
  31. «Die Siedlung Luisenhof», без автора, «Bauwelt» №17 1919 г.
  32. «Die Siedlung Plaue bei Brandenburg a. H.», Paul Schmitthenner, «Wasmuths Monatshefte für die Baukunst», №5-6 1919-1920 гг.
  33. «Die Wohnung des Landarbeiters in Ostpreußen», Kurt Frick, «Volkswohnung», 24.4.1919 г. и 10.6.1919 г.
  34. «Die Wohnungsnot in den Großstädten und die Mittel zu ihrer Abhilfe», Heinrich Albrecht, 1891 г.
  35. «Drei Siedlungen / Gartenstadt-Siedlung Falkenberg bei Berlin / Gartenstadt-Kolonie „Reform“ bei Magdeburg / Bebauungsplan der Arbeiter-Kolonie für die „Oheim-Grube“ der Hohenlohe-Werke bei Kattowitz», Bruno Taut, «Wasmuths Monatshefte für die Baukunst», №5-6 1919-1920 гг.
  36. «Edikt betrefflich den erleichterten Besitz der Grundeigentümer sowie die persönlichen Verhältnisse der Landbewohner», 9.10.1807 г.
  37. «Ein Beitrag zum heutigen Städtebau», Ludwig Hercher, 1904 г.
  38. «Ein Fenster zum Hof / Das Berliner Zimmer um 1900», выставка «Bürgerliches Leben um 1900», Museumsverbund Pankow, 2004 г.
  39. «Ein Gang durch das Altleuteheim in Buch», Ludwig Hoffmann, «Wasmuths Monatshefte für die Baukunst», №7 1915-1916 гг.
  40. «Ein Mahnruf in der Wohnungsfrage», Gustav von Schmoller, «Jahrbuch für Gesetzgebung, Verwaltung und Volkswirtschaft», 1890 г.
  41. «Einige Beobachtungen und Erfahrungen beim ostpreußischen Siedlungsbau», Wilhelm Lübbert, «Volkswohnung», №8 1920 г.
  42. «Formen der Moderne / Neues Bauen im Land Brandenburg», Matthias Noell, «Modernes Bauen zwischen 1918 und 1933. Bauten im Land Brandenburg und ihre Erhaltung. Materialen des 7. Denkmaltags im Land Brandenburg 16.-17. Oktober 1998», 1998 г.
  43. «Frankfurter Zeitung», Hans Kampfmmeyer, 12.10.1915 г.
  44. «Freie Scholle / Ein Name wird Programm / 100 Jahre gemeinnützige Baugenossenschaft „Freie Scholle“ zu Berlin eG», Renate Amann, Barbara von Neumann-Cosel, 1995 г.
  45. «Friedland als ostpreußische Kolonialstadt des Mittelalters», Ernst Witt, 1932 г.
  46. «Garden Cities of To-morrow: A Peaceful Path to Real Reform», Ebenezer Howard, 1898 г.
  47. «Gartenkunst im Stätebau», «Schweizeische Bauzeitung», №16 1908 г.
  48. «Garten-Siedlung der „Gemeinnützigen Baugenossenschaft Gartenvorstadt Bonn“», Jacobus Goettel, «Wasmuths Monatshefte für die Baukunst», №5-6, 1919-20 г.
  49. «Gartenstadt Rathshof bei Köigsberg i. Pr.», H. Prellwitz, «Deutsche Techniker-Zeitung», №13 1909 г.
  50. «Gartenstadt Ratshof bei Königsberg i. Pr.», Fritz Bleyer, «Zentralblatt der Bauverwaltung», №37 1909 г.
  51. «Gebädeklimatische Studien von Alexander Klein», Philipp Oswalt, Myra Warhaftig, «Wohltemperierte Architektur», Philipp Oswalt, Susanne Rexroth, 1994 г.
  52. «Geschichtliche Entwicklung der Landarbeiterverhältnisse in Ostpreußen», Willi Klatt,1929 г.
  53. «Großstädtisches Wohnungselend», Albert Südekum, 1908 г.
  54. «Grundlagen für das Bauen in Stadt und Land», Georg Steinmetz, 1917-1928 гг.
  55. «Grundrisse für städtische Wohngebäude», Gustav Assmann, 1862 г.
  56. «Heimatschutz», №2 1915 г.
  57. «Het Nieuwe Bouwen Internationaal / International CIAM Volkshuisvesting stedebouw / Housing Town Planning», 1983 г.
  58. «Hinterhof, Keller und Mansarde. Einblicke in Berliner Wohnungselend 1901-1920», Gesine Asmus, 1982 г.
  59. «Holzpreise im Wiederaufbaugebiet Ostpreußens», «Volkswohnung», №8 1920 г.
  60. «Kleinhaustypen», Peter Behrens, «Bauwelt» №23 1918 г.
  61. «Kulturarbeiten», том 3 «Dörfer und Kolonien», Paul Schultze-Naumburg, 1908 г.
  62. «Kunst- und Modeströmungen», Hermann Muthesius, Werner Hegemann (предисловие), «Wasmuths Monatshefte für die Baukunst», №12 1927 г.
  63. «Künstlerische Lehren aus dem Wiederaufbau in Ostpreußen», Otto Jürgens, «Zentralblatt der Bauverwaltung», №9-10 1923 г.
  64. «Mein Miljöh», Heinrich Zille, 1922 г.
  65. «Mietshaus im Wandel: Wohnungen der behutsamen Stadterneuerung in der Luisenstadt; eine Typologie», Christiane Borgelt, Karin Ganssauge, Veronika Keckstein, 1987 г.
  66. «Museum für Naturkunde / Neubau des Ostflügels», Diener und Diener, пресс-досье, 2010 г.
  67. «Neue Arbeiten von Wilhelm Riphahn-Köln», Wilhelm Riphahn, «Wasmuths Monatshefte für die Baukunst», №7, 1927 г.
  68. «Neues zur Arbeiterwohnungsfrage», Paul Dehn, в: «Concordia. Zeitschrift des Vereins zur Föderung des Wohles der Arbeiter», 1892 г.
  69. «Ostdeutsche Bauzeitung», 7.4.1920 г.
  70. «Perspektiven europäischer Wohnungspolitik 1918 bis 1960», Günther Schulz, «Wohnungspolitik im Sozialstaat, Deutsche und europäische Lösungen 1918-1960», 1993 г.
  71. «Straßenkreuzer der Kaiserzeit. Mechanismen der Spekulationsarchitektur am Beispiel Freiburg-Wiehre», Leo Schmidt, «Denkmalpflege in Baden-Württemberg, Nachrichtenblatt des Landesdenkmalamtes», №№1-3 1986 г.
  72. «Villa oder Mietskaserne?», Max Schasler, «Zeitschrift für praktische Baukunst», 1868 г.
  73. «Villenkolonie Dünenberg bei Hamburg», Karl Siebold, «Wasmuths Monatshefte für die Baukunst», №5-6 1919-1920 гг.
  74. «Waldsiedlung Berlin-Lichtenberg», Peter Behrens, «Wasmuths Monatshefte für die Baukunst» №11-12 1920-1921 гг.
  75. «Wohnarchitektur des mitteleuropäschen Traditionalismus um 1910 in ausgewälten Beispielen / Betrachtungen zur Äthetik, Typologie und Baugeschichte traditionalistischen Bauens», Arne Ehmann, 2006 г.
  76. «Wohnung und Moderne», Gert Kähler, «Wolkenkuckucksheim» №1 1997 г.
  77. «Wohnungsnot und Wohnungsbau in Ostpreußen», Martin Pohle, 1919 г.
  78. «Zum Wiederaufbau Ostpreußens», Richard Dethlefsen, «Zentralblatt der Bauverwaltung», №52 1915 г.
  79. «Zur Einführung», «Wasmuths Monatshefte für die Baukunst», №5-6 1919-1920 гг.
  80. «Административная организация восстановительных работ в провинции Восточная Пруссия», Д.Сухин, конференция «Инстербург-Черняховск: страницы истории. Мозаика событий и судеб», 2008 г.
  81. «Путь Восточной Пруссии к современной архитектуре», Д.Сухин, коллоквиум «инстерГОДа», 2010 г.
  82. «Секрет мастерства», Дмитрий Сухин, «Капитель» №1 2013 г.
  83. Bauordnung für die Stadt Berlin, 3.11.1925 г.
  84. Baupolizeiordnung für Berlin und dessen Baupolizeibezirk, 1853 г.
  85. Brandenburgische Bauordnung (BbgBO), 2008 г.
  86. Edikt betrefflich den erleichterten Besitz der Grundeigentümer sowie die persönlichen Verhältnisse der Landbewohner, 9.10.1807 г.
  87. Einheitsbauordnung für Städte und Landgemeinden mit stadtartiger Entwicklung, 25.4.1919 г.
  88. Gemeinsamer Erlaß der preußischen Minister für Handel und Gewerbe, für Geistliche-, Unterrichts- und Medizinalangelegenheiten sowie des Inneren, 19.3.1901 г.
  89. Gesetz betreffend die Erwerbs- und Wirthschaftsgenossenschaften (GenG), 1.5.1889 г.
  90. Gesetz, betreffend die Anlegung und Veränderung von Straßen und Plätzen in Städten und ländlichen Ortschaften («Preußisches Fluchtliniengesetz», «Straßen- und Baufluchtengesetz»), 2.7.1875 г.
  91. Preußisches Wohnungsgesetz, 28.3.1918 г.
  92. Rundschreiben des Oberpräsidenten der Provinz Ostpreußen an alle Architekten («Sparerlaß»), 24.12.1920, «Einrichtung und Tätigkeit von Bauberatungsstellen», фонд Государственного архива прусского культурного наследия 04.05.01, I. HA Repositur 151, 07.01.07, Signatur IV 604
  93. Verfassung des Deutschen Reiches, 1919 г.