Размещено на портале Архи.ру (www.archi.ru)

12.05.2016

Садик-городок

Антонина Плахина
Объект:
Детский сад в Малом Полуярославском пер.
Адрес:
Россия, Москва. Малый Полуярославский переулок, д. 4
Архитектор:
Андрей Асадов
Мастерская:
АБ ASADOV
Авторский коллектив:
Архитекторы: А.А. Асадов, А. Гераскина, П. Белкова, при участии Ю. Шалетри, А. Евтух

В Малом Полуярославском переулке, недалеко от метро Курская, построен детский сад по проекту бюро Асадова – прекрасный пример нестандартного подхода к архитектуре дошкольных учреждений в столице.

Детский сад в Малом Полуярославском пер. Постройка, 2016 © Архитектурное бюро Асадова
Детский сад в Малом Полуярославском пер. Постройка, 2016 © Архитектурное бюро Асадова

Детские сады, созданные по авторскому проекту, пока остаются большой редкостью и для столицы, и для других городов России, а значит и воспринимаются как роскошь, о которой приходится разве что мечтать. Но жителям района вблизи метро Курская и Чкаловская повезло: здесь в Малом Полуярославском переулке появился детский сад, спроектированный архитектурным бюро Асадова. Случай оказался как раз из тех, про которые говорят «Не было бы счастья, да несчастье помогло». На небольшом участке, зажатом со всех сторон существующей застройкой старого московского района, первоначально собирались строить типовое муниципальное ДОУ. Но разместить стандартное здание на маленькой площади и при этом соблюсти нормативы по размерам прогулочных площадок не получалось. Тогда был объявлен конкурс, который выиграла одна из старейших частных школ Москвы, НОУ ЦО «Школа Сотрудничества», и архитектурное бюро Асадова получило сложный, но интересный заказ.
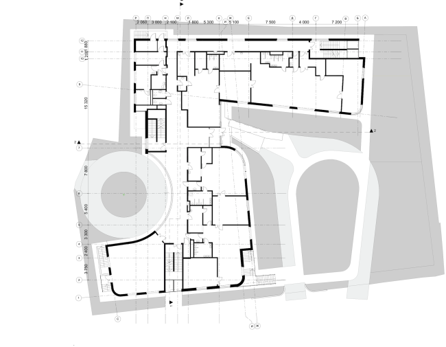
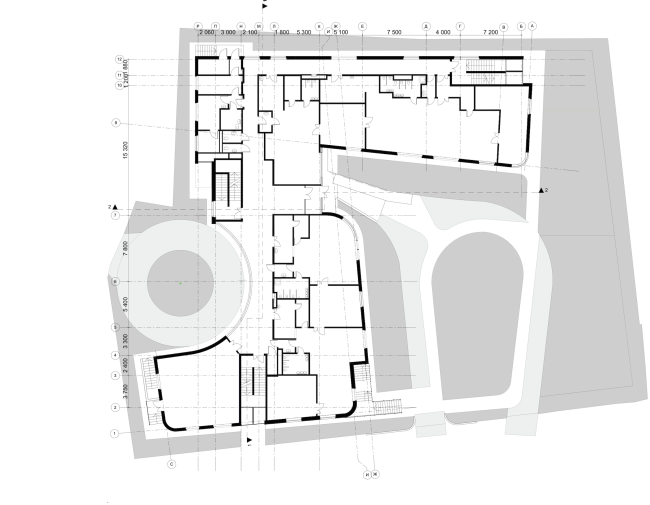
Детский сад в Малом Полуярославском пер. Генеральный план © Архитектурное бюро Асадова
Детский сад в Малом Полуярославском пер. Генеральный план © Архитектурное бюро Асадова
Детский сад в Малом Полуярославском пер. Постройка, 2016 © Архитектурное бюро Асадова
Детский сад в Малом Полуярославском пер. Постройка, 2016 © Архитектурное бюро Асадова

По словам руководителя проекта, Андрея Асадова, архитектурная концепция здания складывалась постепенно, в процессе преодоления задач по соблюдению той или иной нормы, которыми у нас регулируется строительство детских садов. Ни одно решение в архитектурном облике садика не случайно, но продиктовано какой-либо необходимостью. К примеру двухчастная форма и расположение объёма на участке обусловлены выбором оптимальной ориентации по сторонам света. Как видно на плане, здание состоит из двух крыльев, в плане перпендикулярных друг другу. Одно крыло вытянуто вдоль северной границы участка, другое – вдоль западной. Корпуса закрывают двор от самых неприятных ветров, открывая его для солнца с юга и востока. Максимум окон, освещающих пространства детсадовских групп, также выходит на южную и восточную стороны, что позволило соблюсти нормативы по их инсоляции. (Согласно московским городским строительным нормам – МГСН – для дошкольных образовательных учреждений, допустимая ориентация окон групповых ячеек по сторонам горизонта находится в секторе от 85 до 275 градусов, но оптимальной считается 180 градусов, то есть на юг).

Красивая полукруглая стеклянная вставка на западном фасаде обязана своим появлением необходимости разместить около запасного выхода площадку для разворота пожарной машины.
Детский сад в Малом Полуярославском пер. Постройка, 2016 © Архитектурное бюро Асадова
Детский сад в Малом Полуярославском пер. Постройка, 2016 © Архитектурное бюро Асадова
Детский сад в Малом Полуярославском пер. Постройка, 2016 © Архитектурное бюро Асадова
Детский сад в Малом Полуярославском пер. Постройка, 2016 © Архитектурное бюро Асадова
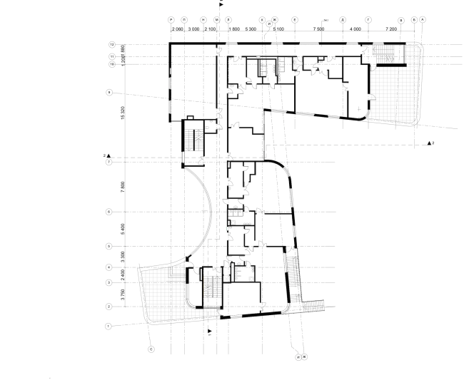
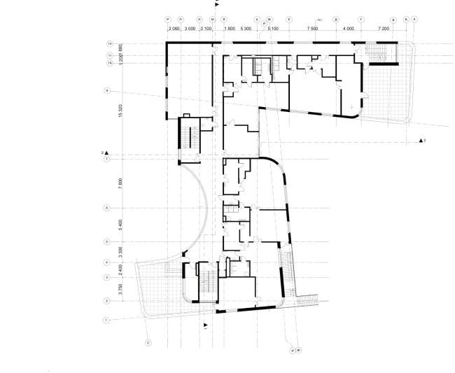
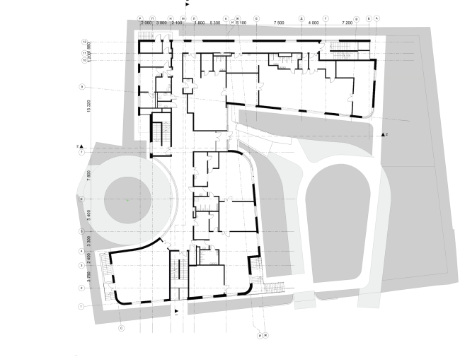
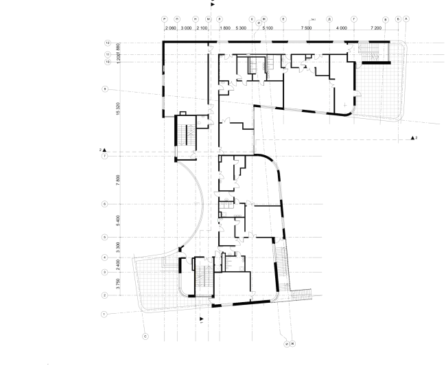
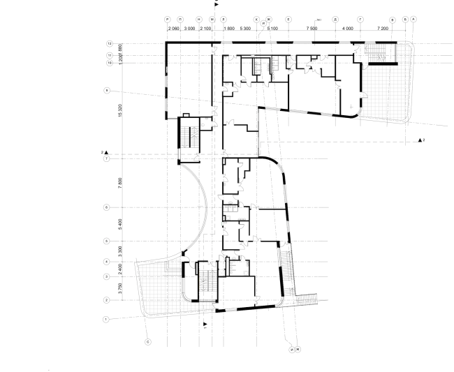
Детский сад в Малом Полуярославском пер. План 1 этажа © Архитектурное бюро Асадова
Детский сад в Малом Полуярославском пер. План 1 этажа © Архитектурное бюро Асадова

Небольшая площадь участка также существенно повлияла на планировку садика. Территории, оставшейся от пятна застройки, было всё же недостаточно для того, чтобы обеспечить каждую группу прогулочной площадкой (опять же согласно МГСН, это 108 м2 для группы детей до 3 лет, 80 м2 для группы детей от 3 до 7 лет, плюс веранды площадью 40 м2, плюс общая спортивная площадка, 250 м2). Неудивительно, что авторы проекта расположили дополнительные прогулочные зоны с верандами на эксплуатируемых кровлях. Причём такие кровельные площадки есть как на уровне второго, так и третьего этажей. Всё это определило узнаваемый облик здания – оба крыла идут уступами, похожими на палубы корабля. Корабельные ассоциации возникают и благодаря скругленным контурам стен и ограждения площадок на крышах.
Детский сад в Малом Полуярославском пер. Постройка, 2016 © Архитектурное бюро Асадова
Детский сад в Малом Полуярославском пер. Постройка, 2016 © Архитектурное бюро Асадова

Авторы сравнивают новое здание детского сада со своим более ранним проектом «Лоскутки»: концепцией городского поселения невысокой этажности, основанной на принципах самоорганизации по типу средневекового города. Для «Лоскутков» характерна нелинейная, несимметричная застройка, «кварталоцентричность», где каждый квартал – город в миниатюре, разнообразие отделок и форм, в конечном счёте – формирование достаточно плотной, но при этом «человечной» среды со множеством возникающих внутри каждого квартала комфортных социальных связей. Причем отправной точкой, дающей своего рода импульс этому социо-культурному процессу, становится именно продуманная архитектурная организация городского пространства.

Детский сад на Малом Полуярославском – со сложной системой разновысотных крыш, меняющийся при взгляде с разных ракурсов, с неодинаковыми, неравномерно распределёнными по фасадам окнами – мог бы быть частью такого «лоскутного» городского квартала. Это с одной стороны. С другой – весь садик вместе с площадкой и верандами, которые есть как на земле, так и на крышах, в целом выглядит как поселение «Лоскутки» в миниатюре. И это, опять же, прежде всего за счёт их динамичного, разноуровневого облика: на верандах архитекторы спроектировали игровую среду, напоминающую игрушечный город, с силуэтами воображаемых домов – таких же разновысотных и пёстрых, как и само здание. Таким образом, сквозной дизайн связывает основное здание и веранды в один комплекс-городок.
Детский сад в Малом Полуярославском пер. Постройка, 2016 © Архитектурное бюро Асадова
Детский сад в Малом Полуярославском пер. Постройка, 2016 © Архитектурное бюро Асадова
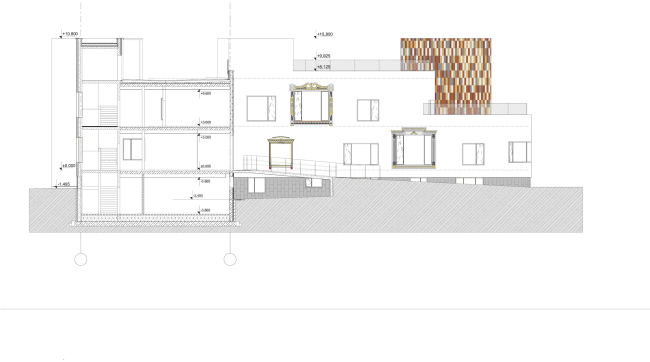
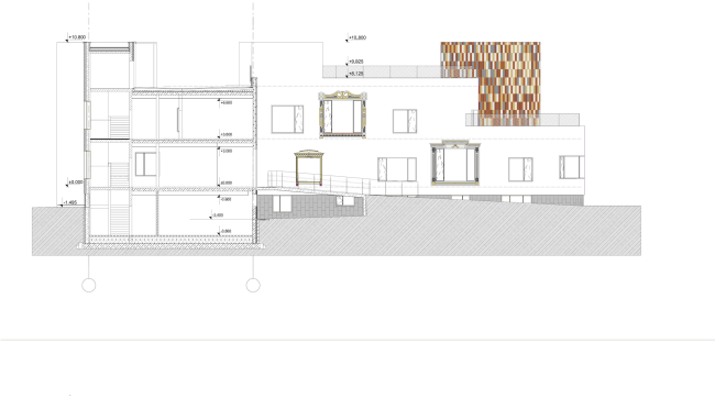
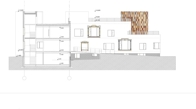
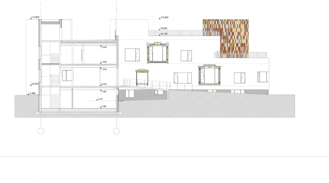
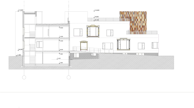
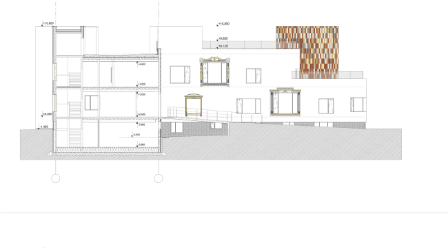
Детский сад в Малом Полуярославском пер. Разрез © Архитектурное бюро Асадова
Детский сад в Малом Полуярославском пер. Разрез © Архитектурное бюро Асадова

Ландшафтное решение участка визуально связано с архитектурным. Округлая планировка дорожек созвучна скругленным контурам здания. Их же подчеркивают плавные насыпные холмики, сделанные для того, чтобы уйти от однообразия плоского рельефа. На на кровлях, растительность и рельефную поверхность делать не стали, чтобы не усложнять строительные работы. Ограничились цветным резиновым покрытием.
Детский сад в Малом Полуярославском пер. Постройка, 2016 © Архитектурное бюро Асадова
Детский сад в Малом Полуярославском пер. Постройка, 2016 © Архитектурное бюро Асадова

Фасады получили очень эмоциональную в положительном смысле этого слова отделку. Большая часть стен покрыта штукатуркой кремового цвета. На этом фоне отлично смотрятся несколько объемов, облицованных пёстрой терракотовой плиткой. Тональность колеблется от светло-песочного до темно-бордового, с небольшими вкраплениями серого. То же цветовое решение выбрано и для веранд, только здесь всё сделано из дерева, выкрашенного морилкой разных оттенков. Если в основном здании цветные участки фасадов визуально дробятся на своеобразные пиксели – по формату плитки, то веранды получились в разноцветную рельефную полоску: за счёт раскрашенных стропил, поддерживающих крыши, и реек, которыми отделаны стены.
Детский сад в Малом Полуярославском пер. Постройка, 2016 © Архитектурное бюро Асадова
Детский сад в Малом Полуярославском пер. Постройка, 2016 © Архитектурное бюро Асадова
Детский сад в Малом Полуярославском пер. Постройка, 2016 © Архитектурное бюро Асадова
Детский сад в Малом Полуярославском пер. Постройка, 2016 © Архитектурное бюро Асадова

Окна на выходящих на площадку фасадах размещены на разном расстоянии друг от друга, к тому же в глаза бросается то, что они разных размеров – одни выше и шире, другие ниже и уже. Что вносит неформальный, игровой элемент в облик здания. Можно сказать, что принцип «Лоскутков»: соединение непохожих домов в одно «полотно» в данном случае повторён в композиции оконных проёмов на фасадах ДОУ.
Детский сад в Малом Полуярославском пер. Постройка, 2016 © Архитектурное бюро Асадова
Детский сад в Малом Полуярославском пер. Постройка, 2016 © Архитектурное бюро Асадова

Идея оформить окна резными деревянными наличниками тоже происходит из концепции «Лоскутков». Важную роль сыграли и заказчики из «Школы сотрудничества». Они активно участвовали в выборе отделки фасадов и сами же предложили поискать интересные решения для наличников. В итоге получилось, что все рамки не только разные, но каждая – собирательный образ оконных наличников какого-либо региона России. Образы придумывались на основе коллекции виртуального музея наличников, который уже несколько лет создаёт московский фотограф Иван Хафизов. В реальность их воплощал потомственный резчик по дереву из российской глубинки Яков Вельников. По большому счёту, декор фасадов становится своего роде образовательным проектом: если подойти к нему творчески, такие окна могли бы стать отправной точкой для занятий занимательным краеведением и географией с детьми.
Детский сад в Малом Полуярославском пер. Наличники Постройка, 2016 © Архитектурное бюро Асадова
Детский сад в Малом Полуярославском пер. Наличники Постройка, 2016 © Архитектурное бюро Асадова

Внутренняя планировка садика делалась с учётом установленных норм, по которым у каждой детской группы есть свой определенный набор помещений: раздевалка со шкафчиками, игровая вместе со столовой, спальня, буфетная, санузел. На первом этаже при входе в здание запроектирован большой холл со сплошным остеклением. Холл переходит в полукруглый широкий и тоже полностью остекленный коридор (это как раз тот самый контур, возникший из необходимости делать разворотную площадку). Внутри получилось довольно-таки много помещений с изогнутыми, неправильными контурами, что должно стать дополнительным аттракционом для детей. Помимо трёх надземных уровней здесь есть цокольный этаж, где расположены хозяйственные помещения и часть административных.

Так что жёсткие рамки, установленные МГСН для детских дошкольных учреждений, не помешали архитекторам бюро Асадова создать проект со множеством оригинальных решений. Складывается даже впечатление, что ограничения – как территориальные, так и со стороны законодательства – в каком-то смысле подзадорили авторов и дали дополнительный импульс для творческих находок.
 
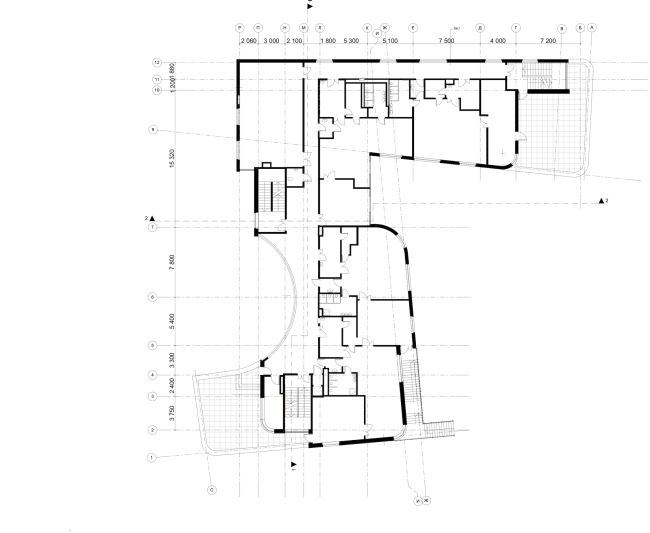
Детский сад в Малом Полуярославском пер. План 2 этажа © Архитектурное бюро Асадова
Детский сад в Малом Полуярославском пер. План 2 этажа © Архитектурное бюро Асадова