Размещено на портале Архи.ру (www.archi.ru)

04.05.2016

МАРХИ: «дом средней этажности»

Полина Садова

Преподаватели предложили третьекурсникам выбрать не только произвольный участок для проектирования, но и источник вдохновения, подхода и приёмов – любимого архитектора из известных.

Курсовые проекты на тему «Дом средней этажности» выполнялись на кафедре «Архитектура жилых зданий» в группе под руководством профессора А.В. Шутикова, В. А. Колгашкиной, Е.С. Васильевой, А.Д. Копеиной. Перед студентами стояла задача спроектировать дом, опираясь на творчество определенного архитектора (Жан Нувель, Альдо Росси, Стивен Холл и др.) или бюро (Dogma, Сaruso st John, MVRDV). Студенты изучали творческий метод выбранных архитекторов, их градостроительные позиции и, условно говоря, работали «под их руководством». По оценке преподавателей, эксперимент удался, результатом стали любопытные, не похожие друг на друга проекты. А углубленное знакомство с творчеством признанных мастеров архитектуры очень важно для профессионального становления будущих архитекторов.

Публикуем проекты, отобранные преподавателями. 

Наталья Логинова

Проект «Дом средней этажности» в стиле Л. Mис ван дер Роэ. Город Москва. Автор: Наталья Логинова, студент 5 группы 3 курса. Фасад
Проект «Дом средней этажности» в стиле Л. Mис ван дер Роэ. Город Москва. Автор: Наталья Логинова, студент 5 группы 3 курса. Фасад

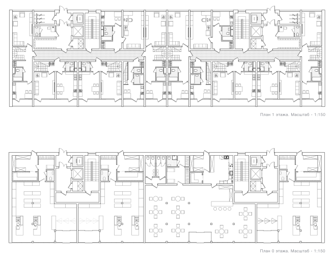
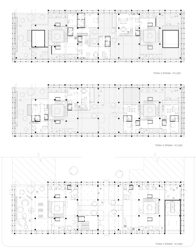
Проект для Новосущевской улицы. В основе – анализ творческих принципов архитектора Людвига Мис ван дер Роэ. Предполагается формирование композиции лаконичных объемов, связующим элементом для которой станет пешеходная зона, проходящая на разных уровнях. Главная идея состоит в смене визуальных впечатлений при движении сквозь жилой комплекс. Открытый амфитеатр – центр общественной жизни ЖК, где можно проводить собрания, праздники или общаться. Амфитеатр окружен детскими площадками.

Комплекс состоит из шести корпусов, различных по планировочному решению. Здесь есть как секционные дома, так и два корпуса галерейного типа, в которых на уровне второго этажа организованы открытые общественные зоны. Из-за особенностей рельефа три дома объединены стилобатом, в котором также располагаются общественные пространства и обслуживающие функции.
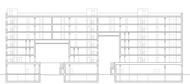
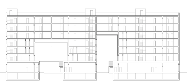
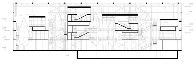
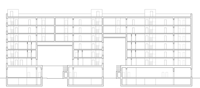
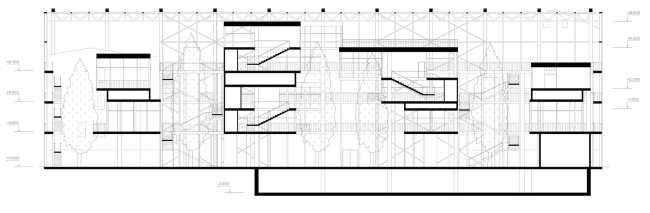
Проект «Дом средней этажности» в стиле Л. Mис ван дер Роэ. Город Москва. Автор: Наталья Логинова, студент 5 группы 3 курса. Разрез
Проект «Дом средней этажности» в стиле Л. Mис ван дер Роэ. Город Москва. Автор: Наталья Логинова, студент 5 группы 3 курса. Разрез
Проект «Дом средней этажности» в стиле Л. Mис ван дер Роэ. Город Москва. Автор: Наталья Логинова, студент 5 группы 3 курса. Аксонометрия
Проект «Дом средней этажности» в стиле Л. Mис ван дер Роэ. Город Москва. Автор: Наталья Логинова, студент 5 группы 3 курса. Аксонометрия
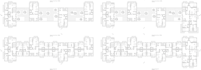
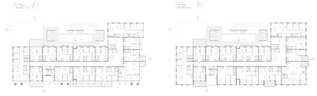
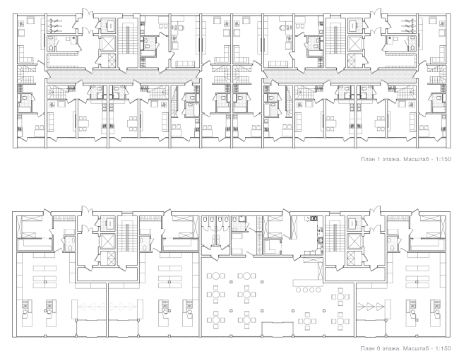
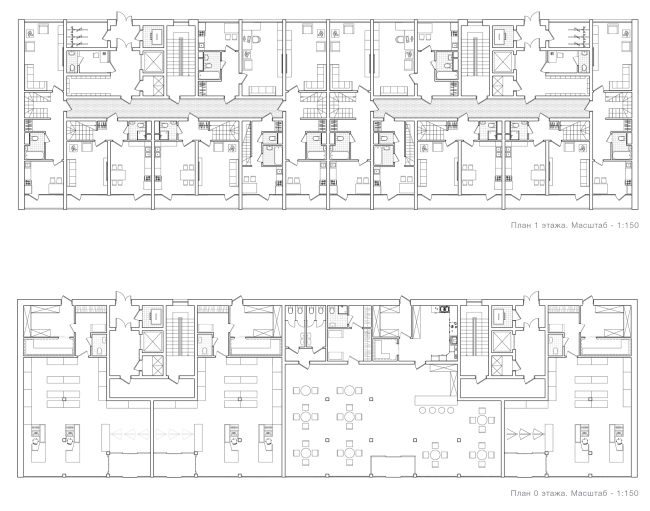
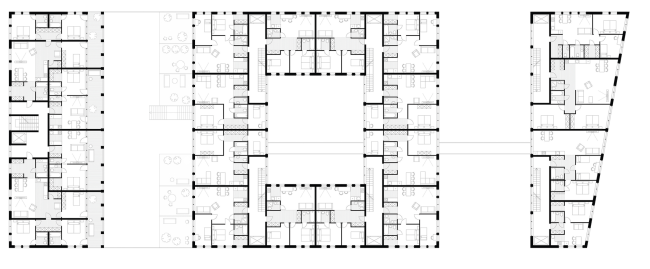
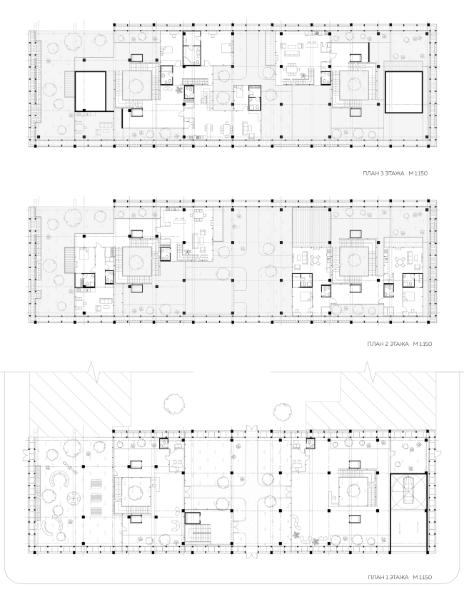
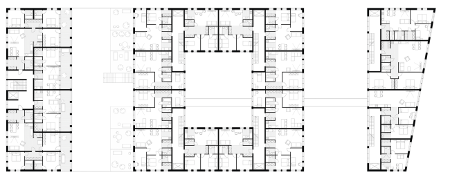
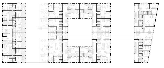
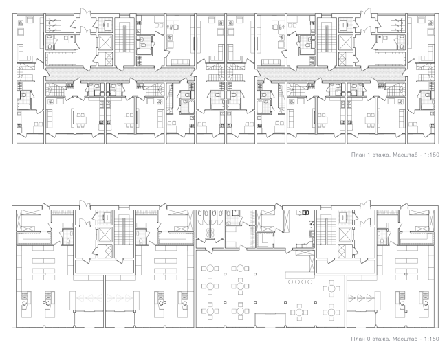
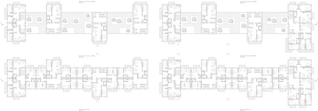
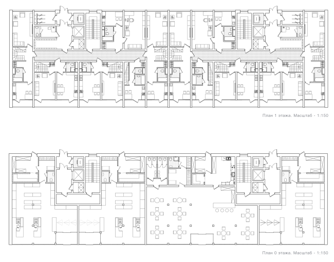
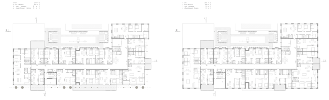
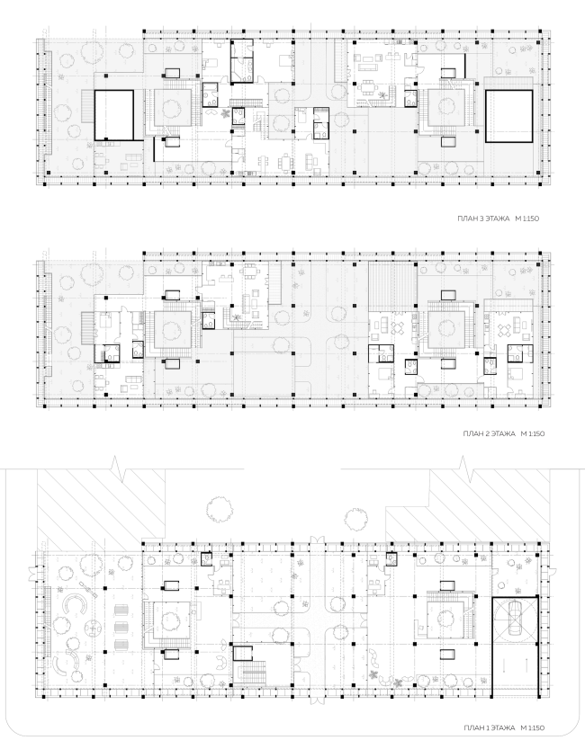
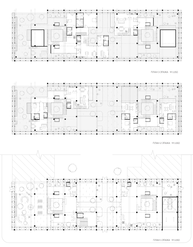
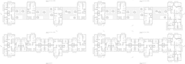
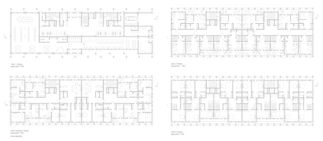
Проект «Дом средней этажности» в стиле Л. Mис ван дер Роэ. Город Москва. Автор: Наталья Логинова, студент 5 группы 3 курса. Планы
Проект «Дом средней этажности» в стиле Л. Mис ван дер Роэ. Город Москва. Автор: Наталья Логинова, студент 5 группы 3 курса. Планы
Проект «Дом средней этажности» в стиле Л. Mис ван дер Роэ. Город Москва. Автор: Наталья Логинова, студент 5 группы 3 курса. Генеральный план
Проект «Дом средней этажности» в стиле Л. Mис ван дер Роэ. Город Москва. Автор: Наталья Логинова, студент 5 группы 3 курса. Генеральный план
***
 
Кирилл Волков
Проект «Дом средней этажности» в стиле бюро Dogma. Город Москва. Автор: Кирилл Волков, студент 5 группы 3 курса. Фасад
Проект «Дом средней этажности» в стиле бюро Dogma. Город Москва. Автор: Кирилл Волков, студент 5 группы 3 курса. Фасад

Автор, следуя принципам бюро Dogma, развивает идею «абсолютной архитектуры». В центре Москвы на Сретенке предлагается построить жилой комплекс из четырёх корпусов, пронизанных осевым проходом через арки. Осевое движение проходит по мосту, приподнятом на уровень второго этажа. Кульминацией движения сквозь дворы – фасад-декорация последнего корпуса. При всей образности и театральности решения, здесь представлены продуманные и разнообразные планировочные решения (от небольших студий до 4-комнатных квартир), грамотно решены вопросы инсоляции, и даже декорации несут функциональную нагрузку. Первый этаж отдан под общественные функции, здесь разместились два кафе и детский клуб.
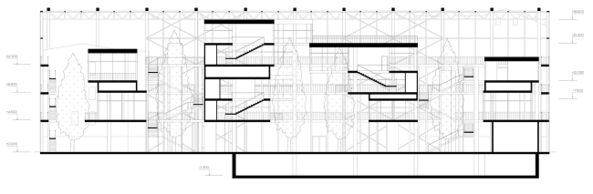
Проект «Дом средней этажности» в стиле бюро Dogma. Город Москва. Автор: Кирилл Волков, студент 5 группы 3 курса. Разрез
Проект «Дом средней этажности» в стиле бюро Dogma. Город Москва. Автор: Кирилл Волков, студент 5 группы 3 курса. Разрез
Проект «Дом средней этажности» в стиле бюро Dogma. Город Москва. Автор: Кирилл Волков, студент 5 группы 3 курса. Фасады и развертки
Проект «Дом средней этажности» в стиле бюро Dogma. Город Москва. Автор: Кирилл Волков, студент 5 группы 3 курса. Фасады и развертки
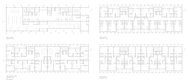
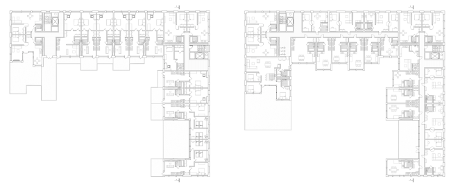
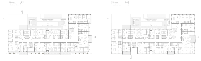
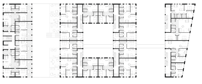
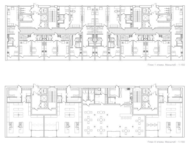
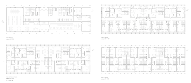
Проект «Дом средней этажности» в стиле бюро Dogma. Город Москва. Автор: Кирилл Волков, студент 5 группы 3 курса. Планы 1-2 этажей
Проект «Дом средней этажности» в стиле бюро Dogma. Город Москва. Автор: Кирилл Волков, студент 5 группы 3 курса. Планы 1-2 этажей
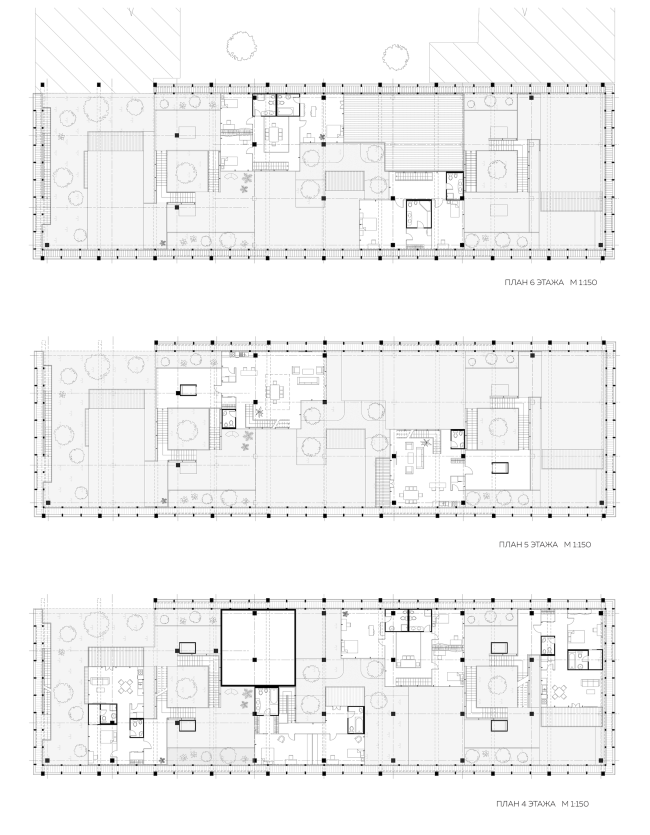
Проект «Дом средней этажности» в стиле бюро Dogma. Город Москва. Автор: Кирилл Волков, студент 5 группы 3 курса. План 4 этажа
Проект «Дом средней этажности» в стиле бюро Dogma. Город Москва. Автор: Кирилл Волков, студент 5 группы 3 курса. План 4 этажа
Проект «Дом средней этажности» в стиле бюро Dogma. Город Москва. Автор: Кирилл Волков, студент 5 группы 3 курса. Генеральный план
Проект «Дом средней этажности» в стиле бюро Dogma. Город Москва. Автор: Кирилл Волков, студент 5 группы 3 курса. Генеральный план
***
 
Вероника Бабенко
Проект «Дом средней этажности» в стиле Ж. Нувеля. Город Москва. Автор: Вероника Бабенко, студент 5 группы 3 курса. Фасад
Проект «Дом средней этажности» в стиле Ж. Нувеля. Город Москва. Автор: Вероника Бабенко, студент 5 группы 3 курса. Фасад

«Ведущим архитектором» данного проекта стал Жан Нувель: автор увлеклась его идеей «нужного здания на нужном месте», а также обилием зелени в проектах Нувеля и их образностью. Жилой комплекс предназначен для Новосущевской улицы. Соседство с мелкомасштабными историческими постройками сформировало концепцию «бус»: здания комплекса нанизываются на ось небольших объемов со скатными крышами и таким образом реагируют на масштаб окружения. В домах – большое разнообразие квартир, в каждой из которых предусмотрен балкон. Все жители имеют возможность выхода на общие озелененные кровли.
Проект «Дом средней этажности» в стиле Ж. Нувеля. Город Москва. Автор: Вероника Бабенко, студент 5 группы 3 курса. Аксонометрия
Проект «Дом средней этажности» в стиле Ж. Нувеля. Город Москва. Автор: Вероника Бабенко, студент 5 группы 3 курса. Аксонометрия
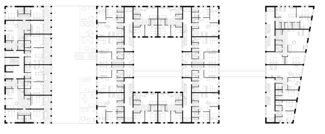
Проект «Дом средней этажности» в стиле Ж. Нувеля. Город Москва. Автор: Вероника Бабенко, студент 5 группы 3 курса. Планы
Проект «Дом средней этажности» в стиле Ж. Нувеля. Город Москва. Автор: Вероника Бабенко, студент 5 группы 3 курса. Планы
Проект «Дом средней этажности» в стиле Ж. Нувеля. Город Москва. Автор: Вероника Бабенко, студент 5 группы 3 курса. Разрезы
Проект «Дом средней этажности» в стиле Ж. Нувеля. Город Москва. Автор: Вероника Бабенко, студент 5 группы 3 курса. Разрезы
Проект «Дом средней этажности» в стиле Ж. Нувеля. Город Москва. Автор: Вероника Бабенко, студент 5 группы 3 курса. Генеральный план
Проект «Дом средней этажности» в стиле Ж. Нувеля. Город Москва. Автор: Вероника Бабенко, студент 5 группы 3 курса. Генеральный план
***
Дарья Наумочкина
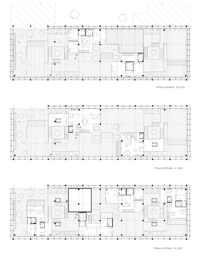
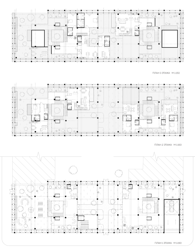
Проект «Дом средней этажности» в стиле А. Росси. Город Москва. Автор: Дарья Наумочкина, студент 5 группы 3 курса. Фасад
Проект «Дом средней этажности» в стиле А. Росси. Город Москва. Автор: Дарья Наумочкина, студент 5 группы 3 курса. Фасад

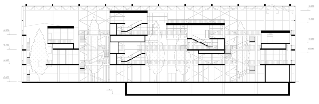
Дом на Трубной улице спроектирован под влиянием Альдо Росси. Проект предполагает создание цельной структуры, чья многослойность подчеркивается различными материалами. В образном решении дома переплетаются пространственные и декоративные приемы, характерные для творчества выбранного архитектора. Преподаватели отметили подробную проработку первого общественного этажа, где располагаются магазин, детский центр и кафе.
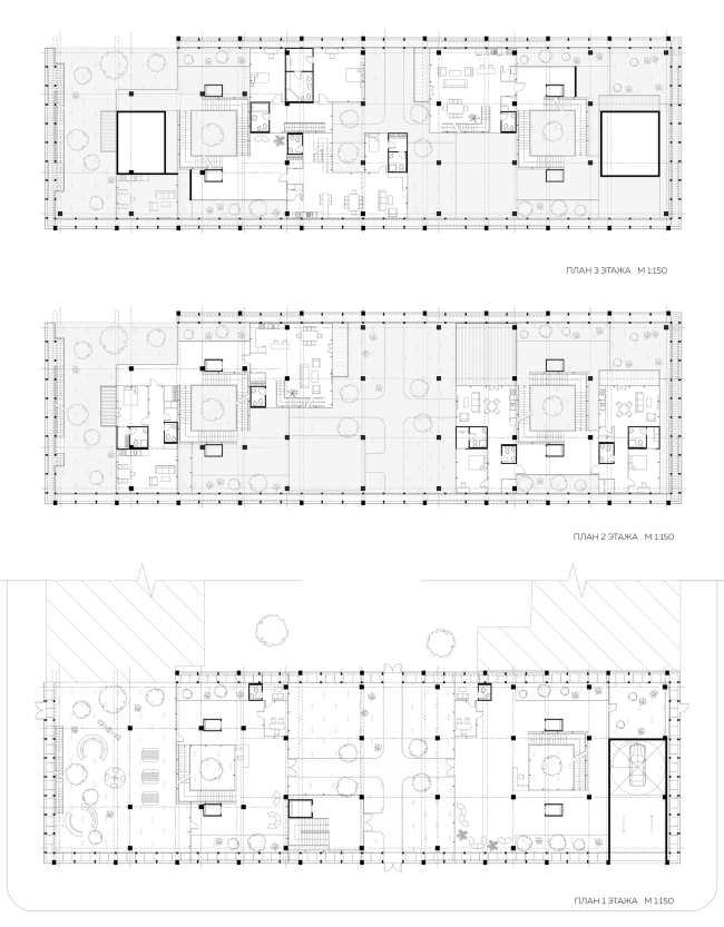
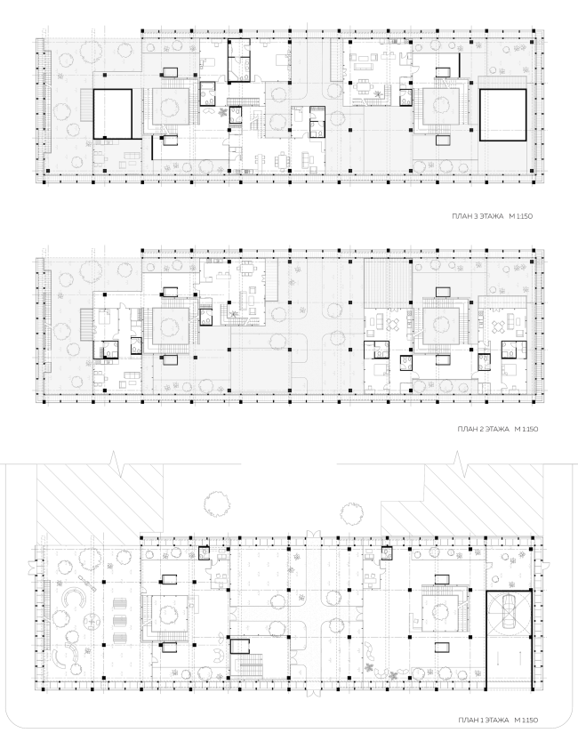
Проект «Дом средней этажности» в стиле А. Росси. Город Москва. Автор: Дарья Наумочкина, студент 5 группы 3 курса. План 1 этажа
Проект «Дом средней этажности» в стиле А. Росси. Город Москва. Автор: Дарья Наумочкина, студент 5 группы 3 курса. План 1 этажа
Проект «Дом средней этажности» в стиле А. Росси. Город Москва. Автор: Дарья Наумочкина, студент 5 группы 3 курса. План 2 и типового этажей
Проект «Дом средней этажности» в стиле А. Росси. Город Москва. Автор: Дарья Наумочкина, студент 5 группы 3 курса. План 2 и типового этажей
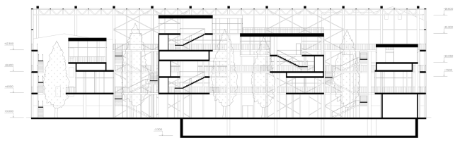
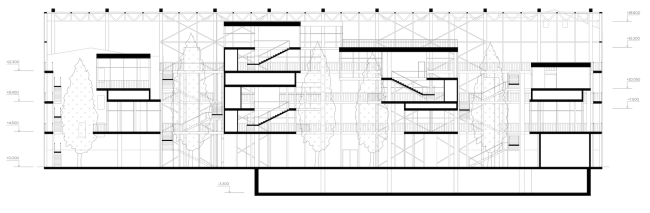
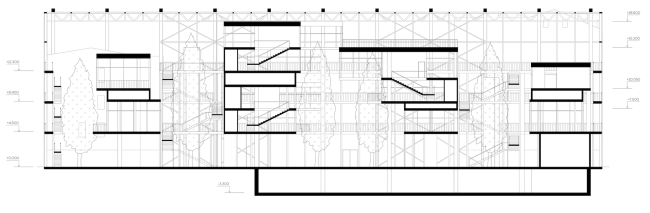
Проект «Дом средней этажности» в стиле А. Росси. Город Москва. Автор: Дарья Наумочкина, студент 5 группы 3 курса. Фасад и разрез
Проект «Дом средней этажности» в стиле А. Росси. Город Москва. Автор: Дарья Наумочкина, студент 5 группы 3 курса. Фасад и разрез
Проект «Дом средней этажности» в стиле А. Росси. Город Москва. Автор: Дарья Наумочкина, студент 5 группы 3 курса. Разрез
Проект «Дом средней этажности» в стиле А. Росси. Город Москва. Автор: Дарья Наумочкина, студент 5 группы 3 курса. Разрез
***
 
Анастасия Шарапова
Проект «Дом средней этажности» в стиле А. Бродского. Город Москва. Автор: Анастасия Шарапова, студент 5 группы 3 курса. Фасад
Проект «Дом средней этажности» в стиле А. Бродского. Город Москва. Автор: Анастасия Шарапова, студент 5 группы 3 курса. Фасад

Проект вдохновлён творчеством Александра Бродского. Зелень на выбранном участке автор решила сохранить, отчего внутренняя структура комплекса, сочетающая приватные и общественные пространства, усложнилась. Всё заключено в стеклянную оболочку. Изоляции отдельных частей, несмотря на проницаемость, удаётся достичь использованием стекла различной прозрачности. К тому же остекление – не только декоративный приём, но и средство добиться нужного уровня инсоляции.
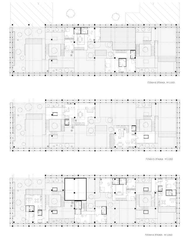
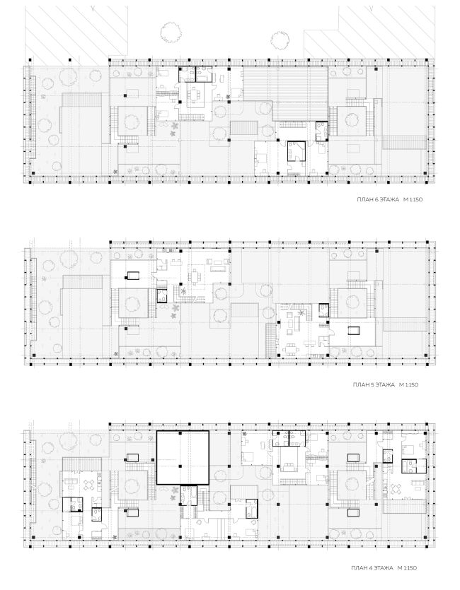
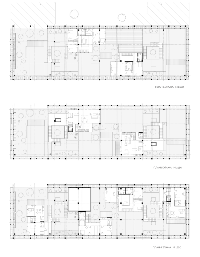
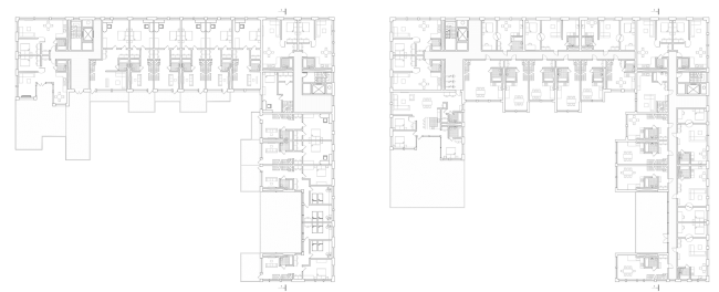
Проект «Дом средней этажности» в стиле А. Бродского. Город Москва. Автор: Анастасия Шарапова, студент 5 группы 3 курса. Планы
Проект «Дом средней этажности» в стиле А. Бродского. Город Москва. Автор: Анастасия Шарапова, студент 5 группы 3 курса. Планы
Проект «Дом средней этажности» в стиле А. Бродского. Город Москва. Автор: Анастасия Шарапова, студент 5 группы 3 курса. Планы
Проект «Дом средней этажности» в стиле А. Бродского. Город Москва. Автор: Анастасия Шарапова, студент 5 группы 3 курса. Планы
Проект «Дом средней этажности» в стиле А. Бродского. Город Москва. Автор: Анастасия Шарапова, студент 5 группы 3 курса. Разрез
Проект «Дом средней этажности» в стиле А. Бродского. Город Москва. Автор: Анастасия Шарапова, студент 5 группы 3 курса. Разрез
Проект «Дом средней этажности» в стиле А. Бродского. Город Москва. Автор: Анастасия Шарапова, студент 5 группы 3 курса. Генеральный план
Проект «Дом средней этажности» в стиле А. Бродского. Город Москва. Автор: Анастасия Шарапова, студент 5 группы 3 курса. Генеральный план
***
 
Анастасия Маркина
Проект «Дом средней этажности» в стиле бюро Caruso St John Architects. Город Москва. Автор: Анастасия Маркина, студент 5 группы 3 курса. Фасад
Проект «Дом средней этажности» в стиле бюро Caruso St John Architects. Город Москва. Автор: Анастасия Маркина, студент 5 группы 3 курса. Фасад

«Под руководством» бюро Сaruso St John была выбрана стратегия деликатного вмешательства в сложившуюся городскую среду. Дом на Трубной улице решён как простой цельный объем, выразительность которого достигается игрой света и тени за счет двойного фасада и различных по глубине лоджий. Пастельные оттенки фасада, декоративные элементы и проницаемое ограждение эксплуатируемой кровли добавляют объему лёгкости – так здание точнее соответствует масштабу окружения.
Проект «Дом средней этажности» в стиле бюро Caruso St John Architects. Город Москва. Автор: Анастасия Маркина, студент 5 группы 3 курса. Планы
Проект «Дом средней этажности» в стиле бюро Caruso St John Architects. Город Москва. Автор: Анастасия Маркина, студент 5 группы 3 курса. Планы
Проект «Дом средней этажности» в стиле бюро Caruso St John Architects. Город Москва. Автор: Анастасия Маркина, студент 5 группы 3 курса. Разрез
Проект «Дом средней этажности» в стиле бюро Caruso St John Architects. Город Москва. Автор: Анастасия Маркина, студент 5 группы 3 курса. Разрез
Проект «Дом средней этажности» в стиле бюро Caruso St John Architects. Город Москва. Автор: Анастасия Маркина, студент 5 группы 3 курса. Генеральный план
Проект «Дом средней этажности» в стиле бюро Caruso St John Architects. Город Москва. Автор: Анастасия Маркина, студент 5 группы 3 курса. Генеральный план
***
 
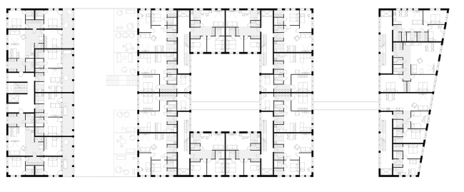
Группа студентов – Аслаханова Ясмина, Цукерман Виктория, Марчук Иван – в рамках выполнения курсового проекта принимала участие в конкурсе ISOVER на проектирование жилых кварталов для города Бреста. Общая концепция заключается в формировании жилого квартала из трёх типов домов, различных по архитектурно-планировочному решению. Внутренний двор приподнят на 4.5 метра и освобождён от движения личного автотранспорта. Это позволяет создать тихую и безопасную среду для жильцов. Вход в жилой дом возможен как с уровня земли, так и с уровня внутреннего двора.

Ясмина Аслаханова
Проект «Дом средней этажности» в стиле бюро Steven Holl Architects (конкурс ISOVER). Город Москва. Автор: Ясмина Аслаханова, студент 5 группы 3 курса. Фасад
Проект «Дом средней этажности» в стиле бюро Steven Holl Architects (конкурс ISOVER). Город Москва. Автор: Ясмина Аслаханова, студент 5 группы 3 курса. Фасад

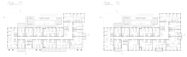
Жилой дом спроектирован с оглядкой на Steven Holl Architects и отличается оригинальной композицией объёма и вниманием к организации пространства внутреннего двора. В доме – 5 типов квартир, пространство в них может меняться благодаря применению трансформируемых перегородок. Большая часть квартир имеет свой маленький садик, также на некоторых этажах предусмотрены общие террасы. Уличные фасады – строгие и плоскостные, в то время как дворовый фасад организован динамичной композицией выступающих озеленённых террас.
Проект «Дом средней этажности» в стиле бюро Steven Holl Architects (конкурс ISOVER). Город Москва. Автор: Ясмина Аслаханова, студент 5 группы 3 курса. Аксонометрия
Проект «Дом средней этажности» в стиле бюро Steven Holl Architects (конкурс ISOVER). Город Москва. Автор: Ясмина Аслаханова, студент 5 группы 3 курса. Аксонометрия
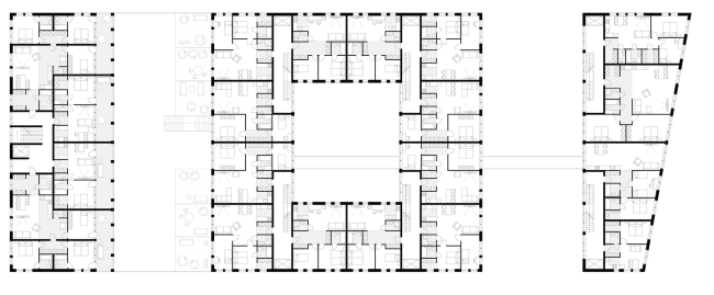
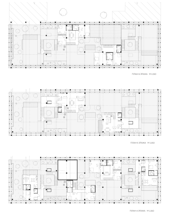
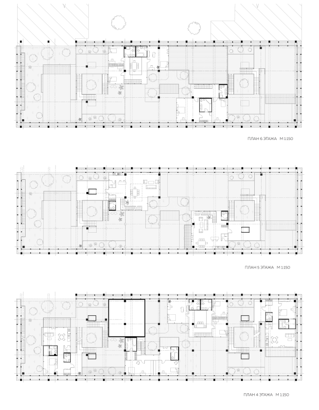
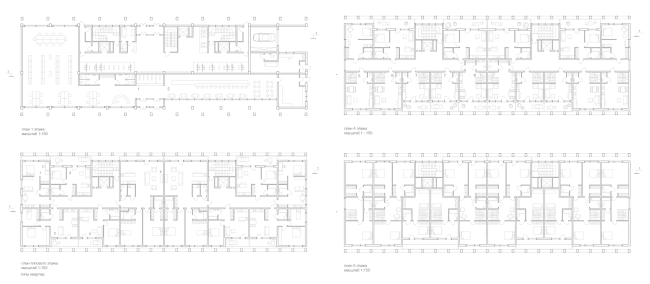
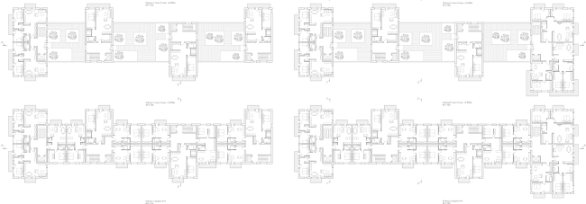
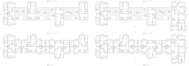
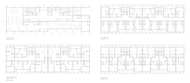
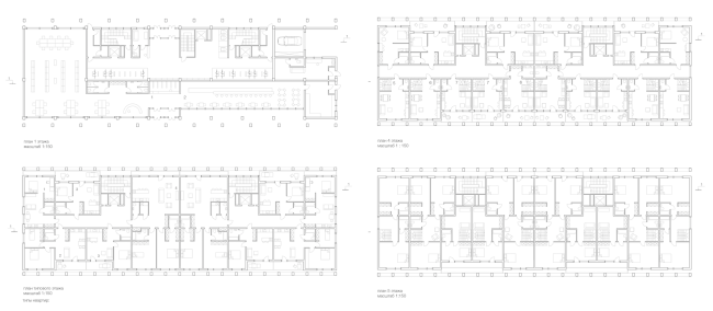
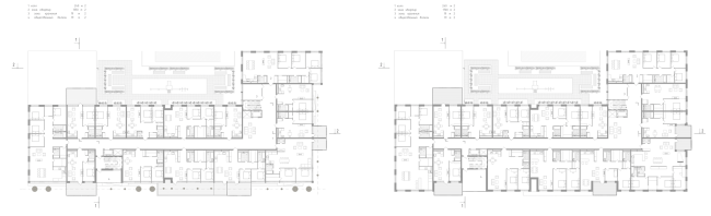
Проект «Дом средней этажности» в стиле бюро Steven Holl Architects (конкурс ISOVER). Город Москва. Автор: Ясмина Аслаханова, студент 5 группы 3 курса. План 2 этажа
Проект «Дом средней этажности» в стиле бюро Steven Holl Architects (конкурс ISOVER). Город Москва. Автор: Ясмина Аслаханова, студент 5 группы 3 курса. План 2 этажа
Проект «Дом средней этажности» в стиле бюро Steven Holl Architects (конкурс ISOVER). Город Москва. Автор: Ясмина Аслаханова, студент 5 группы 3 курса. Планы 3 и 4 этажей
Проект «Дом средней этажности» в стиле бюро Steven Holl Architects (конкурс ISOVER). Город Москва. Автор: Ясмина Аслаханова, студент 5 группы 3 курса. Планы 3 и 4 этажей
Проект «Дом средней этажности» в стиле бюро Steven Holl Architects (конкурс ISOVER). Город Москва. Автор: Ясмина Аслаханова, студент 5 группы 3 курса. Разрез
Проект «Дом средней этажности» в стиле бюро Steven Holl Architects (конкурс ISOVER). Город Москва. Автор: Ясмина Аслаханова, студент 5 группы 3 курса. Разрез
Проект «Дом средней этажности» в стиле бюро Steven Holl Architects (конкурс ISOVER). Город Москва. Автор: Ясмина Аслаханова, студент 5 группы 3 курса. Разрез
Проект «Дом средней этажности» в стиле бюро Steven Holl Architects (конкурс ISOVER). Город Москва. Автор: Ясмина Аслаханова, студент 5 группы 3 курса. Разрез
Проект «Дом средней этажности» в стиле бюро Steven Holl Architects (конкурс ISOVER). Город Москва. Автор: Ясмина Аслаханова, студент 5 группы 3 курса. Генеральный план и схема
Проект «Дом средней этажности» в стиле бюро Steven Holl Architects (конкурс ISOVER). Город Москва. Автор: Ясмина Аслаханова, студент 5 группы 3 курса. Генеральный план и схема
***
 
Иван Марчук
Проект «Дом средней этажности» в стиле бюро MVRDV (конкурс ISOVER). Город Москва. Автор: Иван Марчук, студент 5 группы 3 курса. Фасад
Проект «Дом средней этажности» в стиле бюро MVRDV (конкурс ISOVER). Город Москва. Автор: Иван Марчук, студент 5 группы 3 курса. Фасад

Положенные в основу проекта принципы MVRDV призвали автора к функциональной целесообразности. Выбор формы дома обусловлен необходимостью проветривания двора и созданию визуальных связей с соседними кварталами. В доме предусмотрено пять типов квартир. Кровля здания, озеленённая и эксплуатируемая, может использоваться для небольших частных огородов.
Проект «Дом средней этажности» в стиле бюро MVRDV (конкурс ISOVER). Город Москва. Автор: Иван Марчук, студент 5 группы 3 курса. Планы
Проект «Дом средней этажности» в стиле бюро MVRDV (конкурс ISOVER). Город Москва. Автор: Иван Марчук, студент 5 группы 3 курса. Планы
Проект «Дом средней этажности» в стиле бюро MVRDV (конкурс ISOVER). Город Москва. Автор: Иван Марчук, студент 5 группы 3 курса. Разрез
Проект «Дом средней этажности» в стиле бюро MVRDV (конкурс ISOVER). Город Москва. Автор: Иван Марчук, студент 5 группы 3 курса. Разрез
***
 
Виктория Цукерман
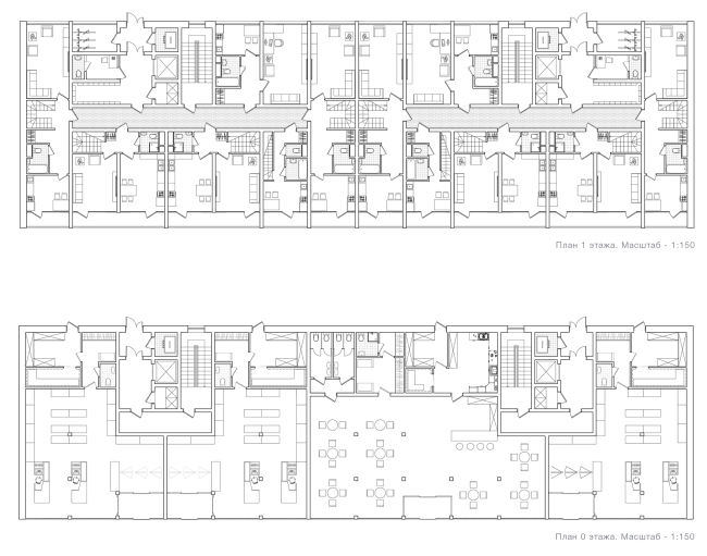
Проект модульного «Дома средней этажности» (конкурс ISOVER). Город Москва. Автор: Виктория Цукерман, студент 5 группы 3 курса. Фасад
Проект модульного «Дома средней этажности» (конкурс ISOVER). Город Москва. Автор: Виктория Цукерман, студент 5 группы 3 курса. Фасад

Здание имеет модульную структуру. Это своеобразный конструктор, собранный из квартир различных по площади и конфигурации. Здесь представлен широкий выбор планировочных решений для людей с различным социальным и экономическим положением. Некоторые квартиры имеют выход на собственные озелененные кровли, где можно разбить цветники и небольшие сады.
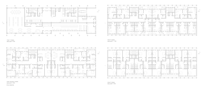
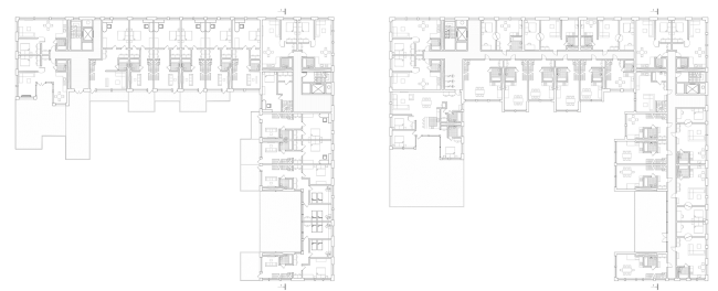
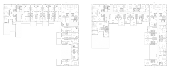
Проект модульного «Дома средней этажности» (конкурс ISOVER). Город Москва. Автор: Виктория Цукерман, студент 5 группы 3 курса. Планы
Проект модульного «Дома средней этажности» (конкурс ISOVER). Город Москва. Автор: Виктория Цукерман, студент 5 группы 3 курса. Планы
Проект модульного «Дома средней этажности» (конкурс ISOVER). Город Москва. Автор: Виктория Цукерман, студент 5 группы 3 курса. Планы
Проект модульного «Дома средней этажности» (конкурс ISOVER). Город Москва. Автор: Виктория Цукерман, студент 5 группы 3 курса. Планы
Проект модульного «Дома средней этажности» (конкурс ISOVER). Город Москва. Автор: Виктория Цукерман, студент 5 группы 3 курса. Разрез и аксонометрия
Проект модульного «Дома средней этажности» (конкурс ISOVER). Город Москва. Автор: Виктория Цукерман, студент 5 группы 3 курса. Разрез и аксонометрия
Проект модульного «Дома средней этажности» (конкурс ISOVER). Город Москва. Автор: Виктория Цукерман, студент 5 группы 3 курса. Схема типологий
Проект модульного «Дома средней этажности» (конкурс ISOVER). Город Москва. Автор: Виктория Цукерман, студент 5 группы 3 курса. Схема типологий
***