Размещено на портале Архи.ру (www.archi.ru)

10.07.2008

Поселок-жемчужина

Анна Герасименко
Объект:
Поселок «Жемчужина Ильинки»
Адрес:
Россия, Московская область, Новорижское ш.
Архитектор:
Андрей Асадов
Александр Асадов
Мастерская:
АБ ASADOV
Авторский коллектив:
архитекторы: А.Асадов, Е.Пхор, А.А.Асадов, А.Порошкин, Н.Порошкина, И.Овчинников, А.Савушкина, О.Филиппова, К.Славина, инженер: Г.Каркло

Название проекта подмосковного поселка «Жемчужина Ильинки» – не только метафора. Поселок спроектирован похожим на раковину с «жемчужиной» внутри – здесь архитектурный образ в полной мере отражает риэлтерское название поселка. Когда сюда приедут привлеченные рекламой люди, то они увидят, без обмана и фигуральностей – «настоящую жемчужину в настоящей раковине»

Поселок «Жемчужина Ильинки» © Архитектурное бюро Асадова
Поселок «Жемчужина Ильинки» © Архитектурное бюро Асадова

Когда архитекторы мастерской А.Асадова по заказу компании «Пересвет-Инвест» начали работать над конкурсным проектом для этого поселка, им стало известно, что в конкурсе собирается участвовать Заха Хадид. Впоследствии участие примадонны отменилось, однако вероятность подобного соперничества, по собственному признанию Александра Асадова, простимулировала авторов к поискам целостного образа, нестандартной пластической идеи. Поселок превратили в подобие раковины с жемчужиной внутри и назвали соответственно – «Жемчужина Ильинки».

В наши дни, как правило, риэлтерское название либо никак не соотносится с архитектурой, либо бывает «притянуто за уши». «Жемчужина» мастерской А.Асадова  не тот случай. Здесь весь процесс проектирования, начиная от архитектурной интерпретации формы предложенного участка и заканчивая именем поселка, подчинен одной единственной идее – созданию микрокосма, заключенного в воображаемую «раковину» с жемчужиной внутри.

Этот образ возник в самом начале проектных работ, когда архитекторам был предложен участок под застройку. В его ломаную трапециевидную форму идеально вписался силуэт ракушки. Важно было и то, что рельеф участка постепенно понижался – в результате возникла идея планировки «амфитеатром» – дома спускаются концентрическими рядами к общественному центру с парком и искусственным озером.

Центром и кульминацией поселка стало искусственное озеро с плавающей в нем жемчужиной ресторана, покрытой сетчатой, золотистой и полупрозрачной конструкцией, которая искрится на солнце. «Жемчужина» становится маяком для всего поселка, от нее расходятся лучи света, которые объединяют окружающие ее здания в одно целое.

Полукруг общественного центра стал обрамлением для «жемчужины». Обрамление состоит из парка, корпусов школы и детского сада, стадиона, здания администрации, а также отдельных секционных домиков. Эти дома предназначены для молодежи, которая не переживает за тишину и жаждет быть вовлеченной в общественную жизнь поселка. Дома треугольные в плане и каждый из них состоит из нескольких квартир.

Дальше начинаются ряды таунхаусов. При однотипной планировке их секций архитекторы постарались максимально разнообразить силуэт фасадов. Таунхаусы прихотливо извиваются, подхватывая волнообразный рисунок крыш друг друга и тем самым подражая рельефу раковины.

Следующий ряд – дома-четырехлистники, в каждом «лепестке» которых расположено по одной отдельной квартире на каждом этаже. В целом получается четыре объема, собранные вокруг расположенной в центре стеклянной шахты лифта – откуда в каждую квартиру ведет деревянный мостик. По словам Андрея Асадова, «типология представляет собой комбинацию частных домов и секционных башен, т.е. здесь несколько частных домов поставлены друг на друга».

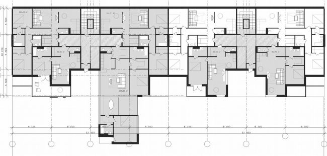
Внешний контур поселка образован очень длинным домом – его длина около полутора километров. Дом обозначает границу участка и защищает внутренний «амфитеатр» от внешней стихийной застройки, которой вокруг уже достаточно много. Дом прихотливо извивается, подражая ребристой поверхности раковины. Его первые этажи обустроены террасами для деревьев и цветников – здесь любое свободное место использовано для озеленения, даже если это пространство между верхними этажами. В зеленый парк превращена также и часть крыши.

Тему раковины поддерживает также и планировка дорог – автомобильные проезды проходят по периметру каждого квартала, ограничивая их территорию, а пешеходные зеленые бульвары располагаются в центре. Таким образом автомобили почти не тревожат жителей поселкового «микрокосма». Эта схема, современная и экологичная, была отработана в уже построенном мастерской А.Асадова поселке «Барвиха-club». По словам Андрея Асадова, тогда «эта схема была успешно реализована и оправдала себя». Теперь архитекторы активно пользуются этим приемом в своих новых работах – похожим образом организовано движение в проекте нового квартала к югу от Домодедова, о котором мы уже писали. К месту пришлась экологичная транспортная схема и здесь – она очерчивает границы и защищает внутренность «раковины».

Поселок с жемчужиной тщательно срежиссирован. Здесь, как в театре, каждое здание играет отведенную ему роль, работая на общий образ. Очень любопытный образ: он одновременно предлагает риелторам «полный комплект услуг» – архитектуру плюс маркетинговый ход. А с другой стороны – в этом образе можно увидеть очень точное, почти буквальное воплощение главной темы всех новых подмосковных поселков – ведь каждый из них, в сущности – это своего рода раковина, попытка отгородить некоторую территорию от окружающей стихийной застройки и создать внутри комфортное, уютное, приятное для жизни пространство, своего рода «жемчужину», защищенную от внешнего мира прочными стенами.

Поселок «Жемчужина Ильинки» © Архитектурное бюро Асадова
Поселок «Жемчужина Ильинки» © Архитектурное бюро Асадова
Поселок «Жемчужина Ильинки» © Архитектурное бюро Асадова
Поселок «Жемчужина Ильинки» © Архитектурное бюро Асадова
Поселок «Жемчужина Ильинки» © Архитектурное бюро Асадова
Поселок «Жемчужина Ильинки» © Архитектурное бюро Асадова
треугольный дом
треугольный дом
треугольный дом - план и разрез
треугольный дом - план и разрез
таунхаусы
таунхаусы
таунхаусы
таунхаусы
дом-четырехлистник
дом-четырехлистник
дом-четырехлистник: план и разрез
дом-четырехлистник: план и разрез
Огоражвающий поселение с севера «длинный дом» – край воображаемой раковины
Огоражвающий поселение с севера «длинный дом» – край воображаемой раковины
Поселок «Жемчужина Ильинки» © Архитектурное бюро Асадова
Поселок «Жемчужина Ильинки» © Архитектурное бюро Асадова
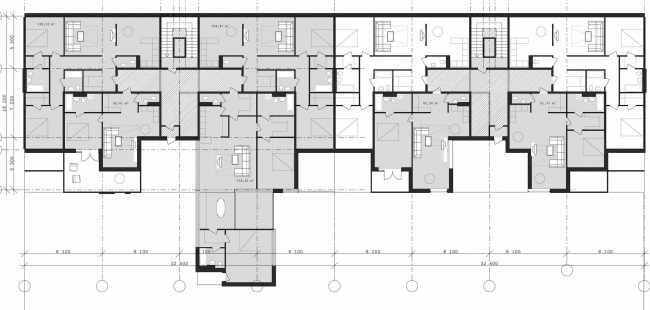
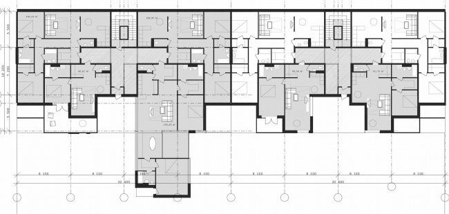
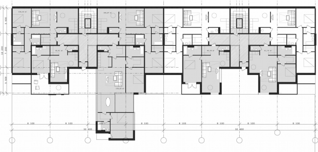
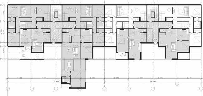
План «длинного» дома – фрагмент
План «длинного» дома – фрагмент