Размещено на портале Архи.ру (www.archi.ru)

16.05.2016

Владимир Биндеман: «Цель урбаниста – позитивно повлиять на образ жизни людей»

Лилия Аронова
Объект:
Жилой дом №27 в поселке «Олимпийская деревня Новогорск»
Адрес:
Россия, Химки. Машкинское шоссе, микрорайон "Новогорск"
Жилой квартал «Опалиха-village»
Адрес:
Россия, Красногорск. город Красногорск, микрорайон Опалиха
Жилой комплекс «Андерсен»
Адрес:
Россия, Москва. Ленинский муниципальный район, с.п. Десеновское, дер. Десна
Жилой комплекс «Олимпийская деревня Новогорск. Квартиры»
Адрес:
Россия, Химки.
Жилой комплекс «Олимпийская деревня Новогорск. Курорт»
Адрес:
Россия, Москва. Машкинское шоссе, микрорайон «Новогорск»
Жилой район «Вилладжио»
Адрес:
Россия, Москва. сел.пос. Обушковское, дер. Обушково
Здание КПП и службы эксплуатации поселка «Олимпийская деревня Новогорск»
Адрес:
Россия, Москва.
Концепция застройки территории в Нижнем Новгороде
Адрес:
Россия, Нижний Новгород.
Концепция застройки территории малоэтажного жилого комплекса в Сестрорецке
Адрес:
Россия, Сестрорецк. Левашовское шоссе
Коттеджный поселок «Рижский квартал»
Адрес:
Россия, Москва. Московская область, г. Красногорск, микрорайон Опалиха
Малоэтажная жилая застройка в г. Пушкин
Адрес:
Россия, Санкт-Петербург.
Малоэтажный жилой комплекс «НовоАрхангельское»
Адрес:
Россия, Московская область, Красногорский район,
Многофункциональный спортивно-общественный центр в Олимпийской деревне «Новогорск»
Адрес:
Россия, Химки. Машкинское шоссе, микрорайон «Новогорск»
Проект жилой застройки в г. Звенигород
Адрес:
Россия, Звенигород.
Спортивно-жилой комплекс «Олимпийская деревня Новогорск». Таунхаусы
Адрес:
Россия, Химки. Машкинское шоссе, микрорайон "Новогорск"
Мастерская:
HILTI
Архитектуриум
Авторский коллектив:
Архитекторы: Биндеман В.Н., Бородин О.О., Буйнов Ф.В., Липранди Д.Д., Панкратова И. В., Котова Н. Р.
Конструкторы: Шпаков И.Ф., Яровицына Е.В., Цыганцова В.А., Филиппова А.П.
Инженеры: Филинов В.Я., Бурец Е., Николаев С.

Разговор с руководителем бюро «Архитектуриум» о градостроительной ситуации в Подмосковье, региональной специфике квартальной планировки и помощи природы в деле гуманизации загородного строительства.

Archi.ru:
– Почти два года прошло с момента юбилейной выставки, посвященной десятилетию «Архитектуриума». Над чем вы работаете сейчас? 

Владимир Биндеман:
– Сегодня мы занимаемся главным образом концепциями и достраиваем Новогорский кластер. В связи с экономической ситуацией количество инвесторов, готовых перейти от концепций к реализациям, резко сократилось, но пробные попытки все же предпринимаются. Из ранее начатого сейчас заканчивается строительство района «Андерсен» в Новой Москве и строится среднеэтажный жилой комплекс «Опалиха-Village» в Красногорске.

Владимир Биндеман © Архитектуриум
Владимир Биндеман © Архитектуриум
Многофункциональный спортивно-общественный центр в Олимпийской деревне «Новогорск». Постройка, 2016 © Архитектуриум
Многофункциональный спортивно-общественный центр в Олимпийской деревне «Новогорск». Постройка, 2016 © Архитектуриум
Жилой комплекс «Олимпийская деревня Новогорск. Квартиры». Реализация, 2015 © Архитектуриум
Жилой комплекс «Олимпийская деревня Новогорск. Квартиры». Реализация, 2015 © Архитектуриум
Жилой комплекс «Олимпийская деревня Новогорск. Курорт». Реализация, 2016 © Архитектуриум
Жилой комплекс «Олимпийская деревня Новогорск. Курорт». Реализация, 2016 © Архитектуриум

– Как сейчас меняется конъюнктура в области загородного жилого строительства? Какие новые задачи стоят перед проектировщиками?

– Конъюнктура, как и следовало ожидать, диктует удешевление и соответственно упрощение. Девелоперы стараются компенсировать объективные потери максимально возможным снижением себестоимости строительства. При этом градостроительная ситуация в Подмосковье, которая в последние годы ухудшалась под напором несбалансированного массового жилищного строительства, сегодня достигла во многом критических отметок, главным образом в транспортном и социальном аспектах. Решение правительства Московской области о моратории на жилую застройку в Балашихе, Королёве и приостановке её в Химках говорит о действительно кризисном положении дел. Что касается задач, то о новых говорить как-то неудобно. В нашем градостроительстве нужно бы сначала старые выполнить – компенсировать «договорные пустоты» последних лет по детским садам, школам, общественным объектам, парковкам, которые полагаются по нормативам и по смыслу самой жизни, но которые были благополучно забыты после продажи жилой недвижимости. Вопрос только в том, кто, где и, главное, за чей счёт будет это делать? В 2016 году правительство Московской области должно утвердить 238 документов территориального планирования, при этом примерно в 300 субъектах генпланы еще не приняты. Окончательное принятие генеральных планов поселений, конечно, должно объективно закрепить функциональное зонирование и предотвратить дальнейшие переводы земли из «сельхоза» и «прома» в жильё и обратно, но от благих намерений до практических результатов, как мы знаем, путь неблизкий.

– С какими главными трудностями приходится сталкиваться при проектировании загородных поселков? Как выстраивается коммуникация с заказчиками, с чем чаще всего приходится бороться?

– Заказчик всегда хочет «сшить семь шапок из овцы». Это объективная реальность, исключений практически нет. Ссылки на нормативы и тем более такое эфемерное понятие, как композиция, успешно преодолеваются волеизъявлением коллективного органа (техсовета, совета директоров, собрания акционеров). Препятствием может послужить только отказ согласующих инстанций. Понимая, что преодолеть эту ситуацию, к сожалению, не в наших силах, мы тем не менее в каждом проекте боремся за общественные пространства и функции, пытаемся создать бульвары, скверы, площади.

Помогает сама природа. Большинство наших проектов выполнено на участках вдоль рек или озер, имеющих законодательно закрепленную зону бечевника, где строить нельзя. Поэтому удается создать набережные с местами отдыха, общественными площадками. Там же, где этого нет, мы предлагаем «зелёные разрывы» в застройке, куда ориентируем по возможности большее количество квартир. Понятно, что экономическая ситуация сложная, но и рынок жилья перегрет. Чтобы получить конкурентное преимущество, девелопер должен заботиться о факторах привлекательности жилья, создавать среду, пригодную для жизни не только в квартире, но и вне её.
Жилой квартал «Опалиха-village». Проект, 2014 © Архитектуриум
Жилой квартал «Опалиха-village». Проект, 2014 © Архитектуриум
Малоэтажный жилой комплекс «НовоАрхангельское». Постройка, 2008 © Архитектуриум
Малоэтажный жилой комплекс «НовоАрхангельское». Постройка, 2008 © Архитектуриум
Спортивно-жилой комплекс «Олимпийская деревня Новогорск». Реализация, 2013 © Архитектуриум
Спортивно-жилой комплекс «Олимпийская деревня Новогорск». Реализация, 2013 © Архитектуриум
Концепция застройки территории малоэтажного жилого комплекса в Сестрорецке. Проект, 2012 © Архитектуриум
Концепция застройки территории малоэтажного жилого комплекса в Сестрорецке. Проект, 2012 © Архитектуриум

– Если таунхаусы, как Вы не раз говорили, для вас пройденный этап, то какая типология жилых строений наиболее интересна вам сегодня и почему?

– Мы занимаемся проектами комплексного освоения территорий, потому что именно это нам интересно. Преобладающая в строительстве многоэтажная типология, безусловно, диктуется рынком. Нам же гораздо ближе мало- и среднеэтажные жилые образования, тем более в условиях Подмосковья, где большинство участков под новую застройку граничит с «малоэтажкой» – дачами или коттеджами. Оптимальный подмосковный жилой квартал, по нашему мнению, должен иметь от трёх до шести этажей. Максимум восемь. Конечно, в конкретной градостроительной ситуации появление высотных доминант как маркеров ландшафта даже необходимо. Но это совсем иное, нежели 17-этажные замкнутые дворы-колодцы с обезличенным типовым дворовым интерьером. Если все же вернуться к теме таунхаусов, то вполне возможно, что интерес к ним у застройщиков снова появится, но уже в ином формате. Конечно строить сегодня секции по 250-300 квадратных метров никто не будет, а вот альтернативные привычным городским квартирам, «квартиры на земле» площадью до 100 квадратов – вполне возможно. И такие попытки уже предпринимаются.
Жилой район «Вилладжио». Проект, 2014 © Архитектуриум
Жилой район «Вилладжио». Проект, 2014 © Архитектуриум
Спортивно-жилой комплекс «Олимпийская деревня Новогорск». Реализация, 2013 © Архитектуриум
Спортивно-жилой комплекс «Олимпийская деревня Новогорск». Реализация, 2013 © Архитектуриум

– Каковы ваши стилевые предпочтения и всегда ли удается увязать их с контекстом?

– Самый сложный для архитектора вопрос – «В каком стиле вы работаете?». Особенно сегодня. Мы не приемлем вульгарных стилизаций, делаем современную архитектуру и стараемся делать это выразительно. Нашим контекст, это, главным образом, природное окружение, поэтому мы стараемся принимать решения, позволяющие максимально органично вписаться в ландшафт.

– Есть ли среди ваших проектов такие, которые можно было бы назвать любимыми, знаковыми?

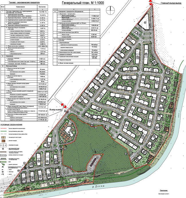
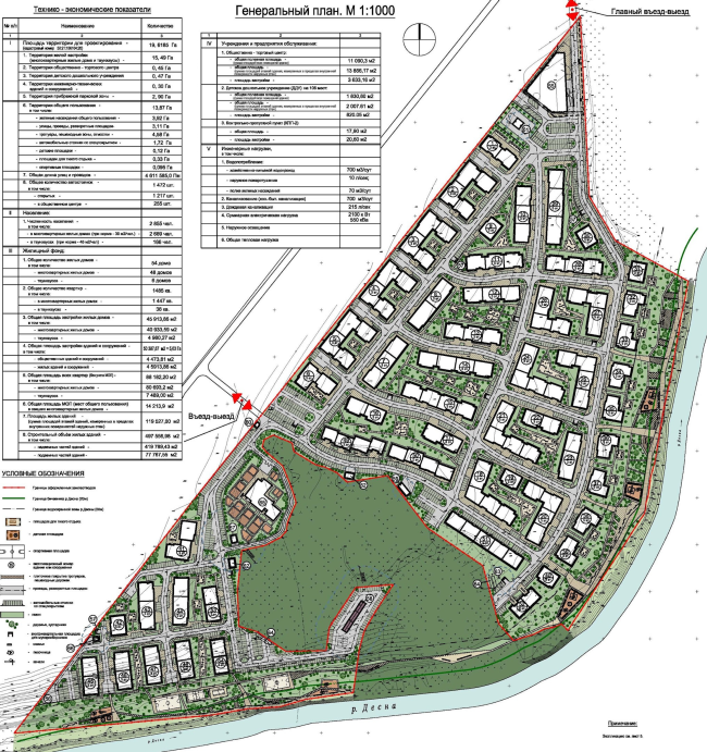
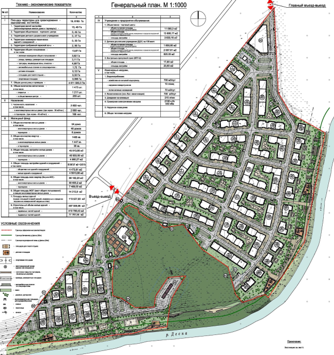
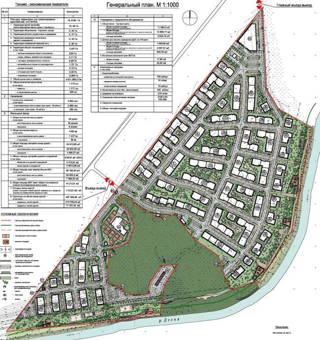
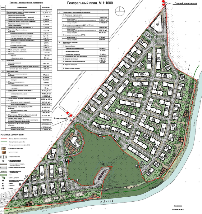
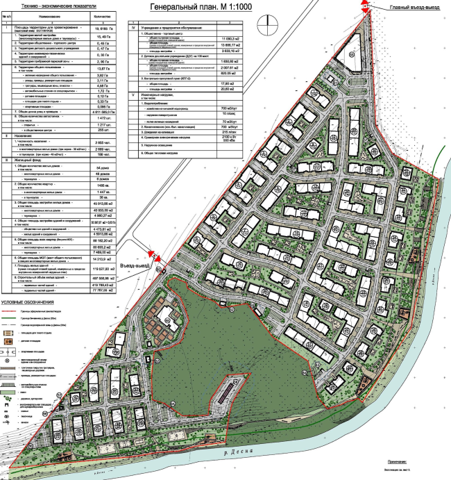
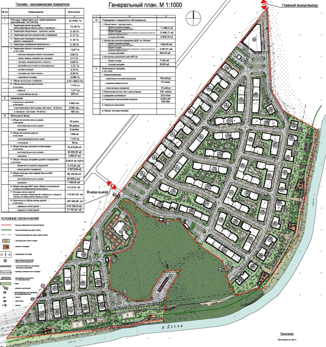
– В «коттеджный» период я построил «Дом-Яхту» и «Красный клин», а также террасный пансионат в Сочи в 2004 году. Эти проекты были замечены и отмечены. У них были интересные заказчики, личности, принимавшие решения. Из нынешних работ я считаю знаковыми Новогорский проект и жилой комплекс «Андерсен», где мы, хотя и не без потерь, сумели реализовать идею разнообразных по архитектуре кварталов. Разработав 9 типовых по планировкам жилых секций, мы усложнили задачу и ввели вариабельность их фасадов в увязке с тем, в каком квартале конкретная секция применяется. Так в «Андерсене» на площади в 19 гектаров появились «красный», «белый», «мозаичный», «полосатый» кварталы и еще несколько их комбинаций.
Коттеджный поселок «Рижский квартал». Постройка, 2013 © Архитектуриум
Коттеджный поселок «Рижский квартал». Постройка, 2013 © Архитектуриум
Многофункциональный спортивно-общественный центр в Олимпийской деревне «Новогорск». Постройка, 2016 © Архитектуриум
Многофункциональный спортивно-общественный центр в Олимпийской деревне «Новогорск». Постройка, 2016 © Архитектуриум
Многофункциональный спортивно-общественный центр в Олимпийской деревне «Новогорск». Постройка, 2016 © Архитектуриум
Многофункциональный спортивно-общественный центр в Олимпийской деревне «Новогорск». Постройка, 2016 © Архитектуриум
Жилой комплекс «Олимпийская деревня Новогорск. Квартиры». Реализация, 2015 © Архитектуриум
Жилой комплекс «Олимпийская деревня Новогорск. Квартиры». Реализация, 2015 © Архитектуриум
Жилой комплекс «Олимпийская деревня Новогорск. Курорт». Реализация, 2016 © Архитектуриум
Жилой комплекс «Олимпийская деревня Новогорск. Курорт». Реализация, 2016 © Архитектуриум
Жилой комплекс «Андерсен». Генеральный план, 2014 © Архитектуриум
Жилой комплекс «Андерсен». Генеральный план, 2014 © Архитектуриум
Жилой комплекс «Андерсен». Постройка, 2016 © Архитектуриум
Жилой комплекс «Андерсен». Постройка, 2016 © Архитектуриум
Жилой комплекс «Андерсен». Постройка, 2016 © Архитектуриум
Жилой комплекс «Андерсен». Постройка, 2016 © Архитектуриум

– В чём, на Ваш взгляд, заключается специфика работы в регионах? Как влияет на решение проекта близость того или иного областного центра?

– Мне кажется, что понятие «регион» в эпоху информационной открытости практически утратило прежнее значение. Никто из архитекторов не принимает во внимание удаленность от центра, решая сделать тут попроще, там посложнее. Этим грешат девелоперы, стандартно определяя класс того или иного проекта (подешевле-подороже). Хорошая архитектура всегда «уместна», она учитывает местные особенности, и хороша она в числе прочего и поэтому. Сестрорецк, к примеру, сегодня включен в городскую черту Санкт-Петербурга, и мы отнеслись к проекту как к задаче создания комфортного европейского пригорода. Нам хотелось показать, как можно сделать уютную застройку из таунхаусов городского типа – двухэтажных блокированных домов без индивидуальных участков, образующих разнообразные по планировке и архитектуре кварталы. В характерную для Петербурга регулярную планировочную сетку мы также вписали городскую площадь, оформленную общественно-торговым центром и зданием школы. Рядом со школой разбили маленький «Летний сад». В структуре застройки нашлось место двум кварталам «городских» коттеджей с небольшими земельными участками (но без заборов!). Вдоль улиц высадили ряды шарообразных лип, отделяющих параллельные парковки от велодорожек… В общем – мечта, малоэтажный город с мощёными тротуарами и «корнерами» – магазинчиками или кафешками на углах кварталов. Но мечта пока остается мечтой, видимо, город ещё не готов к таким проектам.
Жилой комплекс «Андерсен». Постройка, 2016 © Архитектуриум
Жилой комплекс «Андерсен». Постройка, 2016 © Архитектуриум
Концепция застройки территории малоэтажного жилого комплекса в Сестрорецке. Проект, 2012 © Архитектуриум
Концепция застройки территории малоэтажного жилого комплекса в Сестрорецке. Проект, 2012 © Архитектуриум
Концепция застройки территории малоэтажного жилого комплекса в Сестрорецке. Проект, 2012 © Архитектуриум
Концепция застройки территории малоэтажного жилого комплекса в Сестрорецке. Проект, 2012 © Архитектуриум
Концепция застройки территории малоэтажного жилого комплекса в Сестрорецке. Проект, 2012 © Архитектуриум
Концепция застройки территории малоэтажного жилого комплекса в Сестрорецке. Проект, 2012 © Архитектуриум
Концепция застройки территории малоэтажного жилого комплекса в Сестрорецке. Проект, 2012 © Архитектуриум
Концепция застройки территории малоэтажного жилого комплекса в Сестрорецке. Проект, 2012 © Архитектуриум
Концепция застройки территории малоэтажного жилого комплекса в Сестрорецке. Проект, 2012 © Архитектуриум
Концепция застройки территории малоэтажного жилого комплекса в Сестрорецке. Проект, 2012 © Архитектуриум
Концепция застройки территории малоэтажного жилого комплекса в Сестрорецке. Проект, 2012 © Архитектуриум
Концепция застройки территории малоэтажного жилого комплекса в Сестрорецке. Проект, 2012 © Архитектуриум

– Как вы относитесь к архитектурным конкурсам?

– Отношусь хорошо, другое дело, что нечасто есть возможность в них участвовать. Настоящий конкурс интересен тем, что ты не должен заботиться о мнении заказчика в процессе работы. Ты делаешь проект, отражающий сугубо твою профессиональную точку зрения на задание, и представляешь его на конкурс, сопроводив всеми возможными доказательствами своей правоты. А дальше дело случая, стечения обстоятельств, близости позиций жюри и архитектора. Открытые конкурсы – это вообще отдельная тема. Никогда до конца не понятны позиция организатора и его истинные намерения, но зато можно поупражняться от души и без оглядки. А вот с закрытыми, за которые платят, сложнее. В одном из последних было поставлено условие обязательных промежуточных показов для всех участников и согласования промежуточных этапов, без которых нельзя было двигаться дальше. Заказчик хотел «держать руку на пульсе», чтобы за свои кровные не получить непредсказуемый результат.

– Чем вас заинтересовал конкурс на застройку территории в Нижнем Новгороде?

– В первую очередь – поставленной задачей. На первом этапе нужно было предложить концепцию развития территории в 450 га в южной части города. Это очень большая территория, и не только для Нижнего. Задача усложнялась сильно выраженным рельефом и многочисленными ЛЭП, пересекающими участок. Мы предложили планировочную структуру, сформированную четырьмя крупными районами, связанными посредством городских магистралей и скомпонованными вдоль двух рекреационно-ландшафтных осей. В каждом районе были предусмотрены свои центры, выделена система общественных озелененных пространств, заданных складками рельефа. В основу градостроительной парадигмы лёг принцип иерархии – от частного пространства квартиры к соседскому пространству двора и далее к общественному пространству улицы, городской площади и парка. Во втором туре конкурса мы предложили развитие этих идей на примере одного из четырёх кварталов с подробной разработкой жилых и общественных объектов.
Концепция застройки территории малоэтажного жилого комплекса в Сестрорецке. Проект, 2012 © Архитектуриум
Концепция застройки территории малоэтажного жилого комплекса в Сестрорецке. Проект, 2012 © Архитектуриум
Концепция застройки территории в Нижнем Новгороде. 1 тур конкурса. Генеральный план. Проект, 2014 © Архитектуриум
Концепция застройки территории в Нижнем Новгороде. 1 тур конкурса. Генеральный план. Проект, 2014 © Архитектуриум
Концепция застройки территории в Нижнем Новгороде. 1 тур конкурса. Проект, 2014 © Архитектуриум
Концепция застройки территории в Нижнем Новгороде. 1 тур конкурса. Проект, 2014 © Архитектуриум
Концепция застройки территории в Нижнем Новгороде. 2 тур конкурса. Проект, 2015 © Архитектуриум
Концепция застройки территории в Нижнем Новгороде. 2 тур конкурса. Проект, 2015 © Архитектуриум
Концепция застройки территории в Нижнем Новгороде. 2 тур конкурса. Проект, 2015 © Архитектуриум
Концепция застройки территории в Нижнем Новгороде. 2 тур конкурса. Проект, 2015 © Архитектуриум
Концепция застройки территории в Нижнем Новгороде. 2 тур конкурса. Проект, 2015 © Архитектуриум
Концепция застройки территории в Нижнем Новгороде. 2 тур конкурса. Проект, 2015 © Архитектуриум

– Что происходит сейчас на объектах Олимпийской деревни Новогорск?

– Новогорск – это кластер, состоящий из трёх площадок, расположенных в непосредственной близости друг от друга. Основная, с которой всё началось, уже функционирует. Там расположены таунхаусы, два многоквартирных жилых дома и многофункциональный общественно-спортивный центр, в котором сейчас заканчивается отделка интерьеров. Площадка ниже по течению Сходни, которая называется «Олимпийская деревня Новогорск. Квартиры», тоже заселяется, жители занимаются отделкой. Надеемся, что в мае будет окончательно завершено благоустройство внутри квартала и вдоль набережной и комплекс обретет законченный вид. А третья площадка – «Олимпийская деревня Новогорск. Курорт» – находится в стадии устройства фасадов и работ по благоустройству.
Концепция застройки территории в Нижнем Новгороде. 2 тур конкурса. Проект, 2015 © Архитектуриум
Концепция застройки территории в Нижнем Новгороде. 2 тур конкурса. Проект, 2015 © Архитектуриум
Спортивно-жилой комплекс «Олимпийская деревня Новогорск». Генеральный план. Реализация, 2013 © Архитектуриум
Спортивно-жилой комплекс «Олимпийская деревня Новогорск». Генеральный план. Реализация, 2013 © Архитектуриум
Таунхаусы в Многофункциональном спортивно-общественном центре «Олимпийская деревня Новогорск». Постройка, 2013 © Архитектуриум
Таунхаусы в Многофункциональном спортивно-общественном центре «Олимпийская деревня Новогорск». Постройка, 2013 © Архитектуриум
Таунхаусы в Многофункциональном спортивно-общественном центре «Олимпийская деревня Новогорск». Постройка, 2013 © Архитектуриум
Таунхаусы в Многофункциональном спортивно-общественном центре «Олимпийская деревня Новогорск». Постройка, 2013 © Архитектуриум
Жилой дом №27 в поселке «Олимпийская деревня Новогорск». Постройка, 2012 © Архитектуриум
Жилой дом №27 в поселке «Олимпийская деревня Новогорск». Постройка, 2012 © Архитектуриум
Жилой дом №27 в поселке «Олимпийская деревня Новогорск». Постройка, 2012 © Архитектуриум
Жилой дом №27 в поселке «Олимпийская деревня Новогорск». Постройка, 2012 © Архитектуриум
Таунхаусы в Многофункциональном спортивно-общественном центре «Олимпийская деревня Новогорск». Постройка, 2013 © Архитектуриум
Таунхаусы в Многофункциональном спортивно-общественном центре «Олимпийская деревня Новогорск». Постройка, 2013 © Архитектуриум
Жилой дом №27 в поселке «Олимпийская деревня Новогорск». Постройка, 2012 © Архитектуриум
Жилой дом №27 в поселке «Олимпийская деревня Новогорск». Постройка, 2012 © Архитектуриум

– Расскажите, пожалуйста, о концепции жилого района «Вилладжио».

– К этому проекту мы приступили с большим энтузиазмом, с заказчиком сложилось отличное взаимопонимание. Как известно, «Вилладжио» – посёлок с достаточно большими коттеджами и таунхаусами. Этот же проект предполагал освоение территории, примыкающей к Новорижскому шоссе, под застройку среднеэтажными квартирными домами с инфраструктурой.

Близость шоссе определила основную планировочную идею района – защита жилой застройки от повышенного шумового воздействия путём размещения вдоль Новорижского шоссе линейных инфраструктурных объектов: торгово-офисного центра и паркингов. Эти объекты, в свою очередь, отгорожены от домов главной торгово-общественной улицей с широким благоустроенным пешеходным бульваром. Вся жилая застройка поделена на четыре квартала, расположенных под небольшими углами друг к другу, в результате чего образуются «зелёные клинья» – благоустроенные прогулочные зоны с беседками, скамейками, цветниками и водоемами. Мы выделили все «правильные» компоненты квартальной застройки – главную улицу с системой небольших треугольных площадей, жилые улицы, с которых организуются входы в подъезды и въезды в подземные паркинги, межквартальные «зелёные разрывы», полузамкнутые благоустроенные дворы без машин.
Жилой комплекс «Олимпийская деревня Новогорск. Курорт». Реализация, 2016 © Архитектуриум
Жилой комплекс «Олимпийская деревня Новогорск. Курорт». Реализация, 2016 © Архитектуриум
Жилой район «Вилладжио». Генеральный план. Проект, 2014 © Архитектуриум
Жилой район «Вилладжио». Генеральный план. Проект, 2014 © Архитектуриум
Жилой район «Вилладжио». Проект, 2014 © Архитектуриум
Жилой район «Вилладжио». Проект, 2014 © Архитектуриум
Жилой район «Вилладжио». Проект, 2014 © Архитектуриум
Жилой район «Вилладжио». Проект, 2014 © Архитектуриум
Жилой район «Вилладжио». Проект, 2014 © Архитектуриум
Жилой район «Вилладжио». Проект, 2014 © Архитектуриум
Жилой район «Вилладжио». Проект, 2014 © Архитектуриум
Жилой район «Вилладжио». Проект, 2014 © Архитектуриум

– Глядя на планы поселений, спроектированных вашей мастерской, можно предположить, что вы тяготели к квартальному принципу задолго до того, как он «вошел в моду». Так ли это?

– Да, я всегда полагал, что в поселении людей (город, район, поселок) должна существовать иерархия пространств, а значит, и их разнообразие. Квартальная застройка складывалась веками, неся в себе специфику своего региона: климатическую, географическую, национальную. Скажем, в античном городе Приена официальная древнегреческая ортогональная планировка «натянута» на живописные холмы с сильно выраженным рельефом. Это впечатляет даже сейчас, когда от зданий остались только фундаменты. Аналогичный пример – Сан-Франциско. Аморфность микрорайонного пространства давно себя изжила, исказив за период своего господства такие базовые понятия, как «двор», «улица», «площадь». Мы здесь, к сожалению, оказались «впереди планеты всей», «одарив» микрорайонным градостроительством всю страну. Меня радует, что сейчас вектор развития поменялся. Однако и в этой новой реальности нельзя становиться заложником «мэйнстрима». Конкретная градостроительная ситуация содержит множество факторов, влияющих на выбор решения и насаждать квартальный принцип везде и всюду, не учитывая эти факторы, неверно.
Жилой район «Вилладжио». Проект, 2014 © Архитектуриум
Жилой район «Вилладжио». Проект, 2014 © Архитектуриум
Малоэтажная жилая застройка в Дмитровском. Генеральный план, 2013 © Архитектуриум
Малоэтажная жилая застройка в Дмитровском. Генеральный план, 2013 © Архитектуриум
Малоэтажная жилая застройка “Ильинский бульвар”. Проект, 2012 © Архитектуриум
Малоэтажная жилая застройка “Ильинский бульвар”. Проект, 2012 © Архитектуриум
Комплексное развитие территории в г. Звенигороде. Генеральный план, 2014 © Архитектуриум
Комплексное развитие территории в г. Звенигороде. Генеральный план, 2014 © Архитектуриум

– Практически в каждом из ваших поселков существует некий яркий объект, который можно назвать визитной карточкой проекта. Какую роль он играет в композиции?

– Именно ту, которую вы и назвали, – визитной карточки. В «Новоархангельском» и «Рижском квартале» это общественные центры с большепролетными проездными арками. В Новогорске – сам многофункциональной общественно-спортивный центр с волнистой кровлей. В Сестрорецке предполагалось возведение «городской башни» со стеклянными часами. Такие объекты очень важны в жилых образованиях, мы всегда относимся к их проектированию с особым вниманием.
Комплексная жилая застройка в г. Пушкин. Генеральный план, 2007 © Архитектуриум
Комплексная жилая застройка в г. Пушкин. Генеральный план, 2007 © Архитектуриум
Многофункциональный спортивно-общественный центр в Олимпийской деревне «Новогорск». Постройка, 2016 © Архитектуриум
Многофункциональный спортивно-общественный центр в Олимпийской деревне «Новогорск». Постройка, 2016 © Архитектуриум
Коттеджный поселок «Рижский квартал». Постройка, 2012 © Архитектуриум
Коттеджный поселок «Рижский квартал». Постройка, 2012 © Архитектуриум
Малоэтажная жилая застройка в Дмитровском. Въездная группа. Проект, 2013 © Архитектуриум
Малоэтажная жилая застройка в Дмитровском. Въездная группа. Проект, 2013 © Архитектуриум
Здание КПП в поселке «Олимпийская деревня Новогорск». Постройка, 2013 © Архитектуриум
Здание КПП в поселке «Олимпийская деревня Новогорск». Постройка, 2013 © Архитектуриум

– Как Вы считаете, может ли архитектура сформировать образ жизни, и стремитесь ли к этому в своих проектах?

Корбюзеанский вопрос: «Архитектура или революция». Рыночные отношения, конечно, не очень вяжутся с идеями мессианского жизнестроительства, однако всем известно, что «бытие определяет сознание». Что такое «образ жизни»? Упрощенно – это набор действий, совершаемых человеком ежедневно, ежемесячно, ежегодно, и те эмоции, которые он в результате этих действий получает. Везёте вы своего ребенка каждое утро в школу два часа по пробкам или он идёт в неё десять минут зелёным бульваром? Смотрите вы из окна своей 17-этажки на квадратное пространство высотой в 50 метров, заставленное машинами, или на благоустроенный двор без машин, в три-пять этажей, окруженный такими же, как ваш, домами? Вот вам два разных образа жизни – и соответственно разные эмоции. Архитектура по самой своей сути призвана быть гуманной, этому учат в каждом архитектурном ВУЗе. Однако сегодня у нас стало практикой определяющие градостроительные решения принимать по возможности без участия градостроителей и архитекторов. Профессионалам же оставлена роль «волшебников», могущих все принятое как-то организовать в более-менее внятном выражении, похожем на градостроительные нормы и правила. Вопросы транспортной доступности, обеспеченности социальными объектами и обслуживающей инфраструктурой, создание рабочих мест (популярная тема, но с оттенком кампанейщины) – все это с большим трудом увязывается и со старым наследием и с «достижениями» последних двух десятилетий. Отсюда и нынешний образ жизни, который трудно назвать удовлетворительным.Безусловно, мы не единственные архитекторы, стремящиеся в своих проектах тем не менее, сформировать удобную среду обитания и соответственно повлиять в позитивном направлении на образ жизни людей, её населяющих. Это цель каждого урбаниста, архитектора. Совпадает ли эта цель с намерениями девелопера? Большой вопрос.
беседовала: Лилия Аронова
Концепция застройки территории малоэтажного жилого комплекса в Сестрорецке. Проект, 2012 © Архитектуриум
Концепция застройки территории малоэтажного жилого комплекса в Сестрорецке. Проект, 2012 © Архитектуриум
Коттеджный поселок «Рижский квартал». Постройка, 2013 © Архитектуриум
Коттеджный поселок «Рижский квартал». Постройка, 2013 © Архитектуриум
Коттеджный поселок «Рижский квартал». Постройка, 2013 © Архитектуриум
Коттеджный поселок «Рижский квартал». Постройка, 2013 © Архитектуриум
Малоэтажный жилой комплекс «НовоАрхангельское». Постройка, 2008 © Архитектуриум
Малоэтажный жилой комплекс «НовоАрхангельское». Постройка, 2008 © Архитектуриум
Малоэтажный жилой комплекс «НовоАрхангельское». Постройка, 2008 © Архитектуриум
Малоэтажный жилой комплекс «НовоАрхангельское». Постройка, 2008 © Архитектуриум
Таунхаусы в Многофункциональном спортивно-общественном центре «Олимпийская деревня Новогорск». Постройка, 2013 © Архитектуриум
Таунхаусы в Многофункциональном спортивно-общественном центре «Олимпийская деревня Новогорск». Постройка, 2013 © Архитектуриум
Жилой комплекс «Олимпийская деревня Новогорск. Квартиры». Реализация, 2015 © Архитектуриум
Жилой комплекс «Олимпийская деревня Новогорск. Квартиры». Реализация, 2015 © Архитектуриум
Жилой комплекс «Олимпийская деревня Новогорск. Курорт». Реализация, 2016 © Архитектуриум
Жилой комплекс «Олимпийская деревня Новогорск. Курорт». Реализация, 2016 © Архитектуриум