Размещено на портале Архи.ру (www.archi.ru)

18.04.2016

МАРХИ: проекты на тему «Гараж»

Полина Садова

Студенты 3 курса МАРХИ выбрали очень разные места расположения и дополнительные общественные функции для гаражей.

Руководители А.В. Шутиков, В.А. Колгашкина, А.Д. Копеина и Е.С. Васильева, поставили перед студентами группы «Архитектура жилых зданий» задачу совместить гараж с общественным городским пространством. Самостоятельно выбрать ситуацию для проектирования, провести анализ территории, определить проблему, на решение которой направлен проект.

Следовательно, студенты постарались выявить реальные потребности города, сформулировать интересные и актуальные сценарии, среди которых: озеленение гаражных кровель, оптимизация пространства в гаражах для удобства владельцев автомобилей, внедрение автоматизированных решений и другие. Все разработанные идеи легли в основу создания объемно-пространственных концепций, представленных ниже.

Публикуем студенческие проекты, отмеченные преподавательским составом, как наиболее интересные и разработанные.

Гараж-мост вблизи метро «Сходненская»
Кирилл Волков

Проект «Гараж-мост вблизи метро «Сходненская». Город Москва. Автор: Кирилл Волков, студент 5 группы 3 курса. Фасад
Проект «Гараж-мост вблизи метро «Сходненская». Город Москва. Автор: Кирилл Волков, студент 5 группы 3 курса. Фасад

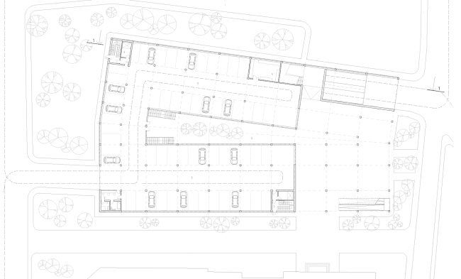
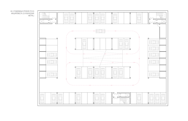
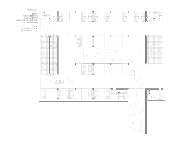
На пересечении Химкинского бульвара и улицы Героев Панфиловцев автор предлагает создать гараж-мост. Это позволит собрать воедино бульвар, разделенный автомагистралью, и предоставить горожанам безопасную удобную возможность пересекать дорогу, не покидая парковой зоны. Кроме того, озеленённая кровля гаража станет дополнительным пространством для велосипедных и пеших прогулок.
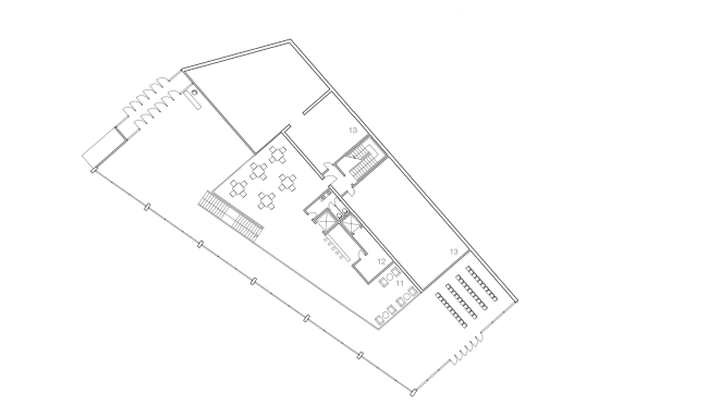
Проект «Гараж-мост вблизи метро «Сходненская». Город Москва. Автор: Кирилл Волков, студент  группы 3 курса кафедры
Проект «Гараж-мост вблизи метро «Сходненская». Город Москва. Автор: Кирилл Волков, студент группы 3 курса кафедры
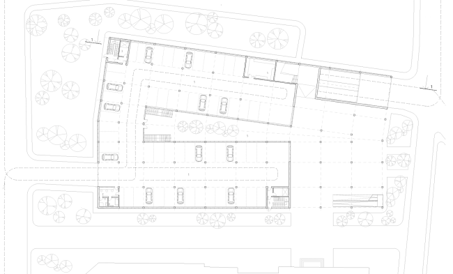
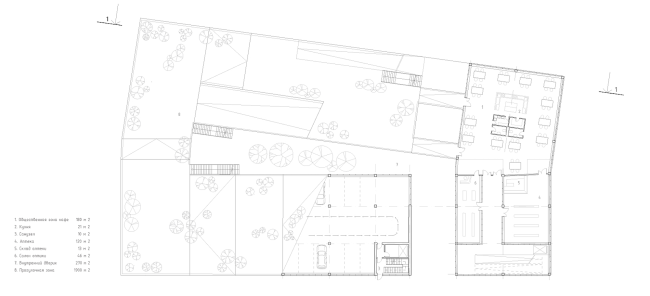
Проект «Гараж-мост вблизи метро «Сходненская». Город Москва. Автор: Кирилл Волков, студент  5 группы 3 курса. План 1 этажа
Проект «Гараж-мост вблизи метро «Сходненская». Город Москва. Автор: Кирилл Волков, студент 5 группы 3 курса. План 1 этажа
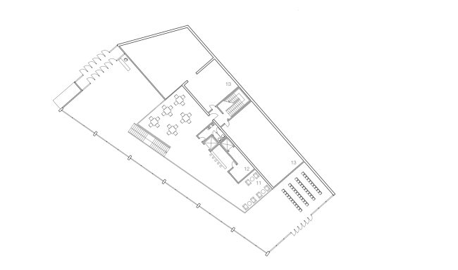
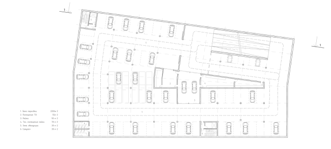
Проект «Гараж-мост вблизи метро «Сходненская». Город Москва. Автор: Кирилл Волков, студент  5 группы 3 курса. План 2 этажа
Проект «Гараж-мост вблизи метро «Сходненская». Город Москва. Автор: Кирилл Волков, студент 5 группы 3 курса. План 2 этажа
Проект «Гараж-мост вблизи метро «Сходненская». Город Москва. Автор: Кирилл Волков, студент 5 группы 3 курса. Фасад
Проект «Гараж-мост вблизи метро «Сходненская». Город Москва. Автор: Кирилл Волков, студент 5 группы 3 курса. Фасад
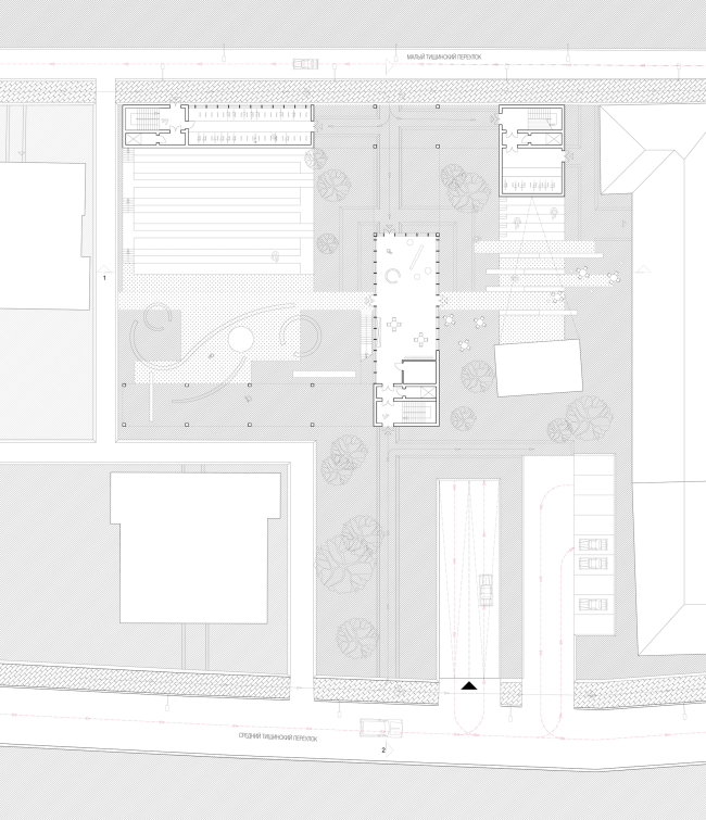
Проект «Гараж-мост вблизи метро «Сходненская». Город Москва. Автор: Кирилл Волков, студент 5 группы 3 курса. Генеральный план
Проект «Гараж-мост вблизи метро «Сходненская». Город Москва. Автор: Кирилл Волков, студент 5 группы 3 курса. Генеральный план
Проект «Гараж-мост вблизи метро «Сходненская». Город Москва. Автор: Кирилл Волков, студент 5 группы 3 курса. Анализ существующего положения
Проект «Гараж-мост вблизи метро «Сходненская». Город Москва. Автор: Кирилл Волков, студент 5 группы 3 курса. Анализ существующего положения
***
 
Гараж на площади Серпуховской заставы
Иван Марчук

Проект «Гараж на площади Серпуховской заставы». Автор: Иван Марчук, студент 5 группы 3 курса
Проект «Гараж на площади Серпуховской заставы». Автор: Иван Марчук, студент 5 группы 3 курса

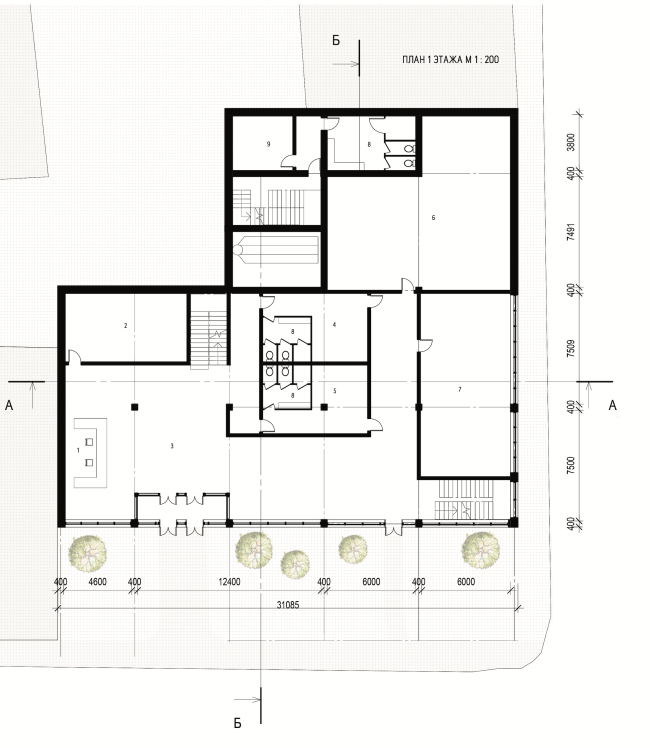
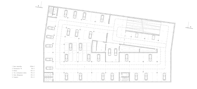
Выбранный участок расположен на площади Серпуховской Заставы, где из-за недостатка парковочных мест возникают стихийные парковки, которые мешают движению пешеходов и нарушают целостность территории. Идеи проекта:
  • создать перехватывающую парковку, где автомобилисты смогут взять в аренду велосипед или электромобиль, чтобы продолжить передвижение по центру города;
  • решить вопрос парковки для посетителей рынка, освободить рыночную площадь от беспорядочно оставленных машин, а также провести работы по ее озеленению;
  • создать зеленую общественную зону с кафе и велосипедными дорожками на эксплуатируемой кровле гаража.
Архитектурно-планировочное решение разработано с учетом возможности встроить гараж в существующую на площади систему движения автотранспорта.
Проект «Гараж на площади Серпуховской заставы». Автор: Иван Марчук, студент 5 группы 3 курса
Проект «Гараж на площади Серпуховской заставы». Автор: Иван Марчук, студент 5 группы 3 курса
Проект «Гараж на площади Серпуховской заставы». Автор: Иван Марчук, студент 5 группы 3 курса. Фасад
Проект «Гараж на площади Серпуховской заставы». Автор: Иван Марчук, студент 5 группы 3 курса. Фасад
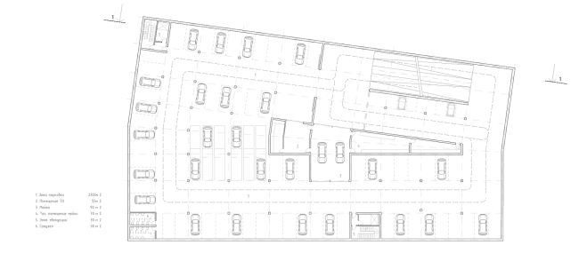
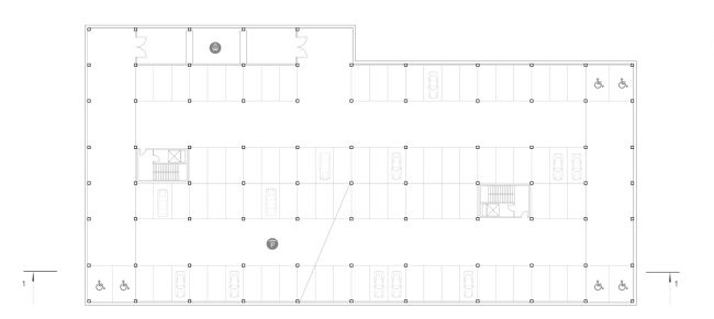
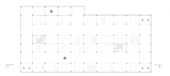
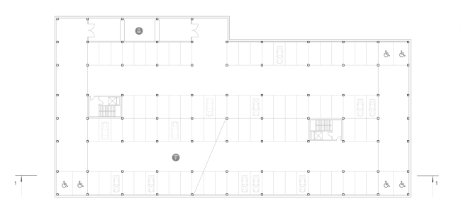
Проект «Гараж на площади Серпуховской заставы». Автор: Иван Марчук, студент 5 группы 3 курса. План 1 этажа
Проект «Гараж на площади Серпуховской заставы». Автор: Иван Марчук, студент 5 группы 3 курса. План 1 этажа
Проект «Гараж на площади Серпуховской заставы». Автор: Иван Марчук, студент 5 группы 3 курса. План 2 этажа
Проект «Гараж на площади Серпуховской заставы». Автор: Иван Марчук, студент 5 группы 3 курса. План 2 этажа
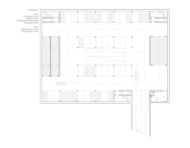
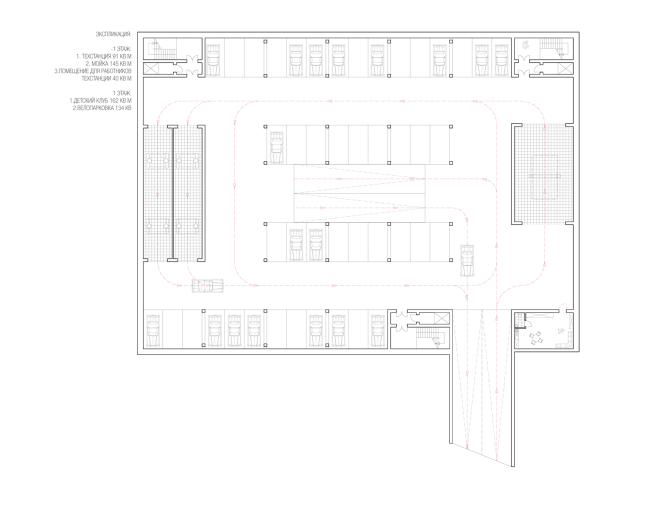
Проект «Гараж на площади Серпуховской заставы». Автор: Иван Марчук, студент 5 группы 3 курса. План типового этажа
Проект «Гараж на площади Серпуховской заставы». Автор: Иван Марчук, студент 5 группы 3 курса. План типового этажа
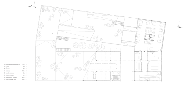
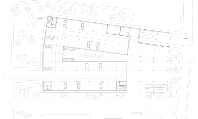
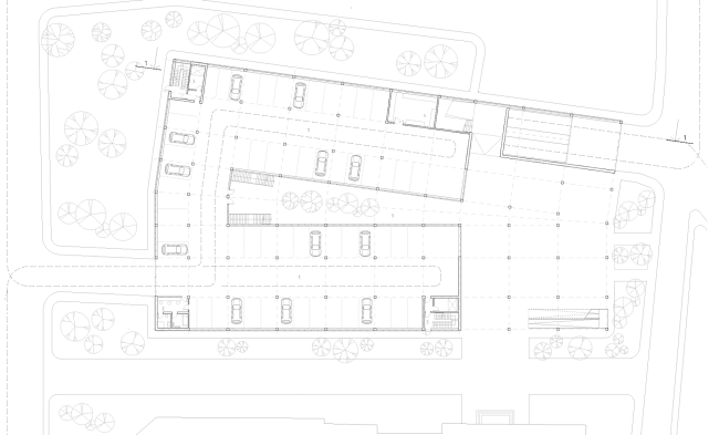
Проект «Гараж на площади Серпуховской заставы». Автор: Иван Марчук, студент 5 группы 3 курса. Генеральный план
Проект «Гараж на площади Серпуховской заставы». Автор: Иван Марчук, студент 5 группы 3 курса. Генеральный план
Проект «Гараж на площади Серпуховской заставы». Автор: Иван Марчук, студент 5 группы 3 курса. Анализ существующего положения
Проект «Гараж на площади Серпуховской заставы». Автор: Иван Марчук, студент 5 группы 3 курса. Анализ существующего положения
***
 
Народный гараж 2.0
Вероника Бабенко

Проект «Народный гараж 2.0». Автор: Вероника Бабенко, студент 5 группы 3 курса
Проект «Народный гараж 2.0». Автор: Вероника Бабенко, студент 5 группы 3 курса

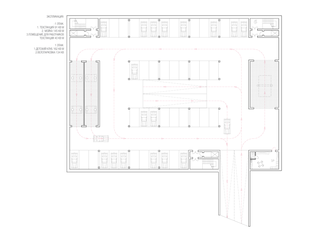
Идея автора – в создании на месте старого гаражного комплекса вдоль путей метро у станции «Славянский бульвар» альтернативную систему хранения автомобилей. Здесь жителям ближайших домов будут предложены различные типы машиномест, а также боксы для хранения вещей, шин и велосипедов.
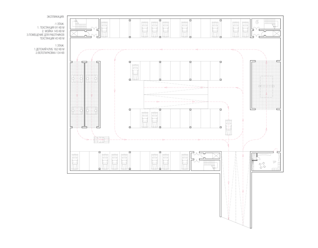
Проект «Народный гараж 2.0». Автор: Вероника Бабенко, студент 5 группы 3 курса. План 1 этажа
Проект «Народный гараж 2.0». Автор: Вероника Бабенко, студент 5 группы 3 курса. План 1 этажа
Проект «Народный гараж 2.0». Автор: Вероника Бабенко, студент 5 группы 3 курса. План 2 этажа, разрезы, фасад
Проект «Народный гараж 2.0». Автор: Вероника Бабенко, студент 5 группы 3 курса. План 2 этажа, разрезы, фасад
Проект «Народный гараж 2.0». Автор: Вероника Бабенко, студент 5 группы 3 курса
Проект «Народный гараж 2.0». Автор: Вероника Бабенко, студент 5 группы 3 курса
Проект «Народный гараж 2.0». Автор: Вероника Бабенко, студент 5 группы 3 курса. Функциональная схема
Проект «Народный гараж 2.0». Автор: Вероника Бабенко, студент 5 группы 3 курса. Функциональная схема
Проект «Народный гараж 2.0». Автор: Вероника Бабенко, студент 5 группы 3 курса. Ситуационный план
Проект «Народный гараж 2.0». Автор: Вероника Бабенко, студент 5 группы 3 курса. Ситуационный план
Проект «Народный гараж 2.0». Автор: Вероника Бабенко, студент 5 группы 3 курса. Генеральный план
Проект «Народный гараж 2.0». Автор: Вероника Бабенко, студент 5 группы 3 курса. Генеральный план
***
 
Гараж на территории офтальмологической больницы
Дарья Наумочкина

Проект «Гараж на территории офтальмологической больницы». Автор: Дарья Наумочкина, студент 5 группы 3 курса
Проект «Гараж на территории офтальмологической больницы». Автор: Дарья Наумочкина, студент 5 группы 3 курса

Поскольку рядом с больницей расположены жилые дома и офисы, посетители сталкиваются с нехваткой парковочных мест. Небольшой зеленый сквер, расположенный на выбранном участке, со всех сторон окружен машинами. Предложения автора:
  • обеспечить парковочные места в нужном количестве как для посетителей больницы, так и для жителей домов;
  • сохранить как можно больше существующей территории сквера, компенсировать озеленение на эксплуатируемой кровле гаража.
Объект органично встраивается в среду благодаря террасированию, применению пандусов и проницаемому первому этажу.
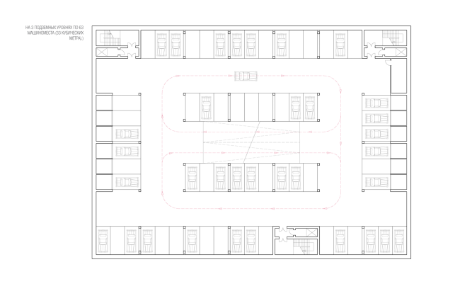
Проект «Гараж на территории офтальмологической больницы». Автор: Дарья Наумочкина, студент 5 группы 3 курса. План -3, -2, -1 этажей
Проект «Гараж на территории офтальмологической больницы». Автор: Дарья Наумочкина, студент 5 группы 3 курса. План -3, -2, -1 этажей
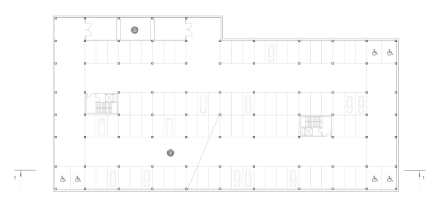
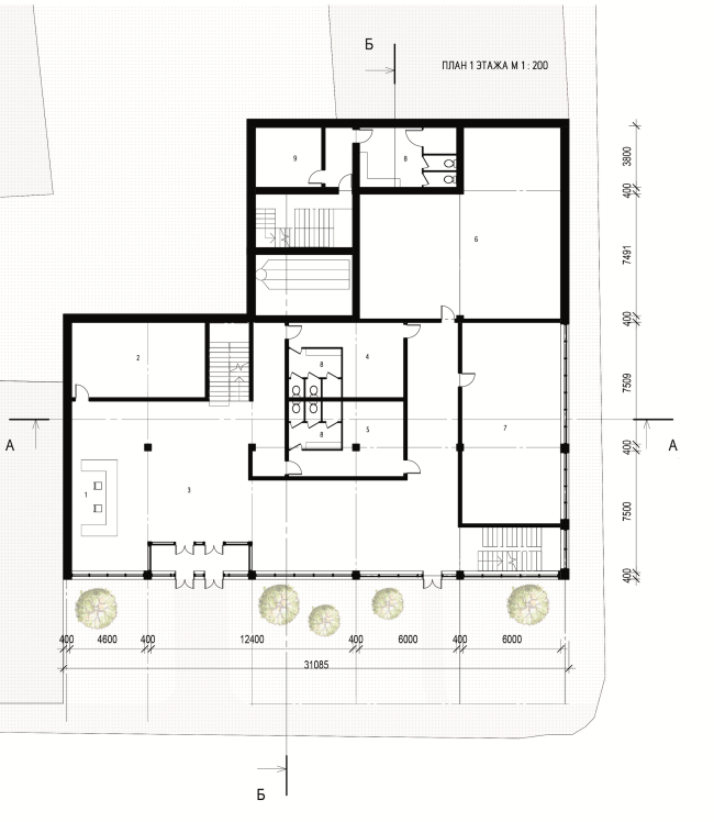
Проект «Гараж на территории офтальмологической больницы». Автор: Дарья Наумочкина, студент 5 группы 3 курса. План 1 этажа
Проект «Гараж на территории офтальмологической больницы». Автор: Дарья Наумочкина, студент 5 группы 3 курса. План 1 этажа
Проект «Гараж на территории офтальмологической больницы». Автор: Дарья Наумочкина, студент 5 группы 3 курса. План 2 этажа
Проект «Гараж на территории офтальмологической больницы». Автор: Дарья Наумочкина, студент 5 группы 3 курса. План 2 этажа
Проект «Гараж на территории офтальмологической больницы». Автор: Дарья Наумочкина, студент 5 группы 3 курса. Разрез
Проект «Гараж на территории офтальмологической больницы». Автор: Дарья Наумочкина, студент 5 группы 3 курса. Разрез
Проект «Гараж на территории офтальмологической больницы». Автор: Дарья Наумочкина, студент 5 группы 3 курса. Генеральный план
Проект «Гараж на территории офтальмологической больницы». Автор: Дарья Наумочкина, студент 5 группы 3 курса. Генеральный план
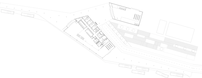
Проект «Гараж на территории офтальмологической больницы». Автор: Дарья Наумочкина, студент 5 группы 3 курса. Ситуационный план
Проект «Гараж на территории офтальмологической больницы». Автор: Дарья Наумочкина, студент 5 группы 3 курса. Ситуационный план
Проект «Гараж на территории офтальмологической больницы». Автор: Дарья Наумочкина, студент 5 группы 3 курса. Анализ существующего положения
Проект «Гараж на территории офтальмологической больницы». Автор: Дарья Наумочкина, студент 5 группы 3 курса. Анализ существующего положения
***
 
Гараж-трибуна с функцией спортивного комплекса
Руэда Марсело

Проект «Гараж-трибуна с функцией спортивного комплекса». Автор: Руэда Марсело, студент 5 группы 3 курса
Проект «Гараж-трибуна с функцией спортивного комплекса». Автор: Руэда Марсело, студент 5 группы 3 курса

Для проектирования был выбран участок в районе метро ВДНХ, между Ярославской улицей и улицей Космонавтов. Территория окружена жилой застройкой, граничит со школой и футбольным стадионом. Дворы домов переполнены машинами, а у стадиона отсутствует инфраструктура. Автор предлагает совместить парковку для жильцов с развитым спорткомплексом. Здание гаража одновременно служит в качестве трибуны для стадиона, а его крыша решена как парковая зона – здесь предусмотрены кафе, места для прогулок и открытые спортивные площадки.
Проект «Гараж-трибуна с функцией спортивного комплекса». Автор: Руэда Марсело, студент 5 группы 3 курса. Вид со стороны ул. Космонавтов
Проект «Гараж-трибуна с функцией спортивного комплекса». Автор: Руэда Марсело, студент 5 группы 3 курса. Вид со стороны ул. Космонавтов
Проект «Гараж-трибуна с функцией спортивного комплекса». Автор: Руэда Марсело, студент 5 группы 3 курса. Вид со стороны ул. Ярославска
Проект «Гараж-трибуна с функцией спортивного комплекса». Автор: Руэда Марсело, студент 5 группы 3 курса. Вид со стороны ул. Ярославска
Проект «Гараж-трибуна с функцией спортивного комплекса». Автор: Руэда Марсело, студент 5 группы 3 курса. План 1 этажа
Проект «Гараж-трибуна с функцией спортивного комплекса». Автор: Руэда Марсело, студент 5 группы 3 курса. План 1 этажа
Проект «Гараж-трибуна с функцией спортивного комплекса». Автор: Руэда Марсело, студент 5 группы 3 курса. Разрез
Проект «Гараж-трибуна с функцией спортивного комплекса». Автор: Руэда Марсело, студент 5 группы 3 курса. Разрез
Проект «Гараж-трибуна с функцией спортивного комплекса». Автор: Руэда Марсело, студент 5 группы 3 курса. Транспортная схема
Проект «Гараж-трибуна с функцией спортивного комплекса». Автор: Руэда Марсело, студент 5 группы 3 курса. Транспортная схема
Проект «Гараж-трибуна с функцией спортивного комплекса». Автор: Руэда Марсело, студент 5 группы 3 курса. Функциональная схема
Проект «Гараж-трибуна с функцией спортивного комплекса». Автор: Руэда Марсело, студент 5 группы 3 курса. Функциональная схема
Проект «Гараж-трибуна с функцией спортивного комплекса». Автор: Руэда Марсело, студент 5 группы 3 курса. Ситуационный план
Проект «Гараж-трибуна с функцией спортивного комплекса». Автор: Руэда Марсело, студент 5 группы 3 курса. Ситуационный план
Проект «Гараж-трибуна с функцией спортивного комплекса». Автор: Руэда Марсело, студент 5 группы 3 курса. Аксонометрия
Проект «Гараж-трибуна с функцией спортивного комплекса». Автор: Руэда Марсело, студент 5 группы 3 курса. Аксонометрия
Проект «Гараж-трибуна с функцией спортивного комплекса». Автор: Руэда Марсело, студент 5 группы 3 курса. Генеральный план
Проект «Гараж-трибуна с функцией спортивного комплекса». Автор: Руэда Марсело, студент 5 группы 3 курса. Генеральный план
Проект «Гараж-трибуна с функцией спортивного комплекса». Автор: Руэда Марсело, студент 5 группы 3 курса. Существующее положение
Проект «Гараж-трибуна с функцией спортивного комплекса». Автор: Руэда Марсело, студент 5 группы 3 курса. Существующее положение
***
 
Механизированная парковка с общественной функцией
Полина Светлицкая

Проект «Механизированная парковка с общественной функцией». Автор: Полина Светлицкая, студент 5 группы 3 курса
Проект «Механизированная парковка с общественной функцией». Автор: Полина Светлицкая, студент 5 группы 3 курса

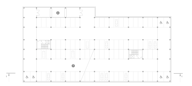
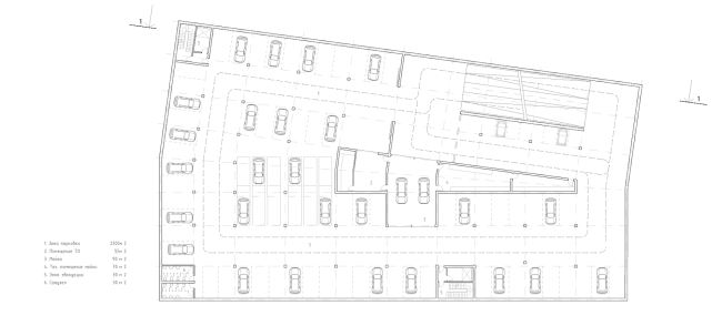
Выбранная территория расположена в плотной городской застройке на Трубной улице. Автор предлагает решить проблему нехватки парковочных мест за счет механизированной парковки, обеспечивающей возможность эффективного размещения большого количества машиномест в компактном объеме этажа. Гараж имеет наземный и подземный блоки. Первый и второй этажи занимают общественные функции – кафе и фитнес-центр. Объемно-пространственное решение гаража отвечает масштабу окружающей застройки. Наземный блок здания консольно нависает, поддерживая красную линию улицы, а первые этажи «утоплены» для увеличения ширины Трубной улицы.
Проект «Механизированная парковка с общественной функцией». Автор: Полина Светлицкая, студент 5 группы 3 курса. Фасад
Проект «Механизированная парковка с общественной функцией». Автор: Полина Светлицкая, студент 5 группы 3 курса. Фасад
Проект «Механизированная парковка с общественной функцией». Автор: Полина Светлицкая, студент 5 группы 3 курса. Разрез
Проект «Механизированная парковка с общественной функцией». Автор: Полина Светлицкая, студент 5 группы 3 курса. Разрез
Проект «Механизированная парковка с общественной функцией». Автор: Полина Светлицкая, студент 5 группы 3 курса. Разрез
Проект «Механизированная парковка с общественной функцией». Автор: Полина Светлицкая, студент 5 группы 3 курса. Разрез
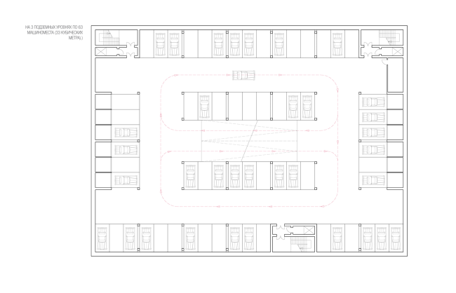
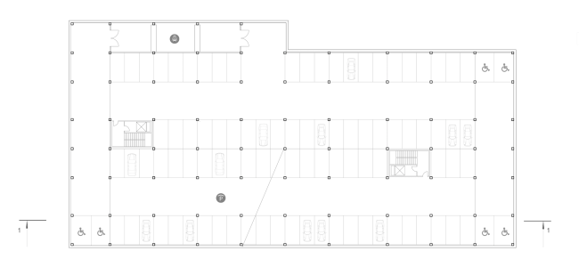
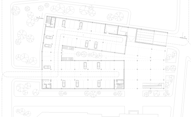
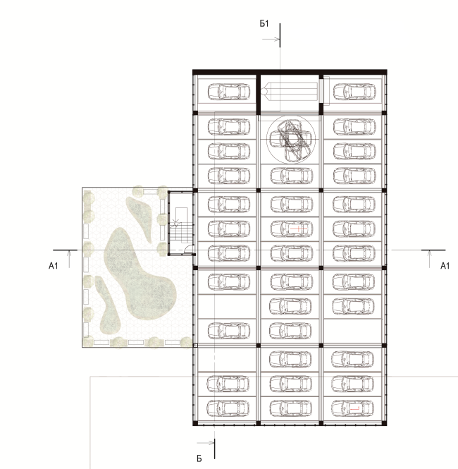
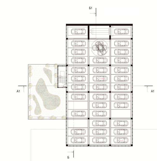
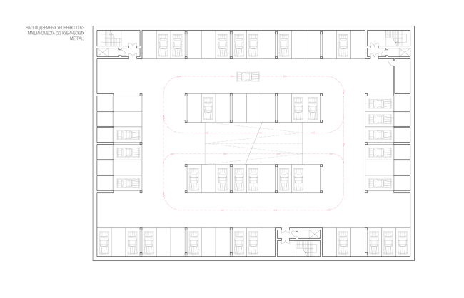
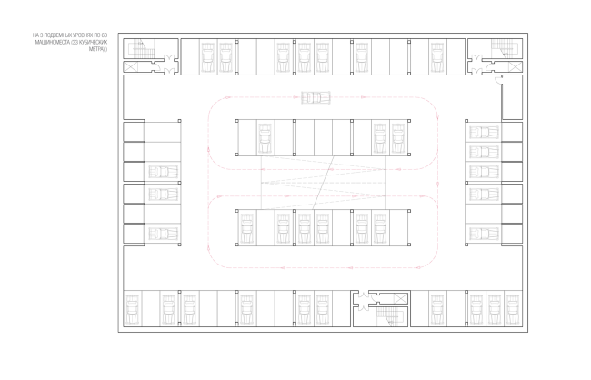
Проект «Механизированная парковка с общественной функцией». Автор: Полина Светлицкая, студент 5 группы 3 курса. План -3, -2, -1 этажей
Проект «Механизированная парковка с общественной функцией». Автор: Полина Светлицкая, студент 5 группы 3 курса. План -3, -2, -1 этажей
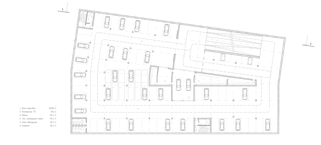
Проект «Механизированная парковка с общественной функцией». Автор: Полина Светлицкая, студент 5 группы 3 курса. План 1 этажа
Проект «Механизированная парковка с общественной функцией». Автор: Полина Светлицкая, студент 5 группы 3 курса. План 1 этажа
Проект «Механизированная парковка с общественной функцией». Автор: Полина Светлицкая, студент 5 группы 3 курса. План 2 этажа
Проект «Механизированная парковка с общественной функцией». Автор: Полина Светлицкая, студент 5 группы 3 курса. План 2 этажа
Проект «Механизированная парковка с общественной функцией». Автор: Полина Светлицкая, студент 5 группы 3 курса. План 3-7 этажей
Проект «Механизированная парковка с общественной функцией». Автор: Полина Светлицкая, студент 5 группы 3 курса. План 3-7 этажей
Проект «Механизированная парковка с общественной функцией». Автор: Полина Светлицкая, студент 5 группы 3 курса. Функциональная схема, ситуационный план
Проект «Механизированная парковка с общественной функцией». Автор: Полина Светлицкая, студент 5 группы 3 курса. Функциональная схема, ситуационный план
Проект «Механизированная парковка с общественной функцией». Автор: Полина Светлицкая, студент 5 группы 3 курса. Ситуационный план
Проект «Механизированная парковка с общественной функцией». Автор: Полина Светлицкая, студент 5 группы 3 курса. Ситуационный план
***
 
Гараж в жилом доме
Наталья Логинова

Проект «Гараж в жилом доме». Автор: Наталья Логинова, студент 5 группы 3 курса
Проект «Гараж в жилом доме». Автор: Наталья Логинова, студент 5 группы 3 курса

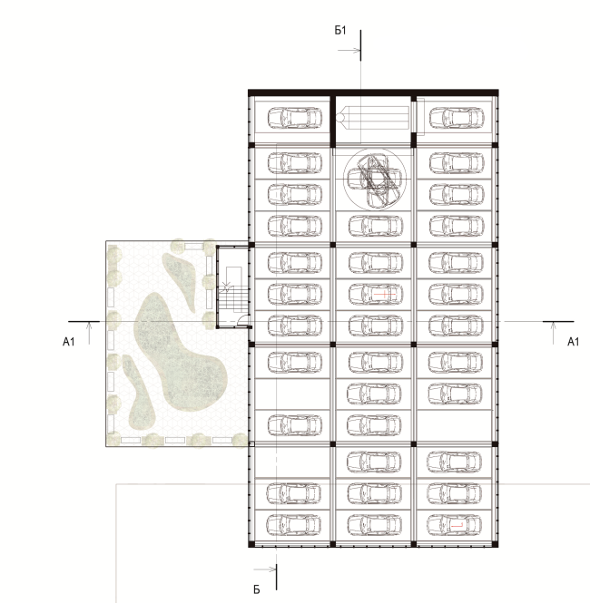
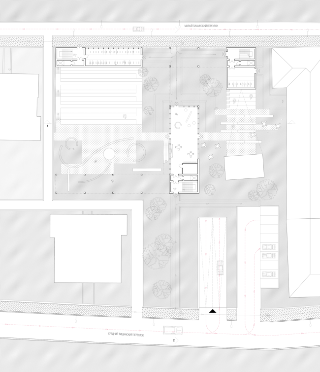
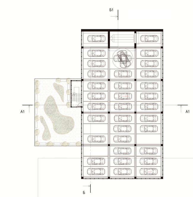
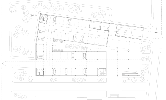
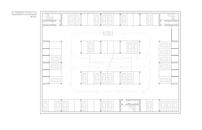
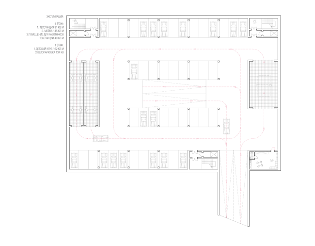
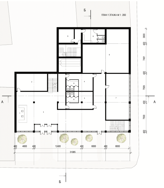
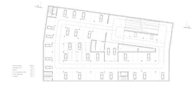
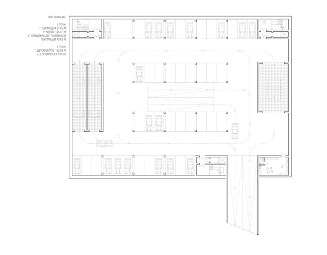
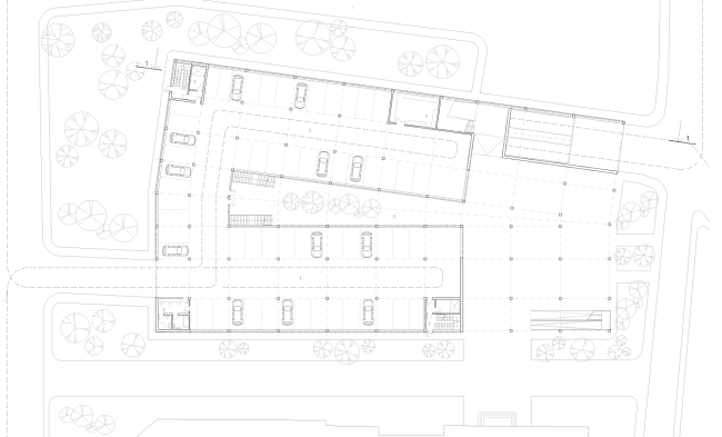
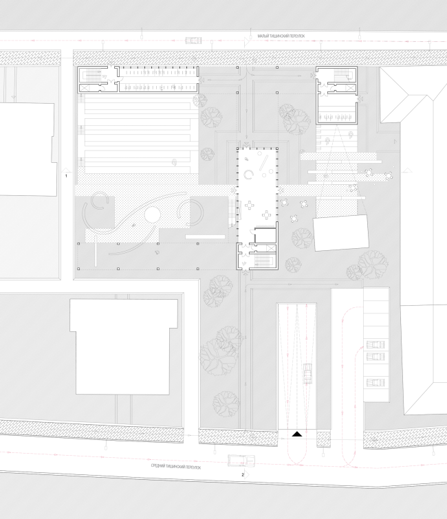
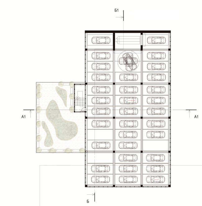
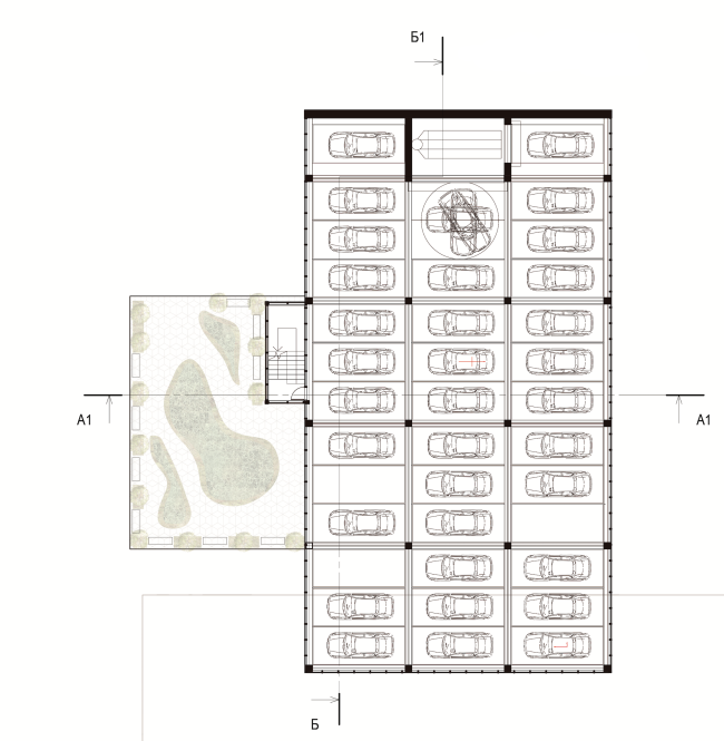
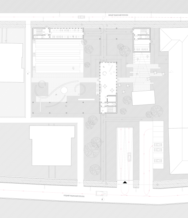
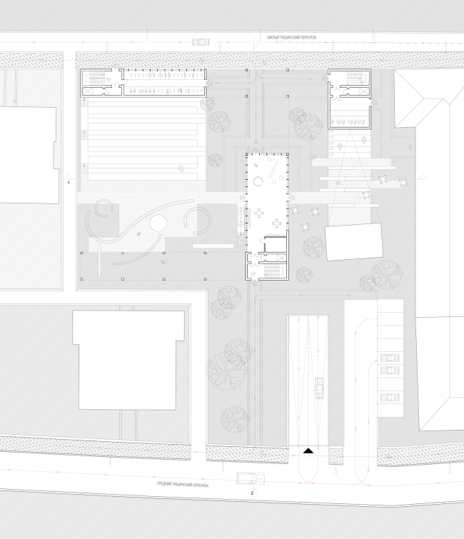
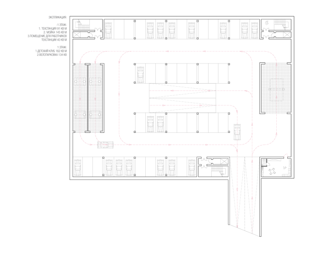
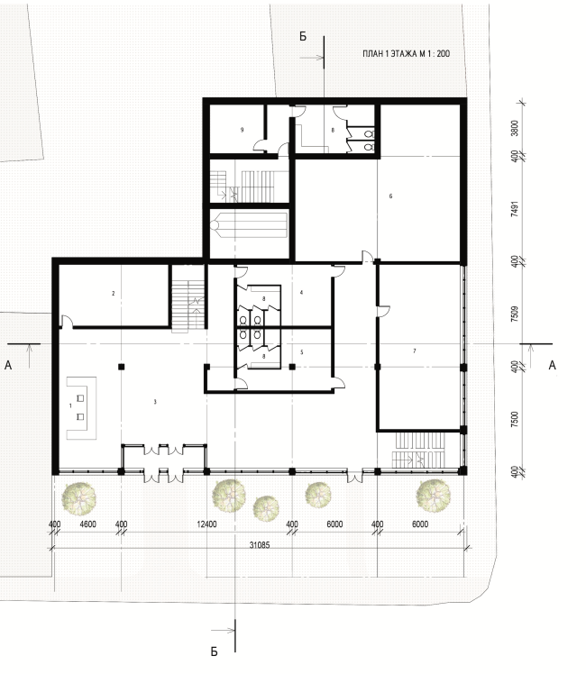
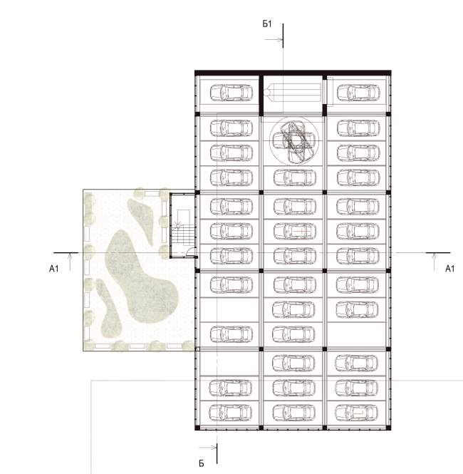
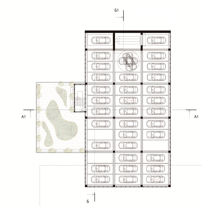
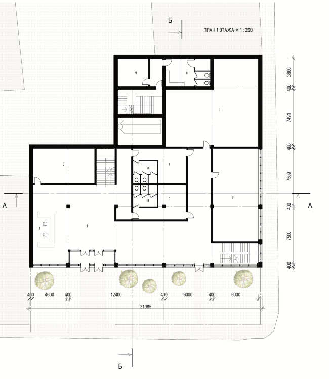
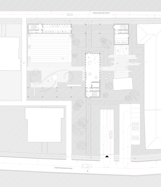
Цель проекта – освободить дворы жилых домов в Среднем Тишинском переулке от нагромождения автомобилей и организовать комфортное пространство для жильцов. Идея заключается в совмещении подземной парковки и современной инфраструктуры двора. На уровне земли располагаются въезды в гараж, к которым примыкают места хранения велосипедов. Во дворе предлагается строительство детского клуба, небольшой библиотеки, системы пандусов и террас для прогулок и отдыха, а также детская площадка.
Проект «Гараж в жилом доме». Автор: Наталья Логинова, студент 5 группы 3 курса. План 1 этажа
Проект «Гараж в жилом доме». Автор: Наталья Логинова, студент 5 группы 3 курса. План 1 этажа
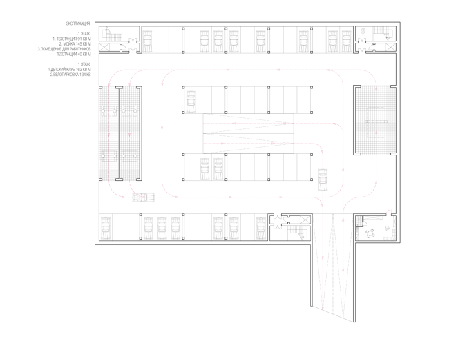
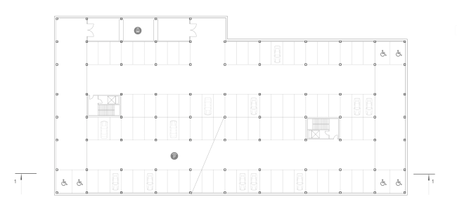
Проект «Гараж в жилом доме». Автор: Наталья Логинова, студент 5 группы 3 курса. План -1 этажа
Проект «Гараж в жилом доме». Автор: Наталья Логинова, студент 5 группы 3 курса. План -1 этажа
Проект «Гараж в жилом доме». Автор: Наталья Логинова, студент 5 группы 3 курса. План типового этажа
Проект «Гараж в жилом доме». Автор: Наталья Логинова, студент 5 группы 3 курса. План типового этажа
Проект «Гараж в жилом доме». Автор: Наталья Логинова, студент 5 группы 3 курса. Разрезы
Проект «Гараж в жилом доме». Автор: Наталья Логинова, студент 5 группы 3 курса. Разрезы
Проект «Гараж в жилом доме». Автор: Наталья Логинова, студент 5 группы 3 курса. Функциональная схема
Проект «Гараж в жилом доме». Автор: Наталья Логинова, студент 5 группы 3 курса. Функциональная схема
Проект «Гараж в жилом доме». Автор: Наталья Логинова, студент 5 группы 3 курса. Анализ существующего положения
Проект «Гараж в жилом доме». Автор: Наталья Логинова, студент 5 группы 3 курса. Анализ существующего положения
***
 
Гараж-парк
Валерия Базиновская

Проект «Гараж-парк». Автор: Валерия Базиновская, студент 5 группы 3 курса
Проект «Гараж-парк». Автор: Валерия Базиновская, студент 5 группы 3 курса

Гараж в спальном московском районе вблизи железнодорожных путей будет служить защитой жилого двора от шума железной дорога и сформирует интересное пространство с игровыми и спортивными площадками, зонами для прогулок и отдыха.
Проект «Гараж-парк». Автор: Валерия Базиновская, студент 5 группы 3 курса. План 1 этажа
Проект «Гараж-парк». Автор: Валерия Базиновская, студент 5 группы 3 курса. План 1 этажа
Проект «Гараж-парк». Автор: Валерия Базиновская, студент 5 группы 3 курса. Разрез
Проект «Гараж-парк». Автор: Валерия Базиновская, студент 5 группы 3 курса. Разрез
Проект «Гараж-парк». Автор: Валерия Базиновская, студент 5 группы 3 курса. Функциональная схема
Проект «Гараж-парк». Автор: Валерия Базиновская, студент 5 группы 3 курса. Функциональная схема
Проект «Гараж-парк». Автор: Валерия Базиновская, студент 5 группы 3 курса. Генеральный план
Проект «Гараж-парк». Автор: Валерия Базиновская, студент 5 группы 3 курса. Генеральный план
Проект «Гараж-парк». Автор: Валерия Базиновская, студент 5 группы 3 курса. Ситуационный план
Проект «Гараж-парк». Автор: Валерия Базиновская, студент 5 группы 3 курса. Ситуационный план
***
 
Автовокзал
Анастасия Маркина

Проект «Автовокзал». Автор: Анастасия Маркина, студент 5 группы 3 курса
Проект «Автовокзал». Автор: Анастасия Маркина, студент 5 группы 3 курса

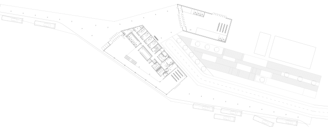
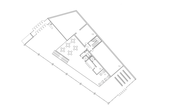
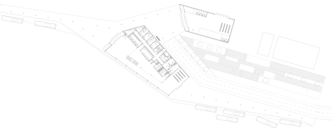
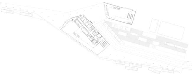
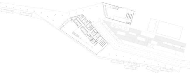
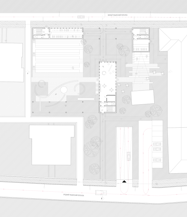
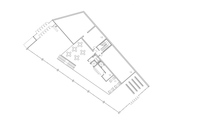
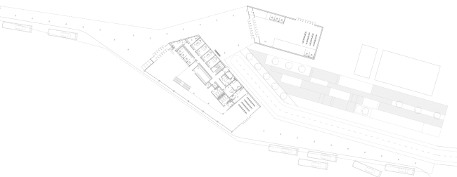
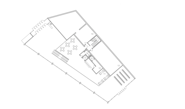
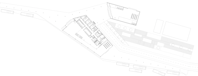
Предлагаемое решение – строительство на участке в составе транспортно-пересадочного узла Тушино автовокзала, который станет ярким акцентом и доминантой в среде разноплановой периферийной застройки. Объемно-пространственное решение автовокзала обеспечивает эффективное распределение транспортного и пешеходного потоков. Зона ожидания дополнена общественным сквером.
Проект «Автовокзал». Автор: Анастасия Маркина, студент 5 группы 3 курса. Функциональная схема
Проект «Автовокзал». Автор: Анастасия Маркина, студент 5 группы 3 курса. Функциональная схема
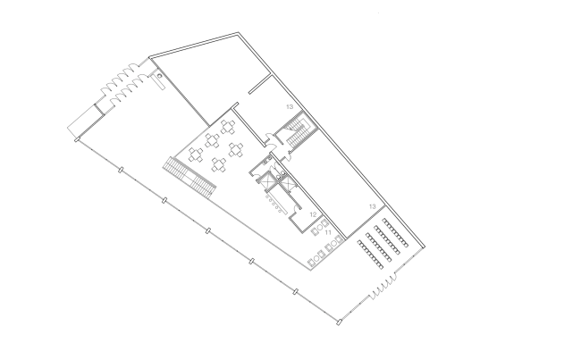
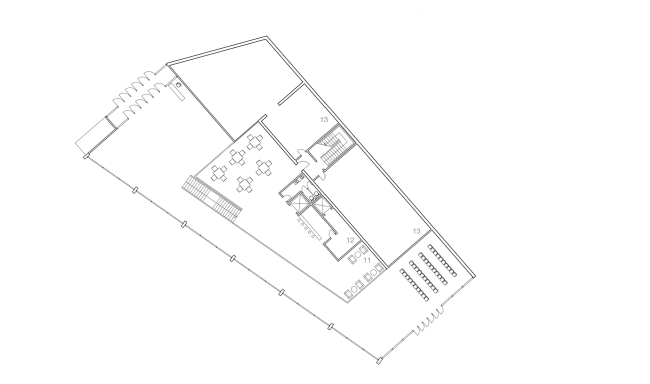
Проект «Автовокзал». Автор: Анастасия Маркина, студент 5 группы 3 курса. План 1 этажа
Проект «Автовокзал». Автор: Анастасия Маркина, студент 5 группы 3 курса. План 1 этажа
Проект «Автовокзал». Автор: Анастасия Маркина, студент 5 группы 3 курса. План 2 этажа
Проект «Автовокзал». Автор: Анастасия Маркина, студент 5 группы 3 курса. План 2 этажа
Проект «Автовокзал». Автор: Анастасия Маркина, студент 5 группы 3 курса. Разрез
Проект «Автовокзал». Автор: Анастасия Маркина, студент 5 группы 3 курса. Разрез