Размещено на портале Архи.ру (www.archi.ru)

26.05.2016

Снился мне сад...

Объект:
Детский сад в г. Белоярский
Адрес:
Россия, Ханты-Мансийский автономный округ-Югра, Белоярский. микрорайон 3А
Архитектор:
Антон Лукомский
Валерий Лукомский
Мастерская:
Сити-Арх
Авторский коллектив:
Главный архитектор проекта: А.В. Лукомский
Архитекторы: А.С. Кожаев, М.А. Кошпаев  

Проект детского сада в городе Белоярском не только энергоэффективен, приспособлен для сурового климата, но и рассчитан на обновление устаревших нормативов вслед за современными взглядами на дошкольное образование. Это проект-реформа.

Детский сад в г. Белоярский. Проект, 2014
Детский сад в г. Белоярский. Проект, 2014
© Сити-Арх

Проект ДОУ, детского сада, рассчитанный на 220 детей, был разработан архитектурным бюро «Сити-Арх» для Ханты-Мансийского автономного округа ещё в 2014 году; в 2015 его номинировали на «Золотое сечение» и обсуждали на различных форумах и конференциях, он стал серебряным призером конкурса по экологическому девелопменту и энергоэффективности Green Awards в номинации «объекты социальной сферы», занял второе место на всероссийском конкурсе «Эко Тектоника». Но реализация пока не стартовала. Причина – в инновационности. Проект – пример того счастливого случая, когда архитектура диктует пользователям иную, принципиально новую форму существования в ней, тем самым меняя реальность. Но поскольку речь идет о дошкольном учреждении, где жёсткая система строительных и санитарных норм и регламентов практически не оставляет зазора для маневра, то не удивительно, что его реализация затянулась. Однако пока можно надеяться на то, что Ханты-Мансийскому проекту удастся внести принципиальные изменения в проектирование детских садов в России.

На подготовительной стадии авторы проекта изучали опыт западноевропейских и скандинавских стран в организации детских садов, а также консультировались с разработчиками программы дошкольного образования «Югорский трамплин», специально созданной для Ханты-Мансийского АО. Основная цель этой программы – качественное изменение системы дошкольного воспитания с переносом основного акцента на комплексное развитие детей. Именно на этой стадии подготовительных исследований авторы проекта и пришли к выводу о том, что наши нормы строительства детских садов устарели и не соответствуют принципам и открытиям современной педагогики.

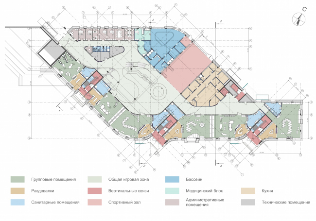
Объем здания состоит из вытянутого двухэтажного основного блока, в плане напоминающего бумеранг, примыкает ромбовидный в плане блок с односкатной крышей. Такая форма позволила добиться сомасштабности здания в восприятии ребенка. Основные входные группы развернуты по движению общего потока из существующего жилого квартала. Они имеют цветовые акценты для визуальной ориентации, при которой ребенок четко понимает куда ему идти и где его группа. В основном блоке с улицы ведут три отдельных входа – здесь расположены помещения групповых, куда родители приводят детей и где дети, как известно, проводят большую часть своего дня. Отдельные входные группы позволили получить деление на «чистые» и «грязные» зоны. Предполагается, что младшие группы разместятся на первом этаже, старшие – на втором. В перспективе, групповые на втором этаже могут трансформироваться в классы начальной школы.
Детский сад в г. Белоярский. Вид с высоты птичьего полёта. Проект, 2014
Детский сад в г. Белоярский. Вид с высоты птичьего полёта. Проект, 2014
© Сити-Арх
Детский сад в г. Белоярский. Генеральный план
Детский сад в г. Белоярский. Генеральный план
Сити-Арх

Итак, в чём заключается новаторство, предложенное архитекторами? Это уход от классической коридорной системы и создание общего двусветного игрового пространства внутри здания, своеобразный дворик, куда можно легко попасть изо всех групповых комнат. Согласно существующим нормам, дети разных возрастов не должны контактировать внутри сада (принцип групповой изоляции), что опять-таки не соответствует новейшим исследованиям в области педагогики. Сегодня доказано, что развитие детей получает колоссальный импульс именно в процессе разновозрастного общения. Детям необходимо пространство, которое позволяет им участвовать в обсуждениях, практических занятиях, обучении других детей (когда старшие учат младших, и те, и другие, лучше усваивают информацию). Общие игровые зоны расположены в примыкающей к двухэтажному блоку ромбовидной части здания: это двусветное пространство со световым фонарем. Для визуальной связи с ним отдельные участки стен в помещения групповых сделаны стеклянными. Со второго этажа попасть в общее игровое пространство первого уровня можно, выйдя на открытые галереи и спустившись по открытой лестнице или по винтовой горке. В общем игровом пространстве помимо больших площадок планируется скалодром, амфитеатр со сценой для проведения массовых мероприятий.
Детский сад в г. Белоярский. Проект, 2014
Детский сад в г. Белоярский. Проект, 2014
© Сити-Арх

Другое важное новшество – планировка собственно групповых помещений – одна из новаций для нашей страны. Практически все пространство групповых помещений можно использовать для игр. Трёхъярусные выдвижные кровати расставлены вдоль стен в игровых, а изолированными остались только санузлы (которые также имеют остекленные элементы в целях безопасности и возможности контроля воспитателем), раздевалки могут использоваться для игр. Мини-кухней внутри группы служит кухонная ниша (кухня-ниша), также отрытая; здесь, впрочем, еду только подготавливают к раздаче а также хранят и моют посуду, готовить еду её будут на большой, специальной кухне в северной части здания.

Таким образом, оптимизировав площади всего здания, архитекторы получили – до 14,7 м2 общей площади здания на одного ребёнка, – и значительно увеличили площадь игрового пространства, отводимого на каждого воспитанника: до 10,5 м2 на ребёнка вместо нормативных 2-2,5 м2, практически в четыре-пять раз больше. Развитие ребенка в процессе игры, когда он больше двигается и контактирует со сверстниками, проявляет инициативу и сам выбирает форму своей активности. Предусмотрены уютные уголки для времяпрепровождения в одиночестве или небольшими группами. Основной принцип – гибкость, многофункциональность, разнобразие формы и текструры материалов, мобильность: внутри групповой с помощью трансформируемой мобильной мебели можно создавать более обособленные участки, чтобы при необходимости разбивать детей на группы по интересам.
Детский сад в г. Белоярский. План 1 этажа. Проект, 2014
Детский сад в г. Белоярский. План 1 этажа. Проект, 2014
Сити-Арх
Детский сад в г. Белоярский. Общая игровая зона. Проект, 2014 © Сити-Арх
Детский сад в г. Белоярский. Общая игровая зона. Проект, 2014 © Сити-Арх
Детский сад в г. Белоярский. План 2 этажа. Проект, 2014
Детский сад в г. Белоярский. План 2 этажа. Проект, 2014
Сити-Арх
Детский сад в г. Белоярский. Разрез. Проект, 2014 © Сити-Арх
Детский сад в г. Белоярский. Разрез. Проект, 2014 © Сити-Арх

Во второй части здания под скатной крышей, кроме общей игровой зоны, находятся бассейн, спортивный зал, который также можно трансформировать с помощью перегородок в залы для физкультуры и других дополнительных занятий, а можно присоединять общей к игровой зоне, кухня и кладовые с отдельным входом с улицы (чтобы загружать продукты), административные и медицинские кабинеты, расположенные ближе к бассейну как одному из самых рискованных мест.

Ещё один важный аспект, который необходимо было учесть авторам проекта – возможности функционирования в условиях Крайнего Севера, где температура воздуха зимой опускается до минус 50 и ниже, а грунт промерзает почти на три метра вглубь. Естественно, очень важна была максимальная энергоэффективность при минимальных теплопотерях. Впрочем, для Валерия Лукомского, построившего несколько успешно функционирующих зданий в том же городе Белоярском – вспомним центр «Нуви Ат» и Ледовый дворец – здание детского сада, не теряющее ни капли лишнего тепла, стало лишь развитием темы.

Архитекторы основывались на принципах «пассивного дома» – в частности, продумали расположение здания относительно сторон света так, что все групповые помещения ориентированы на юг, и их большие окна не только придают фасаду привлекательность, но и ловят тепло солнца в отопительный период. Летом же напротив – специальное стекло задержит прохладу и избавит от необходимости в кондиционировании. Закрытые части здания – бассейн, спортзал, кухня и технические помещения – расположены с севера: здесь скатная кровля делает объём особенно компактным; в этой части архитекторы обходятся функциональным минимумом окон. Кроме того, здание сдвинуто к северной части участка, чтобы максимально высвободить площади для прогулок детей на южной стороне.
Детский сад в г. Белоярский. Проект, 2014
Детский сад в г. Белоярский. Проект, 2014
© Сити-Арх
Детский сад в г. Белоярский. Анализ температурных показателей. Проект, 2014 © Сити-Арх
Детский сад в г. Белоярский. Анализ температурных показателей. Проект, 2014 © Сити-Арх
Детский сад в г. Белоярский. Анализ солнечного света. Проект, 2014 © Сити-Арх
Детский сад в г. Белоярский. Анализ солнечного света. Проект, 2014 © Сити-Арх

Основной задачей по энергоэффективности была не столько экономия ресурсов, сколько создание здорового микроклимата. Для минимизации энергопотерь разработана уникальная оболочка, герметичная, формирующая замкнутый тепловой периметр без разрывов и «тепловых мостов»: по словам архитекторов, единственные мостики холода здесь это колонны, было решено их оставить, т.к. окупаемость по ликвидации (решению) для данного региона переваливает за 80 лет. Фасады планируется утеплить минераловатным материалом толщиной 400 мм с высокой степенью однородности и облицевать керамогранитной плиткой. Фундамент и металлическая фальцевая кровля также утеплены и герметичны. Авторы уделили немало внимания и внутренней инженерии. Для поддержания оптимальных условий здание оборудовано механической системой вентиляции с рекуперацией тепла, подающей свежий воздух с контролируемыми параметрами. Датчики следят за содержанием СО2 в помещениях: они реагируют на количество детей и степень их активности, меняя температуру и усиливая или ослабляя приток воздуха. Ночью и в выходные предусмотрено понижение температуры. Все полы в здании – тёплые, с подогревом. Данная система позволяет держать температуру воздуха на минимальных значениях и при этом в помещениях будет очень комфортно. Низкие подоконники, высотой не более 40 см, чтобы дети могли выглянуть наружу и увидеть происходящее на улице (визуальная связь с природой и социумом) – также подогреваются.
Детский сад в г. Белоярский. Схема применения нового принципа утепления. Проект, 2014
Детский сад в г. Белоярский. Схема применения нового принципа утепления. Проект, 2014
Сити-Арх
Детский сад в г. Белоярский. Концепция по Passive House Institute (PHI). Проект, 2014
Детский сад в г. Белоярский. Концепция по Passive House Institute (PHI). Проект, 2014
Сити-Арх

Внешний облик здания садика не менее «интерактивен», чем его внутреннее обустройство, и ориентирован на взаимодействие с детьми и родителями. Фасады вокруг трёх подъездов, ведущих в группы, облицованы цветным керамогранитом – каждый вход отмечен ярким цветовым пятном, чьи контуры, впрочем, затем плавно растворяются в естественной «деревянной» фактуре. При входе под лестницами предусмотрены дополнительные туалеты: дети смогут пользоваться ими во время прогулки, здесь же помыть игрушки; туалеты пригодятся и родителям – в стандартных ДОУ для родителей почему-то не предусматривают ничего в этом роде, что подчас крайне неудобно. С западной стороны к зданию примыкает амфитеатр для музыкальных и театрализованных представлений, он же служит пожарным выходом со второго этажа. В зимнее время амфитеатр будет превращаться в горку.
Детский сад в г. Белоярский. Проект, 2014
Детский сад в г. Белоярский. Проект, 2014
© Сити-Арх
Детский сад в г. Белоярский. Северный и южный фасады. Проект, 2014 © Сити-Арх
Детский сад в г. Белоярский. Северный и южный фасады. Проект, 2014 © Сити-Арх
Детский сад в г. Белоярский. Западный и восточный фасады. Проект, 2014 © Сити-Арх
Детский сад в г. Белоярский. Западный и восточный фасады. Проект, 2014 © Сити-Арх

Проект детского сада, разработанный архитектурным бюро «Сити-Арх» – первый в своем роде, аналогов ему у нас пока нет, так что остаётся надеяться, и «лёд тронется»: проект не только воплотится, но и даст импульс как для развития архитектуры детских учреждений, так и для преобразования самой системы дошкольного воспитания в России.
Детский сад в г. Белоярский. Схема. Проект, 2014 © Сити-Арх
Детский сад в г. Белоярский. Схема. Проект, 2014 © Сити-Арх
Детский сад в г. Белоярский. Схема. Проект, 2014 © Сити-Арх
Детский сад в г. Белоярский. Схема. Проект, 2014 © Сити-Арх