Размещено на портале Архи.ру (www.archi.ru)

06.04.2016

Красная аллея

Нина Фролова
Объект:
Культурный центр Ле-Аг
Адрес:
Франция, None, Бомон-Аг. 8 rue des Tohagues 50 440
Мастерская:
Périphériques

Культурный центр в нормандском городке Бомон-Аг по проекту бюро Périphériques / Marin+Trottin Architectes.

Культурный центр Ле-Аг © Sergio Grazia
Культурный центр Ле-Аг © Sergio Grazia

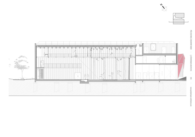
Новое здание появилось на окраине города, в полях, где разбросаны хозяйственные и промышленные сооружения. К дороге оно обращено фасадом из панелей прозрачного и зеркального стекла, однако на главный аттракцион проекта – пронизывающую здание «аллею» со сложной оболочкой из красных перфорированных панелей анодированного алюминия – намекает оформленный этим же материалом главный вход.
 
Культурный центр Ле-Аг © Sergio Grazia
Культурный центр Ле-Аг © Sergio Grazia

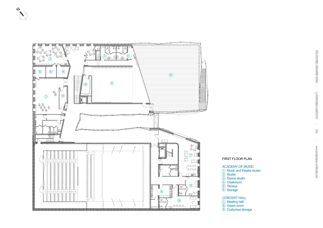
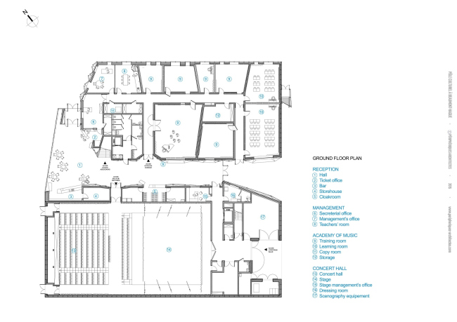
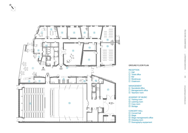
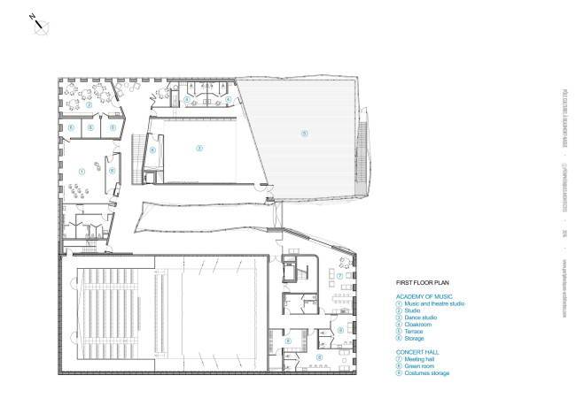
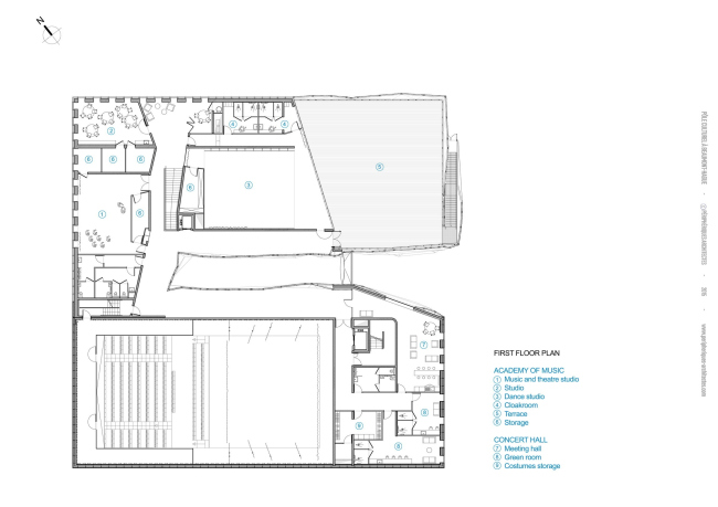
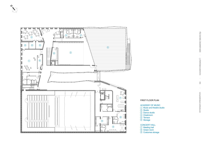
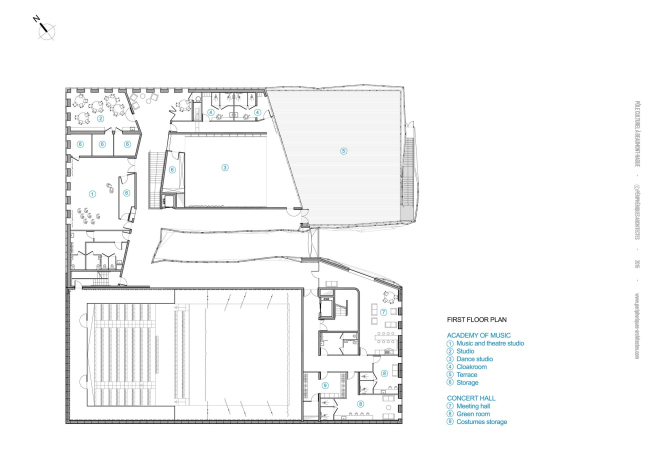
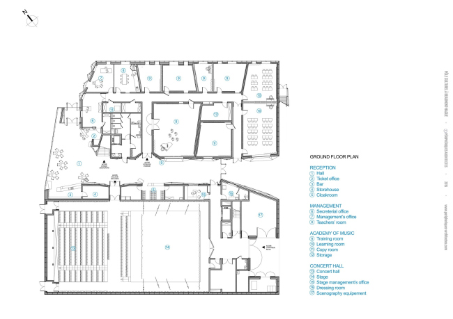
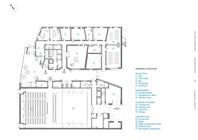
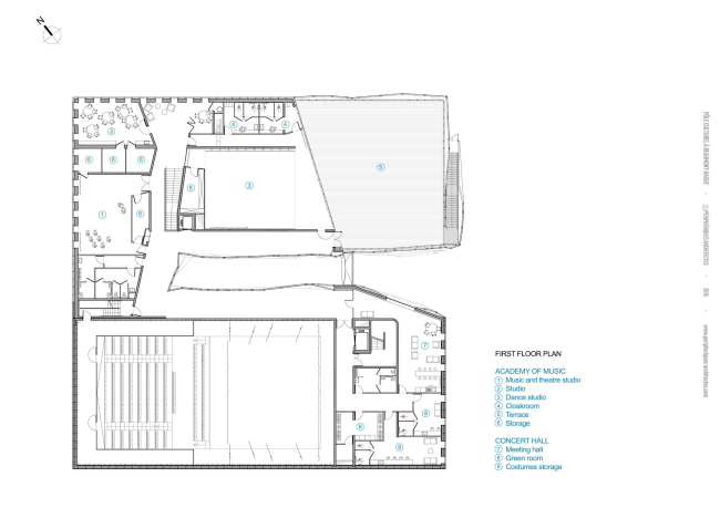
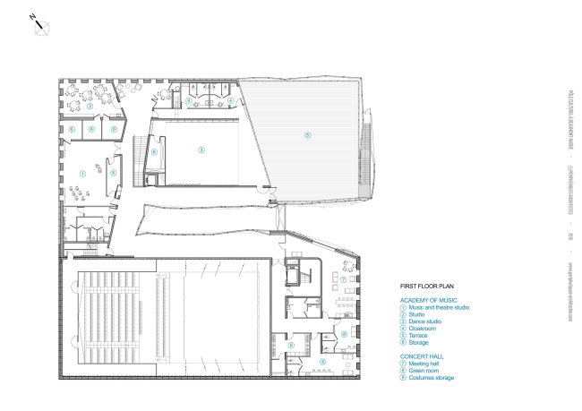
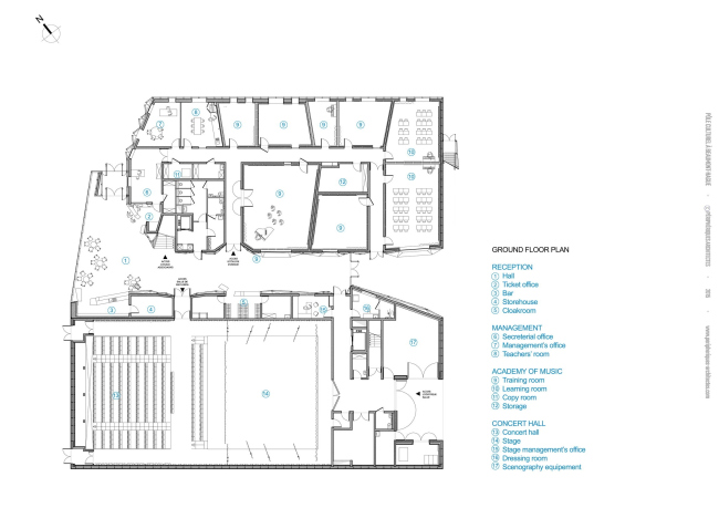
«Аллея» вдохновлена типичным для Нормандии явлением: слегка утопленные в почву дороги для защиты от сильного морского ветра обсаживают деревьями, которые, вырастая, образуют нечто вроде зеленого свода. Эту природную форму и попытались сымитировать архитекторы. Получившееся у них пространство обращено на задний фасад, где красного металла гораздо больше, чем со стороны улицы. «Аллея» служит и пространством для собраний и концертов, туда выходят ключевые объекты (стойка администратора, бар, гардероб и т.д.), также оттуда можно попасть во все помещения культурного центра. Этот центр, носящий название расположенного неподалеку мыса Ла-Аг, объединяет концертный зал, музыкальную школу, где также учатся балету и драматическому искусству, и пространства для встреч различных городских общественных объединений.
 
Культурный центр Ле-Аг © Sergio Grazia
Культурный центр Ле-Аг © Sergio Grazia

Кроме анодированного алюминия (за образцовое сотрудничество в его новаторском использовании архитекторы Marin+Trottin и компания Pyrrhus Conceptions получили премию Duo@Work от парижского отделения Национального союза французских архитекторов UNSFA и коммерческой выставки Architect@Work), в здании использованы открытые бетонные поверхности и дерево, которым, помимо прочего, обшита просторная терраса второго этажа.
Культурный центр Ле-Аг © Sergio Grazia
Культурный центр Ле-Аг © Sergio Grazia
Культурный центр Ле-Аг © Sergio Grazia
Культурный центр Ле-Аг © Sergio Grazia
Культурный центр Ле-Аг © Sergio Grazia
Культурный центр Ле-Аг © Sergio Grazia
Культурный центр Ле-Аг © Sergio Grazia
Культурный центр Ле-Аг © Sergio Grazia
Культурный центр Ле-Аг © Sergio Grazia
Культурный центр Ле-Аг © Sergio Grazia
Культурный центр Ле-Аг © Sergio Grazia
Культурный центр Ле-Аг © Sergio Grazia
Культурный центр Ле-Аг © Sergio Grazia
Культурный центр Ле-Аг © Sergio Grazia
Культурный центр Ле-Аг © Sergio Grazia
Культурный центр Ле-Аг © Sergio Grazia
Культурный центр Ле-Аг © Sergio Grazia
Культурный центр Ле-Аг © Sergio Grazia
Культурный центр Ле-Аг © Sergio Grazia
Культурный центр Ле-Аг © Sergio Grazia
Культурный центр Ле-Аг © Sergio Grazia
Культурный центр Ле-Аг © Sergio Grazia
Культурный центр Ле-Аг © Sergio Grazia
Культурный центр Ле-Аг © Sergio Grazia
Культурный центр Ле-Аг © Sergio Grazia
Культурный центр Ле-Аг © Sergio Grazia
Культурный центр Ле-Аг © Sergio Grazia
Культурный центр Ле-Аг © Sergio Grazia
Культурный центр Ле-Аг © Sergio Grazia
Культурный центр Ле-Аг © Sergio Grazia
Культурный центр Ле-Аг © Sergio Grazia
Культурный центр Ле-Аг © Sergio Grazia
Культурный центр Ле-Аг © Sergio Grazia
Культурный центр Ле-Аг © Sergio Grazia
Культурный центр Ле-Аг © Sergio Grazia
Культурный центр Ле-Аг © Sergio Grazia
Культурный центр Ле-Аг © Sergio Grazia
Культурный центр Ле-Аг © Sergio Grazia
Культурный центр Ле-Аг © Sergio Grazia
Культурный центр Ле-Аг © Sergio Grazia
Культурный центр Ле-Аг © Sergio Grazia
Культурный центр Ле-Аг © Sergio Grazia
Культурный центр Ле-Аг © Sergio Grazia
Культурный центр Ле-Аг © Sergio Grazia
Культурный центр Ле-Аг © Sergio Grazia
Культурный центр Ле-Аг © Sergio Grazia
Культурный центр Ле-Аг © Sergio Grazia
Культурный центр Ле-Аг © Sergio Grazia
Культурный центр Ле-Аг © Sergio Grazia
Культурный центр Ле-Аг © Sergio Grazia
Культурный центр Ле-Аг © Sergio Grazia
Культурный центр Ле-Аг © Sergio Grazia
Культурный центр Ле-Аг © Sergio Grazia
Культурный центр Ле-Аг © Sergio Grazia
Культурный центр Ле-Аг © Sergio Grazia
Культурный центр Ле-Аг © Sergio Grazia
Культурный центр Ле-Аг © Sergio Grazia
Культурный центр Ле-Аг © Sergio Grazia
Культурный центр Ле-Аг © Sergio Grazia
Культурный центр Ле-Аг © Sergio Grazia
Культурный центр Ле-Аг © Sergio Grazia
Культурный центр Ле-Аг © Sergio Grazia
Культурный центр Ле-Аг © Sergio Grazia
Культурный центр Ле-Аг © Sergio Grazia
Культурный центр Ле-Аг © Sergio Grazia
Культурный центр Ле-Аг © Sergio Grazia
Культурный центр Ле-Аг © Sergio Grazia
Культурный центр Ле-Аг © Sergio Grazia
Культурный центр Ле-Аг © Sergio Grazia
Культурный центр Ле-Аг © Sergio Grazia
Культурный центр Ле-Аг © Sergio Grazia
Культурный центр Ле-Аг © Sergio Grazia
Культурный центр Ле-Аг © Sergio Grazia
Культурный центр Ле-Аг © Sergio Grazia
Культурный центр Ле-Аг © Sergio Grazia
Культурный центр Ле-Аг © Sergio Grazia
Культурный центр Ле-Аг © Périphériques / Marin+Trottin Architectes
Культурный центр Ле-Аг © Périphériques / Marin+Trottin Architectes
Культурный центр Ле-Аг © Périphériques / Marin+Trottin Architectes
Культурный центр Ле-Аг © Périphériques / Marin+Trottin Architectes
Культурный центр Ле-Аг © Périphériques / Marin+Trottin Architectes
Культурный центр Ле-Аг © Périphériques / Marin+Trottin Architectes
Культурный центр Ле-Аг © Périphériques / Marin+Trottin Architectes
Культурный центр Ле-Аг © Périphériques / Marin+Trottin Architectes
Культурный центр Ле-Аг © Périphériques / Marin+Trottin Architectes
Культурный центр Ле-Аг © Périphériques / Marin+Trottin Architectes
Культурный центр Ле-Аг © Périphériques / Marin+Trottin Architectes
Культурный центр Ле-Аг © Périphériques / Marin+Trottin Architectes
Культурный центр Ле-Аг © Périphériques / Marin+Trottin Architectes
Культурный центр Ле-Аг © Périphériques / Marin+Trottin Architectes
Культурный центр Ле-Аг © Périphériques / Marin+Trottin Architectes
Культурный центр Ле-Аг © Périphériques / Marin+Trottin Architectes
Культурный центр Ле-Аг © Périphériques / Marin+Trottin Architectes
Культурный центр Ле-Аг © Périphériques / Marin+Trottin Architectes
Культурный центр Ле-Аг © Périphériques / Marin+Trottin Architectes
Культурный центр Ле-Аг © Périphériques / Marin+Trottin Architectes
Культурный центр Ле-Аг © Périphériques / Marin+Trottin Architectes
Культурный центр Ле-Аг © Périphériques / Marin+Trottin Architectes
Культурный центр Ле-Аг © Périphériques / Marin+Trottin Architectes
Культурный центр Ле-Аг © Périphériques / Marin+Trottin Architectes
Культурный центр Ле-Аг © Périphériques / Marin+Trottin Architectes
Культурный центр Ле-Аг © Périphériques / Marin+Trottin Architectes
Культурный центр Ле-Аг © Périphériques / Marin+Trottin Architectes
Культурный центр Ле-Аг © Périphériques / Marin+Trottin Architectes
Культурный центр Ле-Аг © Périphériques / Marin+Trottin Architectes
Культурный центр Ле-Аг © Périphériques / Marin+Trottin Architectes
Культурный центр Ле-Аг © Périphériques / Marin+Trottin Architectes
Культурный центр Ле-Аг © Périphériques / Marin+Trottin Architectes
Культурный центр Ле-Аг © Périphériques / Marin+Trottin Architectes
Культурный центр Ле-Аг © Périphériques / Marin+Trottin Architectes