Размещено на портале Архи.ру (www.archi.ru)

04.04.2016

Реконструкция как путь к нулевому энергобалансу

Объект:
Здание Solarcompany
Адрес:
Бельгия, Хёсден-Золдер.
Мастерская:
EQUITONE
WV architecten
Авторский коллектив:
WV architecten

Офис бельгийской Solarcompany превратился из обычного здания в «пассивное». А его минималистичный образ многим обязан фиброцементным панелям Equitone.

Штаб-квартира Solarcompany в городе Хёсден-Золдер © WV architecten
Штаб-квартира Solarcompany в городе Хёсден-Золдер © WV architecten

Как правило, с использованием энергоэффективного подхода строятся новые дома, но бельгийская компания Solarcompany решила привести в “пассивное” состояние свой старый офис, располагавшийся в небольшом здании, на промышленной окраине городка Хёсден-Золдер в восточной Бельгии. В 2008–2009 годах его реконструкцией занимался Берт Шеллекенс из бельгийского бюро WV architecten и инженерная компания ESIA bvba.


Новые стены здания архитекторы решили сделать по сэндвичному типу, используя бетонный каркас старого строения и дополнив его по периметрам деревянными обрешетками. С внешней стороны отделка фасада выполнена из недорогих, но экологичных фиброцементных панелей Equitone (tectiva, Eter-Color E20 Gris), а внутренний слой сэндвича заполнен эко-ватой из переработанной целлюлозы, включая старые газеты. Поверхность панелей Equitone цвета Eter-Color E20 Gris похожа на бетон, добавляя зданию строгости и цельности. Однако сами панели легкие, к деревянному каркасу крепятся внешними болтами: их легко заменять или снимать, чтобы получить доступ к расположенной под ними электропроводке. И, главное, такая конструкция стены облегчает доступ воздуха внутрь сэндвича, способствуя оптимальному режиму влажности внутри слоя утеплителя, и как следствие, обеспечивает сохранность самого утеплителя и поддержание высоких теплотехнических характеристик.
 
В итоге конструкция стен удерживает тепло настолько хорошо, что наибольшей заботой проектировщиков стало охлаждение здания, которое пришлось продумать, в числе прочего, с расчётом на теплоотдачу офисных мониторов, компьютеров и серверов, что создает достаточно большую тепловую нагрузку по сравнению с жилым домом – именно в этом состоит сложность при работе над энергоэффективным офисным зданием. Здесь в нижнем этаже расположены склады, а в двух верхних – офисы и квартира сторожа. Не желая тратить энергию на кондиционирование, Шеллекенс отдал предпочтение ночному охлаждению: геотермальная система перераспределяет и сохраняет накопленное за день тепло. Для обогрева и охлаждения служат тепловой насос, качающий «серую» техническую воду и семь скважин глубиной 150 м каждая. Кроме того, внутреннее пространство проветривается по ночам через атриум.
Штаб-квартира Solarcompany в городе Хёсден-Золдер © WV architecten
Штаб-квартира Solarcompany в городе Хёсден-Золдер © WV architecten

За выработку электричества отвечают солнечные панели на южной стене и крыше; на крыше также расположен солнечный коллектор и резервуар для технической воды. Все способы получения и сохранения тепла и энергии подчинены централизованной электронной системе управления, контролирующей окна, освещение, обогрев и работу насосов.
Штаб-квартира Solarcompany в городе Хёсден-Золдер © WV architecten
Штаб-квартира Solarcompany в городе Хёсден-Золдер © WV architecten
Штаб-квартира Solarcompany в городе Хёсден-Золдер © WV architecten
Штаб-квартира Solarcompany в городе Хёсден-Золдер © WV architecten

С архитектурной же точки зрения здание штаб-квартиры прежде всего откликается на промышленную историю региона, который до сравнительно недавних пор был угледобывающим. Слегка рельефная, разнотоновая фактура панелей Equitone [tectiva] удачно вписалась в строгую стилистику лаконичного модернизма с его ленточными окнами и строгими брутальными объёмами, едва оживлённую плоскостью стеклянного витража с утопленной в нём деревянной рамкой входа. Солнечные панели на сером фоне также смотрятся вполне органично и даже декоративно. Образ неброской, но современной и экологичной постройки завершают деревянные оконные рамы и полы.

Нулевой баланс стал новинкой не только для своего, достаточно провинциального, региона: штаб-квартира Solarcompany считается первым в Бельгии офисным зданием с нулевым балансом. Что вполне символично для компании, которая занимается прогрессивной солнечной энергетикой. В 2010 офис на Магазейнстрат был отмечен в Брюсселе премией как лучшее эко-здание.
Штаб-квартира Solarcompany в городе Хёсден-Золдер © WV architecten
Штаб-квартира Solarcompany в городе Хёсден-Золдер © WV architecten
Штаб-квартира Solarcompany в городе Хёсден-Золдер © WV architecten
Штаб-квартира Solarcompany в городе Хёсден-Золдер © WV architecten
Штаб-квартира Solarcompany в городе Хёсден-Золдер © WV architecten
Штаб-квартира Solarcompany в городе Хёсден-Золдер © WV architecten
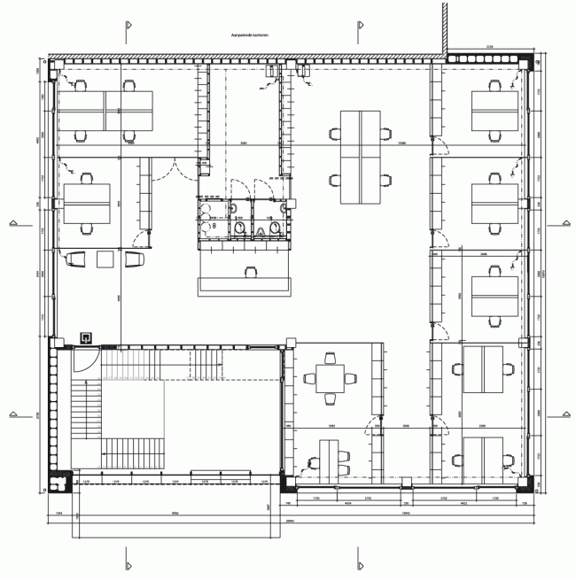
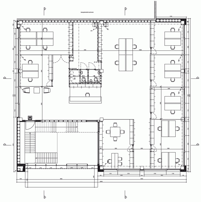
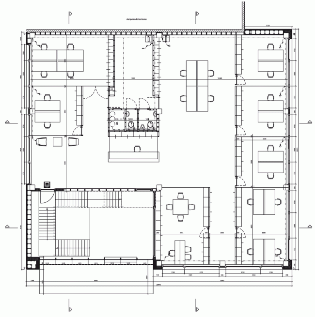
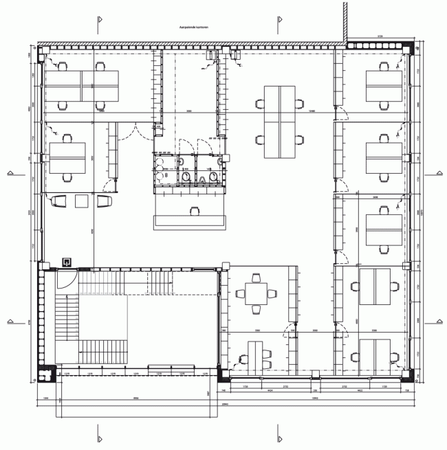
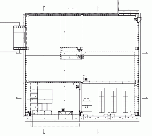
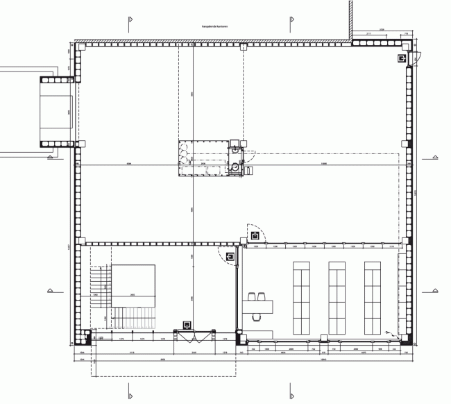
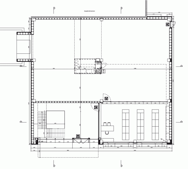
План первого, складского, этажа. Штаб-квартира Solarcompany в городе Хёсден-Золдер © WV architecten
План первого, складского, этажа. Штаб-квартира Solarcompany в городе Хёсден-Золдер © WV architecten
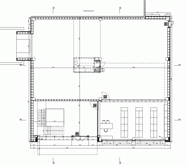
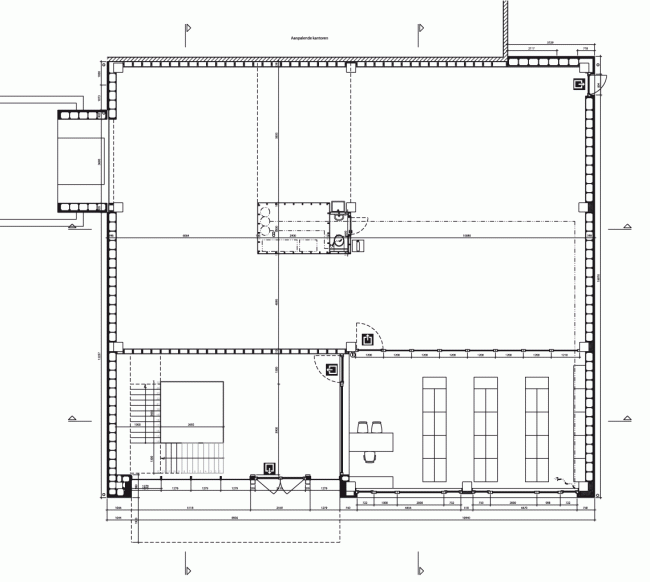
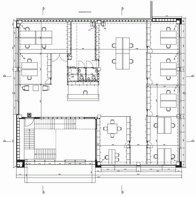
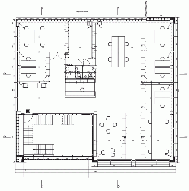
План второго этааж. Штаб-квартира Solarcompany в городе Хёсден-Золдер © WV architecten
План второго этааж. Штаб-квартира Solarcompany в городе Хёсден-Золдер © WV architecten
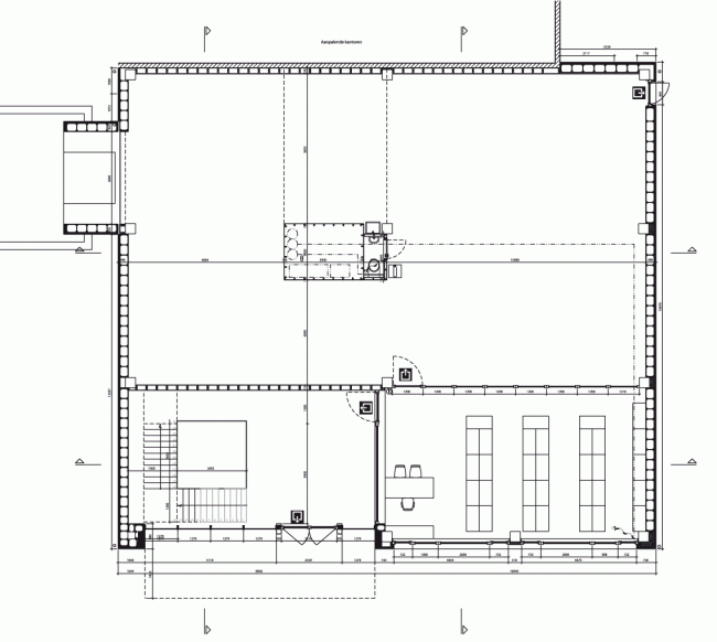
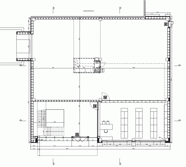
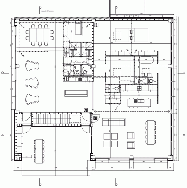
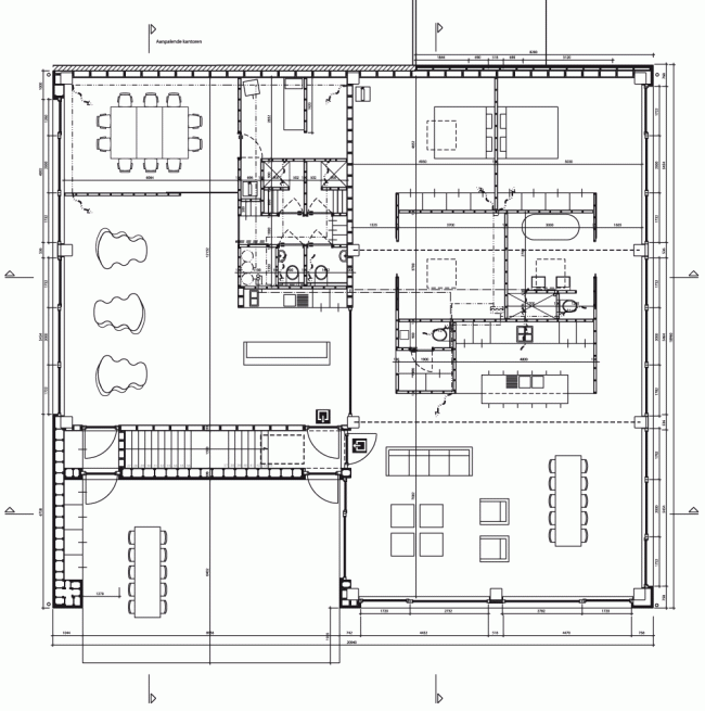
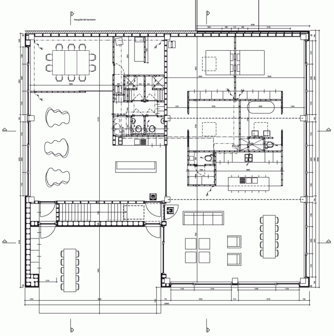
План третьего этажа. Штаб-квартира Solarcompany в городе Хёсден-Золдер © WV architecten
План третьего этажа. Штаб-квартира Solarcompany в городе Хёсден-Золдер © WV architecten