Размещено на портале Архи.ру (www.archi.ru)

01.04.2016

Светлый путь

Анна Старостина
Объект:
Центральный вокзал Гааги
Адрес:
Нидерланды, None, Гаага.
Мастерская:
Benthem Crouwel
Авторский коллектив:
Jan Benthem, Mels Crouwel, Pieter van Rooij, Anja Blechen, Jurriaan de Bruijn, Frank Deltrap, Aafke van Dijk, Amir Farokhian, Pia Hanhijärvi, Jeroen Jonk, Volker Krenz, Ronno Stegeman, Daniel van der Voort, Guido Wassenaar, Marcel Wassenaar, Jos Wesselman

Бюро Benthem Crouwel завершило работу над Центральным вокзалом Гааги.

Центральный вокзал Гааги © Jannes Linders
Центральный вокзал Гааги © Jannes Linders

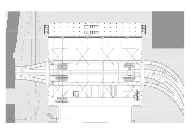
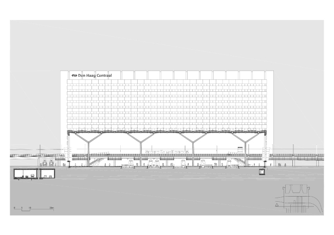
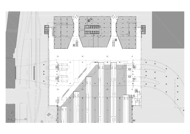
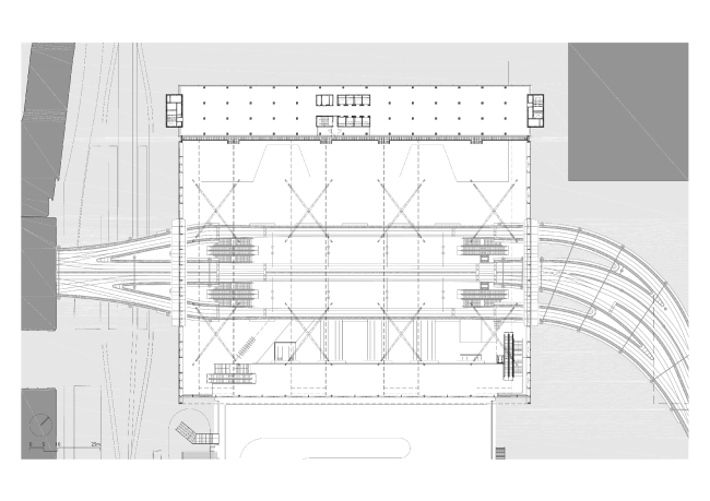
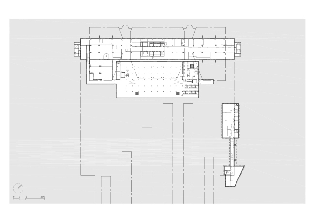
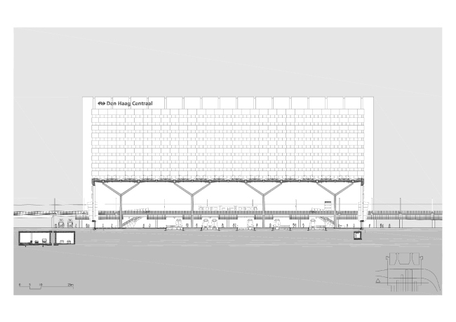
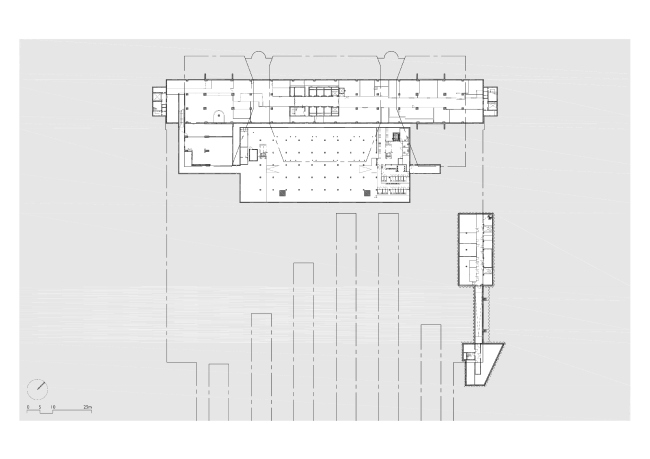
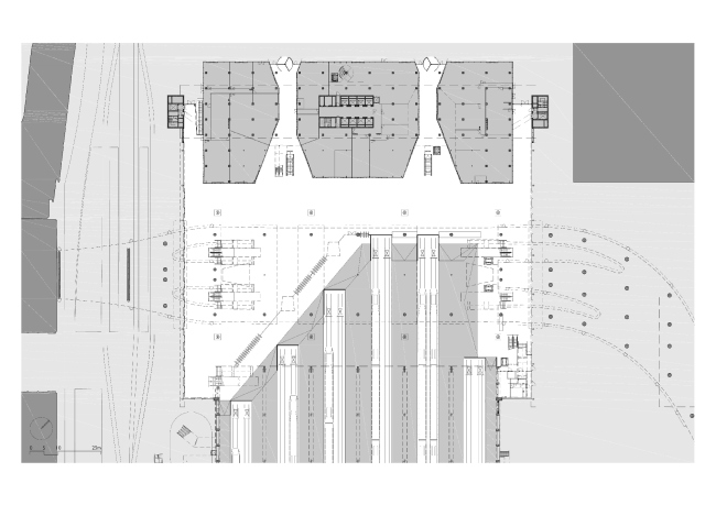
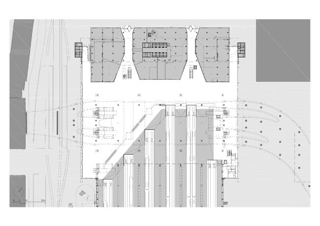
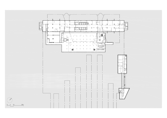
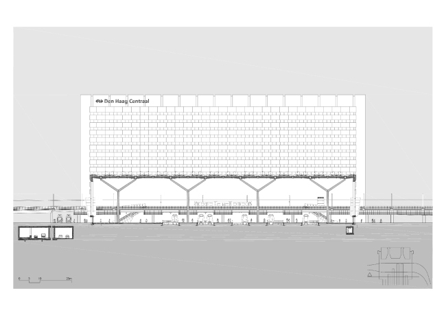
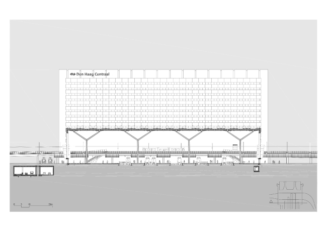
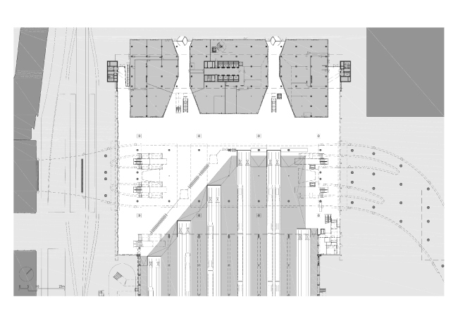
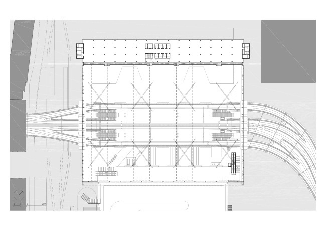
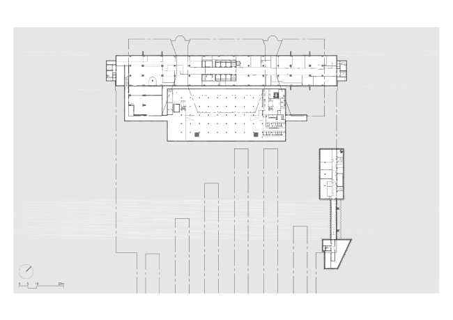
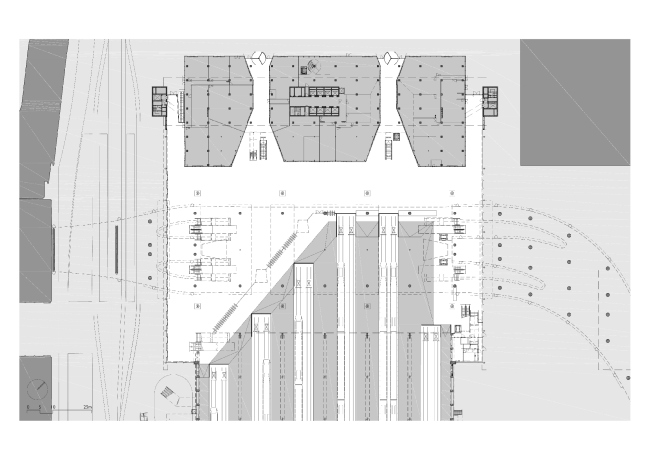
В рамках масштабной реконструкции наиболее загруженных вокзалов страны бетонное здание Центрального вокзала Гааги, построенное в 70-х, было снесено и заменено полностью прозрачной стеклянной коробкой. Простая и жесткая форма имеет основание, существенно превышающее по площади футбольное поле: 120 м х 96 м. Высота постройки составляет 22 м, а общая площадь – 20 000 кв.м, что позволило объединить в удобный транспортный узел городские трамваи (поднятые на специальную поперечную эстакаду), легкорельсовые междугородние линии сети Randstadrail, национальные и европейские скоростные поезда (в нижней части), а так же расположенный по соседству автовокзал. Не обошлось, конечно, без небольших магазинчиков и комфортных зон ожидания.
Центральный вокзал Гааги © Jannes Linders
Центральный вокзал Гааги © Jannes Linders

Вокзал имеет сразу четыре выхода, что позволило связать с его помощью центр города и современный финансовый район Беатриксквартир. Получившаяся таким образом городская площадь – именно так трактуют свой проект архитекторы – оказывается накрыта стеклянной крышей, поддерживаемой восемью стройными колоннами.
Центральный вокзал Гааги © Jannes Linders
Центральный вокзал Гааги © Jannes Linders

Все пространство крыши расчерчено конструкциями на ровные ромбы с повторяющими форму пластинами в центре каждой ячейки. Они – важный декоративный и технический элемент, так как создают немного театральную светотеневую игру во внутреннем пространстве, защищают от лишнего солнца и перегрева, улучшают акустические характеристики терминала. Наконец, пластины автоматически открываются, так как задействованы в работе систем вентиляции и дымоудаления.
Центральный вокзал Гааги © Jannes Linders
Центральный вокзал Гааги © Jannes Linders

Получилось ясное, почти единое пространство, которое легко читается с любой точки, а значит, ориентироваться в нем пассажирам должно быть несложно, даже если активная работа властей по развитию железнодорожной сети приведет в ближайшие годы к запланированному двухкратному увеличению пассажиропотока. Ведь Гаага – уже второй после Роттердама город, где бюро Benthem Crouwel полностью реконструирует вокзал. На очереди – Утрехт.
Центральный вокзал Гааги © Jannes Linders
Центральный вокзал Гааги © Jannes Linders
Центральный вокзал Гааги © Jannes Linders
Центральный вокзал Гааги © Jannes Linders
Центральный вокзал Гааги © Jannes Linders
Центральный вокзал Гааги © Jannes Linders
Центральный вокзал Гааги © Jannes Linders
Центральный вокзал Гааги © Jannes Linders
Центральный вокзал Гааги © Jannes Linders
Центральный вокзал Гааги © Jannes Linders
Центральный вокзал Гааги © Jannes Linders
Центральный вокзал Гааги © Jannes Linders
Центральный вокзал Гааги © Jannes Linders
Центральный вокзал Гааги © Jannes Linders
Центральный вокзал Гааги © Jannes Linders
Центральный вокзал Гааги © Jannes Linders
Центральный вокзал Гааги © Benthem Crouwel Architects
Центральный вокзал Гааги © Benthem Crouwel Architects
Центральный вокзал Гааги © Benthem Crouwel Architects
Центральный вокзал Гааги © Benthem Crouwel Architects
Центральный вокзал Гааги © Benthem Crouwel Architects
Центральный вокзал Гааги © Benthem Crouwel Architects
Центральный вокзал Гааги © Benthem Crouwel Architects
Центральный вокзал Гааги © Benthem Crouwel Architects
Центральный вокзал Гааги © Benthem Crouwel Architects
Центральный вокзал Гааги © Benthem Crouwel Architects
Центральный вокзал Гааги © Benthem Crouwel Architects
Центральный вокзал Гааги © Benthem Crouwel Architects
Центральный вокзал Гааги © Benthem Crouwel Architects
Центральный вокзал Гааги © Benthem Crouwel Architects
Центральный вокзал Гааги © Benthem Crouwel Architects
Центральный вокзал Гааги © Benthem Crouwel Architects
Центральный вокзал Гааги © Benthem Crouwel Architects
Центральный вокзал Гааги © Benthem Crouwel Architects
Центральный вокзал Гааги © Benthem Crouwel Architects
Центральный вокзал Гааги © Benthem Crouwel Architects
Центральный вокзал Гааги © Benthem Crouwel Architects
Центральный вокзал Гааги © Benthem Crouwel Architects