Размещено на портале Архи.ру (www.archi.ru)

31.03.2016

Дом поколений

Екатерина Ровнова
Объект:
Future Sølund – жилой комплекс для пожилых людей и молодежи
Адрес:
Дания, None, Копенгаген.
Мастерская:
C. F. Møller

В Копенгагене построят комплекс уникальной типологии Future Sølund, где соединятся дом престарелых, жилье для молодежи и городские общественные пространства.

Future Sølund – жилой комплекс для пожилых людей и молодежи. Изображение: C.F. Møller Architects и Tredje Natur
Future Sølund – жилой комплекс для пожилых людей и молодежи. Изображение: C.F. Møller Architects и Tredje Natur

Архитекторы C.F. Møller и Tredje Natur выиграли конкурс на создание Future Sølund – жилого комплекса с основной функцией дома для пожилых людей, требующих ежедневного ухода. На месте существующего центра социального обслуживания Sølund должно появиться интегрированное в городскую ткань пространство, преодолевающее традиционную изоляцию стариков и предоставляющее разным поколениям возможность общаться друг с другом, получая от этого удовольствие.
 
Future Sølund – жилой комплекс для пожилых людей и молодежи. Изображение: C.F. Møller Architects и Tredje Natur
Future Sølund – жилой комплекс для пожилых людей и молодежи. Изображение: C.F. Møller Architects и Tredje Natur

На берегу живописного озера Сортедам в здании общей площадью 37 895 м2 разместится 360 квартир для требующих особого ухода жильцов старшего возраста, 20 квартир для пожилых, 150 – для молодежи (20 из которых предназначены для молодых людей с расстройствами аутического спектра) и множество общественных пространств, от полуприватных до публичных. По замыслу авторов проекта, такая смесь функций и типологий даст импульс для развития всего городского округа Нёрребро, создав оживленное место для взаимодействия пожилых и молодых, жильцов, гостей и обслуживающего персонала.
 
Future Sølund – жилой комплекс для пожилых людей и молодежи. Изображение: C.F. Møller Architects и Tredje Natur
Future Sølund – жилой комплекс для пожилых людей и молодежи. Изображение: C.F. Møller Architects и Tredje Natur

Центральный внутренний двор комплекса – «Площадь поколений» – главное пространство для встреч и общения жителей друг с другом и гостями. Площадь «окольцована» внутренней «улицей» – остекленной галереей, на которой, как и положено настоящей городской улице, располагаются общественные «здания»: парикмахерские, кафе, ателье, гостиные, игровые комнаты, оранжереи, лекционные залы. Эта галерея не только связывает пространства первого этажа, но и соединяет набережную с улицей Рюэсгаде: так внутреннее объединяется с внешним.
 
Future Sølund – жилой комплекс для пожилых людей и молодежи. Изображение: C.F. Møller Architects и Tredje Natur
Future Sølund – жилой комплекс для пожилых людей и молодежи. Изображение: C.F. Møller Architects и Tredje Natur

Расположенные на первом этаже квартиры, мастерские и реабилитационные комнаты, требующие более спокойной атмосферы, обращены к «Роще» – лесопарковой зоне для прогулок – и к «Кухонному дворику» с кафе, беседками и обеденными столиками. В самой солнечной и тихой юго-восточной части здания находится основной блок помещений, связанный с уходом за престарелыми. У всех квартир первого этажа есть собственные открытые террасы; если квартиры выходят к озеру и парковой зоне, террасы дополнены палисадниками с калиткой. Несколько поодаль от основного здания стоит «молодежный» корпус: он отгораживает остальной комплекс от проезжей части и создает еще один проулок, по которому можно, сократив путь, попасть в парковую зону вдоль улицы.
 
Future Sølund – жилой комплекс для пожилых людей и молодежи. Изображение: C.F. Møller Architects и Tredje Natur
Future Sølund – жилой комплекс для пожилых людей и молодежи. Изображение: C.F. Møller Architects и Tredje Natur

На крыше с видом на озеро устроены зона отдыха и открытая терраса под перголами, чей дугообразный профиль образован кирпичными арками фасада; немного в глубине разбит огород. Изрезанная линия плана и прямоугольный участок под застройку позволяют создать несколько садов с разным ландшафтом и небольшими водоемами, подпитывающимися собираемой в коллекторах дождевой водой. Эти зеленые пространства также открыты для всех и должны стать частью копенгагенского каркаса из общественных зон. Кирпичные фасады здания перекликаются с окружающей озеро застройкой.
 
Future Sølund – жилой комплекс для пожилых людей и молодежи. Изображение: C.F. Møller Architects и Tredje Natur
Future Sølund – жилой комплекс для пожилых людей и молодежи. Изображение: C.F. Møller Architects и Tredje Natur

Планировка жилых этажей – коридорного типа, но этот коридор – не коридор вовсе, а очередная «городская улица», где есть кафе, зимние сады и библиотеки, а у всех выходящих на нее «домов» разные фасады, отражающие личность жильца: вход в каждую квартиру заглублен, и образующуюся нишу обитатели могут декорировать по своему усмотрению. И, конечно, – лавочка у каждого входа. Вне зависимости от степени свободы передвижения – ограничивается ли она территорией двора или несколькими десятками шагов в день – каждый житель может пообедать в столовой, послушать музыку в общей гостиной, побыть в зимнем саду или подышать свежим воздухом на балконе, даже если у него нет сил, чтобы спуститься на первый этаж: не далее 12–15 метров от каждой двери есть какое-то из этих помещений. Таким образом, никто не лишается общества: даже если он вообще не может встать, вокруг всегда будет происходить что-то увлекательное, что поддержит его интерес к жизни.
 
Future Sølund – жилой комплекс для пожилых людей и молодежи. Изображение: C.F. Møller Architects и Tredje Natur
Future Sølund – жилой комплекс для пожилых людей и молодежи. Изображение: C.F. Møller Architects и Tredje Natur

Проект Sølund переносит свойства городского пространства на внутреннюю планировку, следуя законам формирования хорошей городской улицы, что максимально увеличивает возможный объем взаимодействия между жителями. Эта попытка предотвратить изоляцию человека на территории, ограниченной входной дверью его квартиры – самое важное для здания такой сложной программы.
Future Sølund – жилой комплекс для пожилых людей и молодежи. Изображение: C.F. Møller Architects и Tredje Natur
Future Sølund – жилой комплекс для пожилых людей и молодежи. Изображение: C.F. Møller Architects и Tredje Natur
Future Sølund – жилой комплекс для пожилых людей и молодежи. Изображение: C.F. Møller Architects и Tredje Natur
Future Sølund – жилой комплекс для пожилых людей и молодежи. Изображение: C.F. Møller Architects и Tredje Natur
Future Sølund – жилой комплекс для пожилых людей и молодежи. Изображение: C.F. Møller Architects и Tredje Natur
Future Sølund – жилой комплекс для пожилых людей и молодежи. Изображение: C.F. Møller Architects и Tredje Natur
Future Sølund – жилой комплекс для пожилых людей и молодежи. Изображение: C.F. Møller Architects и Tredje Natur
Future Sølund – жилой комплекс для пожилых людей и молодежи. Изображение: C.F. Møller Architects и Tredje Natur
Future Sølund – жилой комплекс для пожилых людей и молодежи. Изображение: C.F. Møller Architects и Tredje Natur
Future Sølund – жилой комплекс для пожилых людей и молодежи. Изображение: C.F. Møller Architects и Tredje Natur
Future Sølund – жилой комплекс для пожилых людей и молодежи. Изображение: C.F. Møller Architects и Tredje Natur
Future Sølund – жилой комплекс для пожилых людей и молодежи. Изображение: C.F. Møller Architects и Tredje Natur
Future Sølund – жилой комплекс для пожилых людей и молодежи. Изображение: C.F. Møller Architects и Tredje Natur
Future Sølund – жилой комплекс для пожилых людей и молодежи. Изображение: C.F. Møller Architects и Tredje Natur
Future Sølund – жилой комплекс для пожилых людей и молодежи. Изображение: C.F. Møller Architects и Tredje Natur
Future Sølund – жилой комплекс для пожилых людей и молодежи. Изображение: C.F. Møller Architects и Tredje Natur
Future Sølund – жилой комплекс для пожилых людей и молодежи. Изображение: C.F. Møller Architects и Tredje Natur
Future Sølund – жилой комплекс для пожилых людей и молодежи. Изображение: C.F. Møller Architects и Tredje Natur
Future Sølund – жилой комплекс для пожилых людей и молодежи. Изображение: C.F. Møller Architects и Tredje Natur
Future Sølund – жилой комплекс для пожилых людей и молодежи. Изображение: C.F. Møller Architects и Tredje Natur
Future Sølund – жилой комплекс для пожилых людей и молодежи. Изображение: C.F. Møller Architects и Tredje Natur
Future Sølund – жилой комплекс для пожилых людей и молодежи. Изображение: C.F. Møller Architects и Tredje Natur
Future Sølund – жилой комплекс для пожилых людей и молодежи. Изображение: C.F. Møller Architects и Tredje Natur
Future Sølund – жилой комплекс для пожилых людей и молодежи. Изображение: C.F. Møller Architects и Tredje Natur
Future Sølund – жилой комплекс для пожилых людей и молодежи. Изображение: C.F. Møller Architects и Tredje Natur
Future Sølund – жилой комплекс для пожилых людей и молодежи. Изображение: C.F. Møller Architects и Tredje Natur
Future Sølund – жилой комплекс для пожилых людей и молодежи. Изображение: C.F. Møller Architects и Tredje Natur
Future Sølund – жилой комплекс для пожилых людей и молодежи. Изображение: C.F. Møller Architects и Tredje Natur
Future Sølund – жилой комплекс для пожилых людей и молодежи. Изображение: C.F. Møller Architects и Tredje Natur
Future Sølund – жилой комплекс для пожилых людей и молодежи. Изображение: C.F. Møller Architects и Tredje Natur
Future Sølund – жилой комплекс для пожилых людей и молодежи. Изображение: C.F. Møller Architects и Tredje Natur
Future Sølund – жилой комплекс для пожилых людей и молодежи. Изображение: C.F. Møller Architects и Tredje Natur
Future Sølund – жилой комплекс для пожилых людей и молодежи. Изображение: C.F. Møller Architects и Tredje Natur
Future Sølund – жилой комплекс для пожилых людей и молодежи. Изображение: C.F. Møller Architects и Tredje Natur
Future Sølund – жилой комплекс для пожилых людей и молодежи. Изображение: C.F. Møller Architects и Tredje Natur
Future Sølund – жилой комплекс для пожилых людей и молодежи. Изображение: C.F. Møller Architects и Tredje Natur
Future Sølund – жилой комплекс для пожилых людей и молодежи. Изображение: C.F. Møller Architects и Tredje Natur
Future Sølund – жилой комплекс для пожилых людей и молодежи. Изображение: C.F. Møller Architects и Tredje Natur
Future Sølund – жилой комплекс для пожилых людей и молодежи. Изображение: C.F. Møller Architects и Tredje Natur
Future Sølund – жилой комплекс для пожилых людей и молодежи. Изображение: C.F. Møller Architects и Tredje Natur
Future Sølund – жилой комплекс для пожилых людей и молодежи. Изображение: C.F. Møller Architects и Tredje Natur
Future Sølund – жилой комплекс для пожилых людей и молодежи. Изображение: C.F. Møller Architects и Tredje Natur
Future Sølund – жилой комплекс для пожилых людей и молодежи. Изображение: C.F. Møller Architects и Tredje Natur
Future Sølund – жилой комплекс для пожилых людей и молодежи. Изображение: C.F. Møller Architects и Tredje Natur
Future Sølund – жилой комплекс для пожилых людей и молодежи. Изображение: C.F. Møller Architects и Tredje Natur
Future Sølund – жилой комплекс для пожилых людей и молодежи. Изображение: C.F. Møller Architects и Tredje Natur
Future Sølund – жилой комплекс для пожилых людей и молодежи. Изображение: C.F. Møller Architects и Tredje Natur
Future Sølund – жилой комплекс для пожилых людей и молодежи. Изображение: C.F. Møller Architects и Tredje Natur
Future Sølund – жилой комплекс для пожилых людей и молодежи. Изображение: C.F. Møller Architects и Tredje Natur
Future Sølund – жилой комплекс для пожилых людей и молодежи. Изображение: C.F. Møller Architects и Tredje Natur
Future Sølund – жилой комплекс для пожилых людей и молодежи. Изображение: C.F. Møller Architects и Tredje Natur
Future Sølund – жилой комплекс для пожилых людей и молодежи. Изображение: C.F. Møller Architects и Tredje Natur
Future Sølund – жилой комплекс для пожилых людей и молодежи. Изображение: C.F. Møller Architects и Tredje Natur
Future Sølund – жилой комплекс для пожилых людей и молодежи. Изображение: C.F. Møller Architects и Tredje Natur
Future Sølund – жилой комплекс для пожилых людей и молодежи. Изображение: C.F. Møller Architects и Tredje Natur
Future Sølund – жилой комплекс для пожилых людей и молодежи. Изображение: C.F. Møller Architects и Tredje Natur
Future Sølund. Существующая ситуация. Изображение: C.F. Møller Architects и Tredje Natur с сайта www.detnyesoelun.dk
Future Sølund. Существующая ситуация. Изображение: C.F. Møller Architects и Tredje Natur с сайта www.detnyesoelun.dk
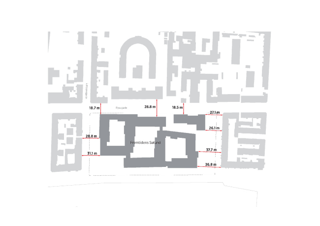
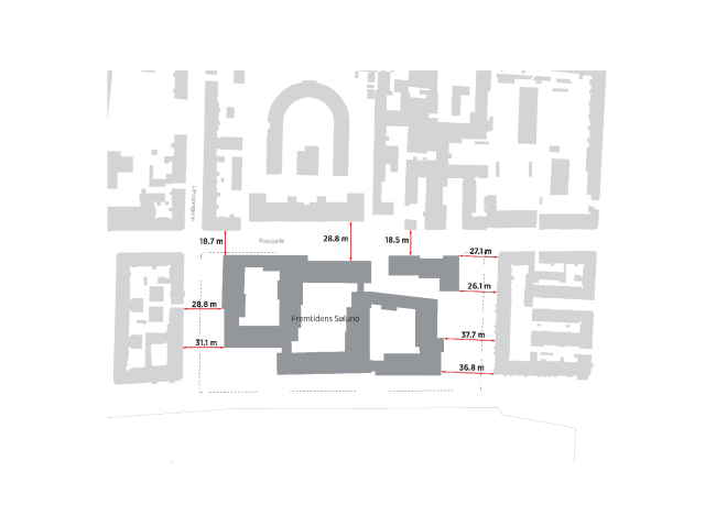
Future Sølund в окружающей застройке. Изображение: C.F. Møller Architects и Tredje Natur с сайта www.detnyesoelun.dk
Future Sølund в окружающей застройке. Изображение: C.F. Møller Architects и Tredje Natur с сайта www.detnyesoelun.dk
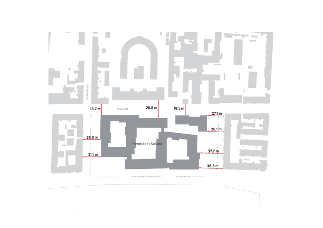
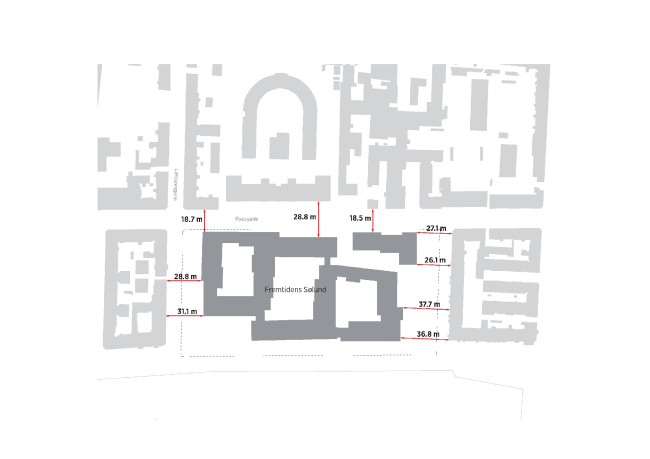
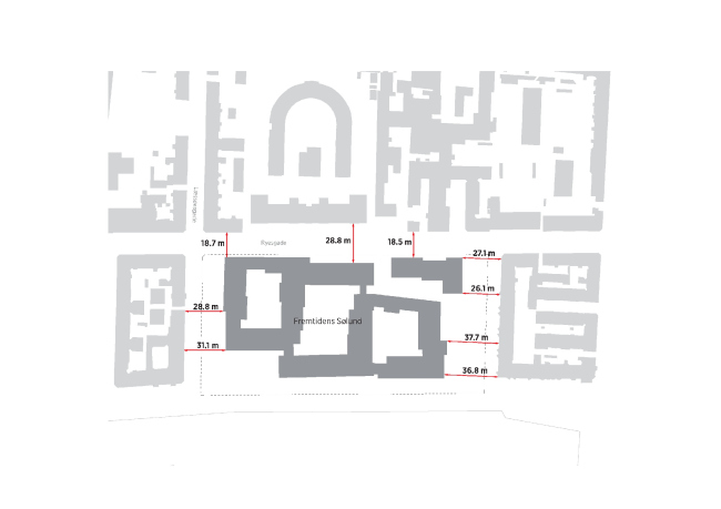
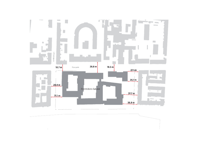
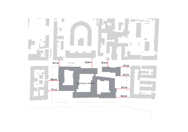
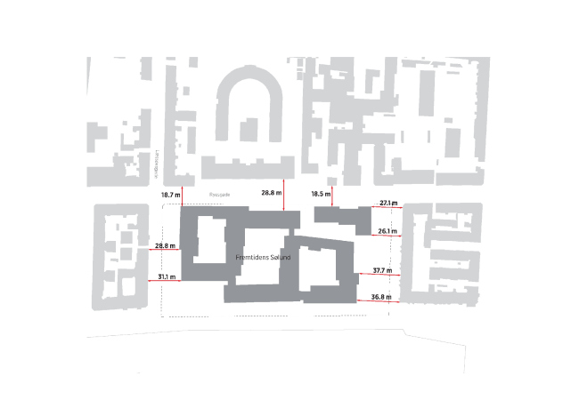
Future Sølund. Проект и сегодняшняя ситуация. Изображение: C.F. Møller Architects и Tredje Natur с сайта www.detnyesoelun.dk
Future Sølund. Проект и сегодняшняя ситуация. Изображение: C.F. Møller Architects и Tredje Natur с сайта www.detnyesoelun.dk
Future Sølund. Проект и сегодняшняя ситуация. Изображение: C.F. Møller Architects и Tredje Natur с сайта www.detnyesoelun.dk
Future Sølund. Проект и сегодняшняя ситуация. Изображение: C.F. Møller Architects и Tredje Natur с сайта www.detnyesoelun.dk
Future Sølund. Проект и сегодняшняя ситуация. Изображение: C.F. Møller Architects и Tredje Natur с сайта www.detnyesoelun.dk
Future Sølund. Проект и сегодняшняя ситуация. Изображение: C.F. Møller Architects и Tredje Natur с сайта www.detnyesoelun.dk
Future Sølund в окружающей застройке. Изображение: C.F. Møller Architects и Tredje Natur с сайта www.detnyesoelun.dk
Future Sølund в окружающей застройке. Изображение: C.F. Møller Architects и Tredje Natur с сайта www.detnyesoelun.dk
Future Sølund. Проект и сегодняшняя ситуация. Изображение: C.F. Møller Architects и Tredje Natur с сайта www.detnyesoelun.dk
Future Sølund. Проект и сегодняшняя ситуация. Изображение: C.F. Møller Architects и Tredje Natur с сайта www.detnyesoelun.dk
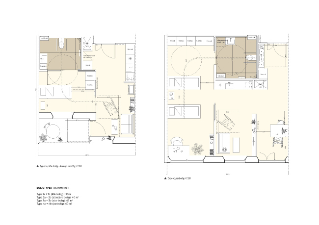
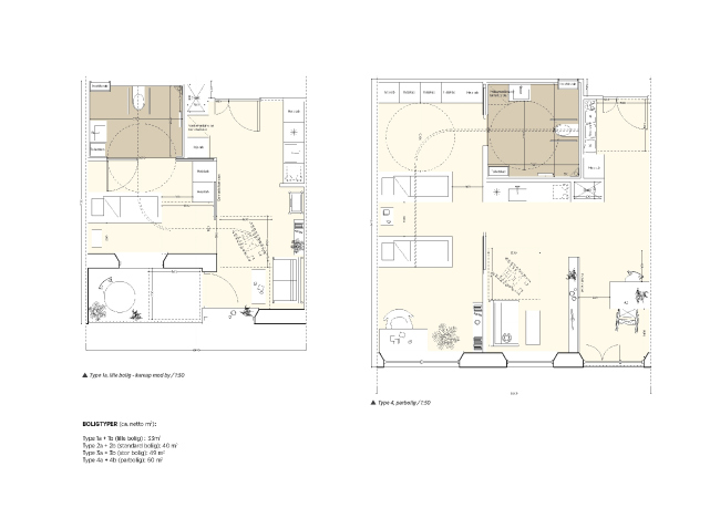
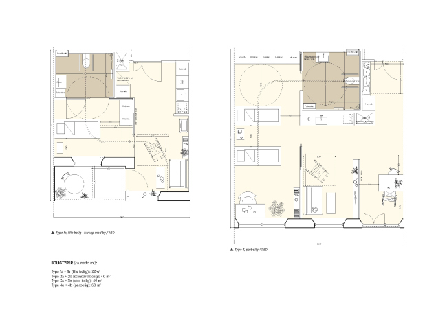
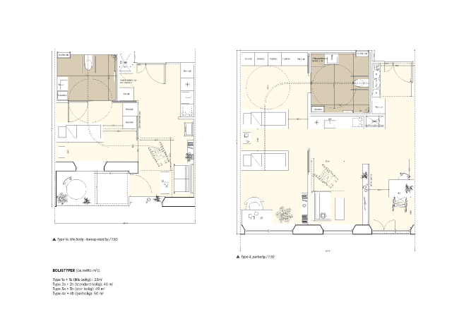
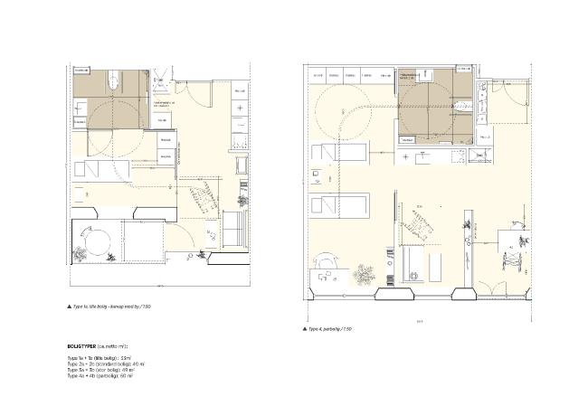
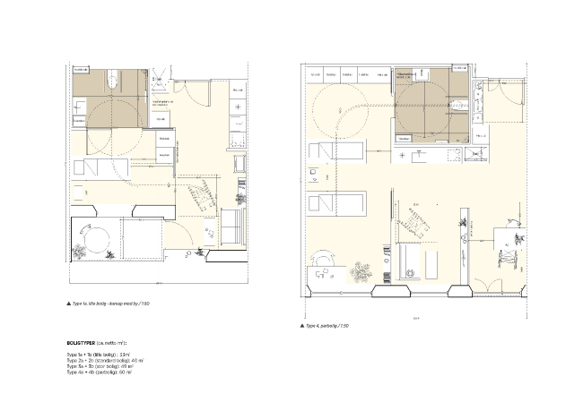
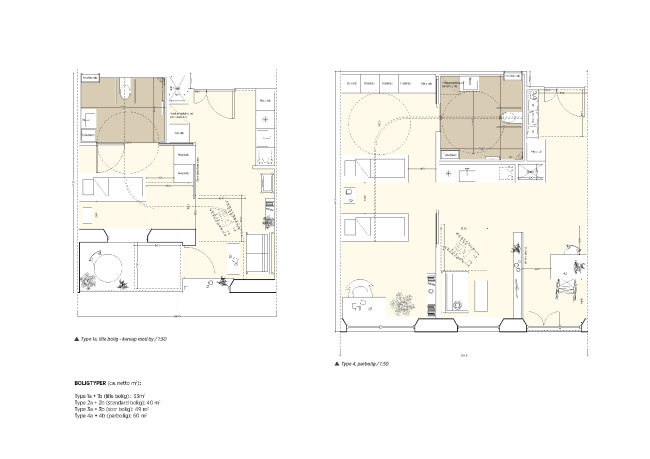
Future Sølund. План квартиры. Изображение: C.F. Møller Architects и Tredje Natur с сайта www.detnyesoelun.dk
Future Sølund. План квартиры. Изображение: C.F. Møller Architects и Tredje Natur с сайта www.detnyesoelun.dk
Future Sølund. Пешеходные маршруты. Изображение: C.F. Møller Architects и Tredje Natur с сайта www.detnyesoelun.dk
Future Sølund. Пешеходные маршруты. Изображение: C.F. Møller Architects и Tredje Natur с сайта www.detnyesoelun.dk
Future Sølund. Фасад молодежного корпуса. Изображение: C.F. Møller Architects и Tredje Natur с сайта www.detnyesoelun.dk
Future Sølund. Фасад молодежного корпуса. Изображение: C.F. Møller Architects и Tredje Natur с сайта www.detnyesoelun.dk
Future Sølund. Схема этажности. Изображение: C.F. Møller Architects и Tredje Natur с сайта www.detnyesoelun.dk
Future Sølund. Схема этажности. Изображение: C.F. Møller Architects и Tredje Natur с сайта www.detnyesoelun.dk