Размещено на портале Архи.ру (www.archi.ru)

23.03.2016

Дизайн на границе

Тигран Арутюнян
Мастерская:
Сторакет

Два общественных проекта в Нагорном Карабахе, созданные бюро «Сторакет»: образовательный центр ТУМО в Степанакерте и Центр искусств в Шуши.

«Cражение за качество жизни, которое архитектура ведет в самых отдаленных, бедных и опасных уголках планеты – на границах обжитого европейского мира».
Алехандро Аравена. Из кураторского манифеста 15-й Венецианской биеннале архитектуры.

ТУМО
Подчеркнуто контекстуальный подход, тесно связанный с историей места – одна из ключевых характеристик дизайна интерьера недавно открывшегося в Степанакерте, столице непризнанной Нагорно-Карабахской республики, филиала образовательного центра ТУМО. Центр креативных технологий ТУМО (Tumo center for creative technologies) представляет собой сеть внешкольных учебных заведений, где подросткам 12–18 лет бесплатно предоставляется доступ к образованию нового формата, высоким технологиям и т.п. (более 10 000 детей учатся бесплатно). Первый центр был построен в Ереване, затем появились его филиалы в Дилижане, Гюмри и Степанакерте. В будущем году планируется открыть очередной центр в Ванадзоре.

Проект в Степанакерте воплотил в себе смысловую и историческую многослойность. Третий по счету в списке центров ТУМО, он, на первый взгляд, не представляет собой масштабного архитектурного явления, особенно если сравнить его с центральным отделением в Ереване. Однако в контексте текущего мирового архитектурного мейнстрима проект смотрится более чем актуально.
Ереванский центр ТУМО, открывшийся в 2011 году, выделяется своим оригинальным обликом: интерьеры и ландшафтный дизайн были выполнены известным ливанским архитектором Бернаром Хури (Bernard Khoury). Фото с сайта www.bernardkhoury.com
Ереванский центр ТУМО, открывшийся в 2011 году, выделяется своим оригинальным обликом: интерьеры и ландшафтный дизайн были выполнены известным ливанским архитектором Бернаром Хури (Bernard Khoury). Фото с сайта www.bernardkhoury.com
Ереванский центр ТУМО, открывшийся в 2011 году, выделяется своим оригинальным обликом: интерьеры и ландшафтный дизайн были выполнены известным ливанским архитектором Бернаром Хури (Bernard Khoury). Фото с сайта www.bernardkhoury.com
Ереванский центр ТУМО, открывшийся в 2011 году, выделяется своим оригинальным обликом: интерьеры и ландшафтный дизайн были выполнены известным ливанским архитектором Бернаром Хури (Bernard Khoury). Фото с сайта www.bernardkhoury.com
Ереванский центр ТУМО, открывшийся в 2011 году, выделяется своим оригинальным обликом: интерьеры и ландшафтный дизайн были выполнены известным ливанским архитектором Бернаром Хури (Bernard Khoury). Фото с сайта www.bernardkhoury.com
Ереванский центр ТУМО, открывшийся в 2011 году, выделяется своим оригинальным обликом: интерьеры и ландшафтный дизайн были выполнены известным ливанским архитектором Бернаром Хури (Bernard Khoury). Фото с сайта www.bernardkhoury.com
Ереванский центр ТУМО, открывшийся в 2011 году, выделяется своим оригинальным обликом: интерьеры и ландшафтный дизайн были выполнены известным ливанским архитектором Бернаром Хури (Bernard Khoury). Фото с сайта www.bernardkhoury.com
Ереванский центр ТУМО, открывшийся в 2011 году, выделяется своим оригинальным обликом: интерьеры и ландшафтный дизайн были выполнены известным ливанским архитектором Бернаром Хури (Bernard Khoury). Фото с сайта www.bernardkhoury.com

Изначально для степанакертского центра ТУМО предполагалось построить отдельное здание, но по финансовым причинам от этой идеи пришлось отказаться, и учреждение разместили в двухэтажном здании XIX века на центральной площади города.
Центр ТУМО в Степанакерте. Изображение предоставлено бюро «Сторакет»
Центр ТУМО в Степанакерте. Изображение предоставлено бюро «Сторакет»

Парадоксально: в советские времена оно служило для нужд КГБ, в годы карабахского военного конфликта было штабом армянских вооруженных сил, а сейчас в нем открыт современный образовательный центр! До реконструкции под центр ТУМО эта постройка была заброшена.
Центр ТУМО в Степанакерте. Изображение предоставлено бюро «Сторакет»
Центр ТУМО в Степанакерте. Изображение предоставлено бюро «Сторакет»

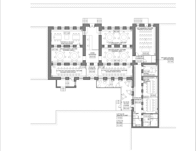
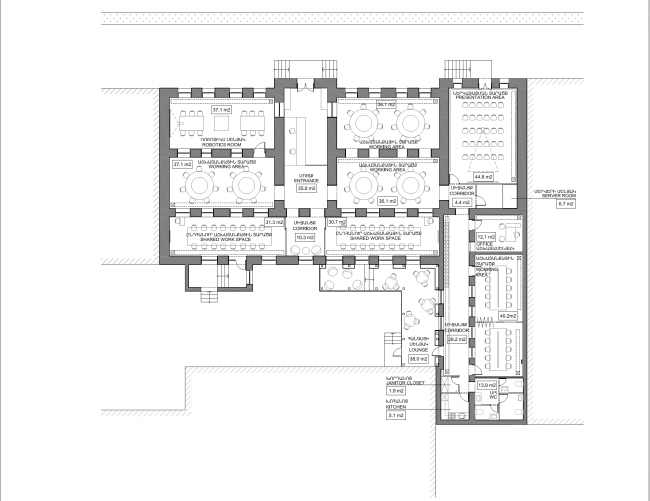
Центр расположен на первом этаже здания и состоит из 8 рабочих комнат (четыре из которых являются общими), презентационного зала, зоны отдыха и подсобных помещений. Помещения распланированы с учетом существующих несущих стен, которые и сформировали контекстуальный облик центра.
Центр ТУМО в Степанакерте. Изображение предоставлено бюро «Сторакет»
Центр ТУМО в Степанакерте. Изображение предоставлено бюро «Сторакет»

Кардинальные изменения при реконструкции произошли только в дворовой части, где была пристроена зона отдыха. У главного фасада предусмотрена велосипедная парковка, которая пока не реализована.
Центр ТУМО в Степанакерте. Изображение предоставлено бюро «Сторакет»
Центр ТУМО в Степанакерте. Изображение предоставлено бюро «Сторакет»

Несмотря на жесткие конструктивные ограничения, в центре создана свободная и связная пространственная атмосфера. Поэтому оконные и дверные проемы в интерьере, по большей части, открыты или заполнены одностворчатыми окнами и панорамными прозрачными дверями. В частности, в общих залах оконные проемы сознательно оставлены открытыми, поскольку цели разделить эти комнаты не ставилось.
Центр ТУМО в Степанакерте. Изображение предоставлено бюро «Сторакет»
Центр ТУМО в Степанакерте. Изображение предоставлено бюро «Сторакет»
Центр ТУМО в Степанакерте. Изображение предоставлено бюро «Сторакет»
Центр ТУМО в Степанакерте. Изображение предоставлено бюро «Сторакет»

По своему технологическому оснащению центр ничем не уступает ереванскому и оснащен новейшим оборудованием, а его сдержанный дизайн располагает к максимальному сосредоточению на учебном процессе.
Центр ТУМО в Степанакерте. Изображение предоставлено бюро «Сторакет»
Центр ТУМО в Степанакерте. Изображение предоставлено бюро «Сторакет»

Яркие акценты задают лишь отдельные предметы, в частности, в зоне отдыха авторы позволили себе небольшую вольность и оснастили ее оранжевыми стульями.
Центр ТУМО в Степанакерте. Изображение предоставлено бюро «Сторакет»
Центр ТУМО в Степанакерте. Изображение предоставлено бюро «Сторакет»

Одной из основных позиций в концепции интерьера стало сохранение существующей кладки несущих стен, выполненных из шушинского камня (разновидность известняка), которая максимально подчеркнута благодаря минималистскому дизайну. По инициативе авторов проекта стены были очищены и отреставрированы. Эти работы оказались более дорогостоящими, нежели банальное покрытие штукатуркой или гипсокартоном. Отчасти это было рискованным ходом, поскольку, кроме финансовой составляющей, это решение выпадает из общей концепции дизайна центров ТУМО, для которой характерны аскетичный подход к оформлению интерьера с преобладанием серых оттенков и максимальный акцент на технологии. Однако именно подобная «непретенциозность» стала определяющим фактором в идеологии нового интерьера: история здания вместе с ее мрачными страницами не замаскирована, а, напротив, высвобождена, давая возможность, с одной стороны, соприкоснуться с прошлым, а с другой – ментально стремиться в будущее.
Центр ТУМО в Степанакерте. Изображение предоставлено бюро «Сторакет»
Центр ТУМО в Степанакерте. Изображение предоставлено бюро «Сторакет»

Центр искусств в Шуши
В 2013 году в городе Шуши был открыт Центр искусств, ставший первой художественной институцией, появившейся в Нагорном Карабахе после распада СССР. Художественная галерея с современным техническим оснащением, центр стал катализатором развития культурных индустрий в городе и в регионе. Тут проходят выставки и фестивали, к примеру, Shushi Art Project. В здании также размещена постоянная экспозиция музея ковров.

Учреждение находится на улице Газанчецоц, недалеко от кафедрального собора. Центр разместился в двухэтажном здании армянской духовной инспекции первой половины XIX века, которое до реконструкции находилось в полуразрушенном состоянии.
Центр искусств в Шуши. Изображение предоставлено бюро «Сторакет»
Центр искусств в Шуши. Изображение предоставлено бюро «Сторакет»

В 2007 Министерство градостроительства республики передало постройку семье московского мецената Сергея Саркисяна. В том же году под руководством архитектора Влада Саркисяна были начаты проектные работы, а бюро «Сторакет» было приглашено на конечной стадии для оформления внутренних и внешних пространств, то есть придания центру окончательного вида.
Отреставрированный кафедральный собор Сурб-Аменапркич-Газанчецоц в Шуши XIX века стал символом возрождения не только Шуши, но и Карабаха в целом. Фото: Ondřej Žváček via Wikimedia Commons. Лицензия Creative Commons Attribution-Share Alike 3.0 Unported
Отреставрированный кафедральный собор Сурб-Аменапркич-Газанчецоц в Шуши XIX века стал символом возрождения не только Шуши, но и Карабаха в целом. Фото: Ondřej Žváček via Wikimedia Commons. Лицензия Creative Commons Attribution-Share Alike 3.0 Unported

Проект реконструкции подразумевал восстановление передней части здания и постройку задней половины заново, причем новая часть по первоначальному замыслу должна была быть выдержана в стиле исторической половины. Однако, кроме интерьера и благоустройства, изменения коснулись и фасада, в связи с чем новая пристройка теперь напоминает осовремененное традиционное здание, которое воспринимается независимо от исторического.
Центр искусств в Шуши. Изображение предоставлено бюро «Сторакет»
Центр искусств в Шуши. Изображение предоставлено бюро «Сторакет»
Центр искусств в Шуши. Изображение предоставлено бюро «Сторакет»
Центр искусств в Шуши. Изображение предоставлено бюро «Сторакет»
Центр искусств в Шуши. Изображение предоставлено бюро «Сторакет»
Центр искусств в Шуши. Изображение предоставлено бюро «Сторакет»

Здание имеет два этажа с цоколем. Вход расположен асимметрично, с правой стороны исторического здания по уличному фасаду.
Центр искусств в Шуши. Изображение предоставлено бюро «Сторакет»
Центр искусств в Шуши. Изображение предоставлено бюро «Сторакет»

На противоположной стороне от входа, вдоль бокового фасада помещена лестница на второй этаж. Первые два этажа предназначены для выставок, так что их интерьеры решены максимально функционально и сдержанно, а планировка дает возможность для организации любых типов экспозиции.
Центр искусств в Шуши. Изображение предоставлено бюро «Сторакет»
Центр искусств в Шуши. Изображение предоставлено бюро «Сторакет»
Центр искусств в Шуши. Изображение предоставлено бюро «Сторакет»
Центр искусств в Шуши. Изображение предоставлено бюро «Сторакет»
Центр искусств в Шуши. Изображение предоставлено бюро «Сторакет»
Центр искусств в Шуши. Изображение предоставлено бюро «Сторакет»

В задней части первых двух этажей расположены административные и служебные помещения.
Центр искусств в Шуши. Изображение предоставлено бюро «Сторакет»
Центр искусств в Шуши. Изображение предоставлено бюро «Сторакет»



Планировка цокольного этажа более гибкая, т.к., кроме выставок, там предполагается устраивать и другие мероприятия.

Безусловно, трудно однозначно определить влияние Центра искусств на архитектурные тенденции в Нагорном Карабахе, но очевиден факт, что после него в республике начали появляться другие постройки с подобным архитектурным решением. В частности, арт-институт Нарекаци в Шуши, открывшийся почти одновременно с Центром искусств, подобно ему, размещен в старом, бывшем до того полуразрушенным здании, а гостиница «Парк-отель» в Степанакерте – в бывшей больнице.
 
***

Непризнанная республика, на границах которой до сих пор слышны выстрелы, находится в состоянии хрупкого перемирия и пока мало что может сказать современной мировой архитектуре. За 20 лет, прошедших после завершения военных действий, средства направлялись в первую очередь на восстановление и развитие инфраструктуры, и лишь постепенно стали воплощаться проекты административного, жилого и туристического типа. Особую роль в архитектурной хронике, конечно же, сыграли культовые проекты (реставрация и реконструкция существующих церквей и монастырей, а также новые храмы), которые несли в себе сильное символическое значение.
Реконструированный в конце 1990-х годов ныне действующий монастырь Гандзасар XIII века. Фото: Карен Хуршудян
Реконструированный в конце 1990-х годов ныне действующий монастырь Гандзасар XIII века. Фото: Карен Хуршудян
Знакомый российскому читателю уникальный храм: церковь, построенная по своему проекту и на свои же средства известным петербургским архитектором Максимом Атаянцем в его родовом селе. Фото: Максим Атаянц
Знакомый российскому читателю уникальный храм: церковь, построенная по своему проекту и на свои же средства известным петербургским архитектором Максимом Атаянцем в его родовом селе. Фото: Максим Атаянц
Недавно построенный аэропорт в Степанакерте, который, впрочем, пока не стал воздушными воротами Карабаха: из-за военного положения полеты там пока невозможны. Фото: Карен Хуршудян
Недавно построенный аэропорт в Степанакерте, который, впрочем, пока не стал воздушными воротами Карабаха: из-за военного положения полеты там пока невозможны. Фото: Карен Хуршудян

Несмотря на отсутствие всякого резонанса в архитектурном сообществе, очевидно, что проекты Центра искусств и Центра ТУМО – это те редкие случаи, когда современный подход к реконструкции и дизайну интерьера становится не только инструментом решения реальных задач, но и вкладом в развитие общества.