Размещено на портале Архи.ру (www.archi.ru)

23.03.2016

«Облачная» архитектура в центре Парижа

Нина Фролова
Объект:
Офисный комплекс #CLOUD.PARIS
Адрес:
Франция, None, Париж.

Деловой центр #CLOUD.PARIS по проекту бюро Филиппа Кьямбаретты признан лучшим офисным зданием на каннской выставке MIPIM-2016.

Офисный комплекс #CLOUD.PARIS © Clément Guillaume
Офисный комплекс #CLOUD.PARIS © Clément Guillaume

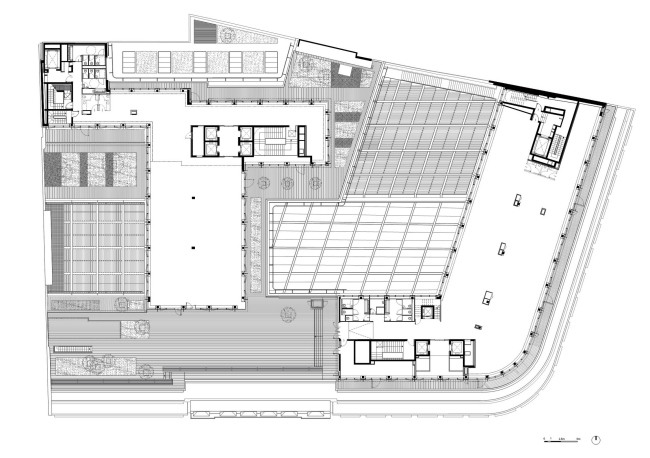
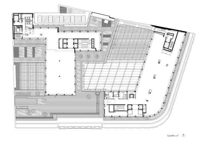
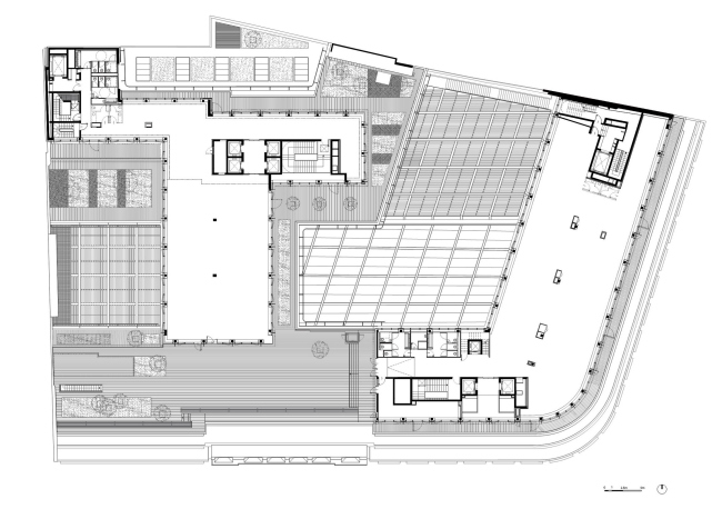
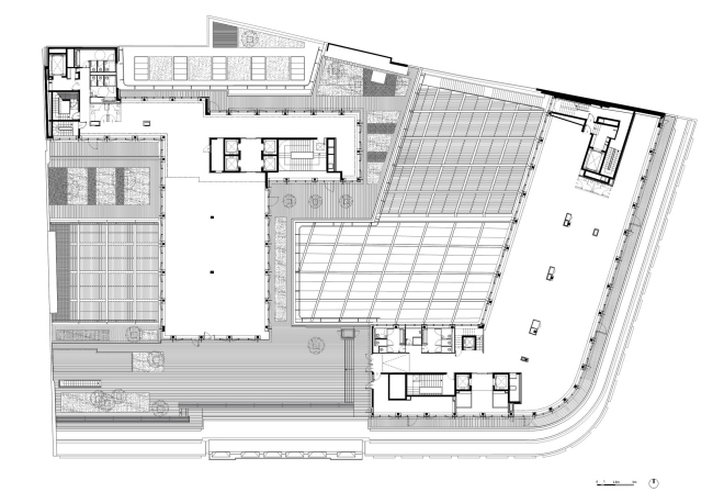
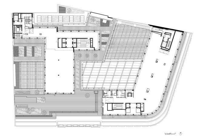
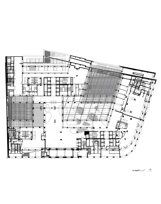
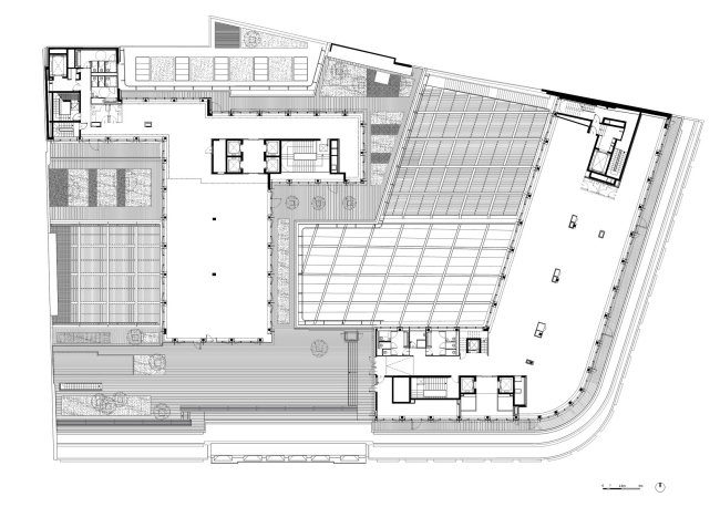
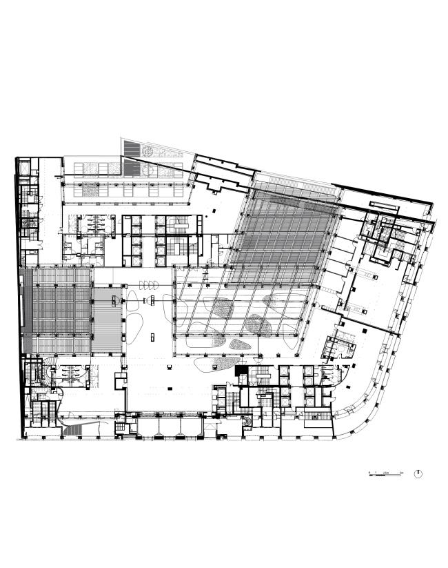
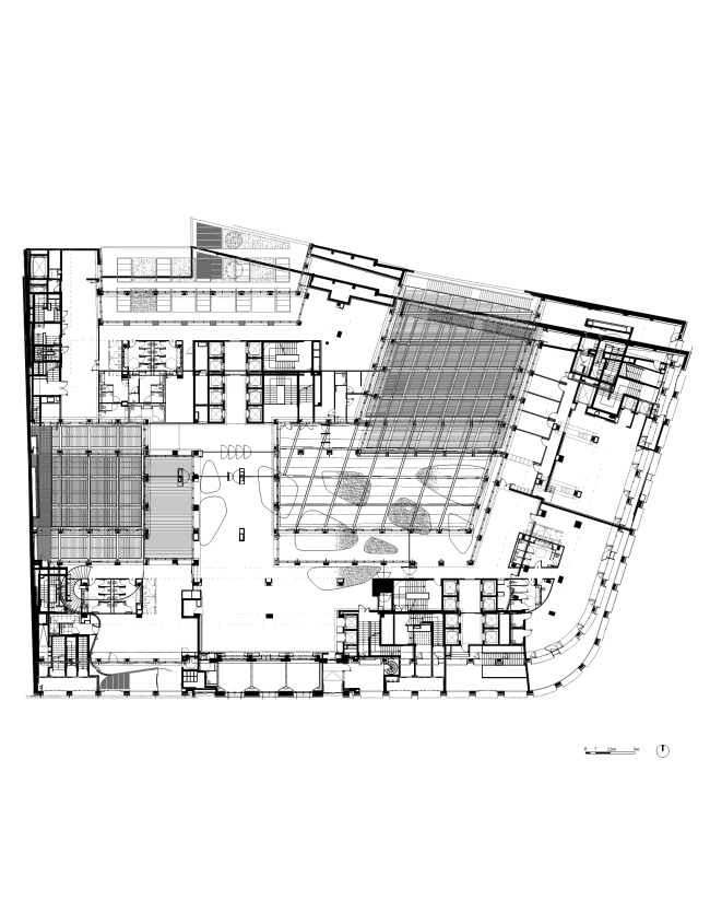
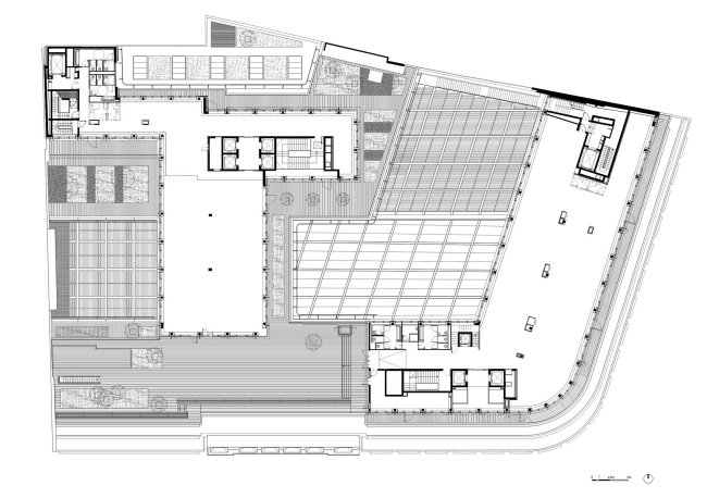
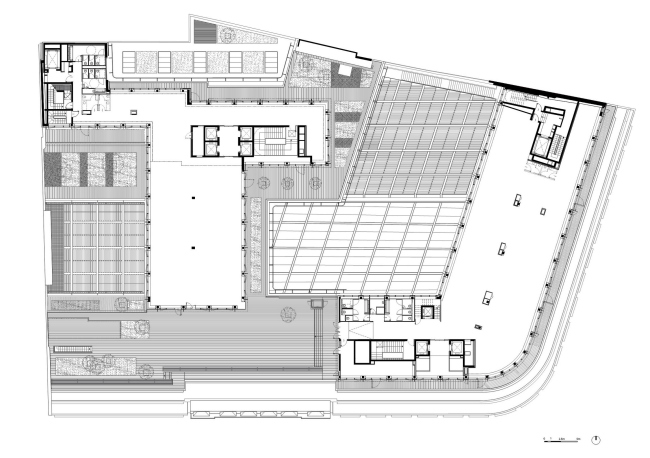
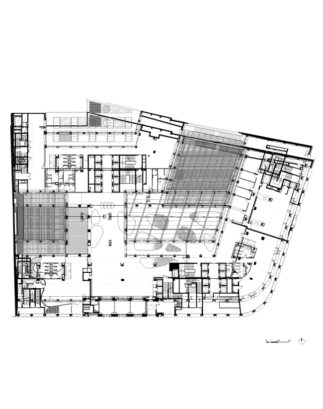
Комплекс создан из четырех зданий в самом центре Парижа, близ Биржи. Разновременные постройки, до недавнего времени составлявшие одно из представительств банка Crédit Lyonnais, теперь превращены в единый комплекс, включающий также два фасада XIX века, являющиеся памятниками архитектуры. Их, естественно, не тронули, зато от остальных фасадов при реконструкции остались лишь каркасы, а структура построек была полностью изменена. Теперь во всех корпусах этажи находятся на одном уровне, что позволило создать просторные офисные помещения свободного плана шириной 18 м или 21 м и площадью до 3000 м2.
Офисный комплекс #CLOUD.PARIS © Clément Guillaume
Офисный комплекс #CLOUD.PARIS © Clément Guillaume

Темой проекта стал свет: он попадает внутрь не только сквозь большие окна уличных фасадов, но и через систему внутренних дворов, вокруг которых организованы помещения комплекса. Главный двор состоит из трех частей: остекленного атриума, промежуточной зоны и пространства под открытым небом.
 
Офисный комплекс #CLOUD.PARIS © Clément Guillaume
Офисный комплекс #CLOUD.PARIS © Clément Guillaume

Дополнительные общественные пространства созданы на террасах в верхней части здания: они, как и кровля, обшиты деревом и озеленены.
 
Офисный комплекс #CLOUD.PARIS © Jean-Philippe Mesguen
Офисный комплекс #CLOUD.PARIS © Jean-Philippe Mesguen

Деловой центр #CLOUD.PARIS на 2500 сотрудников (общая площадь 38 000 м2) был реконструирован с бюджетом около 100 млн евро. Проект получил три эко-сертификата: HQE Exceptionnel, BREEAM Excellent и LEED Gold.
Офисный комплекс #CLOUD.PARIS © Jean-Philippe Mesguen
Офисный комплекс #CLOUD.PARIS © Jean-Philippe Mesguen
Офисный комплекс #CLOUD.PARIS © Jean-Philippe Mesguen
Офисный комплекс #CLOUD.PARIS © Jean-Philippe Mesguen
Офисный комплекс #CLOUD.PARIS © Jean-Philippe Mesguen
Офисный комплекс #CLOUD.PARIS © Jean-Philippe Mesguen
Офисный комплекс #CLOUD.PARIS © Clément Guillaume
Офисный комплекс #CLOUD.PARIS © Clément Guillaume
Офисный комплекс #CLOUD.PARIS © Jean-Philippe Mesguen
Офисный комплекс #CLOUD.PARIS © Jean-Philippe Mesguen
Офисный комплекс #CLOUD.PARIS © Clément Guillaume
Офисный комплекс #CLOUD.PARIS © Clément Guillaume
Офисный комплекс #CLOUD.PARIS © Jean-Philippe Mesguen
Офисный комплекс #CLOUD.PARIS © Jean-Philippe Mesguen
Офисный комплекс #CLOUD.PARIS © Clément Guillaume
Офисный комплекс #CLOUD.PARIS © Clément Guillaume
Офисный комплекс #CLOUD.PARIS © Jean-Philippe Mesguen
Офисный комплекс #CLOUD.PARIS © Jean-Philippe Mesguen
Офисный комплекс #CLOUD.PARIS © Jean-Philippe Mesguen
Офисный комплекс #CLOUD.PARIS © Jean-Philippe Mesguen
Офисный комплекс #CLOUD.PARIS © Jean-Philippe Mesguen
Офисный комплекс #CLOUD.PARIS © Jean-Philippe Mesguen
Офисный комплекс #CLOUD.PARIS © Jean-Philippe Mesguen
Офисный комплекс #CLOUD.PARIS © Jean-Philippe Mesguen
Офисный комплекс #CLOUD.PARIS © Clément Guillaume
Офисный комплекс #CLOUD.PARIS © Clément Guillaume
Офисный комплекс #CLOUD.PARIS © Clément Guillaume
Офисный комплекс #CLOUD.PARIS © Clément Guillaume
Офисный комплекс #CLOUD.PARIS © Clément Guillaume
Офисный комплекс #CLOUD.PARIS © Clément Guillaume
Офисный комплекс #CLOUD.PARIS © Jean-Philippe Mesguen
Офисный комплекс #CLOUD.PARIS © Jean-Philippe Mesguen
Офисный комплекс #CLOUD.PARIS © Jean-Philippe Mesguen
Офисный комплекс #CLOUD.PARIS © Jean-Philippe Mesguen
Офисный комплекс #CLOUD.PARIS © Jean-Philippe Mesguen
Офисный комплекс #CLOUD.PARIS © Jean-Philippe Mesguen
Офисный комплекс #CLOUD.PARIS © Jean-Philippe Mesguen
Офисный комплекс #CLOUD.PARIS © Jean-Philippe Mesguen
Офисный комплекс #CLOUD.PARIS © Jean-Philippe Mesguen
Офисный комплекс #CLOUD.PARIS © Jean-Philippe Mesguen
Офисный комплекс #CLOUD.PARIS © Clément Guillaume
Офисный комплекс #CLOUD.PARIS © Clément Guillaume
Офисный комплекс #CLOUD.PARIS © Jean-Philippe Mesguen
Офисный комплекс #CLOUD.PARIS © Jean-Philippe Mesguen
Офисный комплекс #CLOUD.PARIS © PCA / L′autre Image
Офисный комплекс #CLOUD.PARIS © PCA / L′autre Image
Офисный комплекс #CLOUD.PARIS © PCA / Philippe Chiambaretta Architecte
Офисный комплекс #CLOUD.PARIS © PCA / Philippe Chiambaretta Architecte
Офисный комплекс #CLOUD.PARIS © PCA / Philippe Chiambaretta Architecte
Офисный комплекс #CLOUD.PARIS © PCA / Philippe Chiambaretta Architecte
Офисный комплекс #CLOUD.PARIS © PCA / Philippe Chiambaretta Architecte
Офисный комплекс #CLOUD.PARIS © PCA / Philippe Chiambaretta Architecte
Офисный комплекс #CLOUD.PARIS © PCA / Philippe Chiambaretta Architecte
Офисный комплекс #CLOUD.PARIS © PCA / Philippe Chiambaretta Architecte
Офисный комплекс #CLOUD.PARIS © PCA / Philippe Chiambaretta Architecte
Офисный комплекс #CLOUD.PARIS © PCA / Philippe Chiambaretta Architecte
Офисный комплекс #CLOUD.PARIS © PCA / Philippe Chiambaretta Architecte
Офисный комплекс #CLOUD.PARIS © PCA / Philippe Chiambaretta Architecte
Офисный комплекс #CLOUD.PARIS © PCA / Philippe Chiambaretta Architecte
Офисный комплекс #CLOUD.PARIS © PCA / Philippe Chiambaretta Architecte
Офисный комплекс #CLOUD.PARIS © PCA / Philippe Chiambaretta Architecte
Офисный комплекс #CLOUD.PARIS © PCA / Philippe Chiambaretta Architecte