Размещено на портале Архи.ру (www.archi.ru)

22.03.2016

Черно-белый угол

Екатерина Ровнова
Объект:
Жилой комплекс Berliininpiha
Адрес:
Финляндия, None, Хельсинки.
Мастерская:
JKMM

В новом районе Хельсинки Туокаранта построен жилой комплекс Berliininpiha по проекту бюро JKMM.

Жилой комплекс Berliininpiha © Mika Huisman
Жилой комплекс Berliininpiha © Mika Huisman

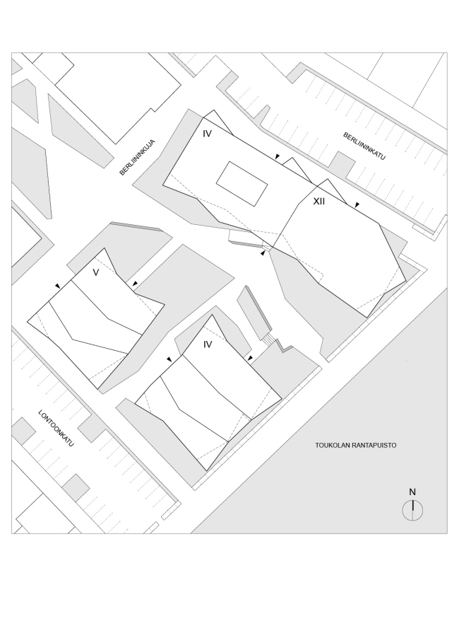
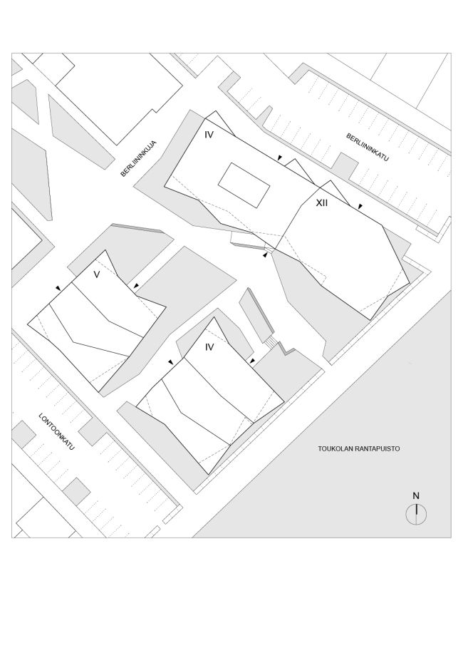
У залива со сложным названием Ванханкаупунгинлахти, известного своими заповедными заболоченными берегами, рядом с образцовым жилым районом Арабиаранта архитекторы JKMM построили жилой комплекс из трех отдельно стоящих объемов, представляющих собой корпуса 4-х, 5-ти и 12-ти этажей в высоту: они формируют зеленый внутренний двор для жителей, раскрывающийся в сторону моря.
 
Жилой комплекс Berliininpiha © Mika Huisman
Жилой комплекс Berliininpiha © Mika Huisman

На общей площади 7800 м2 расположены 102 квартиры свободной планировки, предназначенные как для сдачи в аренду, так и для продажи.
 
Жилой комплекс Berliininpiha © Mika Huisman
Жилой комплекс Berliininpiha © Mika Huisman

Комплекс выходит белыми штукатурными фасадами в сторону улицы и темным кирпичом – во внутренний двор: черные и белые грани драматично сопрягаются в вершине треугольных балконов, горизонтали которых формируют облик здания и открывают жильцам эффектные виды на парк и залив.
Жилой комплекс Berliininpiha © Mika Huisman
Жилой комплекс Berliininpiha © Mika Huisman
Жилой комплекс Berliininpiha © Mika Huisman
Жилой комплекс Berliininpiha © Mika Huisman
Жилой комплекс Berliininpiha © Mika Huisman
Жилой комплекс Berliininpiha © Mika Huisman
Жилой комплекс Berliininpiha © Mika Huisman
Жилой комплекс Berliininpiha © Mika Huisman
Жилой комплекс Berliininpiha © Mika Huisman
Жилой комплекс Berliininpiha © Mika Huisman
Жилой комплекс Berliininpiha © Mika Huisman
Жилой комплекс Berliininpiha © Mika Huisman
Жилой комплекс Berliininpiha © JKMM
Жилой комплекс Berliininpiha © JKMM
Жилой комплекс Berliininpiha © JKMM
Жилой комплекс Berliininpiha © JKMM
Жилой комплекс Berliininpiha © JKMM
Жилой комплекс Berliininpiha © JKMM
Жилой комплекс Berliininpiha © JKMM
Жилой комплекс Berliininpiha © JKMM
Жилой комплекс Berliininpiha © JKMM
Жилой комплекс Berliininpiha © JKMM
Жилой комплекс Berliininpiha © JKMM
Жилой комплекс Berliininpiha © JKMM
Жилой комплекс Berliininpiha © JKMM
Жилой комплекс Berliininpiha © JKMM
Жилой комплекс Berliininpiha © JKMM
Жилой комплекс Berliininpiha © JKMM