Размещено на портале Архи.ру (www.archi.ru)

14.03.2016

Спортивно-тренерский блок «Горный» в Красноярске

Объект:
Спортивно-тренерский блок «Горный»
Адрес:
Россия, Красноярск. ул. Биатлонная, 25
Мастерская:
А2
Авторский коллектив:
Руководитель проекта: Б.Б. Шаталов
Архитекторы: Н.П. Бутримович, Н.В. Волкова, Е.В. Ковалев, А.Н. Кулаковский, Я.В. Осадчая, Т.В. Прокофьева, Т.И. Фадеева, А.Ю. Шарыпова, А.Б. Шаталов, Б.Б. Шаталов, А.С. Шишкин
Конструкторы: А.С. Бибин, А.С. Казакова, И.С. Каменецкая, А.Э. Кожина, Ю.Ю. Криворотько, Е.М. Ломоносова, С.С. Савина, Д.В. Соломатин, О.В. Фортуна, А.Г. Худоногов, Н.С. Яковлева
Инженеры: Е.В. Есикова, А.Г. Зрячев, А.В. Леонтьев, А.А. Павлова, Е.В. Панкратова, Н.В. Семенова, О.В. Тимофеева, Е.С. Филиппова, В.Э. Якубчук

Спортивно-тренерский блок «Горный» по проекту мастерской «А-2» в комплексе «Академии зимних видов спорта» в Красноярске.

Спортивно-тренерский блок «Горный» © proa2.ru Фотография: Артем Элли
Спортивно-тренерский блок «Горный» © proa2.ru Фотография: Артем Элли



Блок «Горный» на 280 спортсменов на Николаевской сопке – объект Всемирной зимней Универсиады-2019; в «Академии зимних видов спорта» пройдут соревнования Универсиады по фристайлу и сноуборду.

Описание архитекторов:
«Здание – линейная композиция, состоящая из трех прямоугольных в плане объемов переменной этажности, подчиненных естественному рельефу. Первый трехэтажный объем включает в себя административную часть с лестнично-лифтовым узлом и медицинским блоком. Второй – двухэтажный, содержит тренерские ячейки и душевые. Здание завершается компактным одноэтажным объемом, содержащим помещения для подготовки лыжного инвентаря, лестницу и вестибюль выхода на горнолыжную трассу.

Здание расположено перпендикулярно склону и нанизано на основную пешеходную ось, идущую вдоль подножья Николаевской сопки. Второе пешеходное направление пронизывает здание насквозь.

Летящая форма объекта подчеркнута контрастной отделкой, пешеходным проходом и консолью над главным входом. Эти композиционные элементы создают ассоциацию со спортом и движением. Объект демонстрирует динамику и скорость горнолыжного спорта, а зигзаг, который здание образует в плане, – реверанс в сторону траектории движения спортсмена в дисциплине “слалом”.»
Спортивно-тренерский блок «Горный» © proa2.ru Фотография: Артем Элли
Спортивно-тренерский блок «Горный» © proa2.ru Фотография: Артем Элли
Спортивно-тренерский блок «Горный» © proa2.ru Фотография: Артем Элли
Спортивно-тренерский блок «Горный» © proa2.ru Фотография: Артем Элли
Спортивно-тренерский блок «Горный». Вид с Николаевской сопки © proa2.ru Фотография: Артем Элли
Спортивно-тренерский блок «Горный». Вид с Николаевской сопки © proa2.ru Фотография: Артем Элли
Спортивно-тренерский блок «Горный» © proa2.ru Фотография: Артем Элли
Спортивно-тренерский блок «Горный» © proa2.ru Фотография: Артем Элли
Спортивно-тренерский блок «Горный» © proa2.ru Фотография: Артем Элли
Спортивно-тренерский блок «Горный» © proa2.ru Фотография: Артем Элли
Спортивно-тренерский блок «Горный» © proa2.ru Фотография: Артем Элли
Спортивно-тренерский блок «Горный» © proa2.ru Фотография: Артем Элли
Спортивно-тренерский блок «Горный» © proa2.ru Фотография: Артем Элли
Спортивно-тренерский блок «Горный» © proa2.ru Фотография: Артем Элли
Спортивно-тренерский блок «Горный» © proa2.ru Фотография: Артем Элли
Спортивно-тренерский блок «Горный» © proa2.ru Фотография: Артем Элли
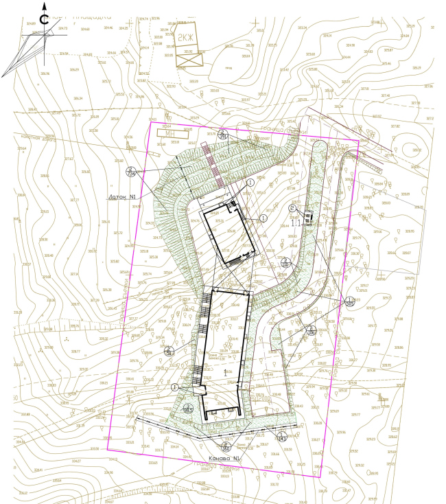
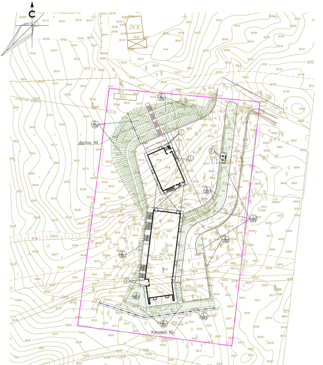
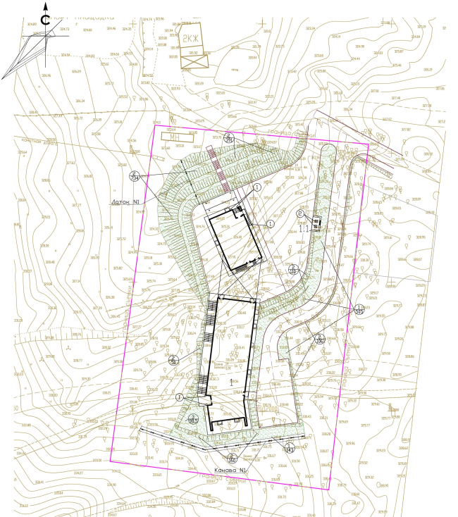
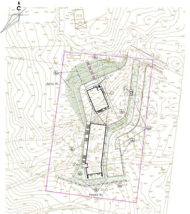
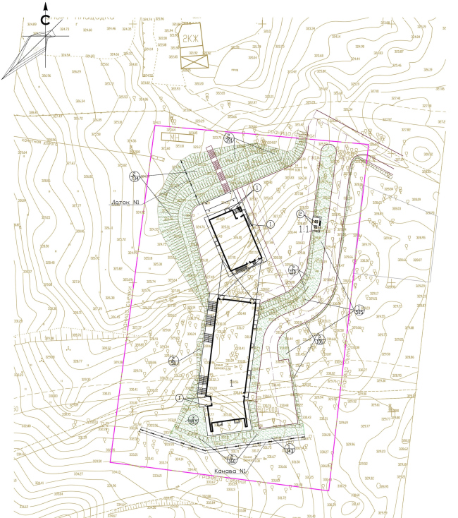
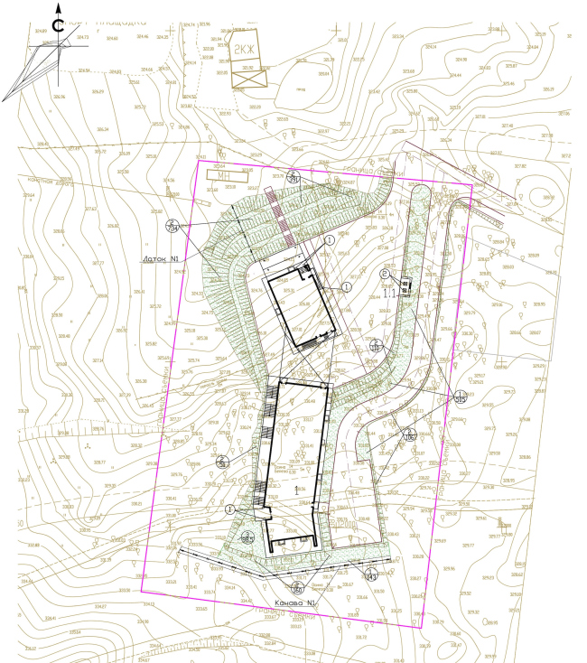
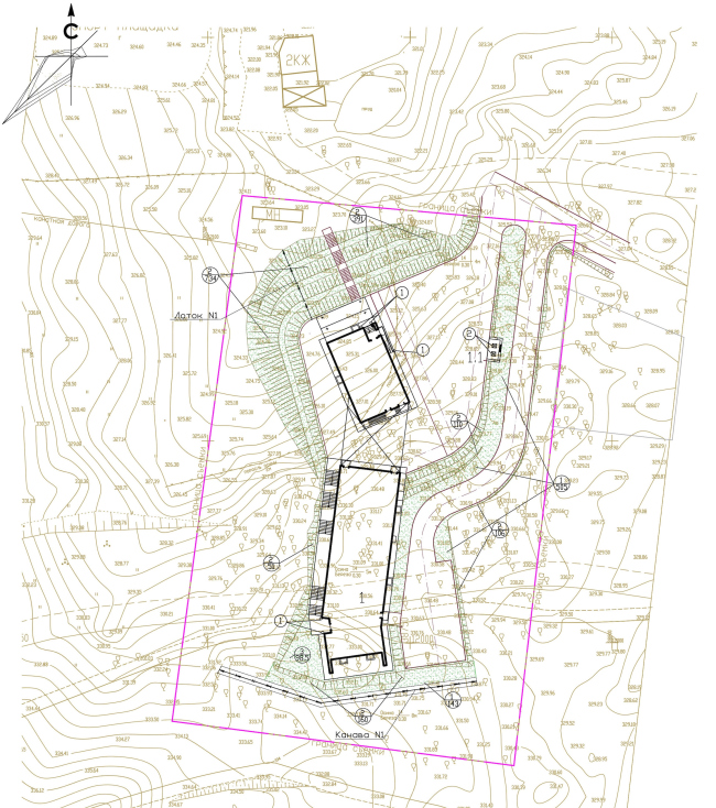
Спортивно-тренерский блок «Горный». Генеральный план © proa2.ru Фотография: Артем Элли
Спортивно-тренерский блок «Горный». Генеральный план © proa2.ru Фотография: Артем Элли
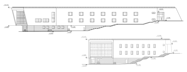
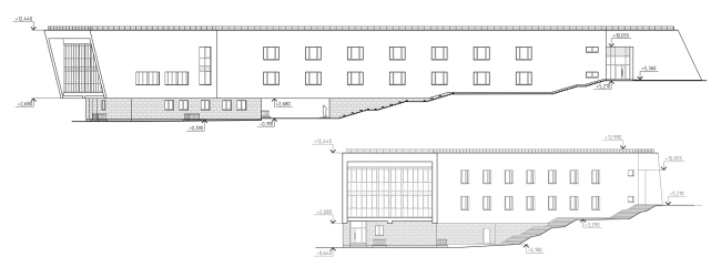
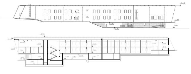
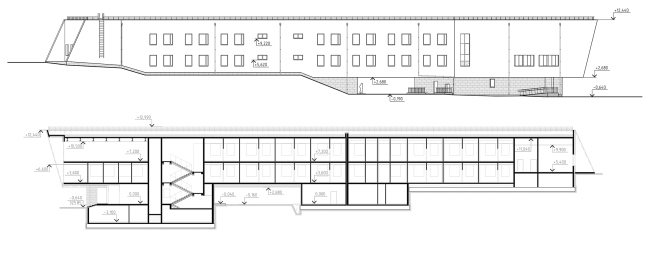
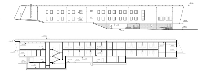
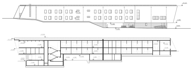
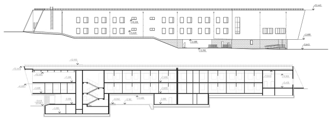
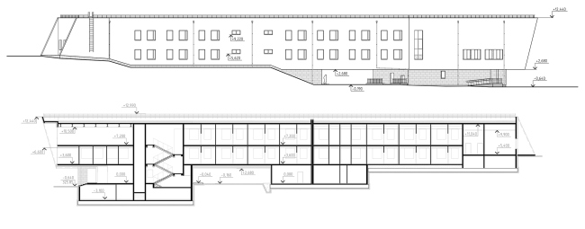
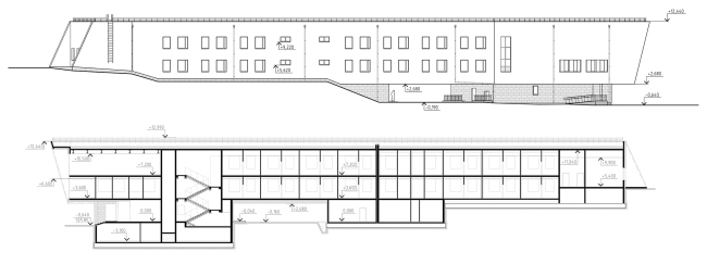
Спортивно-тренерский блок «Горный». Восточный фасад и разрез © proa2.ru Фотография: Артем Элли
Спортивно-тренерский блок «Горный». Восточный фасад и разрез © proa2.ru Фотография: Артем Элли
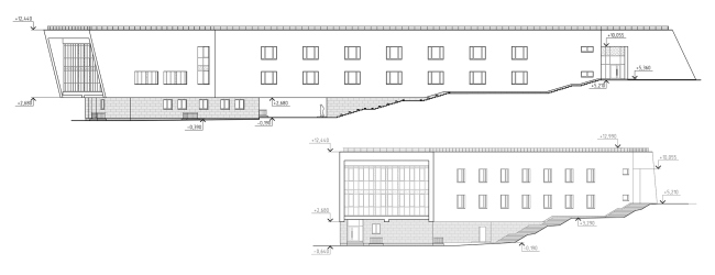
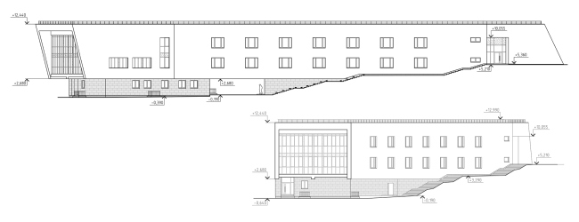
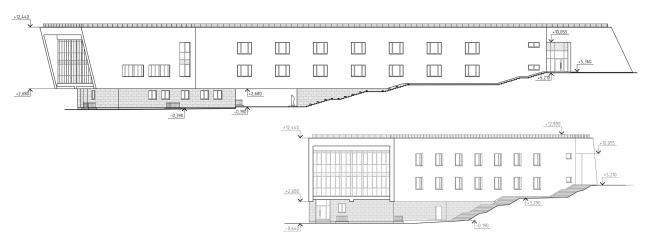
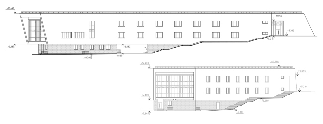
Спортивно-тренерский блок «Горный». Северный и западный фасады © proa2.ru Фотография: Артем Элли
Спортивно-тренерский блок «Горный». Северный и западный фасады © proa2.ru Фотография: Артем Элли
Спортивно-тренерский блок «Горный». Планы этажей © proa2.ru Фотография: Артем Элли
Спортивно-тренерский блок «Горный». Планы этажей © proa2.ru Фотография: Артем Элли