Размещено на портале Архи.ру (www.archi.ru)

11.03.2016

Накололи кирпича

Анна Старостина
Объект:
Концертный зал в квартале Йорданки
Адрес:
Польша, None, Торунь.

В польской Торуни завершено строительство театрально-концертного зала по проекту испанского архитектора Фернандо Мениса.

Концертный зал в квартале Йорданки © Jakub Certowicz
Концертный зал в квартале Йорданки © Jakub Certowicz

Исторический центр средневекового города Торунь в северной части Польши удивительным образом практически не пострадал во время Второй мировой войны и, как уникальный объект, включен в список Всемирного наследия ЮНЕСКО. С одной стороны он ограничен набережной реки Висла, а с остальных окружен широкой зеленой зоной, за которой располагаются уже новые районы. В этом поясе, на границе старого и нового и построен концертный зал. Причем выбранный для него квартал Йорданки много лет был любимым местом отдыха жителей Торуни.
Концертный зал в квартале Йорданки © Jakub Certowicz
Концертный зал в квартале Йорданки © Jakub Certowicz

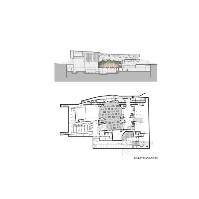
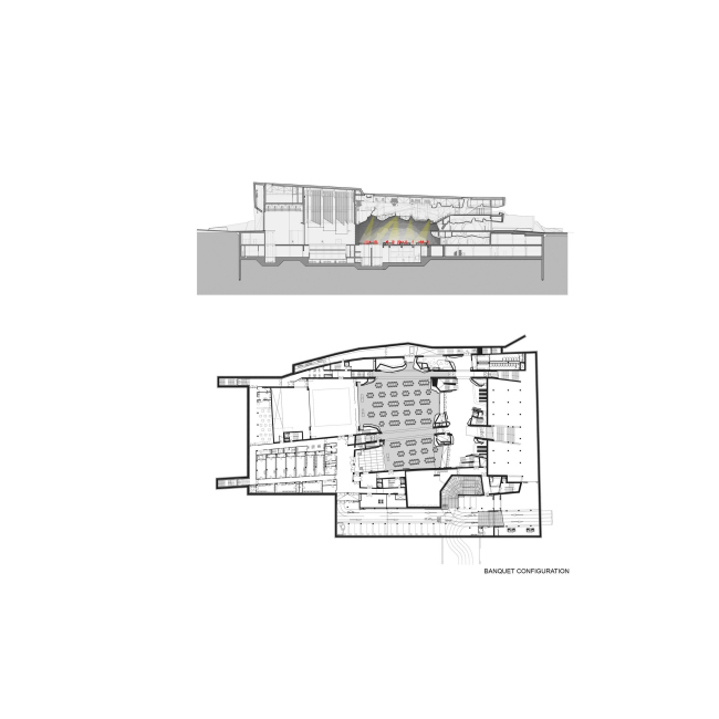
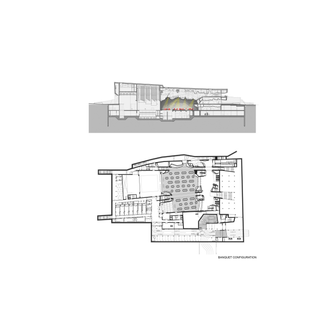
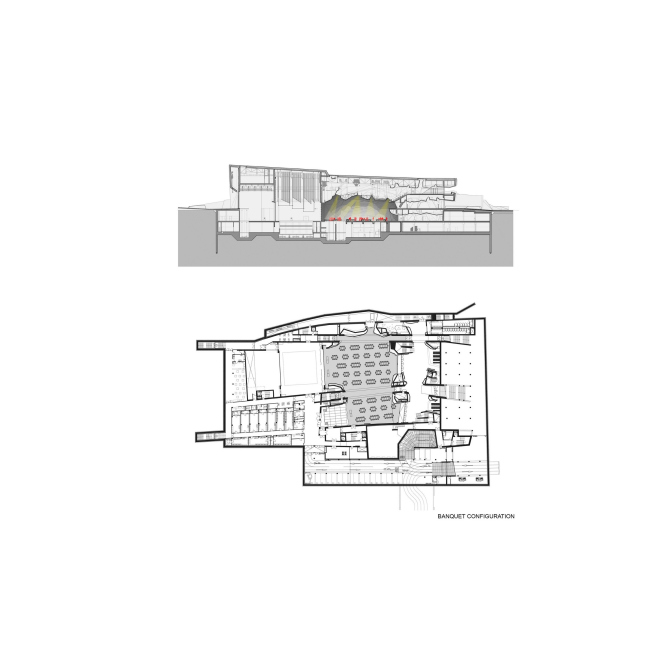
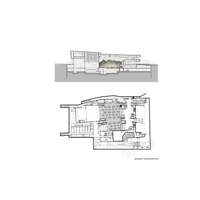
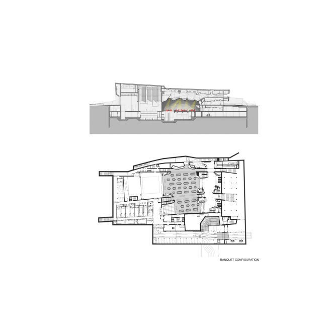
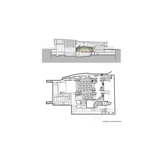
Архитекторы использовали не весь отведенный участок (чуть меньше 47 000 м2), а только его половину (около 22 000 м2), оставив место для небольшого парка. Зеленый пояс таким образом не был прерван. Сам же объем, вернее, запутанная композиция из множества причудливой формы бетонных объемов имеет небольшую общую высоту, так как максимально углублена в землю. В результате, «скалистые» брутальные грани не нарушают силуэт города с разных видовых точек. А чтобы все же сблизить свою постройку с историческим центром в бетон подмешали битый кирпич, который «кровавыми» трещинами проявляется на почти белых фасадах.
Концертный зал в квартале Йорданки © Jakub Certowicz
Концертный зал в квартале Йорданки © Jakub Certowicz

Добавление в бетон фрагментов других материалов – ноу-хау Фернандо Мениса, уже опробованное им на других объектах, в частности в здании Концертного зала Magma у себя на родине. Технология, получившая название picado (с испанского можно перевести как «шинковка»), оказалась не только эффектной, но и практичной, так как позволяет добиться в помещении хорошей акустики. Поэтому, если на сдержанных фасадах видны лишь намеки на неожиданный наполнитель, то внутри экспрессивный материал становится основным декоративным приемом.
Концертный зал в квартале Йорданки © Jakub Certowicz
Концертный зал в квартале Йорданки © Jakub Certowicz

Архитекторы признаются, что изначально в здании планировалось разместить только концертный зал, но в процессе работы над проектом возникла идея гибкого многофункционального пространства, где можно с успехом провести абсолютно любое мероприятие: от камерного концерта классической музыки до многолюдного шоу, от оперного спектакля до постановки экспериментального театра, от кинопоказа до выставки. Бюджет при этом остался тем же, здание обошлось городу в 51 млн евро. Два зала, например, разделены демонтируемой перегородкой и могут использоваться как по отдельности, так и вместе. Мобильные кресла позволяют переориентировать и перекомпоновывать залы, а подвижные панели на потолке – корректировать акустические характеристики. Более того, внутреннее пространство может быть открыто и практически объединено с парком, позволяя проводить концерты и под открытым небом. Сам зал в таком случае становится загадочной сквозной пещерой, связывающей город с общественной зеленой зоной.
Концертный зал в квартале Йорданки © Jakub Certowicz
Концертный зал в квартале Йорданки © Jakub Certowicz
Концертный зал в квартале Йорданки © Jakub Certowicz
Концертный зал в квартале Йорданки © Jakub Certowicz
Концертный зал в квартале Йорданки © Jakub Certowicz
Концертный зал в квартале Йорданки © Jakub Certowicz
Концертный зал в квартале Йорданки © Jakub Certowicz
Концертный зал в квартале Йорданки © Jakub Certowicz
Концертный зал в квартале Йорданки © Jakub Certowicz
Концертный зал в квартале Йорданки © Jakub Certowicz
Концертный зал в квартале Йорданки © Jakub Certowicz
Концертный зал в квартале Йорданки © Jakub Certowicz
Концертный зал в квартале Йорданки © Jakub Certowicz
Концертный зал в квартале Йорданки © Jakub Certowicz
Концертный зал в квартале Йорданки © Fernando Menis Architects
Концертный зал в квартале Йорданки © Fernando Menis Architects
Концертный зал в квартале Йорданки © Fernando Menis Architects
Концертный зал в квартале Йорданки © Fernando Menis Architects
Концертный зал в квартале Йорданки © Fernando Menis Architects
Концертный зал в квартале Йорданки © Fernando Menis Architects
Концертный зал в квартале Йорданки © Fernando Menis Architects
Концертный зал в квартале Йорданки © Fernando Menis Architects
Концертный зал в квартале Йорданки © Fernando Menis Architects
Концертный зал в квартале Йорданки © Fernando Menis Architects
Концертный зал в квартале Йорданки © Fernando Menis Architects
Концертный зал в квартале Йорданки © Fernando Menis Architects
Концертный зал в квартале Йорданки © Fernando Menis Architects
Концертный зал в квартале Йорданки © Fernando Menis Architects
Концертный зал в квартале Йорданки © Fernando Menis Architects
Концертный зал в квартале Йорданки © Fernando Menis Architects
Концертный зал в квартале Йорданки © Fernando Menis Architects
Концертный зал в квартале Йорданки © Fernando Menis Architects
Концертный зал в квартале Йорданки © Fernando Menis Architects
Концертный зал в квартале Йорданки © Fernando Menis Architects
Концертный зал в квартале Йорданки © Fernando Menis Architects
Концертный зал в квартале Йорданки © Fernando Menis Architects
Концертный зал в квартале Йорданки © Fernando Menis Architects
Концертный зал в квартале Йорданки © Fernando Menis Architects
Концертный зал в квартале Йорданки © Fernando Menis Architects
Концертный зал в квартале Йорданки © Fernando Menis Architects
Концертный зал в квартале Йорданки © Fernando Menis Architects
Концертный зал в квартале Йорданки © Fernando Menis Architects
Концертный зал в квартале Йорданки © Fernando Menis Architects
Концертный зал в квартале Йорданки © Fernando Menis Architects
Концертный зал в квартале Йорданки © Fernando Menis Architects
Концертный зал в квартале Йорданки © Fernando Menis Architects
Концертный зал в квартале Йорданки © Fernando Menis Architects
Концертный зал в квартале Йорданки © Fernando Menis Architects
Концертный зал в квартале Йорданки © Fernando Menis Architects
Концертный зал в квартале Йорданки © Fernando Menis Architects
Концертный зал в квартале Йорданки © Fernando Menis Architects
Концертный зал в квартале Йорданки © Fernando Menis Architects
Концертный зал в квартале Йорданки © Fernando Menis Architects
Концертный зал в квартале Йорданки © Fernando Menis Architects
Концертный зал в квартале Йорданки © Fernando Menis Architects
Концертный зал в квартале Йорданки © Fernando Menis Architects
Концертный зал в квартале Йорданки © Fernando Menis Architects
Концертный зал в квартале Йорданки © Fernando Menis Architects
Концертный зал в квартале Йорданки © Fernando Menis Architects
Концертный зал в квартале Йорданки © Fernando Menis Architects
Концертный зал в квартале Йорданки © Fernando Menis Architects
Концертный зал в квартале Йорданки © Fernando Menis Architects
Концертный зал в квартале Йорданки © Fernando Menis Architects
Концертный зал в квартале Йорданки © Fernando Menis Architects
Концертный зал в квартале Йорданки © Fernando Menis Architects
Концертный зал в квартале Йорданки © Fernando Menis Architects