Размещено на портале Архи.ру (www.archi.ru)

09.03.2016

Стальная драпировка

Нина Фролова
Объект:
Музей искусств Беркли и Тихоокеанский киноархив – BAMPFA
Адрес:
США, None, Беркли.
Мастерская:
Diller Scofidio + Renfro

Здание Музея искусств Беркли и Тихоокеанского киноархива по проекту Diller Scofidio + Renfro.

Музей искусств Беркли и Тихоокеанский киноархив – BAMPFA. Фото: Iwan Baan. Предоставлено Diller Scofidio + Renfro; EHDD; UC Berkeley Art Museum and Pacific Film Archive (BAMPFA)
Музей искусств Беркли и Тихоокеанский киноархив – BAMPFA. Фото: Iwan Baan. Предоставлено Diller Scofidio + Renfro; EHDD; UC Berkeley Art Museum and Pacific Film Archive (BAMPFA)

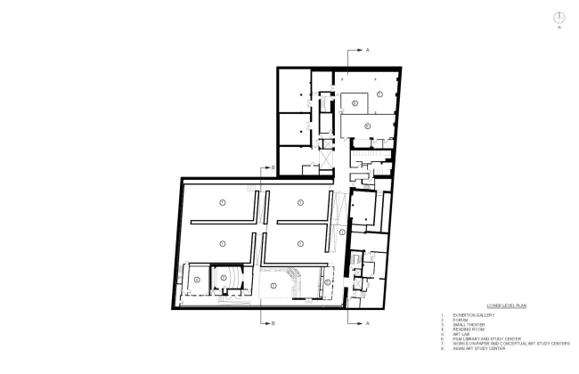
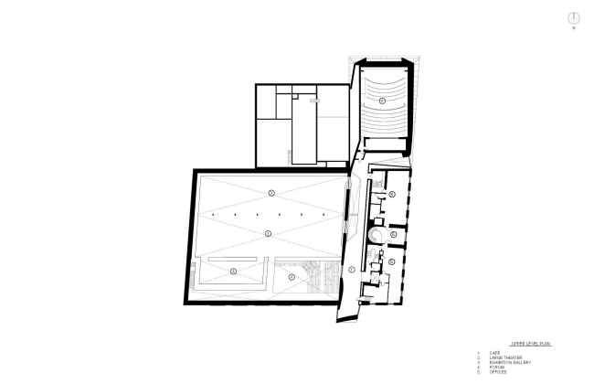
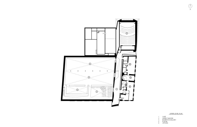
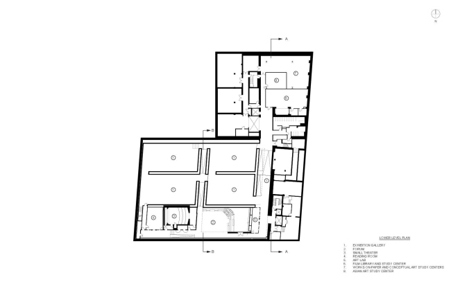
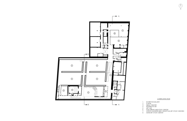
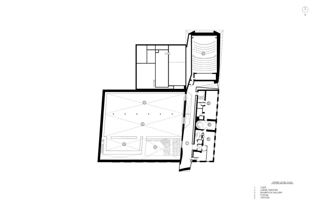
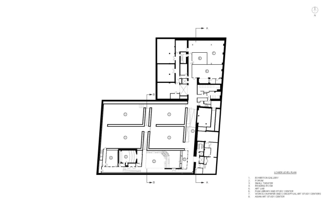
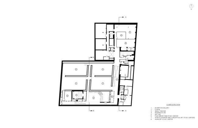
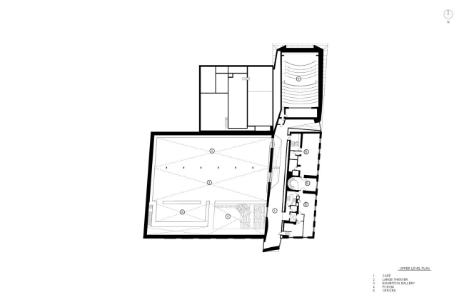
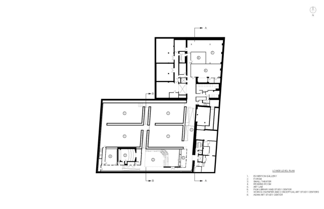
Новое здание принадлежащих Калифорнийскому университету учреждений расположено на границе его кампуса и городских кварталов и призвано служить и студентам, и жителям Беркли. Его основа – вузовская типография, построенная в 1939 в русле ар деко; именно там в 1945 был напечатан Устав ООН. Самая эффектная деталь этой индустриальной постройки – гребенка из шедовых фонарей на крыше. Теперь в здании располагаются восемь выставочных залов, малый кинозал (33 места), арт-лаборатория.
 
Музей искусств Беркли и Тихоокеанский киноархив – BAMPFA. Фото: Iwan Baan. Предоставлено Diller Scofidio + Renfro; EHDD; UC Berkeley Art Museum and Pacific Film Archive (BAMPFA)
Музей искусств Беркли и Тихоокеанский киноархив – BAMPFA. Фото: Iwan Baan. Предоставлено Diller Scofidio + Renfro; EHDD; UC Berkeley Art Museum and Pacific Film Archive (BAMPFA)

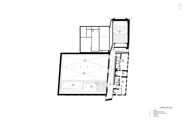
Новая часть сооружения – обшитый листами нержавеющей стали «шифр» (так назвали его архитекторы): он выглядит, как металлическая драпировка, наброшенная на прямоугольные корпуса типографии. Там расположены кинозал (232 места), синематека, учебные помещения и кафе. С одной стороны «шифр» завершается огромным LED-экраном, с другой – консольным выносом кафе, сквозь остекление которого виден ярко-красный интерьер.
 
Музей искусств Беркли и Тихоокеанский киноархив – BAMPFA. Фото: Iwan Baan. Предоставлено Diller Scofidio + Renfro; EHDD; UC Berkeley Art Museum and Pacific Film Archive (BAMPFA)
Музей искусств Беркли и Тихоокеанский киноархив – BAMPFA. Фото: Iwan Baan. Предоставлено Diller Scofidio + Renfro; EHDD; UC Berkeley Art Museum and Pacific Film Archive (BAMPFA)

Семь сосен канарских, которые росли на участке до строительства, были использованы для изготовления деревянных деталей интерьера; в качестве компенсации были посажены 23 дерева.
 
Музей искусств Беркли и Тихоокеанский киноархив – BAMPFA. Фото: Iwan Baan. Предоставлено Diller Scofidio + Renfro; EHDD; UC Berkeley Art Museum and Pacific Film Archive (BAMPFA)
Музей искусств Беркли и Тихоокеанский киноархив – BAMPFA. Фото: Iwan Baan. Предоставлено Diller Scofidio + Renfro; EHDD; UC Berkeley Art Museum and Pacific Film Archive (BAMPFA)

Бюджет постройки составил 112 млн долларов: средства были пожертвованы благотворителями или поступили из иных частных источников.
 
Музей искусств Беркли и Тихоокеанский киноархив – BAMPFA. Фото: Iwan Baan. Предоставлено Diller Scofidio + Renfro; EHDD; UC Berkeley Art Museum and Pacific Film Archive (BAMPFA)
Музей искусств Беркли и Тихоокеанский киноархив – BAMPFA. Фото: Iwan Baan. Предоставлено Diller Scofidio + Renfro; EHDD; UC Berkeley Art Museum and Pacific Film Archive (BAMPFA)

В собрании Музея Беркли – неолитическая керамика с территории Китая, графика старых мастеров, произведения современного и новейшего искусства. Тихоокеанский киноархив владеет крупнейшим собранием японских фильмов за пределами Японии, обширной коллекцией советского кино, созданных на Западном побережье США авангардных лент, видео-арта.
Музей искусств Беркли и Тихоокеанский киноархив – BAMPFA. Фото: Iwan Baan. Предоставлено Diller Scofidio + Renfro; EHDD; UC Berkeley Art Museum and Pacific Film Archive (BAMPFA)
Музей искусств Беркли и Тихоокеанский киноархив – BAMPFA. Фото: Iwan Baan. Предоставлено Diller Scofidio + Renfro; EHDD; UC Berkeley Art Museum and Pacific Film Archive (BAMPFA)
Музей искусств Беркли и Тихоокеанский киноархив – BAMPFA. Фото: Iwan Baan. Предоставлено Diller Scofidio + Renfro; EHDD; UC Berkeley Art Museum and Pacific Film Archive (BAMPFA)
Музей искусств Беркли и Тихоокеанский киноархив – BAMPFA. Фото: Iwan Baan. Предоставлено Diller Scofidio + Renfro; EHDD; UC Berkeley Art Museum and Pacific Film Archive (BAMPFA)
Музей искусств Беркли и Тихоокеанский киноархив – BAMPFA. Фото: Elizabeth
Daniels. Предоставлено Diller Scofidio + Renfro
Музей искусств Беркли и Тихоокеанский киноархив – BAMPFA. Фото: Elizabeth Daniels. Предоставлено Diller Scofidio + Renfro
Музей искусств Беркли и Тихоокеанский киноархив – BAMPFA. Фото: Iwan Baan. Предоставлено Diller Scofidio + Renfro; EHDD; UC Berkeley Art Museum and Pacific Film Archive (BAMPFA)
Музей искусств Беркли и Тихоокеанский киноархив – BAMPFA. Фото: Iwan Baan. Предоставлено Diller Scofidio + Renfro; EHDD; UC Berkeley Art Museum and Pacific Film Archive (BAMPFA)
Музей искусств Беркли и Тихоокеанский киноархив – BAMPFA. Фото: Iwan Baan. Предоставлено Diller Scofidio + Renfro; EHDD; UC Berkeley Art Museum and Pacific Film Archive (BAMPFA)
Музей искусств Беркли и Тихоокеанский киноархив – BAMPFA. Фото: Iwan Baan. Предоставлено Diller Scofidio + Renfro; EHDD; UC Berkeley Art Museum and Pacific Film Archive (BAMPFA)
Музей искусств Беркли и Тихоокеанский киноархив – BAMPFA. Фото: Iwan Baan. Предоставлено Diller Scofidio + Renfro; EHDD; UC Berkeley Art Museum and Pacific Film Archive (BAMPFA)
Музей искусств Беркли и Тихоокеанский киноархив – BAMPFA. Фото: Iwan Baan. Предоставлено Diller Scofidio + Renfro; EHDD; UC Berkeley Art Museum and Pacific Film Archive (BAMPFA)
Музей искусств Беркли и Тихоокеанский киноархив – BAMPFA. Фото: Iwan Baan. Предоставлено Diller Scofidio + Renfro; EHDD; UC Berkeley Art Museum and Pacific Film Archive (BAMPFA)
Музей искусств Беркли и Тихоокеанский киноархив – BAMPFA. Фото: Iwan Baan. Предоставлено Diller Scofidio + Renfro; EHDD; UC Berkeley Art Museum and Pacific Film Archive (BAMPFA)
Музей искусств Беркли и Тихоокеанский киноархив – BAMPFA. Фото: Elizabeth
Daniels. Предоставлено Diller Scofidio + Renfro
Музей искусств Беркли и Тихоокеанский киноархив – BAMPFA. Фото: Elizabeth Daniels. Предоставлено Diller Scofidio + Renfro
Музей искусств Беркли и Тихоокеанский киноархив – BAMPFA. Фото: Elizabeth
Daniels. Предоставлено Diller Scofidio + Renfro
Музей искусств Беркли и Тихоокеанский киноархив – BAMPFA. Фото: Elizabeth Daniels. Предоставлено Diller Scofidio + Renfro
Музей искусств Беркли и Тихоокеанский киноархив – BAMPFA. Фото: Iwan Baan. Предоставлено Diller Scofidio + Renfro; EHDD; UC Berkeley Art Museum and Pacific Film Archive (BAMPFA)
Музей искусств Беркли и Тихоокеанский киноархив – BAMPFA. Фото: Iwan Baan. Предоставлено Diller Scofidio + Renfro; EHDD; UC Berkeley Art Museum and Pacific Film Archive (BAMPFA)
Музей искусств Беркли и Тихоокеанский киноархив – BAMPFA. Фото: Elizabeth
Daniels. Предоставлено Diller Scofidio + Renfro
Музей искусств Беркли и Тихоокеанский киноархив – BAMPFA. Фото: Elizabeth Daniels. Предоставлено Diller Scofidio + Renfro
Музей искусств Беркли и Тихоокеанский киноархив – BAMPFA © Diller Scofidio + Renfro
Музей искусств Беркли и Тихоокеанский киноархив – BAMPFA © Diller Scofidio + Renfro
Музей искусств Беркли и Тихоокеанский киноархив – BAMPFA © Diller Scofidio + Renfro
Музей искусств Беркли и Тихоокеанский киноархив – BAMPFA © Diller Scofidio + Renfro
Музей искусств Беркли и Тихоокеанский киноархив – BAMPFA © Diller Scofidio + Renfro
Музей искусств Беркли и Тихоокеанский киноархив – BAMPFA © Diller Scofidio + Renfro
Музей искусств Беркли и Тихоокеанский киноархив – BAMPFA © Diller Scofidio + Renfro
Музей искусств Беркли и Тихоокеанский киноархив – BAMPFA © Diller Scofidio + Renfro
Музей искусств Беркли и Тихоокеанский киноархив – BAMPFA © Diller Scofidio + Renfro
Музей искусств Беркли и Тихоокеанский киноархив – BAMPFA © Diller Scofidio + Renfro
Музей искусств Беркли и Тихоокеанский киноархив – BAMPFA © Diller Scofidio + Renfro
Музей искусств Беркли и Тихоокеанский киноархив – BAMPFA © Diller Scofidio + Renfro
Музей искусств Беркли и Тихоокеанский киноархив – BAMPFA © Diller Scofidio + Renfro
Музей искусств Беркли и Тихоокеанский киноархив – BAMPFA © Diller Scofidio + Renfro