Размещено на портале Архи.ру (www.archi.ru)

09.03.2016

Киноконцертный зал «Пенза»

Объект:
Киноконцертный зал «Пенза»
Адрес:
Россия, Пенза. ул. Суворова, 209
Мастерская:
Архитектурное бюро «Март»
Авторский коллектив:
Главный архитектор проекта: М.К. Каскеев (АБ «Март»)
Архитектор: И.В. Ермоленко (АБ «Март»)
Главный конструктор: С.В. Иванова (ПТМ под рук. А.А. Бреусова)

Киноконцертный зал в Пензе по проекту Марата Каскеева, Игоря Ермоленко и архитектурного бюро «Март».

Киноконцертный зал «Пенза». Фотография © Игорь Ермоленко. Архитектурное бюро «Март»
Киноконцертный зал «Пенза». Фотография © Игорь Ермоленко. Архитектурное бюро «Март»

Концертный зал «Пенза» на 1600 мест, как и расположенное рядом новое здание Филармонии, входит в формирующийся ансамбль Площади Искусств. На это обширное открытое пространство здание ККЗ откликается завершенной формой своего объема, приподнятого над уровнем улицы и рассчитанного на обозрение со всех сторон. Архитекторы сравнивают его с «абстрактной скульптурой городского масштаба».
 
Киноконцертный зал «Пенза». Фотография © Игорь Ермоленко. Архитектурное бюро «Март»
Киноконцертный зал «Пенза». Фотография © Игорь Ермоленко. Архитектурное бюро «Март»

Многогранные фасады постройки эффектно оформлены панелями темного зеркального стекла и белыми ламелями со ступенчатым абрисом. Объем здания поставлен на стилобат из светлого камня. Зрительный зал расположен на втором этаже, поэтому он образует консольный вынос над главным входом. Получившаяся «воронка» сразу привлекает внимание.
 
Киноконцертный зал «Пенза». Фотография © Игорь Ермоленко. Архитектурное бюро «Март»
Киноконцертный зал «Пенза». Фотография © Игорь Ермоленко. Архитектурное бюро «Март»

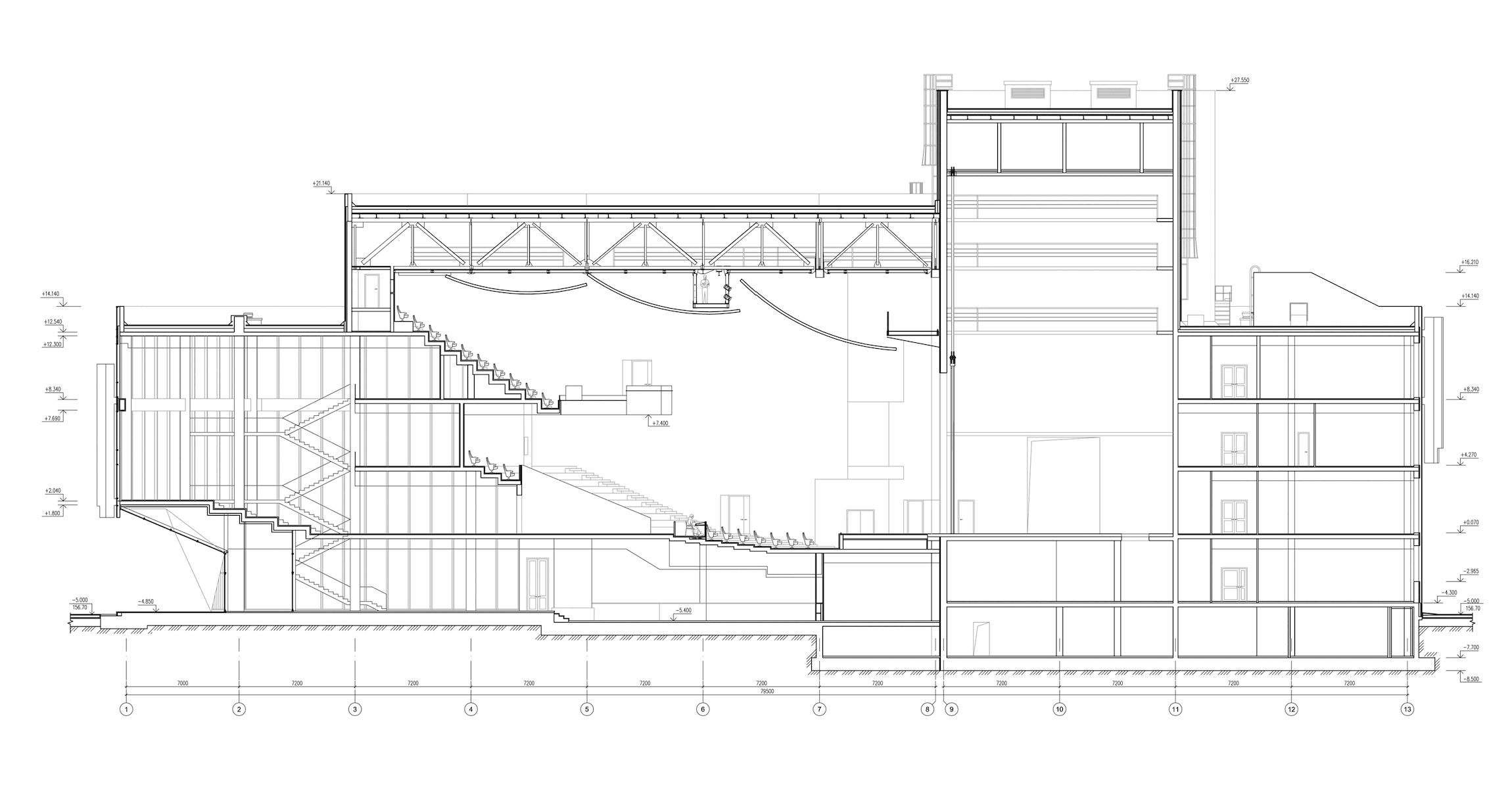
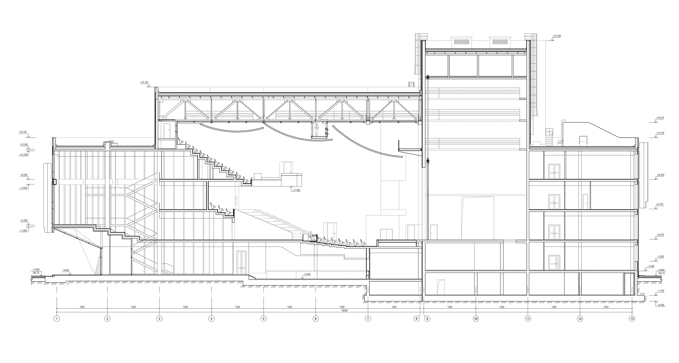
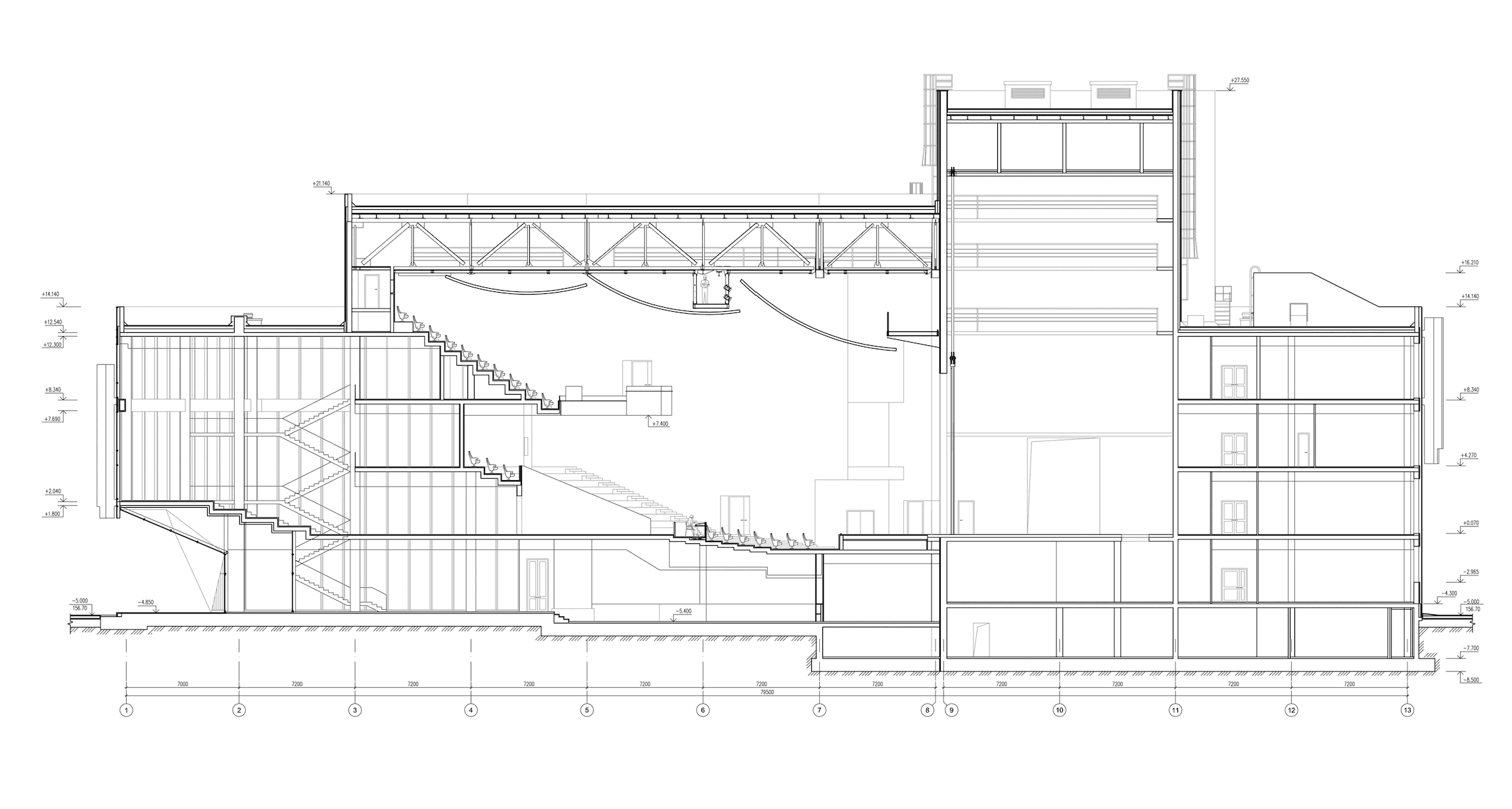
Зрительный зал имеет конфигурацию амфитеатра. Вестибюли и фойе всех четырех этажей связаны атриумом; особую динамику ему придают открытые лестницы. На первом уровне расположены входной вестибюль, гардеробы и санузлы. На втором – сцена и партерная часть зала, вестибюль второго этажа и фойе, где проводятся выставки, мастер-классы, творческие вечера и презентации. Административные, репетиционные и производственные помещения распределены по всем четырем этажам.
Киноконцертный зал «Пенза». Фотография © Александр Назаров. Архитектурное бюро «Март»
Киноконцертный зал «Пенза». Фотография © Александр Назаров. Архитектурное бюро «Март»
Киноконцертный зал «Пенза». Фотография © Сергей Анищенко. Архитектурное бюро «Март»
Киноконцертный зал «Пенза». Фотография © Сергей Анищенко. Архитектурное бюро «Март»
Киноконцертный зал «Пенза». Фотография © Сергей Анищенко. Архитектурное бюро «Март»
Киноконцертный зал «Пенза». Фотография © Сергей Анищенко. Архитектурное бюро «Март»
Киноконцертный зал «Пенза». Фотография © Сергей Анищенко. Архитектурное бюро «Март»
Киноконцертный зал «Пенза». Фотография © Сергей Анищенко. Архитектурное бюро «Март»
Киноконцертный зал «Пенза». Фотография © Сергей Анищенко. Архитектурное бюро «Март»
Киноконцертный зал «Пенза». Фотография © Сергей Анищенко. Архитектурное бюро «Март»
Киноконцертный зал «Пенза». Фотография © Сергей Анищенко. Архитектурное бюро «Март»
Киноконцертный зал «Пенза». Фотография © Сергей Анищенко. Архитектурное бюро «Март»
Киноконцертный зал «Пенза». Фотография © Сергей Анищенко. Архитектурное бюро «Март»
Киноконцертный зал «Пенза». Фотография © Сергей Анищенко. Архитектурное бюро «Март»
Киноконцертный зал «Пенза». Фотография © Сергей Анищенко. Архитектурное бюро «Март»
Киноконцертный зал «Пенза». Фотография © Сергей Анищенко. Архитектурное бюро «Март»
Киноконцертный зал «Пенза». Фотография © Сергей Анищенко. Архитектурное бюро «Март»
Киноконцертный зал «Пенза». Фотография © Сергей Анищенко. Архитектурное бюро «Март»
Киноконцертный зал «Пенза». Фотография © Сергей Анищенко. Архитектурное бюро «Март»
Киноконцертный зал «Пенза». Фотография © Сергей Анищенко. Архитектурное бюро «Март»
Киноконцертный зал «Пенза». Фотография © Сергей Анищенко. Архитектурное бюро «Март»
Киноконцертный зал «Пенза». Фотография © Сергей Анищенко. Архитектурное бюро «Март»
Киноконцертный зал «Пенза». Фотография © Сергей Анищенко. Архитектурное бюро «Март»
Киноконцертный зал «Пенза». Фотография © Сергей Анищенко. Архитектурное бюро «Март»
Киноконцертный зал «Пенза». Фотография © Сергей Анищенко. Архитектурное бюро «Март»
Киноконцертный зал «Пенза». Фотография © Сергей Анищенко. Архитектурное бюро «Март»
Киноконцертный зал «Пенза». Фотография © Сергей Анищенко. Архитектурное бюро «Март»
Киноконцертный зал «Пенза». Фотография © Сергей Анищенко. Архитектурное бюро «Март»
Киноконцертный зал «Пенза». Фотография © Сергей Анищенко. Архитектурное бюро «Март»
Киноконцертный зал «Пенза». Фотография © Сергей Анищенко. Архитектурное бюро «Март»
Киноконцертный зал «Пенза». Фотография © Сергей Анищенко. Архитектурное бюро «Март»
Киноконцертный зал «Пенза». Фотография © Сергей Анищенко. Архитектурное бюро «Март»
Киноконцертный зал «Пенза». Фотография © Сергей Анищенко. Архитектурное бюро «Март»
Киноконцертный зал «Пенза». Фотография © Сергей Анищенко. Архитектурное бюро «Март»
Киноконцертный зал «Пенза». Разрез © Архитектурное бюро «Март»
Киноконцертный зал «Пенза». Разрез © Архитектурное бюро «Март»
Киноконцертный зал «Пенза». Разрез © Архитектурное бюро «Март»
Киноконцертный зал «Пенза». Разрез © Архитектурное бюро «Март»
Киноконцертный зал «Пенза». План 1 этажа © Архитектурное бюро «Март»
Киноконцертный зал «Пенза». План 1 этажа © Архитектурное бюро «Март»
Киноконцертный зал «Пенза». План 2 этажа © Архитектурное бюро «Март»
Киноконцертный зал «Пенза». План 2 этажа © Архитектурное бюро «Март»
Киноконцертный зал «Пенза». План 3 этажа © Архитектурное бюро «Март»
Киноконцертный зал «Пенза». План 3 этажа © Архитектурное бюро «Март»