Размещено на портале Архи.ру (www.archi.ru)

03.03.2016

Навстречу архитектуре соучастия

Екатерина Ровнова
Объект:
Жилой комплекс в Нантере
Адрес:
Франция, None, Нантер.
Мастерская:
Mobile Architectural Office (MAO)
Tectône

Во французском городе Нантер реализован проект многоквартирного жилого дома, разработанный MaO architectes и Tectône совместно с будущими жильцами.

Жилой комплекс в Нантере © Arnaud Schelstraete
Жилой комплекс в Нантере © Arnaud Schelstraete

Архитекторы MaO architectes и Tectône позиционируют свою работу как первый реализованный во Франции жилой комплекс, где его будущие пользователи были вовлечены в процесс проектирования. Такая методология естественна при работе для индивидуального заказчика, но по понятным причинам не применяется в более крупном масштабе: появление жильца многоквартирного дома раньше появления самого дома возможно лишь при кооперативном строительстве или, что и произошло в Нантере, при социальной программе поддержки граждан со скромными доходами, покупающих жилье впервые в жизни (в данном случае речь идет о кредите типа PAS, prêt d’accession sociale). Типологически здание представляет собой «кохаузинг» (cooperative housing, co-housing) – многоквартирный дом с набором общих для всех жильцов помещений.
 
Жилой комплекс в Нантере © Arnaud Schelstraete
Жилой комплекс в Нантере © Arnaud Schelstraete

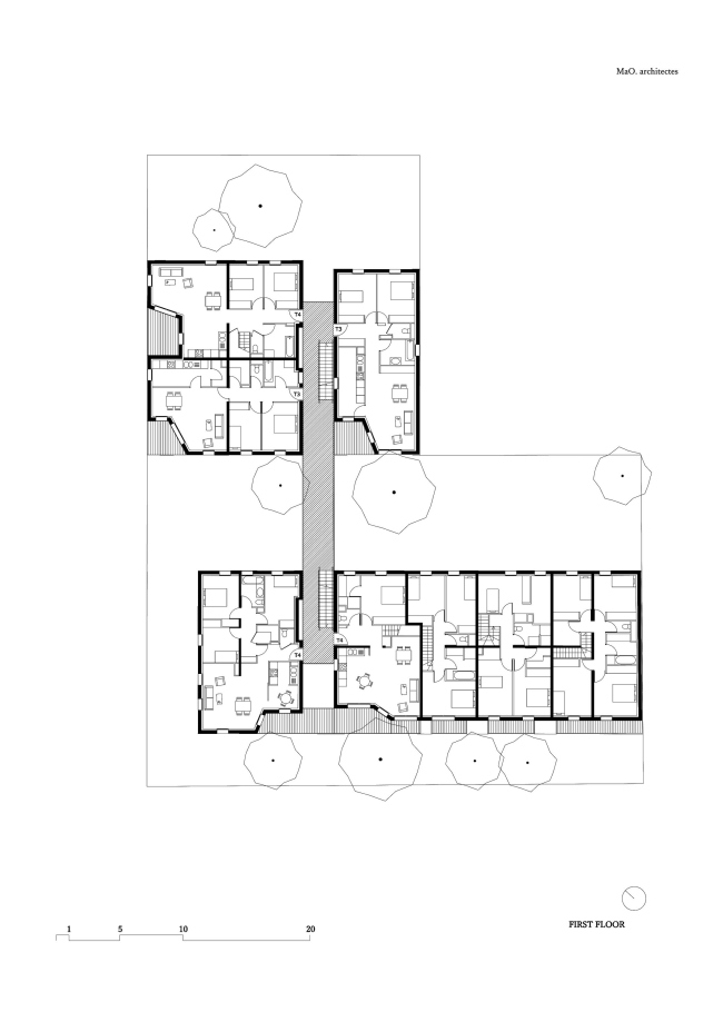
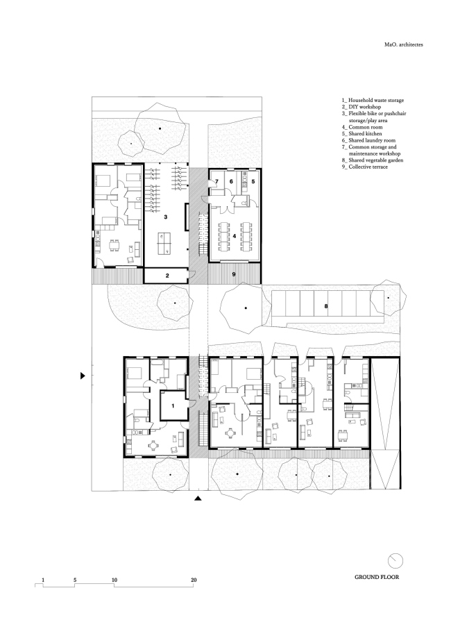
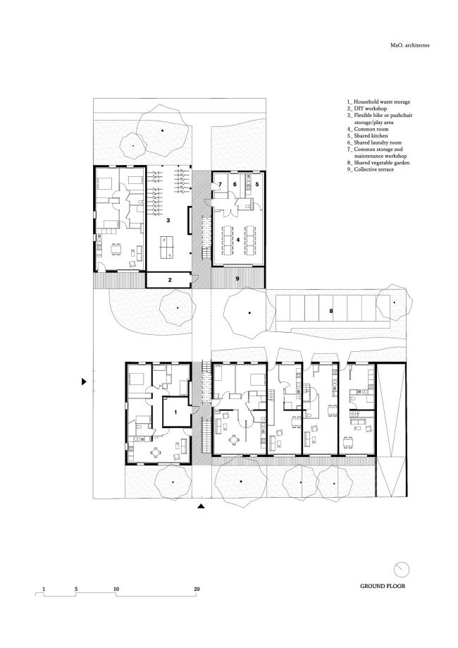
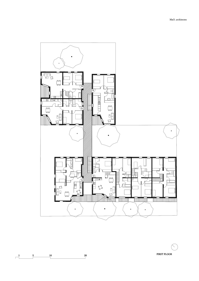
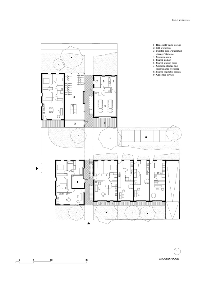
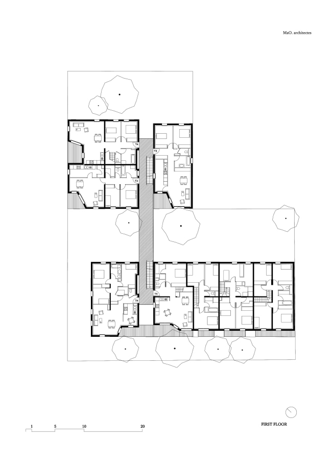
На 1580 м2 площади располагаются 15 квартир и пространства совместного пользования: подземный гараж, прачечная, мастерская, многофункциональный зал, использующийся как хранилище велосипедов и игровая зона, и общественная гостиная с кухней и террасой. Общие пространства находятся не только внутри здания, но и на открытом воздухе: внутренний двор-сад между корпусами, соединяющий корпуса мост и широкие галереи – не «транзитная зона», а «остановка», место пересечения и общения жителей, неотъемлемая часть среды совместного проживания.
 
Жилой комплекс в Нантере © Arnaud Schelstraete
Жилой комплекс в Нантере © Arnaud Schelstraete

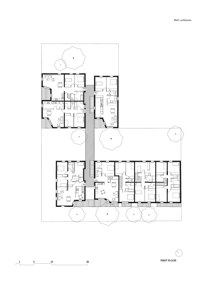
У шести из 15 квартир есть отдельный вход с земли и палисадник; в остальные квартиры можно попасть с галерей, а отсутствие палисадника компенсируется открытыми террасами и участком под огород во внутреннем дворе. В доме 6 двухуровневых и 9 одноуровневых разнообразно блокированных квартир с двумя, тремя и четырьмя спальнями. В каждой квартире – индивидуальная планировка, но она скорее регламентируется количеством помещений, месторасположением в здании и способом компоновки с соседними апартаментами, чем пожеланиями собственников. Единственный важный параметр, идентифицирующий предпочтения будущих жильцов – это расположение кухонной зоны. Полностью изолированную кухню выбрали только три семьи, еще трое жителей остановились на частичной перегородке, а в девяти квартирах кухня составляет единое помещение со столовой-гостиной. Более половины будущих жильцов предпочли большое пространство дроблению.
 
Жилой комплекс в Нантере © Arnaud Schelstraete
Жилой комплекс в Нантере © Arnaud Schelstraete

Два разнесенных объема удачно вписываются в существующую двух- и трехэтажную линию индивидуальных домов по узкой улице Ампер, типологически связывая ее застройку с многоквартирными зданиями поодаль. Несущий остов возведен из керамического кирпича, CLT-панели использованы в качестве конструкции крыши, кровля – цинковая, фасад облицован крашеными планками из древесины ели.
Жилой комплекс в Нантере © Arnaud Schelstraete
Жилой комплекс в Нантере © Arnaud Schelstraete
Жилой комплекс в Нантере © Arnaud Schelstraete
Жилой комплекс в Нантере © Arnaud Schelstraete
Жилой комплекс в Нантере © Arnaud Schelstraete
Жилой комплекс в Нантере © Arnaud Schelstraete
Жилой комплекс в Нантере © Arnaud Schelstraete
Жилой комплекс в Нантере © Arnaud Schelstraete
Жилой комплекс в Нантере © Luc Boegly
Жилой комплекс в Нантере © Luc Boegly
Жилой комплекс в Нантере © Luc Boegly
Жилой комплекс в Нантере © Luc Boegly
Жилой комплекс в Нантере © Arnaud Schelstraete
Жилой комплекс в Нантере © Arnaud Schelstraete
Жилой комплекс в Нантере © Luc Boegly
Жилой комплекс в Нантере © Luc Boegly
Жилой комплекс в Нантере © Arnaud Schelstraete
Жилой комплекс в Нантере © Arnaud Schelstraete
Жилой комплекс в Нантере © Arnaud Schelstraete
Жилой комплекс в Нантере © Arnaud Schelstraete
Жилой комплекс в Нантере © Arnaud Schelstraete
Жилой комплекс в Нантере © Arnaud Schelstraete
Жилой комплекс в Нантере © Arnaud Schelstraete
Жилой комплекс в Нантере © Arnaud Schelstraete
Жилой комплекс в Нантере © Arnaud Schelstraete
Жилой комплекс в Нантере © Arnaud Schelstraete
Жилой комплекс в Нантере © MaO architectes + Tectône
Жилой комплекс в Нантере © MaO architectes + Tectône
Жилой комплекс в Нантере © MaO architectes + Tectône
Жилой комплекс в Нантере © MaO architectes + Tectône
Жилой комплекс в Нантере © MaO architectes + Tectône
Жилой комплекс в Нантере © MaO architectes + Tectône
Жилой комплекс в Нантере © MaO architectes + Tectône
Жилой комплекс в Нантере © MaO architectes + Tectône
Жилой комплекс в Нантере © MaO architectes + Tectône
Жилой комплекс в Нантере © MaO architectes + Tectône
Жилой комплекс в Нантере © MaO architectes + Tectône
Жилой комплекс в Нантере © MaO architectes + Tectône
Жилой комплекс в Нантере © MaO architectes + Tectône
Жилой комплекс в Нантере © MaO architectes + Tectône
Жилой комплекс в Нантере © MaO architectes + Tectône
Жилой комплекс в Нантере © MaO architectes + Tectône
Жилой комплекс в Нантере © MaO architectes + Tectône
Жилой комплекс в Нантере © MaO architectes + Tectône