Размещено на портале Архи.ру (www.archi.ru)

02.03.2016

Модернизм устал

Лилия Аронова
Объект:
Жилой комплекс в Калуге
Адрес:
Россия, Калуга. ул. Огарева, д. 60
Архитектор:
Александр Асадов
Мастерская:
ГрандПроектСити
Авторский коллектив:
Главный архитектор проекта: Зарубина А.В.
Архитекторы: Завадовский П.Е., Силачева И.Н., Березин В.И., Калинин А.О., Сиников Е.А., Галета И.В.

Для центра Калуги Александр Асадов и Карен Сапричян разработали проект жилого комплекса, соединившего в себе целый ряд архетипов современной архитектуры и при этом деликатно взаимодействующего с историческим окружением.

Жилой комплекс в Калуге. Проект, 2015 © ГрандПроектСити
Жилой комплекс в Калуге. Проект, 2015 © ГрандПроектСити

Исторический центр Калуги. Скверы и церкви, классицизм и ампир, купеческие особняки, типовые пятиэтажки и остатки деревянной «двухэтажной Калуги» разной степени сохранности. Через улицу – Театральная площадь с неоклассической колоннадой здания драмтеатра, которым калужане очень гордятся; с другой стороны – дом-музей родоначальника русского космизма Александра Чижевского. Вот в таком окружении находится участок, на котором Александр Асадов и Карен Сапричян строят новый жилой комплекс. Известный «мастер борьбы и взрыва», лет двадцать назад Асадов наверняка и здесь бы выстрелил чем-нибудь радикально-криволинейным, взорвав сонную патриархальность древнего города. Но не теперь.

«Мы долго мучились в поисках решения, которое помогло бы нашему дому хоть как-то войти в контекст, – рассказывает Александр Асадов. – Хотелось уйти от прямого модернизма, который немножко устал и ищет сегодня разные пути: кто-то из архитекторов идет в историзм, кто-то в экологию, в «зелёное» строительство… Мы здесь осознанно решили делать эклектичный дом, в какой-то степени даже провинциальный, несмотря на солидные размеры. Столкнуть самые разные архетипы, создать, с одной стороны, целостную композицию, с другой – чтобы она вызывала целый ряд каких-то аллюзий, воспоминаний, для каждого человека своих. Этот проект – отголосок наших внутренних поисков того пути, по которому стоит идти дальше».

В плане жилой комплекс представляет собой почти традиционный квартал, открытый на юг и состоящий из двух трехсекционных жилых корпусов – благодаря соединяющей их четырехуровневой галерее с главного фасада они выглядят как единый объём – и замыкающего двор здания апартаментов, которое также складывается из двух блоков, связанных двухэтажным помещением фитнес-центра. Такое решение, выглядящее вполне логичным, на самом деле продиктовано суровой необходимостью, а конкретно – тем загадочным обстоятельством, что вдоль южной стороны территории застройки проходит санитарная зона давным-давно не существующей макаронной фабрики. Из-за этой «улыбки Чеширского кота» здесь удалось расположить только компактные шестиэтажные корпуса апартаментов. Главный же, парадный фасад обращен на север, к улице Огарева и музею Чижевского.
Жилой комплекс в Калуге. Общий вид. Проект, 2015 © ГрандПроектСити
Жилой комплекс в Калуге. Общий вид. Проект, 2015 © ГрандПроектСити
Жилой комплекс в Калуге. Вид с высоты птичьего полета. Проект, 2015 © ГрандПроектСити
Жилой комплекс в Калуге. Вид с высоты птичьего полета. Проект, 2015 © ГрандПроектСити
Жилой комплекс в Калуге. Генеральный план. Проект, 2015 © ГрандПроектСити
Жилой комплекс в Калуге. Генеральный план. Проект, 2015 © ГрандПроектСити

Строительство парадоксальным образом было разрешено аж до шестнадцати этажей – это в центре провинциального города, где даже современная застройка выше отдельных девятиэтажек пока не поднялась. К чести заказчика, он не особенно стремился использовать всю разрешенную высоту, и совместными с ним усилиями архитекторам удалось снизить этажность до тринадцати. Для того, чтобы здание органично вписалось в контекст и этой высоты, по большому счёту, было многовато, так что дальше пришлось действовать архитектурными средствами.

Первое, что придумали авторы проекта, – чёткое членение по высоте. Здесь отлично сработал прием «второй земли»: до шестого этажа – примерный уровень окружающей застройки – здание представляет собой, в сущности, гигантский стилобат, солидный, приземистый, отбитый поверху широким карнизом и для пущего «почвенного» эффекта облицованный красным кирпичом. Такая отделка несёт в себе и ещё одну коннотацию: хотя к тому моменту, когда здесь появились московские архитекторы, площадка под строительство была уже очищена, местные жители хорошо помнят краснокирпичные корпуса располагавшегося здесь до последнего времени завода «Калужский автоприбор».
Жилой комплекс в Калуге. Проект, 2015 © ГрандПроектСити
Жилой комплекс в Калуге. Проект, 2015 © ГрандПроектСити

Массивный горизонтальный объем, хорошо работающий с окружением и формирующий строй улицы, прерывается высоким, в четыре этажа, портальным входом во двор, соединенным с корпусами четырехуровневой жилой галереей. Арка, фланкированная двумя порталами поменьше, сообщает фасаду парадную монументальность совсем не провинциальной, а вполне столичной архитектуры тридцатых годов, добавляет объему легкости и перекликается цветом с верхними этажами, которые авторы проекта представили себе в виде «больших коттеджей», выстроенных на кровле кирпичного здания и облицованных светлым керамогранитом. Первые два уровня – чистый Ле Корбюзье: высокие, в два этажа закругленные колонны на фоне витражного остекления немедленно вызывают ассоциацию с «ножками» виллы Савой. То, что повыше, больше всего похоже на современные городские особняки в новом дорогом районе какого-нибудь европейского города: умеренная этажность, одна-две квартиры на этаже, много стекла, террасы, эксплуатируемая кровля. Интересно, что для двух корпусов комплекса высоту архитекторы предусмотрели разную: 11 и 13 этажей. Помимо стремления сделать объём легче и разнообразнее, в таком решении есть определенная деликатность по отношению к контексту. Во-первых, девятиэтажки подступают к участку как раз со стороны более высокого западного корпуса, а с востока застройка ниже. Во-вторых, именно с этой стороны проходит одна из главных магистралей Калуги – Московская улица, по которой в город въезжают со стороны столицы. Учитывая, что на настоящий момент спроектированный Асадовым и Сапричяном дом должен стать высотной доминантой центра Калуги, архитекторам не хотелось, чтобы взглядам приезжающих открывался подавляющий окружение массивный объем. В данном же варианте он будет выглядеть как два здания – светлых, визуально легких благодаря большому количеству стекла и при этом разных: вдалеке – повыше, перед ним – тот, что поменьше.
Жилой комплекс в Калуге. Фотомонтаж. Проект, 2015 © ГрандПроектСити
Жилой комплекс в Калуге. Фотомонтаж. Проект, 2015 © ГрандПроектСити
Жилой комплекс в Калуге. Фотомонтаж. Проект, 2015 © ГрандПроектСити
Жилой комплекс в Калуге. Фотомонтаж. Проект, 2015 © ГрандПроектСити
Жилой комплекс в Калуге. Проект, 2015 © ГрандПроектСити
Жилой комплекс в Калуге. Проект, 2015 © ГрандПроектСити

Пластическое решение фасадов также не оставляет монотонности ни малейшего шанса. Эркеры и террасы, карнизы и консоли, выступы, уступы, галереи, балконы и балкончики – все разбито и расчленено, никакой статики, сплошная динамика, дом живет, движется, дышит, вступая в активный диалог с наблюдателем и окружающей средой. Особенно это заметно со стороны двора, где, по образному выражению архитекторов, они «позволили себе немножко расслабиться, облачившись в полосатую пижаму» – в противовес строгому дресс-коду «white tie» парадного фасада. Роль белой бабочки здесь выполняет арка, на контрасте с терракотой основной массы шестиэтажного стилобата облицованная светлым керамогранитом. «Белый верх» и «темный низ», при всех своих типологических различиях, составляют одно гармоничное целое: светлые корбюзеанские колонны дисциплинированно продолжают вертикали кирпичных простенков, витражи не нарушают ритм широких окон, горизонтали карнизов и навесов вторят линии «земли». По центру каждого из корпусов, чуть отступив вглубь от линии простенков, поднимается глухая кирпичная полоса, за которой располагается эвакуационная лестница; словно в качестве компенсации над карнизом ей отвечает квадратный, в два этажа, стеклянный фрагмент. Насквозь просматривающиеся галереи по бокам и вокруг портала – здесь будут лоджии и панорамные гостиные прилегающих квартир – предваряют архитектурно оформленную пустоту синего неба между корпусами. В ответ на визуальное объединение двух этажей «виллы» внизу появляется такая же двухуровневая галерея, только не воздушно-белая, а кирпичная, с твердо стоящими на земле прямоугольными опорами и отданным под ритейл первым этажом с витринами. Вдоль галереи само собой напрашивается озеленение, хотя бы в виде газона, – говорят архитекторы, – хочется, насколько позволит климат, озеленить и открытые террасы, и кровлю.
Жилой комплекс в Калуге. Проект, 2015 © ГрандПроектСити
Жилой комплекс в Калуге. Проект, 2015 © ГрандПроектСити

Эффект «пижамной» полосатости дворовых фасадов достигается благодаря более вольному, чем по улице, чередованию видов отделки. Как обшлага костюма, во двор «выворачивается» кирпичная облицовка портальной галереи, в остальном же в отделке больше белого, который перемежается кирпичными вставками разной высоты – уровнем «второй земли» архитекторы здесь себя не ограничивают. Вставки создают эффект вертикальных полос, сплошное остекление лоджий – горизонтальных, так что кое-где получаются клетки. Поскольку двор полностью располагается на крыше двухэтажного подземного паркинга, объединяющего весь комплекс, для посадки растений на нём предлагается разместить насыпные холмы, которые заодно послужат границами функциональных зон. За счет перепада рельефа с южной стороны крыша паркинга окажется выше уровня земли – её предлагается обваловать и возвести на ней шестиэтажный объём апартаментов.

Квартирография достаточно разнообразна: предусмотрено много типов квартир с различными промежуточными пространствами. Метражи скромные, что в значительной мере компенсируется продуманными планировками и большим количеством света: подоконники везде невысокие, много «французских» окон с балкончиками. Подъезды в основном расположены во дворе, но угловые Г-образные секции получили вторые лестницы, попасть на которые можно и с улицы.
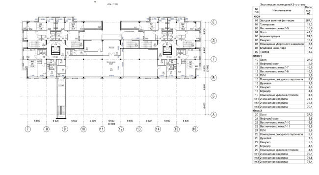
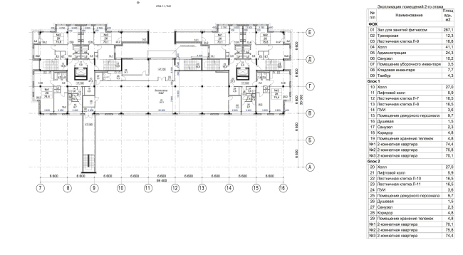
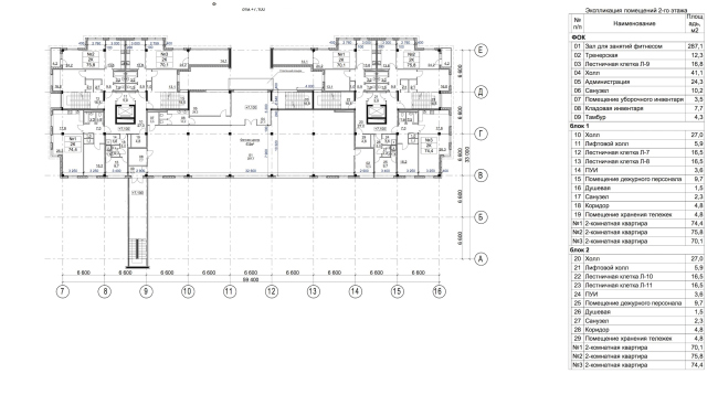
Жилой комплекс в Калуге. План 2 этажа. Апартаменты, ФОК. Проект, 2015 © ГрандПроектСити
Жилой комплекс в Калуге. План 2 этажа. Апартаменты, ФОК. Проект, 2015 © ГрандПроектСити
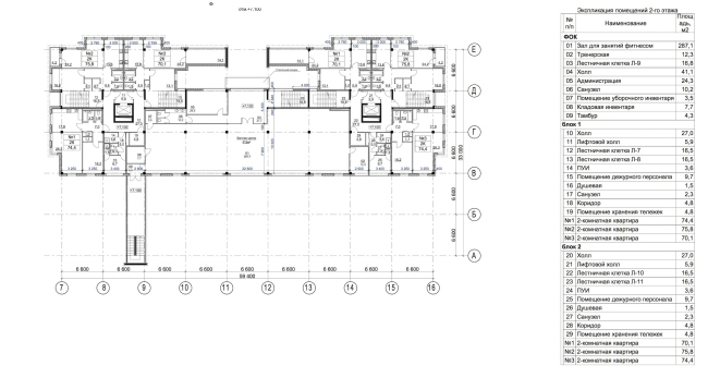
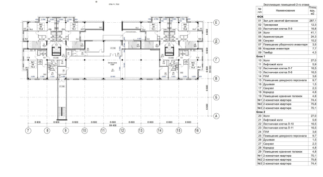
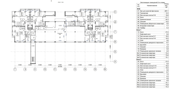
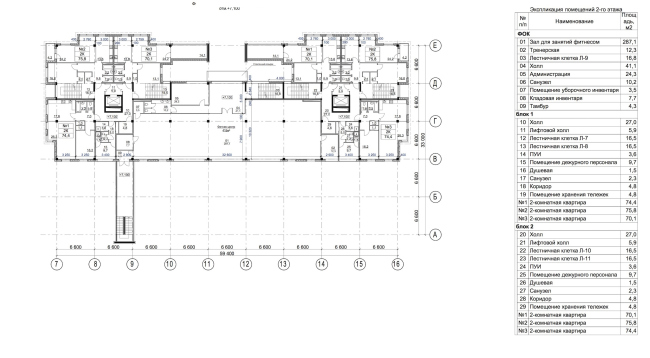
Жилой комплекс в Калуге. План 5 этажа. Жилой корпус. Проект, 2015 © ГрандПроектСити
Жилой комплекс в Калуге. План 5 этажа. Жилой корпус. Проект, 2015 © ГрандПроектСити

И еще одну интригу архитекторы предусмотрели для жителей Калуги. Вдоль парадного фасада, на карнизе, они предлагают поставить скульптуры – памятники выдающимся личностям. Кто именно удостоится чести быть увековеченным на фасаде жилого комплекса, авторы предоставили решать горожанам. «Ну да, это такая маленькая провокация, – не отрицает Александр Асадов. – Будут ли это конкретные люди или некие аллегории, великие люди или простые жители города, наши современники? У нас замыслов нет, это элемент проекта, который нам пока до конца неизвестен. Ожидаем интересных дискуссий!». Ну а учитывая, что один из авторов проекта Карен Сапричян – не только архитектор, но и скульптор, за художественную сторону «элемента Икс» можно особенно не волноваться.
Жилой комплекс в Калуге. Фрагмент фасада. Проект, 2015 © ГрандПроектСити
Жилой комплекс в Калуге. Фрагмент фасада. Проект, 2015 © ГрандПроектСити

P.S. Александр Асадов и Карен Сапричян выражают благодарность архитектору Петру Завадовскому за увлекательные беседы об архитектуре, благодаря которым во многом и родилось решение данного проекта.
 
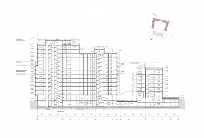
Жилой комплекс в Калуге. Разрез. Проект, 2015 © ГрандПроектСити
Жилой комплекс в Калуге. Разрез. Проект, 2015 © ГрандПроектСити
Жилой комплекс в Калуге. Разрез. Проект, 2015 © ГрандПроектСити
Жилой комплекс в Калуге. Разрез. Проект, 2015 © ГрандПроектСити
Жилой комплекс в Калуге. Разрез. Проект, 2015 © ГрандПроектСити
Жилой комплекс в Калуге. Разрез. Проект, 2015 © ГрандПроектСити
Жилой комплекс в Калуге. Разрез. Проект, 2015 © ГрандПроектСити
Жилой комплекс в Калуге. Разрез. Проект, 2015 © ГрандПроектСити