Размещено на портале Архи.ру (www.archi.ru)

10.02.2016

Спортзал за занавесом

Нина Фролова
Объект:
Спортивный зал гимназий им. Кеплера и им. Гумбольдта
Адрес:
Германия, None, Ульм.
Мастерская:
h4a

Спортивный корпус для гимназий им. Кеплера и им. Гумбольдта в Ульме по проекту бюро h4a.

Спортивный зал гимназий им. Кеплера и им. Гумбольдта © Zooey Braun  www.zooey-braun.de
Спортивный зал гимназий им. Кеплера и им. Гумбольдта © Zooey Braun www.zooey-braun.de

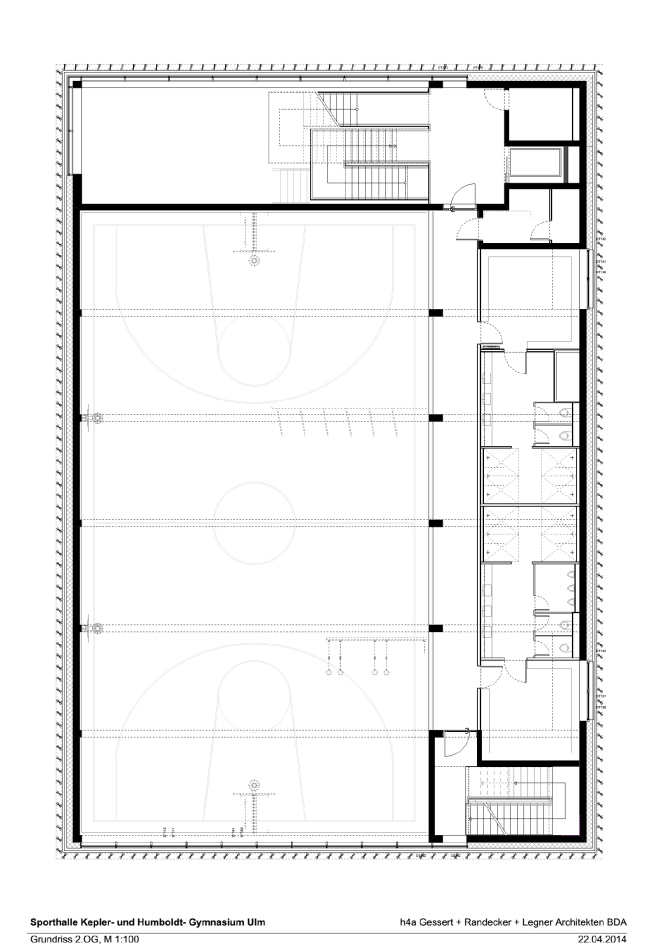
Новый физкультурный корпус обслуживает одновременно две находящиеся рядом гимназии – имени Иоганна Кеплера и имени Александра фон Гумбольдта. Также в его трех спортивных залах занимаются ученики других школ и объединений центра Ульма.
 
Спортивный зал гимназий им. Кеплера и им. Гумбольдта © Zooey Braun  www.zooey-braun.de
Спортивный зал гимназий им. Кеплера и им. Гумбольдта © Zooey Braun www.zooey-braun.de

Новое здание – важная часть плана развития «Стратегия будущего – центр города 2020». В его рамках предполагается вернуть улице Ольгаштрассе, где расположен спортзал, прежний облик с импозантной застройкой XIX века и озеленением по типу бульвара.
 
Спортивный зал гимназий им. Кеплера и им. Гумбольдта © Zooey Braun  www.zooey-braun.de
Спортивный зал гимназий им. Кеплера и им. Гумбольдта © Zooey Braun www.zooey-braun.de

Фасад новой постройки с алюминиевыми ламелями напоминает занавес; в зависимости от характера помещений за ним, этот «занавес» сделан проницаемым или непрозрачным. Так, архитекторы продумали перспективные виды с улицы в спортзалы, чтобы создать связь между интерьером и городом вокруг, а также пояснить пешеходам назначение постройки, которое сложно распознать по ее облику.
 
Спортивный зал гимназий им. Кеплера и им. Гумбольдта © Zooey Braun  www.zooey-braun.de
Спортивный зал гимназий им. Кеплера и им. Гумбольдта © Zooey Braun www.zooey-braun.de

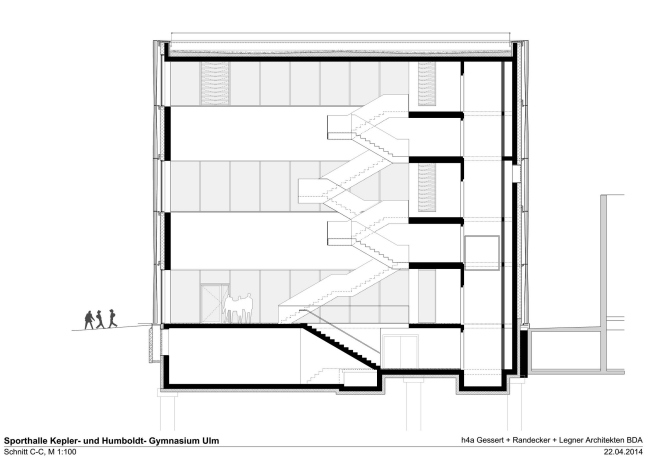
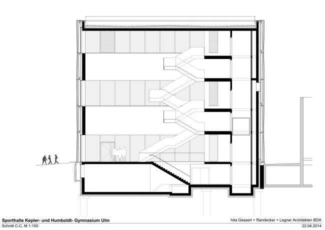
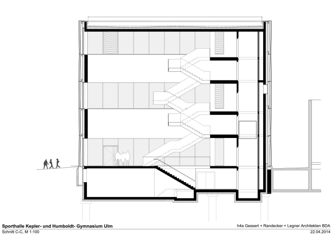
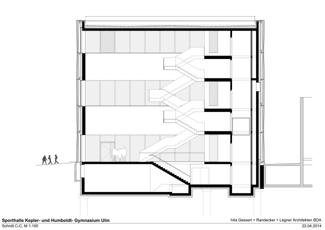
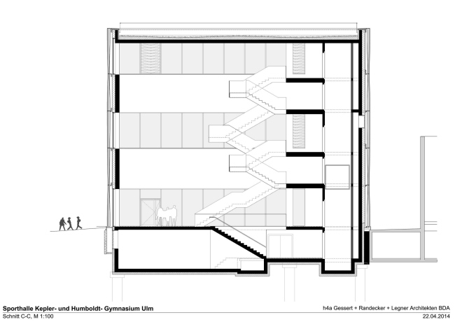
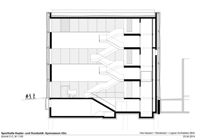
Ключевое место в интерьере занимает «скульптурная» лестница, соединяющая все три яруса здания.
 
Спортивный зал гимназий им. Кеплера и им. Гумбольдта © Zooey Braun  www.zooey-braun.de
Спортивный зал гимназий им. Кеплера и им. Гумбольдта © Zooey Braun www.zooey-braun.de
Спортивный зал гимназий им. Кеплера и им. Гумбольдта © Zooey Braun   www.zooey-braun.de
Спортивный зал гимназий им. Кеплера и им. Гумбольдта © Zooey Braun www.zooey-braun.de
Спортивный зал гимназий им. Кеплера и им. Гумбольдта © Zooey Braun  www.zooey-braun.de
Спортивный зал гимназий им. Кеплера и им. Гумбольдта © Zooey Braun www.zooey-braun.de
Спортивный зал гимназий им. Кеплера и им. Гумбольдта © Zooey Braun  www.zooey-braun.de
Спортивный зал гимназий им. Кеплера и им. Гумбольдта © Zooey Braun www.zooey-braun.de
Спортивный зал гимназий им. Кеплера и им. Гумбольдта © Zooey Braun  www.zooey-braun.de
Спортивный зал гимназий им. Кеплера и им. Гумбольдта © Zooey Braun www.zooey-braun.de
Спортивный зал гимназий им. Кеплера и им. Гумбольдта © Zooey Braun  www.zooey-braun.de
Спортивный зал гимназий им. Кеплера и им. Гумбольдта © Zooey Braun www.zooey-braun.de
Спортивный зал гимназий им. Кеплера и им. Гумбольдта © h4a
Спортивный зал гимназий им. Кеплера и им. Гумбольдта © h4a
Спортивный зал гимназий им. Кеплера и им. Гумбольдта © h4a
Спортивный зал гимназий им. Кеплера и им. Гумбольдта © h4a
Спортивный зал гимназий им. Кеплера и им. Гумбольдта © h4a
Спортивный зал гимназий им. Кеплера и им. Гумбольдта © h4a
Спортивный зал гимназий им. Кеплера и им. Гумбольдта © h4a
Спортивный зал гимназий им. Кеплера и им. Гумбольдта © h4a
Спортивный зал гимназий им. Кеплера и им. Гумбольдта © h4a
Спортивный зал гимназий им. Кеплера и им. Гумбольдта © h4a