Размещено на портале Архи.ру (www.archi.ru)

05.02.2016

Мы пришли сегодня в порт

Анна Старостина
Объект:
Административный центр порта Орхуса
Адрес:
Дания, None, Орхус.
Мастерская:
C. F. Møller

Здание администрации порта Орхуса от C.F. Møller Architects призвано понравиться абсолютно всем.

Административный центр порта Орхуса © Julian Weyer
Административный центр порта Орхуса © Julian Weyer

Второй по значению город Дании уже привычно становится одним из важных ньюсмейкеров в области современной архитектуры. Вслед за набережной с ее библиотекой, офисным комплексом и жилыми зданиями меняется и сам порт. Новый административный центр этого сложнейшего «организма» возник в довольно отдаленной и мало привлекательной части района. Тем не менее, место выгодное – благодаря эффектным морским видам, близости основных терминалов и отсутствию серьезных ограничений.
Административный центр порта Орхуса © Julian Weyer
Административный центр порта Орхуса © Julian Weyer

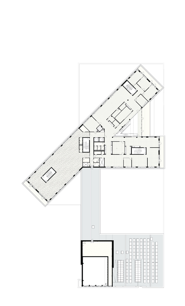
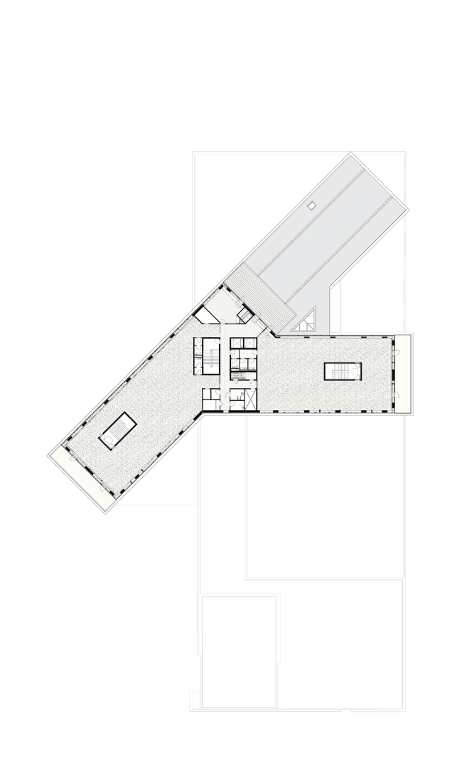
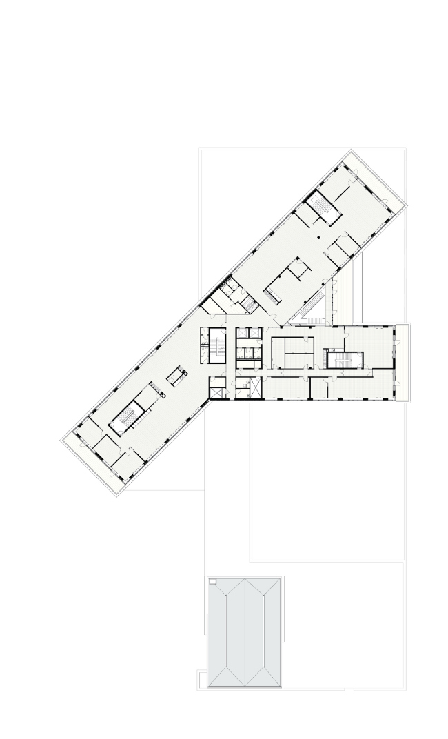
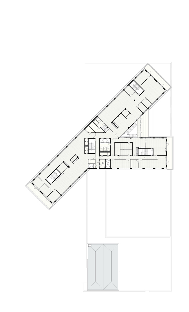
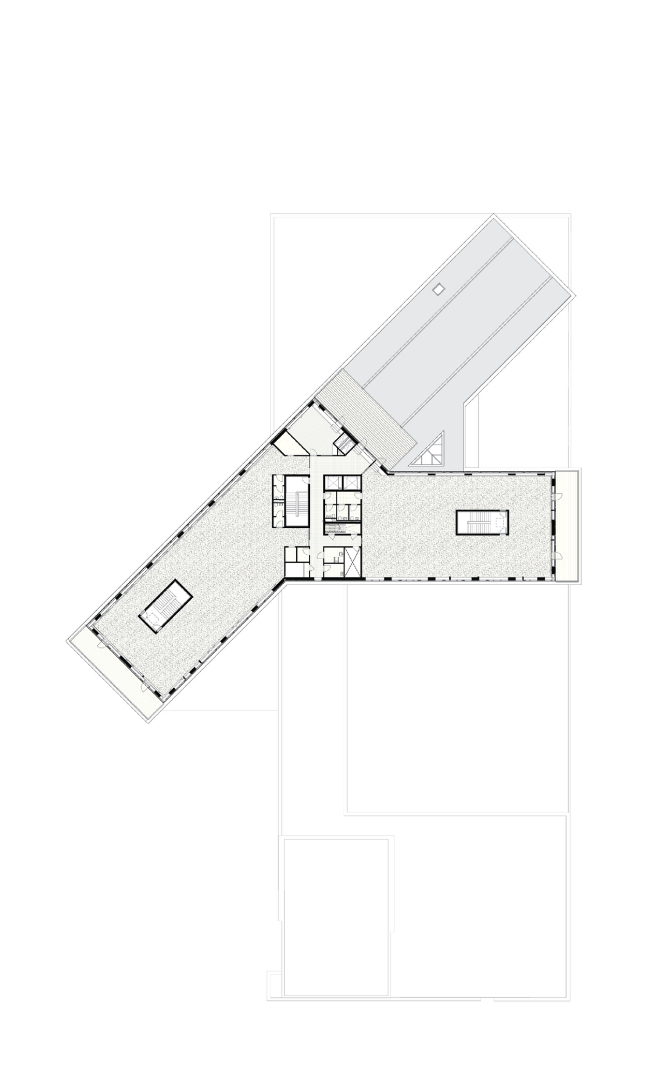
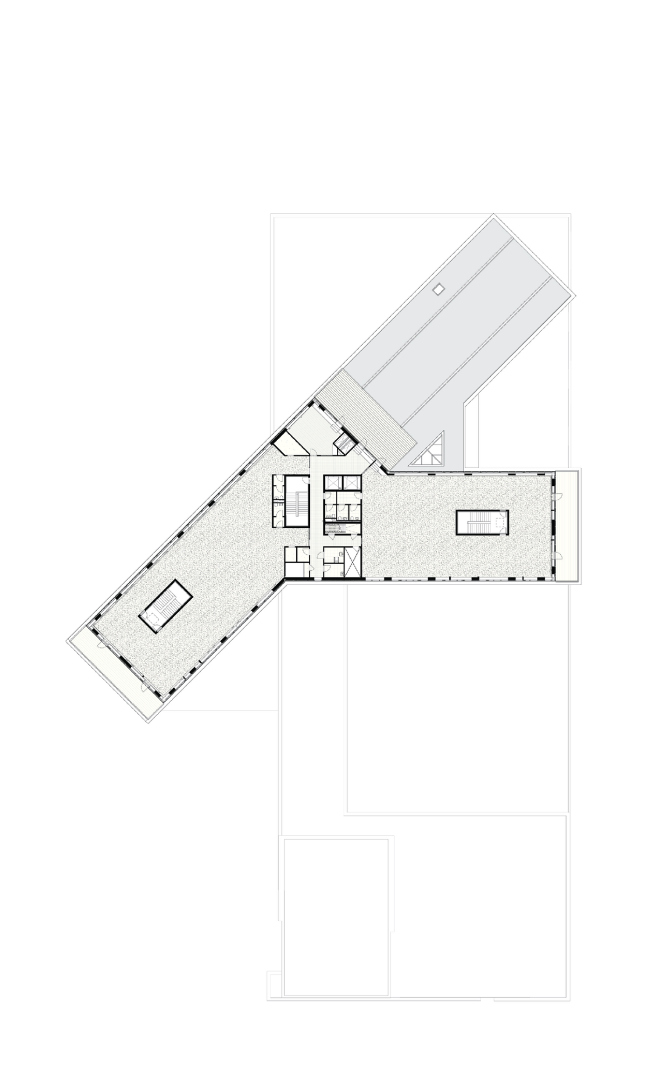
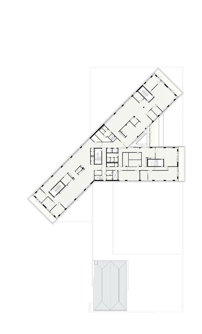
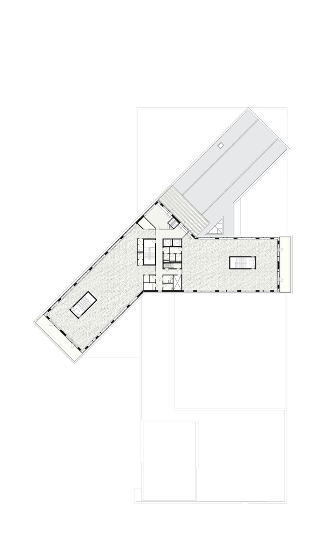
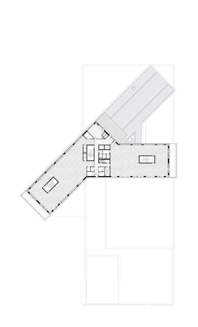
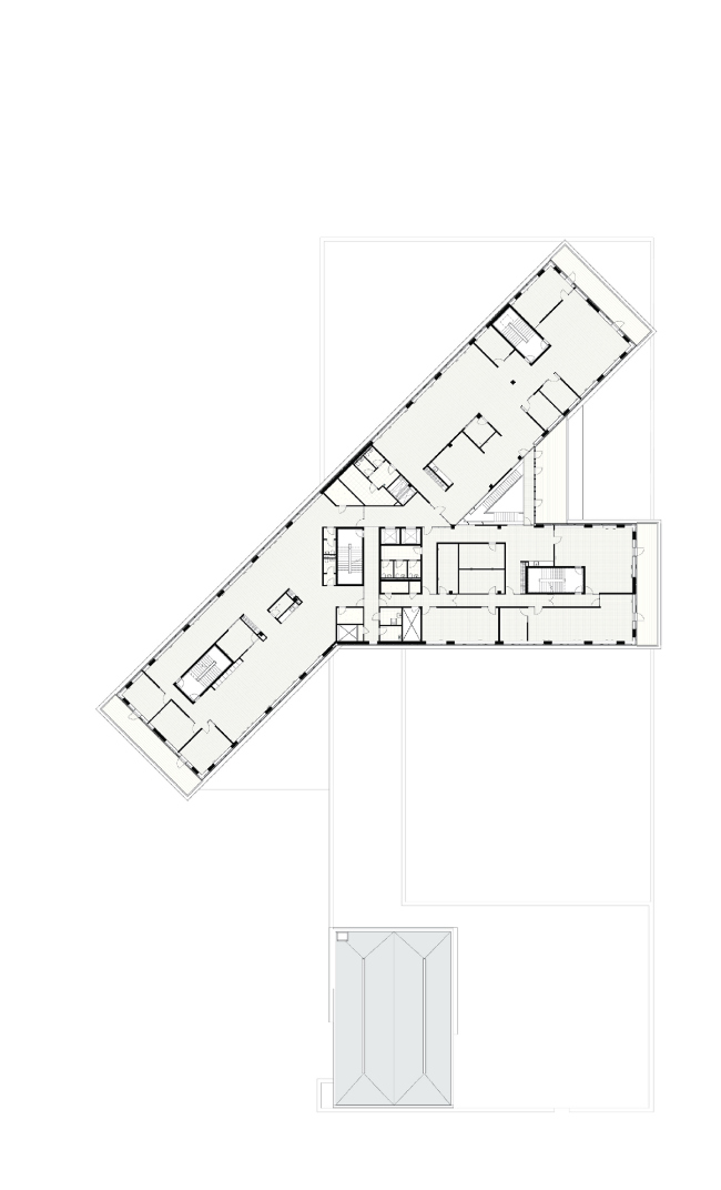
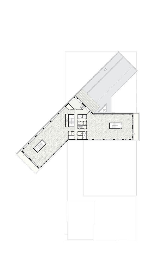
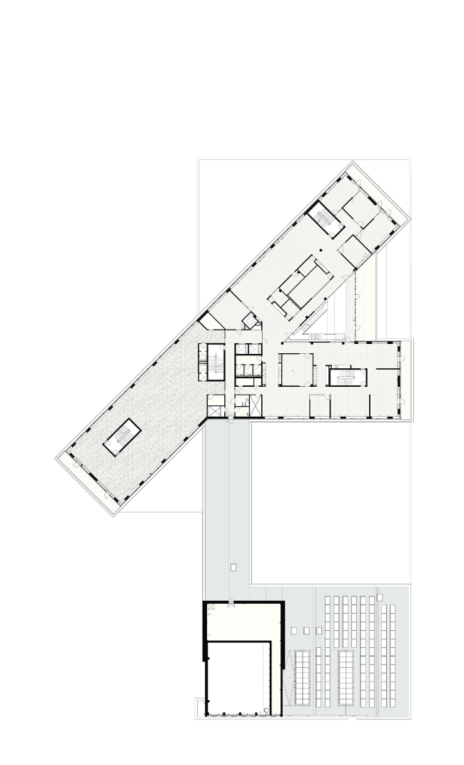
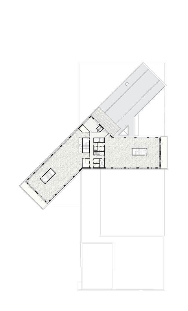
В задачу архитекторов входило объединить в одном объеме все портовые службы, прежде рассредоточенные по внушительной территории. Для этого пришлось искать некий универсальный «язык», понятный и комфортный как для разного рода офисных служащих, так и для докеров или водителей фур. Посетителей здесь также предполагается немало – от младших школьников до представительных международных делегаций. Неудивительно, что в качестве источника своего вдохновения архитекторы называют довольно очевидный и хорошо понятный образ – кристаллы льда. Они как будто разрастаются от центрального треугольного атриума. Кроме того, такая композиция обеспечивает возможность дальнейшего расширения здания за счет новых крыльев.
Административный центр порта Орхуса © Julian Weyer
Административный центр порта Орхуса © Julian Weyer

В целом же пятиэтажная постройка площадью 13 000 м2 напоминает, скорее, аккуратно сложенные в «стопку» угловатые массивные льдины. Они нависают над застекленными помещениями, образуя защищенные террасы и балконы, доступные практически из любой зоны. Кроме администрации порта, здесь находятся посетительский центр, управление службы безопасности, мастерские, склады, общедоступный кафетерий, а также столовая и социальные службы для сотрудников. Отдельно предусмотрены офисные блоки, их могут арендовать частные компании, чей бизнес так или иначе связан с портом.
Административный центр порта Орхуса © Julian Weyer
Административный центр порта Орхуса © Julian Weyer

Материалы для внутренней отделки архитекторы выбрали опять же довольно простые и идеологически близкие, но эффектные: бетон, метал, мореный дуб (вернее, обрезки, оставшиеся при производстве напольной доски). В качестве основного цветового акцента использован оранжевый, в который выкрашены, например, лестницы и их решетчатые ограждения. И конечно же, нельзя было обойтись без полного набора технологических приемов устойчивого строительства: озелененная крыша, солнечные батареи, максимальное использование солнечного тепла и дневного света, экономичные светодиоды, вентиляция с системой регенерации тепла, повышенная звукоизоляция, безопасные материалы и многое другое.
Административный центр порта Орхуса © Julian Weyer
Административный центр порта Орхуса © Julian Weyer
Административный центр порта Орхуса © Julian Weyer
Административный центр порта Орхуса © Julian Weyer
Административный центр порта Орхуса © Julian Weyer
Административный центр порта Орхуса © Julian Weyer
Административный центр порта Орхуса © Julian Weyer
Административный центр порта Орхуса © Julian Weyer
Административный центр порта Орхуса © Julian Weyer
Административный центр порта Орхуса © Julian Weyer
Административный центр порта Орхуса © Julian Weyer
Административный центр порта Орхуса © Julian Weyer
Административный центр порта Орхуса © Julian Weyer
Административный центр порта Орхуса © Julian Weyer
Административный центр порта Орхуса © Julian Weyer
Административный центр порта Орхуса © Julian Weyer
Административный центр порта Орхуса © Julian Weyer
Административный центр порта Орхуса © Julian Weyer
Административный центр порта Орхуса © Julian Weyer
Административный центр порта Орхуса © Julian Weyer
Административный центр порта Орхуса © Julian Weyer
Административный центр порта Орхуса © Julian Weyer
Административный центр порта Орхуса © Julian Weyer
Административный центр порта Орхуса © Julian Weyer
Административный центр порта Орхуса © Julian Weyer
Административный центр порта Орхуса © Julian Weyer
Административный центр порта Орхуса © Julian Weyer
Административный центр порта Орхуса © Julian Weyer
Административный центр порта Орхуса © Julian Weyer
Административный центр порта Орхуса © Julian Weyer
Административный центр порта Орхуса © Søren Bülow
Административный центр порта Орхуса © Søren Bülow
Административный центр порта Орхуса © Julian Weyer
Административный центр порта Орхуса © Julian Weyer
Административный центр порта Орхуса © Julian Weyer
Административный центр порта Орхуса © Julian Weyer
Административный центр порта Орхуса © Julian Weyer
Административный центр порта Орхуса © Julian Weyer
Административный центр порта Орхуса © Julian Weyer
Административный центр порта Орхуса © Julian Weyer
Административный центр порта Орхуса © Julian Weyer
Административный центр порта Орхуса © Julian Weyer
Административный центр порта Орхуса © Julian Weyer
Административный центр порта Орхуса © Julian Weyer
Административный центр порта Орхуса © Julian Weyer
Административный центр порта Орхуса © Julian Weyer
Административный центр порта Орхуса © Julian Weyer
Административный центр порта Орхуса © Julian Weyer
Административный центр порта Орхуса © Julian Weyer
Административный центр порта Орхуса © Julian Weyer
Административный центр порта Орхуса © Julian Weyer
Административный центр порта Орхуса © Julian Weyer
Административный центр порта Орхуса © Julian Weyer
Административный центр порта Орхуса © Julian Weyer
Административный центр порта Орхуса © Julian Weyer
Административный центр порта Орхуса © Julian Weyer
Административный центр порта Орхуса © Julian Weyer
Административный центр порта Орхуса © Julian Weyer
Административный центр порта Орхуса © Julian Weyer
Административный центр порта Орхуса © Julian Weyer
Административный центр порта Орхуса © Julian Weyer
Административный центр порта Орхуса © Julian Weyer
Административный центр порта Орхуса © Julian Weyer
Административный центр порта Орхуса © Julian Weyer
Административный центр порта Орхуса © Julian Weyer
Административный центр порта Орхуса © Julian Weyer
Административный центр порта Орхуса © Julian Weyer
Административный центр порта Орхуса © Julian Weyer
Административный центр порта Орхуса © Julian Weyer
Административный центр порта Орхуса © Julian Weyer
Административный центр порта Орхуса © Julian Weyer
Административный центр порта Орхуса © Julian Weyer
Административный центр порта Орхуса © Julian Weyer
Административный центр порта Орхуса © Julian Weyer
Административный центр порта Орхуса © Julian Weyer
Административный центр порта Орхуса © Julian Weyer
Административный центр порта Орхуса © C.F. Møller Architects
Административный центр порта Орхуса © C.F. Møller Architects
Административный центр порта Орхуса © C.F. Møller Architects
Административный центр порта Орхуса © C.F. Møller Architects
Административный центр порта Орхуса © C.F. Møller Architects
Административный центр порта Орхуса © C.F. Møller Architects
Административный центр порта Орхуса © C.F. Møller Architects
Административный центр порта Орхуса © C.F. Møller Architects
Административный центр порта Орхуса © C.F. Møller Architects
Административный центр порта Орхуса © C.F. Møller Architects
Административный центр порта Орхуса © C.F. Møller Architects
Административный центр порта Орхуса © C.F. Møller Architects
Административный центр порта Орхуса © C.F. Møller Architects
Административный центр порта Орхуса © C.F. Møller Architects
Административный центр порта Орхуса © C.F. Møller Architects
Административный центр порта Орхуса © C.F. Møller Architects
Административный центр порта Орхуса © C.F. Møller Architects
Административный центр порта Орхуса © C.F. Møller Architects
Административный центр порта Орхуса © C.F. Møller Architects
Административный центр порта Орхуса © C.F. Møller Architects
Административный центр порта Орхуса © C.F. Møller Architects
Административный центр порта Орхуса © C.F. Møller Architects
Административный центр порта Орхуса © C.F. Møller Architects
Административный центр порта Орхуса © C.F. Møller Architects