Размещено на портале Архи.ру (www.archi.ru)

04.02.2016

Студенты вместо сталеваров

Нина Фролова
Объект:
Дом знаний – корпус Университета Люксембурга
Адрес:
Люксембург, None, Эш-сюр-Альзетт.
Мастерская:
Baumschlager Eberle Architekten

В Люксембурге бюро be baumschlager eberle построило университетский «Дом знаний» на месте сталелитейного завода.

Дом знаний © Eduard Hueber
Дом знаний © Eduard Hueber

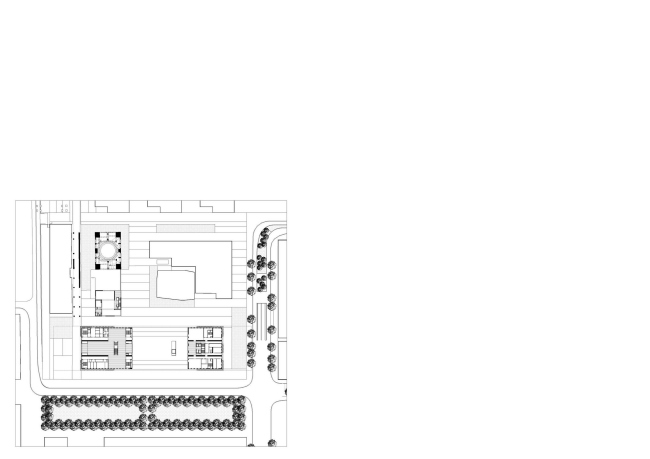
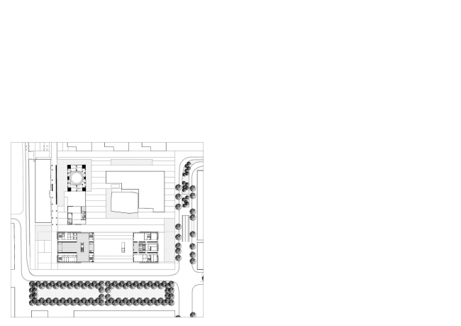
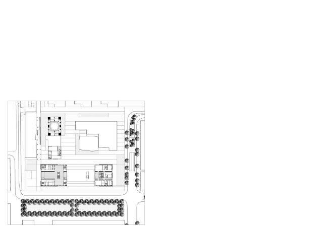
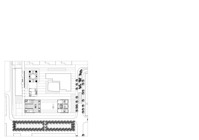
Речь идет о центральной постройке кампуса Университета Люксембурга в городе Эш-сюр-Альзетт. Он находится на месте крупного сталелитейного завода в районе Бельваль: теперь эта территория застраивается университетскими корпусами, офисами и лабораториями «Городка науки», а также жильем, учреждениями культуры и пр.
 
Дом знаний © Eduard Hueber
Дом знаний © Eduard Hueber

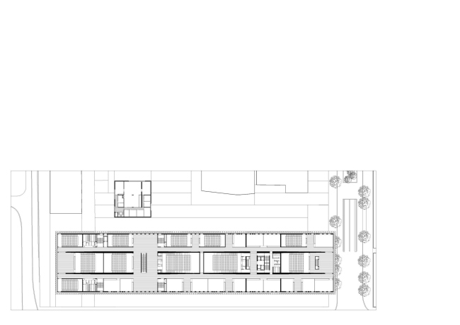
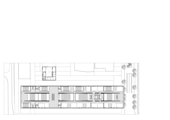
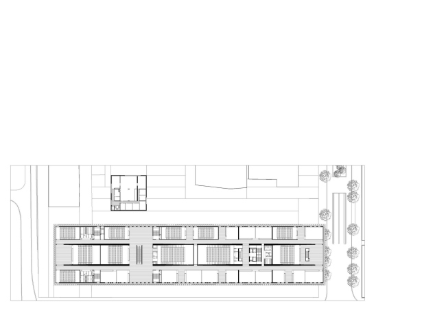
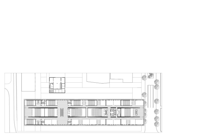
«Дом знаний» откликается на индустриальное прошлое участка: 18-этажное здание по габаритам совпадает с располагавшимися здесь сталеплавильными печами. В нем расположены лекционные и семинарские аудитории, кабинеты преподавателей, административные помещения, столовые.
 
Дом знаний © Eduard Hueber
Дом знаний © Eduard Hueber

Учебные помещения и кабинеты образуют сеть проходов, мостиков и «площадей», связанных с внешним пространством. В верхнюю часть здания ведут лестничные узлы, одновременно служащие световыми колодцами. На четвертом этаже горизонтальной части с консольным выносом устроен сад.
 
Дом знаний © Eduard Hueber
Дом знаний © Eduard Hueber

Фасады здания снаружи закрыты стальной решеткой, защищающей интерьер от солнечного жара.
Дом знаний © Eduard Hueber
Дом знаний © Eduard Hueber
Дом знаний © Eduard Hueber
Дом знаний © Eduard Hueber
Дом знаний © Eduard Hueber
Дом знаний © Eduard Hueber
Дом знаний © Eduard Hueber
Дом знаний © Eduard Hueber
Дом знаний © Eduard Hueber
Дом знаний © Eduard Hueber
Дом знаний © Eduard Hueber
Дом знаний © Eduard Hueber
Дом знаний © Eduard Hueber
Дом знаний © Eduard Hueber
Дом знаний © Eduard Hueber
Дом знаний © Eduard Hueber
Дом знаний © Eduard Hueber
Дом знаний © Eduard Hueber
Дом знаний © Eduard Hueber
Дом знаний © Eduard Hueber
Дом знаний © be baumschlager eberle
Дом знаний © be baumschlager eberle
Дом знаний © be baumschlager eberle
Дом знаний © be baumschlager eberle
Дом знаний © be baumschlager eberle
Дом знаний © be baumschlager eberle
Дом знаний © be baumschlager eberle
Дом знаний © be baumschlager eberle