Размещено на портале Архи.ру (www.archi.ru)

03.02.2016

Около ноля

Екатерина Ровнова
Объект:
Здание агентства Bruxelles Environnement
Адрес:
Бельгия, None, Брюссель.
Мастерская:
cepezed

Самое большое в Европе «пассивное» офисное здание возведено в Брюсселе по проекту голландского бюро cepezed.

Здание агентства Bruxelles Environnement © cepezed | Léon van Woerkom
Здание агентства Bruxelles Environnement © cepezed | Léon van Woerkom

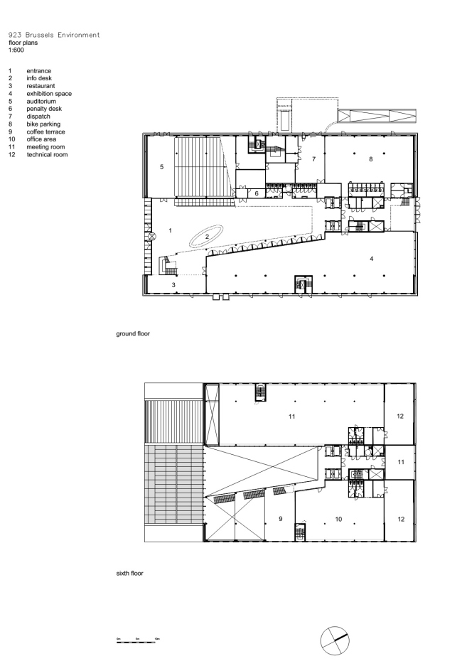
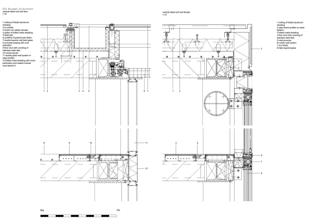
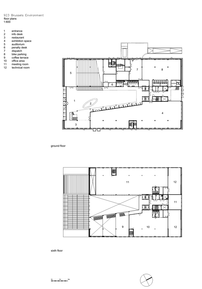
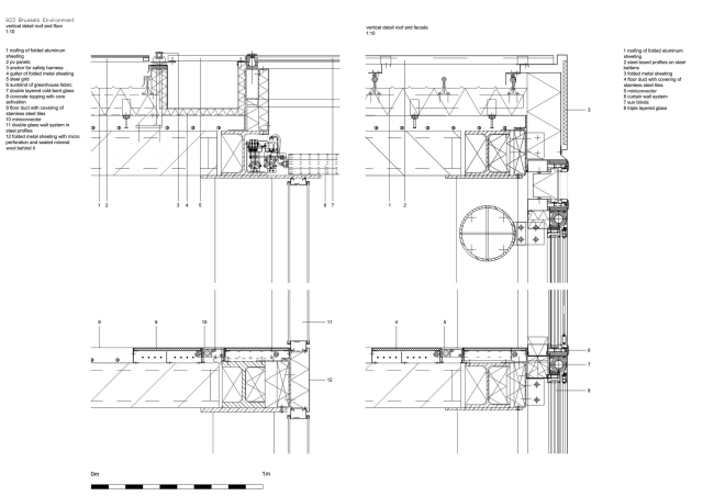
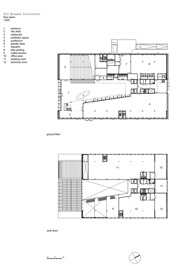
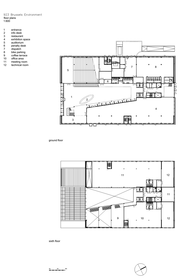
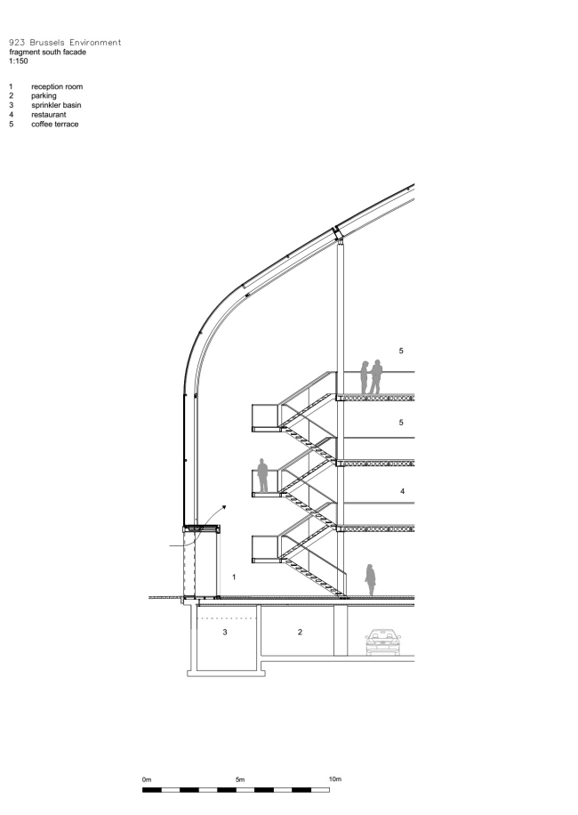
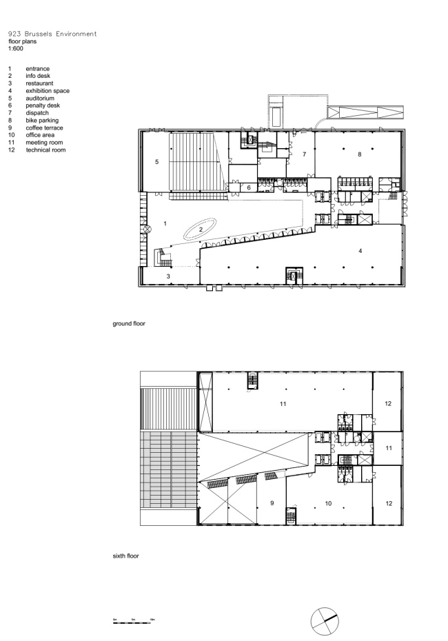
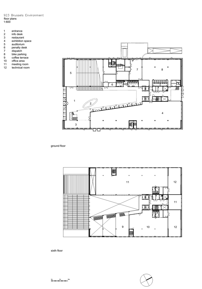
Согласно законодательству Брюссельского столичного региона, каждое новое муниципальное строение должно соответствовать «пассивному» стандарту: присоединившись к европейской Директиве об энергетических характеристиках строительства (Directive on the energy performance of buildings), региональное правительство ставит целью достичь нулевой эмиссии диоксида углерода зданиями к 2020 году. В таких условиях 19 690 квадратных метров новой штаб-квартиры Управления окружающей среды Брюссельского столичного региона (IBGE, или ­агентство Bruxelles Environnement) обязаны представлять собой образец устойчивого проектирования (см. видео). Расположившийся на берегу реки Сенны объем с закругляющейся крышей, большой поверхностью остекления и темным глянцевым фасадом должен быть не только углеродно-нейтральным, но и стать импульсом развития прилегающих территорий.
 
Здание агентства Bruxelles Environnement © cepezed | Léon van Woerkom
Здание агентства Bruxelles Environnement © cepezed | Léon van Woerkom

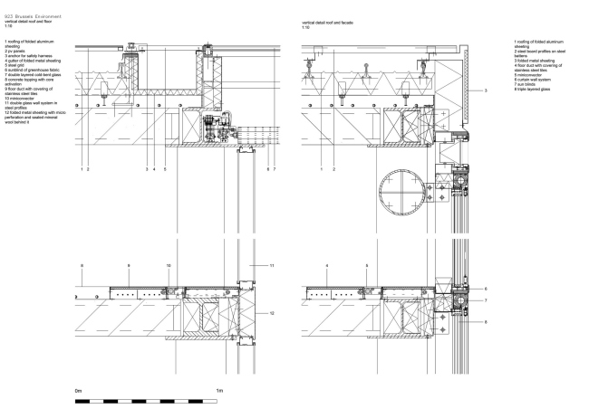
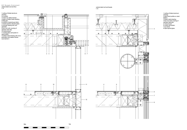
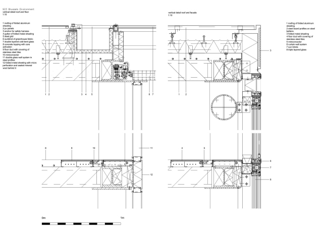
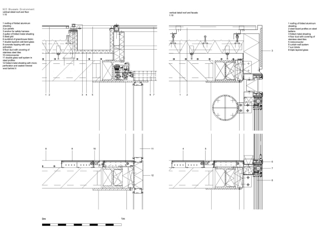
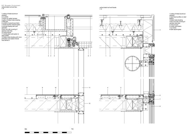
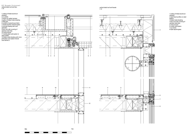
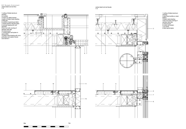
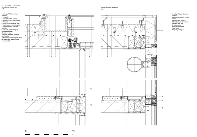
Историческая застройка городской площади перетекает во внутреннее пространство штаб-квартиры сквозь 8-этажный атриум под остекленной крышей, работающий в качестве гигантской теплицы: черная алюминиевая облицовка поглощает тепло, а атриум накапливает нагретый воздух для последующей рекуперации. Тройное остекление, стойкое к нагреванию, обеспечивает высокий уровень теплоизоляции, тогда как автоматические жалюзийные системы защищают строение от перегрева в летний период.
 
Здание агентства Bruxelles Environnement © cepezed | Léon van Woerkom
Здание агентства Bruxelles Environnement © cepezed | Léon van Woerkom

В фасад интегрированы солнечные панели, используется система геотермальных насосов, к минимуму сведена механическая вентиляция, а дождевая вода используется в системе технического водоснабжения. Здание получило «отличную» оценку по шкале BREEAM и сертификат «пассивного» строения.
 
Здание агентства Bruxelles Environnement © cepezed | Yvan Glavie
Здание агентства Bruxelles Environnement © cepezed | Yvan Glavie

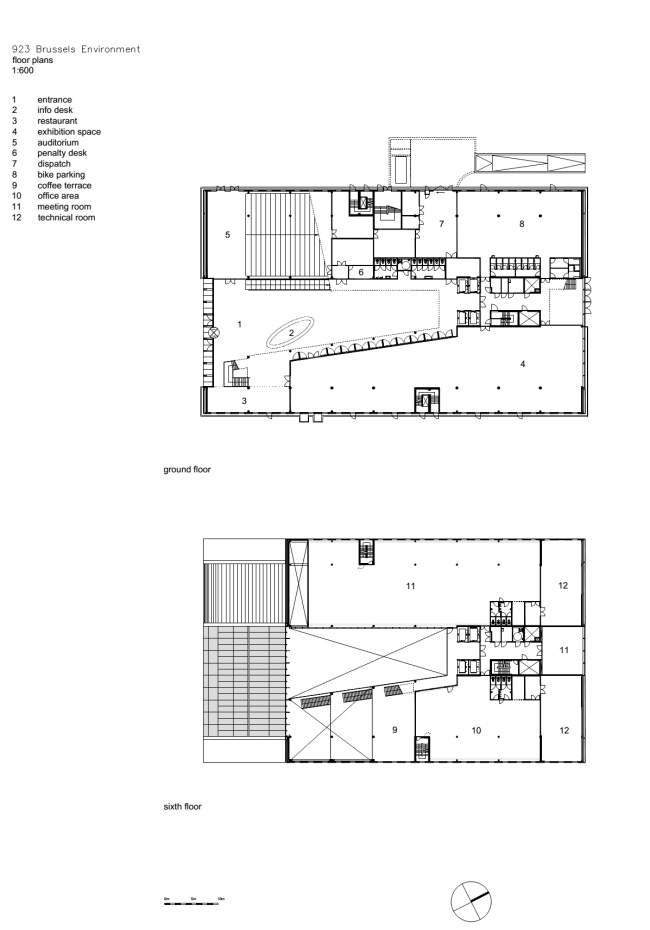
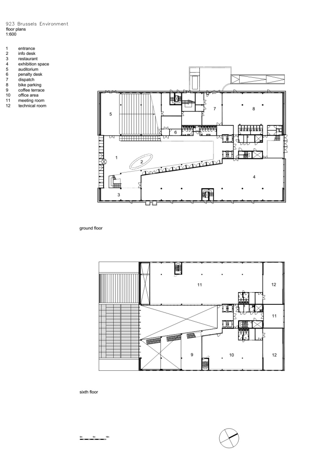
Первые два этажа открыты для всех желающих: здесь располагается постоянная экспозиция о климатических изменениях в XXI веке, мультимедийная библиотека, конференц-зал и ресторан с органическим меню. Выше второго этажа находятся офисные опен-спейсы и лаборатории, а с самой верхней площадки сквозь остекленную крышу-стену открывается вид на Брюссель.
 
Здание агентства Bruxelles Environnement © cepezed | Léon van Woerkom
Здание агентства Bruxelles Environnement © cepezed | Léon van Woerkom

Интерьер выполнен в белом и сером цвете: общий светлый тон оттеняют разноцветные сиденья и деревянный амфитеатр конференц-зала, перекликающийся со ступенями главной лестницы, и высокие перегородки из древесины американской вишни, зонирующие офисные помещения.
 
Здание агентства Bruxelles Environnement © cepezed | Yvan Glavie
Здание агентства Bruxelles Environnement © cepezed | Yvan Glavie

Однако сегодня устойчивое развитие окрестностей – только в планах, поэтому огромная площадь пустует, а покатый объем штаб-квартиры Управления окружающей среды, одиноко возвышающийся над ней, успел приобрести прозвище «тостер».
 
Здание агентства Bruxelles Environnement © cepezed | Léon van Woerkom
Здание агентства Bruxelles Environnement © cepezed | Léon van Woerkom
Здание агентства Bruxelles Environnement © cepezed | Léon van Woerkom
Здание агентства Bruxelles Environnement © cepezed | Léon van Woerkom
Здание агентства Bruxelles Environnement © cepezed | Léon van Woerkom
Здание агентства Bruxelles Environnement © cepezed | Léon van Woerkom
Здание агентства Bruxelles Environnement © cepezed | Léon van Woerkom
Здание агентства Bruxelles Environnement © cepezed | Léon van Woerkom
Здание агентства Bruxelles Environnement © cepezed | Léon van Woerkom
Здание агентства Bruxelles Environnement © cepezed | Léon van Woerkom
Здание агентства Bruxelles Environnement © cepezed | Léon van Woerkom
Здание агентства Bruxelles Environnement © cepezed | Léon van Woerkom
Здание агентства Bruxelles Environnement © cepezed | Léon van Woerkom
Здание агентства Bruxelles Environnement © cepezed | Léon van Woerkom
Здание агентства Bruxelles Environnement © cepezed | Léon van Woerkom
Здание агентства Bruxelles Environnement © cepezed | Léon van Woerkom
Здание агентства Bruxelles Environnement © cepezed | Léon van Woerkom
Здание агентства Bruxelles Environnement © cepezed | Léon van Woerkom
Здание агентства Bruxelles Environnement © cepezed | Léon van Woerkom
Здание агентства Bruxelles Environnement © cepezed | Léon van Woerkom
Здание агентства Bruxelles Environnement © cepezed | Léon van Woerkom
Здание агентства Bruxelles Environnement © cepezed | Léon van Woerkom
Здание агентства Bruxelles Environnement © cepezed | Léon van Woerkom
Здание агентства Bruxelles Environnement © cepezed | Léon van Woerkom
Здание агентства Bruxelles Environnement © cepezed | Léon van Woerkom
Здание агентства Bruxelles Environnement © cepezed | Léon van Woerkom
Здание агентства Bruxelles Environnement © cepezed
Здание агентства Bruxelles Environnement © cepezed
Здание агентства Bruxelles Environnement © cepezed
Здание агентства Bruxelles Environnement © cepezed
Здание агентства Bruxelles Environnement © cepezed
Здание агентства Bruxelles Environnement © cepezed
Здание агентства Bruxelles Environnement © cepezed
Здание агентства Bruxelles Environnement © cepezed
Здание агентства Bruxelles Environnement © cepezed
Здание агентства Bruxelles Environnement © cepezed
Здание агентства Bruxelles Environnement © cepezed
Здание агентства Bruxelles Environnement © cepezed