Размещено на портале Архи.ру (www.archi.ru)

02.02.2016

Между океаном и озером

Нина Фролова
Объект:
Гостиница Seamarq Hotel
Адрес:
Южная Корея, None, Каннын.

На южнокорейском курорте Каннын по проекту бюро Ричарда Майера построена гостиница Seamarq Hotel.

Гостиница Seamarq Hotel © Roland Halbe
Гостиница Seamarq Hotel © Roland Halbe

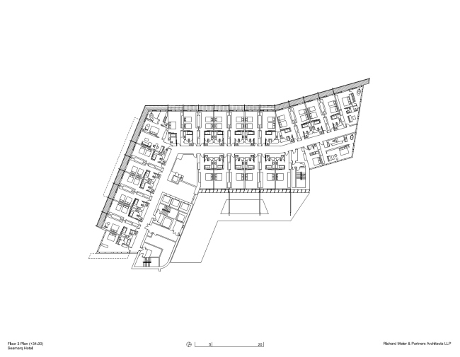
19-этажная башня помещена на небольшой холм на берегу Тихого океана; чуть ниже и ближе к воде расположен корпус банкетного зала. Постройки традиционного светлого колорита и прямоугольных форм вписаны в мягкие формы рельефа: архитекторы стремились подчеркнуть красоту ландшафта – рядом расположено озеро Кёнпхо, в отдалении – горы Тхэбэксан.
 
Гостиница Seamarq Hotel © Roland Halbe
Гостиница Seamarq Hotel © Roland Halbe

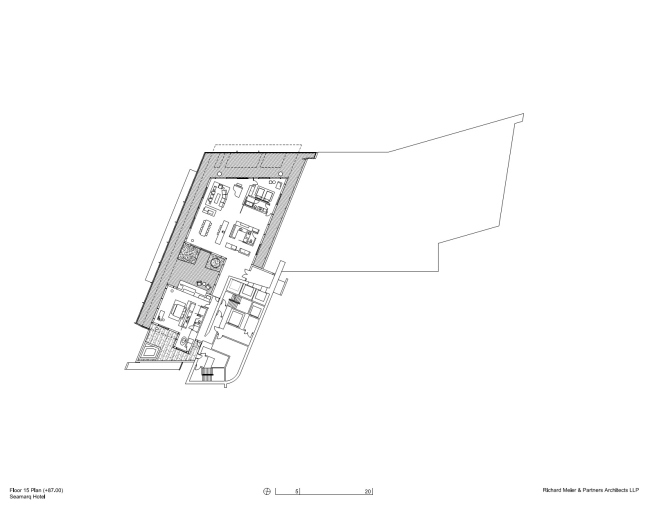
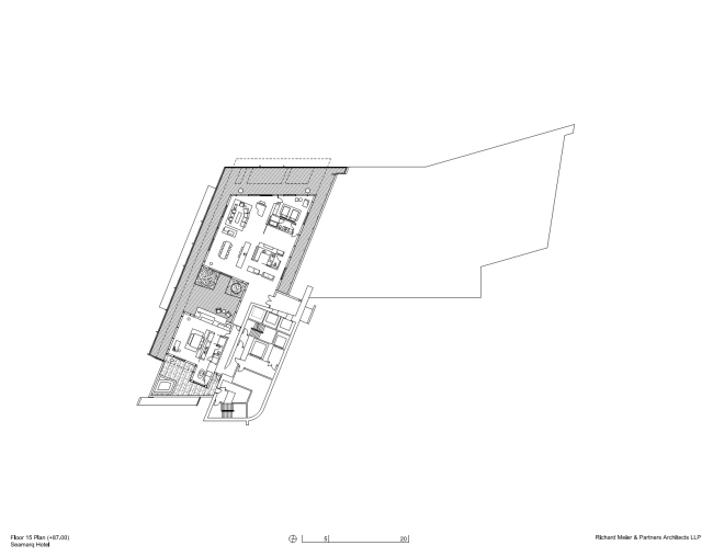
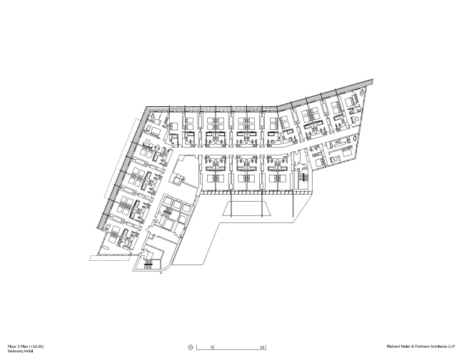
В то же время, большинство общественных пространств, включая просторную террасу с бассейном на уровне 5-го этажа (она отделяет подиум с вестибюлем, рестораном, спа-центром и т.д. от собственно башни), ориентированы на океан – как и почти все из 150 номеров. На верхнем этаже находится президентский номер с террасой и двором-садом.
 
Гостиница Seamarq Hotel © Roland Halbe
Гостиница Seamarq Hotel © Roland Halbe

Важно отметить, что для Richard Meier & Partners – это первый большой отель, а также первый реализованный в Южной Корее проект. Seamarq Hotel построен не только в рекреационных целях: в Канныне пройдет часть соревнований Зимней Олимпиады-2018, поэтому городу нужны новые вместительные гостиницы.
 
Гостиница Seamarq Hotel © Roland Halbe
Гостиница Seamarq Hotel © Roland Halbe

Ричард Майер отметил, что по многим чертам проект гостиницы напоминает виллы, созданные им в начале карьеры, в частности, дом Смита и дом Дугласа. Их объединяют с южнокорейским отелем, в частности, проницаемость и открытость природной среде вокруг.
Гостиница Seamarq Hotel © Roland Halbe
Гостиница Seamarq Hotel © Roland Halbe
Гостиница Seamarq Hotel © Roland Halbe
Гостиница Seamarq Hotel © Roland Halbe
Гостиница Seamarq Hotel © Roland Halbe
Гостиница Seamarq Hotel © Roland Halbe
Гостиница Seamarq Hotel © Roland Halbe
Гостиница Seamarq Hotel © Roland Halbe
Гостиница Seamarq Hotel © Richard Meier & Partners Architects
Гостиница Seamarq Hotel © Richard Meier & Partners Architects
Гостиница Seamarq Hotel © Richard Meier & Partners Architects
Гостиница Seamarq Hotel © Richard Meier & Partners Architects
Гостиница Seamarq Hotel © Richard Meier & Partners Architects
Гостиница Seamarq Hotel © Richard Meier & Partners Architects
Гостиница Seamarq Hotel © Richard Meier & Partners Architects
Гостиница Seamarq Hotel © Richard Meier & Partners Architects
Гостиница Seamarq Hotel © Richard Meier & Partners Architects
Гостиница Seamarq Hotel © Richard Meier & Partners Architects
Гостиница Seamarq Hotel © Richard Meier & Partners Architects
Гостиница Seamarq Hotel © Richard Meier & Partners Architects
Гостиница Seamarq Hotel © Richard Meier & Partners Architects
Гостиница Seamarq Hotel © Richard Meier & Partners Architects
Гостиница Seamarq Hotel © Richard Meier & Partners Architects
Гостиница Seamarq Hotel © Richard Meier & Partners Architects
Гостиница Seamarq Hotel © Richard Meier & Partners Architects
Гостиница Seamarq Hotel © Richard Meier & Partners Architects
Гостиница Seamarq Hotel © Scott Frances
Гостиница Seamarq Hotel © Scott Frances
Гостиница Seamarq Hotel © Richard Meier & Partners Architects
Гостиница Seamarq Hotel © Richard Meier & Partners Architects
Гостиница Seamarq Hotel © Richard Meier & Partners Architects
Гостиница Seamarq Hotel © Richard Meier & Partners Architects