Размещено на портале Архи.ру (www.archi.ru)

25.01.2016

Амбар, верфь, школа

Екатерина Ровнова
Объект:
Лицей Нельсона Манделы
Адрес:
Франция, None, Нант.
Мастерская:
Leclercq Associés

В устье Луары по проекту бюро Франсуа Леклерка возведена школа с деревянным несущим каркасом.

Лицей Нельсона Манделы © Takuji Shimmura
Лицей Нельсона Манделы © Takuji Shimmura

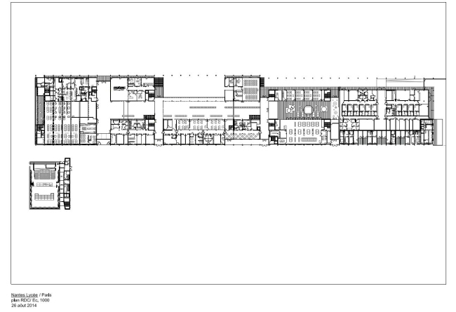
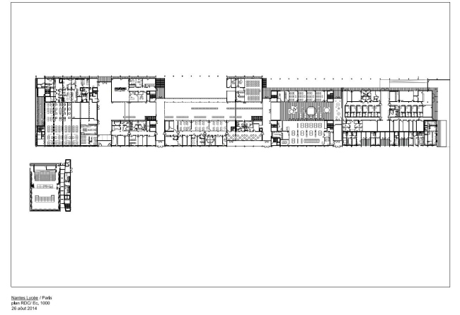
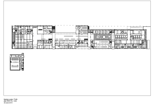
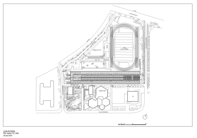
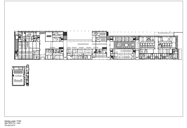
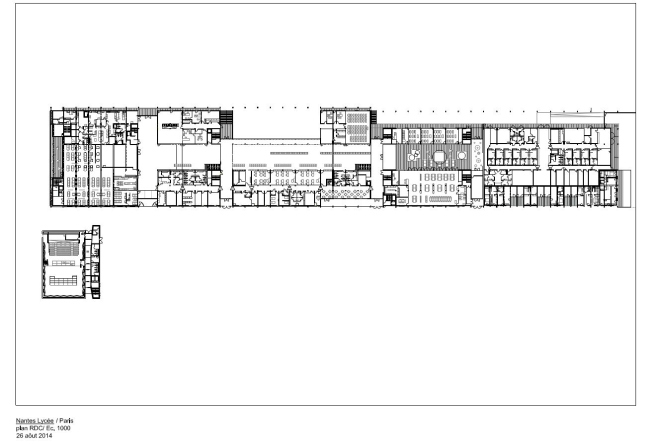
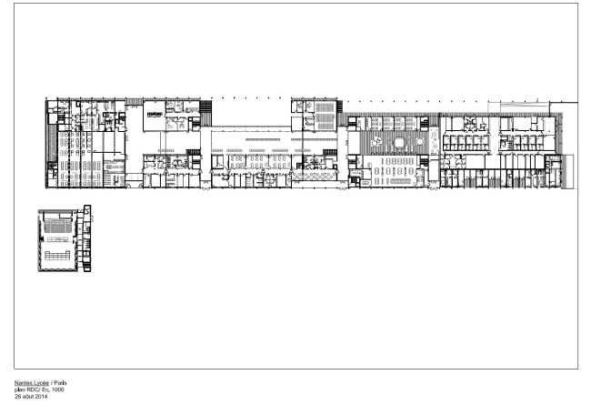
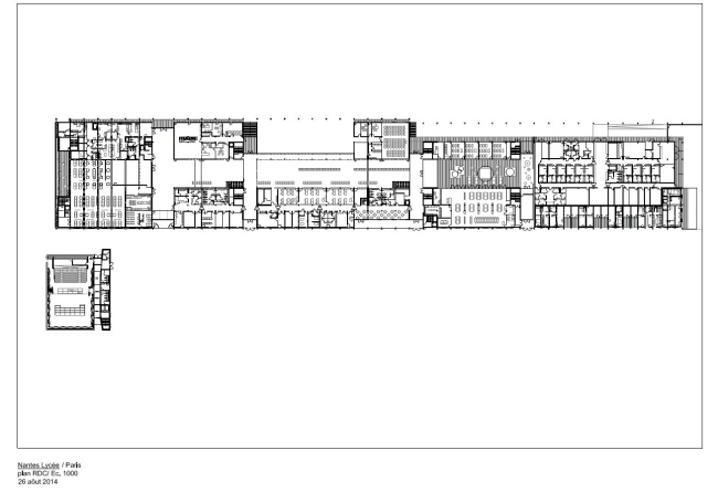
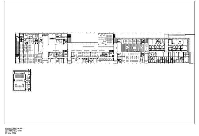
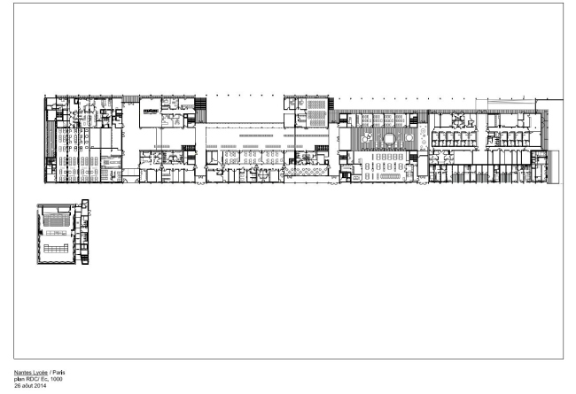
Вдохновленные индустриальным прошлым речного острова Иль-де-Нант в центре Нанта архитекторы студии Франсуа Леклерка за основу для нового здания взяли вытянутый объем дока, где основное действие происходит вокруг центрального объекта: так крытая «улица» протяженностью 150 метров стала композиционной и семантической осью Международного лицея имени Нельсона Манделы (видео «облета» здания можно посмотреть здесь).
 
Лицей Нельсона Манделы © Takuji Shimmura
Лицей Нельсона Манделы © Takuji Shimmura

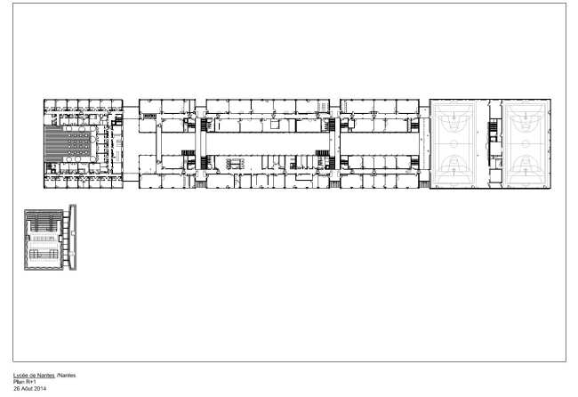
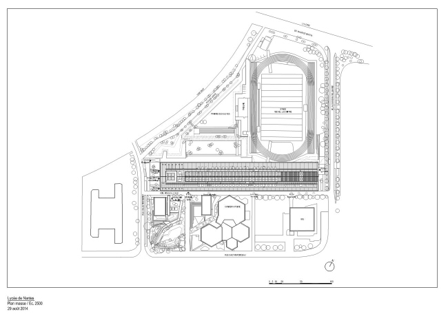
Открывшийся в 2014 лицей – средняя школа второй ступени – предназначен для 1500 молодых людей 15-20 лет из семей экспатов, для которых французский язык – иностранный. Для 154 из них предоставлено жилье по принципу школы-пансиона, сгруппированное, в основном, в юго-западном, «домашнем» торце здания, вмещающем в себя кухонный блок и комнаты с видом на внутренний двор или на город. В противоположном конце строения расположены два спортивных зала и скалодром.
 
Лицей Нельсона Манделы © Takuji Shimmura
Лицей Нельсона Манделы © Takuji Shimmura

По обе стороны «главного нефа» протянуты линии классов и жилых комнат, соединенных коридором: их окна выходят либо на Луару, либо в пространство «нефа». Остекленная кровля обеспечивает естественное освещение всех обращенных внутрь здания помещений, а клееные конструкции крыши создают игру светотени, изменяющую облик главного общественного пространства в течение дня (подборка фото). Образ деревянных треугольных ферм отсылает к конструкции кровли средневековых соляных амбаров (greniers à sel): получается, что под сенью французской истории собрались люди из разных стран, выбравшие Францию местом для жизни.
 
Лицей Нельсона Манделы © Takuji Shimmura
Лицей Нельсона Манделы © Takuji Shimmura

Конструкции здания – стоечно-балочный каркас из клееной древесины и клееная треугольная пространственная ферма, несущая кровлю. Перекрытия композитные: бетонные с несъемной 18-миллиметровой опалубкой из ОСП по клееным балкам с шагом 1400 мм. Во внутренней отделке использован дуб, а фасад облицован древесиной сосны приморской, которой изобилуют окрестности Нанта.
 
Лицей Нельсона Манделы © Takuji Shimmura
Лицей Нельсона Манделы © Takuji Shimmura

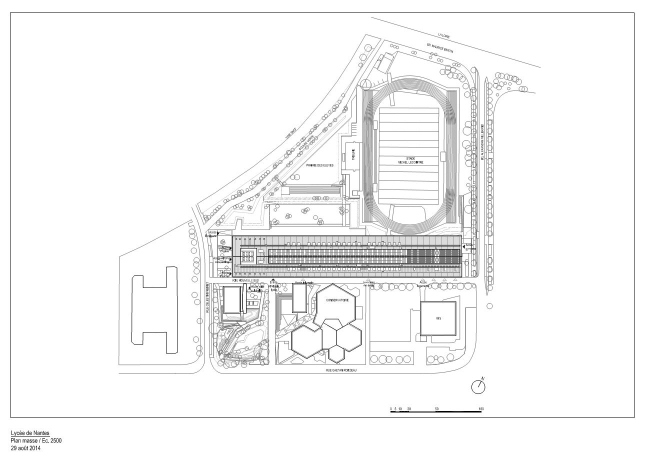
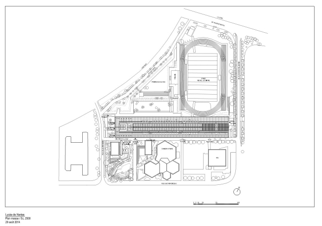
Образовательный комплекс общей площадью 25 500 м2 вливается в городскую ткань, открывая местным жителям площадь для проведения общественных мероприятий и стадион. Все функциональные части сооружения – спортивные залы, культурный центр, кафетерий – работают не только в связке друг с другом, но и на город: у каждого компонента есть свой независимый вход и почтовый адрес. Примыкающий к основному корпусу с юга концертный зал на 250 мест, где репетирует Национальный оркестр региона Земли Луары, перекликается с соседним зданием Консерватории.
 
Лицей Нельсона Манделы © Takuji Shimmura
Лицей Нельсона Манделы © Takuji Shimmura

Таким образом, школа для иностранцев не изолируется, превращаясь в остров внутри острова, а раскрывается вовне, создавая среду для ассимиляции и формирования сообщества. Ее территорию не ограждает ни один забор: границы очерчены лишь системой прудов и каналов.
Лицей Нельсона Манделы © Takuji Shimmura
Лицей Нельсона Манделы © Takuji Shimmura
Лицей Нельсона Манделы © Takuji Shimmura
Лицей Нельсона Манделы © Takuji Shimmura
Лицей Нельсона Манделы © Takuji Shimmura
Лицей Нельсона Манделы © Takuji Shimmura
Лицей Нельсона Манделы © Takuji Shimmura
Лицей Нельсона Манделы © Takuji Shimmura
Лицей Нельсона Манделы © baloon-photo.com
Лицей Нельсона Манделы © baloon-photo.com
Лицей Нельсона Манделы © Takuji Shimmura
Лицей Нельсона Манделы © Takuji Shimmura
Лицей Нельсона Манделы © Takuji Shimmura
Лицей Нельсона Манделы © Takuji Shimmura
Лицей Нельсона Манделы © Takuji Shimmura
Лицей Нельсона Манделы © Takuji Shimmura
Лицей Нельсона Манделы © Takuji Shimmura
Лицей Нельсона Манделы © Takuji Shimmura
Лицей Нельсона Манделы © Takuji Shimmura
Лицей Нельсона Манделы © Takuji Shimmura
Лицей Нельсона Манделы © Takuji Shimmura
Лицей Нельсона Манделы © Takuji Shimmura
Лицей Нельсона Манделы © Takuji Shimmura
Лицей Нельсона Манделы © Takuji Shimmura
Лицей Нельсона Манделы © Takuji Shimmura
Лицей Нельсона Манделы © Takuji Shimmura
Лицей Нельсона Манделы © Takuji Shimmura
Лицей Нельсона Манделы © Takuji Shimmura
Лицей Нельсона Манделы © Takuji Shimmura
Лицей Нельсона Манделы © Takuji Shimmura
Лицей Нельсона Манделы © François Leclercq Architectes Urbanistes
Лицей Нельсона Манделы © François Leclercq Architectes Urbanistes
Лицей Нельсона Манделы © François Leclercq Architectes Urbanistes
Лицей Нельсона Манделы © François Leclercq Architectes Urbanistes
Лицей Нельсона Манделы © François Leclercq Architectes Urbanistes
Лицей Нельсона Манделы © François Leclercq Architectes Urbanistes
Лицей Нельсона Манделы © François Leclercq Architectes Urbanistes
Лицей Нельсона Манделы © François Leclercq Architectes Urbanistes
Лицей Нельсона Манделы © François Leclercq Architectes Urbanistes
Лицей Нельсона Манделы © François Leclercq Architectes Urbanistes
Лицей Нельсона Манделы © François Leclercq Architectes Urbanistes
Лицей Нельсона Манделы © François Leclercq Architectes Urbanistes
Лицей Нельсона Манделы © François Leclercq Architectes Urbanistes
Лицей Нельсона Манделы © François Leclercq Architectes Urbanistes
Лицей Нельсона Манделы © François Leclercq Architectes Urbanistes
Лицей Нельсона Манделы © François Leclercq Architectes Urbanistes
Лицей Нельсона Манделы © François Leclercq Architectes Urbanistes
Лицей Нельсона Манделы © François Leclercq Architectes Urbanistes
Лицей Нельсона Манделы © François Leclercq Architectes Urbanistes
Лицей Нельсона Манделы © François Leclercq Architectes Urbanistes