Размещено на портале Архи.ру (www.archi.ru)

22.01.2016

Рожденный для игр

Анна Старостина
Объект:
Игровая база команды Na’Vi
Адрес:
Украина, None, Киев.
Мастерская:
Dmytro Aranchii Architects
Авторский коллектив:
Дмитрий Аранчий, Арарат Говакимян, Мария Аранчий, Игорь Кишта, Евгения Ковальчук, Алена Бондарь 

Бюро Дмитрия Аранчия создало в Киеве «дом» для одной из лучших в мире команд по киберспорту.

Игровая база команды Na’Vi © Dmytro Aranchii Architects
Игровая база команды Na’Vi © Dmytro Aranchii Architects

Название украинской команды Natus Vincere (сокращенно Na’Vi) переводится с латыни как «рожденные побеждать». И оно вполне оправдано, так как спортсмены выиграли уже множество престижных международных турниров по компьютерным играм. Dmytro Aranchii Architects вместе с мастерской HOVART создали проект универсального пространства, где игроки команды могут тренироваться, отдыхать, соревноваться – просто жить.
Игровая база команды Na’Vi © Dmytro Aranchii Architects
Игровая база команды Na’Vi © Dmytro Aranchii Architects

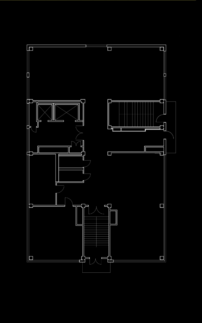
В правильное прямоугольное пространство площадью 300 м2 планируется внедрить змееподобную угловатую ленту. Она имеет сотовую структуру, оборудована светодиодами, а так же специальными датчиками, реагирующими на любую двигательную и эмоциональную активность человека внутри пространства. Зафиксировав ее, лента начинает меняться, провоцируя ответную реакцию, но логика этих изменений непонятна и непредсказуема, очевидно лишь, что причина их – поведение самого человека. В результате даже просто пребывание в этом пространстве превращается в какую-то прихотливую игру интеллектов, принципиально непознаваемую реальность.
Игровая база команды Na’Vi © Dmytro Aranchii Architects
Игровая база команды Na’Vi © Dmytro Aranchii Architects



Уже на эту ленту архитекторы нанизали все функции: рецепция, где на отдельном стенде будет представлена сувенирная продукция с символикой команды, удобное помещение для тренировок и соревнований, в котором ничего не отвлекает, кухня с барной стойкой, отдельные жилые комнаты и даже зона отдыха со столами для пинг-понга, чтобы игроки могли развивать реакцию и поддерживать физическую форму. Ломаные линии на полу вторят изгибам ленты и помогают визуально зонировать пространство, в котором планируется использовать стеклянные перегородки во всю высоту. Интересно, что никакой узнаваемой графики, по которой можно было бы сразу опознать назначение «дома», в интерьерах практически не использовано, разве что прожорливый Pac-Man в обеденной зоне, да рекламные логотипы. Архитекторы выстраивают свое решение на сочетании нейтрального, но активного серо-черного фона и едких, желтых и зеленых цветовых пятен.

Проект находится в стадии реализации.
Игровая база команды Na’Vi © Dmytro Aranchii Architects
Игровая база команды Na’Vi © Dmytro Aranchii Architects
Игровая база команды Na’Vi © Dmytro Aranchii Architects
Игровая база команды Na’Vi © Dmytro Aranchii Architects
Игровая база команды Na’Vi © Dmytro Aranchii Architects
Игровая база команды Na’Vi © Dmytro Aranchii Architects
Игровая база команды Na’Vi © Dmytro Aranchii Architects
Игровая база команды Na’Vi © Dmytro Aranchii Architects
Игровая база команды Na’Vi © Dmytro Aranchii Architects
Игровая база команды Na’Vi © Dmytro Aranchii Architects
Игровая база команды Na’Vi © Dmytro Aranchii Architects
Игровая база команды Na’Vi © Dmytro Aranchii Architects
Игровая база команды Na’Vi © Dmytro Aranchii Architects
Игровая база команды Na’Vi © Dmytro Aranchii Architects
Игровая база команды Na’Vi © Dmytro Aranchii Architects
Игровая база команды Na’Vi © Dmytro Aranchii Architects
Игровая база команды Na’Vi © Dmytro Aranchii Architects
Игровая база команды Na’Vi © Dmytro Aranchii Architects
Игровая база команды Na’Vi © Dmytro Aranchii Architects
Игровая база команды Na’Vi © Dmytro Aranchii Architects
Игровая база команды Na’Vi © Dmytro Aranchii Architects
Игровая база команды Na’Vi © Dmytro Aranchii Architects
Игровая база команды Na’Vi © Dmytro Aranchii Architects
Игровая база команды Na’Vi © Dmytro Aranchii Architects
Игровая база команды Na’Vi © Dmytro Aranchii Architects
Игровая база команды Na’Vi © Dmytro Aranchii Architects
Игровая база команды Na’Vi © Dmytro Aranchii Architects
Игровая база команды Na’Vi © Dmytro Aranchii Architects
Игровая база команды Na’Vi © Dmytro Aranchii Architects
Игровая база команды Na’Vi © Dmytro Aranchii Architects
Игровая база команды Na’Vi © Dmytro Aranchii Architects
Игровая база команды Na’Vi © Dmytro Aranchii Architects
Игровая база команды Na’Vi © Dmytro Aranchii Architects
Игровая база команды Na’Vi © Dmytro Aranchii Architects
Игровая база команды Na’Vi © Dmytro Aranchii Architects
Игровая база команды Na’Vi © Dmytro Aranchii Architects
Игровая база команды Na’Vi © Dmytro Aranchii Architects
Игровая база команды Na’Vi © Dmytro Aranchii Architects
Игровая база команды Na’Vi © Dmytro Aranchii Architects
Игровая база команды Na’Vi © Dmytro Aranchii Architects