Размещено на портале Архи.ру (www.archi.ru)

21.01.2016

Самый фотогеничный банк

Тарья Нурми
Объект:
Штаб-квартира Финансовой группы OP
Адрес:
Финляндия, None, Хельсинки. Teollisuuskatu 1, 00510
Мастерская:
JKMM

Штаб-квартира финансовой группы OP в Хельсинки по проекту бюро JKMM.

Штаб-квартира Финансовой группы OP © Marc Goodwin
Штаб-квартира Финансовой группы OP © Marc Goodwin

Архитекторов JKMM сделала известными городская библиотека Турку: это очень популярное здание, любимое его «пользователями». Их библиотека в Сейняйоки тоже заслужила немало похвал как одно из лучших новых зданий этого типа в Европе, а павильон Финляндии на Экспо-2010 в Шанхае получил награду выставки за свою архитектуру. Так эта мастерская постепенно стала одним из крупнейших «авторских» финских бюро. Она продолжает побеждать в конкурсах – благодаря своей энергии и методу работы в творческих группах. Сейчас в JKMM – 60 сотрудников, помимо прочего, они занимаются проектами большой больницы в Ювяскюля и художественного музея Амоса Андерсена в Хельсинки (он был заказан им напрямую).
 
Штаб-квартира Финансовой группы OP © Tuomas Uusheimo
Штаб-квартира Финансовой группы OP © Tuomas Uusheimo

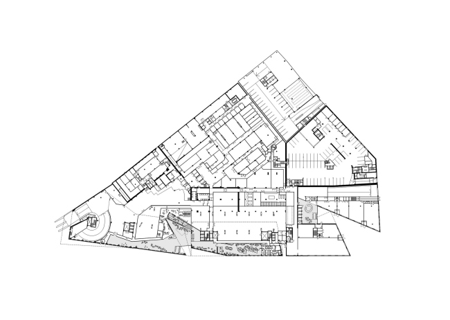
Среди новых построек в Хельсинки нельзя не заметить еще одну работу этих архитекторов – внушительную по размерам штаб-квартиру финансовой группы OP (общая площадь – 130 000 м2). Здание из бетона, стали и стекла рассчитано на 4000 сотрудников, включая юристов и поваров. JKMM выиграли закрытый конкурс на его проект в 2011, а завершилось строительство осенью 2015.
 
Штаб-квартира Финансовой группы OP © Mika Huisman
Штаб-квартира Финансовой группы OP © Mika Huisman

Здание расположено в Валлила – бывшем рабочем районе, где очаровательные кварталы из старых деревянных домов соседствуют с промышленными сооружениями разного времени, ныне по большей части приспособленными под новые функции. У группы OP уже были здесь постройки, и здание JKMM включило в себя их все – за исключением углового корпуса, который решено снести и построить на его месте новое сооружение.
 
Штаб-квартира Финансовой группы OP © Mika Huisman
Штаб-квартира Финансовой группы OP © Mika Huisman

К главной транспортной артерии района, улице Теоллисуускату, новостройка обращена очень «острым» фасадом, где бетонные плиты с узкими окнами слегка наклонены под разными углами. Между ними расположены вертикальные остекленные щели, через которые можно увидеть фрагменты интерьера. При взгляде издалека это производит впечатление – в том числе, большой фотогеничности. Однако надо признать, что здание в целом выглядит слишком крупным для своего окружения объектом, каким-то образом «приземлившимся» в этой части города.

 
Штаб-квартира Финансовой группы OP © Marc Goodwin
Штаб-квартира Финансовой группы OP © Marc Goodwin



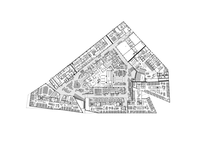
Внутри постройка – полностью современная, по-скандинавски и по-фински свежая и выразительная – и одновременно камерная, интимная. Она открывается к улице лишь через главный вход. Такой огромный городской квартал без кафе и магазинов на первом этаже кажется высокомерным жестом, как считают некоторые местные жители и журналисты. Однако вестибюль и напоминающая галерею серия пространств, где выставлены произведения искусства из принадлежащей OP коллекции открыты всем желающим. Также горожане могут посидеть там в прекрасных черных кожаных креслах, перенесенных сюда из старой штаб-квартиры страховой компании Pohjola (Pohjola влилась в OP) и элегантно отреставрированных. Также можно заглянуть в главный двор, доступ куда, однако, открыт только сотрудникам.

Справа от стойки информации в вестибюле находится отделение Helsinki OP Bank – глянцевый и полный воздуха интерьер, где для клиентов предусмотрена даже кофемашина.

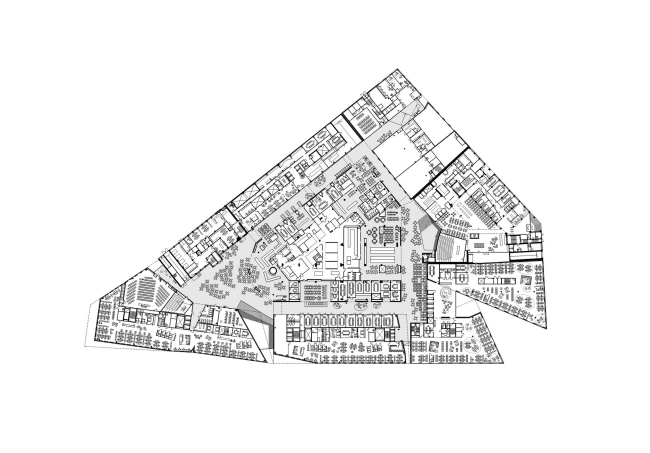
Те, кто направляется в закрытую для публики часть здания, после турникетов могут или воспользоваться лифтом, или торжественно подняться по красивым гранитным ступеням. Здесь расположен «интерьерный городской ландшафт» – фасады старых офисных зданий, вошедших в новый комплекс, поэтому кажется, что находишься на улице. Главную «пьяццу» перекрывает эффектный потолок из стали и стекла. Атмосфера вовсе не помпезная, в том числе благодаря расставленным там легким оранжевым стульям. Везде можно увидеть или почувствовать результат работы дизайнеров интерьера из JKMM и приглашенных художников.
 
Штаб-квартира Финансовой группы OP © Tuomas Uusheimo
Штаб-квартира Финансовой группы OP © Tuomas Uusheimo

Произведения современного искусства из собрания группы OP были продуманно размещены по второму этажу «улицы»; мебель состоит частью из «классических» моделей модернизма, частью – из новых, но вполне способных стать классикой вариантов. У одного из ресторанов сделан деревянный «художественный потолок», который включает в себя систему освещения. Его дизайнер – Петри Вайнио (Petri Vainio), известный своими лампами и светильниками.
 
Штаб-квартира Финансовой группы OP © Tuomas Uusheimo
Штаб-квартира Финансовой группы OP © Tuomas Uusheimo

На втором этаже есть несколько ресторанов и кафе, большинство из которых выходит на внутреннюю «улицу», которая окружает ядро здания. Они обставлены просто восхитительно – в прохладном городском стиле. Технические системы спрятаны сверху за складчатыми и перфорированными стальными панелями. Художественный подход к оформлению был предложен молодыми архитекторами и студентами, входившими в коллектив проекта. «Классические» модели мебели сочетаются с акцентами свежих цветов, но и то, и другое применено в умеренных количествах. При этом все пространства открыты и доступны, даже белый с золотом VIP-ресторан для проведения особых мероприятий не стали скрывать за дверями или портьерами.
 
Штаб-квартира Финансовой группы OP © Mika Huisman
Штаб-квартира Финансовой группы OP © Mika Huisman

Расположенные на верхних этажах офисы сочетают пространства со свободным планом с переговорными и небольшими комнатами для тихой работы. Только гендиректор группы OP и его секретарь получили собственные кабинеты, остальные сотрудники размещены в легко трансформируемых опен-спейсах, причем иногда им разрешается работать из дома. Упомянутые комнаты для тихой работы обращены во дворы, в то время как помещения свободного плана выходят на уличные фасады. Из их окон видны старые деревянные дома, оживленная улица и парк, популярный у местных жителей и хипстеров. Особенно хорош вид на здание издали, когда улица не видна за ландшафтным дизайном со стороны парка.
 
Штаб-квартира Финансовой группы OP © Tuomas Uusheimo
Штаб-квартира Финансовой группы OP © Tuomas Uusheimo

Когда я осматривала здание с отвечавшим за этот проект партнером JKMM Асмо Якси (Asmo Jaaksi), одна из юристов группы OP поделилась своими впечатлениями от здания. До переезда сюда у нее был собственный офис, которого она теперь лишилась, однако ей нравится, как функционирует новая постройка, и если ей нужно поработать в одиночестве и тишине, у нее всегда есть несколько вариантов, как найти для этого подходящее помещение.

 
Штаб-квартира Финансовой группы OP © Tuomas Uusheimo
Штаб-квартира Финансовой группы OP © Tuomas Uusheimo



Подводя итог, штаб-квартира OP – на удивление эффектное, но не пафосное корпоративное здание высокого эстетического качества и даже с привкусом свежести и игривости. Для сотрудников имеется фитнес-центр, для тех из них, кто приезжает на работу на велосипеде, устроены раздевалка и душевые. В ресторанах можно купить еду на вынос, чтобы поужинать дома. Можно даже признаться, что немного завидуешь коллективу группы OP.

Два больших куска гранита, прямо с росшим на них мхом, были доставлены в Хельсинки и помещены у главного входа в здание. Они символизируют основательную финскость этого банка и финансовой компании, полностью принадлежащих и руководимых финнами. Впрочем, надо признать, что в городском ландшафте эта корпоративная штаб-квартира –глыба изрядного размера.
Штаб-квартира Финансовой группы OP © Mika Huisman
Штаб-квартира Финансовой группы OP © Mika Huisman
Штаб-квартира Финансовой группы OP © Mika Huisman
Штаб-квартира Финансовой группы OP © Mika Huisman
Штаб-квартира Финансовой группы OP © Mika Huisman
Штаб-квартира Финансовой группы OP © Mika Huisman
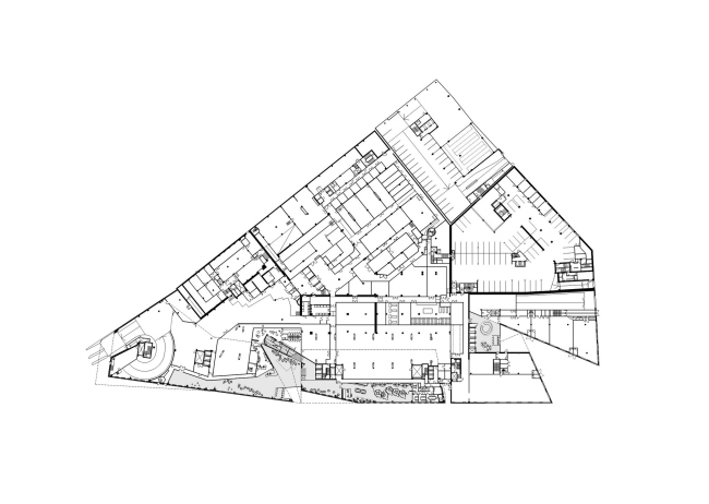
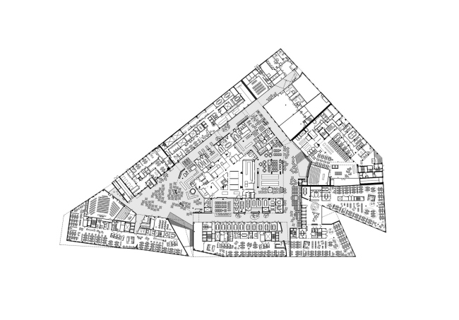
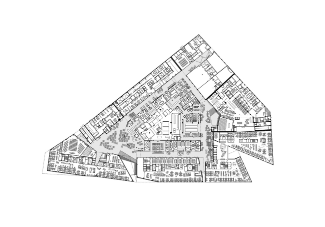
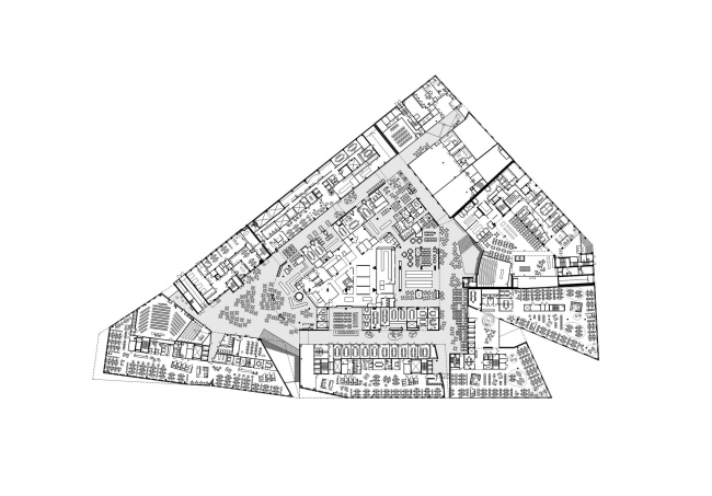
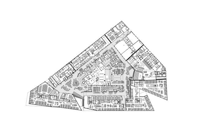
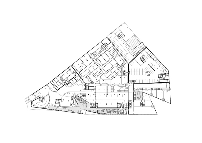
Штаб-квартира Финансовой группы OP © JKMM Architects
Штаб-квартира Финансовой группы OP © JKMM Architects
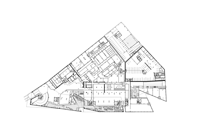
Штаб-квартира Финансовой группы OP © JKMM Architects
Штаб-квартира Финансовой группы OP © JKMM Architects
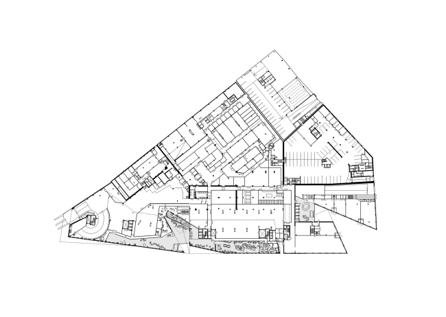
Штаб-квартира Финансовой группы OP © JKMM Architects
Штаб-квартира Финансовой группы OP © JKMM Architects
Штаб-квартира Финансовой группы OP © JKMM Architects
Штаб-квартира Финансовой группы OP © JKMM Architects
Штаб-квартира Финансовой группы OP © JKMM Architects
Штаб-квартира Финансовой группы OP © JKMM Architects
Штаб-квартира Финансовой группы OP © JKMM Architects
Штаб-квартира Финансовой группы OP © JKMM Architects
Штаб-квартира Финансовой группы OP © JKMM Architects
Штаб-квартира Финансовой группы OP © JKMM Architects